2023 - Architect Portfolio - Thanh Van Nguyen

Page 1

SELECTED WORKS 2018-2023

NGUYỄN THỊ THANH VÂN
PORTFOLIO

I am a recently graduated architect from the University of Architecture Ho Chi Minh City. During my five years at university, I have developed a strong foundation in architectural theory and practice. I am also skilled in research and analysis, which allows me to think critically and creatively and to aim for uncomplicated architecture that is close to people but achieves a high level of finishing. Although I have not had the opportunity to participate in an official internship due to the COVID-19 pandemic, I have gained valuable experience by collaborating on independent projects. I have learned how to work with clients, manage projects, and work in a team.

I am still a work in progress, but I believe myself to be a reliable, responsible, and organized person. I am eager to learn new things every day and ready to challenge myself with new opportunities.

RESUME

ARCHITECTURE PORTFOLIO 2023

EDUCATION

Bao Loc High School for the gifted

University of Architecture Ho Chi Minh City (UAH)

GPA: 3.33/4.0 - GRADUATED JULY 2023

ACHIEVEMENTS

NGUYỄN THỊ THANH VÂN

Fresh Graduate

Date of birth: 07/08/2000

0367074971

Tan Phu District, HCMC

major Physic

major Architecture

Language: Vietnamese English

thanhvan78.arch@gmail.com

https://instagram.com/synthe_blue

https://www.behance.net/thanhvnnguyn3

https://issuu.com/thanhvan78

2nd Prize Winner of Archicad Bim Competition 2022 – Organized by GreenDS & Graphisoft

1st Prize in Excellent Student Contest of Lam Dong Province - Score: 19.75/20

WORKING EXPERIENCES

Collaborated on the VILLA MERIONET project - SMLAtelier - T10-T11.2021

Design XUAN’S HOUSE project - T3-T5.2022

Collaborator in Station & fast food Counter Project - T6.2022

SOFTWARE COMPETENCIES

Design Concepts, create 3D modeling, shop drawing, and illustrate simply by using Revit.

Using Enscape/Lumion for rendering 3D and Photoshop/ Indesign to complete at last.

Use Sketchup and Archicad basically.

3 `
ARCHITECTURE PORTFOLIO 2023

LAM DONG PROVINCE

XUAN’S HOUSE

T5.2022

TRẠM DỪNG CHÂN ĐÈO BẢO LỘC

STATION&FASTFOOD COUNTER - T6.2022

VILLA MERRIONET

MODELING PROJECT - T3.2021

KHU DU LỊCH

ĐỒI BÁT ÚP

ĐỒ ÁN TỐT NGHIỆP - T7.2023

ARCHITECTURE PORTFOLIO 2023

LOW - RISE APARTMAENT - THE RIVER ISLAND

CHUNG CƯ THẤP TẦNG KHU ĐÔ THỊ VẠN PHÚC

ĐỒ ÁN KT6 - NHÀ Ở 2 - T9.2020

XÍ NGHIỆP MAY MẶC & THIẾT KẾ THỜI TRANG

ĐỒ ÁN CÔNG NGHIỆP - T4.2021

TRANSIT HOTEL

KHÁCH SẠN QUÁ CẢNH SÂN BAY TÂN SƠN NHẤT

ĐỒ ÁN TỔNG HỢP - CÔNG TRÌNH CÔNG CỘNG - T9.2022

CONCEPT DESIGN - DƯỚI MÁI HIÊN

THIẾT KẾ NHANH 2 - THÁNG 12.2020

GAP

RENOVATION PROJECT - T7.2022

CONCEPT DESIGN - COFFEE SHOP

ĐỒ ÁN CƠ SỞ 4 - THÁNG 3.20219

THIẾT KẾ NỘI THẤT

KHÁCH SẠN FUSION SUITE SAIGON

ĐỒ ÁN KT9 - T7.2022

HO CHI MINH CITY

INDEX
ĐỒ ÁN CƠ SỞ 4 - THÁNG 3/20219 ARCHITECTURE PORTFOLIO 2023 6

ĐỒ ÁN ĐƯỢC THIẾT KẾ TRÊN KHU ĐẤT THUỘC

CÔNG VIÊN VEN BỜ SÔNG TRÊN TRỤC ĐƯỜNG

TÔN ĐỨC THẮNG - TRUNG TÂM HÀNH CHÍNH -

KINH TẾ CỦA THÀNH PHỐ NHÌN VỀ PHÍA QUẬN 2

BÊN KIA SÔNG, NƠI NHỮNG CÁNH DIỀU BAY LÊN

CAO MÙA GIÓ NỔI. CHÍNH VÌ THẾ, HÌNH KHỐI

CỦA CÔNG TRÌNH ĐƯỢC PHÁT TRIỂN TỪ HÌNH

ẢNH MỘT CÁNH DIỀU - VỪA GIÚP CÔNG TRÌNH

HÀI HÒA VỚI BỐI CẢNH XUNG QUANH, VỪA BIỂU

TƯỢNG CHO TIỀM NĂNG PHÁT TRIỂN CỦA KHU

VỰC MÀ CÔNG TRÌNH ĐANG XÂY DỰNG

CONCEPT DESIGN
7
ARCHITECTURE PORTFOLIO 2023 8 THIẾT KẾ NHANH 2 - THÁNG 12/2020 - TEAM PROJECT: THANH VÂN - HẢI MINH - MINH YÊN

VỊ TRÍ LỰA CHỌN CẢI TẠO - CUỐI HẺM 56 - PHƯỜNG TÂN ĐỊNH

VỚI ĐỀ BÀI YÊU CẦU THIẾT KẾ KHÔNG GIAN “DƯỚI MÁI HIÊN” TRONG

BỐI CẢNH ĐÔ THỊ Ở THÀNH PHỐ HỒ CHÍ MINH, NHÓM CHỌN CẢI TẠO

PHẦN KHÔNG GIAN CHUYỂN TIÊP CỦA NHÓM 4 CĂN NHÀ Ở CUỐI MỘT

CON HẺM CỤT VỚI NHIỀU NHÓM ĐỐI TƯỢNG SỬ DỤNG SÁT CẠNH

NHAU, GẶP NHAU Ở MỘT PHẦN SÂN CHUNG CUỐI HẺM.

HÌNH KHỐI CỦA MỖI CĂN NHÀ ĐƯỢC THAY ĐỔI DỰA TRÊN HIỆN TRẠNG

CÓ SẴN VÀ ĐÁP ỨNG NHU CẦU CỦA TỪNG ĐỐI TƯỢNG RIÊNG NHƯNG

VẪN ĐẢM BẢO MỖI LIÊN HỆ GIỮA NHỮNG NGƯỜI HÀNG XÓM, THIẾT

KẾ MỘT PHẦN MÁI Ở SÂN CHUNG TẠO RA KHOẢNG HIÊN CHUNG CHO

CẢ 4 CĂN NHÀ - NƠI MỌI NGƯỜI CHUYỂN TIẾP TỪ KHÔNG GIAN CHUNG

VÀO NHÀ RIÊNG.

LÙI PHẦN MẶT TIỀN

MỞ HIÊN BÊN HÔNG NHÀ RA PHÍA VƯỜN CÂY THAY ĐỔI CẤU TRÚC CHE HIÊN

VẠT XIÊN PHẦN MÁI

TĂNG TÍNH MỞ - THÔNG GIÓ CHO PHẦN HIÊN CHUNG 4 CĂN

MỞ RỘNG MÁI MỞ RỘNG MÁI

ĐẢM BẢO DIỆN TÍCH SỬ DỤNG

KHÔNG GIAN UỐNG TRÀ THƯỞNG THỨC CẢNH QUAN

CONCEPT DESIGN 9
ARCHITECTURE PORTFOLIO 2023 10
ARCHICAD BIM COMPETITION 2022 11
12 ARCHITECTURE PORTFOLIO 2023

Thiết kế tận dụng đặc điểm có sẵn của khu đất với 2 trục đường tiếp cận để

phân tách 2 nhóm đối tượng khách

sử dụng dịch vụ công trình. Đề xuất ý

tưởng cho giải pháp thông gió tại lớp

vỏ bao che để hỗ trợ cho hệ thống làm

mát trung tâm của công trình - nhà

cao tầng ở TP Hồ Chí Minh - khu vực

LOCATION: PHU NHUAN DISTRICT, HCMC

AREA: 13 750m2

BUILDING AREA: 5 315 m2

STORY: 21 FLOORS & 2 BASEMENTS

KHÁCH SẠN QUÁ CẢNH SÂN BAY TÂN SƠN NHẤT

KẾT HỢP TỔ CHỨC SỰ KIỆN - HỘI NGHỊ.

Ground floor - 4th floor: Meeting rooms/Ball rooms, Restaurants, Swimming pool

5th floor - 20th floor: Transit Hotel

khí hậu nhiệt đới gió mùa ĐỒ ÁN

Standard (twin/single) : 190, Deluxe: 50, Suite: 60

TRANSIT HOTEL KHÁCH

ARCHITECTURE PORTFOLIO 2023 13
SẠN QUÁ CẢNH SÂN BAY TÂN SƠN NHẤT
TỔNG HỢP - CÔNG TRÌNH CÔNG CỘNG - T9/2022
MẶT BẰNG TỔNG THỂ CHÚ THÍCH 1 1 2 3 3 4 5 1. BÃI ĐỖ XE NGOÀI TRỜI 2. BÃI ĐỖ XE DU LỊCH 3. LỐI XUỐNG HẦM 4. TRẠM ĐIỆN 5. SẢNH NHẬP HÀNG CỔNG KHÁCH SẠN CỔNGHỘINGHỊ Đ.NGUYỄNVĂNTRỖI Đ. HOÀNG VĂN THỤ 14
TRANSIT HOTEL 15
ARCHITECTURE PORTFOLIO 2023 16 MẶT BẰNG TẦNG TRỆT SƠ ĐỒ TÁCH LỚP PHÂN KHU CHỨC NĂNG
TRANSIT HOTEL 17
2
3
4
5
MB TẦNG
MB TẦNG
MB TẦNG
MB TẦNG
18
TRANSIT HOTEL 19
PHỐI CẢNH MẮT NGƯỜI NHÌN TỪ ĐƯỜNG HOÀNG VĂN THỤ VỀ HƯỚNG SẢNH KHÁCH SẠN ARCHITECTURE PORTFOLIO 2023 20
TRANSIT HOTEL 21 PHỐI CẢNH MẮT NGƯỜI NHÌN TỪ VỀ HƯỚNG SẢNH SỰ KIỆN

XÍ NGHIỆP MAY MẶC &THIẾT KẾ THỜI TRANG

ĐỒ ÁN CÔNG NGHIỆP - T4/2021

LOCATION: TAN BINH INDUSTRIAL ZONE, HCMC

AREA: 25 000m2

BUILDING AREA: 7800m2

STORY: 4 FLOORS & 1 BASEMENT

Xí nghiệp gia công - may sẵn các loại quần áo người lớn, quần áo trẻ em và các loại trang phục thể thao phục vụ xuất khẩu và nội địa

ARCHITECTURE PORTFOLIO 2023 22
23 FACTORY
24
FACTORY 25 SƠ ĐỒ QUY TRÌNH SẢN XUẤT
SƠ ĐỒ PHÂN KHU CHỨC NĂNG XƯỞNG & HỆ THỐNG GIAO THÔNG THEO PHƯỚNG ĐỨNG
ARCHITECTURE PORTFOLIO 2023 26
FACTORY 27
LOW - RISE APARTMAENT - THE RIVER ISLAND CHUNG CƯ THẤP TẦNG KHU ĐÔ THỊ VẠN PHÚC ĐỒ ÁN KT6 - NHÀ Ở 2 - T9/2020 TEAM PROJECT: THANH VÂN - PHƯƠNG UYÊN - BẢO TRÂM - MINH YÊN ARCHITECTURE PORTFOLIO 2023

LOCATION: VẠN PHÚC RIVERSIDE

CITY, HCMC

AREA: 24 000m2

BUILDING AREA: 8350m2

6 BLOCKS - 150 APARTMENTS

Lấy cảm hứng từ bản đồ sông Sài Gòn với những dòng chảy tự do, The River Island

được thiết kế như những ốc đảo men theo dòng sông, tạo nên một khu dân cư đáp ứng

đầy đủ tiện ích sống và nghỉ ngơi.

ARCHITECTURE PORTFOLIO 2023 29
ARCHITECTURE PORTFOLIO 2023 30
LOW - RISE APARTMENT 31

MẶT BẰNG CĂN HỘ

4 PHÒNG NGỦ ĐẶC BIỆT

ARCHITECTURE PORTFOLIO 2023 32
LOW - RISE APARTMENT 33
SWIMMING POOL BBQ ZONE BASKETBALL COURT
ARCHITECTURE PORTFOLIO 2023 34

KHU DU LỊCH ĐỒI BÁT ÚP

LOCATION: XÃ ĐẠI LÀO, TP. BẢO LỘC , TỈNH LÂM ĐỒNG

1 KHU LƯU TRÚ CHÍNH: 100 PHÒNG

Khách sạn: 35 Phòng - Bungalow: 24 căn

Villa 2 Phòng ngủ: 9 căn - Villa 3 Phòng ngủ: 6 căn

1 KHU DỊCH VỤ CÔNG CỘNG ĐỊA PHƯƠNG

AREA: 12.5ha - MĐXD: 7,5% QUY MÔ

ĐỒ ÁN TỐT NGHIỆP

ĐỒ ÁN ĐƯỢC THIẾT KẾ DƯỢC TRÊN VIỆC TÍCH HỢP CÁC HOẠT

ĐỘNG CỘNG ĐỒNG VÀ DU LỊCH ĐANG DIỄN RA TẠI KHU VỰC ĐỒI

BÁT ÚP, KẾT HỢP VỚI VIỆC NGHIÊN CỨU CÁC TIÊU CHUẨN DỊCH VỤ

DU LỊCH VỚI MONG MUỐN PHÁT TRIỂN CÁC GIÁ TRỊ VỐN CÓ CỦA

ĐỊA PHƯƠNG, PHÁT TRIỂN CÁC KHÔNG GIAN DỊCH VỤ CÔNG CỘNG

CÓ SẴN, TẠO RA CÁC KHÔNG GIAN GIAO LƯU VÀ QUẢNG BÁ VĂN

HÓA TỰ NHIÊN ĐẾN KHÁCH DU LỊCH MÀ VẪN GIẢM TỐI ĐA CÁC

TÁC ĐỘNG ĐẾN CẢNH QUAN TỰ NHIÊN VỚI ĐỐI TƯỢNG SỬ DỤNG

LÀ CẢ NGƯỜI DÂN ĐỊA PHƯƠNG VÀ KHÁCH DU LỊCH NGHỈ DƯỠNG

GRADUATION PROJECT 35
36 MẶT BẰNG TỔNG THỂ ARCHITECTURE PORTFOLIO 2023

ĐỊA ĐIỂM NGẮM BÌNH MINH

- ĐIỂM SĂN MÂY CỦA CÁC NHIẾP ẢNH GIA VÀ NGƯỜI ĐỊA PHƯƠNG

HƯỚNG PHÁT TRIỂN

CÁC QUÁN TRÀ NHỎ

LỚP HỌC YOGATHIỀN NGOÀI TRỜI

CÁC HOMESTAY LƯU TRÚ NGẮN HẠN

CÁC HOẠT ĐỘNG CỘNG ĐỒNG VÀ DU LỊCH HIỆN TRẠNG

KHU LƯU TRÚ ĐƯỢC

BỐ TRÍ Ở PHẦN CHÂN

KHU ĐẤT, ĐỘ CAO NHÀ

THẤP HƠN CÁC TÁN CÂY

TỰ NHIÊN CÓ SẴN ĐỂ

KHÔNG MẤT TẦM NHÌN

TOÀN CẢNH CHO KHU

VỰC NGẮM CẢNH PHÍA TRÊN CAO.

LỄ HỘI/ SỰ KIỆN VĂN HÓA

ĐỊA PHƯƠNG: LỄ HỘI TRÀ, TUẦN LỄ QUẢNG BÁ TƠ TẰM CÁC HỘI NGHỊ NGHIÊN CỨU SẢN PHẨM,...

KHÔNG GIAN TRIỂN LÃM LẤY BACKGROUND LÀ THIÊN NHIÊN

CHỨC NĂNG ĐƯỢC PHÁT TRIỂN DỰA TRÊN HOẠT

ĐỘNG THƯỞNG TRÀ NGẮM CẢNH, CÁC CẤU TRÚC MỞ

- KHÔNG CÓ TƯỜNG BAO

ĐƯỢC ƯU TIÊN, BỔ SUNG

THÊM MỘ KHÔNG GIAN LỚN

CHO CÁC SỰ KIỆN ĐÔNG NGƯỜI HƠN, KẾT HỢP VỚI

CÁC KHU VỰC TRƯNG BÀY SẢN PHẨM TRÀ B;LAO.

MẶT BẰNG TỔ CHỨC KHÔNG GIAN THƯỞNG TRÀ TẠI KHU NGẮM CẢNH

GRADUATION PROJECT 37

VIEWPOINT

KHỐI DỊCH VỤ CÔNG CỘNG

CẢNH QUAN ĐƯỢC XÂY DỰNG DỰA TRÊN TINH THẦN TÔN TRỌNG TÍNH

MỘC MẠC CỦA VẬT LIỆU TRONG VƯỜN TRÀ NHẬT - CHANIWA XEN LẪN

VỚI CÁC MẢNG CẢNH QUAN MẶT TRÀ LỚN KẾT HỢP VỚI CÂY MUỒNG

THẲNG TÁN CAO THƯỜNG THẤY Ở CÁC NÔNG TRƯỜNG TRÀ

NHÀ HÀNG CHAY

SPA - HỒ NGÂM THẢO DƯỢC

ĐƯỜNG ĐI BỘ

TỪ KHU LƯU TRÚ CHÍNH

NHÀ THƯỞNG TRÀ

DỰA TRÊN CÁC HOẠT ĐỘNG HIỆN TRẠNG, KHU DỊCH VỤ CÔNG CỘNG ĐƯỢC THIẾT

KẾ THÀNH MỘT ĐIỂM NGẮM CẢNH “ĐỘNG”

TRONG ĐÓ CÁC KHU CHỨC NĂNG , CÁC

KHU NGHỈ CHÂN LÀ CÁC ĐIỂM POINTVIEW, KHÁCH CÓ THỂ LỰA CHỌN ĐI BỘ ĐỂ NGẮM

CẢNH HOẶC SỬ DỤNG MỘT DỊCH VỤ PHÙ

HỢP TRONG HÀNH TRÌNH ĐÓ

Level +10.8m/LVC

NHÀ TRIỂN LÃM

Level +8m/LVC

ARCHITECTURE PORTFOLIO 2023 38
(1) (2) (2) (1) (3) (4) (4) (3)
CHÒI NGHỈ CHÂN TỪ KHU CẮM TRẠI
GRADUATION PROJECT 39 NHÀ THƯỞNG TRÀ KIẾN TRÚC NHÀ ĐƠN GIẢN VỚI CÁC HÀNH LANG CÓ CHỨC NĂNG HIÊN BAO QUANH VÀ KẾT NỐI CÁC KHÔNG GIAN CHUNG - RIÊNG. HỆ CỘT HIÊN DÀY VỚI CÁC KHUNG LAM GỖ THẤP ĐỂ CHỈ KHI NGỒI XUỐNG, KHÁCH THƯỞNG TRÀ MỚI NHÌN ĐƯỢC BAO QUÁT HẾT KHUNG CẢNH THIÊN NHIÊN MẶT BẰNG NHÀ THƯỞNG TRÀ
ARCHITECTURE PORTFOLIO 2023 40
GRADUATION PROJECT 41
MẶT BẰNG TẦNG 2 - KHÁCH SẠN MẶT BẰNG NHÀ HÀNG ĐIỂM TÂM KHỐI NHÀ HÀNG - KHÁCH SẠN
ARCHITECTURE PORTFOLIO 2023 42 SƠ ĐỒ CÁCH TỔ CHỨC CÁC KHÔNG GIAN LƯU TRÚ RIÊNG LẺ
GRADUATION PROJECT 43
VILLA 3 PHÒNG NGỦ BUNGALOW ĐÔI VILLA 2 PHÒNG NGỦ
ARCHITECTURE PORTFOLIO 2023 MẶT CẮT 44
GRADUATION PROJECT 45 TRIỂN KHAI CĂN VILLA 3 PHÒNG NGỦ MẶT BẰNG TẦNG TRỆT MẶT BẰNG TẦNG 2

XUAN’S HOUSE

T5.2022

LOCATION: LOC TIEN - BAO LOC, LAM DONG PROVINCE

AREA: 350m2

BUILDING AREA: 172m2

STORY: 2

Nhà ở cho một gia đình 3 thế hệ trong một xóm đạo với yêu cầu phòng khách có thể mở rộng cho các hoạt động cầu nguyện đông người, phân tách không gian để đảm bảo yên tĩnh - riêng tư cho mỗi thành viên trong gia đình.

ARCHITECTURE PORTFOLIO 2023 46
MẶT CẮT 1-1 MẶT ĐỨNG TRỤC F-A’
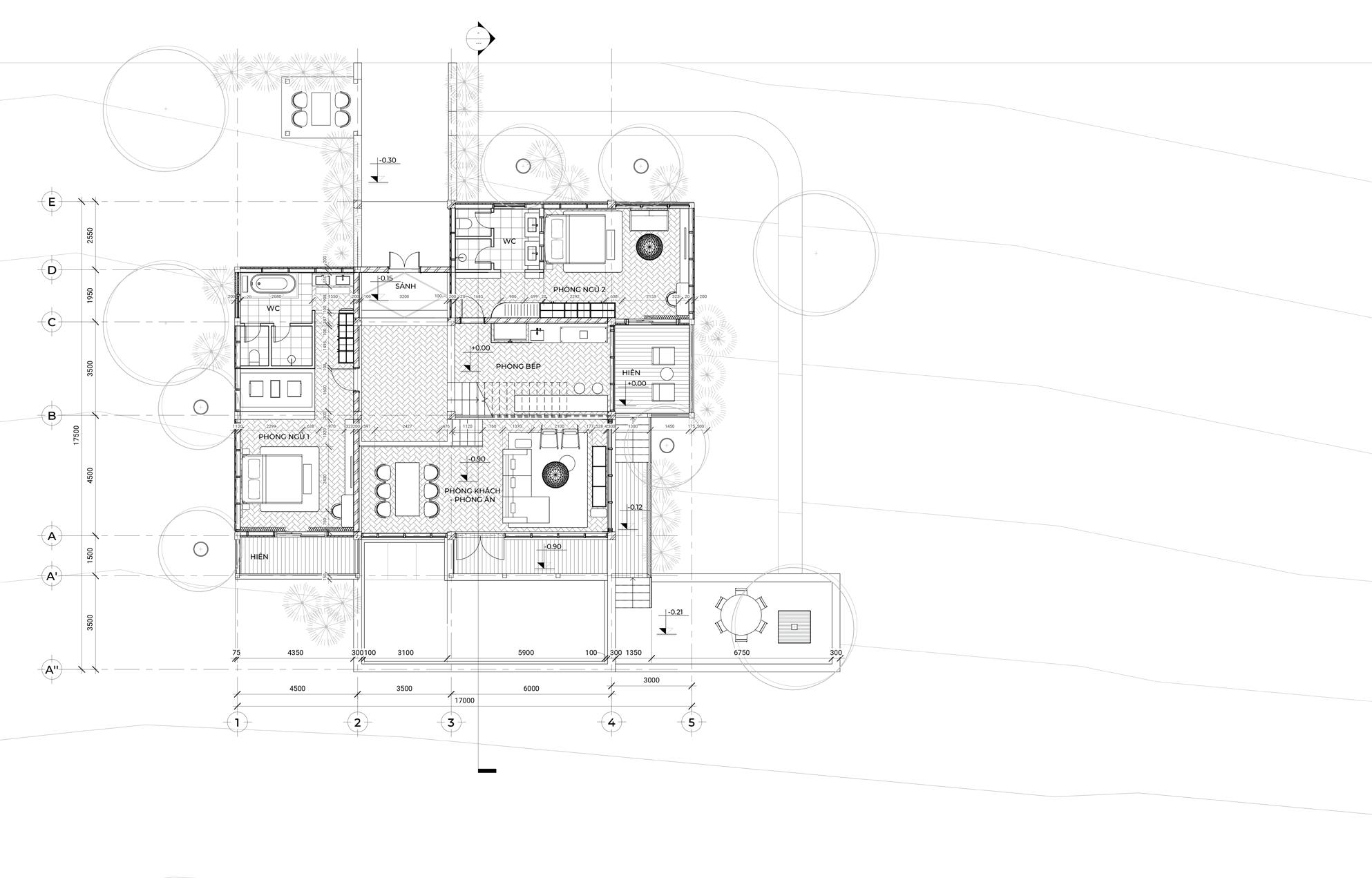
47 XUAN’S HOUSE MẶT BẰNG TẦNG TRỆT MẶT BẰNG TẦNG 2

TRAM DỪNG CHÂN ĐÈO BẢO LỘC

STATION&FASTFOOD COUNTER - T6.2022

LOCATION: DAI LAO - BAO LOC, LAM DONG PROVINCE AREA: 1 251m2

ARCHITECTURE PORTFOLIO 2023 48

DỰ ÁN YÊU CẦU THIẾT KẾ MỘT TRẠM DỪNG CHÂN TRÊN QUỐC LỘ 20 VỚI 1 KHÔNG GIAN BÁN SALAMI - MỘT LOẠI THỨC ĂN NHANH CHẾ BIẾN TỪ NGUYÊN LIỆU ĐỊA PHƯƠNG. CĐT MONG MUỐN CÓ MỘT KHU VỰC ĐẠI DIỆN CHO SẢN PHẨM SALAMI MỚI LẠI ĐỘC ĐÁO, THU HÚT KHÁCH ĐI ĐƯỜNG.

49 STATION&FASTFOOD COUNTER
MÔ HÌNH CHI TIẾT TỈ LỆ 1/50
T3.2021 THE END - T9.2023 50 ARCHITECTURE PORTFOLIO 2023
VILLA MERIONET
MODELING PROJECT -

Turn static files into dynamic content formats.

Create a flipbook
Issuu converts static files into: digital portfolios, online yearbooks, online catalogs, digital photo albums and more. Sign up and create your flipbook.