Maquete Eletrônica

Page 1

ARQUITETURA & URBANISMO

Portfólio

THALES RAPOSO

SUMÁRIO SOBRE MIM....................................01 DEFINIÇÃO.....................................02 PLANTAS........................................03 RENDER..........................................06

SOBRE MIM

Me chamo Thales

Raposo, sou estudante de Arquitetura e Urbanismo da Universidade Veiga de Almeida. Atualmente estou utilizando os programas AutoCAD, SketchUp e 3Ds Max para desenvolver meus projetos.

01

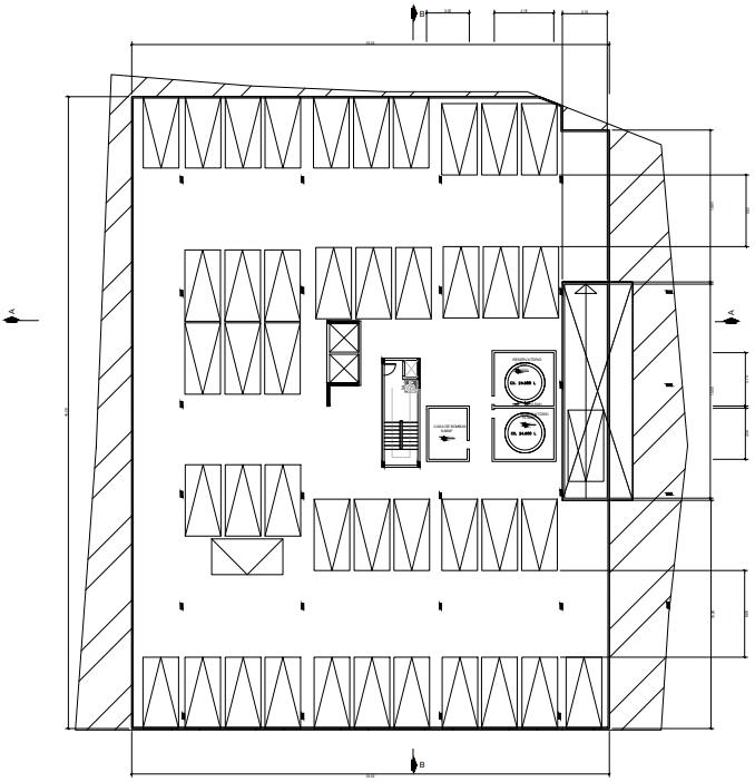
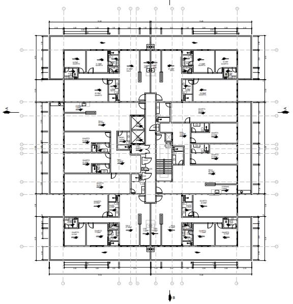
PROJETO MULTIFAMILIAR

Projeto desenvolvido por mim para um terreno localizado na Avenida Heitor Beltrão, 44 - Tijuca, Rio de janeiro. CEP 20550-000. O projeto consiste em um prédio residencial com 8 pavimentos tipo + 1 térreo e subsolo.

.Projetoaasaasasasasaaaaaaaaaaaasas

Tijuca, RJ
02
03
04
05

Prédio renderizado no 3Ds Max

06

Turn static files into dynamic content formats.

Create a flipbook
Issuu converts static files into: digital portfolios, online yearbooks, online catalogs, digital photo albums and more. Sign up and create your flipbook.
Maquete Eletrônica by Thales Raposo - Issuu