ARQ116 - Soulages Museum, RCR Arquitectes

Page 1

SOULAGES MUSEUM

ARQ116-TEORIADAARQUITETURA ThaisCunhaAraújo-108127
R C R A R Q U I T E C T E S

CONTEXTO

OMuseusSoulages queestálocalizado noJardimFoiraill,na cidadedeRodez,na França,foidedicado aoartistaPierre Soulagesafimde abrigarsua diversificadacoleção deobras.Situa-seem umparquenacidade próximodeuma catedralgótica.

Relação com a Catedral de Notre-Drame de I'Assomption de Rodez.

CONCEITO

Fluidez Luminosa do Aço e Ecologia Ambiental.

PARTIDO

Usufruir do declive oferecido inicialmente pelo terreno.

F O R M A F L U X O S E U S O S C O N J U N T O D E P A R A L E L E P I P E D O S C O M T A M A N H O S V A R I A D O S E O R D E M R I T M I C A ENTRADA LOBBY INFORMAÇÃO E LOJA RECEPÇÃO AUDITÓRIO RESTAURANTE ESTÚDIO DE ENSINO SALA DE CONFERÊNCIAS ARMAZENAMENTO 1. 2. 3. 4. 5. 6. 7. 8. 9.
10. REUNIÃO 11. ESCRITÓRIO 12. TRABALHOS EM PAPEL 13. TRABALHOS EM TELA 14. ESTUDOS DE VITRAIS 15. EXPOSIÇÕES TEMPORÁRIAS 16. PRIMEIROS TRABALHOS 17. LITÓGRAFIAS, GRAVURAS, IMPRESSÕES DE TELA Exposição das obras do artista Pierre Soulages.

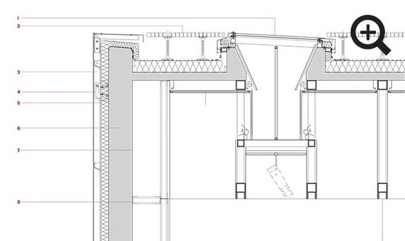
Clarabóia com vidro duplo Grades de aço Corten ajustáveis Chapeamento de aço Corten Suporte em inox com isolamento térmico Concreto reforçado Chapa de aço pintada Fixação em aço galvanizado

VIDRO Sustentado por uma estrutura metálica de 6mm de espessura.

C O N S T R U Ç Ã O
AÇO CORTEN material que envelhece ao passar do tempo e cria uma camada protetora de ferrugem. 1. 2. 3. 4. 5. 6. 7. R E F E R Ê N C I A S

Turn static files into dynamic content formats.

Create a flipbook
Issuu converts static files into: digital portfolios, online yearbooks, online catalogs, digital photo albums and more. Sign up and create your flipbook.
ARQ116 - Soulages Museum, RCR Arquitectes by Thais Cunha Araujo - Issuu