Architecture Portfolio

Page 1

TERON BOWMAN II ARCHITECTURAL PORTFOLIO SELECTED WORKS 1
2

TABLE OF CONTENTS

“BET ON KC”

SPRING 2023

HOTEL - CASINO

QCHC - QUEBEC CITY

HERITAGE CENTER

SPRING 2022

HERITAGE

“FROM ASHES TO IMMORTALITY”

SPRING 2021

LAWRENCE, KANSAS INFILL

“STARVING STAIRWAY”

SPRING 2023 INTERIOR

SPORTSBAR 6
MUSEUM 16
CENTER
22
DESIGN CONCEPT 40 3
20 BET ON KC PROGRAM CONCEPT THE P&L BEAM architecture ***CELEBRATORY LIGHT SHOW INSPIRED BY THE GOLDEN 1 CENTER IN SACREMENTO, CA. SPONSORED BY POWER & LIGHT DISTRICT HOTEL SPORTS BAR CASINO © 6 14 8 14 14 FT 468 20 14 THE YEAR IS 2040 - Kansas City still reigns as the Sports Architecture capital of the world. The Royals have now won 5 World Series Championships and are celebrating the 55 year anniversary of their rst Word Series title versus their home-state rival, the St. Louis Cardinals, in 1985. The Chiefs are reigning Super Bowl Champions after being led to victory by MVP Patrick Mahomes again, making him the oldest player to win an NFL championship at 47 years old. In the spirit of winning and nostalgia, the mayor of Kansas City has nally approved the relocation of the Kansas City Chiefs & Royals stadiums to the business district. Thus leading to the development of the Kansas City Sports Plaza (KCSP). The construction of the KCSP erected 2 new state-of-the-art professional sports & entertainment facilities as well as an interconnected system of hospitality spaces designed to positively drive guest experiences, and accommodate for the in ux of people visiting the plaza to immerse themselves in sports, while in the Capital of Sports Architecture. Sports, speci cally baseball, have long been considered “America's Favorite Pastime”. Following the legalization of gambling & sports wagering in Missouri, the ratio of the # of people betting on a sporting event to the # of people watching it live is 2:1. To establish a lasting outside interest in the plaza, an interconnected Sports Bar, Sportsbook + Casino, and Luxury Hotel was constructed. The facade of the system is draped in frosted architectural glass that can be illuminated from within the wall cavities similar to well known KC landmark the Nelson Atkins Museum by Steven Holl Architects located in Midtown. The project's form is inspired by one of the most recognized symbols of gambling: the poker chip. The hotel form imitates a large sum of poker chips stacked intricately on the table in front of a high roller as a show of strength to his/her opponents. The singular poker chip shaped structure on the plaza is a sports bar with sports betting integrated into the tables, creating an immersive experience that can be enjoyed with friends. 6

VIEWPOINT STRATEGY

PEERPROJECT

D
AZALPSTROPS
OWNTOWNK.C.
1000 SF 700 SF PRIVATE PARTY ROOMS SEMI-PUBLIC SPACE SEINOCLAB
7
8
9
32 STORY HOTEL CASINO SOUTHERN ELEVATION PROGRAM CASINO FLOOR PUBLIC RESTROOMS STORAGE STORAGE MECHANICAL CASINO FLOOR EVENT SPACE FLOOR PLAN SPATIAL ORGANIZATION + PROGRAM PLANNING VERT. CIRC. BALCONY HOTEL ROOM HOTEL OPS CIRC. SPACE KEY 1 2 3 4 9 10 15 16 21 22 27 28 5 6 7 8 11 12 13 14 17 18 19 20 23 24 25 26 29 30 31 32 SPORTS BAR CASINO 6 14 8 14 468 14 10

AERIAL VIEW

CASINO

SPORTS BAR

RESTROOM

S / M

KITCHEN

RESTAURANT SEATING

SPORTS BAR LOWER LEVEL

- BELOW GRADE 35 FT 192 FT 400 FT

SPORTS BAR

FLOOR PLAN - GROUND LEVEL

BAR RESTAURANT SEATING 20 FT

RECEPTION

RESTAURANT SEATING

PEERPROJECT 11

RESTAURANT SEATING

RESTAURANT SEATING

SPACE
BAR RECEPTION
RESTROOMS
RESTAURANT SEATING R = 80 FT D = 160 FT D = 60 FT 60 FT 30 FT 20 FT 50 FT
GLASS PANELS
- GRAZE X™RGBW
Optic Fixture
(ON WALL BELOW)
CONNECTION $ 12
FROSTED
$ B2
Narrow
SWITCHES
ELECTRICAL

CONTROLS

13
SPORTS BAR - GROUND 14
GROUND LEVEL 15
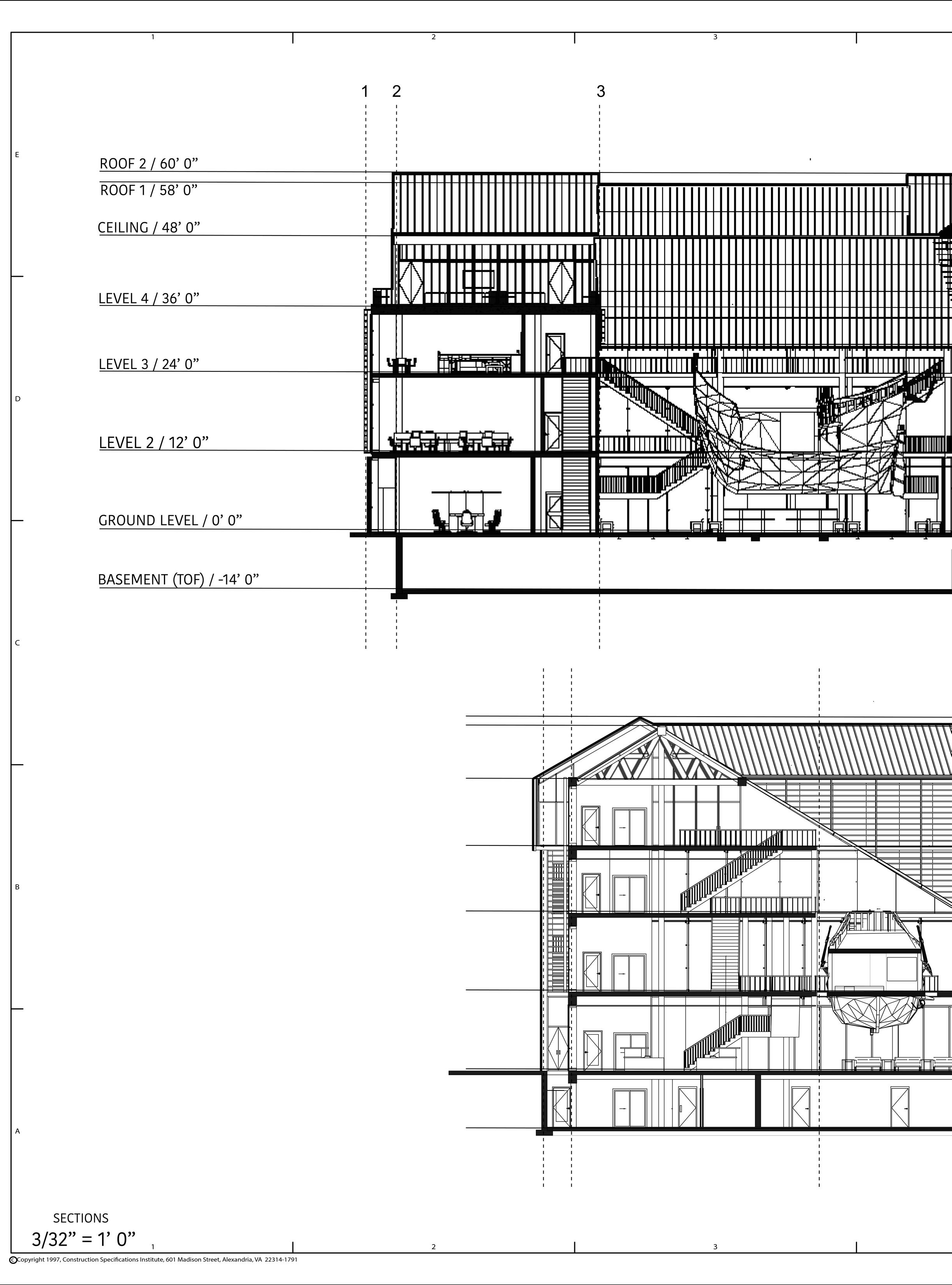
Located on the north-east corner of Petit Champlain, one of the oldest shopping streets in North America, our site is an open lot currently recognized as the “Place de Paris”. Directly to the East of the site, the St. Lawrence River flows, and cruise ships dock to give tourists a chance to immerse themselves into the local culture. To the west, perched atop the headland the Chateau Frontenac overlooks our site and the river. Designated a UNESCO World Heritage Site in 1985, de Champlain; a French colonist, navigator, cartographer, draftsman, soldier, explorer, geographer, ethnologist, diplomat, and chronicler. Champlain made beTourists who enter the QCHC will be greeted by a 1:1 scale replica of Samuel de Champlain’s ship, the Don de Dieu, suspended above open section can enter the building from multiple directions to counteract the obstruction of the original walking path on the site. Anybody can cut through the Innate human curiosity triggered by the relationship between the boat and the lobby attracts tourists up towards the second level exhibit, out onto a transparent platform the wraps around the boat, and into the ship, which doubles as both a eye catching spectacle as well as an intimate Audio Upon exiting the AV room, or navigating the 2 lower levels, tourists can move upwards through the building to get a better view of the ship from within STORAGE MECHANICAL
THE DON DE DUIE: SAMUEL DE CBAMPLAINS SHIP YELLOW BIRCH: QUEBEC TREE STRUCTURE GLASS FIN CONNECTOR REFLECTIVE MATERIAL SILICONE RUBBER TAPER CLT FLOORING STRUCTURE 12’ 24’ 36’ 48’ 58’ SCALE: 1/8” = 1’ SCALE: 1/8” = 1’ ST. LAWRENCE RIVER GROUND LEVEL LEVEL 2 LEVEL 3 LEVEL 4 F L O O R P L A N S DETAILS SECTION A SECTION B GLASS FIN TECHNOLOGY AV ROOM INSPIRATION EGRESS HVAC TRUE LOVE + TERON BOWMAN II STUDIO 609 - SPRING 2022 TECTONIC DIAGRAMS SOUVENIRSHOP LOBBY RECEPTION PP MULTIPURPOSEROOM HERITAGEEXHIBIT HERITAGEEXHIBIT AV ROOM FLEXIBLEOFFICESPACE HISTORYEXHIBIT HISTORYEXHIBIT DOCENT’SLOUNGE EXTERIOR PATIO TEMPORARYEXHIBIT CAFE KITCHEN STORAGE GUEST LOUNGE EXTERIORPATIO A B 17
18
19
20
21

Conceptually, this project is intended to symbolize Lawrence, Kansas’s historical significance in the fight against slavery, as well as act as a connecting force between Eastern and Western Lawrence, while at the same time, providing future neighborhood visionaries with spaces to produce their ideas around others who are interested in similar crafts.

The architectural form of the building, derived from a map of Quantrail’s Raid draws Eastern Lawrence to the heart oftown by conve gig on an alley, decorated by community art,that provides the site direct access to Mass Street.

The courtyard, also known as “the pit”, acts as a unifying vessel flowing from the heart of the town into the heart of the site In the fall. the deciduous tree in the center of the courtyard showcases yellow leaves resembling a fire within the heart of the site.

As a creative, the world may not always understand you or see your vision. It is normal to feel a way about your craft being misunderstood, but it is the fire within that separates us from the rest. The will to stay true, keep going, and keep creating is something that should be celebrated.

Lawrence’s celebratory motto “From Ashes to Immortality” is taken into full consideration throughout every aspect of design. Japanese charred wood represents the destruction and rebuilding of Lawrence. The placement of Charred wood and stainless steel is symbolic for ashes and immortality, represented by the cold metal apearing to rest heavily and triumphantly atop the charred “ashes” below..... “

22

FROM ASHES TO IMMORTALITY.

23
24
25
26
27
28
29
30
31
32
33
34
35
36
37
38
39
40
41
42
43
44
45
THE TERONBOWMANII.ARCHITECTURE@GMAIL.COM 46
END TERONBOWMANII.ARCHITECTURE@GMAIL.COM 47

Turn static files into dynamic content formats.

Create a flipbook
Issuu converts static files into: digital portfolios, online yearbooks, online catalogs, digital photo albums and more. Sign up and create your flipbook.
Architecture Portfolio by Teron Bowman II - Issuu