PORTFOLIO
Tri Le / Selected Works / 2019 - 2026
![]()
Tri Le / Selected Works / 2019 - 2026
Junior Designer/Project Assistant
tdle@usc.edu
+1 (213)-999-9462
Los Angeles, CA , USA
Education
Universit y of Southern California, Los Angeles, California, USA
Master of Architecture, Advanced Standing +2
08/2024 - 05/2026
Texas Tech Universit y Huckabee College of Architecture, Lubbock, Texas, USA 08/2019 - 01/2024
Bachelor of Science in Architecture
Work Experience
Corgan - Data Centers Sector, Los Angeles, California, USA
Full-Time Internship + Part-Time
CTA - Creative Architects, Ho Chi Minh Cit y, Vietnam
Full-Time Architecture Internship
VGC - Vo Gia Group Architecture, Ho Chi Minh Cit y, Vietnam
Full-Time Architecture Internship
06/2025 - Current
03/2024 - 07/2024
01/2021 - 03/2021
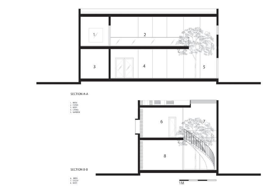
T HOUSE
Di An, Vietnam // 2017 // Bui The Long, Nguyen Th Xuan Thanh
WALL HOUSE Creative Architects Internship 2024
Bien Hoa, Vietnam // 2017 // Bui The Long, Nguyen Th Xuan Thanh
USC M.Arch +2 2024-2026
CLOUD HABITAT
Los Angeles, California // Fall 2025 // Prof. Soomeen Halm
MODERNIST HAVENS
Los Angeles, California // Fall 2024 // Prof. Gesa Buttner - Dias
Texas Tech B.S.Arch 2019-2024
LBK COMMUNIT Y COLLEGE
Lubbock, Texas // Fall 2022 // Prof. Mary Crites
DROPLET MARKET
Sevilla, Spain // Spring 2022 // Prof. Joe Aranha
EVERGREEN CONDOMINIUMS
Lubbock, Texas // Spring 2023 // Prof. Lingyi Qiu
LUBBOCK’S ATHLETIC CLUB
Lubbock, Texas // Fall 2021 // Prof. Barajas Guilermo
THE TECTONIC ORDER
Lubbock, Texas // Fall 2020 // Prof. Nate Imai, Raquel Bitar

ArchDaily Article: Photograph By: Role in Project:
Project Type: Supervisor: Firm Contact: Firm Email:
https://www.archdaily.com/903780/t-house-creative-architects.
Hiroyuki Oki
Research for Firm’s Book, Video Production, Image Process
Di An, Vietnam 1722 sft 2017
Professional Internship
Bui The Long, Nguyen Thi Xuan Thanh
https://ctacta.com.vn/en/ ctacta.com.vn@gmail.com
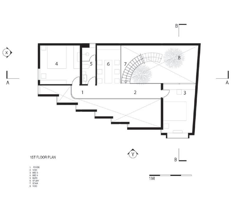
T House was designed for a three genegration family with six members, consists of spouse husband and wife owner, their 2 children, the wife's mother and sister. The house was built in a quadrangle shape plot in Binh Duong, Vietnam, with the front elevation faced to the West. Its façade was devided into 7 solid walls connected by glasses and louvers to admit the natural light and ventilation into the house as much as possible. Additionally, the owner had shared that she has been afraid of being alone, she would like everyone in the family could easily see each other when staying at home. Hence, we alternated the private spaces and the common spaces by putting two green voids into 2 solid blocks, in order to connect every space in the house to increase the family's interaction.

Wind Diagram showing the building has seemingless airflow from the west with opening for cool air to ventilate over each corner and rooms of the house. The design of the house also use indoor planted tree to further cool the air within the building, providing a sustainable option, saving energy and electricity during the process.














Architecture Firm: CTA / Creative Architects
ArchDaily Article:
Photograph By:
Role in Project:
Location:
Year:
Type:
Supervisor:
Firm Contact:
Firm Email:
https://www.archdaily.com/942020/wall-house-cta-creative-architects.
Hiroyuki Oki
Research for Firm’s Book, Physical Model production, Image Process
Bien Hoa, Vietnam
2017
Professional Internship
Bui The Long, Nguyen Thi Xuan Thanh
https://ctacta.com.vn/en/ ctacta.com.vn@gmail.com
According to recently published scientific researches, indoor air quality is worse than outdoor air quality. Therefore, most of our discussions with the house owner tended to the idea of a house which is able to 'breathe' 24/7 by itself. Through the process of working, the Wall house is shaped gradually:
The house is made up of eight separate spaces surrounded by ordinary walls. These eight blocks are interspersed and intersect at a common space, which is formed from 'breathing walls'. The 'breathing wall' consists of 2 elements: Open wall system is the first layer to prevent bad effects from the outside environment. This protection shell is made of hollow bricks which are lined up in the opposite direction with the conventional method of construction. With such arrangement, these hollow bricks create circulation of fresh air and natural light into the house. The garden space is a second layer to prevent the negative impact of the external environment on the living space inside. These two protection layers is equivalent to a normal wall but still ensure the air and light circulation.








Design Process: The building is strategically surrounded by trees to be able to cool of the initial hot wind, The processed natural air will flow through the bricks to enter the house, which has spaces between each blocks, provide seemingless, fresh and cool ventilation, espicially in a hot humid location.






Selected Works 2024 - 2026
High-Rise Data Center Prototype
Course:
Designers:
Term:
Professor:
Location:
Area:
Project Type:
Software/AI:

ARCH 705 - Topic Studio
Tri Le & Emily Thu Fall 2025
Soomeen Halm
Los Angeles, CA, USA ~ 175000sft
Academic Collaboration
Rhino, Grasshopper, D5, Nano Banana
Topaz, Midjourney, Adobe Suites
Cloud Habitat is a prototype building that dissolves the conventional between human domesticity and digital infrastructure. It spatializes the convergence of habitation, computation, and distributed technological ownership. Instead of isolating data centers as distant and opaque technical zones, Cloud Habitat integrates modular server systems directly into a modular housing framework. The building becomes a hybrid organism in which human activities and machine operations coexist, over-lap, and influence one another. In Cloud Habitat, the usually invisible processes of computation such as heat cycles, latency, energy flow, cooling, and data traffic become active architectural forces. Residents participate in the building’s digital ecosystem through ownership and management.
Data centers are essential to contemporary life, yet they remain remote, sealed, and socially detached. Housing is considered the most intimate and human-centered typology. Because these two programs are rarely combined, the physical spaces that store and process data remain disconnected from the people who create it. Cloud Habitat closes this gap through a vertical modular system that interlocks living modules with server modules in a shared structural and infrastructural framework. Server pods plug into a central spine that carries power, cooling, and maintenance access.The system is scalable, serviceable, and collectively owned. Waste heat from servers is redirected into domestic zones to re-duce energy demand. Acoustic, thermal, and programmatic boundaries generate new spatial conditions, and infrastructure that is normally hidden becomes visible and part of daily life. This reconfiguration turns the building into a mixed environment composed of human bodies and computational bodies. Cloud Habitat allows residents to see, feel, and benefit from the infrastructure that usually remains distant and abstract of individualized server modules. The project reframes the data center as a lived environment and the domestic unit as a site of computational agency. It reveals the negotiation between privacy, comfort, resource use, and the performance of machines that operate within the same spatial envelope.


This studio will delve into the intersection of cutting-edge generative design methods and advanced constructability in the context of commercial architecture. Students will embark on a journey where formal qualities are driven by computational geome-tries, pushing the boundaries of traditional design processes. The goal is to create a commercial building that not only stands out for its innovative form but also demonstrates a deep understanding of modern construction techniques.The studio will emphasize the integration of advanced technologies, such as augmented reality (AR) and robotics, in the design and construction phases. Students will explore how these technologies can enhance precision, efficiency, and creativity, leading to designs that are both bold and feasible. A key aspect of the studio will be the exploration of synthetic collaboration between machines and humans. Students will investigate how AR, robotics, and other advanced tools can be utilized to achieve complex geometries and constructions that might otherwise be impossible. This approach will require students to think critically about the relationship between design intent and construction realities, fostering a new way of approaching architectural challenges. By the end of the studio, students will have developed a comprehensive commercial building design that showcases their ability to merge innovative design techniques with practical construction strategies, preparing them to lead in the rapidly evolving field of architecture.















































Course:
Location:
Term:
Type:
Professor:
ARCH 4601: Architectural Design VII
East 19th Street, Lubbock, TX.
Fall 2022
Academic Individual
Mary Crites
This project exposed me to a more technical, firm-like approach to architecture. I was tasked to design a Community College based on a site that has exposure to a nearby river. The design has to create spaces for students to learn and socialize, as well as providing enough parking spaces and ammentities for student to strive. It must follow the IBC 2012 building code. The base for the site is a B+A3 Mixed Use (303.4/304.1).
Using the base facade of Brighton College by OMA as inspiration, I was able to designed a space for community learning with maximized stunning views overlooking the Canyon Lakes. The building has a axis crossed crossed facade as the students elevates from floor to floor to get into their classrooms, allow for multi-level grade entrances as well as open spaced indoor, allow the people to interact anywhere inside the building.










































































































Course: Location:
Term:
Type:
Professor: ARCH 3602: Architectural Design VI Sevilla, Spain.
Spring 2022 (Study Abroad)
Academic Individual
Joe Aranha
The project is about creating a multi purpose market (commercial spaces) to fit the context of the city of Sevilla using the experiences that I have obtained during the semester. The project is built on a village system and require to have the Governer’s Building (Indoor Court); Places to trade (Open Spaced Market); Entertainment (Placed nature and activities); as well as Town’s Residence (Food Vendors, Coffee Shops).
My project inspiration is based on the shape of the droplet, this has created organic space of interchanging thresholds, different elevations allowing the participants to have freedom of movement, as well of the feeling of emersion upon entering the site. The design also created different spatial moments that people can interact in private or public ways. Allowing for non-stop interaction between the buildings, as well as the sense of exploration.
Step 2:
Creating Town Residences, Places to trade (Market Vendors, Shops)
design
on
Step 3:
Creating Entertainment, Places to trade (Gardens, Parks, Activities)
Creating levels as well as differenciate droplets, based on droplet from rain, the droplet gets more complex as the more rains town, same as the design.
Step 4: Creating Hiearchies, Create levels, terraces (Give the space different povs, extend spaces)
The inspiration of this project is based on the droplet, as I view drop let as “objects” that will be dropped from above. Using this princicle, I design the project by “dropping” elements as droplet is dropped from rain and form circular as well as eliptic shapes. The second inspiration for this project is the system of a village, through my trip through Sevilla, I’ve learned the ancient design of the city which has always formed from a village system where the king will stay in the castle, the main governing body, spreaded out with it’s town residences and creating activities, entertainment around the village. Which I replaced these elements accordingly to the analysis diagram above. By doing this, my principle is to create a hypersentivive space with lots of changes in elevations, as well as changes in experiences while allowing more private spaces for the residents to rest and continue the journey of exploring the design. As you would explore a village.








This space allow for more intimate relationship between the site and the person interacting with it, with a smaller scale platform with comfortable seatings and more closed space. Allow for more private interraction, or a break from the hyperactive market.

This space is designed to be the biggest space that is surrounded by many shops and activities, the space is designed to have the biggest tree in the middle, inspired by the older village structure, as most of the big event will happen right here, as well as having the most circulation between building and human interaction. Which will be the space that invite people to visit the most.















This space allow for larger space, providing comfortable paddings, circular for bigger activities to happen, the space also allow more skylight into the space, with its location nearby shops and activities, this space is one of many larger spaces that can provide interaction between people.
















Free Space // Open Market
This space provide open large open spaces, allow for different food vendors, markets to operate. The building purposely use more glass window providing bright ambient, as well as different view from both indoor and outdoor, inviting the people to try out and explore looking from many vantage points of the site. There are many Open Spaces provided on the site that have same features.




This space is located on the upper floor next to the big food court, with seatings and tables provided for the people to use as an outdoor cafeteria, it is designed to be open, allowing nature and having multiple viewpoints to the rest of the site. There are multiple court like this spreaded across the site with different vantage points allow for different experiences.






The space is designed similar to the smaller outdoor space, designed to have more shades and structure provided for more private conversation, as well as a place to break from the hyper-market with many activities happening, it is designed to be far from the main court, which will have the less noise compared to other buildings on the site.


















1 Analysis // Section // Orthographic Section showing the elevated pattern, as well as showing how the droplet based design formed different zones for activities.


2 Analysis // Section // Orthographic Section showing the elevated pattern, as well as showing how the droplet based design formed different zones for activities. This section explore furtherm showing how the participants can use the spaces including coffee shops, free spaces. As well as the different levels and the vertical circulation.








The project task is to create a multi-unit healthy housing that can combine both nature and healthy living activities in the projected site. Located on the North side of South Plains Church of Christ and surrounded by high amount of private residential units. The project is designed to promote community living while providing residents with a range of shared amenities and facilities.
My project is designed so that the buildings can have as much green trees as possible, as well as creating different zones for different buildings + activities. This will allow the sense of exploration upon the residents of these complex. As well as inviting them to interact with the shared amenities. The design placed buildings on different axis rotation, allow for new experiences upon contact.
SITE CONTEXT// Habitat Analysis









Site has lots of existing car entry point and can be reused
1 PROPOSAL 2
SITE CONTEXT// Design Proposal Proposal 1 (Applied to design) Proposal 2
Proposal 1 which has become the design for this project, focuses more on privacy of the resident living on the site. The building has been scattered across the site, which are purposely placed to have views that can guard the outsiders in the blockages area, provide a sense of security. The activities will be spread across the site the in middle surrounded by buildings, provide openess and privacy, as well as encourage circulation of the resident that live in the space to explore what the site has to offer, every corner will create sensory experiences differ from each other. The buildings will also be designed to have gardens, views from different floors allowing for multi sensory experiences.
Proposal 2 ultilize the site that has been used by the resident surrounded to create private residence apartment building. But still allowing openess to the public as the building has wide crossing brigdes, allow the outsider to have a glympse of the indoor activities, inviting them to explore. This will create circulation between public/private spaces as the indoor space will act as public space.
SITE CONTEXT// Analysis of Usages (Zones) SITE CONTEXT// Weather Analysis
Lubbock has very dry weather, temperature changes rapidly, it is also windy and has low precipitation rain, design needs to consider wildfire prevention, provide dynamic temperature changes.
The site has a flat surface, and is located on a higher part of Lubbock, drainage will go to the closest flood zone of Remington Park 0.35mi away.

SITE CONTEXT// Drainage Analysis

SITE CONTEXT // Sensory and Traffic Analysis
*Main Circulation at 66th Street is very narrow, only allow one car per lane thus making it very difficult to enter once the population increase.
*Secondary Circulation are wide, allow two cars per lane.



































































































Public Recreational Center
Course: Location: Term: Type: Professor:
ARCH 3601: Architectural Design V Downtown Lubbock, TX.
Fall 2021
Academic Individual
Barajas Guilermo

The project challenged me to create Lubbock’s Athletic Center and while in the project explore the relationships between the body, its movements during athletic exercises, and the spaces that accommodate these practices, as well as develop the ability to invent and incorporate building operations that promote communal and sustainable values into an architectural design solution.
My design for Lubbock’s Athletic Center maximize the circulation around the building by creating different paths on different hiearchies that allow the recipent to explore different activities as well as walk as much as possible. In the process of creating paths and hiearchies, this has created multiple private/public zones that are separated not by walls, but by how the recipent interact with it.





My vision for Lubbock’s Athletic explore usages of different type of spaces (Semi-Public/Public Space; Semi-Private/Private Space). By using dynamic changes in elevation of terraces, provide the recipent different point of view, creating excitement feeling upon contact with the space. The design purposely extend the pathways, as well as creating more vertical circulation to encourage walking at its maximum extent, as well as provide many elevators with consideration for disabilities. The design also provide many outdoor nature spaces to enhances mood, provide a stopping place after going hyperactive experiences the building provided.




Axonometric // Section 2
Provide better spatial viewing, as well as circulation between different activities. But focus more on other activities around the site.

Axonometric // Section 3
Provide better spatial viewing, as well as circulation between different activities. Section has more emphasis on revealing hidden spaces and bigger opened space.





Public Studio Space // Art Academy
Course: Location:
ARCH 2503: Architectural Design III
Art District, Lubbock, TX.
Fall 2020
Academic Individual
Nate Imai, Raquel Bitar
The assigned project was to develop architectural proposals for an arts academy in Lubbock’s Arts District.
Envisioned as an out-of-school space for high school students, the academy will serve as a community space for youth to gather and receive year-round instruction from local artists. I was then given two precedents to analyze and then design based on the unique attributes of these precedents.
My precedents for this project was The Farnshouse by Van Mies Van Der Rohe and Amsterdam Orphanage by Aldo van Eyke. I used the Farnshouse beam and slab retangular design and well as the Amsterdam Orphanage zone differenciation technique to come up with the process. The design have different changes from stairs to slabs, creating different viewing points as well as zones. These designs has much influences in my future design choices.
Precedent // Farnsworth House
Farnsworth House express modernist ideals, using simple elements such as steel collumns, glass windows, concrete wall creating the sense of openess with stairs creating changes in elevation allow for interesting circulation and experiences.
Precendent Analysis Combination of valuable elements
Precedent // Amsterdam Orphanage
Amsterdam Orphanage has exemplary concept, articulating a revolutionary synthesis in the consideration of the individual of the group, the inner and outer space, with large and small areas created by random moments of facades, walls, floors and placement of structure.
Precendent Analysis Combination of valuable elements
Study






































































































