Skip to main content

TCC NOTA 10 ARQ | LOTUS - CENTRO DE TRATAMENTO ONCOLÓGICO DE TAQUARI | NICOLE CARDOSO

Page 1

PROPOSTA

O projeto tem como objetivo desenvolver um Centro de Tratamento Oncológico na cidade de Taquari/RS, abrigando uma estrutura para atender todas as etapas, desde o diagnóstico da doença até o tratamento das principais patologias oncológicas, além do acompanhamento após o tratamento, contando com atendimento SUS, convênios e particular.

A edificação localizada no terreno ao lado do Hospital de Caridade São José, funcionará como um complemento aos serviços de saúde existentes na cidade, além de tornar-se um centro de referência no estudo e desenvolvimento de novos tratamentos oncológicos.

JUSTIFICATIVA

De acordo com os últimos dados disponibilizados pela OMS, em 2018, 18,1 milhões de pessoas foram diagnosticadas com algum tipo de câncer ao redor do mundo.

Segundo o INCA (Instituto Nacional do Câncer), no ano de 2020 foram diagnosticados 626.030 novos casos de câncer no Brasil, sendo 46.060 (7,35%) no RS.

No RS, o câncer de próstata é o segundo maior em mortalidade da população masculina, bem como o câncer de mama nas pessoas do sexo feminino.

Em ambos os casos, a alta taxa de mortalidade deve-se ao estágio avançado em que a doença geralmente é descoberta. O diagnóstico precoce aumenta consideravelmente as chances de cura da doença e diminui a taxa de mortalidade.

O estado do Rio Grande do Sul está dividido em 30 regiões de saúde. A cidade de Taquari está localizada na macroregião dos Vales, na região R30 - Vale da Luz , que conta com 10 municípios e cerca de 130 mil habitantes.

Na região R30 não existe nenhum centro de tratamento de câncer , portanto todos os pacientes precisam se deslocar para outras regiões afim de obter o tratamento e acompanhamento, o que além do desgaste físico e psicológico dos pacientes, gera grandes despesas financeiras com deslocamento, tanto para os conveniados, quanto para os municípios que precisam arcar diariamente com estes custos de transporte, para pacientes SUS.

Há poucos anos o Hospital de Taquari passou por uma grande reforma, para hoje poder abrigar um centro cirúrgico e UTI, algo que não fazia parte da realidade da cidade há mais de 20 anos, portanto um centro de atenção oncológica viria para complementar o atendimento hoje realizado no hospital, tornando a cidade referência de saúde da região.

CONCEITO

“Se a Arquitetura pode desmoralizar os pacientes, contribuindo para um nervosismo extremo, não poderia também ela se mostrar restauradora?” Keswick Jencks, historiador e idealizador dos Centros Maggie

O principal conceito do projeto é a humanização do ambiente hospitalar e a ideia de utilizar a Arquitetura como parte do tratamento oncológico, proporcionando aos pacientes um espaço acolhedor, distanciando-se do tradicional ambiente hospitalar.

LÓTUS

A flor de lótus é conhecida nas culturas orientais como um símbolo de resiliência e renascimento Este significado foi atribuído à espécie por conta de suas características naturais: A planta nasce em meio a água lodosa e desabrocha em uma linda flor na superfície. Dessa forma surgiu o simbolismo, de que para florescer e chegar até a luz, primeiramente a flor precisa enfrentar a escuridão e as adversidades.

LOCALIZAÇÃO

O terreno escolhido tem aproximadamente 2000 m², e está localizado na área central de Taquari/RS (90km de Porto Alegre), ao lado do Hospital de Caridade São José e bem em frente a Lagoa Armênia, principal ponto turístico da cidade. No entorno do terreno encontra-se a Câmara de Vereadores, escolas públicas e particulares e o Lar São José (contraturno escolar para crianças e adolescentes de baixa renda).

CENTRO DE TRATAMENTO ONCOLÓGICO DE TAQUARI TRABALHO DE CONCLUSÃO DE CURSO | ARQUITETURA E URBANISMO | UNISINOS 2022/2 ACADÊMICA NICOLE DORNELES CARDOSO 00 /09 ORIENTADORA DANIELA DA CUNHA MUSSOLINI
LÓTUS
1_ Hospital de Caridade
José 2_ Cãmara de Vereadores 3_ Lagoa Armênia 4_ Lar São José 5_ Escola Municipal Nardy de Farias Alvim 6_ Centro de Referência de Assistência Social (CRAS) 7_ Museu Costa e Silva 8_ Prefeitura Municipal
São
1 2 3 4 5 6 7 8 ÁREADEINTERVENÇÃO RUAMARECHALDEODORO RUACÔNEGOCORDEIRO TRAVESSA 4 DE JULHO RUACÔNEGOTOSTES RUADANIELBIZARRO

PROPOSTA

LÓTUS

CENTRO DE TRATAMENTO ONCOLÓGICO DE TAQUARI

O projeto tem como objetivo desenvolver um Centro de Tratamento Oncológico na cidade de Taquari/RS, abrigando uma estrutura para atender todas as etapas, desde o diagnóstico da doença até o tratamento das principais patologias oncológicas, além do acompanhamento após o tratamento, contando com atendimento SUS, convênios e particular.

A edificação localizada no terreno ao lado do Hospital de Caridade São José, funcionará como um complemento aos serviços de saúde existentes na cidade, além de tornar-se um centro de referência no estudo e desenvolvimento de novos tratamentos oncológicos.

JUSTIFICATIVA

De acordo com os últimos dados disponibilizados pela OMS, em 2018, 18,1 milhões de pessoas foram diagnosticadas com algum tipo de câncer ao redor do mundo. Segundo o INCA (Instituto Nacional do Câncer), no ano de 2020 foram diagnosticados 626.030 novos casos de câncer no Brasil, sendo 46.060 (7,35%) no RS. No RS, o câncer de próstata é o segundo maior em mortalidade da população masculina, bem como o câncer de mama nas pessoas do sexo feminino. Em ambos os casos, a alta taxa de mortalidade deve-se ao estágio avançado em que a doença geralmente é descoberta. O diagnóstico precoce aumenta consideravelmente as chances de cura da doença e diminui a taxa de mortalidade.

O estado do Rio Grande do Sul está dividido em 30 regiões de saúde. A cidade de Taquari está localizada na macroregião dos Vales, na região R30 - Vale da Luz , que conta com 10 municípios e cerca de 130 mil habitantes.

Na região R30 não existe nenhum centro de tratamento de câncer , portanto todos os pacientes precisam se deslocar para outras regiões afim de obter o tratamento e acompanhamento, o que além do desgaste físico e psicológico dos pacientes, gera grandes despesas financeiras com deslocamento, tanto para os conveniados, quanto para os municípios que precisam arcar diariamente com estes custos de transporte, para pacientes SUS.

Há poucos anos o Hospital de Taquari passou por uma grande reforma, para hoje poder abrigar um centro cirúrgico e UTI, algo que não fazia parte da realidade da cidade há mais de 20 anos, portanto um centro de atenção oncológica viria para complementar o atendimento hoje realizado no hospital, tornando a cidade referência de saúde da região.

CONCEITO

“Se a Arquitetura pode desmoralizar os pacientes, contribuindo para um nervosismo extremo, não poderia também ela se mostrar restauradora?”

Keswick Jencks, historiador e idealizador dos Centros Maggie

O principal conceito do projeto é a humanização do ambiente hospitalar e a ideia de utilizar a Arquitetura como parte do tratamento oncológico, proporcionando aos pacientes um espaço acolhedor, distanciando-se do tradicional ambiente hospitalar.

LÓTUS

A flor de lótus é conhecida nas culturas orientais como um símbolo de resiliência e renascimento . Este significado foi atribuído à espécie por conta de suas características naturais: A planta nasce em meio a água lodosa e desabrocha em uma linda flor na superfície. Dessa forma surgiu o simbolismo, de que para florescer e chegar até a luz, primeiramente a flor precisa enfrentar a escuridão e as adversidades.

DIRETRIZES

_Desenvolver um espaço acolhedor para os pacientes em tratamento oncológico e seus acompanhantes, de forma que a arquitetura funcione como parte do tratamento e apoio, com uma tipologia humanizada, que não seja semelhante a dos hospitais tradicionais;

_Propor a integração dos ambientes internos com o espaço externo, utilizando das visuais e do contato com a natureza como parte importante do projeto;

_Desenvolver espaços que permitam a presença dos familiares durante os tratamentos, sempre que possível, e áreas de espera acolhedoras para os acompanhantes;

_ Seguir o alinhamento de altura e de recuo das edificações existentes ao redor do terreno;

_Criar um programa que permita diagnosticar a doença, realizar o tratamento adequado e fazer um acompanhamento multidisciplinar durante e após a cura do paciente;

LEGISLAÇÃO

_ZC2 – Zona Comercial 2 - Comércio e Serviços Diversificados (CSD)

_IA (Índice de Aproveitamento) - 4,0

_TO (Taxa de Ocupação) - 90%

Recuos - frontal: 2,00m; lateral e fundos: até 7 pavimentos isento

_Altura máxima - 8 pavimentos

TRABALHO DE CONCLUSÃO ARQUITETURA E URBANISMO

LOCALIZAÇÃO

O terreno escolhido tem aproximadamente na área central de Taquari/RS Hospital de Caridade São principal ponto turístico da Câmara de Vereadores, escolas (contraturno escolar para

1_ Hospital de Caridade São

2_ Cãmara de Vereadores

3_ Lagoa Armênia

4_ Lar São José

5_ Escola Municipal Nardy de

6_ Centro de Referência de 7_ Museu Costa e Silva

8_ Prefeitura Municipal

aproximadamente 2000 m², e está localizado Taquari/RS (90km de Porto Alegre), ao lado do José e bem em frente a Lagoa Armênia, cidade. No entorno do terreno encontra-se a escolas públicas e particulares e o Lar São José crianças e adolescentes de baixa renda).

RUACÔNEGOTOSTES RUADANIELBIZARRO

São José de Farias Alvim Assistência Social (CRAS)

1 2 3 4 5 6 7 8 ÁREADEINTERVENÇÃO
4
RUAMARECHALDEODORO RUACÔNEGOCORDEIRO TRAVESSA
DE JULHO
CONCLUSÃO DE CURSO URBANISMO | UNISINOS 2022/2 ACADÊMICA NICOLE DORNELES CARDOSO 01 /09 ORIENTADORA DANIELA DA CUNHA MUSSOLINI

gerência sala administração sala de reuniões setor financeiro setor jurídico ACESSO acesso e recepção café/lancheria brinquedoteca espera acompanhantes sanitários

FARMÁCIA

administração depósito vestiário de barreira manipulação

C

D B A

160,00 12,20

60,00 22,80

27,00 17,40

26,00 23,00 12,50 15,50 20,80 11,10

14,30 9,00 6,60

16,70 60,00 15,10 15,60

ambiente m² final estacionamento consultórios médicos (4) DIAGNÓSTICO sala de laudos sala de preparo ressonância magnética vestiário endoscopia ultrassonografia mamografia PLANTA BAIXA SUBSOLO esc. 1/125 1_ estacionamento 2_ reservatório, gerador e lixo 3_ circulação 4_ sala de espera 5_ consultório

RADIOTERAPIA

APOIO

CENTRO

sala de espera sala de encontros consultório nutricionista fisioterapia consultório psicólogo sanitários

QUIMIOTERAPIA sala de espera quimioterapia coletiva suítes quimioterapia (4) posto de enfermagem sala de medicamentos vestiário sanitário

11,50 41,00 70,00

72,00 19,20 5,00 33,00 4,50

16,00 27,80 50,40

9,80 11,00 25,60 5,50

23,20 15,00 15,40 14,00

60,00 60,00 7,50 498,00

4,50 22,00

83,00 11,00 18,40 21,50 9,00 15,30

E F 6 7 8 4 9 10 11

6_ sala de preparo e observação 7_ depósito de materiais 8_ sala de comando 9_ sala de radioterapia 10_ componentes elétricos

E

12 13 14 16 15

11_ chillers de resfriamento 12_ posto de enfermagem 13_ depósito de limpeza 14_ sala de moldes e máscaras 15_ sala de física médica

16_ sanitário masculino 17_ sanitário pcd 18_ sanitário feminino

5 E

DE TRATAMENTO
DE TAQUARI TRABALHO DE CONCLUSÃO DE CURSO | ARQUITETURA E URBANISMO | UNISINOS
CENTRO
ONCOLÓGICO
LÓTUS
IMPLANTAÇÃO
PROGRAMA DE NECESSIDADES E QUADRO DE ÁREAS
esc. 1/150
sala de espera consultório sala de radioterapia sala de comando posto de enfermagem sala moldes e máscaras sala de física médica sala de preparo depósito limpeza depósito materiais sanitários ADMINISTRAÇÃO depósito copa arquivo sanitários

telha de fibrocimento I = 10%

volume reservatório telha de fibrocimento I = 10%

telha de fibrocimento I = 10%

telha de fibrocimento I = 10%

telha de fibrocimento I = 10%

telha de fibrocimento I = 10%

telha de fibrocimento I = 10%

alça de carga e descarga pacientes

acesso pedestres

alça de carga e descarga pacientes

C D B

RUA MARECHAL DEODORO

rampa de acesso estacionamento no subsolo

TAQUARI UNISINOS 2022/2 ACADÊMICA NICOLE DORNELES CARDOSO 02 /09 ORIENTADORA DANIELA DA CUNHA MUSSOLINI
A
C D B
A E F
1 2 2 2 3 4 17 18 C D B A F F
CENTRO DE TRATAMENTO ONCOLÓGICO DE TAQUARI TRABALHO DE CONCLUSÃO DE CURSO | ARQUITETURA E URBANISMO | UNISINOS
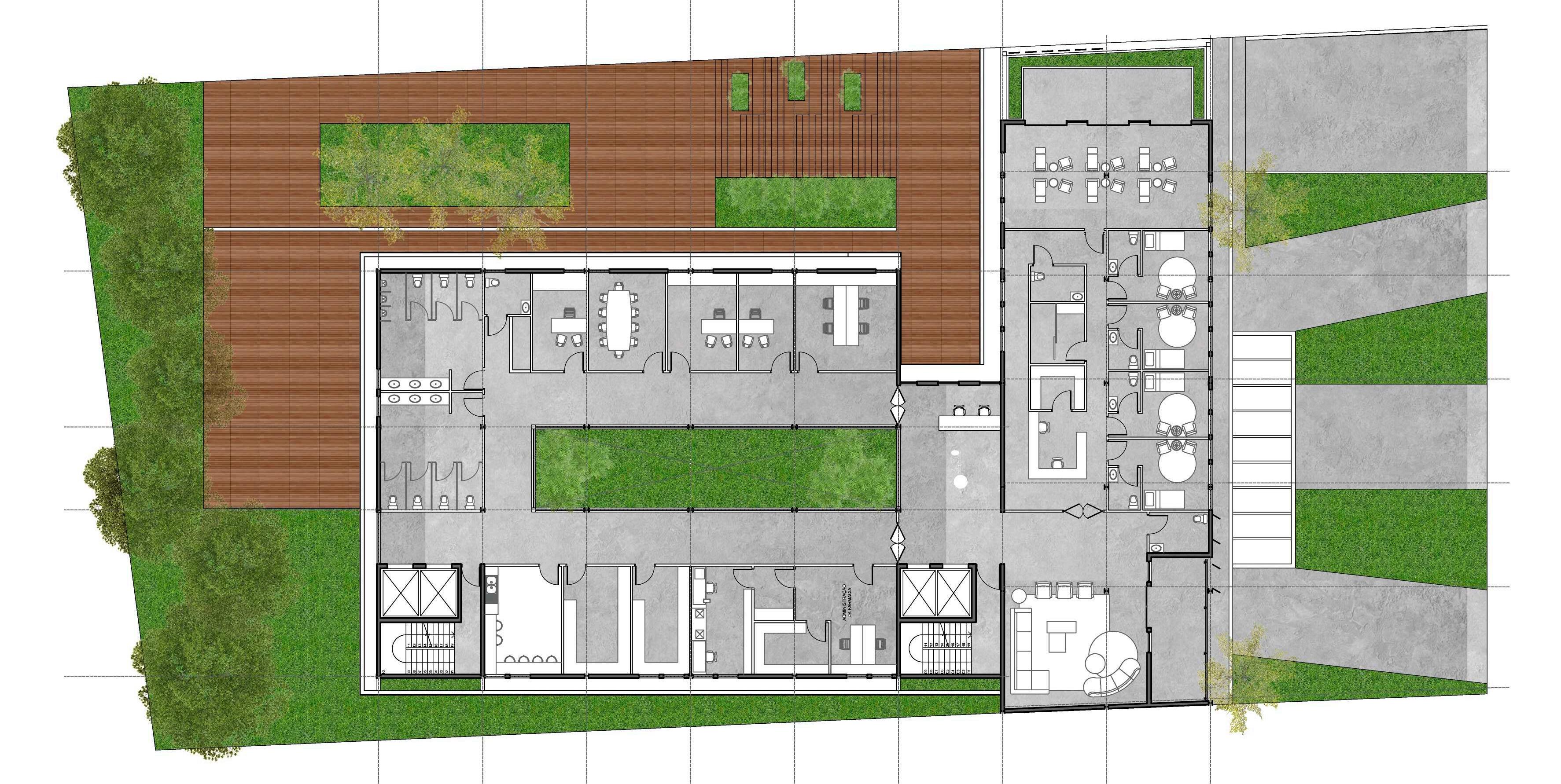
1_ recepção e espera 2_ sanitários 3_ sanitário pcd 4_ café 5_ cozinha 6_ sanitário 7_ brinquedoteca 8_ espaço de espera acompanhantes 9_ circulação 10_ consultórios 11_ sanitário pcd 12_ sanitário masculino 13_ sanitário feminino 14_ chiller 15_ sala de ressonância magnética 16_ vestiário 17_ sala de preparação 18_ sala de endoscopia 19_ sala de mamografia 20_ sala de ultrassonografia 21_ sala de laudos 10 10 10 11 12 13 14 16 15 17 18 19 E C D B A E
PLANTA BAIXA TÉRREO
LÓTUS
TAQUARI UNISINOS 2022/2 ACADÊMICA NICOLE DORNELES CARDOSO 03 /09 ORIENTADORA DANIELA DA CUNHA MUSSOLINI ultrassonografia 1 6 2 3 7 8 4 9 10 20 21 5 C D B A F F

CENTRO

PLANTA BAIXA SEGUNDO PAVIMENTO

esc. 1/125

CORTE BB esc. 1/125

CORTE AA esc. 1/125
DE TRATAMENTO ONCOLÓGICO DE TAQUARI
| UNISINOS
1_ circulação 2_ recepção 3_ sala de espera 4_ sanitário 5_ posto de enfermagem 6_ área de medicamentos
vestiário de preparação 8_ sanitário 9_ suites de quimioterapia individual 10_ sala de quimioterapia coletiva 11_ administração 12_ setor financeiro
setor jurídico
sala de reuniões 15_ gerência 16_ sanitário pcd 17_ sanitário masculino 18_ sanitário masculino 19_ circulação 20_ copa 21_ arquivo 22_ depósito de serviço 23_ manipulação 24_ vestiário de barreira 25_ 26_ 0,00 3,50 7,80 11,50 -4,10 -4,10 0,00 3,50 7,00 0,00 7,80 12 13 14 16 15 17 18 19 20 21 22 23 24 25 E C D B A E
TRABALHO DE CONCLUSÃO DE CURSO | ARQUITETURA E URBANISMO
LÓTUS
7_
13_
14_
TAQUARI UNISINOS 2022/2 ACADÊMICA NICOLE DORNELES CARDOSO 04 /09 ORIENTADORA DANIELA DA CUNHA MUSSOLINI 25_ estoque farmácia 26_ administração farmácia 11,50 -4,10 0,00 3,50 7,00 1 6 2 3 7 8 4 9 9 9 9 10 11 12 25 26 5 C D B A F F

OLÁ esse é um spoiler do resultado de um dos nossos TCCinhos

você gostou e quer saber mais sobre o trabalho e o TCC Nota 10, fala com a gente pelo nosso
Se
instagram @tccnota10arquitetura

Turn static files into dynamic content formats.

Create a flipbook
TCC NOTA 10 ARQ | LOTUS - CENTRO DE TRATAMENTO ONCOLÓGICO DE TAQUARI | NICOLE CARDOSO by TCC Nota 10 Arquitetura | Vítor Claudino - Issuu