

























2023/4
Project Leader, SKAr
Software: Revit
Stages: Technical Design, Manufacturing & Construction, Handover
NORTHPARK PRIVATE HOSPITAL
Dementia Care & Mental Health Redevelopment
Location: Melbourne, AUS
This redevelopment introduced new dementia care and mental health wards to the existing Northpark Private Hospital (built 1979), requiring significant upgrades to the aging infrastructure to meet clinical and building standards.
Joining the project at the technical design stage, demolition had already begun on site and a complete, coordinated technical design package had not yet been produced. My role involved reviewing all existing material, rebuilding and completing the technical design documentation set, re-coordinating services, redesigning areas, updating joinery and selecting new materials to align the design with both the changes and the current clinical standards.
2023/4
Project Leader, SKAr
Software: Revit
Stages: Technical Design, Manufacturing & Construction, Handover



NORTHPARK PRIVATE
HOSPITAL
Dementia Care & Mental Health Redevelopment
Location: Melbourne, AUS
Acting in a project leader capacity for the first time, I managed the design team while working closely with the builders and consultants to resolve issues efficiently as they emerged on site.
Working on a mental heath ward had the added parameters of the design meeting anti-ligature requirements among other health standards and the accelerated timeline demanded a high level of coordination, technical problem-solving and a strong on site presence, ultimately contributing to a resolved outcome despite the projects challenges.
















Left: (top to bottom) Canopy/Existing Eaves junction detail, Canopy detail, Bain Marie joinery detail
Right: photographs of completed works, (top to bottom) In-Patient Courtyard, Mental Health Ward Bedroom, Dementia Care Ward Dining Room, Dementia Care Ward Corridor






















Project Leader, SKAr
Software: Revit

Concept Design, Spatial Coordination, Technical Design, Manufacturing & Construction, Handover 2023/4
MELBOURNE PRIVATE HOSPITAL
Location: Melbourne, AUS
Stages:

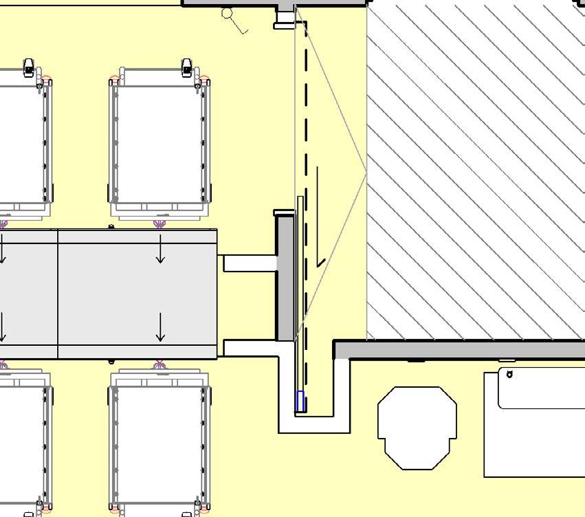
Part of a wider series of CSSD (central sterile services department) upgrades, the Melbourne Private Hospital Endoscopy Reprocessing Project involved refurbishing four existing areas across two floors and integrating new scope-cleaning equipment within a highly constrained clinical environment.
Although the interventions were modest in scale, the specialist equipment, technical requirements and challenging existing conditions introduced significant complexity from concept design through to completion.
Working with a CSSD consultant, I developed layouts that aligned with the equipment needs, efficient workflow and ensured all compliance and clinical standards were met and met the expectations of the client and users.







EXISTING WASHER & DRYER RELOCATED FROM DECONTAMINATION ROOM.
EXISTING WASH SINK STATION RELOCATED FROM KNOX PH.


ENSURE WATERPROOFING IS PROVIDED ABOVE NEW SCREED.
WASHER & DRYER FACE



PROVIDE SCREED TO EXISTING FLOOR AS REQUIRED, TO LEVEL OUT FLOOR. EXISTING FLOOR WASTE TO BE FLUSH WITH FFL.
ALLOW FOR INSTALLATION OF NEW WALL SERVICES. OPEN UP EXISTING PLASTERBOARD, PROVIDE NOGGINGS WHERE REQUIRED. MAKE GOOD AFTER COMPLETION - REFER TO RELEVANT RLS DRAWINGS FOR DETAILS. 2x WASHERS & 1x DRYING CABINET RETAINED & RELOCATED FROM KNOX PH.

Despite numerous parameters and spatial limitations, strong coordination with the consultant team enabled the project to progress smoothly through all design stages, resulting in a successful and well-resolved upgrade.

MACHINERY SUPPLIER TO PROVIDE SHEET METAL FLASHINGS TO ENCLOSE TOPS & SIDES OF NEW MACHINERY LINE (FULL HEIGHT).


Top: General Arrangement plan, Technical Design




2023/4
Project Leader, SKAr
Software: Revit
Stages:
Concept Design, Spatial Coordination, Technical Design, Manufacturing & Construction, Handover





RINGWOOD PRIVATE HOSPITAL
CSSD Upgrade
Location: Melbourne, AUS
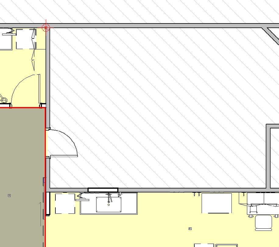
The second project in the series of CSSD upgrades, Ringwood Private Hospital (built 1973) similarly involved the full refurbishment and reconfiguration of an endoscopy reprocessing unit, to meet current clinical standards and improve workflow efficiency.

The design centered on creating a compliant separation between dirty and clean flows (which was difficult within the existing layout, requiring problemsolving), following best practice infection-control protocols.
Materials and service coordination were thoroughly interrogated to support hygiene and durability requirements. The final design and resulting outcome delivered a compliant environment, improving staff operations.











PROPOSED EXTENDED DB CUPBOARD TO ACCOMMODATE THE NEW SWITCHBOARD. CUPBOARD IS REQUIRED TO BE CONSTRUCTED OF NON-COMBUSTIBLE MATERIALS AND SHALL HAVE SMOKE SEALS ON THE DOORS. 1400mm CLEARANCE. ALLOW FOR RELOCATION OF EXISTING POWER & DATA OUTLETS - REFER ENGINEERS DRAWINGS.


PROVISION FOR A FUTURE SECOND DOUBLE STACK ENDOSCOPE REPROCESSOR.

Top: (left to right) Partition details, photographs of completed works
Bottom: General Arrangement plan, Technical Design stage





Stages:
HOBART PRIVATE HOSPITAL
Vibe Building Redevelopment
Location: Hobart, AUS
This redevelopment project significantly expanded Hobart Private Hospital by connecting the existing building to the adjacent Vibe Hotel via an elevated foot bridge, adding three new clinical floors. These new levels included two endoscopy procedure rooms, four operating theatres and a consulting suite, increasing the hospital’s surgical capacity and improving patient flow.

2022 Part II Architectural Assistant, SKAr
Software: Revit Enscape
Stages: Concept Design, Spatial Coordination, Technical Design
HOBART PRIVATE HOSPITAL Vibe Building Redevelopment
Location: Hobart, AUS
Contributing from the concept design stage through to technical design, translating sketches and a room schedule into a resolved, efficient and complaint layout. My role involved coordinating services and working closely with the client team to ensure the design aligned with operational needs and clinical workflow.
A key part of this process was leading user-group engagement. I developed and presented detailed 3D models to facilitate spatial walk-throughs during meetings, integrating feedback live and improving the design in real time. This approach enabled clear communication with clinicians and stakeholders and ensured the final design responded directly to the end-user requirements and experience.






Top: Reception visualisation, Spatial Coordination stage
Bottom: Reception plan & elevations extracted from example room layout sheet, Spatial Coordination stage







ELGP-109GPO: single, wall mounted 11
FIHR-500BRACKET: for annunciator, wall mounted 1
FIJO-059BENCH TOP: 600D, joinery under, laminate finish 1
FIJO-135CUPBOARD: underbench, double door, adj shelves
FIJO-145CUPBOARD: wall mount, double door, adj shelves, lockable1
FIJO-500CUSTOM:
ITCL-001ANNUNCIATOR: nurse call
ITCL-004BUTTON:
ITIN-026OUTLET:


ELGP-208GPO: double, wall mounted 19
FIJO-212BULKHEAD: joinery 11
ITIN-070OUTLET: MATV 11

MEGE-007CONTROL

ITSE-006BUTTON: duress, fixed 11
This university project interrogates the intersection between an existing suburban cemetery and the increasing demand for palliative and hospice services in Australia. The question raised, what could an assisted dying facility look like? The result, an inpatient hospice facility located in a memorial park, servicing both the city of the living and the city of the dead.

A cemetery is both a curated landscape and a memorial blurring the lines between public and private. Looking through the lens of Carlo Scarpa and 19th century formal gardens, a set of rules and kit of parts were established to develop an intervention connecting the existing landscape and language of the cemetery to the new assisted dying facilities, in the hopes of normalising the cemetery and assisted dying facilities with the familiarity of a garden.



