

Undergraduate Portfolio
Tara Pemu


ABOUT ME PAGE 3
SULTAN BAHU LEARNING CENTER
LIBRARY PAGE 4


BELLIS HOUSE PAGE 5

RECOVERY HOUSE PAGE 6
CAD TECHNICAL DRAWINGS PAGE 7

HAND DRAWN DETAILS PAGE 8
BEYOND ARCHITECTURE PAGE 9


TARA PEMU
PHONE | +27741 866 866
EMAIL | tarapemu@gmail.com
LINKEDIN | TARA PEMU
LOCATION | PRETORIA
www.linkedin.com/in/tara-pem u-b04011261
NORMATIVE POSITION
ARCHITECTURE IS THE MARRIAGE OF DESIGN, ART AND FUNCTION. DESIGN IS BEAUTIFUL, ART MEANINGFUL AND FUNCTION USEFUL. I BELIEVE ARCHITECTURE SHOULD BE ROOTED IN CONTEXT AND NATURE, THAT IT IS INSEPARABLE FROM ITS ENVIRONMENT AND PEOPLE. IT SHOULD BE ACCESSIBLE AND WOVEN INTO THE FABRIC OF ITS USERS. MY GOAL IS TO MAKE TIMELESS ARCHITECTURE.
EDUCATION
BSc ARCHITECTURE | UNIVERSITY OF PRETORIA
2018 – 2025
NATIONAL SENIOR CERTIFICATE | PRETORIA
HIGH SCHOOL FOR GIRLS
2013 – 2017

EXPERIENCE
ARTIST | TQuest10Art
(Self-employed)
2021 – CURRENT
RECRUITER | VARSITY LODGES
JANUARY 2025 – FEBRUARY 2025
SOFTWARE SKILLS
REVIT | INTERMEDIATE
AUTOCAD | INTERMEDIATE
SKETCHBOOK | INTERMEDIATE
INKSCAPE | COMFORTABLE
GIMP | COMFORTABLE
GOOGLE SUITE | COMFORTABLE
MICROSOFT SUITE | COMFORTABLE
TWINMOTION | NOVICE
FORMA | NOVICE
BLENDER | NOVICE
CANVA | NOVICE
ADOBE SUITE | NOVICE

ENGLISH | NATIVE
FRENCH | NOVICE
AMERICAN SIGN LANGUAGE | NOVICE LANGUAGES
SOFT SKILLS
EFFECTIVE COMMUNICATION
ADAPTABILITY
LEADERSHIP
PROBLEM-SOLVING
CREATIVITY
AUTOCAD | ESSENTIAL TRAINING 2024
REVIT | ESSENTIAL TRAINING 2025 CERTIFICATES



FRAMING THROUGH MEMORY
HIGH DENSITY MIXED USE | MAYFAIR, JOHANNESBURG

AN ADAPTIVE REUSE PROJECT TO HOUSE THE INCREASING POPULATION OF MAYFAIR. THE PROJECT AIMS TO KEEP AND BE INFORMED BY THE EXISTING STRUCTURES AND PROGRAMS.




CONCEPTUAL FRAMEWORK

RENOVATION
RESIDENTIAL
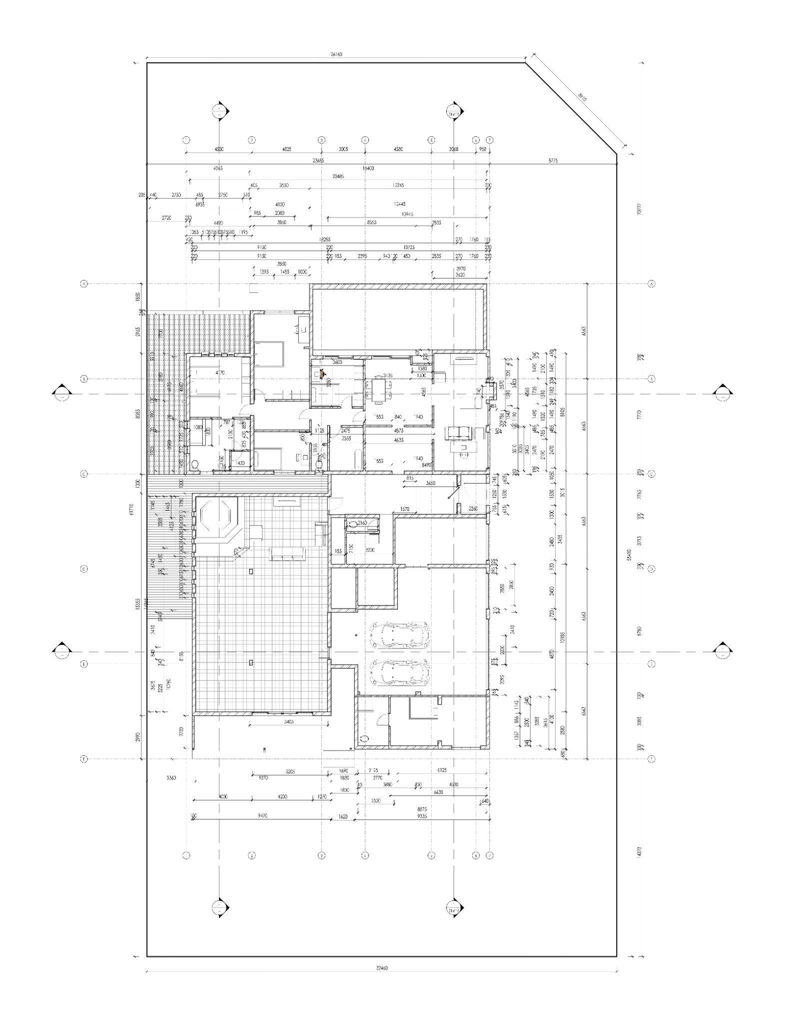
| KILNER PARK, PRETORIA
THE OWNERS WANT TO CHANGE THE EXISTING STRUCTURE. THE ORIGINAL DRAWINGS WERE DESTROYED AND THE AVAILABLE PLANS ARE INACCURATE. I AM MEASURING, DRAFTING, MODELING AND RENDERING THE HOUSE.




A SAFE PLACE TO PAUSE AND COMMUNE
TRANSITIONAL HOUSING | SUNNYSIDE, PRETORIA

THE DESIGN AIMS TO PROVIDE RELIEF AND PROTECTION. HOUSING IS FOR MID TO LONG TERM WITH SUPPORT SERVICES PROVIDED ON THE SITE SUCH AS A LIBRARY, COUNSELING, AND A CLINIC. THE DESIGN IS CREATED BY SEPARATING PRIVATE SPACES WITH COMMUNAL SPACES TO FOSTER CLOSENESS.



MODEL





























