Sydney
Winkler ney W Wi ney neyyWi W ey eyW e
B.ARCH: Fay Jones School of Architecture & Design
History of Architecture and Sustainability Minors
Welcome
Welcome to my portfolio and my work. I am fascinated by the ways cities shape our lives and the unexpected moments that reveal their character. Architecture first drew me in through the spontaneity of Houston, where vibrant neighborhoods, unpredictable streets, and fleeting urban moments taught me to notice the small, often overlooked details that make a city feel alive. Throughout school, I have been drawn to experiences beyond architecture, whether traveling across Europe, engaging with local communities, studying contemporary art, or simply observing how people interact with the spaces around them. I enjoy applying design thinking to these experiences, unpacking what makes them meaningful and bringing these lessons back into my design work. In every project, I reference the urban scale, exploring how buildings, spaces, and systems connect to the broader city. I am interested in creating equitable, lively, and human-centered environments while uncovering the threads that link people, place, and ideas, and discovering ways to make those connections visible and impactful.
Sydney Winkler
713-805-4354 | sydneywinkler3@gmail.com
Education
University of Arkansas
B. ARCH | 2021 - 2026
Sustainability and History of Arch
Study Abroad: Rome, Spring 2025
GPA: 3 60
Awards & Recognitions
Dean’s List | 2022-2025
Maurice Jennings International Experience Endowed Scholarship | 2024
Girl Scout Gold Award | 2021
Skills
Technical
Rhino, Revit, Adobe Creative Suite, V-Ray, Enscape, Climate Studio, Microsoft, Gemini
Design Thinking
Placemaking, Research, Sketching, Collaging, Graphics, Model-Making, Team Organization
Personal
Leadership, Communication, Adaptability, Collaboration
Experience
Crystal Bridges Museum of Art: Intern | 2025- 2026
Supporting the design and development of the 2026 Artist-in-Residence program across Crystal Bridges and the Momentary, managing administrative tasks while envisioning how the program will continue to grow and support local and national artists.
Project Luong: Architecture Intern | 2024
Studied the Livable Places Initiative in Houston, Texas, exploring the interaction between policy and architecture to create walkable and equitable urban housing environments. Designed an affordable triplex on a lot in North Houston, enhancing neighborhood density and equity
Groundwork Community Outreach Intern | 2024
Assisted with community outreach for Groundwork by tabling at local events, and educated the public on regional housing issues such as zoning, unplanned growth, and gentle density. Interviewed designers from Marlon Blackwell Architects for an article detailing design’s role in solving the housing crisis published in December 2024
Community Service Club: Fay Jones School - Spring 2026
Led and organized a food drive for the Fay Jones School to give back to our community in NWA in November 2025. Following the success of the drive, Macy Watson and I gathered a group of students from all years and disciplines in the school to lead the school in community service. We hold discussions about regional issues as well as monthly community service outings. We are seeking to create a new culture of service and agency within design, to learn what it means to meaningfully engage with our neighbors
Course
Assistant: Arch.
Structures
I, History of Arch. I, Arch. Theory - 2023, 2024, 2026
Supported faculty and students across multiple foundational architecture courses. Responsibilities included assisting with course coordination, leading office hours, facilitating workshops and discussions, and providing thoughtful feedback on assignments to strengthen student understanding and engagement.
Sustainability Capstone: What Makes a Sustainable City Liveable - Summer 2025
Solo traveled to 4 European cities – Barcelona, Amsterdam, Copenhagen, Vienna – for a month after a semester abroad in Rome, discovering the correlation between sustainability and livability in urban conditions. Completed field studies identifying resident behaviors in each city, while researching and observing sustainable urban practices at play. Engaged with design professionals in each city to support the immersion process.
Genesis Energy IT Intern - Summer 2023
Tested Oracle IT/Accounting system for Alkali division at Green River mine, Wyoming. Organized Excel scripts to track Oracle efficiency, including SOX controls and hyperlinks for test evidence. Received training in SOX controls and SCADA systems








01 02 04 05 03



CONTENT
+
Urban Design Build Studio: Intentional Disruptions
02 03 04 05
Urban Design Build Studio: One Piece at a Time
Integrated Design Studio: Reclaiming the Ground
Biennale | Porch : A New American Pavilion What Makes a Sustainable City Liveable?
Fall 2025

As the first prescribed project in Urban Design Build Studio: One Piece at a Time, the work begins with the careful deconstruction of a housing prototype built by a previous cohort. This act of dismantling is both practical and pedagogical—an exploration of the architectural discipline’s ongoing engagement with “Re-Use.” Too often treated as an abstract concept, here reuse is made tangible through the harvesting, cataloging, and re-framing of material into new spatial possibilities.
The salvaged material serves as the foundation for two publicly accessible pavilions, sited in the southern yard of the Anthony Timberlands Center. Developed collaboratively by a studio of fifteen students, made up of both architecture and interior architecture disciplines, organized into two teams, the project emphasizes iterative design, material stewardship, and public engagement. Under the guidance of Department Head and Professor John Folan and UDBS Fellow Mary Beth Mashburn, the work advances a culture of building that privileges resourcefulness, shared authorship, and architectural experimentation.




The first step of Intentional Disruptions was the deconstruction of a housing prototype constructed by a previous studio. Built using stick-framing methods and Wave Length Timber technologies, the structure became both a material source and a learning tool. Over the course of three class sessions, the studio worked collectively to dismantle the framed walls, columns, and deck. This process required coordination, adaptability, and shared responsibility, while also setting the foundation for cataloging and organizing the salvaged material for the next stages of the project. While stick framing was a familiar system from my previous coursework, the introduction to Wave Length Timber (WLT) required a new understanding of dimensional lumber and its assembly. During the deconstruction of the prototype’s deck, observed how stacked WLT members, bound with tension rods, created a glue-free structural system designed for both efficiency and reversibility. This direct engagement not only revealed the logic of its construction but also highlighted the potential of WLT as a sustainable, reusable system. The knowledge gained from dismantling these components became instrumental in re-imagining how the harvested material could be adapted in the design phase.





visualization design (build) through a process of conceptualization, sketching, scaled stacking, and AI rendering

collaboration: practice as project






For the presentation of this project, my role focused on creating site plans that illustrated how this “urban acupuncture” intervention would interact with and influence its surroundings. The base layer of this drawing depicts the stark and uninviting character of the area. Newer developments along MLK, while visually prominent, feel largely inaccessible to the local community and cast an imposing presence over properties that have not been absorbed by the university, including small businesses and a soup kitchen serving the sizable unhoused population in the vicinity. Overall, this is an area where people typically do not linger, despite its proximity to the Greenway and other new developments.
The final layer of this site plan envisions a complete transformation of the area surrounding our pavilion. People are engaging with the space, lingering, and even participating in spontaneous events like a flash mob. Acknowledging the current conditions of the site, our goal is to create an oasis within it—injecting color, playfulness, and human-scaled interventions that are truly accessible to the public. This approach prioritizes community engagement and provides a space that encourages interaction, respite, and enjoyment within an otherwise underutilized environment.














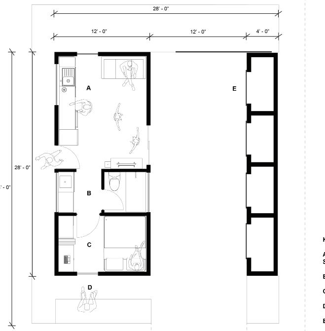
The second half of UDBS focuses on designing and constructing a regional workforce housing prototype for individuals earning $16–$18 per hour. Working in a design/build format, we are responsible for both developing the architectural vision and physically framing the structure within the semester. Real constraints—labor feasibility, prescriptive code compliance, durability, and long-term affordability— ground every decision we make.
Because of limited time and the scale of the work, our group of 15 split into design and build teams. I worked primarily on the design side, helping organize our team around shared lenses—dignity, adaptability, identity, and efficiency—that filtered our decisions. As the project evolved, we began to see the prototype as more than a single home, but as a repeatable system that could shape larger neighborhood conditions. My role centered on synthesis and coordination, ensuring our work stayed cohesive, buildable, and rooted in the realities of the people this housing is meant to serve. I also engaged in how the prototype would engage in multiple urban scales






Urban Design
Studio FLEXITBILITY






After seeing how improved communication strengthened our process, I helped develop a broader design framework for the studio. Working closely with my classmate John Blake, we defined shared values, lenses, and decision-making filters to align our work more consistently. Inspired by strategies from my City Design Meets City Government class with Trinity Simmons Wagner, where we studied how urban professionals use structured value systems to stay aligned, we applied a similar approach in studio. Our work became more iterative as we refined the language of our lenses and clarified how they worked together. John and I then used those lenses to organize the presentation itself, structuring the narrative so each scale of the project was evaluated through the same shared framework.
Because these homes will always be produced at scale, we organized the work across three urban scales: home as home, focusing on the unit’s internal logic and efficiencies; home as neighbor, examining relationships between adjacent units; and home as neighborhood, considering how aggregated homes integrate into the broader community, city, and region.
The final step was to zoom back in to the single home and test whether broader urban strategies—clear thresholds, shared paths, and opportunities for interaction—still held meaning at that scale. It also pushed me to consider how a home evolves with its occupants. Even as layouts shift over time, the character shaped by these urban strategies can remain present through strong indoor–outdoor connections, thoughtful transitions, and design decisions that quietly support community.














INTEGRATED DESIGN STUDIO

Focused on systems integration and holistic design processes to reconnect North Little Rock with nature while introducing new community spaces. The project utilizes a mass timber framing system with glulam V-shaped exterior columns and a 5-layer CLT flooring and roofing system, emphasizing sustainability and structural elegance. Situated in a 100-year floodplain, the design integrates a retaining wall and strategically placed landscaping elements, including bioswales and swamp gardens, to manage rainwater and mitigate rising water levels of the Arkansas River to the south. These systems work in harmony to create a narrativedriven design that fosters environmental connection and enriches public engagement with the site.






URBAN SPECULATIVE STUDY OF HOW ONE ARCHITECTURAL PROJECT CAN BE AN ANCHOR FOR NEW DESIGN OPPORTUNITIES: STRATEGIC & TACTICAL INTERVENTIONS
INTEGRATED DESIGN STUDIO
Urban Deltas: North Little Rock Recreation Center



To gain a deeper understanding of my design’s structure and systems, I built a ½” = 1’ section model, allowing for a detailed analysis of how key elements interact. This model was crucial in exploring the relationship between the mass timber framing system, glulam V-shaped exterior columns, and 5-layer CLT flooring and roofing, demonstrating how they work together to create a structurally sound and sustainable design. It also provided insight into how the active systems integrate with and navigate around the structural framework.
At the end of the semester, my model was selected for display alongside other outstanding student work, highlighting its role in effectively communicating the project’s structural and environmental strategies.
INTEGRATED DESIGN STUDIO
Fall 2024

























































































































































































































































VENICE BIENNALE: PORCH
2025


The New American Pavilion at the Venice Biennale seeks to unearth the foundational roots of American identity—those shaped by indigenous and prehistoric histories. In a nation often characterized by rapid change and shifting narratives, this pavilion offers a grounded, immersive space that transcends contemporary interpretations and excavates stories long buried.
Drawing inspiration from the layered urban fabric of Venice, the pavilion acts as an artificial landscape and architectural archive where voices from diverse backgrounds can share untold stories. The processional journey begins with visitors walking on metal grates suspended above water, signaling a crossing from the surface world into a deeper, more introspective realm. As they move forward, massive masonry walls guide them downward, and the structure above becomes heavier, reinforcing the gravity of the passage.
At the heart of the pavilion lies the kiva—a sunken, sacred chamber where light pierces through a central cannon, revealing the raw essence of America’s true identity. This space serves as a vessel for storytelling, where the architecture itself becomes a medium for creative freedom and cultural expression. The kiva’s circular form and sunken nature encourage contemplation, reflection, and communion with the land.
Emerging from the kiva, visitors find themselves drawn to the groundwork seating carved into the hillside—a space that reconnects the pavilion to the landscape and fosters storytelling and gathering. The pavilion’s adaptable form honors the multiplicity of American identities, providing a stage for future voices to narrate their own truths and reclaim the power of place and heritage.







Across the globe, European cities are often seen as leaders in shaping urban environments that feel good to live in. Cities like Barcelona, Amsterdam, Vienna, and Copenhagen are frequently celebrated for walkability, green space, and overall quality of life. But these snapshots often overlook the deeper systems that make those experiences possible. For my sustainability capstone, I designed a three-week independent study to look beyond rankings and media portrayals and ask what actually supports these cities’ reputations for livability.
This project asks what it truly means for a city to be both livable and sustainable. Livability is about how people experience their city—how they move, rest, connect, and find meaning in everyday life. Sustainability is what holds that experience up, especially in the face of climate change. When the two work together, they create resilience: not just protection from floods or heatwaves, but systems that preserve cultural identity, support social connection, and endure over time.
Throughout my research, I explored how sustainability shows up not only in policy or infrastructure, but in lived experience. I asked whether it shapes how people move through neighborhoods, gather in public space, and feel supported and safe. I also questioned whether sustainability in each city is embedded in culture or primarily driven by top-down planning—and how those answers shift across political, climatic, and social contexts.
By studying these four cities through on-site observation, interviews with architects and planners, and reflective writing, I compared different models of sustainable urbanism. Each city offers a distinct approach to balancing environmental responsibility with quality of life. Together, they provided a framework for understanding how sustainability and livability combine to shape not just how cities look on paper, but how they feel to live in. Summer 2025 Sustainability Capstone











