
TASK 1
PRECEDENT DRAWINGS
TASK 2
MODELLING ABSTRACT FORM
TASK 3 - Progress
DRAWINGS & RENDERS
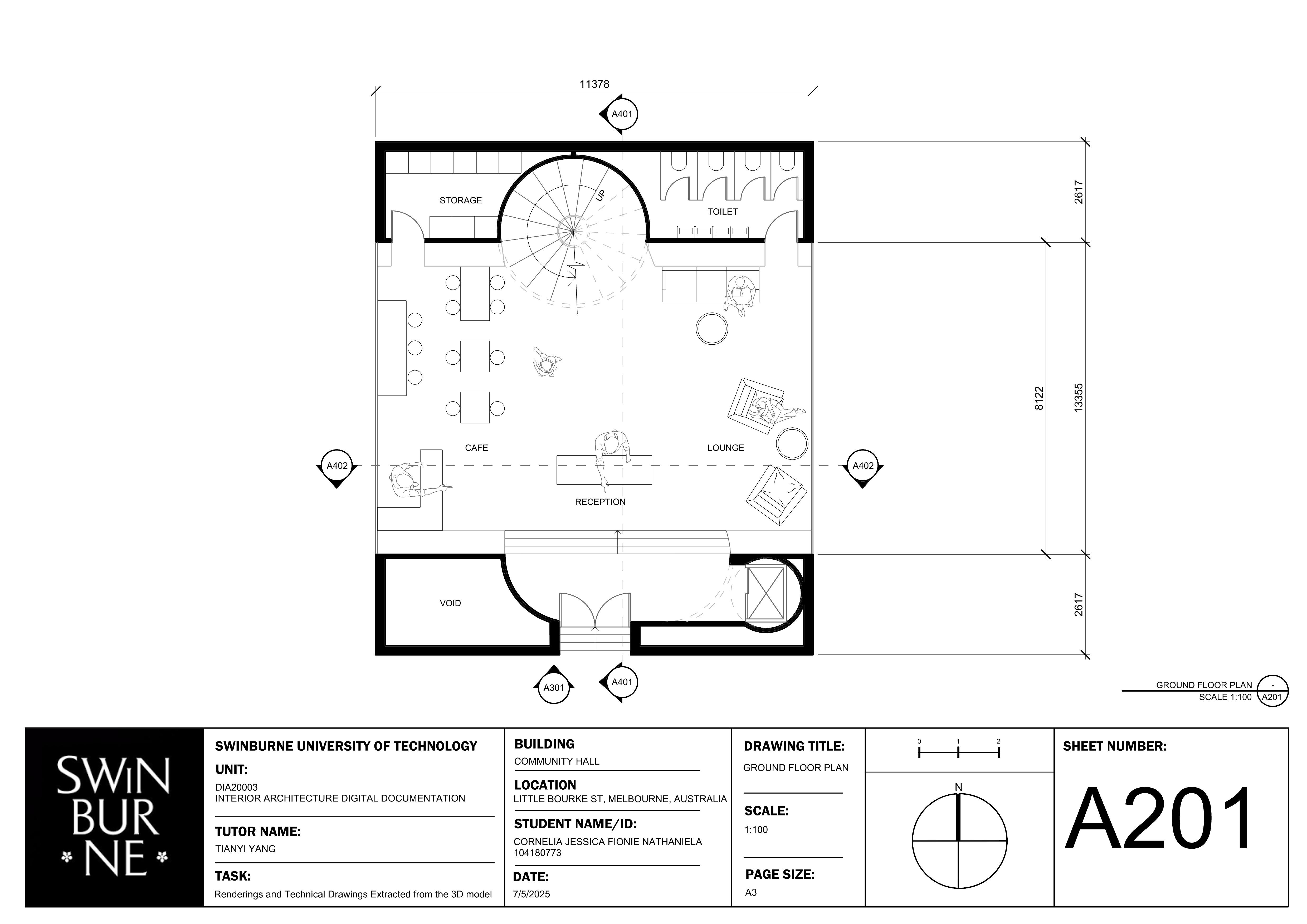
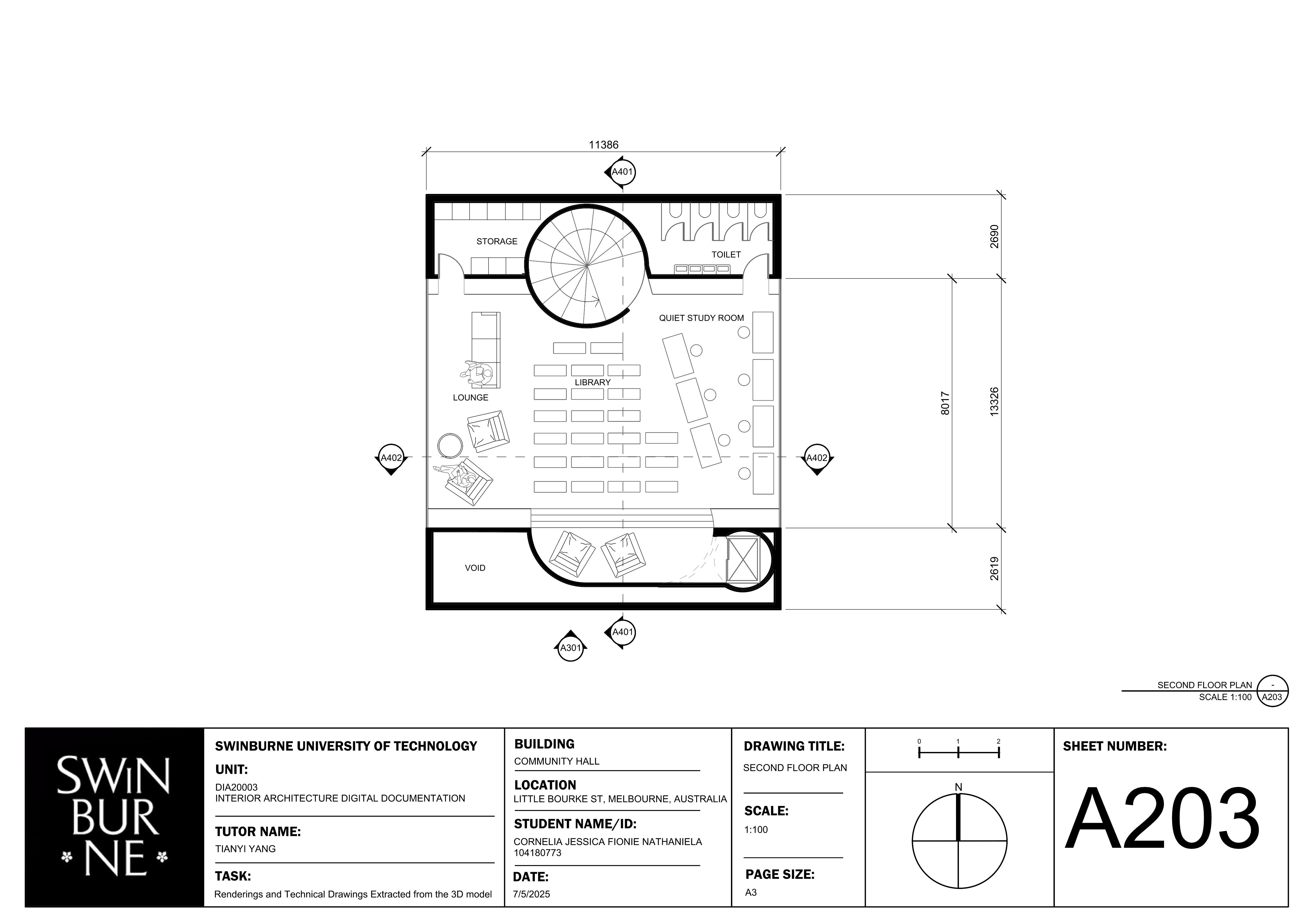
TASK 3 - Final
DRAWINGS & RENDERS

![]()

TASK 1
TASK 2
MODELLING ABSTRACT FORM
TASK 3 - Progress
DRAWINGS & RENDERS
TASK 3 - Final
DRAWINGS & RENDERS
















FALL EQUINOX 9AM


FALL EQUINOX 3PM














Take 2 parts of the original model

Result after substracted


Rotate and Resize Substract using boolean different

Copy & Paste to make the final building

















