DIA20003 INTERIOR ARCHITECTURE DIGITAL DOCUMENTATION 1
SIMONA KONGSANGVAR | 103182707
SEMESTER 1 2023
TUTOR: CANHUI CHEN
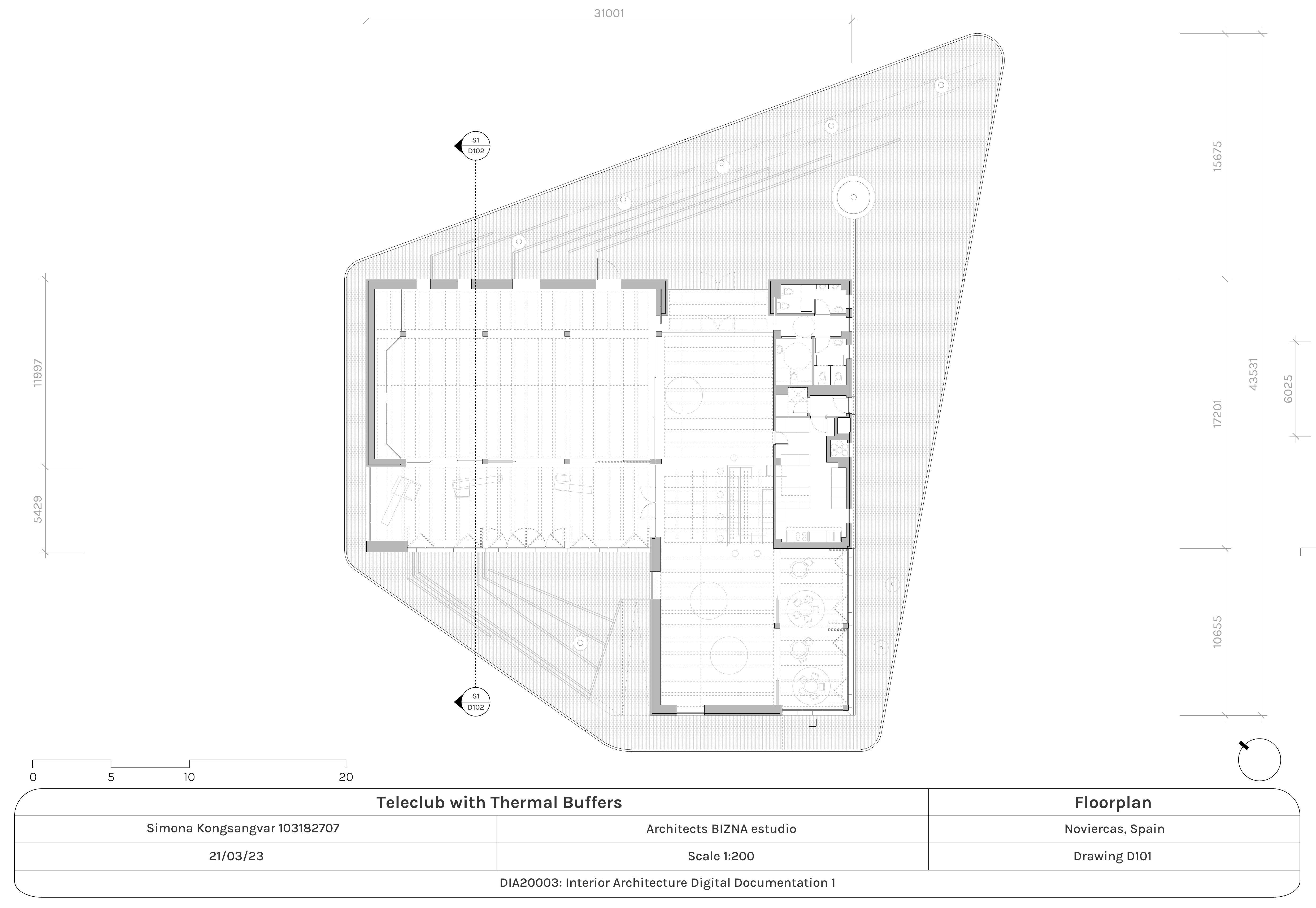
TASK 1
Replicate Drawings of Precedent
TASK 2
Abstract Form and Digital Sketches
TASK 2B
Building Development Documentation
TASK 2C
Technical Drawings and Renderings
TASK 3
Architectural Drawings



















































