PORTFOLIO SURASEE ANG.- 2023

Page 1

SELECTED WORKS

PORTFOLIO 2020-2023

SURASEE ANGKADECHAIYA

QUALIFICATIONS

LABLE (TEROMUSIC)

PROJECT

-ARTIST PROJECT PRESENT (ARTWORK, VIDEO)

-ARTWORK MUSIC MV (PHOTOGRAPH, ARTWORK, VIDEO)

-SMO LIVE HOUSE SHOW (PHOTOGRAPH, ARTWORK, VIDEO)

-MICROTOBEMACRO TALENT LIVE HOUSE (PHOTOGRAPH, ARTWORK, VIDEO)

ARCHITECTE BONHEUR

JR.ARCHITECT 2022-NOWDESIGN ARCHITECTURE.DESIGN INTERIOR. PLANNING.3D RENDER.DRAWING PERMISSION

PROJECT

-KORAT HOUSING (KORAT, THAILAND)

-PHUKET HOUSING (PHUKET, THAILAND)

-MAHIDOL DOMITORY (BANGKOK, THAILAND)

-MAHIDOL LAB (BANGKOK, THAILAND)

-BAMRUNGMUANG HOSPITAL (BANGKOK, THAILAND)

-RAYONG APARTMENT (RAYONG, THAILAND)

2017-2023INPROCESS 2023 INPROCESS

2022-I2023NPROCESS 2023

2022-2023 INPROCESS

2022-2023 INPROCESS

SURASEE ANGKADECHAIYA GRADUATED ST.MARY SCHOOL 2015 ARCHITECTURE AND PLANNING.THAMMASAT UNIVERSITY 2019
PHOTOGRAPH ARCHITECTURE DESIGN HISTORY OF ART GRAPICH DESIGN SOFTWARE PHOTOSHOP GRAPHIC DESIGN 2019INTERNSHIP KATANYU 86 TEL. E-MAIL 061-9151771 zaizaizazero@hotmail.com GRAPHIC DESIGN 2021-2022GRAPHIC
INTERESTS
DESIGN.VIDEO EDITOR. VIDEO CREATIVE.PHOTOGRAPH MACROWAVE
INDESIGN PREMIRE PRO ILLUSTRATOR LIGHTROOM AUTO CAD SKETCHUP ENSCAPE V-RAY WORK THAI ENGLISH LANGUAGE 13.02.1997 BANGKOK ZAIZAI PHOTOGRAPH VIDEO EDIT PHOTO EDIT GRAPHIC DESIGN ARCHITECTURE DESIGN PLANNING.SHOP DRAWING 3D RENDER
2021 2022 2022 2022

CONTENT

KORAT HOUSE

MAHIDOL DOMITORYMAHIDOL DOPING LAB

BAMRUNGMUANG HOSPITALHOUSE PROJECT 01ROOM STUDIO PROJECT 01

KORAT HOUSE (IN PROGESS) K5 โปรเจคบาน 5 หลง ทอยภายในทดนเดยวกน เชอมตอกนดวย ทางเดนเชอมทจะมบานหลกอยตรงกลางระหวางบานหลงอนๆ เพอเปนพนททำกจกรรมและรบแขก ขนาดพนทโครงการ 4200 ตารางเมตร
รวมออกแบบ, จด ZONING, เลอกวสด, เลอกเฟอรนเจอร, ออกแบบ LIGHTING,ทำ 3D RENDER, ปรบแบบ SHOP DRAWING, บานและพนทสวนตางๆจะมการออกแบบโดยใชองคประกอบของงานสถาปตยกรรมญปน เนองจากทางครอบครวทำธรกจนำเขารถญปนและผลตยางลอรถ จงมความสมพนธ กบวฒนธรรมและศลปะของญปน KORAT HOUSE LAYOUT PLAN
หองรบแขก อาคารสวนกลาง หองนอนอาคารสวนกลาง
พนทหองรบแขกอาคารสวนกลาง พนทหองออกกำลงกายอาคารสวนกลาง
KORAT HOUSE
INTERIOR DESIGN
MAHIDOL
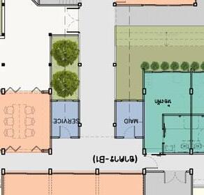
งานรโนเวทอาคารหอพกนกศกษาหญง มหาวทยาลยมหดล จะแบงเปน 2 อาคารทเชอมกนดวยทางเดนประจำทกชน และสวนสวนกลางตรงทางเขา เพอใหเกดความเปนสวนตว และแบงสดสวนชดเจนกอนทจะเขาใชอาคาร เพอความปลอดภยของนกศกษา มการออกแบบและปรบปรงงานระบบของอาคาร เพมพนทสวนกลางใหนกศกษา เพอใหเกดกจกรรม และสะดวกในการนดประชมหรอทำงานตางๆ ไดภายในพนท ขนาดพนทโครงการ 3400 ตารางเมตร
DORMITORY (IN PROGESS)
FACADE ใชสแดงซอนเหลองของ ดอกพทธรกษา ทเปนดอกไมประจำมหาวทยาลย ตดตงเพอปองกนบคคลภายนอกและคน เขามารบกวน เพอให ในหองไมรสกอดอด จงใชวสดโปรงแสงและยงมโตะใชสอย ทตดตงมาพรอมกบ FACADE ดวย MAHIDOL
แบงเปนหองพกแบบ 2 คน 154 หอง และหองพกผพการ 4 หอง พนทหอง LOBBY และหอง PANTRY สวนกลางสำหรบนกศกษา พนทหองพกนกศกษา LAYOUT PLAN รวมออกแบบ, จด ZONING, เลอกวสด, เลอกเฟอรนเจอร, ออกแบบ LIGHTING,ทำ 3D RENDER, ปรบแบบ SHOP DRAWING
DORMITORY
MAHIDOL
(งานประกวดแบบ) อาคารตรวจสารตองหามในการกฬา ตามเกณฑมาตรฐานหองปฏบตการท WADA กำหนด และเปนพนทศกษาคนควาวจยทางดานเทคนคการวเคราะห สารตองหามในการกฬา ขนาดพนทโครงการ 15000 ตารางเมตร
ANALYTICAL SCIENCES AND NATIONAL DOPING TEST INSTITUTE

MAHIDOL ANALYTICAL SCIENCES AND NATIONAL DOPING TEST INSTITUTE

LAYOUT 3 FLOOR PLANROOF FLOOR PLAN 1 FLOOR PLAN 2 FLOOR PLAN รวมออกแบบ, จด ZONING, เลอกวสด, ออกแบบ LIGHTING,ทำ 3D RENDER, DRAWING PLAN

MAHIDOL ANALYTICAL SCIENCES AND NATIONAL DOPING TEST INSTITUTE

STAIRSHALL DESIGN

พนทบนไดหลก ใชเปนพนทพกผอน ของทงนกศกษาและพนกงานนกวทยาศาสตร
PROGESS) โครงการปรบปรงสวนตอขยายผปวยใน โรงพยาบาลธนบรบำรงเมอง ขนาดพนทโครงการ 5910 ตารางเมตร
THONBURI BUMRUNGMUANG HOSPITAL (IN

THONBURI BUMRUNGMUANG HOSPITAL

หองพกแพทยบนชนบนสดของอาคาร FACADE DESIGN และทางเชอมอาคารเดม รวมออกแบบ, จด ZONING, เลอกวสด, ออกแบบ LIGHTING,ทำ 3D RENDER, DRAWING PLAN,ปรบ SHOP DRAWING
ELEVATION DESIGN

PROJECT HOUSE SCENE 01

HOUSE FRONT SIDE MAKING DESIGN SCENE HOUSE DESIGN

THONBURI BUMRUNGMUANG HOSPITAL

LIVING AREA SCENE

LIVING AREA DESIGN

THONBURI BUMRUNGMUANG HOSPITAL

DINING AREA SCENE

DINING AREA DESIGN

PROJECT ROOM STUDIO APARTMENT SCENE 02

MAKING DESIGN SCENE ROOM STUDIO DESIGN

LIVING AREA RENDER SCENE

PROJECT ROOM STUDIO APARTMENT SCENE 02

BEDROOM DESIGN

BEDROOM RENDER SCENE

FINISH MY WORKS IN 2023 THANK YOU

Turn static files into dynamic content formats.

Create a flipbook
Issuu converts static files into: digital portfolios, online yearbooks, online catalogs, digital photo albums and more. Sign up and create your flipbook.