SUMMER ROGERS
I N T E R I O R D E S I G N
TEXAS TECH
UNIVERSITY
2022 -2024
PORTFOLIO

![]()
TEXAS TECH
UNIVERSITY
2022 -2024

My name is Summer Rogers and I am in my third year of the Interior
Design program at Texas Tech University I am originally from Dallas, Texas where I found my love for art and design My interest in the field stems from a passion to create sustainable and well designed spaces that help make life easier for their occupants
Texas Tech University
Bachelor of Interior Design
Expected Graduation: May 2026
Buckle
Lubbock, Texas
Retail Sales Associate | May 2023 - September 2024
Learned how to greet guests and make professional light conversation
Learned how to organize and remember each guests needs
Kept a clean and neat work environment
Learned how to handle multiple guests at one time
Seven Mile Cafe
Highland Village, Texas
Hostess and Food Runner | November 2021 - January 2022
Plated and prepped food for the kitchen
Served food to tables in a timely manner
Learned how to operate in a fast paced environment
Took guests to tables
Good Samaritan Society
Denton, Texas
Certified Nursing Assistant | June 2021 - August 2021
Cared for up to 18 patients a day
Learned how to manage time affectively
Learned to handle stressful situations with a good attitude
Organized and monitored patient treatments and schedules
214-808-9597
snrogers07@gmailcom
Dallas, Texas | Lubbock, Texas
https://www.linkedin.com/in/s ummer-rogers-id/
AutoCAD
Revit
Enscape DIALux
Canva
Adobe Creative Suite
Hand Drafting
Space Planning
IIDA Member
Certified Nursing Assistant
CPR Certified
Presidential Merit Scholarship

Headquarters
Monrovia, California
Commercial
December 2024
Skills used: revit and enscape
Proj
Trader Jo with the first flo shopping will pers employe
The conc energizes lively tro it an invi atmosphe fostering home-like satisfact shoppers









project will involve collaborating with Russian Ambassador Anatoly Antonov to design his 0 square foot residence in Bethesda, Maryland outside of Washington D C The client sts that the space be high-end and luxurious with the intent to host events It is also tant to include timeless features to make the home more equipped for re-sell and add value future Ambassador Antonov will be living in this home with his adult daughter They sted a large kitchen, a garden, and a space to host frequent events His daughter has also d for a screening room to enjoy movies with their friends The space must also take inspiration Russian culture to make the Ambassador and his daughter feel more at home
looking at this home, you will see that it incorporates a mix of classic Russian interiors and end features It will have luxurious dark wood in the floors and furniture, as well as red nts in upholstery, rugs, and artwork For this project, The home’s atmosphere will reflect the of classic Russian literature The warm tones will be reminiscent of the pages in the books erious air of the spaces will be professional, while also reflecting the deep tones in many an novels With plenty of secondary and task lighting, the rooms will be inviting and cozy the ct place to read the books that this home is inspired by These elements will make the space igh end and luxurious
Not To Scale
A Foyer

While preparing this project, I wanted to be sure to give the ambassador and his daughter enough room to have their own private spaces while also making the home flow nicely I accomplished this by giving the daughter her own separate space upstairs with a large balcony to keep the area connected with the rest of the house
B Screening Room
C Sitting Room 1
D Living Room
E Dining Room
F Kitchen
G Butler’s Pantry
H Wine Cellar
I Primary Closet
J Primary Bedroom
K Primary Bathroom
L Office
M Library
N Guest Bedroom
O Guest Bathroom
P Utility Room
Q Garage
R Powder Room
In Russian culture, it is common to host large family gatherings that last hours To keep with this tradition, I wanted to make the living room, dining room, and kitchen open to make socialization easier A dual sided fire place sits in between the living and dining room to uphold the open concept with out sacrificing a cozy feel



Not To Scale
A Daughter's Bathroom
B Daughter's Bedroom
C Daughter’s Closet
D Sitting Area 2








Bubble Diagram Key






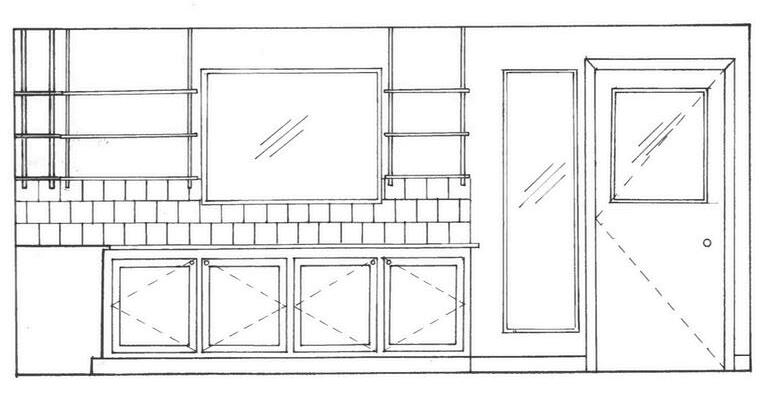
Hand Rendered Primary Bathroom Elevation

Not To Scale
Primary Bathroom Elevation

Not To Scale

