October 2025 STRUCTURE

Page 1


• Concrete Repair Mortars

• Corrosion Protection

• Construction Grouts

• Waterproofing

• Sealants and Joint Fillers

• Coatings and Sealers

• Epoxy Adhesives

• Cementitious Flooring Systems

• Cure and Seals

• Densifiers

• Structural Strengthening Products

• Precast

• Epoxy Adhesives

Visit www.mapei.com/us for details on all MAPEI products. Your single-source

MAPEI offers a full range of products for concrete restoration, waterproofing and structural strengthening. Globally, MAPEI’s system solutions have been utilized for such structures as bridges, dams, tunnels, highways, parking garages, stadiums and high-rises.

Your Masonry Retrofit and Restoration Partner

PYTHON’s masonry anchoring systems are backed by the strictest ICC-ES evaluation standards, purposely engineered with proven seismic performance.

The anchoring systems are 5x faster and 1/3 the cost of adhesive anchors to install.

Tension and shear design capacities comparable to adhesive anchors.

structural MASONRY connections

Re-thinking 22.5° Angled Adhesive Anchors in URM Retrofits

Comprehensive research challenges long-held assumptions in maso nry anchoring practice.

Ajoint US-New Zealand study* has revisited the longstanding use of 22.5° angled adhesive anchors in unreinforced masonry (URM) retrofits. Over 500+ tension tests were conducted on varied masonry substrates, with findings that question accepted global practice.

Load Transfer Mechanism

Straight adhesive anchors mobilize uniform bond stresses and sustain tensile loads. Anchors installed at 22.5° tended to straighten under demand, causing local masonry crushing and progressive bond deterioration. These findings have been further validated in large-scale site test programs, including some of North America’s most significant retrofit projects.

Multi-Whythe Brick Wall

Engineering Practice Implications

• 25% tension capacity reduction angled vs. straight anchors.

In addition to impacts of angled installation, this study highlighted the significance of more well-known adhesive anchoring risks:

• 45% reduction due to poorly cleaned holes.

• 74% reduction due to insufficient adhesive volume.

• Larger Ø1” anchors performed worse than Ø5/8”, primarily due to brick splitting caused by larger diameter.

The Way Forward: Mechanical Anchors

These results highlight the need for rethinking retrofit anchoring strategies in URM buildings.

Mechanical anchoring systems provide a reliable alternative for seismic retrofits and other structural applications, avoiding the variability of bond-dependent adhesives.

Straight-installed, seismically rated anchors—such as Ø5/16” PYTHON MT Fasteners (ICC-evaluated, available in lengths up to 4 feet) deliver dependable capacity without reliance on bond quality, adhesive volume, or substrate preparation. This shift offers engineers a robust solution for URM retrofits where reliability and seismic performance are critical.

Capacity, Stiffness, and Failure Modes

Angled anchors exhibited up to 25% lower tensile capacity and stiffness than straight anchors. Failures were dominated by bar straightening and crushing of the surrounding masonry. Post earthquake surveys and supplementary pull-out tests further confirmed pre-mature pull-out behavior.

Effect of substrate preparation & adhesive volume on anchor performance
PYTHON MT mechanical anchors application examples

STRUCTURE

CIRCULATION

subscriptions@structuremag.org

EDITORIAL BOARD

Chair John A. Dal Pino, S.E. Claremont Engineers Inc., Oakland, CA chair@STRUCTUREmag.org

Kevin Adamson, PE Structural Focus, Gardena, CA

Marshall Carman, PE, SE Schaefer, Cincinnati, Ohio

Erin Conaway, PE AISC, Littleton, CO

Sarah Evans, PE Walter P Moore, Houston, TX

Linda M. Kaplan, PE Pennoni, Pittsburgh, PA

Nicholas Lang, PE Vice President Engineering & Advocacy, Masonry Concrete Masonry and Hardscapes Association (CMHA)

Jessica Mandrick, PE, SE, LEED AP Gilsanz Murray Steficek, LLP, New York, NY

Brian W. Miller Cast Connex Corporation, Davis, CA

Evans Mountzouris, PE Retired, Milford, CT

Kenneth Ogorzalek, PE, SE KPFF Consulting Engineers, San Francisco, CA (WI)

John “Buddy” Showalter, PE International Code Council, Washington, DC

Eytan Solomon, PE, LEED AP Silman, New York, NY

EDITORIAL STAFF

Executive Editor Alfred Spada aspada@ncsea.com

Managing Editor Shannon Wetzel swetzel@structuremag.org

Production production@structuremag.org

MARKETING & ADVERTISING SALES

Director for Sales, Marketing & Business Development

Monica Shripka Tel: 773-974-6561 monica.shripka@STRUCTUREmag.org

Sales Manager Audrey Schmook Tel: 312-649-4600 Ext. 213 aschmook@ncsea.com

LIGHTING AN ICON

The bridge's new lighting system had to integrate seamlessly with existing bridge structures, withstand the coastal environment, and meet a demanding design schedule ahead of the 2025 Super Bowl.

FEATURES Contents OCTOBER 2025

ACCELERATED CONSTRUCTION OF AN UNBRACED NETWORK

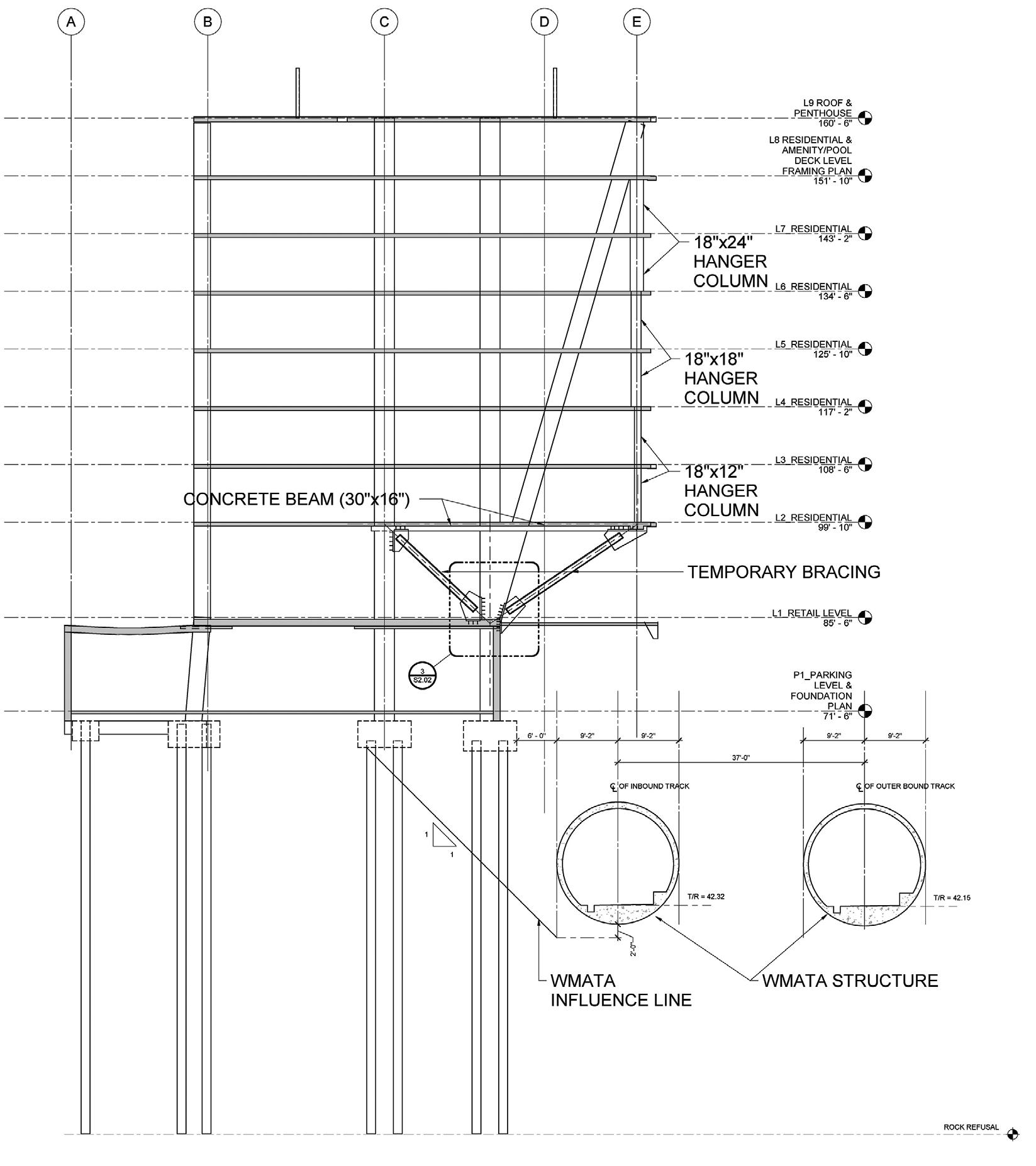
GETTING THE HANG OF IT

The design for the Langston, a nine-story mixed-use residential project in Washington, D.C., involved engineers suspending part of the building above WMATA’s active Green Line Metro tunnels using hanging concrete columns supported from the roof.

VIADUCT DAMAGE ASSESSMENT AFTER THE 2023 EARTHQUAKE IN TURKEY PART 2

Five viaducts along the Tarsus-Adana-Gaziantep Highway in southern Turkey were damaged by the 2023 Mw 7.8 earthquake. Damage assessment and the seismic retrofit design for three of those viaducts are shared here. The other two were covered in Part 1 in the September issue.

MORE PRODUCT SOLUTIONS FOR THE MASS

TIMBER MARKET

TOMORROW’S ENGINEERED WOOD - TODAY!

• Cutting-Edge Equipment: New 48” technologically advanced glulam press and lay-up system.

• Versatile Production: Widths produced range from 2-7/16” to 10-1/2”, while depths range from 3-1/2” to 35-3/4”.

• Expanded Size Options: Finished Glulam Sizes up to 10 ½” x 35 ¾” x 60’.

• Diverse Applications: Available in various appearance classifications and strength grades for Commercial, Industrial, and Residential applications.

• Superior Quality: Manufactured with superior strength southern yellow pine MSR Lumber.

• Sustainability: Sustainable Forestry Initiative (SFI®) is certified for environmentally conscious projects.

COLUMNS and DEPARTMENTS

Brian Lassy, EIT, and Alexandra Hain, Ph.D,

Mosier, PE, Ph.D, and Erin Conaway,

Jeannette Torrents, PE,

Alastair Soane, David MacKenzie, and Dave Watkins

FUTUREPROOF

New construction architecture requires special consideration for the inevitability of future upgrades. That’s why modern construction projects need hanging solutions that are built for speed, versatility, and adaptability to ensure quick and seamless renovations.

To help meet that challenge, Vulcraft-Verco has developed the PinTail Anchor, an innovative hanging solution that works exclusively with our Next Generation Dovetail Floor Deck, and are specifically designed to futureproof today’s construction projects for tomorrow’s renovations.

Component analysis & design

Code updates

Yes - over 50 modules for wood, steel, concrete and masonry components

We find them, we update them

Professional output with graphics, consistent module-to-module output

Low — user-friendly tabular inputs and Help Manual documentation with explanations for the underlying assumptions and code provisions

Industry-standard trusted by 65,000 engineers

No — you create manual calculations from a blank spreadsheet YOU DO IT ALL to every spreadsheet

Manual formatting needed

Higher — reliant on manual formulas, no built-in validation tools, user-dependent accuracy

Varies — generally accepted with rigorous set-up, but not a dedicated structural engineering tool

Building a Profession, Building a Foundation

When I look back on my career as a structural engineer, I can point to one defining moment that set everything in motion. As a college student, I sat in a concrete design class and, almost instantly, felt something click. I knew concrete was an important material in building construction, but now I recognized that I wanted to be the person who designed concrete for its many uses. I had always excelled in math and science, but that day was different—it was my “aha” moment. From then on, I never doubted that structural engineering would be my chosen career.

After college and throughout my career, I was fortunate enough to encounter mentors at nearly every stage. These were not formal mentorship programs; instead, they were individuals who took the time to guide me, answer my questions, and push me to think critically about my work. Their advice often came in the form of quiet nudges rather than grand gestures, yet the impact was profound. I will always be grateful for those relationships because they developed not only how I practiced engineering but also how I learned to mentor others.

In 2019, NCSEA created a Foundation with the purpose of supporting Innovation, Advocacy and People in structural engineering. This foundation allows structural engineers to focus on all aspects of the profession, not just the technical.

Throughout my career, innovation often appeared most vividly in my forensics work. When a building is damaged, no textbook exists to provide the answer. I had to rely on my technical knowledge, creativity, and judgment to craft solutions in unique and challenging circumstances. The NCSEA Foundation embraces that same spirit of innovation, not only by encouraging creative problem-solving, but also by reaching beyond the profession. The Foundation’s We SEE K–12 outreach program introduces students to engineering at an early age, showing them that structural engineering is both technical and imaginative. By introducing

the profession in classrooms, we plant the seeds of innovation in the next generation. Advocacy lies at the core of the Foundation, it ensures that our profession has both the recognition and the authority it deserves. My effort to establish a structural engineering license in Florida required learning an entirely new skill set: the legislative process. That experience showed me that advocacy does not stop at the office or the job site; it extends into the halls of government, where we must champion strong standards that protect the public and elevate our profession. The Foundation continues this work by educating communities nationwide on the importance and value of licensure, reinforcing accountability as the cornerstone of structural engineering.

After more than 45 years in structural engineering, I view our role as creating opportunities for others to see themselves as essential contributors to the profession’s growth.

At the same time, structural engineering has always been about people. Whether working with clients, collaborating with teammates, or coordinating with contractors, our success depends as much on communication and trust as it does on technical expertise. The NCSEA Foundation embraces this truth by creating environments where engineers can collaborate, connect, and grow. Through programs that link mentors with mentees, educators with students, and practitioners with the public, the NCSEA Foundation strengthens not only individual engineers but the profession. By awarding scholarships, engaging classrooms, and involving licensed professionals, we ensure that people remain at the center of every project, and every mission we pursue.

Perhaps the best way to explain why the Foundation’s purpose matters is to share a

personal story. Early in my career, I didn’t see the value of participating in professional organizations. To be honest, it wasn’t encouraged by my employers at the time. For years, I held back, thinking I had nothing meaningful to contribute.

That changed as I matured, and with the encouragement of later employers, I joined both FSEA and NCSEA. I learned how the organizations worked, gradually took on leadership positions, and eventually served in every officer role. To my surprise, I found that I not only belonged but also had the ability to make a difference. That realization was transformative. Today, after more than 45 years in structural engineering, I view our role as creating opportunities for others to have that same realization, to see themselves as essential contributors to the profession’s growth.

The NCSEA Foundation is poised to provide the people, resources, and vision to take structural engineering to heights we never imagined possible. It is not just about what we build, but about the legacy we leave: a stronger profession, a more informed public, and a new generation of engineers inspired to carry the torch forward.

That is why the NCSEA Foundation is not only professional to me, but also personal. It reflects my journey, my mentors, my lessons learned, and my hopes for the next generation. It reminds me that the same “aha” moment I felt in that college classroom is possible for thousands of students yet to discover their purpose in structural engineering. ■

Thomas A. Grogan Jr., PE, SE, F.ASCE, is the current president of the NCSEA Foundation Board. He also served on the NCSEA Board of Directors and with the Florida Structural Engineering Association.

structural INFLUENCER

Avery Bang

Avery Bang leads the social entrepreneur fellowship program at the Mulago Foundation, which funds organizations that tackle the basic needs of the very poor. Prior to that, she was the CEO of Bridges to Prosperity, which built trail bridges that connected over 1.4 million people to essential health care, education, and economic opportunities. With an MBA from the Saïd Business School at the University of Oxford, an M.S. in geotechnical engineering from the University of Colorado Boulder, and a B.S. in civil engineering and studio art from the University of Iowa, Bang has been combining her technical and entrepreneurial skills to find and build solutions to poverty worldwide. She is also an active public speaker and was featured in the IMAX film, Dream Big

STRUCTURE: While your career has taken a different path overall, you started out in a traditional civil engineering program. What inspired you to study/pursue engineering in the first place?

Avery Bang: I was inspired to study engineering because my dad is a civil engineer, and we would visit public works projects for holidays. It was less the destination and more about the journey. Some of my biggest heroes are folks who had the creative mind to imagine a bridge or building that didn’t exist yet. It was quite a natural choice for me to study civil engineering.

STRUCTURE: What inspired you to start Bridges to Prosperity? What was it like getting started? Can you tell us about your first projects/challenges bringing the organization to life?

Bang: I was living in Fiji when I was 20 years old in a study abroad program and was really confronted with what life is like for people without access.

Specifically, when I was volunteering with organizations going outside of the city, we always would end up walking, and often we’d eventually hit a river that we could or could not pass just based on the river height that day. So, experiencing firsthand what it was like to be isolated, to not be able to get to where I wanted to go, made it simple and clear to me that there was a need for trail bridges that didn’t exist. And, being an engineering student, I was not so intimidated by the fact that just because something like a bridge doesn’t exist doesn’t mean it can’t be built.

I started Google searching, “Who designs and builds pedestrian trail bridges and specifically in low-income countries?” I found this amazing organization in Switzerland called Helvetas, who had built 10,000 trail bridges in Nepal with the government and helped build the local private sector around this need. I’m on the Board of Directors now.

For my honors project for my undergraduate engineering program, which became my master’s thesis in geotechnical engineering, I looked at how could you standardize trail bridge design with a very low cost?

This became a passion project that turned into a career for me. Ultimately it led me to Bridges to Prosperity.

In many countries, we’ve become a R&D support system for their Department of Transportation around the world by saying “Hey, let’s standardize trail bridge design, let’s standardize construction

methodologies, let’s standardize our quality processes for procurement and also for construction, etc. And let’s make it so this is so easy.”

STRUCTURE: How did you earn and foster cooperation from governmental groups and the local populations?

Bang: Good technical projects are not just a “drop in and do something” type of venture. We had to have the patience and the right team in place to sit in partnership and in collaboration with countries around the world and say, “What are your asset needs? Where do you want people to be going? How would you prioritize access? Will you put money in?”

It became a very core part of what we do, which is government has to be at the table from day one picking where, deciding what because they will be providing much of the funding.

We bring in a lot of people from around the world to make the system work, but local engineers have to be able to design the bridges and local contractors have to be able to build it with local materials. We are strengthening and training a system which is meant to exist without foreigners.

STRUCTURE: Of all the projects you have worked on, would you describe the one or two that you are most proud of and why?

Bang: My most proud project was probably my first ever bridge in the Andean Mountains of Peru in a town called Yavina. It gave me a deep sense of purpose. I had the vision, but this was the first time it became real. When I arrived, the local population could not get across the water safely. And when I left, kids were going to and from school daily using the bridge. That sense of satisfaction and life purpose has remained for every project after and has continued to strengthen my belief that it is a human right to be able to move to where you need and want to go.

Before, the people in Yavina would take these braided vines they found on the hillside, and they would make these really long ropes. For the dry season, you could anchor one side of this

braided vine under big boulders and then have kind of a swinging bridge that you’d walk across like a tight rope. But during the rainy season, those braided vines get washed away. For 40% of the population—for over half of the year—they weren’t in school, they weren’t going to the market if they’re a farmer, they were not able to get seeds. They weren’t able to sell. It was just a very different quality of life.

To get there, our group had to fly into Cusco, drive five hours into the mountains, and then walk three hours in. For every piece of timber, bag of cement, piece of rebar that got dropped off, it was a three-hour hike by this chain of local guys willing to do it because they knew it was going to change life for their kids.

As a bridge engineer, I recognize it may be an unimpressive structure, but the impact to life is wildly impressive.

A second project which is visually more interesting is over the Blue Nile in Ethiopia, and this was the project that I wrote my master’s thesis on.

The structure is about 100 meters in length and connects 10,000 people between the regions of Gondar and Gujarat, Ethiopia.

The project came together for me as someone who finds a lot of joy in the built environment. It’s a cable suspended structure on the hillsides of this cavernous ravine. Seeing people and cows and motorcycles and everything going across this bridge in Ethiopia a couple years later was also a pretty big career highlight for me.

STRUCTURE: Talk a bit about your experience appearing in the film Dream Big. How has this unique platform changed your path or

approach to outreach? What went into the decision to be in the film?

Bang: When I first got the phone call from the producers and they talked about a film that would be in every IMAX theater around the world and targeted at getting young people into STEM careers, I immediately said yes.

We decided to go to Haiti to film, but there’s no electricity in this part of the world where we were going to be working and these guys have these cameras and tons of battery packs. And there’s eleven people.

It was a harrowing experience to make sure that we had all the bits and pieces lined up and on schedule because you can’t really back out when there is a crew coming who are using plane, trains, and automobiles to get to this rural site in Haiti.

We wanted them to see the important parts, like how do you get cable across the river when the cable itself weighs more than a car and you only have people?

How do you erect a 50-foot steel tower without heavy machinery?

How do you lift the cables up and over those towers?

How do you tension that and get that perfect little chamber?

We are world class at helping local folks build these things, but we felt a lot of pressure knowing the film budget for that segment was more than the actual cost of building the bridge.

But it was a total joy to be involved and to get to know some of the other folks in the film when we toured across the country as the film opened.

It was an opportunity to be part of something that has a legacy well beyond certainly anything I will ever do.

Inspired by her experiences as a student in a study abroad program in Fiji, Avery Bang launched Bridges to Prosperity to help give communities access to needs like schools and medical services.

STRUCTURE: In your current position with the Mulago Foundation, how does your engineering background influence and help the work that you’re doing now?

Bang: The reason I joined the Mulago Foundation is many people around the world have big ideas, but they need help with their strategy and with financing and many of those big ideas circle around something technological, whether it’s electric micro grids in Nigeria and figuring out a way to engineer off-grid community solar or whether it’s a water organization in

Rwanda thinking about how to unlock a public water utility.

I’m constantly intersecting and interact ing with engineers and people who, even if they are not technically engineers, they are designing and building organizations that rely on engineering solutions. The Mulago Foundation’s finding those people, accelerating them, and helping them go big. Bridges to Prosperity was part of the Mulago Foundation Fellowship. I was a fellow at Mulago, which was the organization that helped make it clear to go big with

this idea. Mulago helped us understand we have to get governments involved because they are the owners and the managers of assets, and contractors in a local context because they are the ones that are really going to be able to build tens of thousands of bridges.

Mulago is a great home for me and something I’m really excited about helping other engineers and technical people around the world bring their ideas to their full potential.

STRUCTURE: What advice would you give to someone looking to break out of the traditional engineering path while still utilizing those skills and background?

Bang: Stay in the profession. I think we lose too many great people. And the reason we lose so many great people is that we are trained not only to identify problems, but to solve them. Having a technical engineering background is the world’s biggest door opener. You can do anything. You can go into tech, or you can totally pivot and be in business. Engineering is just a really important precursor to interacting with the world at large, with a lot of transferable skills.

Despite the pull of other career paths, I wish people would stay in engineering more.

Avery Bang’s work building a bridge in Haiti was featured in the IMAX film, Dream Big

STRUCTURE: In terms of your legacy, what do you think you will be remembered for?

Bang: I’ll probably always be remembered as ‘the bridge girl.’ But what I’d like to be remembered for is influencing the next generation to be in technical creative careers. I hope to be remembered as one of the women who stood on the shoulder of other giants before me and helped the next generation see what they could be. I think you can’t be what you can’t see. And if there’s more people that looked like me when I was looking up, I think I would have had an easier time. And I think that the folks that come behind me and other women in the field are going to have an easier time.

I just hope to be one of the many women that help inspire the next generation to take this profession seriously and be excited about it.

STRUCTURE: We all have mentors and people who helped us be successful. In closing, who would you like to thank and why?

Bang: I’ve got a bunch of them, but Elie Homsi is on my short list. He was an executive at Flatiron Construction. When I first walked into his office at age 22 and told him I thought that contractors here in America should help poor people in Nicaragua, he took a meeting with me.

He became not only my board chair for Bridges to Prosperity, but also my biggest champion. Elie helped me believe that anything was possible and if I had the confidence and backing of good, smart people, that would keep me out of trouble and we really could move mountains together.

Another person who comes to mind is Scott McNary, of McNary Bergeron, which is an important bridge construction engineering outfit out of Colorado. When I walked into Scott’s office, also around the same time, he told me, you’re going to need to be surrounded by professionals. He gave me office space and let me and my small engineering team come to them with any and all questions. That support was remarkable. Jeremy Johanneson, who is a partner at McNary Bergeron, also was helpful by diving into the details. Scott and Jeremy are world class bridge engineers, and working with them built my confidence that I can bring really smart people together to build something great. ■

Want to nominate someone for Structural Influencer? Reach out to John Dal Pino, STRUCTURE Editorial Board Chair (chair@ structuremag.org)), and Shannon Wetzel, Managing Editor (swetzel@structuremag.org), with your suggestion. The Structural Influencers series focuses on mid-career professionals who can serve as role models for others.

While with Bridges to Prosperity, Avery Bang helped connect 1.4 million people in over 20 countries, including Nicaragua, above, and Ethiopia, below.

When Good Labor is Short, When Good Labor is Short, Why Not Make the Job Easier? Why Not Make the Job Easier?

Joist Grip Framing Clamp System

Support your rooftop loads in uplift and download conditions. The distributed load capacity of 4,000 lbs per complete system makes the Joist Grip Framing Clamp System the ideal support for rooftop unit installations.

Pipe Header System

Hanger Clamps, rated for 1,000 lbs each allow hanging of equipment below the roof deck while utilizing the ability of the Framing Clamps to distribute the load to panel points on the top chord of the bar joist.

Suspension Clamp System

Panel Point Bridge

Utilize the Panel Point Bridge to safely suspend HVAC equipment, conveyors or other ceiling fixtures without welding or drilling using the Suspension Clamp System.

Upper Deck Fall Protection System

Using corrugations in the standard roof deck, the Upper Deck Fall Protection Anchorage System easily clamps to the top chord of the bar joist or wide flange support.

Ultra-High Performance Concrete Invert Linings

UHPC provides a competitive structural rehabilitation option for infrastructure, and with continued research and refinement, it could become a standard tool in the culvert rehabilitation toolbox.

Culverts are the often hidden pieces of infrastructure tying together the paths of nature and man. The U.S. has over 147,000 culverts classified as bridges due to their role of carrying waterways beneath roads and highways across the country. These passages are critical for allowing rivers to flow, fish to migrate, and storm water to drain unimpeded. However, rushing water and rough silt can cause severe deterioration of the invert on a culvert that is otherwise structurally sound. One of the most prominent issues for corrugated metal pipe (CMP) culverts is deterioration of the base, or invert. Although their out-of-sight location makes them unobtrusive to traffic, it also complicates inspection, repair, and replacement. Frequently buried deep under a roadway, replacement necessitates road closure, redirection of the waterway, and often expensive excavation. As such, robust rehabilitation methods for a variety of site conditions must be available to restore the capacity and functionality of culverts while minimizing cost and disruption to travelers.

While traditional repair methods are plentiful, they each come with their drawbacks. These methods include concrete invert lining, shotcrete coating, and grouted slip lining. Invert linings limit rehabilitation to the base of the culvert where most deterioration occurs. Typically, 3-6 inches of reinforced concrete must be placed to restore the structural capacity of the culvert and provide enough cover for reinforcement. This method has its drawbacks: the thickness of the

concrete can change the hydraulic properties of the culvert, which not only affects sedimentation, but also wildlife passage through the waterway. Shotcrete coating has similar limitations, as it has comparable strength to traditional concrete and requires similar thickness of final material to achieve full composite action, but has the advantage of faster application by directly spraying the culvert surface. Grouted slip lining works by inserting a smaller diameter culvert pipe into the deteriorated culvert along the entire length, then pumping grout in between the two culverts to ensure a stable structure.

Nationally, 45% of all culverts are classified as being in fair or poor condition. This percentage increases to 56% for corrugated metal pipe culverts, increasing to 69% in New England.

A promising new material for culvert rehabilitation is ultra-high performance concrete, which has gained recent attention in the structural engineering community for rehabilitation projects. In a partnership between the Connecticut Department of Transportation (CTDOT) and the University of Connecticut (UConn), several methods of placing UHPC invert linings for CMP culverts were tested. The project was developed to support the rehabilitation of Bridge No. 06537, an ellipsoid CMP culvert in Wallingford, CT. It was constructed

A common issue for corroded metal culverts like this one in Wallingford, CT (left) is sediment buildup and lining deterioration (right).

What Is UHPC?

Ultra-high performance concrete (UHPC) is a cementitious composite material characterized by its dense aggregate matrix, a water-to-cement ratio below 0.25, and the inclusion of internal fiber reinforcement. Compared to traditional concrete that has a compressive strength in the range of 3,000 to 6,000 pounds per square inch and negligible tensile capacity, UHPC has a compressive strength exceeding 17,500 pounds per square inch and post-cracking tensile strength greater than 750 pounds per square inch. The post-cracking tensile strength is largely due to the integration of small-diameter steel fibers within the mix which reduce the need for conventional rebar reinforcement. UHPC also boasts exceptional durability, as its dense microstructure and low permeability significantly enhance its resistance to environmental degradation, including freeze-thaw cycles, chemical attacks, and abrasion. The high strength and durability make UHPC an excellent candidate for low-profile repairs.

in 1965 and lies underneath the Warton Brook connector, which connects CT Route 5 and Interstate 91 and carries an average daily traffic of 15,300 vehicles per day. The culvert is 15 feet tall, 13 feet wide and 262 feet long. It is constructed from 7-gauge galvanized steel with corrugations that have a 6-inch pitch and a peak-to-valley depth of 2 inches. The 2022 inspection report categorized this bridge as structurally deficient due to the level of deterioration present on the structure, with approximately 40% of the asphaltic coating experiencing erosion along the entire length of the culvert, concentrated at the bottom of the culvert at and below the waterline. Due to fish migratory patterns and a desire to limit downstream water surface elevations for the 100-year storm surge, it was a priority to minimize the profile of the rehabilitation. This ruled out grouted slip lining or traditional concrete invert linings. UHPC was selected as a long-term repair solution, as it can be cast at only 2 inches thick, required no structural rebar, and would act as both a structural rehabilitation as well as a protective coating for the invert.

The UConn research team worked closely and quickly with CTDOT to design and test several mockup culverts to closely represent the dimensions present on Bridge 06537. Two 12-foot culvert sections were constructed using curved segmental galvanized steel to allow for a total of four UHPC invert pours, each extending 6 feet along the length of the culverts. Following construction, 5 by 5-inch, 10 gauge (0.1 inch) steel wire grid was welded into the inverts along the entire length of the culverts to act as a mechanical connection between the cast-in-place UHPC and the underlying steel. Two top-formed UHPC inverts, one shotcrete UHPC application, and a thixotropic UHPC mix were tested to provide CTDOT with several alternatives for the rehabilitation.

The two top-formed invert casts used a traditional self-leveling UHPC mix, batched on-site in a ready-mix truck. The first cast used a wooden formwork with curved plywood and dimensional lumber applying a radial stress to the plywood. This proved unsuccessful due to the uplift pressure from the UHPC splitting the top pieces of plywood away from the side bulkheads. The high density and flowability of UHPC can create an uplift pressure of 1 pound per square inch for each foot of head, totaling several thousand pounds of uplift force over the surface of the formwork. The issue was resolved in a second cast using engineered steel formwork with trusses braced against the

culvert walls. A single curved steel plate was reinforced with a welded truss and held down with braces and brackets. In theory, this would allow it to be modular, since it is not directly welded to the culvert. The braces could be removed, the form slid further into the culvert, and braces reinstalled for segment casts. However, during casting, a small amount of UHPC spilled over the edge of the truss and bonded it in place, making demolding very difficult. The entire truss had to be cut apart and folded inwards with winches before being lifted out with a telehandler. While demolding was difficult, a very consistent 2-inch thickness was achieved, marking this method a successful option for future use with the caveat of ensuring UHPC does not spill over the top of the form.

Two new methods of casting UHPC were also tested in this project: thixotropic and shotcrete. Both are desirable as they eliminate the need for formwork and can be shaped to the culvert without significant labor but have not been successfully used for culvert rehabilitation in the United States to date.

The shotcrete UHPC cast was conducted under the close supervision of the material supplier, with all aspects of the process controlled by representatives from the supplier. A custom mixing station and pump were used to minimize loss of moisture in the UHPC between mixing and casting, and the concrete was dispensed from a hose operated by a representative of the company. Despite several hours of effort, the shotcrete method could not achieve the desired 2-inch thickness due to poor flow characteristics after pumping. Thin layers were sprayed on to the base steel, supported by integral steel fibers and the welded wire mesh previously installed in the culvert. After the first layer, however, subsequent layers ran down and began pooling in the base of the culvert. After several layers could not stack up, casting was suspended, and this method was considered unready for use in a real project.

The final mix tested was a thixotropic UHPC, with chemical admixtures added to reduce flowability and accelerate setting time.

A standard, low viscosity UHPC was mixed in a ready-mix truck, as was previously done for the top-formed casts, but following initial mixing, it was poured into a smaller planetary paddle mixer for the addition of admixtures. After the admixtures were added, the UHPC was manually transported in buckets to the culvert and poured by hand, where it was troweled. Although troweling was time-consuming and required significant effort to achieve a smooth finish, a consistent thickness was eventually achieved, and a successful invert was cast. This method required minimal preparation beyond the installation

The UConn research team built test culverts to scale for their study on the optimal way to place UHPC linings.

of wire mesh, which was required for all casts. The mesh served the additional purpose of holding the UHPC in place after casting, and it is recommended to ensure a mechanical bond between the UHPC and underlying culvert.

The proposal for a UHPC culvert repair has been considered for a long time, with tests for a sprayable UHPC being conducted in Florida. This study marks one of the first that directly compared the ease of construction of different UHPC casting methods for invert repair, as well as directly leading to the first large-scale culvert rehabilitation with UHPC in the United States. Following the success of this mockup project, a thixotropic UHPC mix was selected for the rehabilitation of Bridge 06537 in Wallingford CT. Although the UConn trials showed a steel top form as creating the best and most consistent surface and thickness, the time it took for engineering design of the formwork, construction for modular re-use, and demolding were found to be impractical for

Thixotropic UHPC has been used in various highway deck overlays and precast deck panel closure pours. A less flowable mix allows contractors to place the concrete on a grade without any top forming, significantly accelerating bridge construction and rehabilitation. However, closure pours and deck overlays are typically within a 2-5% grade, while casting an invert lining requires up

solution to the problem of CMP deterioration in the United States, particularly for locations with limited access or restrictions on a culvert’s capacity. As infrastructure owners seek long-term solutions with reduced lifecycle costs, UHPC provides a competitive structural rehabilitation option with minimal thickness, multiple application methods, and excellent resistance to a corrosive environment. For practicing engineers, this work highlights the importance of material behavior under field conditions and the need for iterative, full-scale validation when deploying advanced materials. With continued research and refinement, UHPC has the potential to become a standard tool in the culvert rehabilitation toolbox—ensuring the resiliency of our infrastructure without compromising ecological or hydraulic performance.■

Full references are included in the online version of the article at

Brian Lassy is a Ph.D candidate at the University of Connecticut researching and developing methods to rehabilitate corroded bridges with ultra-high performance concrete encasement.

Dr. Alexandra Hain is an assistant professor at the University of Connecticut with research focuses on advanced imaging techniques for structural evaluation, bridge repair with novel materials, and large-scale experimental testing.

UHPC offers a compelling

Left: UHPC spills out of wooden formwork due to a split in the formwork. Right: Steel formwork is custom fit to the culvert.
Left: Final thixotropic UHPC invert lining. Right: UHPC invert lining following removal of steel formwork

structural DESIGN

Updated Design Recommendations for Brick Veneer on Cold-Formed Steel Framing

Modifications to BIA Technical Note 28B offer designers more latitude with the deflection of cold-formed steel framing and include a reorganization of content and a change in terminology, with separate sections for material recommendations and detailing recommendations.

In April 2025, the Brick Industry Association (BIA) published a revision to BIA Technical Note 28B - Brick Veneer/Cold-Formed Steel Framed Walls . In addition to the typical minor modifications to reflect current codes and practices, the updated document incorporates more substantial changes to recommendations related to the cold-formed steel framing.

Over time, BIA received questions from designers asking why a difference exists in the BIA recommendations about anchored brick veneer with wood framed backings compared to anchored brick veneer with cold-formed steel backings. Understanding the history of these wall assemblies may help explain why BIA recommendations for a veneer with a backing of cold-formed steel framing were generally more stringent. Until recently, wood framed backings were limited to low-rise applications, typically those associated with single-family homes or townhouses, whereas cold-formed steel framed backings were used in larger multi-family and commercial structures. Other than the difference in application, anchored

brick veneer with wood framing had an established history of good performance while anchored brick veneer with cold-formed steel framing did not.

Anchored brick veneer on a cold-formed steel backing became an option for exterior wall assemblies starting in 1968. The early assemblies were generally similar to the modern version depicted in Figure 1, with a single wythe of brick (nominally 3 or 4 inches thick) mechanically attached to a cold-formed steel framed backing with metal veneer ties spanning a prescribed cavity. Recommendations for the system were developed first by United States Gypsum, but other sheathing and cold-formed steel framing manufacturers also developed their own proprietary versions. The use of the system gained in popularity due to the benefits of early enclosure during construction and reduced weight of the system; however, unsatisfactory performance began to occur, with reports of water leakage, spalling brick, severe cracking, and failed veneer ties.

In general, these early assemblies were highly flexible, with

no requirements for bracing, bridging, or doubled framing at openings. The reported wall assembly stiffness varied significantly per system. In some cases, the designers assumed composite action between the gypsum sheathing and cold-formed steel framing, shared load between the brick and coldformed steel, and included the influence of the brick veneer in the stiffness calculations. Manufacturers’ literature did not require flashing in these early systems and recommendations to incorporate a water-resistive barrier, but only in limited applications, did not occur until 1976.

BIA published its first recommendations related to this system in 1979 and did not have any input to previously published recommendations developed by others. Research programs were developed to better understand the system behavior and to inform recommendations for design and detailing. Results of testing conducted in the early 1980s at Clemson University confirmed the complexity of the system behavior. This confirmation, combined with the proprietary nature of the system that was developed by those outside the masonry industry and demonstrated unsatisfactory performance, led the masonry industry to provide conservative recommendations for deflection. These conservative deflection limits were intended to limit cracking in the brick veneer, as this was the primary means of water penetration resistance at the time.

Changes in BIA Technical Note 28B

BIA Technical Notes contain both requirements and recommendations. Presentation of requirements, such as code provisions, are written in mandatory language while recommendations are identified as such or written in nonmandatory language (“should” or “may”). The intent is to educate and supplement the expertise and professional judgement of the designer who has knowledge of project specific conditions.

Overall modifications to BIA Technical Note 28B include a reorganization of content and a change in terminology. Previously, the “Detailing” section contained the majority of content. The 2025 version contains separate sections for material recommendations and detailing

recommendations. Text that remains the same between the two versions may be relocated to a different portion of the document. BIA also reduced or removed discussion about topics common to all anchored brick veneer wall assemblies or those covered in other BIA Technical Notes, such as movement provisions. With respect to terminology, previous references to “steel studs” were revised to “cold-formed steel framing” for consistency with verbiage used by the light gauge steel framing industry.

Structural Design

The 2025 version of BIA Technical Note 28B expands the discussion of system behavior, including a new diagram illustrating the change in load distribution on the veneer ties after flexural cracking of the brick veneer occurs. Prior feedback from practicing engineers included arguments that the L/600 deflection limit was too restrictive and not appropriate for all projects. BIA reviewed and considered the uniformly applied deflection limit recommendation of L/600 for the cold-formed steel framing. The conservative recommendation of L/600 was intended to compensate for the lack of available research on the wall assembly and the inconsistent performance of the assembly in the field when initially introduced. The value was a compromise compared to other deflection limits under consideration. The more stringent deflection

Notes on the Selection, Design and Construction of Reinforced Hollow Clay Masonry (2023)

Design Guide for Anchored Brick Veneer Over Steel Studs

This design guide, based on the provisions of 2016 TMS 402, was sponsored by Western States Clay Products Association and written by KPFF Consulting Engineers.

The publication was coordinated with the brick Veneer Subcommittee of Western States Clay Products Association Technical Committee.

These books are downloadable from the tab: ‘Publications On Line’

The 2023 update of this publication shows the designer, contractor and user how to construct a building using reinforceable hollow clay units. The presentation is easy to understand and when followed will provide for an attractive, safe and durable design. www.brick-wscpa.org

MASONRY DESIGNERS
Fig. 1. Early anchored brick veneer on cold-formed steel backing is depicted.

limit aimed to constrain the width of any cracks that developed in the brick veneer during service.

At the time of the original BIA recommendations in 1979, avoiding veneer cracking, if possible, or severely limiting the size of cracks served as the primary means of moisture resistance. Such approaches are now less essential given the more robust materials and detailing used within the contemporary drainage wall.

In the paper, “Addressing Maximum Design

Deflection for Cold-Formed Steel Framing When Used as a Backing for Brick Veneer,” part of ASTM STP 1612 Masonry 2018: Innovations in Collaborative Research, Development and Applications, Clark et al, proposed an alternative approach based on an assumed maximum crack width of 0.05 inches in the veneer. Starting with a maximum crack size as the performance criterion and including the mechanical play of the veneer ties, the maximum deflection of the cold-formed steel framing can

be determined. Using this method, deflections up to L/360 in the cold-formed steel framing can be justified. Although a formal determination of allowable crack widths has not been established, available literature suggests the proposed maximum value of 0.05 inches does not impair the structural performance of the veneer. The cracks in question develop in response to lateral loads, which are inherently transient. As such, the cracks are not static and will open and close to varying degrees based on the magnitude of the event.

The changes in the BIA Technical Note 28B are not meant to supersede the existing L/600 deflection limit, but to expand the deflection limit options for designers. Deflections between L/360 and L/600 can be used, as appropriate for the project. Precedent and acceptable performance history for deflections up to L/360 exists. For instance, the National Building Code of Canada historically required a maximum deflection of L/360 for cold-formed steel backings behind anchored brick veneer. However, it decreased the maximum deflection to L/600 or L/720 in the early 1990s based on research results published prior to that period and returned their requirements to L/360 in 2005.

Cavity Detailing and Veneer Ties

A significant change in the 2025 version of BIA Technical Note 28B relates to the size of the cavity and the related requirements for veneer ties. In the 2016 version of TMS 402 - Building Code Requirements for Masonry Structures (TMS 402) , the cavity width prescriptive limit increased from 4-1/2 inches to 6-5/8 inches. This dimension represents the distance between the face of the cold-formed steel framing to the back surface of the brick. The increase in cavity width allowed for the inclusion of additional continuous insulation to meet the requirements of the energy code. In order to support the larger permitted cavity width, TMS 402 included new requirements for veneer ties to be used in cavities between 4-5/8 and 6-5/8 inches in width. These requirements primarily consist of increased sizes for wires and plates used in the veneer ties, which are outlined in the new Table 1 of BIA Technical Note 28B. Detailing recommendations for flashing within the cavity were simplified to

focus on conditions specific to this type of wall assembly and include discussion of mortar dropping collection devices, which have become a common component in the assembly, although not required.

Continuous Insulation

Since the publication of the previous version of BIA Technical Note 28B, the energy code now mandates the use of continuous insulation on the exterior of metal-framed walls for nearly all cases. Insulation placed outboard of the cold-formed steel framing reduces thermal bridging, improving the overall thermal resistance of the wall assembly. Newly added text discusses the requirements for insulation placed within the anchored brick veneer cavity and provides examples of the insulation types commonly used in this application. In addition, BIA Technical Note 28B updated all relevant details to include continuous insulation within the assembly and include new details depicting a stand-off shelf angle, an assembly that allows for support of the brick veneer with less interruption of the insulation.

Parapet Walls

Revisions to the existing text regarding parapet walls removed a recommendation against using cold-formed steel to frame a parapet but added a caution regarding framing such a parapet using balloon or bypass framing due to the difficulty in creating or maintaining continuity of the insulation, air barrier, and/or vapor retarder across the interface.

Cold-Formed Steel Framing

Over the years, engineers specializing in cold-formed steel design provided feedback regarding some of the recommendations in the Technical Note, indicating they were inconsistent with the state of the cold-formed industry. BIA considered this feedback when revising BIA Technical Note 28B.

In general, BIA Technical Note 28B defers to the American Iron and Steel Institute (AISI) and their North American Standard for Cold-Formed Steel Structural Framing (AISI S240)

Read Online Visit www.gobrick.com/resources/technical-notes to download BIA Technical Notes on Brick Construction, including Note 28B referenced in this article. Closing

for the design of the cold-formed steel framed backing. Previous recommendations about welding of cold-formed steel were removed. Requirements from the American Welding Society as outlined in AWS D1.3/ D1.3M Structural Welding Code – Sheet Steel should govern.

Previous versions of BIA Technical Note 28B recommended a minimum G90 galvanized coating on the cold-formed steel framing, which has since been reduced to a minimum G60. Multiple factors contributed to this change, including recommendations for corrosion protection from the cold-formed steel industry, a better understanding of building science principles in the industry, as well as improvements in water-resistive barrier/air barrier materials, installation techniques, certification, and workmanship. However, engineering judgement still applies. BIA Technical Note 28B identifies conditions such as areas of high interior humidity (indoor pools, laundries, kitchens, etc.) and coastal zones, where a minimum galvanizing of G90 may be warranted. Similar conditions requiring G90 galvanizing may also be identified as part of energy modeling or condensation analysis.

Anchored brick veneer with a backing of cold-formed steel framing continues to be a popular choice for exterior wall assemblies. It is hoped that this updated version of BIA Technical Note 28B will continue to serve as a useful resource to designers. ■

Full references are included in the online version of the article at STRUCTUREmag.org .

Cortney Fried is a Managing Senior Engineer at the Brick Industry Association (BIA), where she develops technical reference documents, advocates for the industry in codes and standards activities, as well as assists designers, owners, and contractors with technical inquiries related to clay masonry construction. (cfried@bia.org)

structural ANALYSIS

Risk Mitigation for Bridge Strikes by Large Vessels

This is a shortened version of a Safety Alert published by CROSS (Collaborative Reporting for Safer Structures) and CHIRP (Confidential Human Factors Incident Reporting Programme) Maritime. It will be of interest to the practicing engineer who wishes to understand the risks to our infrastructure from large vessels and how to design relative to this risk. Local and national authorities should be aware of the potential risks so that they can put contingency plans in place.

The Alert was initiated by the Francis Scott Key Bridge collapse in Baltimore in March 2024. It does not aim to analyze that tragic event; instead, it offers a general overview of the measures that can be taken to mitigate the risk of future catastrophic bridge strikes.

The USA NTSB report, “ Safeguarding Bridges from Vessel Strikes: Need for Vulnerability Assessment and Risk Reduction Strategies,” highlights the critical need for proactive measures to protect vital infrastructure. In alignment with these findings, CROSS and CHIRP’s "Safety Alert- Bridge Strikes by Large Vessels," November 2024, identifies similar risks and the urgent necessity for comprehensive risk reduction strategies. This work reinforces the importance of vulnerability assessments and proactive mitigation efforts to enhance bridge safety worldwide.

History of Bridge Strikes by Vessels

Bridges are highly engineered structures, and as a result, major failures are rare. However, when they do occur, bridge failures not only present

a risk to life but also cause significant disruption in road, rail traffic, and shipping. This outage of critical infrastructure has a tremendous economic and societal impact.

The history of bridge collapses due to ship or barge collisions is concerning due to the significant risks involved. Between 1960 and 2015, 35 major bridge collapses occurred worldwide from such incidents, resulting in 342 fatalities.

Types of Bridge and Their Vulnerabilities

Bridge vulnerability to ships depends on vessel size and control. It is impractical to design every bridge to withstand a strike for every vessel traveling at its top speed; so, a risk-based approach is required, as set down

in current international design standards. Typically, a bridge’s open span is defined by the minimum height of the deck above the high-water level and the clear distance between piers. These factors determine whether the bridge is inherently protected by its geometry or if other considerations must be taken into account. Figure 1 illustrates the various potential impact points for a bridge, both at the superstructure and substructure levels.

A bridge’s deck height is determined by natural topological constraints and by the required clearance for traffic beneath it. In the case of maritime traffic, consideration needs to be given not just to the nature of the existing traffic but also for potential future growth.

Changes in maritime traffic will continue to be driven by the waterway upstream of the bridge. The extent of containerization of freight traffic in response to globalization and the relative ease of moving vast quantities of goods over long distances has generated huge changes. The expansion of the Panama Canal ten years ago and the introduction of Panamaxsize container ships to U.S. ports have prompted concern among port authorities with some bridge modifications undertaken to accommodate these larger vessels. This raises risks as vessels of increasing size pass under existing bridges.

Below is a brief overview of increases in size:

• Container Ships: These vessels have experienced the most significant growth. The first purpose-built container ships in the early 1970s carried around 2,400 TEUs (twenty-foot equivalent units). Today, the largest Ultra Large Container Vessels (ULCVs) can carry almost 24,000 TEUs. This rapid increase is reflected in the doubling of the average container ship size over the last decade alone.

• Other Ship Types: While container ships lead the way in size growth, other types of vessels have also seen increases. For instance, between 1996 and 2015, the average container ship size (in deadweight tons) grew by 90%, compared to 55% for bulk carriers and 21% for tankers.

• Physical Dimensions: Initially, increasing ship length was the

primary way to boost capacity. However, since the mid-1990s, the beam (width) of vessels has increased proportionately faster than the length. This has resulted in a doubling of TEU capacity per meter of vessel length over recent years, from 21 to 45 TEU capacity per meter. Modern mega vessels have lengths stabilized around 400 meters and beams of 60 meters. The draught (depth) of these larger ships, however, tends to stabilize around 16-16.5 meters once they exceed 12,000 TEU capacity.

Large span bridge decks over water are primarily designed to resist vertical loading and dynamic effects, such as traffic and wind forces. Designing the superstructure to withstand lateral impact forces from marine traffic traveling under such bridges is impractical. Instead, design philosophy is to ensure that the bridge deck is higher than the tallest vessels allowed in the navigational channel.

Over time, the navigational requirements will change. Therefore, a central part of bridge management is periodically reviewing and assessing changing risks to the structure. These risks will involve ship impact, but other risks should also be considered, such as changes to water levels, road and rail traffic, and the capacity of safety features. Global warming will play an increasing role as sea levels rise, and hence, safe clearance heights diminish. Bridge substructures may appear to be substantial, but they still possess significant vulnerabilities. Substructures are not tolerant of lateral movement, and arresting a ship’s kinetic energy is likely to involve movement and distortion of both the ship and the substructure. Features installed during construction will be proportional to the vessels in use around the bridge at that time. The protection systems need to be regularly reviewed to ensure they remain appropriate for the size of vessels, changes to the navigational demands of the location, and the navigational controls in place.

Design Guidance

In response to past bridge collapses, significant efforts were made to provide codified guidance to bridge engineers. In 1991 in the United

Fig. 1. Impact risks on a superstructure include the steel arch truss and main piers. (Illustration courtesy Knott and Winters.)

States, the American Association of State Highway and Transportation Officials (AASHTO) produced the “Guide Specification and Commentary for Vessel Collision Design of Highway Bridges.” This has been updated several times, and the current 2009 version is compatible with the AASHTO 2014 LRFD general code.

In Europe, the forces for ship impact are contained within the Eurocodes. More significant guidance is provided in Ship Collision with Bridges from the International Association for Bridge and Structural Engineering (IABSE). The code drafting committees for the AASHTO and IABSE documents overlap, which helps to ensure consistency of the design rules.

Changes in Emission Standards

Future merchant shipping designs will be optimized to ensure the Energy Efficiency Design Index (EEDI) for new vessels aligns with the Carbon Intensity Indicator (CII), which focuses on carbon emissions compliance. Similarly, existing ships will need to meet the Energy Efficiency Existing Ship Index (EEXI) to reduce their environmental impact. Meeting these emissions standards may come at the cost of engine power, as vessels might need to lower power output to comply with the requirements for engines and auxiliary systems. This reduction in engine capacity can introduce significant risks, particularly in challenging situations such as adverse weather conditions or strong currents, where greater power may be necessary for safe navigation.

The challenge lies in balancing the need for compliance with environmental regulations and ensuring that ships retain sufficient engine power to operate under difficult maritime conditions safely.

Changes in Risks

Part of the challenge is that the greatest risks will be for older structures that were designed with shorter spans and lower clearances to accommodate much smaller vessels. Additional risks may be associated with the inherently reduced robustness within such structures. Also, modern practice has a conflicting requirement of tying structures together continuously as opposed to having single, simply supported structures which would result in fewer spans failing.

Difficulty arises in how to upgrade or protect elements that are ill suited to modern shipping requirements. The provision of new passive devices to protect the substructure of a bridge from impact should not require major works to the bridge itself but may have an impact on the navigational clearances.

It is recommended that both maritime and highway or rail authorities controlling bridges over waterways conduct periodic reviews to assess changes in risk over time due to variations in vessel types and cargos using the waterway. This should be included in management standards and guidance for marine, road, and rail bridge maintenance, operation manuals, and incident management procedures.

Navigation errors, loss of power, or loss of directional control can result in catastrophic consequences for both the vessel and the bridge. Reviewing the navigational environment around critical bridges is essential to ensure that risk exposure is adequately controlled.

The highest risk for bridge contact is when a total loss of propulsion or electrical power occurs. Therefore, maintaining the machinery responsible for propulsion, energy, and navigation is critical. Power loss often happens after maintenance in port, underscoring the need to mitigate this risk.

The MARPOL (International Convention for the Prevention of Pollution from Ships) regulations on sulphur emissions require ships

to carry multiple fuels and switch between them depending on location. The Alert strongly recommends that port authorities prohibit fuel changes near all navigational hazards.

Climate change has increased the frequency and severity of extreme weather events, such as torrential rains and tropical revolving storms. These conditions lead to stronger river currents that may destabilize vessels near bridge abutments. Additional control measures, like tugs, may be necessary in such situations.

Autonomous ships are becoming more common, and their use must be factored into planning new bridges. These vessels should have built-in redundancy and be equipped with advanced sensors, real-time data, and AI to detect mechanical failures or navigation issues quickly.

The Human Element—A Critical Layer of Defense

Even with sound navigation, engineering, and robust procedures, the safe passage of vessels beneath bridges ultimately depends on people. Human factors play a crucial role in both prevention and response.

Capability and Competence: There is significant variation in crew competence across the industry, especially in high-risk, high-consequence environments such as busy ports or narrow bridge passages. This applies equally to deck and engineering crews.

Engineers, in particular, play a vital role in maintaining propulsion, electrical, and auxiliary systems. A power loss, often following maintenance, has frequently contributed to past bridge strikes so ensuring that crews are both capable and familiar with vessel-specific systems is crucial to preventing such failures.

Bridge and Engine Room Teamwork: Safe navigation depends on coordination between the bridge and the engine room. Poor communication, especially under time pressure or when language barriers are present, can cause delayed or inappropriate responses during an emergency. Effective Bridge Resource Management (BRM) and Engine Room Resource Management (ERM) practices, along with clear communication protocols, are essential for managing complex scenarios, such as navigating near critical bridges.

Fatigue and Decision-Making: Fatigue, workload, and commercial pressures can impair judgement. Decisions to proceed with unresolved technical issues or in marginal weather conditions can increase the risk of an incident.

Bridge owners and port authorities should have contingency plans for handling the aftermath of a major bridge strike by whatever type of vessel. If the waterway is blocked, traffic and commerce will be disrupted, affecting businesses and local communities and the major suspension of road or rail transport. All the providers who might be affected should be aware of any risks posed by a possible bridge strike or other emergency and have contingency plans in place.

Conclusions

The rarity of major incidents involving vessels striking bridges should not lead to complacency. The potential for such catastrophic loss of life and disruption to society underscores the importance of risk-based design processes and the need for periodic review of risk as maritime traffic evolves.

It has been reported that the final cost of the Francis Scott Key Bridge collision will make it the most expensive marine-related loss for the global insurance market on record. Given the stakes, port authorities and designers must collaborate closely to mitigate risks effectively. There is a need for robust maintenance protocols, well trained and

Recommendations

In their Alert, CROSS and CHIRP make the following recommendations:

For bridge designers and code writers:

•Carry out risk analyses of the effects of bridge strikes.

•Consider climate change effects during the projected life of the structure.

•Develop options for avoidance or protection.

•Improve standards to include regular risk analysis as part of the maintenance and operation routine of bridges.

For bridge owners and operators:

•Carry out periodic risk analyses taking account of changing circumstances. It is recommended that these are conducted at least once every ten years.

•Regularly liaise with port authorities.

•Regularly liaise with utility providers who use the bridge.

For port authorities:

•Be mindful of changes to vessel operators, types of cargo, and climate change effects.

•Regularly liaise with bridge owners and operators on risks and contingency plans.

For ship owners and operators:

•Ensure proper maintenance of vessels and equipment for the avoidance of mechanical or navigational failure, particularly when entering and leaving port.

•Conduct regular risk analyses of new and existing routes where vessels pass beneath bridges. The International Safety Management (ISM) Code explicitly states that all identified risks to its ships, personnel and the environment are assessed, and appropriate safeguards are in place.

experienced crews, and consideration for environmental factors in passage planning. All of these can reduce the risk of errant vessels. Even with the best preventive measures, extreme weather, mechanical failures, and human error mean that the potential for collision remains. With advancing engineering standards and technological safeguards, human behavior and decisions remain central to preventing catastrophic bridge strikes. Recognizing the limitations and strengths of human operators is not just supplementary to risk mitigation—it’s essential. ■

Alastair Soane, Principal Consultant and founder, CROSS, has contributed to construction safety, risk management, and structural assessment for buildings and bridges. He has held leadership positions in both industry and academia, shaping the standards and best practices that underpin structural engineering.

David MacKenzie is the Chair of the foundation that owns the COWI Group. In this role he is responsible for the oversight of the research and development programme run by the foundation which sponsors work in the built environment. He is also a Senior Technical Director of COWI.

Dave Watkins, Deputy Director, CHIRP Maritime, spent much of his career at sea, including many years in command of ships of many types and sizes, including VLCCs, Cape Size, Container ships, and General cargo feeder ships, before becoming Fleet Quality Assurance Manager and Designated Person Ashore.

Accelerated Construction of an Unbraced Network Tied Arch Bridge

The construction of a Detroit bridge juggled heavy traffic, site constraints, and historic preservation to meet community needs.

The 2nd Avenue Bridge in Detroit, Michigan, is unique not only due to its skewed, unbraced network arch configuration but also for the innovative accelerated bridge construction (ABC) process that

utilized self-propelled modular transporters (SPMTs) to move the bridge into place during a brief closure of I-94.

The bridge skeleton—a hybrid system consisting of steel trapezoidal arch ribs, steel floor beams, post-tensioned concrete tie girders, end diaphragms, and

knuckles—was initially assembled in a staging area near the bridge site. Then this structure, weighing just over 5 million pounds, was lifted and moved into place using SPMTs in July 2022. Following casting of the concrete deck, the bridge opened to traffic in December 2022.

Planned Reconstruction of I-94 Corridor and Advanced Bridges Program

As the primary freeway access point for urban Detroit, I-94 carries an estimated 175,000 vehicles per day and plays a crucial role in connecting the city. Originally constructed during the interstate highway expansion of the 1950s, the highway has served the area for decades. However, increased traffic volumes in this region have exceeded its original capacity, necessitating significant upgrades.

All of the original bridges constructed over the highway in the 1950s have reached or exceeded their intended 75-year lifespan. With these structures having outlived their useful service life, the Michigan Department of Transportation (MDOT) launched its Advanced Bridges program, replacing nearly two dozen of them—including the 2nd Avenue Bridge—in advance of the main corridor reconstruction project.

On 2nd Avenue, MDOT needed a bridge that could span a widened I-94 corridor without intermediate piers since future alignments for an adjacent freeway interchange are still unknown and MDOT wanted to avoid “throwaway” construction. The resulting bridge consists of a 245-foot-long, 96-foot wide, unbraced network arch span, which carries vehicular traffic, bicycles, and pedestrians in separate dedicated lanes alongside decorative planter boxes and lighting. In addition, the arch ribs are unbraced, creating a visually distinctive, “community connector” structure and a parklike environment for users.

Bridge Site Constraints and Historic Preservation

MDOT selected the team of Tetra Tech and HDR (as Engineer of Record for the signature span) to design the 2nd Avenue bridge replacement with the following goals:

• Facilitate planned widening of the I-94 corridor and allow for an alignment shift using a clear span structure.

• Minimize traffic disruption on I-94 during construction.

• Reduce unnecessary construction work.

• Create a signature structure to serve as a community connector.

The planned widening of the I-94 corridor, resulting in a shift of the alignment, led to the bridge’s innovative network unbraced arch design. The bridge can accommodate a much wider roadway than the current configuration. A key design feature is the clear span arch, eliminating the need for future demolition and

reconstruction of a median pier. The unbraced arches offer a cleaner, more open appearance, allowing the bridge to serve as a “community connector” rather than acting as a visual barrier within the surrounding environment.

In addition to the complexity of accommodating I-94 traffic, physical constraints made the site more challenging. The bridge could not be built in place; space to assemble the bridge was limited; and the depressed freeway was located

nearly 20 feet below the elevation of the only feasible bridge construction and staging area. A significant cultural landmark—United Sound Systems, a historic recording venue rooted in the origins of Motown Music— also stands just off the northeast corner of the bridge. To minimize adverse impacts, the design team skewed the ends of the bridge 18 degrees to avoid encroaching too closely on the fragile masonry building, a concern heightened

The 2nd Avenue Bridge in Detroit spans a widened I-94 corridor.
Arch rib erection and falsework is shown here. A key design feature of the bridge is the clear span arch that eliminates the need for future demolition and reconstruction of a median pier.

by the significant abutment excavation and temporary earth retention systems required for the large abutments. The skew added significant geometrical complications and detailing such as unique knuckle dimensions and elevations at each corner, and it required further analysis to capture the structure’s behavior for temperature and live load effects.

Accelerated Bridge Construction Alternatives

At the project's outset, MDOT and the design team prioritized constructing the signature bridge without disrupting I-94 traffic for more than a few days. To avoid rush hour traffic, they aimed for as brief a closure as possible, such as from 10 p.m. Friday to 5 a.m. Monday. The project utilized the design-bid-build procure

required during the design phase.

MDOT and the design team held confidential meetings with industry-leading specialty contractors to gather input on feasible methods for moving a comparable bridge into its final position. These one-on-one meetings proved invaluable, as contractors were more open to sharing ideas, knowing their competitors could not gain an unfair advantage.

After evaluating several alternatives, the design team defined a method using a performance specification where the bridge skeleton, essentially the entire arch span, excluding the concrete deck, would be built in a nearby parking lot and moved into place using SPMTs.

Durability and Strength in Bridge Design

and efficiency. The bridge accommodates both pedestrian and vehicular loads, supporting four lanes of traffic and a higher “festival” pedestrian load of 90 psf to handle peak pedestrian traffic during special events, with provisions for six vehicular lanes in the future. Substantial superimposed dead load is present with wide sidewalks and multiple planter boxes on the structure.

The 2nd Avenue Bridge design emphasizes aesthetics, as well as redundancy, resilience,

Each arch panel incorporated thirty 31/8inch diameter ASTM A586 structural strand hangers. Arranged in an inclined, crisscrossing network, these hangers significantly enhance the bridge’s structural efficiency. The 63-degree hanger angle was carefully selected to more evenly distribute forces across the structure and minimize bending moments in both the arch rib and the tie girder. This orientation improves the bridge’s structural performance, making it lighter, stiffer, and more stable compared to traditional tied arch bridges with vertical hangers. The 14-foot spacing of the steel floor beams greatly influenced the selection of the hanger angle, a decision that balanced structural requirements with long-term maintenance considerations. Per MDOT guidelines, floor beams spaced more than 14 feet apart require more rigorous arm’s-length, hands-on inspections. The design met structural needs by keeping the spacing at 14 feet while minimizing inspection demands. The floor system employed Grade 50 steel I-girder floor beams with variable web heights to efficiently respond to varying load conditions across the span. While the arch rib is the defining visual element of the structure, the core design decision lies in the use of post-tensioned concrete tie girders in place of the more typical steel alternative. This choice not only enhances durability but also avoids the fracture-critical classification commonly associated with steel tie girders, which are subject to non-redundancy considerations

Each arch panel incorporated 30 ASTM A586 structural strand hangars that were arranged in a crisscrossing network to enhance the bridge's structural efficiency.
A bridge skeleton is loaded onto a self-propelled modular transporter in the nearby parking lot.
Self-propelled modular transporters move the arch skeleton of the bridge from the staging parking lot.

under AASHTO and FHWA guidelines. The 8,000-psi concrete tie girders are rectangular in shape, measuring 4 feet in depth and 3 feet 6 inches in width. Each girder contains twelve post-tensioning tendons, with each tendon consisting of nineteen 0.6-inch diameter, Grade 270 prestressing strands. HDR designed the concrete tie girders with a 1.25 overstrength factor, driven by their location directly above active traffic.

A strain compatibility analysis was used to evaluate the complex combination of tension, biaxial flexure, shear, and torsion within the tie section. To check global stability, HDR used an iterative P-Delta method to evaluate the critical buckling load of the trapezoidal steel arch ribs. Geometric non-linear analysis refined the arch rib design, accounting for out-of-plane deflections and providing more precise force predictions beyond conservative estimates. Both the global stability check and geometric non-linear analysis utilized LARSA 4D finite element software. Each arch rib features a constant-width trapezoidal cross-section fabricated Grade 50 steel, with 1¾ inch welded flanges and webs. The ribs maintain a constant height of 4 feet 2½ inches, with a top flange width of 4 feet 9 inches and a bottom flange width of 2 feet 6 inches. The trapezoidal cross-section offers increased torsional stiffness and resistance to lateral buckling, which

is especially beneficial for an unbraced arch. In addition to its structural efficiency, the rib’s angular geometry contributes to the bridge’s aesthetics and reinforces its identity as a visually open, community-focused structure. All steel ribs, along with other steel components of the bridge, were galvanized and finished with an exposed epoxy paint system. This not only elevates the bridge’s appearance but also provides an added layer of protection against chloride exposure.

At each end of the bridge, the post-tensioned concrete knuckles serve as the critical anchorage points for the arch ribs, transferring forces into the supporting elements of the structure. HDR developed three-dimensional strut-and-tie models to validate the concrete knuckle design and ensure reliable load transfer between the arch rib, tie girder, and end diaphragms. The knuckles are anchored by twenty 1-3/8-inch diameter Grade 150 prestressing bars, which are protected by a four-level protection system comprised of grout, caps, applied coatings, and concrete enclosures, to ensure long-term durability. Between the knuckles, post-tensioned concrete end diaphragms provide lateral restraint and tie the arches together. The 6,500-psi concrete end diaphragms are rectangular in shape, measuring 6 feet 9 inches in depth and 6 feet in width. Each diaphragm contains

eleven post-tensioning tendons, with each tendon consisting of nineteen 0.6-inch diameter, Grade 270 prestressing strands. The decision to use concrete for both the knuckles and diaphragms, rather than the more typical steel, was driven by durability, reduced maintenance, and the desire to avoid fracture-critical classifications associated with non-redundant steel components.

Redundancy is a critical design feature: the post-tensioned tie girders are internally redundant, with multiple tendons sharing the load. If one tendon fails, the others continue to carry the load, allowing the bridge to remain operational without a sudden loss of capacity. This multi-tendon system, combined with the ductile behavior of the concrete and controlled cracking under the compressive forces introduced by post-tensioning, enhances the tie girder’s resilience. The network hanger system works with the tie girders to ensure the bridge remains operational even if a hanger fails. A hanger loss analysis, modeled using LARSA 4D, was completed following the PTI Recommendations for Stay Cable Design, 6th Edition. HDR also incorporated visible hanger connections and exposed components for straightforward inspection and maintenance. Additionally, a replaceable sacrificial concrete nosing on the tie girders was placed to mitigate damage from high load hits.

Highway 1-94 was briefly closed while the bridge was moved into place and installed over the corridor.

Construction Method and Sequence

Designers of cable supported bridges must carefully plan the construction method and sequence to ensure the permanent structure's integrity. They must anticipate reasonable installation sequences to withstand construction forces and estimate “locked-in” stresses. After selecting a construction sequence developed to meet project goals and informed by contractor outreach, HDR analyzed the bridge based on the locations of assumed temporary supports and the order in which components would be assembled.

The contract plans outlined this conceptual construction sequence, enabling contractors to bid on the project using available, though specialized, SPMT equipment. These plans provided assumed lifting points, pick weights, and suggested temporary bracing locations but did not include member or connection details. Contractors had to submit a detailed structural analysis and temporary member designs stamped by a licensed professional engineer in Michigan consistent with their proposed means and methods.

Independent Peer Review

During the design of the 2nd Avenue Bridge project, the project team, including MDOT, HDR, and other members, conducted a thorough review of the construction method, sequence, and approach. As a result, the project team incorporated several proactive measures:

• MDOT hired an independent engineer to review the design, who confirmed its thoroughness and conformance with industry standards and project design criteria and specifications.

• MDOT extended the allowable bridge closure duration from a weekend to seven days to reduce time pressure on SPMT and jacking operations.

• MDOT prohibited post-tensioning or hanger adjustments over live traffic on I-94.

Given the complex bridge design and erection sequence, the involvement of a third-party reviewer added an additional level of quality control. Before accepting the erection procedure, three structural analysis

models—completed by the project’s Engineer of Record, Independent Peer Reviewer, and Erection Engineer, each using different software—were compared for convergence.

Construction Operations and Bridge Move

Assembly of the bridge skeleton was performed on temporary supports in a parking lot approximately 500 feet from the final location of the bridge. The assembly work faced many challenges, not the least of which was the COVID pandemic and related work delays and supply chain shortages. The bridge skeleton, weighing more than 5,000 kips and nearly

The 2nd Avenue Bridge in Detroit was constructed using self-propelled modular transporters that moved the bridge into place during a brief closure of 1-94.
An aerial view shows the staging and erection areas for the 2nd Avenue bridge.
Skid tracks and a “Jenga” system lower the bridge to its final bearing seats at abutments.

the size of a football field, was ready to be moved into place by the start of July 2022.

The transfer of the arch span to SPMTs required the use of stacked timber dunnage in what the project team referred to as the “Jenga system.” This allowed the span to be lifted and lowered in increments of 4 inches with climbing jacks. Each layer of timber was offset 90 degrees from the previous layer. The timbers were made from Ekki/Azobe hardwood from Africa or an epoxy-injected composite with a very high compressive strength capable of resisting the imposed loads.

Three 12-axle SPMTs were linked to lift each corner of the bridge skeleton with a total reaction to each group of approximately 1,300 kips. All SPMTs were controlled by a single operator through the move operations. After the load of the bridge skeleton was transferred to the SPMTs, the temporary abutments were removed from the staging area, and the span was made ready for transportation.

The first stage of the move transported the span from the staging area to a location immediately behind the south abutment. This operation was performed on July 19, 2022. Due to the limited space available in the staging area, the bridge was carefully manipulated to avoid the adjacent Wayne State University parking garage and law school.

The next day, the leading end of the skeleton was then transferred over the top of the south abutment and onto SPMTs on I-94 using a

skid track system. This maneuver, called the “handoff,” was performed in two steps, the first of which was to transfer the load to the skid tracks prior to stopping traffic on I-94. SPMTs were removed from beneath the leading end of the skeleton, while the SPMTs at the rear of the skeleton remained in place.

In the second step, on July 22, 2022, traffic was stopped on I-94, and a layer of compacted aggregate created a smooth-running surface for the SPMTs. The handoff then transferred the skeleton to the SPMTs positioned on I-94. The final stage of the bridge move, transporting the bridge across I-94 and onto the north abutment, occurred on July 24, 2022. During the overnight hours prior to the move, a heavy rainfall soaked the compressed aggregate infill on I-94. To avoid creating ruts, the contractor installed a layer of 1-inch thick steel plates to create a durable runway surface .

The bridge move proceeded without significant incident save for a few minor support

elevation adjustments during the operation. These adjustments were necessary to keep the four corners of the bridge in the same plane at which they were cast to avoid damage to concrete and maintain stress levels within AASHTO limits. The bridge was designed to withstand out of plane movement of up to 3 inches at a corner.

In addition, the contractor was required to actively monitor the bridge during the move. Monitoring was done with a total station survey instrument, and readings were taken each time the move operation was halted. A pair of electrically charged piano wires stretched diagonally from corner-tocorner of the span were also used to monitor warping within the 3 inch value determined during the design phase.

Following the bridge move across I-94, the load was transferred to the abutments with a skid track system and the span was lowered onto the abutment bearings, once again using a Jenga tower system. A thorough inspection by HDR and MDOT staff ensured that it was safe to resume I-94 traffic. I-94 was reopened on July 29, one week after it was closed to begin move preparations. The concrete bridge deck was placed, a second stage of tie girder post-tensioning was performed and final adjustments made to the hangers prior to opening 2nd Avenue to traffic on December 22, 2022.

The bridge's opening capped a process of remarkable design and construction. By thinking creatively and collaboratively, the team behind the 2nd Avenue Bridge reduced construction work, limited traffic disruption and met demanding site constraints to deliver a signature structure that will serve its community for decades to come. ■

Longfield,

for

is the

in Michigan and provided design services during construction, including review of contractor erection analysis and extensive on-site technical assistance. (Matt.Longfield@hdrinc.com)

Bersano, PE, is a Bridge Engineer at HDR in Illinois and served as the lead designer for various components of the bridge. (Ryan.Bersano@hdrinc.com)

Matt
PE, SE,
Bridge Section Manager
HDR
Ryan
The site map shows the 2nd Avenue Bridge's constraining elements, including cultural landmark United Sound Studios and Wayne State University.
This analytical model illustrates details of the bridge deck.

Lighting an Icon

Engineering Solutions on the Crescent City Connection

The Crescent City Connections Bridgesis illuminted in front of the New Orleans skyline.

Spanning the Mississippi River, the Crescent City Connection is more than just a pair of bridges—it's a defining landmark of New Orleans. The twin cantilever truss spans, originally designed by Modjeski and Masters (M&M), are an essential part of the city’s skyline and infrastructure, plus a symbol of civic pride.

After Hurricane Ida caused widespread electrical damage to the bridge’s decades-old lighting system, the Louisiana Department of Transportation and Development (LADOTD) partnered with M&M once again—this time with the goal of creating a resilient, programmable LED system capable of delivering both visual impact and long-term performance.

From the outset, this was more than a cosmetic upgrade. The new lighting had to integrate seamlessly with existing bridge structures, withstand the coastal environment, and meet a demanding design schedule ahead of the 2025 Super Bowl, all while enhancing safety, visibility, and energy efficiency. The project required close collaboration between structural and electrical design teams to ensure the lighting system achieved long-term durability while meeting the aesthetic and operational demands of the bridge environment.

In order to light the outboard sides of the 3,000-foot-long truss spans, a total of 123 light fixtures were mounted to the lower chord at 63 distinct locations with each site containing between one and three fixtures. Complementing the lower chord lighting, “necklace lights” were located at each panel point along the upper chord and two at the top of each tower. Each necklace light location consisted of four individual one-foot-long linear fixtures. Additionally, 14 fixtures were mounted atop each of the tower piers of the old span with four additional lights on the larger piers for the new bridge. All total between the two bridges, 1,564 fixtures were used in the lighting design.

Each of the LED fixtures can be individually programmed in terms of color, brightness, and

timing via a centralized control system, allowing for dynamic lighting scenes that span the length of the bridge or highlight individual segments. This allows for both minimal energy usage and maximum impact, all with a 30-year design life.

Mounting System Solutions

Having originally designed both the older (Eastbound) and newer (Westbound) spans of the Crescent City Connection, M&M already had a thorough understanding of the bridge’s construction methods, connection types, and maintenance history.

The structural considerations for the lighting system started with one essential question: how do you mount modern fixtures on aging infrastructure without altering or damaging it?

The design team began with a comprehensive review of historical as-builts and conducted field surveys to assess previous lighting locations. Because the two structures were built using different techniques and materials, riveted connections on the original span and bolted on the newer one, no single solution would fit both bridges. Each span has its own unique geometry, gusset plates, and structural member sizes, requiring the custom design of more than ten different mounting bracket types to ensure proper alignment and performance.

Importantly, clamp-mounted systems used throughout required no drilling and no permanent alterations. To create the clamp-mount, spacers were welded onto strut channels to provide the necessary clearance over existing rivets and bolts. This modification ensured a stable and level bearing surface for the clamps. The modified strut channels were then positioned on opposite sides of the structural member and secured together using threaded rods, forming a rigid clamping assembly. Finally, the new LED fixtures were mounted onto the outwardfacing strut channel, completing the clamp-mount installation. This avoided any compromise of the structure’s integrity while allowing for consistent fixture placement.

The original necklace lighting system was mounted on a ¾-inch pipe clamped to the stanchion supporting the hand line. To minimize retrofit labor and preserve

Daytime view of the Crecent City Connection spanning the Mississippi River

existing infrastructure, the new system was engineered for installation using a similar method. By retaining the ¾-inch pipe as the primary support, existing mounting holes could be reused, significantly reducing field modifications.

In the updated design, light fixtures are no longer mounted directly to the support pipe. Instead, four fixtures are affixed to the sides of a square stainless steel tube, through which the new ¾-inch pipe is run and welded to along with the stainless steel end caps. This integrated assembly allows for complete preconstruction at ground level, streamlining the installation process and significantly reducing time and labor required on the bridge deck.

One of the most structurally demanding areas was the upper chord, where cable trays cross over the top. These locations had to be coordinated closely with the field and inspection teams to ensure ongoing access for inspection and maintenance. Spacing of cable tray supports was carefully optimized to meet National Electrical Code requirements while avoiding structural cutouts, especially on the older span.

Design for a Coastal Climate

Any upgrade on a bridge exposed to the elements, and especially one that spans a major river in a hurricane-prone area, must be designed with resilience in mind. Coastal salt, wind vibration, and daily thermal swings in New Orleans were all factored into the material and connection design. To that end, all mounting members and hardware were specified to be stainless steel for corrosion resistance and durability.

In fact, the new system replaced the previous necklace-style lighting, which used exposed messenger cables and wiring vulnerable to the weather. With this upgrade, most of the cabling is now routed below the deck, along the protected maintenance catwalk. For the upper chords, a new cable tray system offers added protection and organization for the necklace fixture cables. These solutions were a major improvement over the prior system, both in performance and maintainability.

Design Under Pressure: The Super Bowl Deadline

One of the more testing aspects of this project was the timeline. LADOTD wanted the lighting system operational in time for the 2025 Super Bowl, meaning a compressed schedule for design, procurement, and installation.

M&M received notice to proceed in March 2023. Within weeks, we had teams on site to inspect both bridges, including the top chord, catwalk, and pier tops, to identify the best routing paths and mounting conditions. The lighting system was developed with pre-assembled and pre-wired modular units to streamline fieldwork. This minimized the need for site-based fabrication and sped up installation without sacrificing accuracy or quality.

When the initial bid process returned no contractor interest, LADOTD and M&M quickly adapted. Contractors had flagged tight lane closure restrictions and the use of rigid conduit as barriers to meeting the timeline. LADOTD responded by allowing extended lane closures during the summer and approved the use of weatherproof cable trays instead of rigid conduit — a shift that preserved safety and performance standards while significantly improving constructability.

Lighting as Infrastructure and Identity

The Crescent City Connection’s new lighting system enhances navigation, visibility, and civic connection. The system features 42 unique programmable themes, letting the city showcase everything from Mardi Gras to game days with vibrant displays that shift in real time. The lights also are remote-operated, allowing quick adjustments in response to mariner or motorist needs.

By illuminating the bridge in colors that reflect the city’s culture, the project honors New Orleans’ heritage while reinforcing the bridge’s status as a critical artery for regional transportation and a cultural landmark.

Lower chord fixture clamp-style bracket prior to installation
Lower chord fixtures installed on the outboard side of the original riveted-connected eastbound span

Lessons in Coordination and Craft

This project would not have succeeded without extensive coordination between M&M’s electrical, structural and transportation management teams. Each light location was initially chosen by the electrical team, and then the structural team developed mounting configurations based on specific conditions at each location. The field section ensured that no brackets interfered with future inspections or access, which was a critical step for long-term functionality. Additionally, M&M transportation management section, along with subconsultant Ventura Consulting Services LLC, developed the project’s full transportation management plan and revised the traffic control details for the second bid.

Ultimately, this was not just a project about installing new lighting. It was about understanding the nuances of two distinct but related bridge structures, designing with respect to history and integrity, and delivering a solution that’s both technically sound and culturally resonant. ■

Jon Gerhart, PE, is an electrical project manager at Modjeski and Masters. He leads the inspection, evaluation, and design of electrical power, control, and lighting systems for all types of fixed and movable bridges, as well as roadway/ interchanges. Gerhart served as the project manager for the award-winning Crescent City Connection decorative lighting project.
Cable tray and fixture installation on upper chord of the newer westbound span that has bolted connections
Lower chord fixtures installed on the outboard side of the newer westbound span

Getting the HANG of It Engineering a Suspended Structure Above WMATA Metro Tunnels

Urban development often demands creative engineering—especially when new construction interfaces with critical infrastructure. In the case of The Langston, a nine-story mixed-use residential project in Washington, D.C., engineers had to quite literally hang part of the building above WMATA’s active Green Line Metro tunnels. The solution involved suspending the northeast portion of the building using hanging concrete columns supported from the roof, with a temporary cantilevered steel truss system enabling safe construction above the tunnels. This article walks through the unique challenges, structural ingenuity, and coordinated efforts that brought this ambitious project to life.

Revitalizing a Historic Corridor

The Georgia Avenue and 7th Street NW corridor is a vital urban spine linking D.C.’s vibrant neighborhoods and cultural institutions, including the Walter Reed Army Medical Center, Howard University, and the D.C. Convention Center. In recognition of its significance, the D.C. Office of Planning initiated the 7th Street and Georgia Avenue Great Streets Initiative, a program aimed at transforming the corridor into a thriving center of community, commerce, and culture.

At the heart of this transformation stands The Langston (Figure 1), a 380,000 square foot, nine-story mixed-income residential development in the Shaw neighborhood. The project includes 204 housing

Fig. 1. The Langston is a mixed-use building with 204 housing units, ground level retail, and a level of belowgrade parking. (Rendering of the structure’s northeast corner courtesy of Cooper Carry Architects.)

units, ground-level retail, and one level of below-grade parking. Named after John Mercer Langston, Howard University Law School’s founding dean, the building is strategically located across from the Shaw/Howard University Metro station and a short walk from the Howard Theatre.

A Midstream Structural Transition

The path from design to construction took an unexpected turn when the original structural engineer, Fernandez & Associates, closed down during the Construction Document phase. SK&A Structural Engineers was retained to serve as Engineer of Record (EOR) to complete the design, prepare a permit set and provide Construction Administration services.. In addition to assuming the EOR role, SK&A was tasked with performing value engineering under a compressed timeline. This effort came with several key constraints: the column sizes and locations had to remain fixed to preserve architectural and MEP

layouts. Despite these limitations, SK&A’s revisions led to a reduced slab thickness, eliminated a pour strip, and optimized post-tensioning and reinforcement—all contributing to a more sustainable, cost-effective structure with lower embodied carbon.

The Challenge Below: WMATA’s Zone of Influence

The primary structural challenge arose from the WMATA Green Line tunnels that curve beneath the building’s northeast corner. WMATA defines a Zone of Influence which refers to the area around WMATA property that could be impacted by adjacent construction.

As illustrated in Figure 2, a significant portion of The Langston extended over the zone of influence. Any additional surcharge on the tunnels from vertical or lateral building loads was not permissible. The architectural vision could not simply be cut back; a novel structural solution was required.

Fig. 2. This section drawing shows the WMATA metro tunnels.

The answer: suspend the building’s northeast corner from above using hanging concrete columns. In the final configuration, this portion of the structure appears to cantilever over the sidewalk and Metro tunnels.

Loads from floors are collected into vertical hanger columns in tension, which in turn transfer forces into diagonally sloped concrete columns. These diagonals then transmit the load to foundations located outside the WMATA zone of influence.

Building in Reverse: Sequencing the Hang

While elegant in its final form, the suspended structure introduced complex construction sequencing challenges. Prior to the roof slab’s completion, the hanger columns had no support above, and conventional vertical shoring posed a risk of surcharge on the tunnels.

To maintain load path integrity during construction, a temporary cantilevered steel brace system was introduced (Fig. 3 and Fig. 4). This steel framework effectively reversed the building's intended load path, allowing the lower floors to be constructed before the roof was complete.

During this temporary condition, the hanger columns acted in compression—opposite their final design role. Once the roof slab cured and the hanging tension system was engaged, the temporary braces were removed, and the column forces reversed.

As part of its value engineering efforts, SK&A redesigned the temporary steel framing to avoid direct bearing on grade. Instead, all temporary loads were redirected into the building superstructure, further mitigating any potential impact on WMATA’s tunnels.

Below Grade: Excavation, Foundations, and Obstructions

Excavation and below-grade construction presented a second layer of engineering difficulty, particularly within the zone of influence. The support of excavation system required rakers and heel blocks to prevent movement that might threaten the tunnels. These measures added logistical and spatial complexity to the already congested site.

The site’s geotechnical profile was poor, necessitating deep foundations. Both caissons and auger-cast piles were considered. Auger-cast piles were ultimately selected for their reduced vibration impact, smaller equipment footprint, and faster installation timeline.

Despite this, installation was hindered by numerous unexpected subsurface obstructions - namely, old cylindrical brick and concrete remnants (Fig. 5). These finds triggered multiple pile layout revisions and required pile cap redesigns to accommodate new pile locations without compromising structural performance.

Concrete Optimization and Sustainability Goals

The Langston’s structure utilized cast-in-place concrete with post-tensioned slabs from level two through the roof. Level one used conventionally reinforced slabs with drop panels. A key design optimization involved specifying 7-inch thick post-tension slabs, which balanced strength and span efficiency while staying within D.C.’s building height limitations, which is typically a maximum of 130 feet on commercial streets.

In line with the project’s LEED Silver goals, construction featured numerous sustainability measures:

• Shotcrete basement walls replaced traditional formed walls, eliminating the need for large quantities of lumber, reducing waste, and accelerating construction.

• Recycled content and regional materials were prioritized throughout the project.

• Long-term sustainability features are energy-efficient HVAC systems, low-emitting interior materials, and daylight-maximizing facade elements.

Fig. 3. Temporary HSS braces allowed the lower floors to be constructed before the roof was complete.
Fig. 4. Temporary brace node detail.

Owner

Quadrangle Development

Architect

Cooper Carry Architects

General Contractor

HITT Contracting

A Broader Vision: Neighborhood Integration

The Langston is more than a building—it’s a cornerstone of the Great Streets Initiative. The design prioritizes community access and public realm improvements. Street-level retail activates the sidewalk, and setbacks allowed for generous landscaping along 7th Street NW.

SK&A and the broader design team aligned their technical work with a civic mission: to deliver affordable, high-quality housing in an urban form that respects both infrastructure constraints and community goals.

From navigating transit constraints to sequencing an unconventional suspended load path, The Langston project exemplifies thoughtful, adaptive structural engineering. Through collaboration and creativity, the team managed to hang a building over an active subway—without ever touching the tunnels beneath. ■

Monika Crandall, PE, LEED AP is an Associate with SK&A Structural Engineers with 22 years of experience with office, residential and mixed-use developments and existing building reuse. (monikac@skaengineers.com)
Fig.

Viaduct Damage Assessment After the 2023 Earthquake in Turkey

Five viaducts along the Tarsus-Adana-Gaziantep Highway in southern Turkey were damaged by the 2023 Mw 7.8 earthquake. Damage assessment and the seismic retrofit design for three of those viaducts are shared here. The other two were covered in Part 1 in the September issue.

Five of the 14 viaducts along the Tarsus-AdanaGaziantep (TAG) Highway of Southern Turkey were damaged from the 2023 Mw 7.8 earthquake. A companion article in the September issue of STRUCTURE presents the two largest of these viaducts, while this article focuses on the three remaining viaducts, which have similar designs and seismic retrofit strategies as each other. Although these three bridges are smaller than the other two major viaducts, they are still large and impressive structures set in the low mountains of Southern Turkey, and have been in service for just over 25 years. Furthermore, they all had advanced and interesting original seismic designs. However, since the peak ground acceleration (PGA) of 0.607 g, measured at Station 2712, which is the closest strong motion station to all five of the damaged bridges, is about 50% larger than the 0.4 g PGA

used in the original designs, these bridges were clearly overloaded, resulting in the observed damage. As shown in Figure 1, the five damaged viaducts are all close to the USGS-defined fault rupture line (in red), while the other nine viaducts on the TAG Highway (O-52 in Fig. 1) are all much further away from this fault rupture.

Seismic retrofit designs for the three damaged bridge structures, the Nurdagi, Sehitler, and Baspinar Viaducts, were done by Cenan Ozkaya, as the engineer of record, working within the Pontem Engineering Co.. Importantly, none of these three damaged bridges collapsed, and all were saved for future use by the on-going seismic retrofitting to larger PGA values than the bridges were originally designed for. The high quality of both (1) the original design details and (2) the construction, are important features that helped save the viaducts during the February 6, Mw 7.8 earthquake and for future use. Retrofitting

works are being carried out by the SNH Construction Company, and the owner of the viaducts is the Motorway Division of the General Directorate of State Highways, in the Ministry of Transportation and Infrastructure of the Republic of Turkey.

The Nurdagi Viaduct required emergency retrofitting, prior to the full seismic retrofit, because a plastic hinge that developed part-way up one of its columns was close to complete failure, as discussed here and in an article in the October 2023 bridge issue of STRUCTURE Magazine. Vertical rebar buckled, and transverse rebar yielded and was badly deformed; the emergency retrofit added a steel shell up this one column height, providing horizontal confinement steel and added vertical steel, making up for both the too-small transverse rebar and the potential lost strength of the buckled vertical steel. This viaduct remained open to traffic and, without this emergency

work, future aftershocks could have caused a few more cycles of the plastic hinge, resulting in lowcycle fatigue failure of the buckled bars and fracture of the hoop reinforcement, with complete loss of the viaduct.

Earthquake Information

On February 6, 2023, a Mw 7.8 earthquake struck Southern Turkey, followed by a Mw 7.5 earthquake about six hours later. Both the size of the first earthquake and the right strike-slip fault mechanism are consistent with the anticipated future “big one” in California that will be generated from sudden slip along the San Andreas fault. Hence, because of this, and because bridge design in Turkey closely follows Caltrans methods, there is great interest in California to see how these large bridge structures performed.

Fig. 1. (Left) The location of the Mw 7.8 earthquake fault rupture line is marked in red, along with the five damaged viaducts along the TAG Highway. (Right) Strong motion stations and PGA are shown at various locations along the fault rupture line in red, as well as Station 2712, which is close to the five damaged viaducts.

Three Damaged Viaducts Along the TAG Highway

Nurdagi Viaduct

The Nurdagi Viaduct is 102 meters (335 feet) from the USGS-defined fault rupture line, has two parallel five-span and six-span bridges on a curve, with single-column-bents, and large, solid, circular reinforced concrete columns of 3 meters (9.84 feet) diameter and maximum height of 24.2 meters (79.4 feet) (Fig. 2). The bridge has a total length of 307 meters (1,007 feet) and is on a steep longitudinal slope of 4%. Each of the parallel bridges is 17.5 meters (57.4 feet) wide, with a space between them.

The reinforced concrete columns act as cantilevers in the transverse and longitudinal directions, with the superstructure spans being either precast concrete girders or steel box-girders, both with reinforced concrete topping slab. Steel was used for the longer spans. Column plastic hinging is the primary damage to this viaduct from the Mw 7.8 earthquake, and of particular concern is that these plastic hinges developed part-way up the column in several instances (Figs. 2-5). Seismic pounding damage (Fig. 6) and local girder buckling (Fig. 7) were observed in the steel superstructure at the expansion joint, which is at the abutment. Reinforced concrete spans are simply supported, with expansion joints at both ends of the viaduct. The maximum span length for the steel superstructure is 80 meters (262 feet).

In one case, the plastic hinge formed about half-way up the column height and caused spall ing of cover concrete on both sides of the section, indicating large curvatures in both trans verse directions at this same column location, buckling of the primary vertical rebar, as well as yielding and severe deformation of the transverse hoop reinforcement (Figs. 2-3). This Indicates

Fig. 4. Cover concrete spalling and flexural cracking at the Nurdagi Viaduct column plastic hinge, and onset of a plastic hinge at a different column location, where primary vertical rebars were cutoff above the column/footing interface.
Fig. 3. Plastic hinge about half-way up a column of the Nurdagi Viaduct, with buckled primary vertical rebar, as well as yielded and deformed hoop rebar.
Fig. 2. Views of Nurdagi Viaduct, showing plastic hinges at various column locations. The lower plastic hinge was visible once soil was removed over the footing (compare left and right figures above).

a couple more cycles could have caused failure of the plastic hinge and complete collapse of this viaduct, stemming from this location.

Column plastic hinges are designed to occur at the column/ footing interface, where earthquake moment demand and capacity values intersect. However, primary vertical rebar cutoffs up the columns were designed for this structure, resulting in a sudden loss to the moment capacity, causing the intersection of moment demand and capacity curves to move up, and away, from the bottom of the column, as shown in Figure 3. Modular expansion joints completely failed at both ends of the bridge, and concrete was severely damaged at these locations due to severe impact forces (Fig. 6). A steel superstructure beam struck the edge beam wall, causing buckling of the steel beam (Fig. 7). At the damaged beam, the longitudinal sliding pot bearings were also damaged and lost functionality. The seismic retrofit design consisted of adding full-height steel shells to most of the columns (Figs. 8 and 9), which provided added vertical and transverse steel, as well as making up for the buckled column rebar at Bent 5 (Fig. 3). In fact, the steel shell was added to this Bent 5 column as an emergency contract since traffic was still flowing over the bridge, and any aftershocks could have failed the plastic hinge, resulting in the complete loss of the viaduct. Footings were increased in size in all three dimensions, with added rebar, as shown in Figure 8. Nonlinear Time-History Analysis (NTHA) was used to assess the behavior of this bridge, to ensure that the retrofitted structure satisfies the Turkish National Earthquake Design Code.

Sehitler Viaduct

This viaduct has side-by-side superstructures with eight spans each, single-column-bents, and solid reinforced concrete columns of 4 meters (13.1 feet) diameter

Fig. 5. (Left) Significant horizontal flexural cracks and onset of a column plastic hinge were observed after the earthquake. (Right) Loose cover concrete was removal from the column.
Fig. 6. Impact damage to the modular expansion joint and reinforced concrete topping slab at the Nurdagi Viaduct.
Fig. 7. Impact damage to the steel superstructure at the Nurdagi Viaduct.
Fig. 8. Steel shells for the columns of the Nurdagi Viaduct, enlarged footings with added rebar, and black waterproofing added to the top and side walls of the footings.

(Fig. 10). It has a total bridge length of 310 meters (1,017 feet), and the tallest column is 54.8 meters (180 feet) high. The superstructure consists of precast, prestressed concrete girders, with reinforced concrete topping slab. Spans are simply supported, with expansion joints at both ends of the viaduct. As with the Nurdagi Viaduct, the primary damage concern for this bridge is the onset of plastic hinging in the columns away from the column/ footing interface. This is caused by primary vertical rebar cutoffs up the columns, reducing the moment capacity at that section. Figures 10 and 11 show the cover concrete spalling off at various column locations, as well as significant horizontal cracks opening up, where vertical rebars were terminated. In addition, settlement occurred at the approaches to the bridge and damage was made to the expansion joints, earthquake blocks, connection slabs, elastomeric bearings, barriers and facade elements. This viaduct is 212 meters (696 feet) from the USGS-defined fault rupture line. Columns were retrofitted with partial-height steel shells to make sure, in a future earthquake, that plastic hinges don’t form up the column height, above the column/footing interface (Fig. 12). Multiple tie-downs were also added to the footings for increased overturning moment capacity, as shown in Figure 12. The tie-downs go through the footing and deep into the soil. For column sections of secondary importance, far above the column/footing interface, bidirectional single or double-layer composite fiber reinforced polymer (FRP) wraps were added to increase column shear capacity and confining pressure (Fig. 12).

Baspinar Viaduct

Baspinar Viaduct is very similar to Sehitler Viaduct in layout, column lengths, and damage. It has 8-span parallel bridges with single-column-bents, solid reinforced concrete columns of 4

meters (13.1 feet) diameter, and a precast, prestressed girder superstructure, with reinforced concrete topping slab (Fig. 13). The total bridge length is 311 meters (1,020 feet), with the tallest column of 58.3 meters (191 feet) height. Spans are simply supported, with expansion joints at both ends of the bridge. This viaduct is 148

Fig. 9. Overall view of the seismic retrofit construction for columns and footings of the Nurdagi Viaduct.
Fig. 10. Overall view of the Sehitler Viaduct and onset of two column plastic hinges (right).
Fig. 11. Onset of plastic hinging at multiple column locations, along with barrier damage, is visible at the Sehitler Viaduct.

meters (486 feet) from the USGSdefined fault rupture line.

Damage includes onset of column plastic hinges above the column/footing interface due to primary vertical rebar cutoff, settlement at the approaches, and failure of expansion joints and concrete from impact loads. The same seismic retrofit strategy used for Sehitler Viaduct was used for this viaduct, adding column partial-height steel shells and strengthening the footings with multiple added tie-downs that go through the footings and deep into the soil. FRP wrap was also added to the top parts of tall columns to increase their shear strength and to provide additional confining pressure.

Summary

The Nurdagi, Sehitler, and Baspinar Viaducts are significant bridges, and all were damaged during the 2023 Mw 7.8 earthquake that occurred in Southern Turkey. These three viaducts are similar to each other, as was their damage, with large, solid, circular reinforced concrete columns that have diameters of either 3 meters (9.84 feet) or 4 meters (13.1 feet). They all have single-column-bents, so that in the transverse direction the columns act as cantilevers. Because the superstructure is simply supported at the bents, the columns also act as cantilevers in the longitudinal direction. Normally, a plastic hinge is designed, and expected, to occur

at the column/footing interface, where the earthquake moment demand and capacity envelopes intersect, but these three bridges showed plastic hinges developing above this expected location.

The Nurdagi Viaduct had one plastic hinge that formed about half-way up the column, resulting in spalling of cover concrete and buckling of the primary vertical rebar, as well as yielding and severe distortion of the transverse hoop reinforcement. This plastic hinge was close to failure, which could have brought down the entire viaduct. Onset of other column plastic hinges above the base were also seen, at this viaduct and the other two viaducts discussed in this article, but not at such high levels of plastic curvature and rotation. This unusual re-location of column plastic hinges was due to primary vertical rebar cutoffs up the column height, that all three

of the damaged viaducts discussed herein had, which shifts the intersection point of column moment demand and capacity envelops to above the column/footing interface.

The seismic retrofit for these three viaducts consisted of placing steel shells around most of the columns, either full-height or partial-height, and increasing the footing dimensions, with added rebar and steel micropiles. At less important parts of the longer columns, far from potential plastic hinge positions, FRP strengthening was applied to the columns, with fibers provided in both directions.

While these three significant bridges of the 14 viaducts along the important TAG Highway were damaged, none of them collapsed and all were saved for future use by the on-going seismic retrofitting, with no closure to vehicles. It is

expected that under a future large earthquake of similar size to the 2023 earthquake, these retrofitted bridge structures would not be critically damaged. However, it is unlikely that an earthquake of this magnitude would hit these structures again within their remaining service life. ■

Full references are included in the online version of the article at STRUCTUREmag.org .

Cenan Ozkaya got his B.S., M.S. and Ph.D degrees from the Civil Engineering Department of Middle East Technical University-Turkey. He is working as Technical Manager in the PONTEM Engineering Company.

Robert K. Dowell received his B.S. degree in Civil Engineering from San Diego State Univeristy (SDSU), and his M.S. and Ph.D degrees in Structural Engineering from the University of California at San Diego (UCSD). He is a licensed Civil Engineer (PE) and a Professor of Structural Engineering at SDSU.

Faruk Yildiz got his B.S. degree from the Civil Engineering Department of Yildiz Technical University-Turkey, and is working at the Motorway Division of the General Directorate of State Highways-Turkey.

Fig. 12. Seismic retrofit construction at Sehitler Viaduct included partial-height steel shells on the columns and footing strengthening.
Fig. 13. Overall view and column retrofit of the Baspinar Viaduct is shown.

The Untapped Potential of Japanese Wood Joinery in American Construction

Blending tradition with innovation builds stronger, more sustainable structures.

Various kinds of framing systems serve critical parts of construction that influence both the strength and aesthetic appeal of wooden structures. For hundreds of years, carpenters across the world have perfected techniques for joining pieces of wood together. Among the most

sophisticated and refined of these are the techniques developed in Japan, known as Japanese wood joinery. This is a framing system that utilizes complex interlocking joints without nails or screws and has been used for centuries in the building of traditional houses, temples, shrines, houses, tea houses, castles, and palaces. The precision, sustainability, and aesthetic beauty of these joinery techniques make them not only unique but also highly relevant in today’s construction industry, especially in the U.S. In recent years, as the U.S. construction industry becomes more environmentally conscious and seeks to balance durability with design flexibility, Japanese wood joinery presents an opportunity to revolutionize the way we build.

The Roots of Japanese Wood Joinery

Japanese wood joinery, often referred to as kigumi (木組み)—or the overall system and philosophy of joining wooden components without the use of nails, screws, or other metal fasteners - is a centuries-old tradition that emphasizes the seamless fitting of wood pieces without the need for nails, screws, or adhesives. Instead, carpenters use interlocking joints that rely on the wood’s natural characteristics, creating strong, flexible, and precise connections. These techniques have been passed

Japanese joinery is showcased in Japan’s Pavilion at Expo 2015 Milan. (Photo credit: Wikimedia Commons)
A Japanese carpenter works a piece of wood in the early 20th Century. (Photo credit: Wikimedia Commons)

down through generations and are still employed in traditional Japanese architecture, including temples, shrines, and residential homes.

The most famous examples of Japanese wood joinery include straight joints (tsugi), angle joints (shiguchi), mortise and tenon, dovetail, and various specialized techniques like Kigoroshi (a technique of compressing the tenon when making a joint), Kawai Tsugite (a joint that allows for connecting wood from three directions) and Yatoizane Hagi (a method for joining floorboards). These methods, while extremely detailed and intricate, are designed to allow buildings to endure harsh natural disasters such as earthquakes while maintaining their structural integrity. Japanese architecture also utilized specific types of wood, like cypress (hinoki) and cedar (sugi), known for their natural resistance to moisture, termites, mold, and bacteria.

Sustainability and Environmental Benefits

One of the most compelling reasons to adopt Japanese wood joinery in American construction is the emphasis on sustainability. In the U.S., the construction industry is one of the largest contributors to carbon emissions. The use of wood in construction has long been considered a more environmentally friendly option compared to steel or concrete, primarily due to the carbon storage properties of wood and its renewable nature. However, the widespread use of nails, screws, and adhesives in modern wood construction negatively contributes to the environmental footprint of timber buildings. The widespread use of nails, screws, and adhesives in modern wood construction significantly impacts the environmental footprint of timber buildings. Mechanical fasteners, such as screws and staples, contribute approximately 17% of the total environmental impact in timber frame walls, while connectors and fasteners in multi-storey timber buildings account for up to 25.7% of the cumulative energy demand (CED) in the structural components (ResearchGate, 2023). Additionally, adhesives, particularly synthetic types, are major contributors to greenhouse gas emissions, with glulam production showing adhesive-related emissions of up to 38% (JWoodScience, 2023). These fasteners and adhesives, often derived from petroleum-based sources, increase embodied energy and emissions, underscoring the need for more sustainable alternatives (AlignedProject, 2023).

Japanese wood joinery, on the other hand, eliminates the need for these materials by relying on intricate, self-locking joints. This reduces the amount of metal and chemical products required and minimizes waste. Because the joinery methods are designed to create a lasting, strong structure, buildings constructed with these techniques have a much longer lifespan, often enduring for centuries, whereas the average lifespan of an American home is typically estimated at around 70 to 100 years, depending on materials, maintenance, and location. This is due in part to the fact that contemporary American timber construction tends to prioritize speed and cost over longevity. The emphasis on natural materials also aligns well with the growing desire in the U.S. for more environmentally conscious construction practices, such as the adoption of green building standards like LEED (Leadership in Energy and Environmental Design).

Moreover, Japanese carpenters often use timber from sustainably managed forests, ensuring that the materials used are renewable and responsibly sourced. By adopting similar practices here, we

could reduce our reliance on non-renewable construction materials and promote forest conservation.

For timber suitable for Japanese joinery that is widely available in the U.S., White Oak and Hard Maple stand out as potentially excellent choices. White Oak, abundant in the Eastern and Central U.S., offers strength, durability, and a straight grain, making it ideal for both structural and aesthetic joinery. Hard Maple, common in the Northeast and Great Lakes regions, is dense, fine-grained, and highly workable, making it perfect for detailed, precision cuts. These two species are locally sourced across large regions of the U.S., minimizing the need for long-distance shipping, and providing a sustainable option for traditional Japanese-style woodworking.

Additionally, the structural quality of traditional Japanese timbers like hinoki and sugi—known for their tight grain, rot resistance, and dimensional stability—makes them ideal for long-lasting joinery, in contrast to commonly used Western species like Douglas Fir, which, though strong, is more prone to warping, checking, and decay over time, especially when fast-grown

Aesthetic Appeal and Design Flexibility

Japanese wood joinery also has exceptional aesthetic appeal. The visible, intricate joints are functional while creating a beautiful, organic look that enhances the natural beauty of wood. Unlike the typical reliance on drywall or other materials to conceal joints, Japanese carpentry embraces them as a key design element.

This focus on craftsmanship and visible joinery can bring a sense of elegance and timelessness to modern American construction. Whether in commercial, residential, or public spaces, Japanese joinery can introduce a level of artistry that is often missing in contemporary architecture. The clean, minimalist aesthetic of Japanese wood joinery also complements the trend in the U.S. for sustainable, natural design elements, where the materials themselves become an integral part of the interior and exterior style. This can be seen in the Sunny Hills project in Minami Aoyama, designed by Kengo Kuma and Associates.

Additionally, the modular nature of many Japanese joinery techniques offers flexibility in design. The ability to create versatile and customizable spaces without the use of heavy framing systems or supporting walls opens new possibilities in interior layout and flow.

Traditional Japanese walls in joinery-based construction are unique for

A bamboo forest edges a koi pond in Kyoto, Japan. (Photo credit: Don Ramey Logan, Wikimedia Commons)

their flexibility, modularity, and use of natural, breathable materials. Built within a post-and-beam framework (mokuzō jikugumi kōhō), the walls are non-load-bearing, allowing for lightweight, movable partitions such as shoji (sliding paper screens) and fusuma (opaque sliding doors), which enable spaces to adapt to changing needs and seasons. These walls are constructed without nails, using precise joinery techniques that allow the wood to expand and contract naturally, enhancing durability and seismic resilience. Traditional materials like clay plaster, bamboo lath, washi paper, and natural wood regulate indoor humidity and promote a healthy environment. Proportioned to tatami mat dimensions and reflecting wabi-sabi aesthetics, these walls contribute to the overall harmony, simplicity, and adaptability that define Japanese architecture. The adaptability of these joinery methods could result in more innovative, creative, and flexible designs for both residential and commercial properties.

Strength and Durability

While the beauty of Japanese wood joinery is often the focal point, its durability and resilience are equally impressive. The flexible interlocking joinery in traditional Japanese structures - typically combined with heavy, overhanging roofs and floors tied to the frame - can absorb lateral wind loads and seismic forces up to 1.5× greater than rigid Western-style fastened joints, making the roof less likely to uplift during typhoons and earthquakes. Also, the deep eaves typically used often extend up to 6 feet beyond the outer walls, allowing effective runoff and ventilation that prevents water retention and decay - this design coupled with naturally rot-resistant wood like hinoki or sugi (density ~300–420 kg/m³, Young’s modulus ~8 000 MPa) dramatically reduces moisture damage compared to fast-grown American counterparts. The intricate joinery methods employed in traditional Japanese architecture have been shown to create structures that are remarkably resistant to seismic activity. In particular, many of the joints, such as the kigumi, are designed to allow for a degree of movement, enabling the structure to flex and absorb shocks rather than crack or collapse. This joinery resists seismic forces through flexible mechanisms like column rocking and rotational resistance at beam–column joints; full-scale tests show that up to ~0.5% story drift, column rocking provides primary resistance, while beyond ~1%, tie-beam embedment takes over as the dominant restoring force. One example is the 18th-century Yoshimura Residence near Osaka, which survived numerous earthquakes without modern lateral systems by using joinery-based frames, deep eaves, and a post-and-beam system designed to flex and dissipate seismic energy rather than resist it rigidly. In the United States, particularly in earthquake-prone areas like California, this level of seismic resilience could prove invaluable. Traditional Japanese joinery systems offer notable advantages in seismic performance due to their inherent flexibility and energy-dissipating capacity. Unlike conventional American timber construction, which is designed to limit inter-story drift to 2% or less (ASCE 7-16), Japanese joinery structures have been shown to tolerate drift ratios of up to 5% without immediate collapse, thanks to interlocking wooden joints that deform and recover rather than crack or shear. While contemporary platform framing relies on rigid nailed connections that may suffer sudden failure or brittle damage, Japanese systems allow controlled movement and distribute seismic energy across multiple joints, reducing the likelihood of catastrophic failure. Additionally, these joints are often easier to inspect, disassemble, and repair, allowing for long-term resilience and sustainability after seismic events. This adaptability makes traditional joinery particularly valuable in regions where earthquakes are frequent but repair access may be limited. By integrating these traditional Japanese techniques into modern

American construction, buildings could be made much safer and better equipped to handle natural disasters.

However, implementing traditional Japanese joinery systems in high seismic zones under U.S. building codes, such as the IBC and IRC, would require several code adaptations. The IBC mandates engineered lateral systems like shear walls or moment frames, which traditional post-andbeam structures lack, so base isolation systems might be incorporated to maintain the aesthetic while meeting seismic demands. Additionally, the use of joinery without nails or screws conflicts with the requirement for positive connections, but this could be addressed by submitting an Alternative Materials and Methods request and backing it with structural analysis and testing. Cantilevered columns, which are not allowed in high seismic zones, could be designed as part of a moment-resisting frame or enhanced with seismic dampers. Fire-resistance requirements would necessitate substitutions like fire-retardant treated wood or fire-rated materials, especially for exposed natural finishes. Lastly, compliance with energy codes would require integrating modern insulation and air-tight systems behind traditional materials. While the IRC offers more flexibility for residential projects, achieving code compliance for Japanese-style construction would require a combination of engineered solutions and performance-based approvals.

Furthermore, Japanese wood joinery can improve the overall structural integrity of wooden buildings. Traditional methods create tight, precise connections that enhance the building’s stability and long-term strength. As the United Stated looks for ways to improve the sustainability and safety of its infrastructure, Japanese joinery techniques offer a proven solution.

Sashimono joinery is on display in The Craft of Carpentry exhibit at Japan House London. (Photo credit: Wikimedia Commons)
The Saikyō-ji Shōrō tower in Fukuoka City showcases Japanese carpentry in its columns, beams, and girders. (Photo credit: Wikimedia Commons)

Cultural Enrichment and Globalization

Incorporating Japanese wood joinery into U.S. construction can also enrich the American cultural landscape. As globalization continues to influence architecture, the blending of different cultural techniques and philosophies has become an essential element of modern design. Japanese carpentry, with its deep roots in respect for nature, precision, and balance, brings a unique cultural perspective that can elevate American architecture.

Moreover, a growing appreciation for Japanese culture in the U.S., including cuisine, design, and technology, makes the integration of traditional Japanese craftsmanship into modern construction an exciting opportunity for cross-cultural exchange. The use of Japanese wood joinery in architecture can foster greater understanding and appreciation for Japan’s rich cultural heritage, while also enhancing the quality and diversity of American design.

The Cost and Longevity of Traditional Japanese Joinery—A Comparison With Modern American Construction

While traditional Japanese joinery is undeniably more labor-intensive and time-consuming compared to modern American timber construction, its long-term benefits can outweigh the initial costs. Skilled carpenters in Japan spend several months on crafting intricate joints like the kigumi or kanawa, with labor rates ranging from $100–$200 per hour. In comparison, modern American framing relies on quicker, more cost-efficient methods, with general laborers earning $40–$70 per hour and projects completed in 4–6 months at a fraction of the labor cost. For example, the Kinkaku-ji Golden Pavilion in Kyoto, originally constructed in 1397, remains standing today after centuries of earthquakes, fires, and other natural disasters—largely due to its meticulous joinery and the durability of materials like Japanese cypress. Similarly, the Yoshimura Residence near Osaka, built in the 18th century, has endured numerous earthquakes without requiring major repairs, thanks to its timber frame system designed to flex with seismic forces. These examples highlight that, despite requiring 12–18 months to complete compared to a modern American home (which might take just 4–6 months), Japanese timber structures can outlast modern houses by several centuries, requiring little to no major repair work for 100–300 years. Ultimately, while upfront construction costs and labor intensity for Japanese joinery may be significantly higheroften reaching $40,000–$60,000 for a traditional wooden house - the durability and low maintenance costs associated with these structures can result in long-term savings and an architecture that is capable of enduring the test of time. The higher initial labor costs are often seen as an investment, as the lifespan of a Japanese timber house can be 2–3 times longer than that of a modern American home, which may require substantial renovations every 50–70 years.

Untapped Potential

Japanese joinery techniques can be effectively implemented in the U.S. using locally sourced, sustainable timbers such as White Oak and Hard Maple, both of which are abundant in the U.S. and well-suited to traditional joinery due to their strength, grain, and workability. These wood species not only offer structural stability but are also available through FSC-certified sources, ensuring sustainable harvesting and minimal environmental impact.

While the primary challenge of implementing traditional Japanese joinery in the U.S. lies in its labor-intensive nature, advancements in CNC machining allow for more precise and efficient fabrication of the intricate joints, reducing labor time and making the process more affordable. Hybrid construction methods - where traditional joinery is reinforced with modern steel connectors or hidden fasteners - can also help overcome code limitations, making this approach more adaptable to contemporary U.S. building practices, particularly in seismic regions where flexibility is key.

The sustainability of Japanese joinery is another significant advantage: it avoids the need for metal fasteners, adhesives, or composites, which typically have high embodied energy. Furthermore, timber construction inherently promotes carbon sequestration and thermal efficiency, making it an eco-friendly choice. The long lifespan of buildings constructed using these techniques, often surpassing 300 years, also means that, over time, maintenance and repair costs can be drastically reduced, offsetting the initial higher costs of craftsmanship. While traditionally used for bespoke, high-end residential or cultural buildings, the integration of Japanese joinery could be particularly advantageous in low-carbon, resilient, and custom homes - especially in seismic zones like California or the Pacific Northwest, where the material’s flexibility and energy dissipation characteristics are crucial.

With growing interest in sustainable, regenerative design and material longevity, Japanese joinery could serve as a model for a more craft-centered, durable approach to modern U.S. timber construction. ■

Ralph Hage is an Architect who divides his time between Lebanon and the United States.
Designed by Kengo Kuma and Associates, Sunny Hills—a cake shop in Minato, Japan displays Jigoku-gumi—a traditional Japanese woodworking technique that translates to “interlocking hell.” (Photo credit: Wikimedia Commons)

structural DESIGN

10Things Every Structural Engineer Should Know

Essential information regarding embodied carbon and concrete are shared here.

This is the second in a series of lists developed by the SE 2050 Resources Working Group to communicate essential information that every structural engineer should understand about the topic of embodied carbon as they approach their work, and it is focused on concrete. See http://SE2050.org to learn more about both the commitment program and embodied carbon in general.

1. Concrete is a significant contributor to climate change.

The concrete industry is responsible for approximately 7% of global greenhouse gas (GHG) emissions and 1.5% of domestic GHG emissions. Vast quantities of concrete are required to build and maintain our built environment, leading concrete to be the second most used material in the world, behind water.

2. Most of the emissions from concrete come from cement production.

Approximately 88% of the emissions from concrete are associated with cement production, with the remainder coming from the production of other constituent materials and transportation. Production of portland cement involves first manufacturing clinker from limestone and clay in a kiln heated to extremely high temperatures (>2500°F). The limestone undergoes a process called calcination that releases carbon dioxide as a byproduct. The resulting clinker is ground to a fine powder and mixed with other components to create different cement types. Approximately 50% of cement’s GHG emissions come from “process emissions” associated with calcination of limestone, 40% from thermal (energy) emissions from burning fuel to heat the kiln, and 10% from other sources, such as transport of materials and the grinding processes.

3. Specifiers should allow all cement types to be utilized including ASTM C150, ASTM C595, and ASTM C1157.

Traditionally, cement has been synonymous with Ordinary Portland

Cement (OPC) conforming to ASTM C150. As the industry targets reductions in GHG emissions, alternate cement types will become increasingly common. Portland-Limestone Cement (PLC) is one of these alternatives, specified as Type IL under ASTM C595 . PLC introduces limestone to replace a portion of the clinker leading to an average of 8% reduction in GHG emissions compared to OPC, and can be manufactured to provide comparable performance to portland cement. A ready-mix supplier will often switch from OPC to PLC all at once as they typically do not have infrastructure available (silos) for storing numerous cement types. In recent history, entire markets or states have made this change. ASTM C595 also contains specifications for blended cements containing pozzolans, slag, and ternary blends, which may become more widely available in the future. ASTM C1157 is a performance-based standard for hydraulic cement. See the Blended Cements and Supplementary Cementitious Materials section of the Specification Guidance page at SE2050.org for additional information.

4. Aggregate, water, and admixtures are also important components of a concrete mix.

Aggregate quality has a significant impact on the performance of a mix. High-quality aggregate reduces the amount of cement required to achieve a specified strength. The water-cementitious materials ratio (w/cm) is also a key variable to the performance of a mix, influencing the amount of cement required and impacting nearly all fresh and hardened concrete properties. Freshwater usage is a parallel sustainability issue along with GHG emissions. ASTM C1602 permits the use of non-potable water sources meeting certain quality requirements, which can reduce concrete’s impact on freshwater sources. ASTM C494 water-reducing admixtures can allow mixes to use less water, use less than ideal aggregate, improve early strength gain, improve placement and finishing characteristics, and improve performance when utilizing new and innovative materials. Aggregate quality and availability is regionally dependent, and some markets may import aggregate from other areas to improve mix performance and meet market demand.

Photo courtesy American Concrete Association

5. Performance-Based

Specifications support embodied carbon reductions.

Specifications should only dictate the required performance of the concrete without prescriptive requirements for materials and mixture proportions. Prescriptive specification requirements such as minimum cement contents, maximum supplementary cementitious material (SCM) contents, or maximum w/cm can lead to overdesigned mixes and restrict the concrete supplier’s ability to reduce embodied carbon while still delivering a mixture that satisfies the required performance criteria. Global warming potential limits on a mixture or a project-wide basis are examples of performance criteria that will become increasingly common to specify along with traditional requirements for strength, shrinkage, and durability. See the Performance Specifications section of the Specification Guidance page at SE2050.org for additional information.

6. Environmental Product Declarations (EPDs) quantify reductions and inform decisions.

The concrete industry is a leader in the development of EPDs. EPDs are becoming increasingly available from local suppliers for specific mix designs from specific batch plants. The NRMCA publishes industry-wide average EPDs, which are the industry standard for establishing baselines. NRMCA also has published regional data offering additional granularity when desired. Typical values of GHG emissions for concrete are between 200 and 400 kg CO2e/yd3. Refer to the Environmental Product Declarations (EPD) page at SE2050.org for additional information.

7. Reduction Strategy: Compressive Strength (f’c)

On average, an increase in specified compressive strength is directly correlated with an increase in GHG emissions. Consider specifying f’c based on testing at 56 or even 90 days in lieu of 28 days. Be efficient with your choice of compressive strength in design; don’t over specify and add additional mix types as appropriate. Improved data and quality control in the field and at the ready-mix plants can reduce the factor of safety in mix designs and allow for reductions in cement to achieve the specified strength. See the Concrete Strength section of the Specification Guidance page and the Concrete Strength and Mix Selection section of the Design Guidance page at SE2050.org for additional information.

8. Reduction Strategy: Efficient use of material

Make designs more efficient by leveraging coordination and calculations. Get involved early in the design process to influence the building form and material selection. Be diligent through the design process. Design choices that have a significant impact on efficiency include transfers, podiums, below grade construction, foundation system selection, post-tensioned versus mildly reinforced slabs, utilization of drop caps, span lengths, and

irregular column spacings. Structural engineers can and should help inform architects and owners about these issues. More detail is provided on these strategies in the Build Light – Concrete section of the Design Guidance page at SE2050.org.

9. Reduction Strategy: Supplementary Cementitious Materials (SCM)

Replace cement and maintain performance. Fly ash has been historically available and cheaper than cement, and has a proven track record, but the supply of fresh fly ash is expected to decline over time, and it is likely other SCMs will need to be implemented. Ground granulated blast furnace slag (GGBFS, or slag cement), raw natural pozzolans, and silica fume are other traditional options. Newer alternatives include calcined clays, harvested and/or beneficiated fly ash to supplement traditional sources, ground bottom ash (ASTM C618 now utilizes the term “coal ash” to reflect a variety of ash sources), and ground glass pozzolans produced from post-consumer recycled glass. Many SCMs contribute to improved durability characteristics and later-age strength gain. High replacement rates can slow strength gain, especially in cold weather. Material availability varies regionally, and it is best practice to talk with your local ready mix suppliers regarding material availability. See the Blended Cements and Supplementary Cementitious Materials section of the Specification Guidance page at SE2050.org for additional information.

10. Reduction Strategy: Innovation

Significant reductions in GHG emissions will require innovation. Engineers are likely to see new systems and materials enter the market in the future including new structural systems, CO2 capture and sequestration technologies, novel SCMs, novel cements, and new admixtures. Collaboration and research will be required. Innovation can and will come from structural engineers, architects, concrete suppliers, contractors, and new players to the market. Industry groups such as the National Ready Mix Concrete Association (NRMCA) and the American Cement Association (ACA) are available to support innovation with resources and expertise. Mockups and test placements are useful tools to aid in the successful implementation of innovative materials and mixtures, combined with adherence to best practices for placing, finishing, and curing on the jobsite. See the Specialty Services and Technologies section of the Specification Guidance page at SE2050.org for additional information. ■

Full references are included in the online version of the article at STRUCTUREmag.org .

The SE 2050 Resources Working Group produces, maintains, and publishes resources on the SE 2050 website for structural engineers on the topic of embodied carbon. More information on the SE 2050 Commitment can be found at SE2050.org.

Photo courtesy American Concrete Association

structural FORUM

Don’t Let Your Culture Become a Commodity

Embracing individuality in AEC brands matters.

In the Architecture, Engineering, and Construction (AEC) industries, technical expertise may get you in the door, but your brand—an authentic expression of your culture—is what truly sets you apart in a field where it is all too easy to become a commodity. Brand transparency means being genuinely open, honest, and clear about operations, products, and values. In AEC firms, messaging around sus tainability, innovation, and community often fills mission statements and websites. These same values externally define a company’s brand with both clients and potential hires. But according to MIT Sloan, while over 80% of large firms publish values like integrity, innovation, and trust, many don’t live up to them—and that “walk‑the‑talk” gap hurts both employee and client satisfaction.

Transparent Leadership Styles: Blending Flexibility with Structure

Leaders with flexible mindsets embrace individuality and recognize that different people have diverse needs and working styles. In turn, they foster an inclusive environment where everyone can contribute effectively. Two leadership styles dominate in AEC:

• Transactional leadership: task‑oriented, with clear expectations and rewards—ideal for routine, deadline driven environments like job sites.

• Transformational leadership: inspiring innovation and moti vating around shared vision and values—crucial for complex, creative projects.

Effective AEC leaders blend both transactional and transformational styles—but it’s essential they communicate that blend clearly. If leaders don’t show how they balance expectations with inspiration, employees might feel only the pressure (transactional) or only the lofty vision (transformational). When employees understand both sides of the leadership style, they’re more likely to feel seen (recognized as individu als), supported (given tools and guidance), and understood (aligned with the vision and values). In fact, PricewaterhouseCoopers (PwC), a global professional services firm, reports that when employees feel their leaders embody similar values and purpose, 83% see corporate culture as a competitive advantage in crises. In short, effective AEC leaders balance structure with flexibility—and they must be transparent about how they’re doing it, so employees don’t feel lost or undervalued.

Trust and Individualization: The Real Foundations

Trust is built through consistent, transparent, and authentic lead ership. Patrick Lencioni’s Teamwork Pyramid (Fig. 1) is a concept

from his book, “The Five Dysfunctions of a Team”, which outlines the foundational elements needed for a high functioning, cohesive team. Similarly, Maslow’s pyramid Fig. 2), or hierarchy of needs, is a motivational theory by psychologist Abraham Maslow, which pres ents that human needs are arranged in a five tier pyramid structure. The pyramids are a hierarchical representation of needs, whether personal or professional—and both emphasize trust as foundational. Trust only takes root when leaders recognize employees as whole people with unique work styles and life circumstances. Yet too often, AEC firms measure physical presence or adherence to a perceived stereotype of success instead of actual outcomes and contributions. By doing so, companies exude a lack of trust and overlook diverse perspectives and preferred workstyles that may lead to increased productivity and results.

The bottom line is that a company that leads with trust and

Fig. 1. Patrick Lencioni’s Teamwork Pyramid outlines the elements needed for a cohesive team at work.

commitment will get that in return as exemplified by the pyramids. Employee commitment and trust are foundational to a culture of accountability and are directly linked to superior business results. Research shows that in high-trust companies, employees are more productive, motivated, and engaged, which creates a positive cycle of ownership and achievement. Ultimately, empowered individuals produce better work—and more of it.

Culture: Brand Promise Meets Employee Experience

An employee’s perception of corporate culture directly shapes how they uphold a company’s brand. While most engineering leaders assert that they champion transparency—promising clients exactly what their firms can deliver—it’s essential to ask: Are you building the culture you’re selling?

A flexible mindset means being open to change, adapting to new situations with resilience, and embracing opportunities for growth and innovation. Many companies highlight these qualities as part of their brand, but these values often do not translate to the individuals that work there. Based on responses to recent SEA presentations, both firm owners and staff identified communication and collaboration as priorities for a positive corporate culture.

For recent college graduates who are used to supportive academic environments, the shift to consulting engineering can feel jarring. Polling at a recent SEA gathering revealed a common perspective among engineers that the employee experience is vastly different from the college experience. Entrepreneurial, team - oriented cultures often clash with the mentorship and safety nets recent graduates expect.

Global business consulting firm, Boston Consulting Group’s (BCG) Trust Index, shows that companies recognized for being competent, fair, transparent, and resilient generate 2.5x more value than average. AEC firms aren’t immune. If your brand leans on creativity and collaboration, your internal culture must reflect that—or risk disappointing both staff and clients. Edelman data confirms that 91% of professional clients prioritize brand authenticity—and 88% consider trust vital to long-term relationships.

A company’s staff is arguably its most valuable assets, as they produce the work that generates revenue. To win more projects (and thus make more money), firms need properly trained and engaged personnel who can deliver on time and within budget. It’s a cyclical ecosystem: winning projects requires delivery, which requires investing in people.

Diversity + Inclusion = Sustainable Innovation

Diverse teams outperform—when fully included. Both BCG and McKinsey, a global management consulting firm, have found that inclusion—where different perspectives are heard and embraced—is essential. While diversity doesn’t guarantee success, inclusion does. In a sector that thrives on innovation and complex problem-solving, inclusion drives measurable gains in productivity, safety, and design outcomes; data indicates that inclusive leadership correlates with

33% greater profitability.

When employees are compelled to adopt values and workstyles misaligned with their own, their unique strengths are stifled, leading to diminished engagement and performance. That undermines morale, retention, and creativity. Inclusive cultures—encouraging respectful debate, empathy, and recognition of individuality—fuel long-lasting innovation, as Lencioni’s Triangle suggests.

The Bottom Line: Individuality Fuels Culture, Innovation, and Growth

If your brand messaging claims transparency, creativity, integrity, or sustainability—but your culture is transactional, rigid, stereotyped or attendance - focused—your brand is built on a mirage. Instead, consider asking:

• Do employees feel transparency and support from leadership as much as clients do?

• Does your internal culture match what you promote externally?

• Are you investing in people—offering flexibility, mentorship, and trust?

When firms treat employees as individuals—with diverse workstyles, ambitions, and personal needs -- they empower a culture of growth, ownership, and loyalty. That not only attracts talent but delivers brand promises of resilience, innovation, and real value. Let people be individuals—and they’ll become engineers of your success. ■

Rachel Mosier, PE, Ph.D, is an Associate Professor in Construction Engineering Technology at Oklahoma State University in Stillwater, OK (rachel.mosier@ okstate.edu).

Erin Conaway, PE, LEED AP, is the Senior Director of Building Initiatives with the American Institute of Steel Construction, and is based in Phoenix, AZ (conaway@ aisc.org).

Fig. 2. Abraham Maslow’s Pyramid, or hierarchy of needs, represents a motivational theory.

Case Engineering Designs Structural Support for WOW! Entertainment Center

Case Engineering’s structural team is collaborating with ARCO Construction on a new, state-of-the-art WOW! family entertainment center in Fenton, MO.

Under construction at 130 Fiedler Lane off Hwy. 141, the $15 million, two-level interactive entertainment complex will feature a restaurant and bar, 18-hole mountain-style miniature golf course, eight lanes of duckpin bowling, Top Golf Swing Suite simulators, polysynthetic ice curling, virtual reality booths, karaoke rooms, private event spaces, and an outdoor patio.

Case designed the building’s steel frame and provided structural performance criteria for design of the building’s tilt-up wall panels. Tilt-up construction, which involves casting concrete wall panels on-site and tilting them into place, is gaining popularity due to the method’s cost effectiveness, customization opportunities, durability, energy efficiency, and fast installation.

Additional features of the 24,000 sq ft facility’s structural design include a 3,000-square-foot interior mezzanine and two-tier roof. The roof is constructed of steel-framed bar joists and joist girders, with the highest roof deck elevated to 31 feet.

“Using tilt-up panels simplified the construction process and accelerated the

overall timeline, contributing to a more efficient build,” said Case Engineering Principal/ Senior Structural Engineer Ardie Mansouri, PE. “A steel moment frame was incorporated to resist lateral wind and seismic loads associated with the two roof structures at separate

elevations, while also allowing for open spans between column bays below in lieu of braced frames—providing unobstructed space critical to the building’s functional use.”

Construction on the complex is expected to be completed in late 2025.■

USGS Unveils New National Geologic Map

I

n a significant advancement for geoscience, the U.S. Geological Survey has released the most detailed national-scale geologic map of the country to date, offering a unique regional view of geology at and beneath the Earth’s surface.

The new USGS map, called The Cooperative National Geologic Map, was created using more than 100 preexisting geologic maps from various sources and is the first nationwide map to provide users with access to multiple layers of geologic data for one location. This feature allows users to access the multiple data sources included in the map to

look at or beneath the surface to understand the ancient history of the nation recorded in rocks.

These layers can offer new insights into the geology of the nation, enabling more efficient analysis of natural hazards and geologic resources. Currently, the map covers the lower 48 States, but plans are underway to add content for Alaska, Hawaii, and the U.S. territories.

The new interactive web tool was designed to be as user friendly as possible, making it accessible to both geologists and the public. Users can search for specific properties of

geologic units or click on the map for additional geologic information and links to more detailed maps of local areas.

To access the map, visit The Cooperative National Geologic Map website at www. usgs.gov and explore the geological features of the nation. Development of this Website and integration of this new product into the national archive was led by the National Geologic Map Database. The geologic data layers, and links to the accompanying report and geospatial services, are found at the National Geologic Map Database landing page for this new publication.

Mills Foundations, Nixa, Mo., won Grand Project of the Year for the Parsons Residence Stonebridge Subdivision (Single Family Foundation 5,000–10,000 sq. ft.).

Concrete Foundations Association Announces 2025 Projects of the Year Awards

The Concrete Foundations Association (CFA) unveiled the winners of the 2025 CFA Projects of the Year and Professional Awards in July.

2025 Project of the Year Awards

Awards were presented in six categories, along with the Grand Project of the Year. The category winners are as follows:

• Single Family Foundation <2,000 sq. ft.: UniFoundations Inc., Orrstown, Penn., for the Lake Holiday Home. This project tackled the challenges of a steeply sloped site with innovative solutions, including a parking area retaining wall that supports a walking bridge—the sole access to the residence.

• Single Family Foundation 2,000–5,000 sq. ft. MJ Lorenz Concrete, Forest Lake, Minn., for Christmas Lake Curve. The project showcased advanced layout techniques, precise reinforcement coordination, and expert formwork solutions, resulting in a high-quality structure ready for framing.

• Single Family Foundation 10,000–15,000 sq. ft.: Herbert Construction Co., Marietta, Ga., for Lake Rabun House. This project overcame

tight site conditions and remote access challenges with technical precision, delivering a stunning residential structure that exemplifies craftsmanship and expertise.

• Non-Foundation Structural Element: SDP Concrete Ltd., Maple Ridge, British Columbia, Canada, for Walls to Nowhere. Completed in just 13 days, this project demonstrated exceptional foresight, resource efficiency, and meticulous attention to detail, achieving both technical precision and aesthetic excellence.

• Above-Grade Concrete Home: Origin Concrete, Inc., Melbourne, Fla., for the Summer Residence. This project highlighted the resilience and versatility of concrete, combining innovative materials and techniques to create a durable, disaster-resistant home with intricate architectural design.

• Above-Grade Commercial Concrete Project: Fox Blocks, Omaha, Neb., for the White Shield Old Scouts Veterans’ Memorial Center. The ICF walls were completed in just 25 days, saving 40 days compared to traditional methods and reducing costs by $120,000. This project exemplifies the adaptability and efficiency of advanced formwork systems, meeting cultural and technical complexities with sustainable solutions.

• Grand Project of the Year: Mills Foundations, Nixa, Mo., for the Parsons Residence Stonebridge Subdivision (Single Family Foundation 5,000–10,000 sq. ft.). This project overcame significant site challenges with innovative planning, precise craftsmanship, and advanced formwork technologies. The result is a showcase of modern residential construction, demonstrating exceptional problem-solving and streamlined processes.

Professional Awards

CFA also recognized individuals and companies for their outstanding contributions to the industry:

• 2025 Associate of the Year: Jimmy Ingman, Progressive Foam Technologies, Beach City, Ohio.

• 2025 Contractor of the Year: Custom Concrete, Westfield, Ind.

• Most Innovative Contractor: Erik Rusin and Katie Walker, Retti, Inc., Elbert, Colo.

• Kick-Start Membership Award: Jeff Dumas, Concrete Construction, West Jordan, Utah

• Robert D. Sawyer Distinguished Service Award: Ron Ward, CEO, Western Forms, Kansas City, Mo. ■

IN BRIEF

Frangopol honored with IASSAR’s inaugural Distinguished Service Award

Dan M. Frangopol, Professor of Civil and Environmental Engineering, Emeritus, and Inaugural Fazlur R. Khan Endowed Chair of Structural Engineering and Architecture, Emeritus, at Lehigh University, is the inaugural recipient of the Distinguished Service Award presented by the International Association of Structural Safety and Reliability (IASSAR).

The honor, which was established in 2013 and bestowed for the first time at the 14th International Conference on Structural Safety and Reliability (ICOSSAR’25) in Los Angeles, recognizes an IASSAR member who has provided long and sustained service to the organization.

Over his decades of involvement with IASSAR, the leading professional organization in the field of structural safety and reliability of engineering systems, Frangopol has served a number of leadership roles, including Vice-President (2013-17); Executive Board Chair (2006-13); Awards Committee Chair (2017); Vice-Chair of Technical Committee 3 on System Reliability and Optimization (2001-10); and Founding Chair of Technical Committee 4 on Life-Cycle Performance, Cost and Optimization (2012).

AISC Releases Updated Design Guide for Composite Column Design

The American Institute of Steel Construction (AISC) has updated Design Guide 6, the steel industry’s cornerstone reference for designing steel-concrete composite columns.

The new edition of Composite Column Design (formerly Load and Resistance Factor Design of W-Shapes Encased in Concrete) adds guidance for square, rectangular, and round filled composite columns, all reflecting the modern requirements from the 2022 AISC Specification for Structural Steel Buildings. The updates also include the latest guidance for encased composite columns and designing connections to composite columns. A new spreadsheet-based tool can help designers calculate available axial, flexural, and shear strengths of composite members.

“Composite steel-concrete columns remain a fixture of the built environment, and it’s very important that designers stay up-to-date on best practices,” said AISC Vice President of Engineering and Research Christopher H. Raebel, SE, PE, PhD. “This updated design guide is an easy one-stop shop developed specifically to help engineers do precisely that.”Design Guide 6, 2nd Ed. is now available for download at aisc.org/dg. ■

KWK/Jenkins • Peer-Designed Residence Hall at Fayetteville State Univ. Completed

Construction is complete on a new $50 million residence hall, designed by the KWK/Jenkins • Peer Architects team, at Fayetteville State University (FSU) in Fayetteville, NC. The new 87,930-squarefoot Bronco Pride Hall welcomed 336 first year and sophomore students for the 2025 fall semester.

The university’s new, modern four-story hall is located on the former site of Vance Hall on its East Campus and includes single and double bedrooms, each with a dedicated bathroom. Study rooms are designed at each end of the building’s wings with the hall’s entrance and staircase prominently featured in the center of the building.

The co-ed hall also features a full-size kitchen on the first floor; a spacious, fullsize laundry room and multiple study rooms and breakout lounges for informal gatherings on each floor. To increase the hall’s

sense of community, architects designed a large, central lounge with extended glass looking out on the campus, plus a glass
surround staircase to complement newer, adjacent halls McLeod and Bryant in the East Campus residential district.

NCSEA News

NCSEA Publishes Design Guide for Low Seismic Regions

Structural engineers designing in low seismic regions now have a dedicated guide to streamline their workflow and improve accuracy. The National Council of Structural Engineers Associations (NCSEA) has released Basic Seismic Design Workflow with Examples for Low Seismicity, a 110-page resource available in both print and digital formats.

The guide provides a straightforward workflow and detailed examples that can serve as both a checklist and reference tool. By following a clear process, engineers can navigate ASCE 7 Seismic Provisions, promote consistency across projects, and reduce errors or omissions in their calculations.

Key Learning Objectives:

• Navigate ASCE 7 Seismic Provisions through a defined workflow.

• Apply seismic design principles using example calculations for simple buildings.

• Adapt the workflow to complex structures for consistent, reliable results.

The publication is designed for structural engineers at all stages of their careers. Those new to seismic design will gain practical knowledge and confidence, while experienced professionals will find tools to confirm assumptions and maintain calculation consistency.

Authored by the NCSEA Seismic Provisions Committee, including Thomas Heausler, David A. Fanella, Jun Ye, Patrick Lindblom, and Martin Maingot, and edited by the NCSEA Publication Committee, the guide reflects decades of expertise in seismic design and code development.

This publication is sponsored by Simpson Strong-Tie and DuraFuse Frames and is available for purchase at NCSEA.com. ■

Scholarship Recipients, Young Member Group Award Finalists Announced

The National Council of Structural Engineers Associations (NCSEA) is proud to announce the recipients of the 2025 Young Member Summit Scholarships and the finalists for the 2025 Young Member Group (YMG) Awards. These honors recognize the exceptional contributions of emerging leaders and young member groups within the structural engineering profession.

Young Member Summit Scholarship Recipients

Eighteen outstanding young engineers from across the country have been awarded free registration and a travel stipend to attend the 2025 NCSEA Structural Engineering Summit, taking place October 14–17, 2025, in New York City. These scholarships provide opportunities for the next generation of leaders to connect, learn, and grow within the structural engineering community.

Young Member Group Award Finalists

NCSEA is also pleased to announce the finalists for the 2025 Young

Member Group Awards, selected for their innovative programming, dedication to advancing young engineers, and contributions to their Structural Engineers Associations (SEAs) and local communities. They are:

• SEAoK—Kentucky

• SEAONC—Northern California

• SEAONY—New York Awards will be revealed at the Summit. The YMG of the Year and Breakout YMG of the Year will each receive $1,000 to support future initiatives, while the winner of the Best Event/Initiative of the Year will receive $500.

Travel stipends for these programs are generously provided by Computers & Structures, Inc., the Summit Anchor Sponsor.

NCSEA invites attendees to join us in celebrating these accomplished scholarship recipients and finalists at the 2025 NCSEA Structural Engineering Summit in New York City. To learn more, visit NCSEASummit.com. ■

Foundation Receives NCEES Grant to Advance Outreach

The NCSEA Foundation is proud to announce it has received a grant from the NCEES Foundation to launch a new outreach program designed to inspire future structural engineers and to promote the importance of professional licensure. The new initiative introduces K-12 students to the world of structural engineering through hands-on learning. At its core are educational toolkits featuring interactive, play-based materials like Play-Doh, LEGOs, and Mola kits. These activities are designed to spark curiosity, encourage problem-solving, and showcase the role structural engineers play in shaping safe, resilient communities. In addition to the classroom-focused materials, the program provides Structural Engineers Associations (SEAs) with a comprehensive advocacy toolkit. This resource equips state associations to communicate the value of structural engineering and professional licensure

to their communities and local policymakers. By highlighting how licensure protects public safety and upholds the quality of the built environment, the toolkit empowers SEAs to strengthen their existing outreach efforts.

This initiative builds on the momentum of NCSEA’s We SEE Above & Beyond campaign, which aims to elevate the visibility of structural engineers among architects, building owners and managers, and the broader AEC industry. Through this grant, the NCSEA Foundation extends that mission to the next generation, ensuring students not only learn what structural engineers do, but also understand the critical role licensure plays in protecting the public.

The NCSEA Foundation plans to roll out the pilot program with select SEAs later this year, gathering feedback before expanding the initiative nationwide. ■

News from the National Council of Structural Engineers Associations

NCSEA Announces 2025 Special Award Recipients

The National Council of Structural Engineers Associations (NCSEA) is proud to introduce the recipients of the 2025 NCSEA Special Awards, celebrating engineers who have gone above and beyond to serve the profession and NCSEA’s mission.

Each recipient will be honored this October at the 2025 NCSEA Structural Engineering Summit, taking place October 14–17 in New York City:

Service Award: Ryan Kersting, SE, FSEAOC

Ryan Kersting is a Principal at Buehler Engineering with nearly three decades of experience and a long record of dedicated service to NCSEA and the pro fession. He has served as NCSEA President, Board member, SEAOC Delegate, and contributor to numerous committees, while also spearheading the NCSEA Media Spokesperson program and fostering collaboration between California SEAs and NCSEA. His leadership extends nationally through influential roles on FEMA, NIST, and NEHRP initiatives, helping elevate both NCSEA and the structural engineering profession.

mentoring the next generation of engineers, fostering curiosity and confidence in wind design.

The Susan M. Frey NCSEA Educator Award is presented to an individual who has a genuine interest in, and extraordinary talent for, effectively instructing practicing structural engineers. The award was established to honor the memory of Sue Frey, one of NCSEA’s finest educators.

James M. Delahay Memorial Award: Abbie Liel, Ph.D, PE

The Service Award is presented to an individual who has worked for the betterment of NCSEA, its member organizations, and the profession, to a degree that is beyond the norm of volunteerism. The award recognizes those who have made a clear and lasting contribution to the organization and, by extension, to the profession.

Robert Cornforth Award: Scott Hargrove, M.S., PE

Scott Hargrove, M.S., P.E., is the Director of Engineering at Knott Laboratory with more than 18 years of experience in structural and forensic engineering. A dedicated leader in SEAC, he has served on multiple committees and the Board of Directors, including as President, and now continues his service as Past President and NCSEA Delegate. He also contributes to NCSEA’s Existing Buildings Subcommittee. Through his involvement, Scott has fostered col laboration, professional growth, and stronger connections within the structural engineering community.

Abbie Liel, Ph.D., P.E., is a Professor of Civil, Environmental & Architectural Engineering at the University of Colorado, Boulder, where her research focuses on assessing risks from earthquakes, hurricanes, snow loads, and other hazards to improve building safety and functional recovery. She is currently Vice Chair of the Functional Recovery Task Committee of the Building Seismic Safety Council’s NEHRP Provisions Update Committee. She also chairs the ASCE 7-28 subcommittee addressing future conditions of environmental loads to account for climate change, and serves on both the ASCE 7 Main Committee and the ASCE 7 Snow and Rain Loads Subcommittee. Widely recognized for her contributions to codes and standards, she is a fellow of ASCE and SEI and has received honors including the EERI Shah Family Innovation Prize and the ATC Award of Excellence.

The Robert Cornforth Award is presented to an individual for exceptional dedication and exemplary service to a member organization and to the profession. The award is named in honor of Robert Cornforth, a founding member of NCSEA, treasurer on its first Board of Directors, and member of OSEA.

Susan

M. Frey NCSEA Educator

Award:

John O’Brien, PE, SE

John O’Brien, P.E., S.E., is Senior Associate and Director of Structural Engineering at PES Structural Engineers. His passion for resilient design and edu cating engineers on wind forces has led him to deliver numerous educational sessions, AIA-accredited lec tures, and practical guidance on evolving wind design standards. As chair of NCSEA’s Wind Engineering Committee and the ASCE 7-28 Chapter 29 Task Committee, he is dedicated to advancing understanding and

The James M. Delahay Memorial Award recognizes individuals who have made significant contributions in the development of building codes and standards. Named in honor of James M. Delahay, a respected leader in structural engineering, this award celebrates those whose efforts have had a lasting impact on the advancement of building safety and performance.

Susan Ann “Susie” Jorgensen Presidential Leadership Award: Jordan Jarrett, Ph.D, PE

Jordan Jarrett, Ph.D., P.E., is a Teaching Assistant Professor at Colorado State University and the 2025 President of SEAC. Before entering academia, she worked for seven years as a structural engineering consultant, focusing on the design of steel and concrete structures. She has served on multiple committees for SEAC, NCSEA, AISC, and ASCE. Through her work on SEAC and NCSEA’s SE3 Committees, she has been a strong advocate for people-focused cultures and policies, including mental health awareness and support, flexible work environments, and equi table recruitment and retention procedures.

The Susan Ann “Susie” Jorgensen Presidential Leadership Award is presented to an individual who has demonstrated exceptional leader ship potential through their activities within NCSEA and/or their local SEA, even if they have not served in a formal leadership role. This award was created to honor the late NCSEA Board President and advocate for the profession, Susan Ann “Susie” Jorgensen, who passed away in November 2020.

NCSEA congratulates these exceptional individuals for their achievements and thanks them for their dedication to advancing the profession of structural engineering. ■

CASE in Point

Big News for CASE Members: No Additional Fees to Join the Coalitions

ACEC Streamlines Participation in Coalitions, Including CASE

The ACEC Coalitions have adopted a new structure for it’s coalition program, eliminating separate fees for all coalitions, except the Design Professionals Coalition (DPC*).

For the Coalition of American Structural Engineers (CASE), this means ACEC members can now participate in CASE without paying an additional fee.

Under this structure, CASE members will have access to a mix of free and fee-based events, education, publications, and other resources developed specifically for structural engineering firms. These include CASE’s widely used contract documents, risk management tools, and business practice guidelines.

The goal is to make participation easier and more inclusive, bringing more structural engineers into CASE conversations and leadership.

*Design Professionals Coalition (DPC) is not impacted by this change and will continue with its current membership structure.

Interested in Keeping Pace with Market Changes?

Subscribe to the ACEC Market Briefs Newsletter

CASE Publications and Committee Participation

CASE produces contract documents, guidelines, and risk management tools to support structural engineering firms. Its work is driven by four committees:

• Toolkit – Tools based on the Ten Foundations of Risk Management.

• Programs & Communications – Sessions, articles, and industry collaboration on risk reduction.

• Guidelines – Business practice guidance on legal, financial, and client relations.

• Contracts – Contract templates and commentary for risk education.

For more information or to express interest in joining a subcommittee, contact Michelle Kroeger at mkroeger@acec.org.

A complete list of CASE publications is available at https://www. acec.org/member-center/get-involved/coalitions/case/resources/ case-publications/.

Engineering Optimism Hits New High as Backlogs Rebound

The ACEC Research Institute released its latest Engineering Business Sentiment Study for Q3 2025—a quarterly “pulse check” of the design services industry that tracks how firm leaders view current conditions and the year ahead. Based on responses from 876 executives surveyed July 24–August 11, 2025, the report benchmarks confidence in the U.S. economy, firm finances, industry health, backlogs, hiring, and policy risks. (The study uses a Net Rating—percent positive minus percent negative—to show sentiment strength over time.)

This quarter’s takeaway: optimism set new records, backlogs ticked up after two quarters of decline, and hiring remains challenging even as inflation and tariff worries eased. For structural engineers, the strongest growth signals are in data centers, energy & utilities, and airports markets that lean heavily on complex structures and mission-critical delivery.

Key Findings

• Confidence in the U.S. economy jumped 39 points to an all-time high Net Rating +50; firm finances (+83) and industry outlook (+78) remain robust.

• 55% of firms report one year or more of backlog; the median backlog rose from 10 to 12 months.

• 89% of firms have at least one open position (median 5 openings); the share with 10%+ of roles unfilled fell to 19% (from 27% a year ago).

• 60% expect to increase hiring over the next 12 months (+52). Growth expectations are strongest for Data Centers (+52), Energy & Utilities (+35), and Airports (+32).

• Inflation concern dropped 17 points quarter-over-quarter; tariff concern fell 27 points. Recession fears eased: 41% expect a recession within six months (down from 54% last quarter).

“Engineering firms are showing remarkable confidence in their financial health and in the broader economy, even amid ongoing political uncertainty and cost pressures,” said Joe Bates, senior research consultant at the ACEC Research Institute.

Download the full report: https://www.acec.org/resource/ engineering-business-sentiment-q3-2025

News of the Coalition of American Structural Engineers

Save the Date: Coalitions Winter Summit 2026

February 26–27, 2026 – Houston, Texas

InterContinental Houston

Houston, Texas. The Summit brings together members from across the country, for focused discussion, education, and peer-to-peer engagement.

In response to member feedback, the program has been expanded to include dedicated education tracks and roundtables for:

• Mechanical, Electrical, and Plumbing (MEP) Engineers

• Structural Engineers

• Geoprofessionals

• Professional Surveyors

• Land Developers

The format includes a mix of discipline-specific sessions and crosscoalition exchanges, with an emphasis on practical takeaways, shared challenges, and solutions from across the industry. Over one and a half days, attendees will engage in structured discussions and connect directly with peers working in similar roles.

Where the Work Is

This event is open to all industry professionals. Firms are encouraged to send both senior leaders and emerging professionals to reflect a range of perspectives.

Call for Presenters, Exhibitors, and Sponsors

Individuals interested in presenting an education session at the Summit should contact Michelle Kroeger at mkroeger@acec.org.

The Winter Summit also offers opportunities for exhibitors and sponsors to engage with attendees in a program format that fosters sustained, meaningful conversations.

Those interested in participating as an exhibitor or sponsor can request details on available options. Contact Erin Wander at ewander@acec.org.

ACEC’s Market Intelligence Dashboard shows where U.S. construction dollars are flowing by market, funding source, and project type—check it out on the ACEC website.

Engineers are being asked to make faster, higher-stakes decisions— what markets to pursue, where to staff up, and how to guide clients through shifting funding streams. The new ACEC Market Intelligence Dashboard puts hard numbers behind those calls, translating federal data into an interactive view of where design and construction dollars are flowing across the United States.

Built on the latest U.S. Census Value of Construction Put in Place survey, the dashboard visualizes the dollar value of construction activity and lets users drill into the segments that matter most to structural practice. With a few clicks, you can explore public vs. private funding, scan project types from vertical buildings to infrastructure, and quickly compare how categories are moving relative to each other.

For firms, that means practical, day-today advantages:

• Targeted pursuit planning: See which building types and geographies are expanding, then align business development accordingly.

• Staffing & backlog visibility: Use trendlines to anticipate workload and make confident decisions on hiring, teaming, and subconsultant needs.

• Client counseling with evidence: Bring credible, up-to-date figures to owners weighing schedules, budgets, and phasing—especially where funding sources differ.

• Portfolio balance: Spot opportunities to diversify between facilities work and structures-heavy infrastructure programs.

The interface is designed for exploration: start at the national level, then filter into the segments that map to your firm’s strengths—high-rise and mixed-use, healthcare and education, industrial and distribution, bridges, and transportation structures, and more. Each view surfaces spending levels and movement over time, helping project executives, operations leaders, and market champions quickly align strategy with what the data shows.

Ultimately, the ACEC Market Intelligence Dashboard gives engineers a common, objective baseline for decisions—so pursuit lists, staffing plans, and client recommendations are tied to real market activity, not guesswork.

Explore funding sources, compare project types, and turn market signals into firm strategy with the ACEC Market Intelligence Dashboard. (Access at https://www.acec. org/market-intelligence-dashboard/)

SEI Update

Welcome FY2026 SEI President Ed Huston

SEI welcomes Edwin T. Huston, P.E., S.E., F.SEI as its new president, following the impactful year of leadership under Stephanie Slocum, P.E. Founding Principal of Huston Structural Engineering, PLLC, Huston brings decades of experience in structural design, evaluation, investigation, and code and standards development. He was honored with the NCEES Distinguished Examination Service Award in 2018 for over 25 years of service, notably helping to develop the

16-hour SE exam. SEI looks forward to his leadership in shaping the future of the profession.

Thank you again to Stephanie Slocum, P.E., for her year of service as SEI President. As SEI’s first woman president, Slocum championed innovation, sustainability, and equity, and played a key role in advancing several major initiatives.

SEI extends its sincere thanks for her dedicated service and visionary leadership. Read her outgoing president’s message here: go.asce.org/2025seipresidentfarewell.

SEI Managing Director Jennifer Goupil Showcases Resilience Toolkit in Capitol Hill Briefing

ASCE Executive Director

Tom Smith Announces Retirement

On September 8, ASCE hosted a Capitol Hill briefing on “Infrastructure & Resiliency,” where Jennifer Goupil, Managing Director of SEI and Chief Resilience Officer of ASCE, led a compelling discussion on fortifying infrastructure against natural disasters and environmental threats. The event introduced ASCE’s updated toolkit, Pathways to Resilient Communities, which offers hazard-specific guidance to help communities implement the latest codes and standards for disaster mitigation. Goupil was joined by panelists Carol Haddock, ASCE’s incoming President-Elect; and Aaron Davis, Deputy Executive Director of BuildStrong America.

Tom Smith, Executive Director of the American Society of Civil Engineers, will retire on December 31, 2025, after nearly 29 years of service, including 11 years in his current role. Smith’s tenure was marked by transformative leadership, expanding ASCE’s influence in infrastructure advocacy, standards development, and sustainability, while guiding the organization through major challenges like the COVID pandemic. As ASCE prepares to launch key strategic initiatives including ASCE 2027, governance modernization, and a potential headquarters relocation, a national search is underway to identify the next Executive Director who will guide the Society into its next chapter.

SEI Futures Fund Commits Over $300K to Strategic Programs for FY2026

Thanks to the generosity of its donors, the SEI Futures Fund Board has committed more than $300,000 to advance key initiatives in structural engineering for FY2026. These investments will support scholarships and travel assistance for students and young professionals to engage in Structures Congress and SEI standards work, promote sustainability through efforts like Towards Zero Carbon Events and SE2050 data analysis, enhance education with resources such as the ASCE/SEI 7 Primer and the Prestandard for Assessing the Embodied Carbon of Structural Systems for Buildings, and strengthen local SEI Chapters for both students and professionals.

To further amplify this impact, donations made between September and December 2025 will be matched one-to-one—up to $5,000—by Thornton Tomasetti. Give today to support the next generation of structural engineers and help shape the future of the profession.

News of the Structural Engineering Institute of ASCE

ASCE Legislative Fly-in

Apply to attend ASCE’s 2026 Legislative Fly-In, held in-person in Washington, D.C., from March 18 – 20, 2026. Attendees will hone their advocacy in championing pro-infrastructure policy by learning from industry and thought leaders before meeting with Members of Congress and senior legislative staff. Network with fellow civil engineering experts from around the U.S. and strengthen leadership skills you can bring back to the workplace. For structural engineers, the fly-in offers a unique opportunity to connect the practitioner experience to the federal policymaking process. In recent years, topics related to structural design and development included infrastructure funding and financing, resilient infrastructure featuring engagement with FEMA, and effective advocacy and legislative outreach.

Shape Policy as an ASCE Key Contact

ASCE

Key Contacts influence public policy by building relationships with elected officials and advocating for the civil engineering profession. Whether meeting locally or attending the Legislative FlyIn, members become trusted voices when legislation is drafted. Key Contacts receive email alerts about policy developments and respond by sending messages to lawmakers. The time commitment is minimal, often just a few minutes, and any ASCE member in good standing who is a U.S. citizen can participate. www.asce.org/advocacy/key-contacts

Submit Your Abstract: Forensic Engineering Congress 2026

The 2025 event gathered 260 attendees from 47 states who engaged on the latest priorities for the 119th Congress. ASCE members met with nearly 300 House and Senate offices during their visit.

The online application will launch on October 1st. The deadline to apply is Friday, November 14, 2025. More information is available at ASCE’s Legislative Fly-In Webpage: https://www. asce.org/advocacy/legislative-fly-in.

ASCE Publications Now Available

The Call for Abstracts is now open for the 11th Forensic Engineering Congress, taking place October 22–25, 2026, in Lake Buena Vista, Florida. Hosted by ASCE’s Forensic Engineering Division, this event invites professionals across the built environment to share insights on failure events through technical papers, workshops, and continuing education sessions. Submit your abstract by October 17, 2025, to contribute to a forward-thinking program focused on real-world analyses, emerging trends, and actionable strategies in forensic engineering. https://www.forensiccongress.org/program/call-abstracts.

The Prestandard for Assessing the Embodied Carbon of Structural Systems for Buildings presents a recommended scope and calculation methodology for assessing the embodied carbon emissions of structural systems. This prestandard will be most valuable to structural engineers and life cycle assessment practitioners as it defines how materials should be quantified, how embodied carbon should be calculated and reported, and rules of comparison for structural systems based on embodied carbon. Three embodied carbon assessment tiers are defined to support the various goals that a user may have. This prestandard was developed in response to the need to align embodied carbon calculation methodologies and to support the Structural Engineering 2050 Commitment Program (SE 2050). SEI will host a webinar on October 13th at 3pm EST to review the prestandard. Learn more about the webinar: go.asce.org/sei. This prestandard is available for free download through the generous support of the SEI Futures Fund.

Structural Reliability Guidance in ASCE 7-22: Principles and Methods offers engineers a clear and practical look into the reliability concepts behind ASCE Standard 7-22. Sponsored by the ASCE 7-22 Load Combinations Subcommittee of SEI, this guide covers the evolution of probability-based limit state design, load combinations, and the reliability basis for various design loads including seismic, wind, flood, and more. This document is a valuable resource for those dedicated to building safer, more resilient structures.

codes and STANDARDS

FAQ on SEI Standards

What you always wanted to ask.

This quarterly article addresses some of the questions received about structural standards developed by the Structural Engineering Institute (SEI) of the American Society of Civil Engineers (ASCE). Questions from engineers, building officials, and other design professionals are often considered to develop future editions. These topics and more are discussed on the ASCE Peer-to-Peer Standards Exchange Forum. ASCE/SEI members can ask and answer questions in the forum. Visit https://collaborate.asce.org/standardsexchange/home to learn more and read about other topics.

Determining Design Flood Elevations

Per ASCE/SEI 24-24 Equation 1-1, the Design Flood Elevation (DFE) shall be taken as the flood elevation established by the community (FEcom) or the elevation based on the Minimum Recurrence Interval flood event for the Flood Design Class of the building or structure (FE MRI) plus the Relative Sea Level Change (ΔSLC), whichever is higher. However, Figure 1-3 implies that when FE MRI + Δ SLC is greater than FEcom, DFE = FEMRI. Which is correct?

Answer: Equation 1-1 is correct. For coastal sites, FE MRI + ΔSLC is compared with FEcom, and the higher value is selected as the DFE. For noncoastal sites, sea level change does not apply, so FEMRI is directly compared to FEcom, and the higher value is selected as the DFE. Figure 1-3 has been updated to provide this clarification. See the June 13, 2025 Errata for ASCE/SEI 24-24: https://ascelibrary. org/doi/epdf/10.1061/9780784485781.err

Mapped 500-Year Floodplain

ASCE/SEI 7-22 Supplement 2 and ASCE/SEI 24-24 expanded the Flood Hazard Area to include the 500-year floodplain for Risk Category II, III, and IV structures. How do I check to see if my structure is in the 500-year floodplain?

Answer: The ASCE Hazard Tool provides an overlay feature for flood that shows the FEMA National Flood Hazard Layer. To view: Enter your address; Select Flood as your load type; Click the View Results button and Slide the Flood Overlay toggle to the right. The 500-year floodplain includes the 0.2% Annual Chance Flood Hazard Zone and the 1% Annual Chance Flood Hazard Zone. In the example below for Miami, Florida, the 500-year floodplain includes both the peach shaded area and the blue shaded area. The 500-year floodplain is also shown on Flood Insurance Rate Maps as the Shaded Zone X plus the Special Flood Hazard Area. Always make sure to check the Authority Having Jurisdiction for supporting information.

Engineered Flood Openings

Can any flood opening be designed as an engineered opening if it meets the criteria in ASCE/SEI 24-14 Section 2.7.2.2 or are engineered openings limited to openings with moving parts?

Answer: ASCE/SEI 24-14 Section 2.7.2 allows any opening to be designed as a non-engineered opening or an engineered opening.

Note that ASCE/SEI 24-24 Section 2.8.2 allows any opening to be designed as an engineered opening but restricts non-engineered flood openings to openings without moving parts.

This article’s information is provided for general informational purposes only and is not intended in any fashion to be a substitute for professional consultation. Information provided does not constitute a formal interpretation of the standard. Under no circumstances does ASCE/SEI, its affiliates, officers, directors, employees, or volunteers warrant the completeness, accuracy, or relevancy of any information or advice provided herein or its usefulness for any particular purpose. ASCE/SEI, its affiliates, officers, directors, employees, and volunteers expressly disclaim any and all responsibility for any liability, loss, or damage that you may cause or incur in reliance on any information or advice provided herein.

If you have a question you want to be considered in a future issue, please send it to sei@asce.org with FAQ in the subject line. Visit asce. org/sei to learn more about ASCE/SEI Standards. ■

2025/26 STRUCTURAL ENGINEERING Resource Guide

Industry Resources for SEs and Profiles from STRUCTURE’s

Advertising Partners

ANCHORS • BRIDGES

Headed Reinforcement Corporation (HRC)

Phone: 714-557-1455

Email: sales@hrc-usa.com

Web: https://hrc-usa.com

Product: HRC 670 T-head

Description: HRC 670 T-Heads are a great alternative to hooked anchorage, help reduce the risk with settings cages at the wrong elevation and can be used for field fixes with the cage in place! HRC 670 T-Heads reduce congestion, making installation of adjacent reinforcing easier and allow for better concrete consolidation! HRC 670 T-Heads can be the problem solver on your next project!

ENERCALC, LLC

Phone: 800-424-2252

Email: info@enercalc.com

Web: https://enercalc.com

Product: ENERCALC SEL/ENERCALC 3D

Description: Design of anchors and anchor bolts typically requires a thorough development of applied loads, and may require analysis of full structures or connected components. ENERCALC can assist in determining those loads and performing analyses through its Loads & Forces modules and its many analysis and design modules including the Base Plate by FEM module.

RISA Tech

Phone: 949-951-5815

Email: info@risa.com

Web: https://risa.com

Product: RISAConnection

Description: RISAConnection is at the cutting edge of next-generation connection design software and now features full anchorage design as well as expandable reports and full 3D visualization. RISAConnection includes complete integration with RISA-3D and RISAFloor, as well as partner software packages such as Tekla Structures and Hilti Profis for anchorage design.

Bridges

CMC Bridge Systems

Phone: 858-880-9786

Web: www.cmc.com/en-US/Landing-Pages/BridgeSystems-Contact-Form

Product: InQuik Bridge

Description: The InQuik Bridge is a prefabricated, cast-in-place bridge system that can be installed in less than a week. A complete solution above the foundation, the reinforced concrete structure is extremely lightweight and simple, enabling self-performance and the use of local equipment. This significantly reduces construction timelines and costs.

Chance Foundation Solutions

Phone: 573-682-8644

Email: civilconstruction@hubbell.com

Web: www.chancefoundationsolutions.com

Product: GroutForce Displacement Pile

Description: GroutForce™ is a patented displacement pile for loose-to-dense sand or soft-to-firm clay. Since the grout column increases diameter and frictional bond, the shaft length may be reduced by 50% or more versus other pile types while maintaining its high ultimate compression strength, tested to 676 kip in compression.

RISA Tech

Phone: 949-951-5815

Email: info@risa.com

Web: risa.com

Product: RISA-3D

Description: With RISA-3D’s versatile modeling environment and intuitive graphic interface you can model any structure from bridges to buildings in minutes. Get the most out of your model with advanced features such as moving loads, dynamic analysis, and over 40 design codes. Structural design has never been so thorough or easy!

REDEFINING STRUCTURAL DESIGN WITH IDEA STATICA

IDEA StatiCa has become a game-changer in the daily work of structural engineers by tackling some of the most time-consuming and technically demanding tasks in design—steel connections and reinforced concrete details. Whether engineers use it to validate hand calculations or to design from scratch, the software offers a significant advantage: it delivers safe, code-compliant results in a fraction of the time compared to traditional methods.

Smarter Steel-to-Steel and Steel-to-Concrete Connections

Designing complex steel connections—especially when multiple members, stiffeners, or loads are involved—can easily take hours of iterative modeling, analysis, and documentation. With IDEA StatiCa Connection, engineers can accurately model and verify any steel joint using a unique method that combines the component method and finite element analysis (FEM). It’s not just fast; it’s precise, safe, and validated.

In fact, the tool has become indispensable across leading engineering firms, saving tens of hours on typical projects. But the impact goes further.

Anchoring into Concrete? Now Just as Easy

The contact point between steel and concrete—typically a base plate anchored to a concrete foundation—has long been a gray zone of

simplifications and guesswork. IDEA StatiCa Detail and Connection now work together to streamline this process. Engineers can simulate not only the base plate and anchors but also the entire reinforced concrete element, including rebar layout and interaction effects.

Research published in New Civil Engineer noted that over half of surveyed engineers spent up to four hours designing a single steel-to-concrete connection. With IDEA StatiCa, this can now take minutes, not hours.

Advanced Concrete Details and D-regions

IDEA StatiCa doesn’t stop at base plates. Engineers dealing with deep beams, corbels, walking columns, or openings in shear walls often struggle with traditional design methods, which are either too conservative or overly complex. The new concrete application helps you to model discontinuity regions (D-regions), see real structural behavior, and verify compliance with ACI, including deflection and crack checks.

Backed by verification from top universities, these methods deliver the confidence engineers need. With IDEA StatiCa, you can calculate what you used to estimate yesterday—and sleep better knowing your designs are safe.

856-642-4070 | office@ideastatica.com | www.ideastatica.com

ALLEN BUSINESS ADVISORS

Unveils Step-Up Legacy Plan™ as a Simpler, Faster, and More Profitable Alternative to ESOPs for A/E Firms

Allen Business Advisors, a boutique M&A firm dedicated to architecture and engineering companies, has introduced the Step-Up Legacy Plan™, a simplified alternative to Employee Stock Ownership Plans (ESOPs). This innovative strategy allows business owners to sell directly to key employees and receive 90 to100% of their money at closing, removing the financial burden of acting as the bank.

“Most owners want to sell to their employees, but they’re deterred by the high cost and complexity of ESOPs. The Step-Up Legacy Plan™ offers the same continuity and culture preservation—without the headaches, delays, or ongoing expenses.”

Why This Is a Better Alternative to an ESOP

Feature ESOP Step-Up Legacy Plan™

Setup Cost Starts at $120K Paid from sale proceeds

Complexity High (ERISA, DOL, and IRS) Low (SBA + seller note)

Time 12+ months 3–6 months

Advisors has a proprietary buyer database, built over more than ten years of participating in and speaking at national engineering and surveying conferences, to connect owners with qualified industry buyers.

Why Owners Choose Allen Business Advisors

• Specialization: Focused solely on A/E/LS firms.

• Banking Expertise: A team of three former commercial loan officers with SBA mastery.

• Proven Results: Faster approvals, more aggressive financing, and higher close rates.

About Allen Business Advisors

ESOPs were intended for much larger companies, typically requiring at least $1.5 million in EBITDA to be viable. They involve government oversight from the Department of Labor, the Internal Revenue Service, and compliance with the Employee Retirement Security Act. This results in annual costs of $50,000 or more. In contrast, the Step-Up Legacy Plan™ is quicker, financed via SBA lending and potentially a seller note, and designed so that the seller receives liquidity immediately, without years of trailing payouts.

When Employee Sales Work—and When They Don’t

For many companies, selling to employees helps maintain client relationships, company culture, and leadership continuity. However, in one-third of cases, an external sale is a better option. Allen Business

Allen Business Advisors (www.AllenBusinessAdvisors.com) is a nationwide boutique firm that specializes exclusively in ownership transitions for architecture, engineering, and land surveying companies. The firm is recognized for its expertise in SBA financing and its proprietary Step-Up Legacy Plan, offering practical alternatives to ESOPs for companies with annual sales ranging from $1 million to $8 million.

Call to Action

Owners planning a transition in the next 6–24 months should consider scheduling a confidential, no-obligation consultation to see if an employee buyout or third-party sale can maximize their results—and ensure they receive payment at closing.

www.allenbusinessadvisors.com/ncsea

CONCRETE

RISA Tech

Phone: 949-951-5815

Email: info@risa.com

Web: risa.com

Product: Adapt-Builder

Description: ADAPT-Builder is powerful and easy-to-use 3D finite element software for multistory reinforced concrete and post-tensioned buildings and structures. Builder delivers comprehensive workflows for complete analysis and design. Combine gravity, lateral and post-tensioning actions for efficient, complete, and accurate design. Integrate with various BIM software for seamless project deliverables.

DuroTerra

Phone: 781-817-6053

Email: info@duroterra.com

Web: www.duroterra.com

Product: Ductile Iron Piles

Description: DuroTerra is a supplier of Ductile Iron Piles manufactured by Tiroler Rohre GmbH (TRM). Ductile Iron Piles provide a modular, fast, and low vibration, driven pile solution ideally suited for constrained sites with building additions and renovations with limited access and overhead clearance restrictions.

ASDIP Structural Software

Phone: 407-284-9202

Email: support@asdipsoft.com

Web: https://www.asdipsoft.com

Product: ASDIP Concrete

Description: Advanced software for the design of multi-span continues beams, biaxial slender columns, concrete/masonry bearing walls, shear walls, oneway slabs, two-way slabs and wall opening design, per the latest design codes. ASDIP CONCRETE easily integrates with other software to effortlessly maximize your designs with a few clicks.

VoidForm Products, LLC

Phone: 888-704-8643

Email: connect@voidform.com

Web: www.voidform.com

Product: StormVoid and SureVoid

Description: StormVoid is a non-degradable PPC plastic void form product line with a wax-coated corrugated paper cover. This product line is ideal for placing void forms in wet soil conditions or inclement weather. SureVoid is a biodegradable corrugated paper void form product line to protect piers, beams and slabs from expansive, corrosive and seismic soil conditions.

STRUCTURAL ENGINEERING Resource Guide

FAmerican Concrete Institute

Phone: 248-848-3147

Email: katherine.broadwell@concrete.org

Web: https://www.concrete.org

Product: ACI 318 PLUS Online Subscription

Description: ACI 318 PLUS is an annual subscription that provides users with convenient digital interactive access to ACI CODE-318-19 and ACI CODE-318-25 along with in-document access to related resources, robust digital notetaking, and enhanced search. ACI 318 PLUS also includes full digital interactive access to the ACI Detailing Manual and the ACI Reinforced Concrete Design Handbook.

Jordahl USA Inc.

Phone: 866-332-6687

Email: sales@jordahlusa.com

Web: https://jordahlusa.com

Product: Decon Studrails

Description: DECON® Studrails® are a proven, cost-effective solution to resist punching shear at slabcolumn connections in elevated slabs and foundation mat slabs, as well as bursting stresses in post-tension anchorage zones.

Profile

Delivering Zero Compromise in Concrete Construction

or decades, traditional pour strips have been treated as an unavoidable step in concrete construction. While accepted as industry standard, they create a series of challenges: schedule delays, safety hazards, engineering headaches, and preventing trades from starting and finishing their work. At PS=Ø, we set out to solve this problem once and for all.

The solution is the PS=Ø system—the industry’s first engineered and field-proven replacement for traditional pour strips. Designed to deliver full slab movement, reducing restraint and accelerating construction schedule, PS=Ø gives engineers, contractors, and owners a better way forward. Why choose PS=Ø?

• Faster Schedules: Traditional pour strips hold up projects by 30 to 180 days while waiting for shrinkage to occur. PS=Ø eliminates this wait, unlocking project flow and keeping trades moving.

• Safety & Quality: By removing the need for exposed rework and messy rework, jobsites are safer and final structures are stronger, stiffer, and more efficient.

• Cost Savings: By accelerating schedule, simplifying trade work, and delivering clean floors the PS=Ø system delivers overall project cost savings.

• Engineering Confidence: Backed by extensive testing and real-world use on some of the country’s most demanding projects, PS=Ø ensures structural

integrity and lasting performance.

• Sustainable Advantage: Proudly Made in the USA with recycled materials, PS=Ø contributes to LEED Certification and reduces construction waste.

Proven in the Field

The PS=Ø system has been used in hospitals, high-rises, data centers, stadiums, and large-scale infrastructure projects across the nation. Time and time again, it has delivered measurable impact on schedule acceleration, jobsite safety, and finish quality. Industry leaders continue to rely on PS=Ø because it removes one of concrete’s most persistent obstacles with a solution that works in practice—not just on paper.

Achieving Zero Compromise

Our name reflects our mission: with PS=Ø, there are no trade-offs. No compromises between safety and speed. No compromises between schedule and structural performance. No compromises between sustainability and quality. No more compromises between constructability and design. By eliminating traditional pour strips, the PS=Ø system allows your team to build faster, safer, and smarter.

Ready to move beyond pour strips? Visit www. pourstrip0.com or call 800-355-8414 to learn more.

800-355-8414 | www.pourstrip0.com

RISA Tech

Phone: 949-951-5815

Email: info@risa.com

Web: https://risa.com

Product: Thermal Wing Nut Anchor

Description: RISAConnection is at the cutting edge of next-generation connection design software. Featuring full 3D visualization, Shop-drawing style views, and expandable engineering calculations for all limit states, RISAConnection is an essential tool for engineers who use steel. Its library of connection types is continuously growing and the latest innovation for RISAConnection is complete integration into RISA3D and RISAFloor, allowing one-click connection design for entire structures.

Jordahl USA Inc.

Phone: 866-332-6687

Email: sales@jordahlusa.com

Web: https://jordahlusa.com

Product: Anchor Channel

Description: Cast-in Jordahl anchor channels together with the matching T-bolts create an excellent connection system to reliably transferring high loads into concrete components. Highly versatile anchor channels with ICC evaluation report can be used in a wide variety of applications.

ASDIP Structural Software

Phone: 407-284-9202

Email: support@asdipsoft.com

Web: www.asdipsoft.com

Product: ASDIP Steel

Description: Intuitive software for the design of steel members and connections, such as composite/ non-composite beams, steel columns, base plates, anchoring to concrete, shear connections, moment connections, and web openings, per the latest design codes. ASDIP Steel includes modules that substantially simplify the time-consuming calculations of structural designs.

SPEC Toolbox

Phone: 61-4-1521-9940

Email: corey.jones@spectoolbox.com

Web: https://spectoolbox.com

Product: SPEC Toolbox—Connection Design

Description: SPEC Toolbox provides engineers with supplier-specific design tools for screws, brackets, hangers, and anchors. Supporting advanced mass timber connection design, the platform ensures efficient, code-compliant solutions across ANZ, Europe, UK, USA, and Canada—making specification faster, simpler, and globally accessible.

STRUCTURAL ENGINEERING Resource Guide

ENERCALC, LLC

Phone: 800-424-2252

Email: info@enercalc.com

Web: www.enercalc.com

Product: ENERCALC SEL/ENERCALC 3D

Description: Save hours on steel design with ENERCALC! Beams, columns, 2D frames, bolt group analysis, and more. The simple user interface makes it fast & easy to setup, confirm, & “what-if” designs. Optimize your steel base plate connections with modules for simplified AISC design procedures as well as FEM-driven stress analysis. Try it free for 30 days!

LNA Solutions

Phone: 888-724-2323

Email: jungaro@lnasolutions.com

Web: https://www.lnasolutions.com/

Product: BeamClamp®

Description: BeamClamp® provides a safe, no-weld solution for steel-to-steel connections. Designed for speed and reliability, BeamClamp eliminates drilling and field welding, offering adjustable, high-strength clamping for structural beams. Ideal for retrofit and new construction, BeamClamp ensures consistent performance in demanding applications.

Profile

QUIKSPRAY INC.

Quikspray®, Inc., has proudly manufactured material handling peristaltic pumps, mixers, and broadcasters for the commercial coatings industry in the USA for 60+ years. Quikspray® products are available in different sizes, capabilities and power configurations to meet a wide variety of industry needs.

The Carrousel® Pump and U-Blend Mixers are capable of pumping epoxy grouts, underlayments, heavily bodied materials, and re-grouting mortar joints and also spraying fireproofing, waterproofing, EIFS, shotcrete, artificial rock work, stucco, and other commercial coatings. The U-Blend Mixer is designed to allow lower dumping heights for a variety of containers that eases operator fatigue. The mixer has two options for the lid—a grated lid that opens bags and a near dustless lid with a vacuum port to minimize dust in sensitive environments. There are also two different U-Blend Mixer sizes available: one capable of mixing up to 600lbs of material and a larger size capable of mixing up to 1,200 lbs of material.

The Carrousel® Pump and U-Blend Mixer can be found on a variety of projects. One such project could be corrosion control/repair. Effective corrosion repair requires both the right equipment and the proper technique. The Quikspray® Carrousel® Pump‘s unique peristaltic design,

combined with its versatility in handling various repair materials, makes it an ideal choice for professionals serious about corrosion control. Its ability to handle aggregates, fiber-reinforced materials, and epoxy coatings—while requiring minimal maintenance—ensures you can focus on delivering quality repairs rather than managing equipment issues.

The Carrousel® Pump can run dry with no damage to the machine and is fast and easy to clean with no disassembly, making clean-up a breeze.

Not only is the equipment great for corrosion repair but it can also be found in structural repair projects like parking garages and large structures for failure, cracks, spalls, and once again—corrosion repairs.

Multiple Department of Transportations within the United States has our equipment on bridge repair and maintenance projects.

The Carrousel® Pump and U-Blend Mixer can spray various cementitious fireproofing materials onto steel high-beams in buildings to insulate against fire and provide structural stability.

Quikspray®, Inc., also manufactures various broadcasting equipment. The Quikspray® Industrial AG-Blower, redesigned with a larger valve, will place quartz aggregate, sand, glass, fillers, or non-skid aggregate at a rate of 30-45 lbs/min into unset epoxy, cement, or polyester basecoats. For seamless floor or wall application, the Handheld Chip Sprayer and Commercial Chip Sprayer permits the even distribution of large and small, multi or single colored chips into wet resin or other unset base coats.

419-732-2611 | Leah@quikspray.com | https://quikspray.com

CONNECTIONS • FOUNDATIONS

LNA Solutions

Phone: 888-724-2323

Email: jungaro@lnasolutions.com

Web: https://www.lnasolutions.com/

Product: BoxBolt®®

Description: BoxBolt® is a fully tested blind bolt solution for connecting into structural steel where access is restricted. Installed from one side only, BoxBolt provides a certified alternative to welding or through-bolting. Used worldwide in structural frames and hollow sections, it delivers strength, safety, and speed.

FastenMaster

Phone: 800-518-3569

Email: info@fastenmaster.com

Web: https://fastenmaster.com

Product: FlatLOK Structural Wood Screw

Description: FlatLOK is designed for various multiply dimensional and engineered wood connections. FlatLOK is approved for single- sided installation.

LNA Solutions

Phone: 888-724-2323

Email: jungaro@lnasolutions.com

Web: https://www.lnasolutions.com/

Product: Steel Floor Fasteners

Description: Steel Floor Fasteners are a proven method for securing steel grating and floor plate without welding. Designed for safety and durability, these clamps provide vibration-resistant performance and eliminate hot work on site. Easy to install and remove, they support safe access platforms, walkways, and maintenance flooring.

Foundations

RISA Tech

Phone: 949-951-5815

Email: info@risa.com

Web: https://risa.com

Product: RISAFoundation

Description: RISAFoundation designs retaining walls, two-way mat slabs, spread footings, grade beams and pile caps all within an open modeling environment. With synchronized load transfer from RISA-3D and RISAFloor models, foundation design has never been easier. Punching shear checks, rebar design, and international codes make it the smart choice for engineers.

ClarkDietrich

Phone: 800-543-7140

Email: clipexpress@clarkdietrich.com

Web: https://www.clarkdietrich.com/

Product: Drift Head-of-Wall (DHW)

Description: ClarkDietrich Drift Head-of-Wall clips are used in deflection conditions for in-fill curtain wall assemblies and/or interior nonload-bearing partitions to provide for both vertical (deflection) and lateral (drift) movement. The Drift Head-of-Wall clips can be attached to the underside of structural members, concrete decks or floor assemblies.

ASDIP Structural Software

Phone: 407-284-9202

Email: support@asdipsoft.com

Web: https://www.asdipsoft.com/

Product: ASDIP FOUNDATION

Description: Advanced software for quick and efficient design of concrete footings, such as isolated spread footings, two-column combined footings, strap footings, wall footings, pile caps and pile design & analysis. See immediate graphical results, calculations, and detailed or condensed reports with exposed formulas and code references.

WMC80 CORDLESS WIRE MESH CUTTER

The NEWLY RELEASED WMC80 is built for crews who don’t have time to mess around with old-school bolt cutters or bulky pneumatic tools. At just 6.3 lbs., this cordless powerhouse puts serious cutting speed in the palm of your hand—cutting through wire mesh in 0.7 seconds per cut. There are no hoses, compressors and no wasted energy. Just pure, portable performance that takes the strain off your body and keeps production moving.

The WMC80 is engineered to cut through W1.4 (10GA.) up to W8 (2/0.5GA) mesh with jobsite toughness that lasts all day. Whether you’re working on precast panels, tilt-up construction, or commercial slabs, this tool delivers the muscle you need without slowing you down.

Revolutionize Wire Mesh Cutting

REVOLUTIONIZE WIRE MESH CUTTING

PYTHON MASONRY FASTENERS

Your Masonry Retrofit and Restoration Partner

PYTHON Fasteners was founded to meet the seismic retrofit challenges identified through global post-earthquake reconnaissance head on. Our anchor systems are purpose-designed for existing masonry, including brick (URM), concrete block (CMU), and hollow clay tile (HCT/terracotta). We provide structural engineers and contractors with more than just hardware: full technical documentation, design support, and research-based guidance. PYTHON anchor systems are the only mechanical

Applications include:

A URM parapet restraints using PYTHON MT

B Securing capping stone and ornamental features

C Securing of canopies

D Floor diaphragm connections

E Window infill connection

F Steel beam connection to masonry

G Pinning URM veneer walls (2+1)

H Pinning URM veneer walls (1+1)

I Timber strong-back connection to URM

J Steel strong-back connection to URM

K Timber strong-back connection to CMU

L Veneer pinning to concrete wall

systems with ICC evaluation for use in existing masonry and are now specified in landmark retrofit and restoration projects across the United States. By advancing anchoring technology and retrofit methodologies, PYTHON has dramatically reduced the time, cost, and risk typically associated with seismic strengthening. This has increased the accessibility of retrofit works to building owners across our country, safeguarding communities and preserving our built heritage.

M Foundation starter studs

N Timber strong back connection to solid masonry

O Timber diaphragm connection to masonry

P Roof connection to masonry

Q Starter studs for concrete/shotcrete overlay

R CLT or plywood panel connection to masonry

MASONRY • OTHER RESOURCES

Masonry

Masonry Institute of America

Phone: 800-221-4000

Email: rr@masonryinstitute.org

Web: https://www.masonryinstitute.org

Product: Design Information

Description: The Masonry Institute of America is a recognized source of information for masonry design and construction. Structural Engineers use the Reinforced Masonry Engineering Handbook for an in-depth insight of masonry design not available elsewhere. Other publications provide a comprehensive understanding on how masonry is constructed.

Other Resources

ASDIP Structural Software

Phone: 407-284-9202

Email: support@asdipsoft.com

Web: https://www.asdipsoft.com/

Product: ASDIP RETAIN

Description: Advanced software for quick and efficient design of cantilever, restrained, counterfort, gravity retaining walls and sheet piles. See immediate results with calculations and reports of load combinations per the latest IBC/ASCE 7 and AASHTO.

Western Clay Products Association

Phone: 512-316-8337

Email: info@brick-wscpa.org

Web: https://www.brick-wscpa.org

Product: Technical Information

Description: Western States Clay Products Association provides downloadable information for clay brick design and construction. Topics include Notes on the Selection, Design and Construction of Reinforced Hollow Clay Masonry; Design Guide for Structural Brick Veneer; Design Guide for Anchored Brick Veneer on Steel Studs and more.

Quikspray Inc

Phone: 419-732-2611

Email: Leah@quikspray.com

Web: https://quikspray.com/

Product: Carrousel Pump

Description: The Carrousel Pump® and U-Blend Mixer are designed to pump/spray and mix aggregated cement formulas with and without reinforcement fibers for the coatings industry. The Carrousel® Pump is versatile in the Masonry Industry. From pumping voids, pumping grout to spraying heavily bodied spec mixes and shotcrete, to pointing between bricks.

ICC-ES

Phone: 800-423-6587

Email: es@icc-es.org

Web: https://icc-es.org

Product: Total Conformity Assessment Solutions

Description: With testing, inspection and certification all under one roof, ICC-ES offers total conformity assessment solutions for the global building market. Our knowledgeable team of experts will guide you through the process. Ask about our Transfer and Save program for new clients!

Quikspray Inc

Phone: 419-732-2611

Email: Leah@quikspray.com

Web: https://quikspray.com/

Product: UBlend Mixer

Description: Health and safety in the work place is a growing concern, especially when it applies to the commercial coatings industry. Silicosis is dangerous when mixing products, and some materials tend to be very dusty. Quikspray created a dustless lid for the U-Blend Mixer to help eliminate dusting from this operation.

Profile

NCEES

NCEES is a national non-profit organization with a mission to advance licensure for engineers and surveyors in order to safeguard the health, safety, and welfare of the public. This mission is supported through its member boards, board of directors, staff, board administrators, and volunteers by:

• Providing outstanding nationally normed examinations for engineers and surveyors

• Providing uniform model laws and model rules for adoption by the member boards

• Promoting professional ethics among all engineers and surveyors

• Coordinating with domestic and international organizations to advance licensure of all engineers and surveyors

Through education, experience, and exams, professional engineering and surveying licensure establishes an important verification of expertise that is critical in safeguarding the public. NCEES offers more than exams for engineers and surveyors. Through the Records Program, Credentials Evaluations, and CPC Tracking, NCEES is here to help engineers and surveyors

become licensed in multiple states, track continuing professional competency requirements, and to help international professionals become licensed in the United States. Visit www.ncees.org to learn more.

STRUCTURAL

Apogee Architectural Metals

Phone: 800-866-2227

Email: info@apogeearchmetals.com

Web: https://apogeearchmetals.com

Product: EFCO, Tubelite

Description: Apogee Architectural Metals shapes the future of building design with high-performance aluminum windows, curtain wall, storefront and entrance systems, including our EFCO and Tubelite product brands. We serve commercial and institutional projects across the U.S. and Canada, and have earned a reputation for dependable service, robust engineering and industry-leading quality.

Cordeck

Phone: 877-857-6400

Email: rita.henderson@cordeck.com

Web: https://cordeck.com

Product: NRG-Flor+

Description: Leading In Floor Cellular Raceway Systems Our solutions seamlessly integrate power and data management with the structural floor, distributing cabling to any location needed.

Wausau Window and Wall Systems

Phone: 877-678-2983

Email: info@wausauwindow.com

Web: www.wausauwindow.com/

Product: Architectural aluminum-framed windows and fenestration

Description: Wausau Window and Wall Systems manufactures high-performance, architecturalgrade windows tailored to the most demanding environments. From INvent Series windows (PLUS, XLT, Retro, and XLT-HP) to its industry-leading line of behavioral care windows, Wausau offers durable, purpose-driven solutions that meet stringent requirements for energy efficiency, acoustic control, security and long-term performance.

MAPEI

Phone: 954-254-5081

Email: b.harvey@mapei.com

Web: https://www.mapei.com/us/en-us/home-page

Product: Planigrout PT

Description: Planigrout PT is a non-shrinking, fluid, cement-based grout used to fill the annular space around post-tensioned strands in PT ducts.

STRONGWELL

Phone: 276-645-8000

Email: info@strongwell.com

Web: https://www.strongwell.com/

Product: EXTREN

Description: Fiberglass structural shapes and plate that replace traditional materials for applications needing corrosion resistance, durability, light weight, ease to field fabricate, low thermal and electrical conductivity, and EMI/RFI transparency. The EXTREN® line consists of more than 100 different shapes, each with a very specific, proprietary composite design.

VoidForm Products, LLC

Phone: 888-704-8643

Email: connect@voidform.com

Web: https://voidform.com

Product: PlumbingVoid

Description: PlumbingVoid protects utilities from expansive and corrosive soil damage that can occur below the concrete slab. Made from PPC plastic it is non-corrosive and easy to install.

STRUCTURAL ENGINEERING Resource Guide

Profile

STRONGWELL

Strongwell is the recognized world leader in the manufacture of fiber reinforced polymer (FRP) composites utilizing the pultrusion process, a continuous production process which creates structural composite parts with a constant cross-section.

Since 1956, Strongwell has developed hundreds of FRP structural shapes, plate, gratings, planking, railing, fencing, structural building panels, and more, made in one of Strongwell’s three U.S. ISO 9001 certified facilities.

Pedestrian bridges and walkways on vehicular bridges benefit from FRP’s corrosion resistance (won’t react to de-icing salts), high strength-to-weight ratio, and durability. Weighing approximately 75% less than steel, FRP can be a key solution for bridge projects needing to reduce weight.

Rooftop structures for cellular, radio, and equipment screening, green roof structures, and maintenance access benefit from FRP’s light weight, transparency to radio waves, microwaves, and other electromagnetic frequencies, and corrosion resistance.

Data center solutions including catwalks, support structures, and enclosures are made safer due to FRP’s low thermal and electrical conductivity. Due to FRP being lightweight, installation is easier, quicker, and requires less specialized labor and equipment.

Indoor and outdoor waterpark and coastal structures such as stairs, grating, railing, ladders, boardwalks, docks, piers, and seawalls made from FRP

are more resilient because they won’t rust, rot, or corrode from sea water, pool chemicals, and vapor, virtually eliminating routine maintenance and significantly extending product life cycles.

In short, the ideal structure for Strongwell FRP is anywhere light weight, corrosion resistance, RF transparency, or long-term durability are critical.

Selected Structural Products

EXTREN® structural shapes and plate replace steel, aluminum, and wood in a variety of structural applications, including stair structures, platforms, rooftop screening, and pedestrian bridges.

COMPOSOLITE® structural building panels are suitable for load bearing structural applications including buildings, bridge enclosures, pedestrian bridge decks, tank covers, platforms, walkways, enclosures, and secondary containments.

STRONGIRT® continuous insulation (CI) cladding attachment support system is an all-FRP rainscreen support solution designed for superior flame performance, screw pull out strength, thermal efficiency, and the ability to work with any insulation ranging from 1” to 8” thick.

UltraComposite sheet piling and round piles offer tremendous advantages over steel for cut-off walls, containment barriers, bulkheads, seawalls, flood walls, levee extensions, and other water/erosion control structures.

Strongwell’s website is an invaluable resource for designers and engineers. It offers design guides, specifications, CAD blocks, case studies, corrosion resistance information, brochures, fabrication worksheets, and more. www.strongwell.com

SEISMIC & WIND

RISA Technologies

Phone: 949-951-5815

Email: info@risa.com

Web: risa.com

Product: RISA-3D

Description: Feeling overwhelmed with the latest seismic design procedures? RISA-3D has you covered with seismic detailing features including full AISC-341/358 code checks. Whether you’re using RISA-3D’s automated seismic load generator, or using the built-in dynamic response spectra & time history analysis/design capabilities, you’ll get designs and reports that will meet all your needs.

ENERCALC, LLC

Phone: 800-424-2252

Email: info@enercalc.com

Web: https://enercalc.com

Product: ENERCALC SEL/ENERCALC 3D

Description: ENERCALC automatically incorporates seismic loads in load combinations, including the vertical component, redundancy & system overstrength factors, as applicable. ENERCALC supports ASCE 7’s Base Shear, Demands on Non-Structural Components & Wall Anchorage. ENERCALC also includes earth retention wall modules - including substantial segmental wall improvements, & ENERCALC 3D FEM.

Chance Foundation Solutions

Phone: 573-682-5521

Email: civilconstruction@hubbell.com

Web: www.chancefoundationsolutions.com

Product: Helical Piles

Description: Chance helical piles have gained acceptance as building-code-approved products for seismic design categories D, E, & F. Be prepared for seismic activity by using Chance helical piles for a new construction foundation. Remediate a damaged foundation and improve stability by retrofitting a foundation with helical piles.

Quake Brace Mfg. Co.

Phone: 510-495-1575

Email: info@quakebracing.com

Web: quakebracing.com

Product: Magnitude10 Braces

Description: The Magnitude10 brace has the best strength-to-width ratio of any seismic component or frame. Fits where other systems can’t. “R” of 6.5 is compatible with WSP shear walls. Code evaluation report allows streamlined approvals. Learn how it works and why it’s the most reliable, cost-effective retrofit solution for soft-story buildings.

ASDIP Structural Software

Phone: 407-284-9202

Email: support@asdipsoft.com

Web: www.asdipsoft.com

Product: ASDIP Suite

Description: ASDIP Suite consists of 5 software products with over 26 intuitive structural modules, conceived by structural engineers, deigned for all your daily engineering design tasks. For over 30 years, we have been developing powerful yet simple-to-use tools to easily analyze, design, optimize and check your structural members.

Commins Manufacturing Inc.

Phone: 303-378-9484

Email: al@comminsmfg.com

Web: https://comminsmfg.com

Product: Tie-Down Systems

Description: The Commins Auto Tight Tie-Down System is built for Strength, Elongation, Shrinkage, and Precision. Every item connecting shear walls to the foundation is considered and designed to make the systems work properly together.

DURAFUSE FRAMES

For steel moment connections, DuraFuse Frames has your back! Whether design is controlled by wind or seismic demands, a DuraFuse project will have the lowest steel tonnage, simple fabrication, and a rapid, safe erection schedule (fully field-bolted). Our prequalified seismic connection (AISC 358-22 and OSHPD/ HCAI PCS-0004) improves functional recovery, eliminates seismic lateral bracing, and removes the protected zone from the beam and column, saving materials and time. Our connections can also be applied to retrofit scenarios with solutions that are economical, resilient, and tailorable.

DuraFuse engineers are constantly improving the modeling, analysis, and design process to ensure efficient, high performance design solutions with quick response times. We are happy to provide a complimentary design alternative using DuraFuse Frames based on your specifications. Distinguish your next steel moment frame design by improving economy, constructability, and functional recovery. You can have the best of all worlds with DuraFuse Frames.

ENERCALC – 44 YEARS OF ENGINEERING INNOVATION

Structural Engineering Software for Engineers, by Engineers

Powerful, Easy-to-Use Structural Engineering Software for Low-to-Mid Rise Structures

To gain perspective on how ENERCALC software can help you, consider your last flight. Before landing, a downtown cluster of skyscrapers, stadiums, and malls appeared. Surrounding them for many square miles: parking garages, manufacturing facilities, warehouses, retail, hotels, medical complexes, residential & commercial buildings.

These low-to-mid rise structures make up 90% of structural engineering work.

ENERCALC calculation software specializes in this work, offering consistent workflow, simple data entry, and fast recalculation.

Today’s building codes are complex, with many load combinations and specific design details. Result: Hand calculations are seldom productive. ENERCALC includes 51 classic structural calculation modules—including earth-retention structures & 3D FEM.

NEW in 2025 Load Linking Expanded

After launching Load Linking for Steel Beam last year, Wood Column, Steel Beam, and Steel Column modules now support Load Linking. Reactions from one calculation can be automatically referenced as applied loads in another calculation.

The ENERCALC project manager constantly monitors for changes. Visual alerts appear in the Project Manager, which make it simple to manage & monitor dependencies.

You can view the list of beams or columns in a project file in their order of dependence, review the status of linked calculations, and update the necessary calculations with the click of a button.

ENERCALC automatically determines the natural order of dependencies to ensure proper analysis during recalculation.

ENERCALC for Revit (EFR)—Seamless Productivity!

We always make it our goal to provide “Day 1” support for newly released Revit versions, and this year was no exception! We proudly support Revit 2026, 2025, 2024 and 2023. Other updates this year included improvements to steel composite load generation, enhanced tributary width detection, and much more. Launch ENERCALC calculations faster than ever via intuitive “point and click” interactions with your Revit model!

IBC 2024 + ASCE 7-22 Support + Bilingual Support in Español

Big news! In addition to supporting IBC 2024, we’ve released the ASCE 7-22 Loads & Forces modules—and they’re ready for use today!

You can now add them straight from the Add Modules menu, just like any other calculation module. Build out as many Loads & Forces calculations as your project needs, give them custom names, and organize them exactly where you want.

Why does this matter? Some states have adopted IBC 2021 but require the use of ASCE 7-22. To make sure you’re always covered, we’ve separated the ASCE 7 edition selection from the IBC edition selection. Printed reports will clearly show both the building code and referenced design standard(s)—no confusion, no compromises. Our technical support now includes bilingual service in Spanish, provided by licensed engineers.

A Small Team of Engineers Building Software for Structural/Civil Engineers

ENERCALC is a small, close-knit team of structural engineers and software developers. Since 1982, we’ve focused on simplifying the work of structural and civil engineers. Our goal: Help you become more productive so you can get home for dinner on time.

Get a 30-day free trial!

RISA

RISA delivers a suite of integrated software design solutions and technical support services that allow structural engineers to innovate with confidence, secure in the safety and efficiency of their designs. The following case studies illustrate these core values.

Trailside Clubhouse–The Lodge Apartments

Building Client: Trailside Clubhouse in The Lodge Apartments

Structural Engineer: DHP Engineering

The Trailside Clubhouse serves as the central amenity hub for The Lodge Apartments, a multi-phase residential complex. Designed to be both functional and iconic, the clubhouse features picnic areas, fireside lounges, and a vaulted gathering hall framed by exposed heavy timber trusses. The architectural goal was to highlight the regional lodge aesthetic by intentionally exposing structural timber elements.

Heavy timber trusses form the centerpiece of the clubhouse, creating a dramatic vaulted ceiling while remaining economical. DHP Engineering standardized truss geometry while varying loads, simplifying fabrication and erection. Integration of the circular silo roof with the rectangular truss system demanded precise detailing to ensure compatibility without compromising structural support.

RISA-3D enabled quick modeling and iteration of the heavy timber trusses, replacing laborious hand calculations and spreadsheets. Calculation reports and rendered imagery supported collaboration with the design team, while RISA’s technical support helped resolve complex design issues efficiently.

“That’s what RISA does best… really great support. I can send you a model and have an answer within a day or so.” — Bret Brasher, PE

Connecticut Children’s Medical Center Expansion

Building Client: Connecticut Children’s Medical Group

Structural Engineer: CannonDesign

Originally constructed in the early 1990s with provisions for vertical expansion, the Connecticut Children’s Medical Center recently realized that vision through an eight-story, 190,000-sq.-ft clinical tower addition. The project redefined connections between hospital, city, and community with new features including a pedestrian bridge, entry canopy, and rooftop framing.

The most iconic element is a 150-ft pedestrian bridge spanning Washington Street, fabricated in three segments and erected sequentially to minimize disruption. Designed as story-high box trusses with AESS detailing, the bridge incorporates W14 and W18 chord members, HSS diagonals, and diaphragm bracing. Supporting structures—including a cantilevered canopy and rooftop platforms—were designed to adapt to evolving architectural and mechanical requirements.

RISA-3D proved essential for analyzing the pedestrian bridge and auxiliary structures. Engineers modeled multiple column schemes when site conditions changed, conducted staged erection analysis, and refined canopy and rooftop framing to accommodate shifting design loads. The ability to quickly model customized geometries provided control and adaptability throughout the project.

“Most of our projects will have some aspect where you need a very customized structural analysis model. RISA-3D is very handy—it’s quick to set up, assign loads, and get the information you need.” —

Almuti, CannonDesign

Rihanna Super Bowl Halftime Show Platforms

Structural Engineer: TAIT

Rihanna’s 2023 Super Bowl halftime show featured seven suspended platforms, ranging from 15 to 60 ft above the field, dynamically shifting throughout the performance. The 13-minute spectacle required a precisely engineered rigging system to ensure safety, stability, and seamless execution in front of a global audience.

The stage system combined floating platforms, counterweights, and redirect trusses to create a transformative performance space. Prefabricated and tested in advance, the system was engineered for extreme reliability under high-profile conditions.

TAIT Towers relied on RISA-3D to analyze platform framing, rigging forces, and counterweight interactions. The software’s speed in geometry updates supported the fast-paced design cycle, while its ability to handle numerous load cases and combinations streamlined analysis. TAIT has also developed in-house custom tools within RISA-3D to address the unique demands of entertainment rigging projects.

“RISA-3D was chosen because the design was iterating quickly, and its ability to handle multiple load cases and combinations made it invaluable.” — Ryan Kunkel, TAIT

Calcs.com

Phone: 720-651-9411

Email: hello@calcs.com

Web: https://calcs.com

Product: Calcs Library + Projects

Description: 100+ code-compliant calculators in one platform. Connect load paths across a structure, apply load defaults across every calc, and generate polished PDF reports. From quick beam checks to full structural workflows, your calcs stay consistent, reliable, and review-ready.

SEsort

Phone: 541-647-3839

Email: apiper@sesort.com

Web: https://www.sesort.com

Product: SEsort Advanced Load Combinations Tool

Description: SEsort’s Advanced Load Combinations Tool enhances SAP2000 by simplifying the management of Load Patterns, Load Cases, and Load Combinations. Designed for efficiency and accuracy, it supports any standard, helping engineers streamline workflows and reduce manual errors.

Qnect

Phone: 413-387-4375

Email: mgustafson@qnect.com

Web: https://www.qnect.com/

Product: Qnect for Autodesk® Revit®

Description: Qnect for Autodesk® Revit® software discovers steel issues early in design so engineers can resolve them before becoming RFIs. The tool discovers framing issues related to modeling, constructability, and engineering for why steel cannot be connected. This includes detecting and documenting joints requiring special reinforcement such as doublers and stiffeners.

POSTEN Engineering Systems

Phone: 510-506-8284

Email: sales@postensoft.com

Web: www.postensoft.com

Product: POSTEN

Description: POSTEN - Post-Tension Concrete Design Software - The Most Efficient in Design & with your Time. The others simply analyze your Guesses - a time expensive process. With POSTEN, you define the shape & loads & POSTEN balances the loads with the Efficient drapes & pre-stress & mild steel automatically.

STRUCTURAL ENGINEERING Resource Guide

FRISA Tech

Phone: 949-951-5815

Email: info@risa.com

Web: https://risa.com

Product: RISA-3D

Description: RISA-3D designs and optimizes steel, concrete, masonry, wood, cold-formed steel and aluminum with a fast, intuitive interface. State of the art solvers, customizable reporting options and robust integration with other products such as RISAFloor, RISAFoundation and Revit make RISA3D the premier choice for general purpose structural analysis and design.

ASDIP Structural Software

Phone: 407-284-9202

Email: support@asdipsoft.com

Web: www.asdipsoft.com

Product: ASDIP Suite

Description: For over 30 years, ASDIP has developed powerful yet simple-to-use tools to easily analyze, design, optimize and check your structural members per the latest design codes. ASDIP Suite has 6 software packages consisting of over 31 intuitive structural modules, conceived by structural engineers, deigned for all your daily engineering design tasks.

Profile

PARAGON TRUSS

inally, a wood truss design platform for engineers. Outdated software, vendor lock-in, and costly contracts have limited engineers for too long. Paragon was created to give structural engineers, design professionals, and manufacturers true independence in metal plated wood truss design. Paragon lets you specify metal connector plates from multiple suppliers while working on a secure cloud platform that runs directly in your browser. Built on open data and transparent calculations, Paragon provides clarity in analysis and confidence in decision making. Collaboration is built into the platform. A shared source of truth keeps engineers, builders, and manufacturers aligned from design through construction. This reduces errors, prevents miscommunication, and keeps projects moving. Paragon also connects a growing network of engineers, making it easier to review, validate, and seal designs across the industry. This connected approach removes bottlenecks, shortens cycle times, and creates new opportunities. Engineers who adopt Paragon are also able to deliver additional value for their clients, helping them stand out in a competitive market where time is money. Engineers gain full control of their truss designs. Paragon allows you

to drill into joints, members, and plate grips with transparent calculations and force diagrams. You can validate loads, check axial forces, see plate grip values, and ensure compliance with code requirements. Direct visibility into the analysis builds confidence and provides the documentation needed to support your professional judgment, whether you are evaluating new construction, planning solar retrofits, or conducting forensic analysis.

Adopting Paragon is simple. Start free with a limited number of components or choose a monthly plan that fits your workload. There are no long-term contracts or hidden costs. Whether you need Paragon for a single project or daily operations, the platform adapts to your workflow so you can deliver results faster and with fewer obstacles.

Today’s construction environment demands precision, speed, and flexibility. Paragon brings all three together, giving engineers openness and powerful tools to transform their truss design and analysis.

Take control of truss design today with Paragon. Explore and start for free at paragontruss.com.

THE END OF ENGINEERING BY SPREADSHEET

Calcs.com unifies calculations, projects, and collaboration, trusted on tens of thousands of designs worldwide.

Every engineer has a spreadsheet graveyard: half-finished calcs, outdated formulas, files you don’t quite trust.

You spend hours double-checking numbers, copying data between files, not because the math is hard, but because the tools aren’t built for how engineers actually work.

That’s the problem Calcs.com set out to solve.

Instead of piecing together disconnected software, spreadsheets, and legacy programs, Calcs.com brings calculations and projects into one platform. Built for small to mid-sized firms, multidisciplinary teams, and independent practitioners, it helps engineers move faster, reduce errors, and deliver designs with confidence.

Stop fixing spreadsheets. Run calcs you can trust

For most engineers, the daily struggle isn’t theory, it is trust. You don’t need another spreadsheet. You need calcs you can rely on. Calcs.com provides more than 100 ready-to-use calculators for beams, columns, connections, and more. Every one is built to US codes like AISC, ACI, and NDS.

And reliability matters even more when projects scale.

With Calcs.com, you can apply roof, floor, and lateral loads across your project, connect load paths, and generate polished PDF reports. When something changes, updates ripple automatically. That consistency saves hours and reduces RFIs.

How our calculators are built: engineers first, always

Behind every Calcs.com calculator is a team of engineers who know the sting of finding an error buried in a spreadsheet.

We start with research and feedback from practicing engineers. Every line in the calculator ties back to code provisions, reviewed and validated against hand calcs and edge cases.

Turn

old spreadsheets into tools your whole team can use

Every firm has “the spreadsheet.” Useful, but fragile. It holds decades of experience, yet it is nearly impossible to validate or share safely.

With Calcs Builder, you can turn those messy spreadsheets into reliable, reusable calculators for your entire team.

The same safeguards our engineers rely on: unit checking, live testing, and rigorous validation, are built in, so your custom tools can be just as dependable as ours.

That means you can standardize firm knowledge, eliminate spreadsheet risk, and scale tools across your team with confidence.

And we’re just getting started. Integrations, insights, and AI are on the way to connect Calcs.com with the rest of your workflow and cut even more busywork.

Trusted

on tens of thousands of

projects

From ADUs and residential additions to warehouses, schools, and light commercial buildings, engineers use Calcs.com to replace scattered, error-prone workflows with a platform designed for clarity and speed.

Donovan Rae, Senior Project Manager at Lumos & Associates, puts it best:

Nothing ships without multiple sets of eyes. And if something changes, you hear from us directly, not vague release notes.

As our Head of Engineering Content, Laurent Gérin, says: “Quality is how we make sure we can sleep at night and be confident that people are safe.”

This is how Calcs.com turns calculation anxiety into calculation confidence.

It’s also why we’re ready to put Calcs Builder into your hands, the same platform our team has used to create hundreds of calculators powering projects nationwide.

“The software has made us more productive. It’s eliminated at least 30% of the work from what we did previously.”

Which raises the question: why stick with the old way of working? Spreadsheets and desktop tools once got the job done. Today, they hold firms back. Codes are more complex, deadlines are tighter, and teams are often distributed across offices and job sites.

The cost of doing nothing is steep. Lost hours, costly rework, overdesign, and eroded trust in calculations. Calcs.com helps you avoid those pitfalls and unlock a smarter way of working. By unifying calculators, projects, and custom tools, Calcs. com gives you back your most valuable resource: thinking time. Ending spreadsheet chaos isn’t just our headline. It’s our promise to you.

Paragon

Phone: 423-225-2331

Email: salessupport@paragontruss.com

Web: https://www.paragontruss.com

Product: Paragon Truss Software

Description: Quickly and efficiently design and analyze roof and floor trusses using plates from various manufacturers with Paragon, the first cloudbased truss software suite. It allows the use of any plate for any design. Paragon Layout also supports 3D designs, enhancing communication among all involved parties.

ENERCALC,

LLC

Phone: 800-424-2252

Email: info@enercalc.com

Web: https://enercalc.com

Product: ENERCALC SEL/ENERCALC 3D

Description: ENERCALC SEL is: Diverse calculation types and materials. Easy tabular navigation. Rich responsive graphics. Simple intuitive inputs. Detailed calculations. Project based organization. 41 different component type designers. Current/historical Section libraries. Section/Geometry optimization. Applies preset and/or custom load combinations. FEM driven design. Powerful Revit integration. Simple, easy to use, reasonably priced.

Calcs.com

Phone: 720-651-9411

Email: hello@calcs.com

Web: https://calcs.com

Product: Calcs Builder

Description: Turn firm spreadsheets into reusable, no-code calculators. Standardize knowledge, eliminate spreadsheet risk, and create tools your whole team can trust.

RISA Tech

Phone: 949-951-5815

Email: info@risa.com

Web: https://risa.com

Product: ADAPT-Builder

Description: ADAPT-Builder is powerful and easy-to-use 3D finite element software for multistory reinforced concrete and post-tensioned buildings and structures. Builder delivers comprehensive workflows for complete analysis and design. Combine gravity, lateral and post-tensioning actions for efficient, complete, and accurate design. Integrate with various BIM software for seamless project deliverables.

STRUCTURAL

DSOFTWARE

WoodWorks Software

Phone: 800-844-1275

Email: sales@woodworks-software.com

Web: woodworks-software.com

Product: WoodWorks Software

Description: WoodWorks® Wood Engineering software: Conforms to IBC, ASCE 7, NDS, SDPWS; SHEARWALLS: designs perforated and segmented shearwalls; generates loads; rigid and flexible diaphragm distribution methods. SIZER: designs beams, columns, studs, joists up to 6 stories; automatic load patterning. CONNECTIONS: Wood to: wood, steel or concrete.

NHERI SimCenter

Phone: 559-349-0138

Email: nheri-simcenter@berkeley.edu

Web: https://simcenter.designsafe-ci.org/

Product: PBE Application, WE-UQ (wind), Hydro-UQ (hydrodynamics), EE-UQ (earthquakes), quoFEM (UQ), and R2D (regional hazard simulations)

Description: The NHERI SimCenter offers advanced software tools for engineers to quantify uncertainties within their simulations on the performance of buildings and infrastructure under natural hazards. Our applications facilitate a range of capabilities from CFD, to risk evaluation, and performance-based engineering to mitigate damage from earthquakes, hurricanes, and other extreme events.

INDUCTA SOFTWARE

esigning reinforced concrete (RC) columns to meet increasingly complex design codes is a complicated and time-consuming process. The engineer must choose between a simplified, conservative design that can be performed quickly, or an accurate and comprehensive design that takes a considerable amount of time and often involves juggling multiple software programs that may not provide a complete solution.

INDUCTA’s Automated RC Column Design and Scheduling software was developed to address this issue. It performs fully automated and comprehensive design of all columns in a RC building to ACI 318 and CSA A23.3 with the click of a button, considering strength, fire resistance, restraint, core confinement, shear, and seismic requirements. The design can be optimized and rationalized using Column Groups to create a complete column schedule that can be exported to CAD or REVIT for drafting. This integrated approach performs a complete design in record time without sacrificing accuracy. The efficiency of this software stems from its ability to seamlessly integrate with existing tools. The engineer can streamline workflows by importing data directly from popular structural analysis software like

CSi and Bentley. This interoperability eliminates the need for manual data entry, reducing the potential for errors and saving valuable time. Once the data is imported, the software allows the engineer to refine the design by organizing columns into column groups, making it easy to apply consistent design criteria across similar elements.

The most impactful benefit is the dramatic reduction in design time. Designs that once took hours for small to medium-sized buildings can now be performed in mere minutes. For larger, more complex structures, design time is slashed from days to just hours. This incredible speed does not come at the cost of accuracy. The software produces an accurate, detailed design with precise material quantities, even during the preliminary design stage. This empowers the engineer to provide quick, reliable estimates and accelerate the project timeline from the very beginning. With effortless export options to Excel, .dxf, or Revit, the engineer can easily share detailed schedules and drawings. The ability to design, rationalize, and detail an entire column schedule within one integrated solution ensures consistency and accuracy across the whole project, freeing up the engineer to focus on higher-level design challenges.

info@inductasoftware.com | www.inductasoftware.com

NUCOR VULCRAFT AND VERCO

Your Partner in Steel Solutions

Vulcraft and Verco are leading manufacturers of high-quality steel products. With over seven decades in the industry, we offer a comprehensive range of steel joists, deck, and bar grating products. But, we do more than supply products - we partner with you to customize solutions that fit the demands of your project. Our goal is to provide efficient and sustainable solutions that ensure the success of your project.

VULCRAFT

Over the past 70 years, Vulcraft has expanded to become one of the largest manufacturers of steel joists, deck, and bar grating in North America. As part of the Nucor family, we remain committed to leading the industry in steel solutions innovation.

VERCO DECKING, INC.

Verco Decking, Inc., serves the Western U.S. with high-quality steel deck products and innovative construction solutions. Our California and Arizona facilities collaborate closely with Western Vulcraft divisions to ensure seamless project completion across the region.

STEEL JOISTS: STRENGTH MEETS FLEXIBILITY

We offer a complete range of efficient steel joists that enable architects and engineers to create open, functional spaces in single- and multi-story structures without compromising safety or durability.

From composite floor systems to open web joists, our products are built to handle heavy loads and deliver exceptional performance while reducing construction time across projects.

STEEL DECK: BUILT TO PERFORM

Our steel roof and floor deck products are engineered to offer unmatched performance. Whether you need composite deck for multistory buildings or roof deck for large commercial spaces, our deck products deliver durability, easy installation, and flexibility.

We provide deck solutions that are designed for structural efficiency, allowing for greater spans and higher load capacities. These products are ideal for a variety of structures, from industrial plants to high-rise buildings, and include additional features such as acoustical options and excellent fire ratings for added safety and comfort.

BAR GRATING: STRONG, LIGHTWEIGHT, ADAPTABLE

Our bar grating products provide strength and adaptability for industrial platforms, catwalks, benches, shelving, and more. They allow for

optimal water and airflow, making them ideal for facilities from industrial warehouses to airfields.

Available in Standard, Heavy Duty, and Stair Tread types, our bar grating can be custom fabricated with various bar sizes, surfaces, finishes, and fastener styles to meet specific project requirements.

ONLINE DESIGN TOOLS: EMPOWERING ENGINEERS AND ARCHITECTS

We offer a robust suite of online design tools to streamline your design process. These tools enable engineers and architects to accurately model and analyze project components, reducing design time and ensuring accurate integration of our joists, decking, and grating products.

NEXT GENERATION DOVETAIL DECK AND PINTAIL™ ANCHORS: FUTUREPROOF TODAY FOR WHATEVER COMES TOMORROW

Modern architecture requires special consideration for the inevitability of future upgrades. That is one of many reasons why today’s construction projects need hanging solutions that are robust, versatile, and highly adaptable to future expansions or renovations.

To help meet that challenge, Vulcraft-Verco has developed the PinTail™ Anchor, an innovative hanging solution that works exclusively with our next generation Dovetail Floor Deck and are specifically designed to futureproof today’s construction projects for tomorrow’s renovations.

PinTail™ Anchors: Quick to install. Easy to relocate.

• Install with one hand for easy installation, removal, and relocation

• No noise, silica dust, or vibration during installation or relocation

• Easy visual verification of secure installation, no complex tools required

• The market’s only Dovetail anchor that can handle lateral loads and work as a seismic anchor.

SUSTAINABILITY: BUILD A GREENER FUTURE WITH STEEL

The Vulcraft and Verco commitment to sustainability is rooted in Nucor’s circular steelmaking process, which minimizes waste and energy use. Steel can be endlessly recycled and reused without any loss in quality, offering a significant opportunity to reduce our environmental footprint. By choosing to partner with us, you’re selecting a company that is committed to environmental responsibility. Our experts will help you meet your sustainability goals by working with you to create customized plans for the joists, deck, and bar grating in your project.

SPEC Toolbox

Phone: 61-4-1521-9940

Email: corey.jones@spectoolbox.com

Web: https://spectoolbox.com

Product: SPEC Toolbox - Structural Design Platform

Description: SPEC Toolbox is a global software platform for structural engineers. Covering CLT, glulam, advanced connections, fire design and more. SPEC Toolbox eliminates technical barriers by integrating supplier data directly into design workflows, making innovative product specification simple across ANZ, Europe, UK, USA, and Canada.

struct.digital

Phone: +44 7555167617

Email: support@struct.digital

Web: https://struct.digital

Product: Custom Software Development

Description: Tailored digital solutions designed for structural engineering firms. From workflow automation to bespoke analysis tools, our custom software development helps you modernize processes, cut inefficiencies, and gain a competitive edge with technology built around your unique needs.

struct.digital

Phone: +44 7555167617

Email: support@struct.digital

Web: https://struct.digital

Product: struct.calcpack

Description: struct.calcpack automates the design of elements, production of calculation packages, accurate rebar estimates and embodied carbon analysis for RC and steel structures, at the click of a button, from just a structural model.

Steel

LNA Solutions

Phone: 888-724-2323

Email: jungaro@lnasolutions.com

Web: https://www.lnasolutions.com/

Product: Steel Floor Fasteners

Description: Steel Floor Fasteners are a proven method for securing steel grating and floor plate without welding. Designed for safety and durability, these clamps provide vibration-resistant performance and eliminate hot work on site. Easy to install and remove, they support safe access platforms, walkways, and maintenance flooring.

STRUCTURAL ENGINEERING

struct.digital

Phone: +44 7555167617

Email: support@struct.digital

Web: https://struct.digital

Product: struct.answer

Description: An intelligent Q&A and knowledge platform for structural engineering teams. struct. answer centralizes expertise, automates responses to common queries, and ensures quick, consistent access to critical information, helping engineers work smarter and deliver projects faster.

Cordeck

Phone: 877-857-6400

Email: rita.henderson@cordeck.com

Web: https://cordeck.com

Product: Metal Roof and Floor Deck, Composite Deck

Description: We offer NEXT-DAY DELIVERY on metal floor, roof, and form deck, plus sheet metal trim and accessories.

Profile

ASC STEEL DECK

Innovators of engineered steel roof & floor deck solutions

Serving the Western United States since the 1970s, ASC Steel Deck is a leading manufacturer of structural steel roof and floor deck solutions. With manufacturing in Kalama, WA, and sales support in West Sacramento, CA, the company continues to advance the industry through innovation, technical expertise, and a strong commitment to customer success.

ASC Steel Deck’s comprehensive product line spans shallow to deep rib roof and floor deck configurations, available in a variety of steel thicknesses and galvanized coatings to meet the most demanding project requirements. Pre-primed finishes are also offered to help reduce installation labor costs. These solutions are featured in high-profile projects including airports, stadiums, warehouses, office buildings, and multi-story residences.

the underside of the deck is visible. Smooth Series eliminates the unsightly burn marks of welded attachments, providing a clean, blemish-free finish while maintaining structural performance.

One of ASC Steel Deck’s most distinctive offerings is the Smooth Series™ riveted cellular deck, designed for architectural exposed applications where

ASC Steel Deck further enhances installation efficiency with its DeltaGrip® DG4™ tool, a next-generation side-seam attachment system. DG4 delivers greater connection strength, faster cycle times, and increased punch durability, reducing diaphragm installations by eliminating top seam welds. With a strong focus on simplifying design and project delivery, ASC Steel Deck equips the industry with powerful digital resources, including BIM tools, design calculation tools, samples, and a streamlined project submittal tool. These resources improve accuracy, reduce inefficiencies, and accelerate the specification process. To further support the industry, ASC Steel Deck rebuilt its website from the ground up, creating a modern platform with faster access to product data, enhanced tools, and easier navigation. By continuously advancing steel deck technology, ASC Steel Deck empowers architects, engineers, and contractors to build with confidence. Its full range of roof and floor deck products delivers economical, high-performance options that meet the evolving demands of today’s built environment.

| info@ascsd.com | www.ascsd.com

NEW MILLENNIUM

Building Success Together, From the Design Phase to Ribbon-Cutting

New Millennium isn’t just a provider of structural steel. We pride ourselves on working with you to deliver highperforming steel joists and deck solutions that meet your project’s unique needs.

Since 1999, New Millennium—a division of Steel Dynamics Inc.— has shared its insights, expertise, and real-world application experience to unlock opportunities and exceed expectations. Our wide range of project capabilities includes data centers, warehouses, and schools.

With seven manufacturing facilities supporting North America, you can find New Millennium’s steel joists and deck solutions in every type of building and structure imaginable.

Shelter from the storms

A recent trend in storm shelter construction is to design spaces that typically sit empty until needed as multi-use structures with year-round functionality.

New Millennium recently collaborated with Ponce-Fuess Engineering, LLC, on the North Dallas High School addition. The new gymnasium doubles as a storm shelter thanks to its innovative design and use of composite joists and deck. The structure is ICC 500 compliant and engineered to withstand tornado winds of up to 250 miles per hour.

Flush-frame end connections

Saving weight on steel means saving money. Steel joists with flushframe end connections from New Millennium help you accomplish that. Designs with flush-frame connections on joists offer significant weight savings compared to wide-flange beams while providing equivalent stiffness and vibration performance.

These connections feature a joist reaction point designed to occur at the center line of the wide-flange girder. This design eliminates girder torsion concerns during erection and/or due to final design loading of a perimeter wide-flange girder. Flush-frame ends also eliminate the need for blocking between joist seats for diaphragm shear transfer.

Innovation in Action

New Millennium doesn’t react to market trends—we anticipate them. Throughout our history, we have committed to R&D to help you deliver projects on time and within budget.

Two of our latest innovations are flush-frame end connections and our Rolling Electric Deck tool (RED®), patent pending, side-lap connection tool.

Our published set of standards improves coordination between the specifier, joist manufacturer, steel fabricator and erector, simplifying the flush-frame specification process. These standards reduce design time, accelerate joist and girder fabrication, and streamline erection.

RED® side-lap connection tool

RED® is a cordless clinching tool that quickly and easily creates the industry’s strongest BI deck side-lap connections. The wheels on the RED® tool make forward movement connections easier, reducing back strain and offering a safer installation.

This tool can be used on projects with slopes up to ½-inch per foot. The tool is designed for buildings with high diaphragm shear requirements commonly found in high seismic and hurricane regions. Presently, RED® is primarily used on the West Coast for jobs with low-sloped roofs.

Other benefits of the RED® tool include

• Cordless operation: Battery power eliminates the need for compressors or hoses.

• Ease of use: RED® is the ONLY deck tool on wheels.

• Preserved deck finish: No welds or screws marring the deck.

• Safer connections: Clinched connections do not leave exposed sharp edges.

RISA Technologies

Phone: 949-951-5815

Email: info@risa.com

Web: risa.com

Product: RISA-3D

Description: RISA-3D designs and optimizes steel, concrete, masonry, wood, cold-formed steel and aluminum with a fast, intuitive interface. State of the art solvers, customizable reporting options and robust integration with other products such as RISAFloor, RISAFoundation and Revit make RISA-3D the premier choice for general purpose structural analysis and design.

ASDIP Structural Software

Phone:407-284-9202

Email: support@asdipsoft.com

Web: www.asdipsoft.com/

Product: ASDIP STEEL

Description: Intuitive software for the design of steel members and connections, such as composite/ non-composite beams, steel columns, base plates, anchoring to concrete, shear connections, moment connections, and web openings, per the latest design codes.

ENERCALC,

LLC

Phone: 800-424-2252

Email: info@enercalc.com

Web: https://enercalc.com

Product: ENERCALC SEL / ENERCALC 3D

Description: Save hours on every steel design with ENERCALC – now with FEM capabilities and load linking. Beams, columns, two dimensional frames, force distribution in bolt groups and more. The clear, simple user interface makes it fast & easy to setup, confirm & “what-if” your designs. Member optimization improves your efficiency and saves time!

Structural Engineers Inc

Phone: 252-378-8322

Email: floorvibe@gmail.com

Web: https://floorvibe.com

Product: FloorVibe v3.1

Description: FloorVibe v3.1 utilizes the analysis procedures in the Second Edition of the AISC Design Guide 11 Vibrations of Steel-Frame Structural Systems Due to Human Activity for predicting the response of floors due to human activity. Design Guide 11 has analysis procedures for checking the suitability of floors supporting Sensitive Equipment and Sensitive Occupancies. Analysis procedures for individual and group descents on Linear Stairs are provided.

STRUCTURAL ENGINEERING Resource Guide

CEMCO, LLC

Phone: 800-775-2362

Email: info@cemcosteel.com

Web: https://cemcosteel.com

Product: CEMCO Steel Framing

Description: CEMCO’s steel framing products are manufactured in the USA, are code compliant, and are available with low-embodied carbon certification when specially ordered

Cordeck

Phone: 877-857-6400

Email: rita.henderson@cordeck.com

Web: https://cordeck.com

Product: Metal Roof and Floor Deck, Composite Deck

Description: We offer NEXT-DAY DELIVERY on metal floor, roof, and form deck, plus sheet metal trim and accessories.

Profile

BULL MOOSE TUBE

Bull Moose Tube is one of the largest manufacturers of hollow structural sections (HSS) and steel pipe piling in North America, designed to meet the demanding needs of structural engineers across a range of applications. Our product portfolio includes standard ASTM A500, A1085, A252, corrosion-resistant weathering grades (A847), and our innovative Stratusteel® line, to name a few. Our products are engineered for versatility—supporting everything from data centers to military vehicles and heavy trailers. Weathering grade HSS serves as a cost-effective, low-maintenance alternative for outdoor structures, developing a protective patina that resists corrosion and eliminates the need for painting. To aid in efficient, responsible material selection, Bull Moose provides verified Environmental Product Declarations. For projects

where sustainability is key, Bull Moose has the ability to procure coils produced strictly via the Electric Arc Furnace method (EAF), which allows us to manufacture HSS and pipe piling with some of the lowest global warming potential (GWP) values in the industry. In fact, our newest tube mill in Sinton, Texas has the lowest GWP values in the market, at 1.06 metric tons of CO2e per metric ton of HSS.

Bull Moose Tube’s commitment to sustainability, quality and innovation ensures that structural engineers receive not only strength and reliability but also design flexibility and long-term value. Whether your focus is on weight reduction, enhanced strength, or durability in harsh environments, we provide the steel solutions that help you achieve your architectural and engineering ambitions.

DEMYSTIFYING HSS CONNECTION DESIGN: THE ENGINEERING SOLUTION YOU’VE BEEN WAITING FOR

Atlas Tube’s innovative HSS Connections Hub™ streamlines connection design, eliminating common bottlenecks and delivering fabricator-friendly solutions

Hollow Structural Sections (HSS) have steadily gained traction in the structural steel market, now comprising approximately 18% of domestic usage. The appeal is clear: superior strength-to-weight ratios, exceptional torsion resistance, and the ability to handle long unbraced lengths make them an attractive choice for engineers seeking efficient structural solutions.

Yet despite these advantages, HSS adoption faces a persistent challenge that many engineering professionals know all too well. Traditional engineering software and resources often fall short when it comes to HSS connection design, forcing engineers and detailers into time-consuming workarounds that increase project costs and complexity.

Atlas Tube recognized this industry pain point and responded with an innovative solution: the HSS Connections Hub™, a comprehensive online resource center designed by engineers, for engineers—and completely free to use.

Addressing the Connection Design Gap

The current landscape of HSS connection design presents significant hurdles. Many established engineering resources and software packages provide limited support for HSS connection varieties, creating inefficiencies that ripple through the entire project lifecycle. Engineers often resort to custom spreadsheets and multiple software tools for even basic connections, introducing potential errors and requiring ongoing maintenance.

“Currently, one of the most common challenges we hear about HSS is that many engineering resources and software packages do not fully support a wide variety of HSS connection types,” explains the Atlas Tube development team. This gap forces engineers to spend valuable time creating project-specific solutions that may not translate effectively to future projects.

Connection Resources at Your Fingertips

Fabricator-Friendly

Typical Connection Details

The Hub’s extensive library features several typical HSS connection details, covering WF beam-to-HSS column shear connections, WF beam-to-HSS column moment connections, HSS beam shear connections, and numerous other configurations. These details eliminate the need to design connections from scratch, reducing the revision cycles that often plague custom connection designs.

Each detail is available in multiple formats—PDF, AutoCAD (.DWG), and Revit—enabling direct integration into existing engineering libraries and software platforms. This flexibility ensures that regardless of your preferred design environment, you can incorporate these proven connection solutions without disrupting established workflows.

Precision-Engineered Connection Calculators

Beyond typical details, the Hub provides several specialized Connection Calculators that eliminate reliance on custom spreadsheets and their associated risks. These calculators perform comprehensive utilization checks while cross-referencing the latest AISC Steel

Construction Manual (16th Edition, 2023), ensuring calculations remain current with industry standards.

Each calculator clearly outlines calculation steps and generates professional reports that can be easily shared with project teams and Engineers of Record (EOR). This transparency reduces the time typically spent creating manual calculation reports while providing the documentation necessary for project approval and regulatory compliance.

Beyond Connection Design: Full HSS Support

The HSS Connections Hub represents just one component of Atlas Tube’s comprehensive HSS support ecosystem. The company provides additional resources designed to maximize HSS value across the entire project lifecycle.

For teams seeking deeper expertise, Atlas Tube’s Engineering Experts Team provides project-level support, from concept design consultation to firm-wide HSS education. This team of experienced structural engineers offers guidance on HSS design optimization, connection design strategies, Connections Hub utilization, and product availability planning.

The Future of HSS Connection Design

The HSS Connections Hub reflects a broader industry trend toward specialized, user-focused engineering tools that address specific technical challenges. By providing comprehensive connection resources in an accessible format, Atlas Tube has created a solution that benefits all stakeholders in the structural steel supply chain.

The development team continues expanding the Hub’s capabilities, regularly adding new calculators and connection types based on user feedback and industry needs. This commitment to continuous improvement ensures that the resource remains current with evolving design practices and code requirements.

For structural engineers ready to streamline their HSS connection design process, the HSS Connections Hub offers immediate value. The combination of proven connection details, sophisticated calculators, and ongoing technical support provides everything needed to leverage HSS effectively in your next project.

Ready to transform your HSS connection design workflow? Explore the complimentary HSS Connections Hub and discover how Atlas Tube is making HSS connections easier than ever before. www.atlastube.com/hss-connections-hub/

RISA Technologies

Phone: 949-951-5815

Email: info@risa.com

Web: risa.com

Product: RISA-3D

Description: RISA offers everything you need for concrete design. For concrete floors, including beams and two way slabs, nothing beats RISAFloor ES for ease of use and versatility. The design of columns and shear walls with RISA-3D offers total flexibility. Integration between RISA-3D and RISAFloor ES provides a complete building design.

ENERCALC, LLC

Phone: 800-424-2252

Email: info@enercalc.com

Web: https://enercalc.com

Product: ENERCALC SEL/ENERCALC 3D

Description: ENERCALC simplifies structural analysis/design for beams, columns, foundations, and more. With instant recalculation and FEM-powered efficiency, engineers can quickly select efficient member sizes. Save time, quickly respond to changes, and produce clear reports. ENERCALC helps you finish work faster—so you can get home for dinner on time.

SPEC Toolbox

Phone: 61-4-1521-9940

Email: corey.jones@spectoolbox.com

Web: https://spectoolbox.com/

Product: SPEC Toolbox – Sustainability Tools

Description: SPEC Toolbox empowers engineers to specify sustainable materials confidently. Originating as CLT Toolbox, we’ve expanded globally and across categories - supporting CLT, glulam, hybrid systems, and connectors. Our mission is to accelerate adoption of renewable, low-carbon products by integrating supplier data directly into everyday design workflows worldwide.

STRUCTURAL ENGINEERING Resource Guide

CTS CEMENT MANUFACTURING CORP.

Enhance Project Design and Delivery with More Sustainable Cements

CTS manufactures two lower-carbon alternatives to portland cement for concrete construction and repair: Rapid Set® calcium sulfoaluminate (CSA) cement and Komponent® expansive cement additive. A Type III environmental product declaration (EPD) was developed for each brand to help project teams meet the increasing demand for low-embodied-carbon (LEC) construction materials. The core ingredient in dozens of cements, mortars, and grouts, Rapid Set® qualifies as very rapid hardening (VRH) per ASTM C1600 (Standard Specification for Rapid Hardening Hydraulic Cement). Unlike other CSA cements, Rapid Set® cement concrete doesn’t require blending with portland cement or accelerators to achieve structural strength in 1 hour.

Mixed, placed, and finished similarly to portland cement concrete, the material saves time and money during construction by lowering installation times and labor requirements. It’s also inherently more resistant to deterioration caused by chlorides, alkali-silica reaction (ASR), sulfate attack, and shrinkage cracking. Project teams benefit by quickly putting buildings and infrastructure into service and delivering durable, long-lasting results.

Komponent® is blended with local portland cement or

portland-limestone cement (PLC) and aggregate to make ASTM C845 Type K shrinkage-compensating concrete, low-shrinkage concrete, and non-shrink grout. In addition to lowering concrete’s global warming potential (GWP), the additive simplifies design and construction by maximizing placement sizes, reducing mobilizations, and minimizing or eliminating control joints, waterstops, and pour strips.

Rapid Set® and Komponent® products have been used to build and repair landmarks like the Hoover Dam Bypass, Pentagon, Lincoln Tunnel, and San Francisco-Oakland Bay Bridge. Research by public agencies nationwide confirm the durability of decadesold placements.

Our material scientists, engineers, technical experts, and field representatives will work with you every step of the way, from design through construction, to ensure your success. Contact us for the Type III EPDs or for assistance with product selection, specifications, samples, and mix designs.

800-929-3030 | info@ctscement.com | www.CTScement.com

WOODWORKS ® SOFTWARE

Design wood structures effectively, economically and with ease!

Established decades ago, WoodWorks® Sizer, Shearwalls, and Connections programs are positioned as high-value, low-cost software with several thousand loyal customers in the U.S. and Canada. WoodWorks® is widely recognized as highly reputable since development of both the Canadian and U.S. versions are led by the Canadian Wood Council (CWC) and endorsed by American Wood Council (AWC) (U.S. version). For the U.S. version, we work closely with AWC to ensure consistency in technical interpretations of design provisions in the IBC, NDS, SDPWS, and ASCE 7. Both AWC and CWC participate in codes and standards development, and therefore have the necessary background to ensure the software operates as the codes and standards intend. WoodWorks® software programs provide designers with a quick and accurate way to design and optimize wood structural members, light-frame shear walls, and connections.

WoodWorks® Sizer

The WoodWorks® Sizer is our most used software program. It enables designers to design beams, joists, columns, wall studs and CLT panels used in light-frame as well as heavy and mass-timber construction. Sawn lumber, glulam, structural composite lumber, I-joists and CLT panels are available. The program analyzes all load combinations from ASD or LRFD as per IBC and ASCE 7 and designs for structural and fire performance following AWC’s National Design Specification (NDS).

WoodWorks® Shearwalls

The WoodWorks® Shearwalls is our most time saving program as it allows engineers to model the lateral force-resisting system of a light-frame wood building up to 7 stories either using an AutoCAD exported file as a template or by drawing from scratch. The software will automatically generate wind and seismic forces based on ASCE 7, distribute the forces to each level, within each level to each shearline based on flexible and rigid diaphragm analyses, and within each shearline to

each shear wall segment based on wall stiffness or capacity. It models proprietary shear walls and designs full-height, forcetransfer and perforated shear walls, and optimizes for sheathing and nailing by iterating and automatically selecting the most economical sheathing and nailing patterns. The program also checks the inter-storey drift limits and implements provisions for structural irregularities from ASCE 7.

WoodWorks® Connections

The WoodWorks® Connections program enables designers to design connections consisting of bolts, lag screws, nails, wood screws, shear plates, rivets, and heavy steel hangers. The program includes different types of connections such as wood-to-wood, steel-to-wood, and wood-to-concrete. The results are displayed as fully dimensioned CAD quality drawings.

Visit our website at woodworks-software.com to download a free trial, watch our training videos, or to access our step-by-step tutorials.

RISA Technologies

Phone: 949-951-5815

Email: info@risa.com

Web: risa.com

Product: RISAFloor

Description: RISAFloor and RISA-3D form the premiere software package for wood design. Create 3D models of your entire structure and get complete design of wood walls, flexible wood diaphragms, dimensional lumber, glulams, parallams, LVL’s and joists. Custom databases for species, design of strap and hold-downs as well as panel nailing offer total flexibility.

CBS2, LLC

Phone: 949-800-8961

Email: info@cbs2llc.com

Web: lavabuild.com

Product: LAVA

Description: LAVA is the only software built for wood framed buildings, 1–6 stories. One modelbeams, shear walls, bearing walls, posts, and holddown selected automatically in one integrated system. Supports IBC, NDS, ASCE 7, SDPWS. Automatic load transfers, flexible, rigid and envelope diaphragm analysis, and submittal-ready reports—designed by real engineers for real projects.

Nordic Structures

Phone: 514-871-8526

Email: info@nordic.ca

Web: https://www.nordic.ca/en/home

Product: Nordic X-Lam, Lam+, and Lam

Description: Nordic X-Lam cross-laminated timber is made of at least 3 orthogonal layers of graded sawn lumber that are laminated by gluing with structural adhesives. Nordic Lam+ glued-laminated timber of architectural appearance grade consists of small wood laminations bonded together in parallel using structural adhesives. Nordic Lam glued-laminated timber of industrial appearance grade consists of small wood laminations bonded together in parallel using structural adhesives.

Paragon Truss

Phone: 423-521-0056

Email: info@paragontruss.com

Web: paragontruss.com

Product: Paragon Design

Description: Get full visibility into every truss design. Paragon is the first cloud-based wood truss software available for engineers. No black boxes—just transparent calculations, load paths, and plate details you can trust. Validate designs, collaborate with others, and seal and repair with confidence. Paragon is the future of truss design.

ASDIP Structural Software

Phone: 407-284-9202

Email: support@asdipsoft.com

Web: https://www.asdipsoft.com/

Product: ASDIP WOOD

Description: Advanced software for the design of wood members such as biaxial columns, continuous beams, shear walls and out-of-plane bearing walls based on the latest NDS provisions for ASD and LRFD design methods. Easily select Sawn lumber, Glued Laminated, or Composite Lumber sections. Graphic display of 2D and 3D interaction diagrams.

Nordic Structures

Phone: 514-871-8526

Email: info@nordic.ca

Web: https://www.nordic.ca/en/home

Product: Nordic Joist

Description: Nordic I-joists are composed of sawn lumber flanges connected by a structural oriented strand board and bonded together with exterior-grade adhesives.

STRUCTURAL ENGINEERING Resource Guide

THE ONLY SOFTWARE BUILT FOR COMPLETE WOOD BUILDING

If you engineer wood-framed buildings, you are aware of the challenges: dozens of load combinations, constant architectural revisions, and the need to coordinate the framing. Most tools only do part of the job—leaving you to patch work results together.

LAVA Solution

LAVA is the first and only software designed for complete whole wood buildings 1-6 stories—all in one model. Developed by practicing structural engineers, LAVA is trusted on thousands of wood-framed projects nationwide.

Why Engineers Choose LAVA

• All Codes, All Loads—IBC, NDS, ASCE 7, SDPWS. Every load combination is created automatically.

• Automatic Load Transfers—Vertical and lateral loads seamlessly through the building model.

• One Model—Beams, shear walls, bearing walls, and hold-downs selected automatically—not in separate programs.

• Quick Results—Calculations provided in seconds, professional output and reports.

Work Smarter. Respond Faster.

LAVA isn’t just about calculations—it’s about speed and accuracy when revisions occur. Easily update the model once, and all affected members, walls, and connections recalculate instantly. This results in fewer errors, and faster approvals.

Built by Engineers. Backed by Support.

We’ve spent a decade writing engineering software and designing wood-framed buildings. That experience shows in LAVA’s intuitive interface, clean reports, and responsive U.S.-based support team. Whether you are in single-family or multifamily, LAVA scales to your project.

Get Started. Download 30-day trial today! www.lavabuild.com

ADVANCING MASS TIMBER CONNECTIONS: TESTED SOLUTIONS FOR A GROWING MARKET

Mass timber is transforming North American construction, driven by updated codes, engineered wood advancements, and sustainability goals. Projects like The Edison in Milwaukee, aiming to be the world’s tallest mass timber hybrid building, highlight its potential for taller, stronger structures. As projects grow in complexity, connections are critical for seismic performance, fire resistance, and durability, especially in high-occupancy or earthquake-prone areas. Simpson Strong-Tie advances mass timber design with rigorously tested code-listed connection solutions and comprehensive education for engineers and builders.

Why Tested Connections Matter

Early mass timber projects used custom steel plates and bolts with limited testing, suitable for smaller structures but inadequate for today’s ambitious designs. Modern codes require assured performance for seismic, fire, and environmental loads. Our testing delivers:

• Predictable Performance: Known capacities for precise design.

• Code Compliance: Pre-approved solutions streamline specification.

• Efficient Approvals: Tested systems speed up project approvals. This positions mass timber as a mainstream, resilient construction solution.

Our

Mass Timber Testing Initiatives

Over the past five years, Simpson Strong-Tie has intensified testing at our Tyrell Gilb Research Laboratory and beyond:

• Seismic Testing: Full-scale cyclic tests of HSKP™ Heavy Seated Knife Plate Hangers validate performance under vertical and lateral loads.

• Fire Testing: For The Edison, we supported three-hour fire resistance tests at Southwest Research Institute, evaluating CBH concealed beam hangers in glulam-to-CLT assemblies per ASTM E119.

To meet ASTM E 119 “Standard Test Methods for Fire Tests of Building Construction and Materials” and satisfy Chapter 7, “Fire and Smoke Protection Features,” of the IBC®, Simpson StrongTie partnered with Southwest Research Institute in San Antonio to conduct fire rating tests. The procedures and findings of the tests may be found, in the 139-page Summary of ASTM E119 Fire Testing for CBH Connector published by Arup USA, Inc.

• Fastener Durability: Collaborations with standards organizations improve screw durability.

• Testing Standards: Partnerships with WoodWorks and the American Wood Council shape standardized testing requirements.

Innovative Products Driven by Testing

Our testing fuels high-performance products:

• Concealed Beam Hangers (CBH™, ACBH™, SCBH™, HSKP™): Tested for seismic and fire performance, designed for aesthetics.

• MCT™, MCB™, MCBS™ Glulam Column Connections: Standardized, concealed ties and bases meet code requirements.

• MPSC™ Point-Supported Column Connection: Single-bolt solution for post-and-plate systems.

• Diaphragm Connections (LDSS®, MDSS, MDCST, MTWS®, SDWS, SDWC, SDWV): Steel straps and fasteners simplify specification.

• Strong-Drive® SDCF/SDCFC Screws: E-Coat finish ensures durability per CSA O86:24.

• Stedox™ Temporary Bracing: Enhances safety during installation.

Education:

Empowering Industry Growth

Mass timber is new to many professionals. We lead with:

• Webinars: Covering seismic compatibility and fastener durability, offering PDH/CEU credits.

• Conferences: Insights shared at International Mass Timber Conference and SEAOC.

• Virtual Training Summit: Free professional development with mass timber focus.

• Technical Resources: Bulletins and guides for practical design.

• Partnerships: Collaborations with WoodWorks and the American Wood Council promote tested solutions.

Simpson Strong-Tie fabricated full beam-column assemblies to validate hanger performance under combined vertical and lateral loads for CBH, ACBH, SCBH and HSKP hangers. A lateral displacement was applied per the CUREE protocol referenced in ASTM E2126 while vertical actuators simulated simultaneous gravity loads. Displacements were measured to determine the inter-story drift and joint rotation capacity of the assembly.

Partnerships Across the Project Lifecycle

We support projects with:

• Design Assistance: Connector selection and design review.

• Field Support: On-site training and inspections.

• Custom Fabrication: Tailored connectors for unique needs.

• Soft Takeoff Services: Preconstruction estimates for connectors and bracing.

Building the Future, Together

As mass timber grows, Simpson Strong-Tie provides tested solutions, trusted partnerships, and robust education to empower engineers and builders. Visit strongtie.com/ masstimber for webinars, guides, and support.

STRUCTURAL ENGINEERING

is critical to the world’s economy and economic infrastructure. If structural engineers stopped working, all of human progress would come to a screeching halt.

It is clearly a profession that is indispensable to humanity.

Why, then, don’t our professional fees and compensation reflect our immeasurable contributions to civilization?

Low fees are affecting our profession’s ability to attract and retain the smartest graduates. Meanwhile, some of the brightest minds in our field are leaving to pursue alternative careers. This will have devastating effects on the quality of our professional work and will become a public safety issue. We must face these issues before it’s too late.

Real estate agents get paid 4% to 6% of the selling price of a building each time it is sold. Structural engineers get 0.5% to 1.5% of the construction cost, one time only. The real estate agents have it figured out. Why can’t we?

Turn static files into dynamic content formats.

Create a flipbook
Issuu converts static files into: digital portfolios, online yearbooks, online catalogs, digital photo albums and more. Sign up and create your flipbook.