Skip to main content

March STRUCTURE 2026

Page 1


Publication of any article, image, or advertisement in STRUCTURE® magazine does not constitute endorsement by NCSEA, CASE, SEI, the Publisher, or the Editorial Board. Authors, contributors, and advertisers retain sole responsibility for the content of their submissions. STRUCTURE magazine is not a peer-reviewed publication. Readers are encouraged to do their due diligence through personal research on topics.

ADVERTISEMENT–For Advertiser Information, visit STRUCTUREmag.org

EDITORIAL BOARD

Chair John A. Dal Pino, S.E. Claremont Engineers Inc., Oakland, CA chair@STRUCTUREmag.org

Kevin Adamson, PE Structural Focus, Gardena, CA

Marshall Carman, PE, SE Schaefer, Cincinnati, Ohio

Erin Conaway, PE AISC, Littleton, CO

Sarah Evans, PE Walter P Moore, Houston, TX

Steven Judd Interstate Brick, West Jordan, Utah, and H.C. Muddox, Sacramento, California

Linda M. Kaplan, PE Pennoni, Pittsburgh, PA

Jessica Mandrick, PE, SE, LEED AP Gilsanz Murray Steficek, LLP, New York, NY

Brian W. Miller Cast Connex Corporation, Davis, CA

Evans Mountzouris, PE Retired, Milford, CT

Kenneth Ogorzalek, PE, SE KPFF Consulting Engineers, San Francisco, CA (WI)

John “Buddy” Showalter, PE International Code Council, Washington, DC

Eytan Solomon, PE, LEED AP Silman, New York, NY

EDITORIAL STAFF

Executive Editor Alfred Spada aspada@ncsea.com

Managing Editor Shannon Wetzel swetzel@structuremag.org

MARKETING & ADVERTISING SALES

Senior Director for Business Development & Marketing

Monica Shripka Tel: 773-974-6561 monica.shripka@STRUCTUREmag.org

Sales Manager

Audrey Schmook Tel: 312-649-4600 Ext. 213 aschmook@ncsea.com

30 BRIDGING CENTURIES

A 100-year-old landmark synagogue underwent seismic renewal and modernization to extend its use by students, educators, clergy, and congregants.

Two San Francisco projects illustrate how structural design benefits architecture technically and even politically.

24 A BEACON ON BISCAYNE BAY

The fluid, organic form of the Braman Cancer Center is sculpted in structural concrete. But behind the architectural fluidity lies a structural system designed to withstanding the destructive environmental forces that threaten its idyllic location.

COLUMNS and

The

SHEAR STRENGTH

When seismic and wind demands push your designs to the limit, Vulcraft and Verco provide the resources to evaluate steel deck and joist systems with precision and efficiency. Our Online Design Tools streamline analysis, helping you design with confidence under pressure.

From diaphragm to wall anchorage design, our tools help evaluate deck, joists, connections, and other structural elements to ensure reliable performance under lateral forces.

And when your project calls for something uniquely challenging, our design professionals help translate complex details into buildable solutions.

EDITORIAL Experience Is the Best Teacher

“Experience is the best teacher.” That quote has been attributed to Julius Caesar. Whether he actually said it or not, the truth of it has held up remarkably well. I once read another definition: “Experience is recognizing a mistake—the second time you make it.” I truly believe that experience is much bigger than our missteps. Experience is what helps us progress. It’s what saves us time. It’s what shapes the way each of us approaches our work and our lives, and it is different for each one of us.

My experiences have shaped me in more ways than I can count. Your experiences have shaped you. When we share our experiences with others, we can help flatten their learning curve and, in some cases, genuinely enrich their lives. Years ago, I said that relationships are, in part, built on shared experiences. I still believe that. Every time we gather as structural engineers, we create a space where our individual experiences turn into something bigger.

Last year, SEI hosted two impactful inperson events: Structures Congress and the Towards Zero Carbon (TZC) Summit and Symposium. This year, SEI is organizing four outstanding experiential opportunities where you can learn, connect, and enrich both your work, and ultimately, the work of others.

SEI’s cornerstone event, Structures Congress 2026, will take place April 30-May 1 at the Westin Boston Seaport District, right in historic Boston. It’s hard to imagine a better setting as our nation celebrates its 250th anniversary and SEI marks its 30th. This year’s Congress technical program is shaping up to be one of the best ever. It offers the chance to learn from subject matter experts, business leaders, and from the young professionals whose energy and vision push our profession forward. For an inside look at how the profession evolves and how design guidance takes shape, sit in on one or more of the 30 in-person technical and professional committee meetings taking place the day before Congress begins. Students, academics, and practitioners at all

stages of their careers are all welcome.

On April 29, immediately before the 2026 Congress, SEI will host the 2nd annual SE 2050 Signatory Summit, also in Boston. This event convenes structural engineers committed to reducing embodied carbon and advancing sustainability in practice. Led by the SE 2050 Committee, industry experts, and Recognition Program Firms, the Summit focuses on practical strategies—tools, resources, emerging trends, and real-world implementation. Whether your firm has already signed on to the SE 2050 Commitment Program or is considering it, the Summit will be a meaningful way to enrich your practice and engage with your peers.

“My experiences have shaped me in more ways than I can count. Your experiences have shaped you. When we share our experiences with others, we can help flatten their learning curve and, in some cases, genuinely enrich their lives.”

carbon reduction. On November 5, SEI and IStructE will hold a hybrid symposium, in London, titled “Sustainable Structures of the Future: Innovation and Impact.” On November 6, SEI and IStructE will host a facilitated roundtable discussion for senior business leaders to inform the direction of future sustainability initiatives: “Leading Change in Structural Design.”

Looking ahead, SEI is teaming with ASCE’s other institutes to host ASCE2027: The Infrastructure Engineering Experience in Philadelphia. This will be the largest civil engineering event in the world and an opportunity to engage across disciplines, sectors, and regions in a way that strengthens all of us.

In June, SEI will host the Embodied Carbon Bootcamp at the University of Cincinnati. This two-day experience combines lecturestyle learning with hands on workshops incorporating the new SEI Prestandard for Assessing the Embodied Carbon of Structural Systems for Buildings. Whether you’re building foundational knowledge or refining existing practice, the Bootcamp offers a direct, interactive way to grow—and to help others grow alongside you.

This year marks a new milestone in the partnership between SEI and the Institution of Structural Engineers (IStructE). Collectively, our two organizations represent nearly 60,000 structural engineers in over 100 countries and are at the forefront of structural sustainability, resilience, and

Each of these gatherings share the same purpose: to bring us together to learn, to connect, to form relationships, and to enrich each other’s lives. In-person experiences allow for spontaneous collaboration, immersive learning, and impromptu networking that can be difficult to replicate in a virtual environment. In addition to these national and even international opportunities, make sure you’re also taking advantage of the opportunities available to you at your state and local level. Attend your section, branch, or chapter meetings. Engage with student chapters. Join a committee. Every time you show up, you strengthen our community and help shape the experience of someone else.

Experience is the best teacher—and when we share our experiences, we enrich one another. I look forward to the experiences we’ll share together in the year ahead. ■

Ed Huston is a practicing registered Structural Engineer in Washington and six other states. He is the SEI Fiscal Year 2026 President of SEI.

Visible Code References

Clear Inputs

Responsive Graphics Clear Pass/Fail Result

Detailed Outputs

structural ANALYSIS

Rethinking Nail Edge Distance with Wood Structural Panels

A series of tests offers practical insights for uplift design in wood framing.

Resisting uplift forces is critical for structural safety in woodframe construction, especially in regions exposed to high winds and hurricanes. Wind flowing over roofs creates suction that must be restrained by a continuous load path the full height of a building. If not properly restrained, it can lead to catastrophic roof failures and damage to the building. This article focuses on the uplift load path once forces enter the wall system, rather than the roof sheathing’s resistance to suction or nail withdrawal.

Wood structural panel (WSP) sheathing splices can be used as a key component in this load path. When properly detailed, they provide a practical way to transfer overall uplift forces through the walls without relying on costly straps or specialty hardware. This configuration engages nails in shear rather than withdrawal, where they offer greater reliability and strength. For simplicity, all sheathing splice connections and panels referenced in this article are wood structural panels (WSP).

Despite their importance, splice performance exclusively under uplift loading has not been widely studied. Current design guidance provides minimum fastener edge distance requirements, but these limits were established with testing of combined shear and uplift loading, not testing specific to wind uplift only.

To better understand the performance of sheathing splice connections that resist wind uplift only, Mulhern+Kulp (M+K), a specialty residential structural engineering firm, collaborated with the University of California, San Diego (UCSD) to run a series of tests. The goal was to evaluate how different nail edge distances affect uplift resistance and to compare those results to what the Special Design Provisions for Wind and Seismic (SDPWS) and National Design Specification (NDS) for Wood Construction require. The findings offer practical guidance that can help engineers detail more efficiently while still maintaining structural integrity.

Industry Context—Why Minimum Requirements Aren’t the Whole Story

Construction methods are evolving, and with them, the way wall panels transfer uplift forces. Practices that worked for decades in conventional framing don’t always translate cleanly to factory-built assemblies. To understand why, we need to look at how panelization, walls assembled off-site as complete panels, changes the way walls come together.

Panelized framing systems are increasingly common in residential construction. These systems streamline the building process and improve quality control by assembling wall panels off-site in a controlled environment and transporting them to the job site for installation. This approach reduces on-site labor and accelerates construction schedules, making panelization particularly advantageous

for both single-family and multifamily projects.

However, panelization changes how sheathing aligns at joints. In traditional stick-built framing, sheathing splices typically land over wide framing members such as rim joists or blocking, providing ample nailing surface. In contrast, panelized wall systems often position splices at the very top or bottom of pre-manufactured walls, where the only available nailing surface is a narrow plate.

Why? Shipping constraints. Unsupported sheathing edges can flex or break during transport, so manufacturers align sheathing edges with solid framing at panel boundaries. That means splice locations are often driven by logistics, not traditional design practice, making their performance under uplift forces an important safety consideration. In a perfect world, designers could continue detailing sheathing splices over wide framing members. But evolving construction methods and the growing use of panelization make that increasingly impractical. Understanding how these changes affect performance is essential for developing solutions that work in today’s industry, regardless of how the walls are framed.

Current Requirements—Untangling the NDS

Nail placement matters! If nails are too close to the edge of a panel, the wood can split, or the nail can pull out under load. To prevent this, the NDS sets requirements for dowel type fasteners in wood-framed construction.

Under the NDS, the minimum edge distance is based on diameter. For dowel fasteners equal to or greater than a quarter of an inch in diameter the NDS provides requirements in Table 12.5.1C, but for smaller diameter fasteners, like nails, there is no requirement, just a recommendation of two and a half times the nails diameter in the commentary for chapter 12. So, a 6d common nail is recommended to be placed at least 0.2825 inches from the edge of the sheathing. Table 1 is a quick reference for common nail sizes and their

NDS-based recommended edge distances.

The NDS provides the baseline requirements and recommendations for wood connections, including nail placement, under typical loading conditions. The SDPWS builds on these fundamentals for designs/connections exposed to forces from wind or earthquakes. Together, they form a layered system: NDS covers general fastening mechanics, while SDPWS introduces additional rules where wind and seismic loads govern design.

For the wind uplift connection examined in this study, SDPWS requirements supersede NDS, prescribing a uniform minimum edge distance of ¾ inch for a single row of nails, regardless of nail diameter (Fig. 1).

Single-row nailing is the prevailing method used for panel edge nailing. The use of multiple rows is permitted in the SDPWS, but requires different detailing and evaluation, which were not covered in this test protocol.

Despite these provisions, there is little published testing that evaluates how these required edge distances perform under wind uplift at sheathing splice locations. This lack of data raises important questions: Are the prescribed minimums more conservative than necessary? Do they constrain construction efficiency?

Understanding actual performance is essential to support informed and optimized design decisions.

Research Objectives

How close to a sheathing edge can a nail be placed while still achieving full uplift capacity?

The M+K/UCSD team tested several nail edge distances and compared their findings to the assumptions outlined in the SDPWS. The objective was to determine whether the governing SDPWS specifications accurately represented real-world performance and to provide data to assist engineers in achieving more efficient designs without compromising safety.

Testing Methodology

The tests examined nail performance near the bottom edge of a sheathing panel. Edge distance was measured from the center of the nail to the bottom of the panel, in line with the direction of the load (Fig. 2).

Four nail edge distances were tested:

A) 1.5 inches (baseline, exceeds all requirements)

B) 3/4 inches (meets SDPWS for single rows)

C) 0.452 inches (4D for 6d nails)

D) 0.226 inches (2D for 6d nails)*

*Although a 2D edge distance is not recommended by the NDS, it was included as a practical lower bound for comparison.

Each setup was tested using a calibrated rig that applied uplift force until failure. Three samples were tested for each configuration to ensure consistent results.

Fig. 1. Current WSP edge nailing minimum requirements for a single row uplift connection, from Figure 4H in the 2021 SDPWS, by AWC.
Fig. 2. The test mock up that was provided by UCSD prior to the testing is shown at right; at left is the final testing set-up and load cell in the lab.

Key Findings

The tests showed that all configurations reached peak loads at least twice the calculated design capacity (Fig. 3). This result validates diameterbased edge distance minimums as an effective design guideline. Nails placed below the NDS recommended minimum edge distance, Sample D, performed consistently, aligning with the baseline tests.

While factor of safety is an important concept in design, its specific value was not critical in this study because all tested configurations achieved peak loads well above their calculated design capacities. This consistency across samples indicates that the relative performance trends remain valid regardless of the safety factor applied, reinforcing the reliability of the observed behaviors.

Samples with 4D and 2D (Samples C and Sample D) edge distances reached peak loads similar to the other configurations but showed a quicker drop after peak, due to a shift in failure mode from plate and nail deformation to sheathing failure (Fig 4). While these connections meet load expectations, they may not suit cyclic loads typical of high seismic regions.

This study focused on wind uplift rather than seismic forces because, even in seismic regions, these connections primarily resist in-plane seismic shear rather than sustained seismic uplift. Vertical seismic effects, as defined in ASCE 7, are relatively small compared to dead loads and, in most cases, do not create net uplift. In contrast, wind uplift can far exceed dead load and produce continuous upward forces on roof and wall assemblies. Wind uplift loads are treated as monotonic (one-directional) for connection design, making post-peak strength less critical for wind applications compared to cyclic seismic demands. For these reasons, seismic considerations fell outside the scope of

this study and are not addressed here.

Overall, the data suggests that SDPWS minimums are conservative, with all tested edge distances yielding at least double the calculated capacity. Baseline tests showed similar peak capacities to other setups. The main difference was in post-peak behavior, not initial strength.

Implications for Practice

The research shows that nails can reach full capacity at edge distances below the requirements of the SDPWS, allowing for more efficient detailing in panelized construction. Designers can potentially minimize extra hardware or blocking when proper installation practices are followed.

Following the NDS recommendations in lieu of the more stringent SDPWS requirements can lead to cost savings, improved constructability, and standardized design practices. It also reinforces the importance of engineering judgment when interpreting code provisions that conflict and adapting the appropriate limitation to specific project conditions.

Maintaining a continuous load path remains essential, but this study shows that this can be achieved without unnecessary conservative limitations. By aligning design assumptions with observed performance, engineers can optimize material use and streamline construction processes.

Considerations for Future Code Development

Current SDPWS rules are conservative, and the tests suggest they may not reflect actual performance for wind uplift design. Even the shortest edge distance tested achieved comparable capacity to the other

samples. That raises the question of whether diameter-based criteria, like the recommendations in NDS, could offer more practical guidance for Wood Structural Panel (WSP) splices used for wind uplift design. Future code updates should be guided by empirical data. Performance-based design is becoming more common in other areas of structural engineering, and similar flexibility could benefit wood construction. While peak capacity is the critical factor for wind uplift, ductility is essential for seismic performance and should be evaluated separately using cyclic loading protocols if distinct seismic limitations are proposed. Continued collaboration between engineers, researchers, and code bodies will help ensure that provisions balance safety, efficiency, and constructability.

Conclusion

Testing showed nail edge distance in Wood Structural Panels used for wind uplift has less impact on peak wind uplift resistance than the SDPWS suggests. All tested configurations exceeded design capacity, even at reduced 2D distances below NDS published recommended minimums. These findings support NDS guidance and indicate that shorter edge distances can provide comparable initial strength. For engineers, this enables efficient detailing without compromising on safety. As building codes evolve, studies such as this one will ensure design practices match actual performance, supporting cost-effective and resilient construction in wind-prone regions. ■

The authors wish to acknowledge the contributions of the research team at UCSD, specifically Professor Georgios Tsampras and Ph.D candidate Kaixin Chen. Their collaboration and expertise were instrumental in conducting the experimental program and analyzing the results. This study was published in the Journal of Building Engineering and represents a significant step toward improving uplift design in wood-frame construction.

Full references are included in the online version of the article at STRUCTUREmag.org .

Ricky J. Zabel, PE, is the Director of Engineering for Mulhern+Kulp Structural Engineering. (Rzabel@ mulhernkulp.com)
Fig. 4. The two observed failure mechanisms are shown above. The OSB failure is on the left, with sill
Fig. 3. Force vs. Displacement Curves for each sample.
Sample C-0.452”
Sample D-0.226”

For Constrained Urban Sites, Structure Informs Architecture

Two San Francisco projects illustrate how structural design benefits architecture technically and even politically.

For centuries, architects have relied on the Vitruvian Virtues of “commodity, firmness, and delight” or in the Roman architect’s own words: firmitas (solid), utilitas (useful), and venustas (beautiful). For most of architectural history these three virtues were inextricably linked, and structure, an essential attribute of firmness, clearly contributed to both a building’s form and beauty. Over time, this linkage between architectural and structural form changed, and the linkage between the two is rarely evident in architecture today.

Spurring this change were innovations both ideological and material. The invention of the arch was perfected by the Romans and brought to sublime architectural expression by the builders of Gothic cathedrals. The emergence of structural steel allowed the form of a building to be decoupled from the structural frame because the exterior walls were no longer load bearing, giving architects new opportunities for exploring aesthetic boundaries. And today, the analytic tools available to structural engineers make it possible to design structures to make just about any shape conceivable withstand the forces of nature.

And over time, structural engineers have been successful at doing more with less. As buildings evolved from heavy stone struc tures to lightweight steel and reinforced concrete frameworks, live-load to dead-load ratios improved significantly. No longer was gravity load the only force a structure must resist, and facades needed to include braces

or shear walls which architects employed to express structure with varying degrees of success aesthetically. Fashion has moved on, too. However, the force of gravity is the same today as it was in Roman times, and the shape of a building is a significant influence on the efficiency of the structure supporting it. Although sustainable design rewards optimal use of resources, there are no metrics or standards to benchmark efficient use of steel or concrete like there are for mechanical,

points are credited for an efficient structure. Given this, is it meaningful to strive for a link between “firmness” and “delight” in contemporary design? Following are two case studies illustrating how structure-informed architecture yield practical but also aesthetically sustainable designs.

Both case studies are additions to historic buildings on dense urban sites in San Francisco, California. San Francisco is in an active seismic zone which played a key role

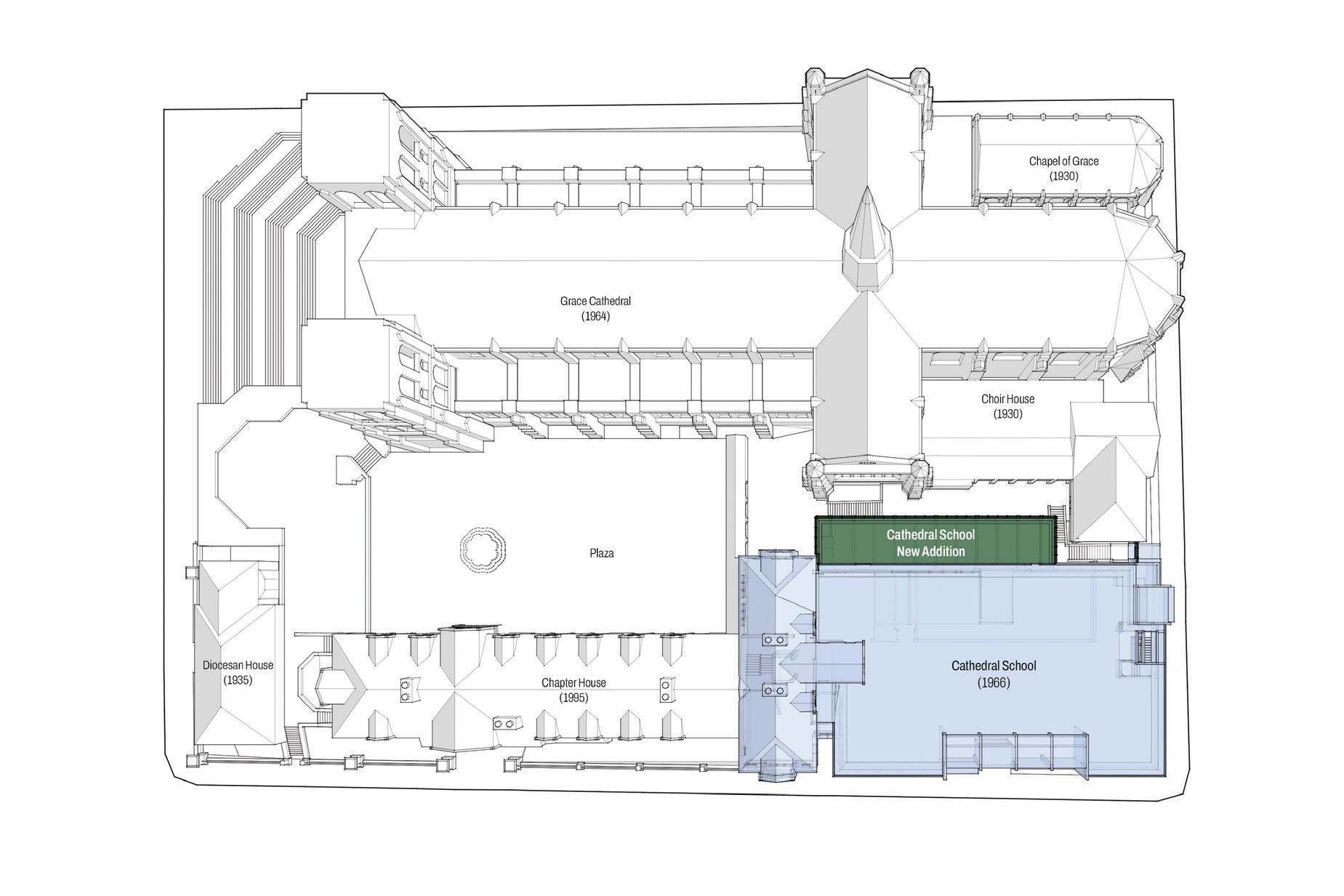
Fig. 1. Aerial view graphic (credit: Office of Charles F. Bloszies) of the Cathedral Close with Terrace Addition insert.
A view of 1 Kearny towards Market Street and “Newspaper Angle” shows how architectural styles from three San Francisco eras come together in an “architectural triptych.” (Photo credit Matthew Millman)

Terrace Addition— Cathedral School for Boys

The Cathedral School for Boys is a K-8 private school operated in partnership with Grace Cathedral, a building of Gothic proportions serving as a keystone of the Episcopal Diocese of California. Both sit on Grace Cathedral Close, a full city block on San Francisco’s Nob Hill. The entire block is a local historic landmark, recognized in the San Francisco Planning Code. New interventions on landmark sites are subject to strict zoning controls and public scrutiny.

The original two-story school was built in the 1960s and employed a state-of-the-art concrete structural system consisting of waffle slab floors and reinforced concrete columns. The structure was stepped down following the sloping site which is underlain by bedrock. Non-structural wall panels were precast, posttensioned concrete, unusual even today. Several alterations and small additions had been made to the building in decades past, including a partial-story concrete classroom addition on the downward sloping side with a concrete outdoor roof terrace.

The new project included remodeling all of the school classrooms and inserting a two-story 4,000-square-foot addition between the original school building and the cathedral, landing on the existing concrete terrace structure and avoiding the need for new foundations. The new addition serves the upper and lower schools as a “learning commons” and functions as the new heart of the school even though it is on the side of the building.

The existing terrace structure was robust enough to support a lightweight structure vertically—short-span steel framing was the logical (and perhaps only) choice. The existing school structure was almost robust enough to receive additional seismic load and only needed strengthening of a few existing concrete shear walls, which was accomplished by adding shotcrete bonded to them. The new lightweight concrete on metal-deck floor diaphragms transferred torsional seismic loads to the existing structure without the need for bracing or any structural elements that would interfere with the transparency of the wall facing the cathedral.

The addition needed to be light in weight, but also light in appearance with large windows to provide daylight into the addition itself as well as into adjacent original classrooms. Historic preservation precepts required an addition with a perceptible contemporary timestamp, one that would fit comfortably between two venerable concrete structures. A light prefabricated curtainwall achieved this goal, with

Fig. 2. The new Cathedral School addition, as seen from the plaza, serves as a learning commons. (Photo credit Matthew Millman)
Fig. 3. Light steel framing is constructed on top of the existing concrete terrace. (Photo credit Mark Warren)

pale green aluminum elements reminiscent of Two conditions were especially challenging new foundation work. The roof parapet, however, extended beyond the face of the original building as an important (and historic) architectural feature and interfered with the column-beam connection.

Carefully managed by Truebeck Construction, HSS6x6 columns were snaked up through openings created in the parapet from below. Roof beams were similarly inserted

RECORDS

Eliminate the hassle of resubmitting your

College transcripts

Exams results

Employment verifications

Professional references each time you apply for licensure in an additional state.

Build your NCEES Record today. ncees.org/records

Fig. 4. Students study on a wood bench that conceals the steel transfer girder. (Photo credit Matthew Milliman)
Fig. 5. Columns and beams are threaded through the existing concrete parapet. (Photo credit Mark Warren)

horizontally. Structural engineer, Murphy, Burr, Curry, devised details to connect the beams to the columns which also needed to deliver diaphragm shear forces to the existing roof structure. The connection protruded above the roof and was encased in concrete to become part of a bench along the perimeter of the existing roof play yard.

The second condition involved support of the new steel columns along the facade parallel to the cathedral.

The existing terrace was supported by a large upset concrete girder spanning over a ribbon of clerestory windows providing daylight to lower-level classrooms. The new steel columns of the addition landed on this girder acting as a transfer beam. The original concrete girder was heavy and lacked sufficient stiffness to ensure the windows below would not crack under the additional loads from the addition. Consequently, it was replaced by a W27 steel girder, which also needed to pick up the terrace load, now the lower floor of the addition. Coordination between general contractor and the design team was essential here, too. Removal of the concrete girder and installation of the new steel girder required shoring of the original terrace to prevent overloading of the windows below. Load transfer from shoring to the new girder was carefully monitored, and the installation was accomplished without damage to existing construction.

The new steel girder was wider than the thickness of the curtainwall above it. It was clad in wood and became another perimeter bench, a popular window seat in the new addition with a view to downtown San Francisco not experienced before the addition was built.

An Architectural Triptych— 1 Kearny

The original Mutual Savings Bank was a prominent building constructed in 1902 at “Newspaper Angle,” an important convergence of downtown San Francisco streets originally home to three daily newspapers. The opulent French Renaissance Revival-style edifice was designed by William Curlett and anchors the end of Third Street, a major transit artery into San Francisco’s downtown urban core.

The 12-story building, also known as 1 Kearny, is a sandstone- and terra cotta-clad structure supported by a steel frame designed and erected by the Roebling Construction Company of Brooklyn Bridge fame. The Mutual Savings Bank was one of a very few buildings not significantly damaged during the famous 1906 San Francisco Earthquake. The ensuing fire was not as kind to the facade, but

Fig. 6. Structural detail for roof column-beam connection. (Image credit Murphy, Burr, Curry)
Fig. 7. Structural detail for surgical replacement of the concrete girder with structural steel. (Image credit Murphy, Burr, Curry)

the ductile steel frame performed well. The building was repaired and continued to function as a bank well into the twentieth century. In the early 1960s, 1 Kearny was purchased by Citizens’ Federal Savings and Loan Association. Architects Clark and Buettler were retained to design an addition to the original 1902 building, replacing a small building at the triangular site’s corner. Charles Moore was the lead designer, and the addition shows early signs of the postmodern style Moore helped usher into the architectural mainstream. The addition, labeled the “annex,” included elevators, fire stairs, and restrooms following a “served-servant” design paradigm, also popular in the 1960s. The annex functioned as the servant, functionally subordinate to the main bank building.

The annex is a brick-clad concrete structure with stiff concrete shear walls around the stairs and elevator shaft.

Eventually the bank moved out, and 1 Kearny became a multi-tenant office building (including another bank on the ground floor). The annex presented two complications. The “servant” was too big for the “master” it served, and the narrow joint between the two made it impossible to divide a floor into separate

concrete structure attached to a flexible steel frame resulted in a “stiff tail wagging a flexible dog” which would lead to a torsional imbalance resulting in substantial damage during a major earthquake. In fact, the annex made 1 Kearny more vulnerable to earthquake damage than it had been in 1906.

1 Kearny was sold again in the 1990s, and a few years later, the new owners were able to acquire the adjacent property on the side opposite the annex. The author’s firm was retained to design a second addition to replace a small building on the newly acquired site —the “missing tooth” on a block comprised of mid-rise buildings. Filling in the missing tooth enabled the design team to correct the functional and seismic complications.

The property line separating 1 Kearny and the adjacent site was the boundary between two zoning districts with different allowable development densities and height limits. Furthermore, 1 Kearny was a Category I historic building, just below landmark status. The completed project merged the two sites, including rezoning of the adjacent site to allow the addition to be 10 stories. Rezoning involved a complex entitlements process including review by historic preservation advocacy groups, several public hearings, and approval by the mayor.

The seismic design of the addition was the primary contributor to garnering the entitlements for the project. To mitigate the torsional effects caused by the stiff concrete annex, the structure of the new addition was designed as a kind of “seismic bookend” grabbing onto the original 1902 structure from one side while the existing annex bookend grabbed the other side. The two primary facades of the addition contain steel moment frames with enough stiffness to work in concert with the annex shear walls to resist seismic forces in the long direction. Although moment frames are more flexible than shear walls, the footprint of the addition is much larger than the footprint of the annex. A third line of lateral resistance was introduced in the middle of the “dogleg” of the addition which takes 50% of the lateral load. It is a braced frame.

The design team argued that to be effective, the new seismic bookend needed to be as tall as the books supported (in this case the original historic building). Consequently, the rezoning included a height limit increase allowing the new addition to be 10 stories. The bookend approach also permitted the original Mutual Savings Bank building to be seismically strengthened without introducing new elements into it or tearing it apart. Preservationists

Fig. 8. Before and after plans of 1 Kearny show the additions made in 2009, which helped fill in empty space between two adjacent sites. (Image credit Office of Charles F. Bloszies)
Fig. 9. The above diagram illustrates the architectural and structural composition of 1 Kearny. (Image credit Office of Charles F. Bloszies)

applauded the approach, and 1 Kearny became the poster child for how a new structure could benefit a historic one.

The steel moment frames were clad with a terra cotta rain screen, an archaic material rendered in a modern vocabulary to fit comfortably next to the original facade and terra cotta Mansard roof. The terra cotta clad moment frames engaged in an architectural dialog with the brick-clad annex shear walls, expressing their function as the bookends. The resulting composition tied together architectural styles from three eras, dubbed an architectural triptych by San Francisco Chronicle’s urban design critic.

These two examples illustrate how structural design can benefit architecture technically and politically. The linkage between firmness and delight can be expressed in modern design albeit in a more subtle manner than in the past when available materials and analytic methods demanded a tighter bond between architecture and structure. ■

Full references are included in the online version of the article at STRUCTUREmag.org .

Charles F. Bloszies, SE, FAIA, LEED AP, is founder and principal of The Office of Charles F. Bloszies, an awardwinning San Francisco-based structural engineering and architecture practice founded in 1985. Bloszies is also an educator and author of essays and the 2011 book, Old Buildings, New Designs: Architectural Transformations (Princeton Architectural Press). (chuck@archengine.com)

Fig. 11. The new steel seismic bookend is shown in progress during the 2009 addition construction. (Photo credit Charles Bloszies)
Fig. 10. The original building, shown here prior to the 1906 earthquake, was built in 1902 as the Mutual Savings Bank. (Image credit San Francisco Public Library – History Room)

Stevenson Hall Transformation

The first building completed in the Sonoma State University campus received a major seismic upgrade and architectural renovation.

Stevenson Hall at California State University recently underwent a major seismic upgrade and renovation, a project that blends technically rigorous structural engineering with an architectural vision rooted in openness and daylight. The 130,000-square-foot, three-story concrete and steel-framed building relied on an outdated lateral force-resisting system that no longer met current seismic standards. Upgrading it to modern standards was no small feat, considering the tight budget and the architectural need for flexible, transparent interior spaces. Designed by the State of California’s Department of Public Works–Division of Architecture in 1964 and completed in 1967, Stevenson Hall was the first building in the Sonoma State University campus. It housed classrooms, faculty offices, and a cafeteria, and underwent minor renovations in 2002 and 2006, serving the Schools of Education, Social Sciences, and Business and Economics. Upon completion of this most recent renovation in August 2022, the retrofitted structure will provide 22 general purpose instruction spaces accommodating 24 to 224 seats, as well as collaborative gathering areas throughout the building. Rutherford + Chekene (R+C) served as the structural engineer, while the architect was EHDD Architecture.

Existing Structural Configuration

The existing building consists of a three-story structure plus a partial basement, with plan dimensions of approximately 310 feet by 180 feet. Story heights are 14 feet at typical levels and 12 feet at the basement. The building is rectangular in shape with an internal open atrium and an east-side breezeway. A 2-inch seismic joint separates the west wing of the rest of the building above Level 1, resulting in three distinctive structural wings.

Project Team

Owner: Sonoma State University, East Rohnert Park, CA

Structural Engineer: Rutherford + Chekene, San Francisco, CA

Architect: EHDD Architecture, San Francisco, CA

General Contractor: Truebeck Construction, San Mateo, CA

by

Photography
Cesar Rubio

The structural system consists of steel beams and columns encased in concrete, cast-in-place concrete slabs with joists, perimeter precast columns, and concrete shear walls. Columns are typically spaced at 24 feet in both directions. The typical floor system includes a 4-inch-thick slab over 7.5-inch by 18-inch concrete joist spaced about 3 feet on center. Steel framing includes W21 girders and W12 beams, encased in concrete, supported by interior W10 columns. Perimeter concreteencased columns are 26 by 26 inches in section and consist of W10 steel columns encased in concrete, not connected to the slab but to the girders in the north-south direction only. Exterior columns at the east and west facade of the building extend from Level 1 to the roof and are not connected to the structure at the intermediate levels. These columns are 26 by 26-inch hollow precast concrete elements. The lateralforce resisting system consists of 8-inch interior concrete shear walls. Foundations are typically spread footings interconnected with grade beams. The cladding system consists of precast wall panels connected to the edge of slab with steel inserts.

Site Conditions and Seismicity

The soil at the site consists of up to 6 feet of heterogeneous fill over stiff to very stiff clay with intermediate layers of loose to very dense sand with clay to maximum explored depth of 51.5 feet. Groundwater level is about 15 feet below ground surface.

The controlling seismic source at the site is the Hayward-Rodgers Creek fault system, located approximately 3.9 km from campus. A 7.4 magnitude event is expected when the Rodgers Creek fault and the northern segment of the Hayward fault rupture together. Liquefaction and lateral spreading hazards are low. Expected settlement includes densificationinduced settlement between ¼ to ¾ inches, and liquefaction-induced settlement of about ½ inch.

The site is classified as Site Class D per ASCE 7-16 Minimum Design Loads and Associated Criteria for Buildings and Other Structures. Seismic parameters were taken from CSU Seismic Requirements (2019), which provide campus-specific values.

Project Delivery and Budget Constraints

The renovation project was delivered using a hybrid collaborative designbuild process with a fixed budget, requiring continuous coordination to

balance cost, schedule, and performance. This framework strengthened collaboration among the design team, general contractor, and trade partners to maintain alignment with the University’s financial constraints. As with most retrofit projects, existing-building unknowns introduced additional complexity and made cost control more challenging. With a total project budget of $71 million, the design-build team aimed to maximize value and deliver a modern, flexible 21st-century learning environment within the project’s tight budget. The project design and construction were at the height of the COVID 19 pandemic which also challenged the design team to find new ways to collaborate and impacted the contractor’s supply chain, particularly

The original Stevenson Hall building was built in
The retrofit connected the building's three seismically separated wings, and the courtyard was infilled. Adding a glass roof to the space created an atrium.

wall reinforcement consists of two layers of #6 and #7 horizontal bars spaced either 6 inches or 12 inches on center, #5 or #6 vertical bars spaced at 12 inches on center, and 4-foot-long boundary elements reinforced with #6 vertical bars spaced at 6 inches on center and #5 confinement ties at 6 inches on center.

for the glazing and new exterior panels. A preliminary assessment found that the renovation cost exceeded 25% of the replacement cost of the building, triggering the need for a seismic evaluation and retrofit per CEBC 2022 Section 317. Given the University’s desire for larger, more transparent interior spaces, retrofitting the existing interior 8-inch concrete shear walls was not feasible. Thicker walls would reduce usable space, and reinforcing the existing wall foundations would be very difficult to execute given limited access to the interior of the building. Instead, the team opted for a complete replacement of the lateral force-resisting system using new exterior reinforced concrete shear walls, allowing the removal of the interior structural walls and minimizing foundation disruptions.

Seismic Retrofit

The original 8-inch interior shear walls no longer met seismic performance requirements per ASCE 7-16 and conflicted with the architectural vision for openness and daylight. To meet both seismic criteria and design objectives, a new lateral system was required. The retrofit was designed under the California Existing Building Code and ASCE 41-16 Seismic Evaluation and Retrofit of Existing Buildings with performance objectives and seismic parameters based on CSU Seismic Requirements (2019). The performance objective is BSE-R (S-3) for life safety and BSE-C (S-5) for collapse prevention. The seismic parameters were defined according

The structural retrofit included a new lateral system consisting of 18-inch special reinforced concrete sheer walls located primarily at the building's perimeter.
Typical

to prescriptive values specific to the Sonoma Campus per CSU Seismic Requirements (2019) Tables 1 and 2b for the two performance levels. These values are the following:

PARAMETER

The resulting base shears are:

E-W Direction (kips)

V, N-S Direction (kips)

The performance objective for non-structural components, including seismic anchorage and bracing is BSE-1 per CSU Seismic Requirements, which is equivalent to a new building per ASCE 7-16. These values are:

the lateral system that using these walls provided. This also simplified the roof addition that enclosed a previously open interior courtyard, which provides a gracious open interior meeting space at the ground floor. High-strength Grade 80 reinforcing steel and 8,000-psi concrete were used to reduce length and thickness of walls while meeting seismic demands. Walls were designed as flexure-controlled elements capable of resisting the maximum shear that can be developed in the wall at their maximum flexural capacity. Typical wall reinforcement consists of two layers of #6 and #7 horizontal bars spaced either 6 inches or 12 inches on center, #5 or #6 vertical bars spaced at 12 inches on center and 4-foot-long boundary elements reinforced with #6 vertical bars spaced at 6 inches on center and #5 confinement ties at 6 inches on center. Interior wall demolition followed a carefully phased sequence to maintain structural integrity per ASCE 37 Design Loads on Structures During Construction construction load requirements. The design team worked in close collaboration with the contractor to allow for progressive demolition so that as new shear walls were erected old walls were removed, eliminating any temporary bracing and keeping the schedule efficient. This approach also enabled mechanical and electrical trades to begin their work in the interior spaces while the exterior work progressed.

The three building wings were tied together at all levels to form a single diaphragm to redistribute the seismic loads to the new walls through collector elements. Chord and collector elements at Levels 2 and 3 were added to drag forces from the diaphragm into the walls and to reinforce the diaphragm at the interior reentrant corners. These collector elements consist of a thickened 8-inch solid concrete slab that is doweled to the existing perimeter steel beam through a continuous top steel plate.

Existing truss bracing between second and third floor was strengthened to support increased loads on Level 2. A similar truss was added where an interior column was removed to create a larger classroom space.

Analysis followed the linear dynamic procedure per ASCE 41-17 and 2019 CEBC. The building was analyzed assuming semirigid diaphragms and reduced effective stiffness of the new concrete walls per ACI 318-19 Building Code Requirements for Structural Concrete. M-factors of 4 for BSE-R and 6 for BSE-C were used. Acceptance criteria were determined by ASCE 41-17.

The new lateral force-resisting system consists of 18-inch special reinforced concrete shear walls, located primarily at the building perimeter, enabling demolition of the interior concrete walls and opening the floor plates for larger, more modular classrooms and collaboration areas. Joining all three wings together was one of the critical improvements to

Most of the precast cladding panels were removed to create a more open and transparent exterior, improving natural interior lighting. Their removal also reduced the structure’s overall seismic mass, resulting in reduced seismic demands on the newly added reinforced concrete shear walls and their supporting foundations.

Strengthening the foundation to support the new shear walls involved adding pile caps, grade beams, and long 12 ¾-inch-diameter, 80-foot-long Tubex piles, installed from outside due to limited interior headroom. The added pile caps were located between existing footings where possible. At instances where pile caps could not be perfectly aligned with the wall locations due to the existing foundation, large-section grade beams—up to 66 by 64 inches—were utilized to distribute forces from the walls to their foundation. The foundation system was designed for

Temporary shoring of columns was then integrated into the new wall foundations of the courtyard.

wall capacity. Pile ultimate capacities are 424 kips in compression and 258 kips in tension, with lateral resistance provided by passive soil pressure on the pile caps.

Courtyard foundation work required partial demolition of existing footings and temporary shoring of columns, later integrating those elements into the new wall foundations. Close collaboration between designers and the contractor was essential for proper sequencing. In the early stages of planning for the shoring, R+C found creative ways to temporarily utilize the new foundation’s Tubex piles as part of the shoring contractor’s system helping to reduce construction cost and speed the construction schedule.

Early in the project, R+C communicated to the construction team how the design was meant to work—highlighting key elements that were essential to the success of the project. During the structural construction phase R+C visited the site every 5 to 10 days to help the contractor overcome the usual challenges that retrofits involve. This close collaboration in the field was a key element in the successful completion of the project. Due to the stacking of the early construction activities, requests for information from the field were routinely answered within 24 hours to allow the construction team to maintain their momentum. Architecturally, the vision was to transform the underutilized courtyard into the heart of the building. By connecting the building’s three seismically separated wings, the team infilled the courtyard and added a glass roof to create a stunning atrium. The atrium was enclosed with conventional steel wide flange framing, with north-south girders spanning the width of the atrium, supporting the eastwest joists. A 3-inch steel deck with 3 ¼ inches of light weight concrete fill provides the roof diaphragm and walking surface. The new deck is doweled into the existing concrete slab to provide a complete seismic diaphragm.

The typical added slab at Levels 2 and 3 consists of 4-1/2 inches of normal weight concrete fill on W2 deck. This slab is supported on W18 or W21 steel beams and W21 or W24 girders, except at the long spans at the added classrooms where W40 and W42 girders are used. Columns are typically W12 steel sections on isolated spread footings.

This atrium space is now both a social hub and a structural component, efficiently distributing diaphragm forces to shear walls while providing a bright, inviting space for collaboration.

Seismic Peer Review

A seismic peer review was conducted by the Campus Principal Peer Reviewer according to CSU Seismic Requirements. The peer review process starts at the beginning of the project and continues until construction completion. Peer review concurrence letters were issued at completion of the Schematic Preliminary Design and Construction

Document Phases and during construction on deferred submittals that have a seismic component.

Conclusion

Stevenson Hall is now more than code-compliant--it has been transformed into an open, flexible, and resilient academic building. It meets CSU’s Life Safety and Collapse Prevention standards while delivering modern instructional spaces and a vibrant atrium that encourages engagement. The project demonstrates how thoughtful engineering and innovative architecture can work together to create a building that both performs and inspires. ■

David S. Bleiman is president/CEO of Rutherford + Chekene.
Francisco Parisi is executive principal at Rutherford + Chekene.
Removing most of the precast cladding panels reduced the seismic demands on the newly added reinforced shear walls and supporting foundations.

A Beacon on Biscayne Bay

The fluid, organic form of the Braman Cancer Center is sculpted in structural concrete.

PROJECT TEAM

Owner: Mount Sinai Medical Center

Architect and Structural Engineer: CannonDesign, St. Louis, MO and Buffalo, NY

MEP/FP Engineer: TLC Engineering, Orlando, FL

General Contractor: Brasfield & Gorrie, Miami, FL

Nature’s power has reshaped the built environment for centuries through its raw, volatile, and destructive strength. But in the process of building and rebuilding, successive generations of architects and engineers have sought inspiration from the natural environment as they innovate and respond to these challenges. And while hurricanes, floods, and fires present significant risks to human life, individuals continue to seek physical, emotional, and spiritual health from the natural world.

With its fluid, organic form echoing the adjacent waters of Biscayne Bay, the Irma and Norman Braman Comprehensive Cancer Center at Mount Sinai Medical Center in Miami Beach, Florida, is designed to draw from the beauty of its coastal environment while standing resilient in the face of hurricanes, flooding, and damaging wind-borne debris.

A Landmark for Healing

Because the number of cancer patients across South Florida is projected to rise by at least 12 percent through the end of the decade, the six-story, 220,000-square-foot Braman Cancer Center is a response to both regional healthcare needs and institutional vision. In partnership with Columbia University, the facility will offer a full range of oncology services—from early detection and prevention to therapy and survivorship—under one roof. The Braman Cancer Center is also a strategic investment in patient experience and staff recruitment, designed to attract world-class physicians and researchers.

Rising 90 feet above the western shores of Miami Beach, the building is intended to be iconic. Its sculpted structure is visible from the Julia Tuttle Causeway, offering a striking silhouette against the Miami skyline. But behind the architectural fluidity lies a robust structural system designed to accommodate cutting-edge oncology services while withstanding the destructive environmental forces that threaten its idyllic location.

Foundations and Flood Resilience

Because its location is mere feet from the shoreline in an AE flood zone, the Braman Cancer Center is engineered for resilience. The lateral force-resisting system is comprised of 16-inch-thick concrete shear walls that surround stair and elevator shafts at each end of the building. Designed for an ultimate windspeed of 175 mph, the shear walls limit overall service-level wind deflection to less than one inch at the roof of the structure, corresponding to a lateral drift ratio of approximately H/1000.

The concrete shear walls and gravity columns are supported by mat foundations and grade beams anchored to bedrock by 16-inch-diameter auger-cast piles. Due to the poor subsurface conditions, a 12-inchthick structural slab-on-ground spans between the pile caps, which are spaced at approximately 32 feet on-center. A blind-side waterproofing membrane extends below the slab and across the pile caps and mats, terminating on the vertical surfaces of the columns and perimeter walls

The Irma and Norman Braman Comprehensive Cancer Center in Miami Beach, Florida, features a sculpted structure.

to reduce the risk of groundwater infiltration during flood events. To further guard against water intrusion, finished grade was increased nearly six feet across the site, raising the finished floor approximately 18 inches above the 500-year flood elevation established by FEMA. A 12-inch-thick reinforced concrete site wall extends several hundred feet around the building, serving both as a retaining wall and a barrier against flood-borne debris. The wall is supported by a continuous 9-foot-wide grade beam spanning between pairs of auger-cast piles anchored into rock. With sweeping curves and a parged concrete finish, the protective barrier extends the fluid architectural vocabulary to the site, elegantly grounding the building to its surrounding landscape.

Structure in Service of Design

Reinforced concrete was selected for the Braman Cancer Center in response to both the construction practices prevalent in South Florida and specific oncological program requirements, especially a desire to

accommodate the anticipated growth in patient volumes and changing healthcare technology with minimal future alteration. Incorporating graceful sweeps and curved massing, the building’s fluid design further supported the choice of a concrete structure, which has an inherent ability to be sculpted in ways that other materials do not.

With a typical story height of 16 feet, each floor of the five-story building is framed with 12-inch-thick, two-way, mild-reinforced concrete slabs spanning 32 feet between each column to support a wide range of oncology programs while minimizing the overall required structural depth. Where necessary, 4 ¼-inch-deep drop panels are located at isolated columns to reduce deflection or increase punching shear capacity.

The inherent mass and stiffness of the concrete structure is particularly important where stringent vibration criteria (VC) are required to operate highly sensitive medical equipment. The second-floor imaging facility, which houses two MRI suites, called for enhanced stiffness to satisfy VC-C, corresponding to an acceleration limit of 500 μ-in/s (mips). Floor construction at the MRI suites is comprised of a 16-inch-thick slab reinforced with stainless steel bars to prevent electromagnetic interference. Adjacent to the MRI suites, HSS posts located behind

Each linear accelerator is supported by a 38-inch-thick concrete mat that spans between a grid of piles. This mat supports an extensive reinforced concrete radiation shield structure that doubles as a transfer slab for columns above the second floor.

The concrete walls surrounding the Braman Cancer Center shield the building from the adjacent waters of Biscayne Bay and retain fill material that elevates the site. The concrete shear walls were slip-formed over their full height ahead of the concrete gravity framing.
Typical reinforcing at the flat slab is comprised of #7 bars at 12 inches on-center at the top and bottom elevations. Stainless steel reinforcement below the MRI suite can be seen at left.

Computational design tools were used to develop 40 unique precast panel shapes and arrange them into the ribbons shown. Each color represents one of the unique profiles used.

the exterior curtain wall provide support for removable glazed panels, facilitating direct crane access for future MRI equipment replacement. A desire to easily accommodate program changes that might result from advances in cancer care guided the design of the floor structure. While a post-tensioned system could have yielded thinner slabs, this approach would have complicated the ability to add new floor openings for MEP infrastructure. Though post-tensioned slabs would have been thinner, the distributed tendons would have complicated the addition of future openings for MEP infrastructure. The mildreinforced flat slab that was ultimately constructed can be more easily modified and, while requiring more material, provides the mass and stiffness needed to support a variety of vibration-sensitive surgical and imaging equipment.

Radiation Vaults and Transfer Systems

The building’s ground floor houses high-radiation treatment spaces, including a high dose rate (HDR) brachytherapy vault and multiple

linear accelerator (linac) rooms. The HDR vault features a 12-inch structured slab-on-ground, 23-inch-thick normal weight concrete walls, and a 24-inch cap slab that doubles as the structural floor at the second floor. The linac vaults are even more robust, with walls up to 81 inches thick and cap slabs ranging from 36 to 90 inches. Recessed slabs and mats at the HDR vaults, linacs, and elevator pits are proportioned to resist hydrostatic uplift forces up to 340 psf through their self-weight where they extend into the groundwater table.

Due to their size and unique program requirements, accommodating radiation therapy spaces within a standard planning module or column grid—typically between 28 and 33 feet for healthcare projects—is often impossible. The Braman Cancer Center is no exception, and the thick, normal weight concrete slabs above the vaults serve the dual purpose of both radiation shielding and transfer mats for three columns supporting the four levels above the second floor. One and two-way shear design of the mats and the typical floor slabs conforms to the 2020 Florida Building Code (FBC), which was in effect at the time the building was designed and permitted. While the 2020 FBC incorporates ACI 318-14 Building Code Requirements for Structural Concrete, the standards

The design team worked closely with Gate Precast to develop connection details between the panels and support structure. Gate used the load points and design intent established by the structural details in the Contract Documents to develop connections that streamlined erection and provided adequate field tolerance.

currently in effect, FBC 2023, reference ACI 318-19, which would have resulted in a lower capacity due to the incorporation of the shape effect factor for shear. Though this challenge could have been overcome through the use of higher strength concrete, supplemental reinforcement, or thicker slabs, the Braman Cancer Center offers an example of how changing regulatory standards can impact design efficiency and cost.

Additional column transfers were required at the southern end of the second and fourth floors, a result of the building’s stepped form and curved plan. Concrete girders measuring 48 inches by 72 inches deep transfer seven columns above the second floor, while an additional eight columns are transferred above the fourth floor. The broad terraces formed by these setbacks soften the building’s scale and provide space for outdoor sculpture courts. To withstand hurricane winds, each sculpture is anchored to ½-inch-thick steel plates embedded into reinforced concrete pedestals that are anchored to the primary structural slab.

Further supporting the rapidly evolving landscape of cancer treatment, additional pile foundations and a mat slab at the ground floor are designed to accommodate a third linac room within the current building. Because cast-inplace concrete construction would likely be impractical for the future vault, these foundations are designed to support the weight of high-density modular shielding walls. At the second floor, a permanent steel rigging platform is concealed behind the parapet wall to facilitate the addition of new equipment for this vault and other areas of the building as program needs change.

Precast Optimization

Sinuous ribbons of horizontal glazing and precast concrete panels elegantly wrap the building’s continuously curved perimeter, creating a dynamic facade that appears to shift and undulate from every vantage point. To overcome the inherent constructability challenges of forming over 600 distinct panel shapes, the design team employed advanced computational tools, allowing for extensive modularization without sacrificing visual complexity.

A custom algorithm, developed in Grasshopper, superimposed a series of waveforms onto five distinct curve types within Rhinoceros 3D (Rhino), defining a series of 40 unique panel profiles. The algorithm was scripted to ensure each ribbon began and ended with a common panel geometry, creating a closed loop around the perimeter of each floor. Through this approach, the design team maintained optimal panel lengths and weights while minimizing the total number of unique panel shapes required. Using computational design tools allowed some panels to repeat up to 16 times, and all profiles were used at least nine times—the minimum threshold established by Gate Precast to meet the practical constraints of the fabrication process and streamline erection.

Weighing between 10,000 and 22,000 pounds, each precast spandrel panel was manufactured in segments up to 12 feet in length. Gravity support is provided by continuous 48-inch by 30-inch concrete beams around the perimeter of the building. Because the panels extend several feet beyond

Supported by a pair of curved concrete arches, the entrance canopy curves outward from the second floor overhang and over the patient drop-off.

the slab edge, each anchor point is subjected to large torsional forces generated by the eccentric gravity load as well as by wind pressures of 185 psf acting on the exterior envelope. To resist these forces, each precast panel is anchored to a pair of HSS posts that cantilever vertically from embedded steel plates located at the slab edge within the wall cavity. While the precast spandrel panels are an essential element for achieving the aesthetic goals of the project, they also serve as a sunshade to the ribbons of glass that provide patients with sweeping views of Biscayne Bay and the Miami skyline. Complementing the inherent resilience of the precast concrete to windborne debris, all glazing elements are designed to meet the Miami-Dade County requirements for High Velocity Hurricane Zones, including impact resistance and wind-driven rain.

Canopy as Structural Sculpture

A visually striking reinforced concrete entrance canopy defines the front of the building. Rising 20 feet above the ground and spanning 50 feet across the patient drop-off driveway, the canopy is supported at the exterior of the building and by a 41-inch-thick concrete wall that curves both vertically and in plan. Along with standard plan details and sections, the structural documents included 3D illustrations and the trigonometric equations used to establish the complex geometry of the support elements. The wall’s exterior is clad in curved precast panels, each weighing nearly 20 tons, while the interior is parged for a clean, monolithic appearance.

The canopy roof structure comprises 36-inch-deep concrete girders that carry a series of smaller beams. Together, these members support

a 6-inch-thick, one-way slab designed to withstand wind uplift forces exceeding 200 psf. An ovular skylight, 26-feet-long and 15-feet-wide, is centered within the canopy roof structure. Each glazing panel is supported by HSS members that span between concrete curbs surrounding the opening. Gracefully curving toward the face of the building, the canopy slab becomes a continuous overhang that cantilevers 12 feet from the face of the curtain wall around the entire second floor.

A New Landmark

As cancer care continues to evolve, so too must the environments that support it. The Braman Comprehensive Cancer Center at Mount Sinai Medical Center rises to this challenge by offering an adaptable, resilient, and inspiring place for healing. Its flexible design accommodates a broad spectrum of patient services far beyond traditional clinical spaces while anticipating tomorrow’s changing medical landscape. Most importantly, the Braman Cancer Center demonstrates that all of this can be achieved in a building that strives for the highest levels of both beauty and resiliency. Embracing the allure of its site while standing strong against the forces of nature, the Braman Cancer Center is poised to become a landmark for healing at the gateway to Miami Beach. ■

John Roach, SE, PE is a structural engineer in the Buffalo, NY office of CannonDesign. Ron Curtis, PE (retired) is the structural engineer of record.
The geometry of the precast concrete facade was optimized to reduce the number of unique shapes with compound curves so that the custom forms produced by Gate Precast could be reused as much as possible.

Bridging Centuries

A 100-year-old landmark synagogue underwent seismic renewal and modernization to extend its use by students, educators, clergy, and congregants.

Congregation Emanu-El with its pink-hued dome has stood in San Francisco's Richmond District for almost a century.

Project Team

Structural Engineer of Record:

Forell Elsesser Engineers

Owner: Congregation Emanu-El

Architect of Record:

Mark Cavagnero Associates

Historic Architect: Page & Turnbull

General Contractor: Plant Construction

Owner’s Representative:

For nearly a century, Congregation Emanu-El in San Francisco, California, has stood as a spiritual and cultural anchor in the city’s Richmond District. Its pink-hued dome rises 150 feet above Lake Street, visible from many corners of the city, and its architecture reflects the artistry of Bakewell and Brown, Bernard Maybeck, and G. Albert Lansburgh—three of the Bay Area’s most influential designers. More than a landmark, the synagogue is a place where generations of San Francisco’s Jewish community have celebrated

Equity Community Builders

milestones, honored traditions, and found belonging. Preserving this historic complex required not only sensitivity to its architectural legacy, but also innovative engineering to ensure it will thrive safely into its second century. This work was made possible through the collaboration of Forell Elsesser Engineers (Structural Engineer of Record), Mark Cavagnero Associates (Architect of Record), Page & Turnbull (Historic Architect), Plant Construction (General Contractor), and Equity Community Builders (Owner’s Representative).

The site plan shows the L-shaped compound that includes the Sanctuary Building, Courtyard Building, and Temple House Building.
A new concrete and steel structure is installed behind the existing historic facade.

Evaluating an Aging Courtyard Building

The Emanu-El complex comprises several interconnected structures built in 1925. The Sanctuary Building and Temple House were framed with structural steel encased in reinforced concrete, while the Courtyard Building—a smaller structure forming the interior connector building of the L-shaped site—was built of conventional reinforced concrete without steel framing.

A seismic evaluation by Forell Elsesser Engineers using ASCE 31/41 Tier 1 identified multiple deficiencies in the Courtyard Building: under-reinforced shear walls, discontinuities, lack of seismic joints to adjacent buildings, and evidence of water intrusion and slab decay. Some shear walls terminated abruptly at mid-height landing on transfer beams and slabs not designed for the seismic forces, creating discontinuities that would concentrate stresses during an earthquake. Reinforcement levels in several walls were well below modern code expectations, and core samples from those walls revealed deterioration from decades of moisture infiltration. Compounding these issues was the absence of seismic separation joints; the Courtyard and Sanctuary buildings were seismically connected together, greatly increasing the likelihood of a damaging interaction in a strong seismic event.

Because the Courtyard Building and Sanctuary had been constructed integrally with continuous diaphragms at aligned floors and shared concrete shear walls, they were originally expected to act together during an earthquake. In reality, the taller, stiffer Sanctuary would likely overpower the shorter, weaker Courtyard in a seismic event. The evaluation underscored the need for the buildings to behave independently, ensuring safety for the many congregants, students, and visitors who rely on the facility daily.

Replace or Retrofit?

One option was to maintain the existing structure and perform a major retrofit with new shear walls, foundations, and collectors. While feasible, this approach would have required significant intrusion into the existing building, reducing usable space and altering circulation patterns. The costs were projected to be disproportionately high compared to the long-term benefit. At the same time, the congregation recognized that the Courtyard Building had reached the end of its useful life. Together, the project team explored replacing the structure while preserving the presence of its historic facade on Lake and Arguello Streets. This approach balanced practicality with

Lessons Learned

• Evaluate integral structures carefully. When multiple buildings are joined without seismic joints, differences in stiffness and height can create damaging interaction during an earthquake. Early separation strategies avoid costly repairs later.

• Historic facades demand flexible connections. Connections that allow for the new structure to move independently but still brace the facade out-of-plane are needed, protecting brittle, lightly reinforced facade elements while preserving their architectural character.

• Alternative systems must balance structure and use. While steel braced frames were initially considered, reinforced concrete shear walls offered better compatibility with existing retaining walls and more flexibility for circulation and MEP routing.

• Temporary work is critical to success. Shoring and underpinning adjacent buildings, sidewalks, and significant facade elements such as the Lake Street Arch required almost as much engineering ingenuity as the permanent structure.

• BIM coordination reduces risk. Modeling facade interfaces, support details, and shoring sequences in Revit enabled the design team to anticipate conflicts and streamline construction.

stewardship: upholding community safety while maintaining the familiar character of the neighborhood streetscape.

Designing a Respectful Replacement

Architecturally, the replacement reimagines the courtyard as a central gathering place, framed by a new transparent structure that brings light, openness, and modern functionality while maintaining dialogue with the historic fabric.

The new Courtyard Building adds four levels—one fully below grade and three above—designed to integrate with the existing campus. Structural steel was selected for the gravity system to simplify erection and reduce the weight of the building, which in turn reduced seismic demands on the foundation. Concrete shear walls provide lateral resistance, chosen both for compatibility with the surrounding basement retaining walls and for their flexibility in accommodating doors, circulation paths, and mechanical ducts above grade. Alternative systems, such as steel braced frames, were considered, but they were

HSS Assembly

Oversized holes to allow for rod rotation

Existing facade

Thin tension rod

Thick compression rod

Belleville Washers to allow rotation of rod

The facade bracing assembly is shown in detail and as installed at the site.

found to conflict with key architectural openings and limited duct routing. Concrete shear walls also offered mass and stiffness that helped reduce drift, an important factor given the adjacency of the new Courtyard Building to the more rigid Sanctuary. The 2019 San Francisco and California Building Codes were used for the design, which reference ASCE 7-16, the standard for new buildings.

One of the key challenges was detailing the interface between the new structure and the preserved historic facades. Rigid connections would have engaged the fragile, lightly reinforced concrete walls during seismic events. Instead, the design incorporates anchor assemblies specifically detailed to resist wall out-of-plane tension and compression forces only, allowing the new building to move and deflect independently while the facades remain non-structural, self-supporting elements. Anchors of small diameter, which were flexible enough to allow the main building to drift without imparting significant forces on the facade, were designed to resist tension. Larger diameter anchors assembled with Belleville washers were designed to resist compression with rotation, and avoiding the resistance of horizontal forces. This detailing ensures the historic walls are purely decorative and no longer relied upon to resist seismic or gravity loads.

12-inch wide seismic gaps were introduced between the Courtyard and adjacent buildings at every level to prevent pounding, with discrete cuts and steel plate covers blending into the existing concrete.

Shoring and Preservation

Preserving the facades required intricate sequencing. Temporary bracing supported the walls until they could be supported by the new structure. The most challenging element was the Lake Street Arch, the iconic entryway to the synagogue complex through the Courtyard Building. Forell Elsesser designed a nested series of HSS steel frames that fit within the arch cavity and anchored to the interior of the existing arch concrete, supporting it for both gravity and seismic forces. The walls of the arch structure were confirmed to have adequate capacity to serve as shear walls and now bear directly on new framing at the fourth level.

Construction logistics added further complexity. Underpinning was required not only for the new basement but also for adjacent buildings and sidewalks along Lake and Arguello Streets. Forell Elsesser coordinated with the geotechnical and shoring engineers to design systems that maintained support during excavation and transferred loads seamlessly to the new permanent foundations. Permanent underpinning was installed under the existing shallow Sanctuary footings that were exposed by the new excavation, to reduce large surcharge pressures on the new building’s retaining walls. Temporary shoring and underpinning was installed at all adjacent sidewalks for use during the temporary excavation, with these smaller surcharge pressures being carried by the new building’s retaining walls. These measures ensured

Existing historic concrete facades remain in place and become a curtain wall for the new structure.

surrounding structures, some of which were also historic, remained stable throughout the multi-year construction effort.

These solutions allowed the congregation and neighbors alike to retain the historic character of the complex—ensuring that familiar views of the arch and dome remain unchanged while the structure behind them is entirely renewed.

A Building for Today’s Needs

The project also created new opportunities for programming through the architectural interventions by Mark Cavagnero Associates, whose design introduced a rooftop play terrace, transparent community

spaces around the courtyard interior, and a reinvigorated entry sequence aligned with the dome and Sanctuary—all supported by structural solutions that enabled these features.

Half of the previously unoccupied roof is now an open-air, elevatoraccessible playground for the synagogue’s nursery school. Surrounded by glass guardrails, the space offers striking views of the dome and arch that were once invisible from street level. Inside, engineering solutions support features such as a dramatic stairway rising from the Lake Street arch entry to the main courtyard, a curved steel bridge spanning overhead, and recessed framing to accommodate sunken garden beds planted with olive trees.

Design and documentation utilized a range of structural modeling software, including ETABS for system analysis and Revit for coordination with the architect and contractors. Close BIM integration with a laser scan of the existing structure allowed complex facade interfaces and carefully detailed connections to be resolved in 3D before construction, reducing field conflicts.

Completion and Legacy

After 13 years of planning and construction, the new Courtyard Building opened in September 2025. Within days, it was bustling with students, educators, clergy, and congregants—a sign of how deeply this building is woven into community life.

The project demonstrates how sensitive design and technical innovation can extend the life of historic structures in seismically active regions. For Forell Elsesser, Mark Cavagnero Associates, and the full project team, it was both a technical and design challenge, as well as a profound opportunity to protect a cultural landmark while strengthening its role as a place of gathering, learning, and faith. ■

Susan LaFore,

Keri Scholte, PE, is a Project Engineer with Forell|Elsesser.

Allen Nudel, SE, DBIA, is a Principal with Forell|Elsesser Structural Engineers in San Francisco, CA.
SE, is a Senior Associate with Forell|Elsesser.
Preservation of the Lake Street Arch creating a new grand entryway to the building.

Initiatives to Celebrate the IV Centenary of the Dedication of the Basilica Include Structural Health Monitoring

Anumber of initiatives have been introduced by the Vatican to mark the 400th anniversary of St. Peter’s Basilica. Of particular note for structural engineers is the “Beyond the visible” project, which is the result of the collaboration between the Fabbrica di San Pietro and Eni to safeguard the static nature of the Vatican Basilica, through structural, integrated, and permanent monitoring.

The collaboration between Eni, as technical sponsor, and the Fabbrica di San Pietro was born with the aim of preserving the “state of health” and magnificence of the Basilica over time through work conducted with the adoption of advanced geophysical, geological, topographical and structural survey technologies and which makes use of highprecision monitoring systems.

A 3D digital model of the entire monumental complex has been created to deepen the understanding of the state of the foundations and the subsoil of the Basilica. The first phase of the project involved the acquisition and study of the sources of the Historical Archives of the Fabbrica di San Pietro (ranging from the sixteenth to the eighteenth century), the information of the investigations conducted by Eni between 1997 and 1999 on the occasion of the restoration of the facade, and some geotechnical tests carried out in the years following 2000. An integrated and multidisciplinary approach of the project has combined three levels of representation in a dynamic and interactive way: the high-definition metric-architectural model of the Basilica, the geological and hydrogeological

model of the subsoil and the structural monitoring model that can be searched in real time, which in turn consists of three main networks installed on the facade, on the drum of the dome, and in other sensitive areas of the Basilica. All this makes it possible to detect millimetric displacements and inclinations of the order of ten thousandth of a degree.

This model now allows the technicians of the Factory and the bodies in charge to access a complete mapping of the architecture and geology of the land below the Basilica, with the possibility of querying the monitoring data in real time, 24 hours a day, 7 days a week, thus becoming a tool for consultation and the elaboration of new assessments on which to base future study actions, archaeological insights, and conservation of the Basilica.

The operational campaign, carried out in less than two months, required about 4,500 hours of work, between day and night, involving a total area of about 80,000 square meters, visible—such as the facade, the colonnades, the basilica body, the roofs and the churchyard, – and not visible, such as the Vatican Grottoes and the Necropolis, except through technological tools.

The project is recounted in the documentary “Beyond the visible,” narrated by art historian Jacopo Veneziani, available on the YouTube channels of Vatican News and Eni.com, who spoke with the protagonists of the project, merging the technical story of the activities with the architectural and historical aspects of the Basilica.■

St. Peter’s Basilica marks its 400th anniversary this year.

Case Engineering Provides Structural Design on Warehouse/Office Addition

Case Engineering recently provided structural engineering for a new warehouse/ office addition to the Reckett Benckiser manufacturing plant in St. Peters, Missouri. Consumer goods company Reckitt Benckiser, the maker of such hygiene and health brands as Clearasil, Airborne and Lysol, moved its consumer and logistics center and custom manufacturing operations from Springfield, MO to the Premier 370 Industrial Park in St. Peters in 2017.

Case’s structural team partnered with St. Louis-based Dial Architects and Civil & Environmental Consultants (CEC) to design structural support for the plant’s tilt-up concrete addition. Designed according to strict FM Global Standards, the addition includes a single-story, 56,000 square foot warehouse with a 20,000 square foot, two-story office that features 13,000 square foot on its first floor and 7,000 square foot on its second floor, with an elevator, accessible ramp and a pair of staircases.

Case designed steel framing for the addition’s roof and floor, along with reinforcement of the existing structure to support drifting snow loads resulting from the addition.

Case’s structural engineers also designed a prominent 20-foot-tall retaining wall to accommodate the large grade differential between the warehouse floor level, the office’s lower level and the exterior grade. Tilt up panels placed on top of the retaining wall required specialized detailing.

“The cast in place concrete retaining wall constructed along a substantial portion of the warehouse perimeter required careful consideration and detailing due to its unusually tall retained soil height and its prominent visibility from the main road,” said Case Principal/Senior Structural Engineer Ardie Mansouri, PE.

“Particular attention was given to construction sequencing, allowing the wall to be built and backfilled before the tilt up panels and the cranes required to set them could be brought into place.”

Case’s retaining wall design also addressed thermal expansion and contraction, as well as concrete curing shrinkage along the long exterior wall to reduce the risk of cracking and preserve the aesthetic quality of such a visually exposed feature.

The general contractor on the project was St. Louis-based G.S. & S. Construction.

The manufacturing plant’s additions include a 56,000 square foot warehouse and 20,000 square foot two-story office.

IN BRIEF

Severud Expands in Florida

Severud Associates Consulting Engineers P.C. announced the opening of a new Florida branch office in Boca Raton, effective January 1. Severud Associates is a structural engineering firm with notable projects that include the Gateway Arch, Las Vegas’ Sphere, and 270 Park Avenue in New York City.

Coughlin Porter Lundeen Announces Expansion With New Office in Spokane

Coughlin Porter Lundeen, a Washington-based and Seattlefounded civil and structural engineering firm, announced its official expansion into Eastern Washington with the launch of a new office in downtown Spokane. As part of the firm’s inaugural expansion, this strategic move marks a significant milestone in its 32-year history.

Serving as a hub for the firm’s growing portfolio of projects in the region, the new office further supports and expands presence in the healthcare, infrastructure, municipal, multifamily residential, higher education and PreK-12 markets.

“Opening our Spokane office is a natural progression of our commitment to Washington’s infrastructure,” said Cory Hitzemann, Principal, at Coughlin Porter Lundeen. “We’ve seen incredible growth happening east of the Cascades in regions such as Spokane and Idaho.”

The Spokane team will be supported by the firm’s headquarters in Seattle, ensuring that every project benefits from a deep bench of technical expertise and a unified approach to brand and strategy. Our firm’s local portfolio already includes impactful work such as Washington State University’s Schweitzer Engineering Hall, completing in Spring 2026, Kootenai Health’s Expansion which breaks ground next month (March), and Eastern Washington University’s Interdisciplinary Sciences building.

The firm is seeking to grow its local footprint. For more information regarding open positions, email humanresources@cplinc.com.

Larson Design Group Appoints David Schaarsmith as President and CEO

Larson Design Group (LDG), an employee-owned national architecture, engineering, and consulting firm, announced the appointment of David Schaarsmith, AICP, LEED AP, as its new President and Chief Executive Officer. Schaarsmith has been with LDG since 2019 and most recently served as Chief Operating Officer for five years, where he played a pivotal role in guiding the firm through a period of significant growth and operational excellence.

In his role as President and CEO, Schaarsmith will guide LDG’s long-term strategy for national growth, oversee the senior leadership team, and champion the company’s culture and core values. Based in the Pittsburgh office, he will lead the organization’s vision and execution to ensure continued success. He is a certified planner and holds a Bachelor of Science in Chemistry with Environmental Sciences from the University of Notre Dame, as well as Master’s Degrees in Resource Management from Antioch University and Public Policy and Management from Carnegie

Mellon University. He served as a Peace Corps volunteer in Ghana, West Africa, and has participated in the Leadership Development Initiative at Leadership Pittsburgh and the Senior Executive Institute with the American Council of Engineering Companies.

Rimkus Appoints Chris Rayasam as CEO

Rimkus, Houston, announced the appointment of Chris Rayasam as President and Chief Executive Officer (CEO). Rayasam will also join the Rimkus Board of Directors.

Rayasam brings experience in the engineering and consulting sectors to his new role at Rimkus. He most recently served as CEO for Consor, a leading infrastructure engineering and construction management firm. Prior to this role, he led Murraysmith, a provider of water and transportation infrastructure solutions for public agencies across the western United States, where he played a pivotal role in the firm’s acquisition and effective integration into Consor. Earlier in his career, Rayasam held senior leadership roles including Chief Financial Officer at Otak, an engineering and design services firm, and positions at Hemmera and AECOM. Under Rayasam’s leadership, Rimkus will reinforce its global, industry-leading forensic engineering capabilities, including Vehicle Accident Reconstruction (VAR) and Digital Forensics, and accelerate its growth in the built environment sectors, including Building Science, Construction Advisory, and Structural Engineering.

Frangopol Honored by University of Rostock and by a Special Journal Issue

Dan M. Frangopol, the Inaugural Fazlur R. Khan Endowed Chair of Structural Engineering and Architecture, Emeritus, at Lehigh University, and Professor Emeritus of Civil Engineering at the University of Colorado Boulder, was honored by the University of Rostock and by a Special Journal Issue.

New Book on Mass Timber Published

Peggi L. Clouston and Alexander C. Schreyer, professors in the Building and Construction Technology program at UMass Amherst and recognized experts in wood engineering, have released their new 576-page book Mass Timber: Materials, Design, and Construction, published by John Wiley & Sons. The book offers a comprehensive, modern guide to sustainability, material science, structural design, and construction practices. IDesigned as both a classroom text and an essential reference for practitioners, the volume arrives at a pivotal moment as the AEC industry accelerates its adoption of low carbon, wood-based construction. The book is now available in print and e book formats wherever books are sold. ■

Chris Rayasam

LETTER TO THE EDITOR

Comments on “Rebuilding With Fire Safe Construction” Article

In our November 2025 issue, STRUCTURE ran an article titled “Rebuilding With Fire Safe Construction” written by Dilip Khatri. The causes of the January 2025 Eaton and Palisades fires, the appropriateness of fire department responses, the resolution of insurance claims and the difficult rebuilding effort continue to be front page news in Southern California. We received a letter objecting to certain aspects of the article. Per our process, we solicited a response from the author. Not surprisingly, there are opposing viewpoints on this issue. Please read and decide for yourself.—John Dal Pino, Editorial Board Chair

Dear Editor,

I recently read the article “Rebuilding With Fire Safe Construction” in the November 2025 issue. While it highlights the importance of fire -resilient design, several statements require clarification to ensure technical accuracy.

Type V Construction and Fire Resistance

The article states that all Type V Construction has zero fire resistance. While Type V-B does not require minimum fire -resistance ratings, it is incorrect to say it has none. All construction types have inherent fire resistance, and Type V-A requires 1-hour fire -resistance ratings for major elements. Wood framing is also permitted in Types IV-A, IV-B, IV-C, III, and in limited cases Types II and I.

Commercial and Public Building Construction Types

The claim that all commercial and public buildings are Type I is inaccurate. Schools, churches, retail buildings, and offices are commonly built using Type III, IV, or V construction depending on occupancy, code requirements, and local regulations.

Fire Resistance in Wood Construction

The article suggests wood-frame buildings lack fire resistance. The IBC defines fire resistance as the ability to prevent or slow heat and flame passage. Wood-frame assemblies can achieve up to 3-hour ratings through tested assemblies and code -compliant detailing.

Seismic and Wind Performance of Wood Structures

The assertion that wood buildings over two stories perform poorly in earthquakes or wind events is unsupported. Many 3–5 story wood structures designed under modern codes have performed well in high-seismic regions such as California, Oregon, and Washington, as well as high-wind areas. Full-scale shake -table testing, including the six-story NEESWood project, has demonstrated wood’s resilience due to redundancy, ductility, and light weight.

Fire Risk Factors Across Building Types

Listing fire risks for wood buildings without acknowledging universal fire -risk components—heat/ignition, fuel, and oxygen—creates a misleading impression. Furnishings and interior contents frequently contribute more to fire severity than structure type. A 2021 BC Injury Research and Prevention Unit study found that sprinklers and functional alarms—not construction material—were the primary life -safety factors. The IBC already requires sprinklers in residential buildings regardless of material.

Masonry and Construction Types

The article incorrectly states that masonry is exclusive to Type I construction. Masonry is widely allowed and used in Types II,

III, IV, and V, particularly for exterior walls and fire -rated assemblies. Additionally, wood can be used in Type I, II, III, IV and V Construction to varying degrees.

Accurate, code -based information is essential for readers, and I encourage future articles to include verified data and references to support technical claims.

Sincerely,

PE, SE, F. SEAOC

President - ArcE Consulting

Past-President SEAOSC

Author Response

The reader is correct that Type V-A/B construction is intended to provide one-hour fire resistant construction. However, concerning wildfires, I take issue with this claim for the following reasons:

1) The Type V-A/B rating is based on the results of a laboratory test conducted in a controlled environment and supports the conclusion these structures will provide one-hour resistance before fire breaches the walls and ceilings. This may be true in a laboratory setting but has no relevance to reality in wildfires.

The test data from the FEMA and National Fire Protection Association show that the typical burn time from ignition to “flashpoint” for a residential structure is less than 5 minutes. This burn time to flashpoint is important because it provides a very narrow window before the entire structure is engulfed. The reasons for this are due to the combustible materials in the structure and the fact that it is constructed of wood, and wood burns.

2) The fire resistance of Type V-A/B is the least amongst all building structures. I am not aware of any house in the Palisades-Eaton fires that lasted for one hour, after ignition. There are examples of homes that did not burn down because they were not fully ignited by the flames, but this is not a topic in my article. The reason I used the language of “zero fire resistance” is because for all practical purposes, a 3 to 5 minute flashpoint time is essentially “zero.” Please keep in mind that I am referring to total “flashover” which means the entire structure is engulfed in flames and will be a total loss soon after. Firefighters are aware of this risk and will not enter a structure once it approaches flashover. FEMA and National Fire Academy have conducted tests to prove this principle, and it is well documented in the literature.

3) Mixing wood elements with steel/masonry construction is permitted by code, yes, agreed. But then the structure is not of Type I or II construction anymore. The fire rating gets degraded because combustible wood is introduced into the matrix.

4) To be clear, I am not “anti-wood.” There are many benefits to Type V-A/B construction, and it has been and will continue to be a mainstay of the US construction industry. But in certain zones, when rebuilding or building new, using more fire restive materials with greater durability is the point of my article.

NCSEA News

Structural Engineering Leaders Gather to Shape Next NCSEA Strategic Plan

Volunteers and leaders from across the U.S. gathered near Chicago recently for an in-person working session focused on developing NCSEA’s next five-year strategic plan. Moderated by Association Labs, the meeting brought together NCSEA board members, SEA and committee leaders, visionaries and pioneers in the profession, and staff to brainstorm strategic priorities and engage in discussion on the profession’s future and the organization’s direction.

NCSEA thanks everyone who participated in the strategic plan surveys in fall of 2025. The results served as an excellent starting point and provided deep insight into the profession to help shape the next strategic plan.

The current NCSEA strategic plan was developed in 2019 and can be viewed at ncsea.com/about-ncsea. The new strategic plan will be completed and published later this year.

Firm Leaders Connect on Shared Challenges in Inaugural NCSEA Event

Agroup of engaged structural engineering firm leaders participated in a virtual one-on-one conversation program hosted by NCSEA last month to discuss urgent topics affecting SE firms’ success. This first-of-its-kind NCSEA event matched executive-level leaders with each other for a candid and valuable virtual conversation on important issues and successful approaches to common challenges.

The session’s themes were AI in structural engineering, preparing young engineers for a successful career, and building relationships among project team members (architects, contractors, construction management, etc.). Across the discussions, firm leaders recognized that structural engineering work is becoming more technology-enabled, more integrated with other disciplines, and more dependent on soft skills and relationships. While AI and advanced software are being used to automate routine tasks, the consensus was core engineering judgement, experiential

learning, and ethical responsibility must remain with humans. Interestingly, a common approach to using AI in the business was relying on native AI embedded in tools engineers are already using vs standalone specialist tools.

As one leader said, “As soon as companies like Autodesk put solid AI into widely used programs like Revit, it benefits firms more than having a top-tier technology they must manage separately. Integrated, even average, AI is more useful than advanced tools that are hard to adopt.”

A full anonymous report of all the discussions from the one-on-one sessions will be shared at the NCSEA Structural Engineering Executive Retreat held March 18-20 in Amelia Island, Florida. Designed to inspire current and emerging leaders, the retreat features expert presentations and roundtable discussions for valuable learning through formal insights and open dialogue.

NCSEA Issues Call for Abstracts, Seminar Topics for 2026 Structural Engineering Summit

NCSEA has opened its Call for Abstracts for the 2026 Structural Engineering Summit, inviting structural engineers and industry professionals to help shape the educational program for the profession’s premier annual conference. The Summit will take place October 27–30 in San Francisco, bringing together engineers from across the country for four days of learning, connection, and collaboration.

NCSEA is seeking session proposals that deliver practical, relevant, and actionable insight for practicing structural engineers across both technical and non-technical tracks. Submissions should emphasize realworld applications which engineers can bring back to their projects, teams, and firms. Abstracts may be submitted by practicing structural

engineers, firm leaders, educators, researchers, and industry professionals, whether presenting individually or as part of a team.

The deadline to submit abstracts is April 3.

NCSEA is also accepting proposals for pre-conference seminars, offering presenters the opportunity to lead extended, in-depth learning experiences ahead of the main conference. The deadline to submit pre-conference ideas is March 6.

All submissions are reviewed by the NCSEA Education Committee and evaluated based on relevance, clarity, applicability, and alignment with Summit goals. Learn more and submit a proposal at www.ncsea. com/summit-call-for-abstracts.

Thank you to everyone who participated in the NCSEA strategic planning retreat last week. Pictured are: Stefanie Rae Arizabal, Chris Cerino, Edward DePaola, Diane Earnest, Bradlee Fletcher, Emily Guglielmo, Ron Klemencic, Jami Lorenz, Andrew Lovenstein, Chad Mitchell, Ken O’Dell, Brian Petruzzi, Andrea Reynolds, Michelle Ryland, Dylan Seesman, Andrea Shear, Stephanie Slocum, Cervente Sudduth, Seth Thomas, and John-Michael Wong. Not pictured: Maria Mohammed.]

Six-Part Webinar Series on Urban Wildfire Mitigation

N CSEA and the Structural Engineers Association of California are launching a new six-part webinar series focused on structural engineering strategies for urban wildfire mitigation. The series addresses the growing risk wildfires pose to the built environment and brings together research, post-event reconnaissance, and practical design guidance for structural engineers.

Running from March 24 through April 28, the series covers topics including fire-resistant design, post-fire foundation assessments, and register for the full series or attend individual webinars. Each session

offers 1 PDH, for a total of 6 for the full series.

Registration is open at www.ncsea.com/education-events/webinarseries. The SE3 Survey examines job satisfaction, career development, mentorship, and workplace culture within the profession. Results from the SE3 Survey are made publicly available to help firms and organizations better understand current conditions and areas for improvement.

Both surveys are available at benchmarking.ncsea.com. First-time users will be prompted to create an account before participating.

New Wood Design Guide Brings Real-World Practice to SEs

Anew book created to help structural engineers move confidently from calculations to construction is now available. NCSEA has just released Wood Design Guide, a practical, exampledriven resource built around real projects and real engineering decisions.

The 155-page publication is authored by Jason McCool, PE; Daniel Sours, PE, SE; and Tim Mays, PE, Ph.D. Designed for both exam preparation and day-to-day practice, the guide delivers realistic design exercises drawn directly from the authors’ collective project experience.

Wood Design Guide provides comprehensive coverage of gravity, lateral, and connection design, with solutions presented using both Allowable Stress Design

Upcoming Webinars

(ASD) and Load and Resistance Factor Design (LRFD) approaches. An in-depth appendix walks readers through an integrated building design example based on a retail structure in Arkansas, demonstrating how individual components come together in a complete system.

The guide is available in two formats: a digital version, and a digital + print bundle, with print copies available for pre-order. They are available for purchase at www. ncsea.com/shop.

Wood continues to play an important role in structural systems across a wide range of project types. Wood Design Guide equips engineers with practical, codealigned guidance to support confident, efficient design in real-world applications.

April 9 Renovation/Adaptive Reuse—Repurposing of St. John’s Terminal into Google’s New Headquarters

CE Credits: 1.0 for live session only

April 14 Fire Engineering of Mass Timber Structures

CE Credits: 1.0

April 15 CalOES Safety Assessment Program April 2026

CE Credits: 5.0

April 16 Major Revisions to ASCE 25—Flood Resistant Design and Construciton

CE Credits: 1.5

April 21 On the Fire Line: Structures Pushed to the Extreme in the Wildland-Urban Interface

CE Credits: 1.0

April 28 Fire Engineering of Steel Structures

CE Credits: 1.0

CASE in Point

ACEC to Hold Business of Design Consulting Program in March

ACEC will hold its Business of Design Consulting program March 10–12, 2026, in Nashville, Tennessee. The three-day leadership development program is part of ACEC’s executive education offerings for A/E firms.

The program is designed for firm leaders, project managers transitioning into leadership roles, and professionals involved in business operations. Instruction is delivered by industry practitioners and focuses on management and firm leadership topics.

The agenda includes sessions on leadership and employee engagement, transitioning from project management to leadership, contracts and risk management, finance, business management, ownership transition, and marketing and business development. The program is held in person and is open to ACEC members and nonmembers. Additional information is available through ACEC’s education and events page found at https://www.acec.org/education-events/ education/leadership-education/business-of-design-consulting/.

ACEC Launches Centralized Store for Contracts and Practice Resources

ACEC has launched a centralized online store that consolidates access to its contracts, publications, and practice resources in one location on the ACEC website.

The platform includes ACEC contract documents, practice guides, research reports, and coalition-developed materials. For structural engineering firms participating in CASE, the store provides direct access to structural engineering guidance, risk management tools, business practice resources, and model agreements.

Curious about what is included in the CASE library? Over the next four months, CASE in Point will highlight publications across each category. A sampling of currently available CASE resources includes: Contracts

• CASE #2 An Agreement Between Client and Structural Engineer of Record for Professional Services

• CASE #3 An Agreement Between Owner and Structural Engineer as Prime Design Professional

• CASE #7 An Agreement for Structural Peer Review Services

• CASE #8 An Agreement Between Client and Structural Engineer for Forensic Engineering Services

• CASE #10 An Agreement Between Structural Engineer of Record and Geotechnical Engineer of Record

• CASE #12 Transfer of Digital Data Agreement (SER and Contractor) Guidelines

• CASE 962 National Practice Guidelines for the Structural Engineer

• CASE 962-C Guidelines for Special Inspections

• CASE 962-D Coordination and Completeness of Structural Construction Documents

• CASE 962-G Project Specific Peer Review Guidelines

• CASE 962-H National Practice Guideline on Project and Business Risk Management

• CASE 962-I Structural Engineer’s Guide to Working with a Geotechnical Engineer

• CASE 976-E Commentary on ASCE Wind Design Procedures Tools

• Tool 1-1 Create a Culture for Managing Risks and Preventing Claims

• Tool 2-4 The Risk Management Plan

• Tool 3-2 Staffing and Revenue Projection Tool

• Tool 3-7 Succession Planning

• Tool 4-2 Project Kick-Off Meeting Agenda

• Tool 5-7 Best Practices for Use of Analysis and Design Software

• Tool 8-1 Contract Review

• Tool 9-2 Quality Assurance Plan

• Tool 10-3 Site Visit Report Position Statements and Commentaries

• Position Statement on Separate Structural Engineering License

• Position Statement on Minimum Education Requirements

• BIM Contracts White Paper

• Standard of Care White Paper

• Performance Based Design White Paper

• Commentary on AIA Document C401

• Commentary on AIA Document A201

The bookstore is accessible through the ACEC website under Resources, then Contracts and Publications.

News of the Coalition of American Structural Engineers

CASE to Host Program on Risk in Design-Build and Collaborative Delivery

C

ASE will present Risk Management in the Age of Collaboration: Design-Build, IPD, and Emerging Technologies on June 3 from 1:00 to 2:30 p.m. eastern as part of its online education series.

The 90-minute session will examine how risk allocation and responsibility shift under design-build and other collaborative delivery models. Topics will include common breakdown points in integrated project environments, contract considerations, coordination challenges, and the impact of shared digital tools and data platforms on professional liability.

The program will be led by Karen Erger of Lockton, a risk management

and insurance advisor to engineering firms. A structural engineering case study panelist will participate to provide perspective from firm experience.

The session is intended for structural engineering firm principals, project managers, risk managers, and firms pursuing or currently engaged in design-build projects.

Participants who attend the full program are eligible to receive 1.5 PDHs.

Registration and additional details are available through ACEC’s online education page.

2026 ACEC Convention and Legislative Summit Scheduled for May 3–6

ACEC has scheduled its 2026 Annual Convention and Legislative Summit for May 3–6 in Washington, D.C.

The meeting will include legislative briefings, meetings with Members of Congress and staff, and discussions related to federal infrastructure programs, licensure policy, and building safety. Programming is organized from a multi-discipline perspective and is part of ACEC’s annual advocacy engagement.

CASE will convene its structural engineering roundtable during the Convention. Additional agenda details are expected to be released as the event approaches. Register now at www.convention.acec.org.

Policy Watch: Federal Issues to Track for Structural Engineering Firms

ACEC is flagging several federal policy developments that may affect how structural engineering firms pursue work, structure teams, and maintain compliance in the coming months.

Transportation Funding Package Clears Congress

Congress has approved a five-bill appropriations package funding the Departments of Transportation, Housing and Urban Development, Defense, Labor, and Health and Human Services. The transportation measure funds most accounts at authorized levels under the Infrastructure Investment and Jobs Act. Passage of the package avoids an immediate government shutdown and maintains continuity for federally funded transportation programs.

GSA Public Buildings Service Reviewing A/E Contracting Approach

During ACEC’s recent Federal Agencies and Procurement Advocacy Committee meeting, a representative from the General Services Administration Public Buildings Service indicated that the

agency may be developing a new approach to A/E contracting as part of a broader agency reorganization.

ACEC has indicated it is seeking additional information regarding the potential changes. Structural engineering firms that pursue federal building work through GSA may wish to monitor developments related to solicitation of structure and procurement procedures.

Federal Agency Engagement on Military Infrastructure and Delivery Methods

ACEC members also engaged with representatives from the U.S. Army Corps of Engineers and the Naval Facilities Engineering Systems Command during the winter committee session. Following the meeting, ACEC leadership met with the Assistant Secretary of the Army for Installations, Energy, and Environment to discuss military infrastructure priorities, including use of authorities such as Progressive Design-Build.

These discussions reflect continued federal activity in military and federal building markets that involve structural engineering scope.

SEI Update

New Documentary Session Added to Structures Congress 2026 Program

S

tructures Congress attendees will have the opportunity to view Engineers at Ground Zero, a documentary examining the structural engineering response following the events of September 11. The film highlights the rapid assessments, stabilization decisions, and professional judgment that shaped early recovery efforts—work that continues to inform emergency response protocols within the field.

Following the screening, structural engineers Vicki Arbitrio and Ed

DePaola, both featured in the documentary, will join Dan Eschenasy, the chief structural engineer of New York’s Department of Design and Construction during 9/11, in a panel discussion moderated by Bassem Almuti. The session offers Congress participants a chance to reflect on lessons from one of the most defining moments in modern structural engineering practice.

Explore the full conference program at structurescongress.org.

Overhead Power Line Structures Conference Website Launches

The newly launched Overhead Power Line Structures (OPS) Conference website marks the next phase of evolution for the conference formerly known as ETS. While continuing its longstanding focus on transmission and substation structures, OPS expands its forward looking approach to industry collaboration.

The site provides an overview of the OPS 2028 conference, including emerging priorities and opportunities for utilities, engineers, contractors, suppliers, and consultants to engage with the program. Visit https://opsconference.asce.org/

Call for Members: Overhead Power Line Structures

SEI has opened a call for new members to join its committee, chaired by Josh Sebolt, PE, F.SEI, M.ASCE (Burns & McDonnell), with Ken Sharpless, PE, F.SEI, F.ASCE (Exo) serving as vice chair.

The committee’s mission is to foster, develop, and advance key activities within its focus area, providing a centralized forum for collaboration and strategic direction across SEI. Members will help guide technical initiatives, support emerging priorities, and

ASCE/SEI 41-23 Webinar Series Set for May 2026

ASCE announces a 5-part live webinar series on the latest edition of ASCE/SEI 41: Seismic Evaluation and Retrofit of Existing Buildings. The series, presented by members of the ASCE 41-23 committee, will cover the standard’s provisions for Seismic Hazard and Analysis, Tier 1 & Tier 2 Procedures, Concrete Walls, Reinforced and Unreinforced Masonry, and Foundations. Browse all of ASCE’s upcoming live webinars at https:// www.asce.org/education-and-events/ explore-education/live-online-courses

Committee

strengthen engagement throughout the organization. The group meets quarterly in a virtual format, with the option for one in person meeting each year. Participation is open to all SEI members interested in contributing to the committee’s work.

SEI appreciates the commitment of members who continue to support the profession through their involvement and leadership. Learn about the committee: go.asce.org/OPScommittee.

Josh Sebolt, PE, F.SEI, M.ASCE (Burns & McDonnell)

News of the Structural Engineering Institute of ASCE

SEI 2026 Student, Young Professional, and Future Leader

Scholarship Recipients

SEI has selected the 2026 recipients of the Futures Fund Scholarships supporting participation at Structures Congress, held April 29–May 1 in Boston. Awardees represent emerging contributors to the profession across academia, industry, and research.

Students

Brooke Abselet, S.M.ASCE, University of California, San Diego

Arpan Adhikari, S.M.ASCE, Idaho State University

Ishfaq Aziz, S.M.ASCE, University of Illinois Urbana-Champaign

Kaylee Blair, S.M.ASCE, Elizabethtown College

Prajita Budhathoki, S.M.ASCE, Idaho State University

Bhupesh Chand, S.M.ASCE, University of New Haven

David Alejandro Chavez Posadas, S.M.ASCE, Universidad Autonoma de Nuevo Leon, Mexico

Uday Kumar Chinnam, S.M.ASCE, University of New Haven

Luke Conboy, EIT, S.M.ASCE, Washington State University

Aagya Dahal, S.M.ASCE, University of Connecticut

Izzy de Fontaine, S.M.ASCE, University of California, San Diego

Levi Dugan, S.M.ASCE, University of Alabama

Madilyn Eckstine, S.M.ASCE, South Dakota School of Mines and Technology

Mohamed Eissa, S.M.ASCE, Florida International University

Andres Famiglietti, S.M.ASCE, Florida International University

Temidayo Faro, S.M.ASCE, University of Lagos, Akoka, Nigeria

Damaris Ferrer, S.M.ASCE, Stony Brook University

Claudia Garcia Aguirre, S.M.ASCE, University of California, Berkeley

Roberto Gonzalez Medellin, M.ASCE, University of Illinois Urbana Champaign

Peter Hastings, S.M.ASCE, Colorado School of Mines

Brianna Hiser, S.M.ASCE, University of Wyoming

Ibrahim Ibrahim, S.M.ASCE, Cleveland State University

Ava Jones, S.M.ASCE, Johns Hopkins University

Eunice Jung, S.M.ASCE, Stanford University

Upasana Khadka, S.M.ASCE, University of Louisiana at Lafayette

Louis Kigula, S.M.ASCE, Drexel University

Tania Lamichhane, S.M.ASCE, University of Louisiana at Lafayette

Gabriel Lembert, S.M.ASCE, Stony Brook University

Abigail McGinnis, S.M.ASCE, University of Oklahoma

Alexandra Mendez, S.M.ASCE, University of California, Berkeley

Seyyed Amirhossein Moayyedi, S.M.ASCE, Portland State University

Cynthia Navarro, M.ASCE, The University of Arizona

Gavin Nelson, S.M.ASCE, Colorado School of Mines

Faruk Olaosebikan, S.M.ASCE, Federal University of Agriculture

Abeokuta, Nigeria

Gerald Owusu, S.M.ASCE, Morgan State University

Blas Ramirez, S.M.ASCE, University of California, San Diego

Jordi Ramos Nunez, M.ASCE, Colorado School of Mines

Juan Rea, S.M.ASCE, Rutgers University

Jorge Romero-Loyola, S.M.ASCE, Oregon State University

Mohammadzaid Shaikh, S.M.ASCE, University of New Haven

Pragun Shrestha, S.M.ASCE, University of Kansas

Thomas Sierra, S.M.ASCE, Universidad de La Sabana, Colombia

Md Mansib Tazowar, S.M.ASCE, University of Texas at Arlington

Van Thang, S.M.ASCE, University of Tennessee, Knoxville

Corey Theiss, S.M.ASCE, California State University, Sacramento

Jedric Uganiza, S.M.ASCE, California State Polytechnic University, Pomona

Yesenia Vicencio, S.M.ASCE, University of Wyoming

Cary Wingard, S.M.ASCE, Florida International University

Juan Sebastian Zambrano Jaramillo, S.M.ASCE, Oregon State University

Yuxiang Zhao, S.M.ASCE, University of Illinois Urbana-Champaign

Young Professionals

Mahmoud Abdallah, S.M.ASCE, Miami , FL

Ram Krishna Adhikari, Ph.D., P.E., M.ASCE, Springfield, IL

Ziad Azzi, Ph.D., P.E., M.ASCE, Miami, FL

Abigail Beck, Ph.D., M.ASCE, Houston, TX

Hunter Blackburn, M.ASCE, Catonsville, MD

Jiayi Ding, P.E., M.ASCE, Doral, FL

Ahmed Elbelbisi, Ph.D., P.E., M.ASCE, Katy, TX

Mohamed Elsawi Mahmoud, Ph.D., M.ASCE, Columbia, MO

Sherin Gladson, M.ASCE, Harrisburg, PA

Lizeth Marisol Gomez Santana, EIT, S.M.ASCE, Houston, TX

Ashok Gyawali, R.Eng, S.M.ASCE, Eastchester, NY

Muritala Issa, M.ASCE, Brooklyn, NY

Shoma Kitayama, Ph.D, EIT, M.ASCE, Las Vegas, NV

Tariq Lamei Mohamed, P.E., M.ASCE, Lacey, WA

Alemu Legese, Ph.D, M.ASCE , Newark, DE

Haoran Li, Ph.D., M.ASCE, Cambridge, MA

Myrsini Maglogianni, Ph.D., M.ASCE, Detroit, MI

Samantha Olson, M.ASCE, Flagstaff, AZ

Logan Patrick, P.E., M.ASCE , Raleigh, NC

Alexis Renteria, M.ASCE, San Antonio, TX

Asu Sejoro Stephen, M.ASCE, Lagos, Nigeria

Robert Stepien, M.ASCE, Wayne, NJ

Valentin Vanerio, M.ASCE, Montevideo, Uruguay

Prathamesh Varma, S.M.ASCE, Aurangabad Maharashthra, India

Viktoriya Vladimirova, M.ASCE, Vernon Hills, IL

Zheren Wang, P.E., M.ASCE, Framingham, MA

Liuyun Xu, Ph.D, S.M.ASCE, Ann Arbor, MI

Yiming Zhang, M.ASCE, Nanjing City, Jiangsu, China

Future Leader—Presenter

Beeva Adhikari, M.ASCE, AECOM

Logan Arrasmith, M.ASCE, Martin/Martin Inc.

Shadi Azad, S.M.ASCE, Iowa State University

Juan Buitrago, S.M.ASCE, Universidad de La Sabana

Xianjue Deng, Ph.D, EIT, M.ASCE, New Mexico State University

Maria J. Echeverria, Ph.D., M.ASCE, California State University, Sacramento

Olatomide Fayomi, S.M.ASCE, GFT

Emily Kim, P.E., S.M.ASCE, Parsons

Hannah McGinnis, EIT, M.ASCE, Kimley-Horn

Pratik Patra, Ph.D., S.M.ASCE, University of Washington, Seattle

Suraya Rahim, M.ASCE, S&B Construction FAY

Nisha Sthapit, M.ASCE , Jacobs Engineering Group Pvt. Ltd

Thought Experiments for Understanding the Legality of Machine Learning in Structural Engineering

The integration of machine learning algorithms into structural engineering practice raises critical questions about how professional responsibility should be allocated when these algorithms operate within the design chain.

Machine learning does not alter the fundamental obligations of structural engineers but rather changes how professional judgment can be documented and made legible to reviewers. This distinction matters because instead of treating machine learning as a special technology requiring new regulations, we seek to understand it as a documentation and governance challenge within existing professional frameworks. Three controlled thought experiments are described here to isolate specific aspects of machine learning integration. Each experiment examines two scenarios that differ in one dimension of professional practice while maintaining identical physical designs, safety factors, code provisions, and commissioning protocols. This controlled comparison methodology enables precise identification of how documentation, disclosure, and governance choices affect legal responsibility independent of technical engineering competence.

Thought Experiment 1: Standard of Care and Professional Services vs Product Liability

This experiment examines how the type of prepared documentation determines whether machine learning-assisted engineering work falls under professional negligence standards or product liability doctrines. Following are two scenarios involving identical steel connection designs for a mid-rise building where machine learning algorithms were used to predict the connection-level demand envelopes across standard load cases.

Scenario A: Service Posture

In the first scenario, the project documentation comprehensively demonstrates that machine learning algorithms function as analytical instruments under direct engineering control. For example, the calculation package begins with a clear statement of methodology that identifies the machine learning algorithm as a preliminary sizing tool. The corresponding engineer provides complete hand calculations showing agreement within acceptable tolerances for connection moments and shears that can be verified through closed-form solutions. In addition, the engineer establishes conservative upper and lower bounds using simplified methods explicitly referenced to relevant code provisions for more complex interaction effects where closed-form solutions are impractical.

The provided documentation also meticulously traces the reasoning for every engineering override of machine learning recommendations. For instance, the file identifies regions where training data exhibits lower density, particularly for unusual live-load patterns. For these cases, the engineer applies additional safety factors and documents the rationale with quantitative justification. Further, the machine learning model’s applicability is bounded by steel grades between A36 and A992, connection configurations limited to standard AISC prequalified details, and lateral systems consisting of either moment or braced frames, but not dual systems. The calculation package demonstrates that any competent structural engineer could reproduce the

entire design process from first principles without access to the machine learning algorithm, using only the documented assumptions, code references, and engineering rationale provided.

Scenario B: Product Posture

The second scenario presents identical connection designs but with fundamentally different documentation. The calculation package shows that connection sizes and configurations were obtained from a vendor’s machine learning web portal that accepts building geometry and loading conditions as inputs and produces connection schedules as outputs. The engineer’s role appears limited to transcribing these outputs into construction documents with minimal independent verification.

In this scenario, the documentation includes screenshots from the vendor portal showing input parameters and resulting connection designs and a handful of spot checks for randomly selected connections. While these checks show general agreement, they do not establish systematic verification or conservative bounding. The vendor agreement is attached to the project file, containing extensive limitation of liability clauses and disclaimers about fitness for particular purposes. The calculation package refers to the vendor’s claimed 95% reliability rate and machine learning validation studies, but does not demonstrate independent engineering judgment in translating these claims into project-specific safety margins. The overall documentation suggests that the vendor portal functioned as a source of engineering deliverables rather than a tool under engineering control.

Implications and Classification

The distinction between these documentation postures carries implications for legal liability. For example, under the service posture

demonstrated in Scenario A, disputes would be evaluated under professional negligence standards. Courts would ask whether the engineer met the standard of care typical of competent professionals in similar circumstances. The engineer’s liability insurance would respond to claims, and damages would typically be limited to economic losses directly caused by any proven negligence. The vendor’s role would remain contractual, with liability limited by the terms of the software license agreement.

On the other hand, under the product posture shown in Scenario B, strict liability theories become available to claimants. The design could be characterized as a defective product regardless of the engineer’s diligence in following vendor instructions. It is possible for “plan stamping” allegations to gain credibility because the documentation suggests the engineer merely authenticated vendor deliverables rather than exercising independent professional judgment. Product liability

insurance, if available, carries different terms and exclusions than professional liability coverage. In fact, the vendor might be joined as a co-defendant under theories that both parties participated in delivering a defective product to the market.

As one can see, a classification rule emerging from this comparison can be straightforward and practical to use. Here, service posture exists when documentation demonstrates that machine learning outputs underwent systematic verification or conservative bounding, engineering overrides are justified with technical rationale, validity limits are explicitly stated and verified, and the design process can be reproduced from documented assumptions and code references. In contrast, product posture exists when documentation shows acceptance of vendor outputs with limited verification, absence of systematic conservative translation into code checks, minimal engineering rationale for design decisions, and dependence on vendor deliverables for critical design parameters.

Thought Experiment 2: Materiality and Disclosure Obligations

This experiment investigates whether engineers have a duty to disclose machine learning usage, its limitations, and associated monitoring requirements to project stakeholders through two scenarios.

Scenario A: Full Disclosure

The first scenario implements complete disclosure beginning with the proposal phase. The professional services agreement includes a section on “Computational Methods and Limitations” that explains in plain language that preliminary member sizing will employ machine learning algorithms trained on a database of previous projects. This section also specifies that these algorithms excel at routine configurations but may be less reliable for irregular geometries, unusual loading patterns, or innovative structural systems. The document commits to conservative verification of all machine learning outputs through conventional engineering analysis before finalizing design decisions. The submittal package to the authority having jurisdiction includes a technical memorandum that details the machine learning methodology without requiring reviewers to understand algorithm internals. The document explicitly identifies scenarios where machine learning recommendations were overridden, such as connections near building corners where stress concentrations exceed typical patterns in the training data. Finally, operational triggers are clearly specified in both owner and authority documentation.

Scenario B: Method Opacity

The second scenario produces identical structural designs and safety margins but omits machine learning methodology from all external communications. The professional services agreement uses standard language about employing “current best practices” and “advanced analysis methods” without specificity. The calculation package, while thoroughly demonstrating code compliance, presents final results without describing how preliminary sizes were determined. References to “computerized analysis” and “optimized design procedures” appear occasionally, but without detail about machine learning involvement. The submittal to authorities presents conventional analysis results that verify code compliance for the final design. The reviewing engineer finds no technical deficiencies because the final design is indeed adequate. However, the submittal contains no information about the preliminary sizing methodology, its limitations, or conditions that might require heightened scrutiny during

future modifications. Therefore, future engineers examining the structure would see no indication that certain design aspects might be sensitive to conditions outside the machine learning training domain.

Materiality Assessment Through Operational Events

Consider a plausible operational scenario occurring eighteen months after occupancy. The owner converts a portion of the structure for highdensity storage. Simultaneously, a moderate wind event causes observable but non-threatening building movement that concerns tenants. Post-event inspection reveals partition cracking at several locations where the load increase coincided with drift-sensitive architectural details. The structure remains safe with ample reserve capacity, but the owner initiates a dispute claiming that undisclosed methodological limitations prevented informed decisions about enhanced monitoring or preliminary strengthening.

In Scenario A, the documented disclosure provides clear evidence that stakeholders were informed about methodology and limitations. The authority can point to their files showing that approval was granted with full knowledge of the computational methods employed. While the partition damage remains unfortunate, the dispute centers on whether the disclosed limitations were adequately conservative rather than whether material information was withheld. On the other hand, in Scenario B, the absence of disclosure creates ambiguity about what stakeholders could reasonably have been expected to know. The owner could argue that knowledge of machine learning involvement would have prompted different decisions about monitoring systems or load restrictions during the design phase. The authority may likely question whether their review would have required additional verification had they known about methodological limitations. The engineer’s position that the final design met all codes becomes less compelling when stakeholders demonstrate that material information affecting their risk assessment was not provided. The materiality standard emerging from this comparison follows a reasonable decision counterfactual test. Information is material if a reasonable owner or authority would modify their decisions after learning about it. This test does not require proving that different decisions would definitely have been made, only that the information could reasonably affect the decision making process. Under this standard, machine learning methodology and limitations are material because they affect risk assessment, monitoring decisions, future modification planning, insurance coverage determinations, and due diligence for property transactions.

Thought Experiment 3: Operational Governance

This experiment examines governance requirements when machine learning-based monitoring systems undergo threshold adjustments during building operations. Two scenarios are examined involving identical flat-plate office buildings with sensor networks generating daily structural health indices that estimate punching shear risk at column locations.

Scenario A: Governed Threshold Adjustment

The first scenario begins with a monitoring protocol documented in a controlled charter. The initial system establishes an evacuation threshold when the daily health index exceeds 0.85 (a hypothetical index presented for the sake of discussion), which indicates possible punching shear distress requiring immediate action. Additionally, the charter defines special conditions, including events with more than 300 attendees, installation of heavy equipment, or any activity that concentrates loads near column lines. When these special conditions coincide with health indices above 0.65 but below the evacuation threshold, the protocol requires consultation with the structural engineer of record.

After six months of operation, weekend furniture relocations begin triggering nuisance alerts when indices reach 0.66 to 0.68, thereby prompting maintenance staff complaints about false alarms. The owner requests a threshold adjustment to reduce disruptions without compromising safety. The engineer analyzes three months of sensor data and confirms that furniture moves create brief spikes that dissipate within hours without cumulative effects. Based on this analysis, the engineer raises the consultation threshold from 0.65 to 0.70 for single-day excursions while maintaining the original 0.65 threshold for any patterns persisting beyond 24 hours. This modification is documented through a formal revision to the monitoring charter. The change includes the engineer’s technical rationale with supporting data analysis, revised threshold values with temporal qualifications, maintained requirements for special condition consultation, commitment to quarterly review of sensor data for the first year after modification, and explicit owner acknowledgment of residual risks.

Scenario B: Ungoverned Threshold Modification

The owner requests relief from false alarms, and the engineer agrees to adjust the thresholds based on operational experience. The modification is communicated through an email stating that the consultation threshold is increased to 0.70, with the evacuation threshold remaining at 0.85 for safety. The email communication reaches building management and maintenance supervisors but does not follow formal documentation protocols. Therefore, the operations staff interpret the email as establishing a simple new rule where action is only required when indices exceed 0.70, without distinguishing between transient spikes and persistent patterns or considering concurrent special conditions.

Critical Event and Governance Assessment

Four months after the threshold modification, a technology conference installs demonstration equipment, including industrial displays, in a corner section of the floor plate. The concentrated load from equipment and attendees causes the health index to rise to 0.68 in affected column zones. The equipment is removed after eight hours when the conference concludes, and indices return to baseline by the following morning.

and Threshold

Modification

In Scenario A, operations staff recognize the conference as a special condition defined in the charter. Despite the index remaining below the modified 0.70 threshold, they contact the engineer per protocol. The engineer reviews real-time sensor data, recommends temporary load redistribution for remaining equipment, and schedules an inspection for the following morning. Documentation shows that governance protocols functioned as designed, with special conditions triggering appropriate technical review regardless of threshold values. In contrast, in Scenario B, operations staff observe the 0.68 index but take no action because it remains below the communicated 0.70 threshold. The absence of special condition requirements in the threshold modification email leads staff to believe consultation is unnecessary.

The distinction between governed and ungoverned threshold modifications becomes clear through this comparison. Governed modifications require formal documentation in controlled protocols with revision tracking, explicit technical rationale based on quantitative analysis, temporal qualifications distinguishing transient from persistent conditions, maintained or enhanced safeguards for special conditions, defined review periods for modified thresholds, and acknowledged owner acceptance of residual risks.

Ungoverned modifications lack these documentary safeguards and create ambiguity about applicable thresholds, confusion regarding special condition responses, absence of technical rationale for reviewers, no mechanism for knowledge transfer to new staff, inability to reconstruct decision-making during disputes, and potential degradation of safety through informal threshold creep. The governance failure is not in the threshold modification itself, which may be technically justified, but in the absence of documentation that ensures consistent implementation and preserved safeguards.

Conclusion

Machine learning integration in structural engineering preserves fundamental professional obligations while requiring enhanced documentation of engineering judgment. Responsibility allocation depends not on the presence of machine learning algorithms but on the visibility of professional control through documentation, disclosure, and governance. These findings do not require new regulations or special treatment of machine learning technology. Instead, they clarify how existing professional obligations propagate when machine learning tools contribute to engineering decisions (in a way, similar to how FE models were treated when first introduced). Fortunately, standard templates for calculations, proposals, and operational protocols can incorporate the documentation with minimal overhead. The visibility of engineering judgment through proper documentation, rather than the computational methods themselves, determines whether machine learning integration meets professional obligations in structural engineering practice. ■

Full references are included in the online version of the article at STRUCTUREmag.org

M.Z. Naser, PhD, PE , is a tenure-track assistant professor at the School of Civil and Environmental Engineering and Earth Sciences & a member of the Artificial Intelligence Research Institute for Science and Engineering (AIRISE) at Clemson University.

The Benefits of Assessing and Mitigating Weather Vulnerabilities BEFORE Mother Nature Strikes

Extreme weather events from massive catastrophes like the floods in Texas and fires in Los Angeles to lesser, but no less destructive waves of tornados, hurricanes, and record snowfall events have created a crisis of wide proportions throughout the building industry. How do you protect employees, assets and supply chains from weatherbased destruction that seems to be touching every location in the country? Is there anything cost effective that can be done to mitigate the damage that can be caused? The short answer is yes there is, but the time to do it is now.

It Came at Night

Overnight on April 2-3, 2025, the Louisville, Kentucky, region received warnings from the National Weather Service that numerous supercells were developing ahead of a cold front over southern Illinois and western Kentucky. This front led to four days of showers and storms with flash and area flooding. It also unleashed a series of eight registered tornadoes that touched down that evening. One EF-3,

two EF-2s and five EF-1s. Luckily, this only produced two injuries and no deaths. It did produce a 10-mile-wide swath of destruction in Louisville including a heavy industrial area where the EF-3 touched down. Catastrophic roof and building loss was recorded at 13 industrial structures. However, one building in the same area remained unscathed. Was it just the luck of the draw? After all, tornadoes have a way of hitting one building but not another right next to it. Or was it something else?

Ten years ago, Bala was engaged by that building’s owner to study and design structural modifications to strengthen existing buildings and introduce additional anchorage of outdoor MEP equipment to withstand extreme wind speeds associated with tornadoes.

Careful study and analysis of the building load path, down to the screw, was performed. Two levels of upgrades were studied for EF-2 and EF-1 level tornados. The upgrades included strengthening the weakest links in the building load path such as reinforcing the building’s braced frame gusset plates, and adding hold down straps to enhance the roof deck’s resistance to uplift forces.

We found that the most susceptible elements of the building were

at the roof and corners of the building, which are known to be the starting points for losing portions of or entire roofs. Roof top equipment is vulnerable to overcome the light manufacturers’ attachments to their support curbs.

The solution involved reinforcing the existing corrugated metal roof deck with additional straps below and wrapped around the existing framing. Additionally, the roof joists were reinforced and braced to resist buckling of the members from the reverse bending forces.

The overall building was analyzed for lateral force resistance. The existing perimeter concrete tilt-up walls had residual strength to resist a tornado as-is, however, the building contained a joint from a prior building addition which required supplemental reinforcing to the braced frames. Additionally, the collectors and chords of the roof diaphragms required reinforcing by adding additional screw attachments of the roof deck to the steel collectors, and additional concrete anchors of the collector angles to the concrete tilt walls.

The ROI for funding the study and modifications drastically outweighed the potentially devastating costs to staff safety, loss of valuable products, supply chain disruption and rebuilding costs that would have been incurred if the company had foregone resiliency measures as their industrial neighbors had. Instead of months of recovery from the storm, the facility remained fully functional with no operational interruptions.

When to Move Past Code Minimum

As the need to take mitigating action has become widespread there has been an uptick in the market for targeted studies of existing and new buildings. Particularly in growth industries like data centers and mission critical facilities that require uninterrupted, 24/7, 365-day use, as well as buildings that store high value material and products. While building codes provide a minimum societally acceptable level of safety for all buildings, it is still important to break down facilities further with their owners and determine the specific needs with respect to reliability, longevity, and future needs. Consideration should be given to the importance of the building as well as local site-specific hazards.

Recently, tornado provisions have been implemented into the ASCE 7-22 Minimum Design Loads and Associated Criteria for Other Structures . These provisions could be triggered for Risk Category III and IV buildings—facilities that present substantial hazard to human life such as schools, public assembly buildings, utility buildings, and hazardous storage buildings. In tornado prone regions known for significant tornado speeds, these buildings will be required to be designed for tornado wind speeds. However, the code also leaves it to the discretion of the stakeholder (owner) to design against tornados.

Legacy Codes in Existing Buildings

Existing buildings have added complications since they were built to earlier codes with very generic lateral loads, if they were incorporated at all. Yes, they are still standing and in use, but their ability to withstand one of these events is uncertain. These inquiries show that building owners are interested to know what their risk is, along with recommended remedies, but upgrading to the latest codes could be a high-cost decision. They need to weigh the true cost of both—do you roll the dice and hope to not be in the path of storm, or do you bite the bullet, upgrade and possibly see better insurance rates to offset the construction costs.

Modern Codes in New Buildings

For new buildings, the choice is somewhat easier: is minimum code adherence going to protect your investment well enough to risk not upgrading?

When deciding on the level of resilience for a building, cost premiums are always the driving factor. It is important as designers to have basic guidelines for the durability of the different construction materials (such as concrete tilt-up walls versus Insulated Metal Panels (IMP), and conceptual designs for options at each resilience level. Working with a construction manager at these early decision levels helps provide a spectrum for cost impacts that the building stakeholders can evaluate. Institutions that tend to own their facilities for the foreseeable future, and industrial facilities that either store or manufacture high value products are where we see the early adopters stretching their buildings beyond code minimum and performing resiliency studies beyond the basic standard of care.

The Best Defense Is a Strong Offense— Doing Something Before It’s a Problem

The last ten years have shown that the chances of a weather catastrophe have increased, and, at the same time, the locations for those events have dramatically expanded. Tornadoes are not just in Tornado Alley. Hurricanes are not just on the Gulf Coast. Huge snowfall will not only land in the Rockies or Sierra Nevada, or along the Great Lakes. Massive fires are not only in California. Building owners across the country ought to take a serious look at their inventory and get a true assessment of the risks they might encounter throughout the lifetime of the building. Understanding the potential risks is the first step. Taking measures to mitigate those risks could be the key to being the only building still standing, and operational, after a weather disaster. ■

Steven Anastasio, PE, is the Director of Structures for Bala Consulting Engineers, Inc. Anastasio concentrates on industrial and residential markets, with a keen focus on structural dynamics, blast engineering, and earthquake engineering.
Locations of tornado-prone regions, from the 2022-ASCE-7 Code for Minimum Design Loads and Associated Criteria for Buildings and Other Structures.

One Model. One Workflow.

Hannahville Indian Community Governmental & Health Services Building Wilson, MI TRUSTED ON

The RISA Suite connects gravity, lateral, foundations, and steel connections in one coordinated workflow. Model once in RISAFloor and RISA-3D, then carry forces directly into ADAPT-Builder or RISAFoundation and RISAConnection—without re-creating models or losing design intent.

Solution for Any Structure

Build Your Own Bundle

Scan the QR code to find the right combination of RISA for your projects.

Turn static files into dynamic content formats.

Create a flipbook