Skip to main content

PETERSEN - 54 - 2026 - DK

Page 1


Villa i Vosselaar, Belgien | Foto: Paul Kozlowski

Hovedfacaden mod villavejen er som en kollage af lysegrå teglflader. Fraværet af velkendte, arkitektoniske motiver som tagrender, nedløbsrør og hoveddør tilføjer huset et abstrakt præg. K21 er anvendt til facaderne og desuden i en kortere udgave til belægning foran huset og

Disciplineret luksus

I EN VILLA I BELGISKE VOSSELAAR SKABER SAMMENSTILLINGEN AF HAVEMURE OG BYGNINGSKROPPE I LYSE KOLUMBA ET LANDSKABELIGT UDTRYK, HVOR GRUND OG HUS FLYDER SAMMEN OG BLIVER TIL ÉT.

Af Morten Birk Jørgensen, arkitekt MAA, lektor | Fotos: Paul Kozlowski

Glenn Sestig Architects er baseret i Ghent og har en portfolio af projekter skabt for en række belgiske kulturpersonligheder inden for modedesign, musik og billedkunst. Vosselaar, der ligger godt 40 km øst for Antwerpen, er karakteriseret ved en lille bykerne omgivet af store, eksklusive villaområder i et skovrigt landskab. Her ligger en villa, tegnet af Sestig, tilbagetrukket fra vejen i en lysning i byens udkant, hvor de mange, store træer får kvarteret til næsten at falde i ét med den nærliggende skov.

Grunden skærmes mod villavejen af en tæt hæk, hvis åbning flankeres af små murpiller i lysegrå Kolumba, der slår villaens stilistiske og materialemæssige træk an.

Facaden mod vejen opleves som en kollage af store, overvejende ubrudte flader i varierende dimensioner i lyse Kolumba med minimale murkroner af patineret kobber. En mørk flade af den samme kobber kontrasterer den ellers lyse kollage. Det er porten til parkeringskælderens nedkørsel, som elegant kan glide til side og forsvinde imellem to murflader.

Når facaden fremtræder som en kollage – et begreb der ellers bedst kendes fra billedkunstens verden – skyldes det blandt andet et fravær af velkendte, arkitektoniske motiver, hvilket tilføjer villaen et abstrakt præg. Her er ingen tagrender eller nedløbsrør, ingen synlig skorsten og ingen hoveddør med et håndtag, der indikerer villaens skala.

Abstraktionen understøttes her af den lange, smalle Kolumba, der går i ét med den lysegrå fuge. Murværkets mønster domineres af de gennemgående, horisontale skygger, teglen kaster ned over fugen.

Set fra vejen er det ikke umiddelbart til at afgøre, hvilke flader der blot er havemure, og hvilke der er facader på den egentlige villa. Tilstedeværelsen af havemure både mod vej og mod have får villaen til i mindre grad at opleves som et hus placeret på en grund, men nærmere som et landskab af flader og volumener, hvor grund og hus flyder sammen og bliver til ét.

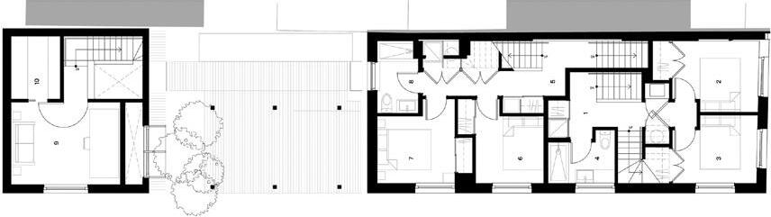
Planen over villaens kælder giver et helt andet billede af boligens egentlige aftryk på grunden. Ser man bort fra pool og havemurenes fundamenter, afsløres et ganske kompakt vinkelhus. I stueplanets generøse og flydende rumprogram opløses grænserne mellem inde og ude via store glaspartier, hvoraf nogle kan skydes til side, når vejret og temperaturen tillader det. Første sal byder på en mere kompakt komposition af værelser og soveværelser med et luksuriøst udbud af badeværelser.

Et af villaens bærende formelementer er de affasede vinduesåbninger. Det gør den samlede bygningskrop dynamisk og, lukker lys ind og forbedrer udsynet igennem de dybtliggende vinduespartier.

På udvendige overflader er det altovervejende materiale den lysegrå Kolumba. Nuancen binder fint an til både belægningssten i indkørsel og på havestier samt til naturstenen Pietra dei Medici på de bygningsnære terrasser og hele vejen omkring poolen.

Foruden at integrere arkitekturen på grunden og at danne afgrænsede uderum til ophold har havemurene også en sekundær funktion. De afskærmer forstyrrende motiver som nødvendige redskaber og tekniske elementer, der elegant gemmes af vejen i murenes mellemrum. Derved er de en forudsætning for den minimale æstetik, der er villaens særlige karakter.

Det er en kontrolleret arkitektur, i alt fra dens greb i grunden over den overordnede komposition og til oplevede perspektiver, materialevalg og materialesammenføjninger. Luksuriøst og yderst arkitektonisk disciplineret.

Villa i Vosselaar, Belgien

Bygherre: Privat

Arkitekt: Glenn Sestig Architects

Entreprenør: Fransen Bouwonderneming

Ingeniør: Studiebureau Van Hoorickx

Færdiggjort: 2014

Sten: K53

Kælderplan

på stien op til hoveddøren.
Et bærende, organiserende greb er de mange havemure, som blandt andet skærmer en sydvendt terrasse og forhaven mod vejen.
Stueplan
Plan, 1. etage
Snit

Projektets tidlige idé fremhæver kollageudtrykket i villaens hovedfacade.

Glenn Sestig grundlagde sin tegnestue i 1999 og har siden da skabt boliger for en række belgiske kulturpersonligheder.

De store terrasser er belagt med naturstenen Pietra dei Medici. Vinduesrammer er udført i patineret kobber, der går igen i sålbænke og murkrone.

Affasede muråbninger giver huset et markant, skulpturelt udtryk. Ved hoveddøren er åbningen trukket ind som en niche, der både definerer og beskytter indgangen.

Fugefarven er nøje afstemt med stenen. Vildt forbandt med trykkede liggefuger og studsfuger i plan lader de horisontale linjer dominere murværkets udtryk.

2505 Broadway, beboelsesejendom, New York City, USA

Bygherre: Adam America Real Estate

Arkitekt: Office for Design and Architecture (ODA)

Entreprenør: Cauldwell Wingate

Rådgivende ingeniør: WSP USA

Facadekonsulent, curtainwall: Thornton Tomasetti

Færdiggjort: 2022

Sten: K50, specialformat 528 x 92 x 37 mm, samt sten i specialformat med to radier. I alt 42.200 specialsten

Material Matters

EN BEBOELSESEJENDOM I HJERTET AF NEW YORK

BRUGER PETERSENS IKONISKE KOLUMBA TIL AT SKABE EN ELEGANT BALANCE MELLEM KUNSTHÅNDVÆRK OG INDUSTRIELT BYGGERI.

Af Michael Sheridan, dr.arch. og historiker Fotos: Justin Hummerston

En 19-etagers beboelsesejendom tegnet af Office for Design and Architecture (ODA) på Manhattans Upper West Side udgør en stedsspecifik løsning på et universelt problem. En af udfordringerne ved at bygge med mursten i dag er et tab af karakter, der skyldes økonomiske hensyn og moderne byggemetoder. I dagens virkelighed er det vanskeligt at holde fast i murstenens egenskaber – oplevelsen af tyngde og den grundlæggende, menneskelige skala, potentialet for fantasifulde detaljer og det spil af flader og skygge, de kan give. Høje arbejdsomkostninger taler imod sindrige mønstre og detaljeringer, og bærende konstruktioner af stål og beton reducerer murværket til en tynd skal. Alt for ofte har denne beklædning samme flade udtryk som tapet og kunne lige så godt være fremstillet af et andet materiale.

Med bygningen 2505 Broadway, mellem 93. og 94. gade, har ODA’s arkitekter undgået dette problem ved at designe en murstensbeklædning, der vekselvist skjuler og afslører betonkonstruktionen. Dertil har de beriget murværket med fine detaljer, der formidler materialets essentielle egenskaber og udnytter dets potentiale for at passe bygninger af forskellige stilarter og perioder ind i et sammenhængende bymiljø. Resultatet er et afbalanceret udtryk mellem industrielt byggeri og håndlavede flader, der afspejler bygningens form. Denne balance begynder langs fortovet, hvor murpiller og brystninger udelukkende er beklædt med specialudgaver af Kolumba. Det skaber et enkelt mønster af åbninger, som lukker dagslys ind i den dobbelthøje vestibule og de tre nederste beboelsesetager.

Oven over denne regelmæssige matrix strækker facaden sig mod himlen i en varieret komposition med løbende murpiller og forskudte brystninger, hvor åbningerne i murværket varierer fra to til fem etagers højde. Resultatet er en dynamisk hovedfacade, der drager blikket ind i en forjættende gemmeleg mellem beklædning og konstruktion. Hvor de lodrette åbninger skaber visuel fascination og øger bygningens oplevede højde, vidner de vandrette bånd af sorte aluminiumsvinduer om den gennemgående struktur bag murværket. Mens murpillerne strækker sig opad, trækker bygningen sig tilbage og danner terrasser med morgen- og eftermiddagssol og udsigt over Broadway. I bygningens gavle viger murstensbeklædningen for prægede betonpaneler, der afslører den tynde dimension af murværket mod Broadway.

Arkitekterne har suppleret den klare, geometriske komposition med ujævne skifter, der fremhæver teglstenenes håndlavede karakter og rummer en dragende stoflighed,

»Sammen med vores arkitekt, ODA, valgte vi Kolumba, fordi dens aflange format og rige, håndlavede tekstur gav os mulighed for at nyfortolke Upper West Sides klassiske murværk på en måde, der både føles stedsspecifik og tydeligt moderne.«

Josh Zucker, Head of Development, Adam America Real Estate

Stigningen i gadeforløbet optages af en sokkel beklædt med lys granit.

Facaden mod Broadway er udformet som en varieret komposition af murpiller og forskudte brystninger udført i lyse Kolumba. Murværkets karakter er særdeles taktilt, men samtidig nærmest plastisk.

hovedindgang markeres og skærmes af en klassisk baldakin i

Bygningens
mørkmalet aluminium.

er

»At Petersen Tegl kunne fremstille de ønskede specialsten gav designteamet fuld kontrol med murværkets tone, dybde og artikulation, hvilket løftede facaden og derved styrkede bygningens markedsappeal.« Josh Zucker, Head of Development, Adam America Real Estate

Specialsten med to radier danner søjlerne i facaderne.
Foto: Dean Kaufman
Mens facadens murpiller skyder opad, trækker den 64 meter høje bygning sig tilbage i et aftrappet forløb, der skaber rum til terrasser. De lodrette åbninger, på mellem to til fem etager, forstærker oplevelsen af vertikalitet.
Fra de øvre lejligheder
der mod vest udsigt over Hudson River mod New Jersey. Højden på de omkringliggende bygninger tillader generelt et godt vue over Manhattan.

blødt og imødekommende indgangsparti.

Vinduespartiernes sålbænke og overliggere er udført som rulleskifter.

Dean Kaufman

De afrundede murpiller er udført med specialudviklede Kolumba i to radier, tegnet af ODA og håndlavet i træforme hos Petersen Tegl. Facadens brystninger er ligeledes udført i specialsten, idet arkitekterne ønskede Kolumbas standardbredde på 108 mm reduceret til 92 mm. I alt leverede teglværket 42.200 specialsten til projektet.

som får en særlig dynamik i dagslys. En række andre, gennemtænkte detaljer udnytter materialets iboende egenskaber. For at reducere skygger på vinduerne rundes murpillerne af med buede sten, der er specialfremstillet til byggeriet, og som fremhæver murværkets skulpturelle potentiale. På hver brystning er de fem øverste skifter trukket tilbage, så kantskiftet danner en markant skyggelinje, der understreger Kolumba-stenens horisontale proportioner. Nederst i brystningerne strækker endnu et kantskifte sig ud til murpillerne, hvor en gennemløbende kanal følger midtlinjen af betonsøjlen og markerer den underliggende konstruktion.

I sin helhed repræsenterer ODA’s gennemarbejdede tilføjelse til Upper West Side fornyelsen af en lokal byggeskik. Trappeformen peger tilbage til de mange

setback-bygninger, der blev opført i New York mellem 1916 og 1960 som følge af lokale byggeregler, der krævede, at bygningerne blev smallere opefter for at lukke dagslys ned på gadeplan. I kontrast til disse symmetriske tårne benytter 2505 Broadway et asymmetrisk design som rammen om det gode byliv med reference til en glamourøs fortid uden antydning af nostalgi. Med deres lydhøre materialevalg og -behandling har arkitekterne bevaret en håndværkstilgang til byggeri, der er vigtigere end nogensinde i dag, hvor den digitale teknologi truer med at udgrænse den fysiske verden. Dermed er bygningen et skoleeksempel på en nutidig anvendelse af murværk, der forbinder det offentlige og det private rum til begges fordel.

Foto: Dean Kaufman

2505 Broadway fotograferet fra vest mod øst. I horisonten yderst til højre ses 180 East 88th Street, tegnet og opført af DDG, der valgte en kombination af lysegrå Kolumba og D-sten i Flensborg-format til den 160 meter høje beboelsesejendom. Ligeledes et spektakulært projekt, beskrevet i Petersens magasin nr. 44.

De afrundede søjler fortsætter i samme dimension hele vejen op ad facaden. I gadeplan skaber de et
Foto:

et

Building Blocks

Arkitektur i New York er uløseligt forbundet med kommercielle interesser, hvor investorer søger risikominimering og høje afkast. En af de markante tendenser gennem det seneste årti har været ombygning eller nyopførelser af enfamilieshuse i arbejderkvarterer, hvor investorer tidligere har været tilbageholdende med at satse. Centrum for denne udvikling er Williamsburg i det nordlige Brooklyn, hvor gader med billige boliger opført til fabriksarbejdere omkring år 1900 i dag rummer et attraktivt potentiale for investorer, som håber at tiltrække købere, der er trængt ud af de høje boligpriser i mere etablerede bydele. Som disse fornyelser skrider frem, udgør hvert nyt byggeri et element i den gradvise omdannelse af en karré eller en gade, der vil tiltrække yderligere investeringer og med tiden forvandle kvarteret til en velhaverenklave. En af de førende arkitekter i denne omdannelse af det nordlige Brooklyn er Wu ’Woody’ Chen, leder af Infocus Design & Planning, hvis boliger typisk har facader i Kolumba-sten fra Petersen Tegl. Fire udvalgte projekter fra Chens tegnestue demonstrerer hans kreative brug af dette ene materiale i varieret boligarkitektur, der indgår i miljøer med mange forskellige, eksisterende bygninger.

Hver for sig demonstrerer Woody Chens fire facader hans kunstneriske sans og hans forkærlighed for Kolumba-stenens taktile karakter. Tilsammen udgør de fire huse et vidnesbyrd om materialets bredde. Når murværk overgår fra bærende struktur til selvstændig beklædning, er mulighederne for stedsspecifikke kombinationer af åbninger, forbandt og reliefvirkninger nærmest ubegrænsede. Tilføjelsen af farve giver en dramatisk udvidelse af de arkitektoniske variationsmuligheder. Chen foretrækker råhvide og sartgrå nuancer, men Kolumba-sten fås i 34 udgaver, der i varierende grad reflekterer lyset og udstråler visuel tyngde uden at udviske lerets naturlige karakter. Ud over mulighederne for individuelle, kunstneriske valg har Kolumba et markant udtryk, der gør den ideel til mange forskellige projekter, fra et enkeltstående objekt i landskabet til et element i en varieret bebyggelse. Chens facader i Brooklyn er omgivet af en enorm variation af materialer, hvor murstenenes stoflige flader og neutrale farver har en beroligende og forædlende effekt. Her ser vi en parallel mellem det at konstruere en facade ved at lægge sten på sten og det at indpasse individuelle bygninger i et tæt bymiljø.

I TIDLIGERE ARBEJDERKVARTERER I DET NORDLIGE BROOKLYN SKYDER NYE BOLIGER OP SOM LED I BYDELENS FORANDRING. DE OPRINDELIGE HUSE BLEV OPFØRT OMKRING ÅR 1900, OFTEST I MURSTEN. TEGNESTUEN INFOCUS DESIGN STÅR BAG FLERE NYE BYGGERIER, DER ALLE ANVENDER LYSE KOLUMBA. PÅ DE FØLGENDE SIDER PRÆSENTERES FIRE EKSEMPLER.

Af Michael Sheridan, dr.arch. og historiker | Fotos: Justin Hummerston

Som led i ombygningen af 264 North 6th Street blev facaden beklædt med K11, hvis lyse nuancer indskriver sig roligt i gademiljøet.
Lysintensitet, lysretning og refleksioner fra omgivelser betyder, at den samme sten kan skifte markant udtryk.
Facaden på 84 Meserole anvender K11 i
horisontalt forbandt mellem vinduerne, mens et standerskifte i de tilbagetrukne paneler markerer bygningens etageadskillelser.
84 Meserole Avenue

Én sten, fire huse i Brooklyn

220 North 6th Street

Med 220 North 6th Street har Woody Chen transformeret et treetagers enfamilieshus fra 1899 ved at tilføje en fjerdesal og en tilbagetrukket penthouselejlighed samt ved at skabe en ny facade med K91-sten. De to nederste etager rummer en lejlighed i to plan med store vinduer i værelserne og et mindre vindue i badeværelset, som er beliggende oven over hoveddøren, mens lejligheden på tredje sal har vinduer i hele etagens bredde, der lukker dagslys ind i opholdsstuen. Resultatet er en ejendom med tre lejligheder med samme storslåede skala og herskabelige karakter som de 1800-tals rækkehuse, man finder i mere etablerede dele af Brooklyn. Mens den modernistiske facadekomposition fremstår som et nyt indslag i områdets blanding af bygninger og facadematerialer, lader murværkets ru stoflighed og vilde forbandt bygningen falde ind i det sammensatte miljø.

Ombygning, enfamiliesbolig, 220 North 6th Street

Færdiggjort: 2019 Sten: K91

264 North 6th Street

I en gade vest for 220 North 6th Street har Infocus ombygget et af de treetagers rækkehuse, der tidligere kendetegnede gaden, men bevaret bygningen som et enfamilieshus. Efter ombygningen rummer 264 North 6th Street nu en bolig med et sammenhængende boligareal på 370 kvadratmeter bag en ny facade af K11. I stedet for den oprindelige facade har Chen med en stålkonstruktion skabt en dynamisk komposition med matchende åbninger på første og anden sal, der giver lysindfald i værelser af forskellige bredder. De brede åbninger spejler vinduerne i stueplan, som lukker dagslys ind i den ene ende af den kombinerede spise- og opholdsstue, der strækker sig gennem huset til baghaven. For at understrege husets karakter af privatbolig har Chen tegnet en indgangsdør i massivt træ og benyttet et halvstensforbandt, der udstråler stabilitet.

Ombygning, enfamiliesbolig, 264 North 6th Street

Færdiggjort: 2022

Sten: K11

113 North 9th Street

Ikke langt fra 6th Street har Woody Chen tegnet en ejendom, 113 North 9th Street, med to lejligheder, begge i to plan. Med sin uregelmæssige komposition minder byggeriet om en renoveret industribygning. I deres varierede størrelser og udformninger fremhæver facadeåbningerne den ubrudte murflade, som om en eksisterende struktur var blevet udfyldt med materialer af forskellige typer og mønstre. Også her har arkitekten valgt K91, som har en neutral karakter i forhold til de konkurrerende materialer i de tilstødende bygninger. I en reference til omgivelserne har Chen valgt et uregelmæssigt forbandt, hvor de lodrette fuger er forskudt fra skifte til skifte. I forventning om en ny nabo på den tilstødende grund løber murværket rundt om hjørnet af bygningen for at skabe en markant blokkarakter.

Ny beboelsesejendom, to lejligheder, 113 North 9th Street

Færdiggjort: 2022

Sten: K91

84 Meserole Avenue

Woody Chens mest raffinerede indslag i det nordlige Brooklyn er en fireetagers ejendom på 84 Meserole Avenue i Greenpoint-kvarteret, som støder op til Williamsburg. Ejendommen, som rummer tre lejligheder, er trukket tilbage fra fortovet og hviler på en base af mørke mursten. Den symmetriske facade med tilbagetrukne paneler giver bygningen en klassisk karakter – hvilende i sig selv, afklaret og tryg. Affasede vinduesåbninger med smalle vinduer ved siden af indgangsdøren skærmer stuelejligheden mod indkig. Bygningen krones af et vinduesbånd, der lukker dagslys ind i opholdsstuen i lejligheden, der strækker sig over de to øverste etager. Det samlende træk i denne nyfortolkning af traditionel byggeskik er det råhvide murværk i K11, som Chen har benyttet i et horisontalt forbandt omkring åbningerne og standerskifter i de tilbagetrukne paneler. Resultatet er en facade med et tidløst udtryk, der hæver sig over konventionelle stilbegreber.

Ny beboelsesejendom, tre lejligheder, 84 Meserole Avenue

Færdiggjort: 2022

Sten, facade: K11

Sten, sokkel: K55

i

Pool House, tilbygning, Warwickshire, UK

Bygherre: Privat

Arkitekt: Klas Hyllén Architecture

Entreprenør: Bygherre

Ingeniør: Malishev Engineers

Poolkonstruktion: Pool Architecture

Færdiggjort: 2025

Sten: D72 Flensborg-format

Situationsplan

»Murværket er ikke en beklædning, men er selve bygningen. Vi arbejdede bevidst med materialer, hvor struktur og overflade kunne være det samme. Det reducerer materialeforbrug og kompleksitet og giver et mere ærligt arkitektonisk udtryk.« Klas Hyllén, arkitekt

Tegl og vand som meditation

MIDT I DET BLIDE WARWICKSHIRE-LANDSKAB, SYDØST FOR BIRMINGHAM, MØDER MAN MALVERN POOL HOUSE, EN ENKEL OG SÆRDELES RAFFINERET TILBYGNING TIL EN PRIVAT BOLIG.

Af Ida Præstegaard, cand.arch. | Fotos: Hide Film

Projektet, der er tegnet af det britiske arkitektstudio Klas Hyllén Architecture, gentænker den private swimmingpool, ikke som et fritidselement, men som et sanseligt og næsten sakralt rum. Gennem en disciplineret formgivning, materialemæssig tilbageholdenhed og en kompromisløs integration af konstruktion og teknik opstår en næsten spirituel arkitektur, på én gang tidløs og nutidig. Hyllén fik opgaven direkte af bygherren, som han har kendt og arbejdet sammen med gennem flere år, og som deler hans opfattelse af, at komplekse projekter kræver tid.

»Vi ønskede, at poolrummet skulle føles næsten klosteragtigt,« forklarer arkitekt Klas Hyllén. »Inspirationen kom fra asketisk arkitektur, som man blandt andet ser i Sigurd Lewerentzs Sankt Petri Kirke i Klippan og i Niall McLaughlins Bishop Edward King Chapel. Det er bygninger, hvor materialer, lys og proportioner alene bærer oplevelsen, uden unødige greb.«

Malvern Pool House består af to aflange volumener i henholdsvis trapezform og med rundede hjørner, forbundet af en lavere, let bygning. Begge bygningskroppe er opført i vandstrøgne, lysgule mursten, hvis nuancer harmonerer med både det eksisterende hus og det omgivende landskab. Den afrundede længe rummer selve poolen, mens den anden indeholder omklædningsfaciliteter, et meditationsrum og en vinkælder.

Bassinet strækker sig helt ud til den fuldmurede væg og frem mod det store panoramavindue, hvor udsigten over Malvern Hills åbner sig med en lille sø i forgrunden.
Komplekset udgøres af to aflange volumener, henholdsvis
trapezform og med rundede hjørner, som forbindes af en lavere, let bygning.
Malvern

Radius på den afrundede bygning er så stor, at den kunne opmures udelukkende i standardsten.

Den vandstrøgne D-stens let uregelmæssige struktur giver murværket et levende udtryk.

Klas Hyllén valgte Flensborg-format med en højde på 40 mm, mens dansk normalformat er 54 mm højt.

Den Arts & Crafts-inspirerede villa i røde mursten dannede afsæt for også at anvende mursten i den nye tilbygning.

»Samspillet mellem vand og tegl skaber en let mineralsk duft, samtidig med at murværket har indflydelse på akustik og temperatur. Det handler om alle sanser. Lyden, varmen, berøringen og duften af vand på tegl. Man føler sig omsluttet af rummet.«

Klas Hyllén, arkitekt

Det Arts and Crafts-inspirerede hovedhus fra 1991 er opført i røde mursten, hvilket gjorde det oplagt at tænke videre i mursten. En samtidig tilbygning blev opgraderet og indrettet til et træningsrum, der igen er forbundet med en ny glasbygning, der leder til de nye svømmefaciliteter.

Murstenene spiller en central rolle i tilbygningen, konstruktivt såvel som oplevelsesmæssigt. »Murværket er ikke en beklædning, men er selve bygningen. Vi arbejdede bevidst med materialer, hvor struktur og overflade kunne være det samme. Det reducerer materialeforbrug og kompleksitet og giver et mere ærligt arkitektonisk udtryk.«

»Vores tilgang var særligt udfordrende i poolrummet. Traditionelt opføres swimmingpools som selvstændige kar, adskilt fra bygningen af tekniske hulrum. Det princip forkastede vi. Vi talte med seks specialiserede poolentreprenører, der alle sagde, at det ikke kunne lade sig gøre. De ville bygge poolen inde i bygningen med et hulrum under gulvet. Men det ville have ødelagt den rumlige klarhed, vi stræbte efter.«

I stedet blev poolen støbt direkte ind i bygningens bærende murværk gennem et tæt samarbejde mellem arkitekt, ingeniør, bygherre og konstruktionsteam. Al teknik er skjult i tilgængelige rum under vandet, så bassinet kan strække sig helt ud til væggene og frem mod et stort panoramavindue med udsigt over Malvern Hills.

Stueplan
De to længer er opmuret med fuger af kalkmørtel. Taget på poolhuset er belagt med egetræsshingles.

Lysets refleksioner fra vandet aktiverer murværkets overflade og fremhæver teglens struktur og stoflighed.

En loftskonstruktion i hvidkalket træ hvælver sig over poolen og afsluttes af et ni meter langt ovenlys, som bringer dagslys ind og åbner for udsyn til nattehimlen.

Klas Hyllén om sit valg af mursten

»I processen testede vi seks til syv forskellige stentyper, både i lyse og i røde nuancer, og vi fik opmuret store prøvetavler, som vi kunne sammenholde direkte med det eksisterende hus. Selvom hovedbygningen er opført i røde mursten, stod det ret hurtigt klart, at den lysgule sten gav den bedste balance. Den skabte en klar forbindelse til hovedhuset, men lod samtidig den nye bygning stå som sin egen arkitektoniske form.

Valget af D72 var i høj grad et spørgsmål om finjustering. Den fungerede bedst i samspil med det eksisterende murværk, og jeg holder meget af de let mørkere toner, der optræder i enkelte sten og giver murværket dybde og variation.«

»Jeg har altid haft en forkærlighed for mere slanke stenformater. Flensborg-formatets proportioner, kombineret med den vandstrøgne, let uregelmæssige overflade, giver en langt mere levende og vibrerende tekstur. Vi ville have brugt Kolumba-stenen, hvis det ikke havde været for de buede partier, om end det havde været en mulighed at lade teglværket fremstille Kolumba som rundede specialsten. Murværket med D72 FF er udført i et forskudt løberforbandt med en tredjedels forskydning for hver andet skifte, og vi har arbejdet med tilbagetrukne fuger for at give facaden ekstra dybde.«

»Malvern Pool House handler om nærvær, ro og om at lade materialer, lys og vand tale deres eget sprog.«

Klas Hyllén, arkitekt

Konstruktionsdetalje, poolkant

Gennem den store åbning i poolrummets bagvæg ser man ind i den rektangulære længe, der rummer omklædningsfaciliteter, meditationsrum og vinkælder.

Over poolen svæver en hvidkalket, diagonal gitter-loftskonstruktion i træ, som rejser sig i et blødt hvælv og afsluttes af et ni meter langt ovenlys. Dagslyset filtreres jævnt ned i rummet, mens der om natten er udsyn til stjernerne.

»Det er helt særligt at flyde på ryggen og se op i træloftet og himlen. Det bliver en stille, næsten kosmisk oplevelse,« siger Hyllén.

De omhyggeligt udvalgte materialer understøtter den sanselige helhedsoplevelse: »Samspillet mellem vand og tegl skaber en let mineralsk duft, samtidig med at murværket har indflydelse på akustik og temperatur. Det handler om alle sanser. Lyden, varmen, berøringen og duften af vand på tegl. Man føler sig omsluttet af rummet,« forklarer Hyllén.

Bæredygtighed er indarbejdet gennem enkelhed frem for synlig teknologi. Bygningen er gennemisoleret og lufttæt, og tagets stålringsbjælke fungerer samtidig som ventilationskanal. Resultatet er en arkitektur, hvor teknik er usynlig, men mærkbar i komforten.

For Klas Hyllén er projektet et bevis på, at arkitektur kan forfine selv de mest hverdagslige ritualer. »Når den tekniske kompleksitet er løst diskret, står oplevelsen tilbage. Malvern Pool House handler om nærvær, ro og om at lade materialer, lys og vand tale deres eget sprog.«

Klas Hyllén har drevet sin tegnestue fra Bradford on Avon siden 2013.

K43 i 20 mm til fritidshjem i Allenmoos

Da Boltshauser Architekten i 2012 omdannede en pavillon til fritidshjem i Allenmoos, ønskede de en muret facade i hårdtbrændte K43. Myndighederne stillede imidlertid krav om, at energiforbruget til produktionen af bygningens materialer skulle reduceres til et minimum.

Boltshauser Architekten bad derfor Petersen Tegl om at udvikle en håndlavet facadeklinke i K43-ler, blot 20 mm tyk, som kunne klæbes direkte på den bagvedliggende 250 mm isolering og efterfølgende fuges med cementmørtel, trykket et par millimeter tilbage. For at sikre facadens holdbarhed blev der opført en mockup i skala 1:1, som med overbevisende resultat klarede vind og vejr.

Fritidshjem i Allenmoos, Schweiz

Bygherre: Stadt Zürich

Arkitekt: Boltshauser Architekten

Færdiggjort: 2012

Sten: K43, 528 × 108 × 20 mm

Fotos: Paul Kozlowski

I udformningen af boligbebyggelsen Terrasserne var det en præmis, at alle lejligheder skulle have gode uderum.

Samme Kolumba-udtryk, markant CO₂-besparelse

Petersen Tegl arbejder løbende på at udvikle sten med en reduceret klimapåvirkning. Et af resultaterne er Kolumba i en specialudgave, hvor tykkelsen på 37 mm er mindsket til 20 mm. Standardstenenes karakteristiske udtryk bevares, men der bruges væsentligt mindre materiale. Sammenlignet med traditionelt opmuret murværk i standard-Kolumba giver den tyndere Kolumba, monteret på fladen, en CO₂-besparelse på op til 75 %. Besparelsen knytter sig til tørring og brænding foruden det samlede materialeforbrug.

K43 har et vekslende farvespil med varme, brune nuancer med islæt af mørkebrunt og lilla.

K91 fremstår i kølige, hvidlige og mørkegrå nuancer. Den overordnede lysende tone skabes i kraft af lys lerslam, der tilsættes den våde lerklump i træformen.

Kolumbas håndlavede struktur betyder, at murværket aldrig bliver helt plant. Facader opført i de tyndere Kolumba-tegl har derfor, i lighed med opmuring af standard-Kolumba, et levende og sanseligt udtryk, som adskiller sig tydeligt fra den mere kliniske karakter, der let kan opstå i flisebeklædninger. De tyndere Kolumba-udgaver brændes, ligesom standardKolumba, i periodiske ovne med brug af naturgas og biogas. Det er muligt at tilvælge bionaturgas-certifikater, og p.t. undersøges mulighederne for et fuldt skift til biogas.

Teglklinkernes horisontale format giver bygningen ro og tyngde, mens de lodrette fuger bryder associationen til en massiv mur.

K91 i 20 mm til boligbyggeri i København

I boligbyggeriet Terrasserne i København ønskede bygherre og arkitekt Rodam Arkitektur at anvende K91 i et murværk med et nyskabende udtryk og en reduceret CO₂-udledning. Petersen Tegl producerede derfor K91 i en 20 mm tynd udgave, som kunne monteres direkte på isoleringen. Stenene er monteret i vildt forbandt, hvor det håndstrøgne udtryk udnyttes fuldt ud. Ved samlingerne mellem etagerne er stenene placeret lodret, så de følger altanernes forkant og bygningens rytme. Byggeriet stod færdigt i 2024 og opnåede energimærke A2020, det højest mulige for nybyggeri.

Terrasserne, Artillerivej, København

Bygherre: Terrasserne ApS

Arkitekt: Rodam Arkitektur

Færdiggjort: 2024

Sten: K91, 528 × 108 × 20 mm

Fotos: Anders Sune Berg

Derudover planlægges testbrændinger af Kolumba med brint. Når brint brænder, udledes udelukkende vanddamp og ingen CO₂. Det gør brændingsprocessen væsentligt mere klimavenlig, forudsat at brinten er produceret på grøn energi. Kolumba fremstilles af en række forskellige lertyper, der tåler særdeles høje temperaturer. Efter bearbejdning af leret håndstryges stenene i træforme, hvorefter de tørres og brændes.

Ved at benytte varierende temperaturer i brændingen opnår stenene deres forskelligartede stoflighed og smukke nuancer.

Generelt om Kolumba

Covers håndlavede karakter relaterer sig til Zutphens traditionelle teglarkitektur.

Metalprofilerne skaber præcise afslutninger mod de rustikke, håndstrøgne tegl i pavillonens hjørner og i tagets asymmetriske valm. Ligesom døre og indfatninger er de malet i samme nuance som C33.

14 kvadratmeter, fem århundreders fortælling

ET PRÆCIST ARKITEKTONISK GREB FORBINDER ET DIMINUTIVT BYGGERI TIL BYENS HISTORIE.

Af Ida Præstegaard, cand.arch. | Fotos: Luuk Kramer

I hjertet af byen Zutphen, cirka 100 km øst for Amsterdam, på bredden af floden Berkel, har 1m98 architecten tegnet et lille, men markant byggeri: et offentligt toilet på blot 14 m². Trods sin beskedne størrelse indskriver bygningen og dens placering sig tydeligt i byens lange arkitektoniske fortælling.

Huset strækker sig ud over flodbredden og refererer direkte til de udhængende vaskehuse, verandaer og lokummer, som tidligere prægede begge sider af Berkel. Disse bygningstyper lever videre i historiske fotografier og malerier, blandt andet i A. Booms View of the Berkel fra 1888. Det var netop dette motiv, der inspirerede arkitekterne til den udkragede konstruktion.

Arkitektonisk fremstår toilettet som et monolitisk volumen, beklædt med Petersen Cover C33. Valget af sten var centralt i projektet. Arkitekterne ønskede ikke traditionelle mursten og mørtel, men et keramisk materiale, der kunne skabe en sammenhængende overflade på både vægge og tag. Samtidig skulle materialet relatere sig til Zutphens middelalderlige teglarkitektur, herunder de nærliggende byporte og tidligere bymure langs Berkel.

C33 opfyldte alle krav: et lerbaseret produkt, der med sin håndlavede struktur og arkitektoniske karakter både taler ind i stedets historie og giver bygningen et nutidigt udtryk. Løsningen egner sig desuden til den præfabrikerede toiletkerne, som kan udskiftes ved at løfte taget af den teglbeklædte boks.

Under byggeriet blev forbindelsen mellem fortid og nutid næsten bogstavelig, da arkæologer fandt et middelalderligt kloaksystem fra Agnieten-klostret direkte under den nye indgang. Et sjældent sammentræf, hvor et moderne, offentligt toilet står præcis dér, hvor byen for mere end 500 år siden allerede havde tænkt i infrastruktur.

Offentligt toilet, Zutphen, Holland

Bygherre: Zutphen by Arkitekt: 1m98 architecten

Entreprenør: Christiaans Bouwbedrijf

Ingeniør: conStabiel, Velp Færdiggjort: 2025

Sten: C33, 528 x 170 x 37 mm

Bygningen træder ud over flodbredden og indskriver sig i rækken af historiske huse langs Berkel.
A. Booms ’Gezicht op de Berkel’ fra 1888. Erhvervet med støtte fra Foreningen af Venner af Museerne i Zutphen og Dijkjansfonden, samling Stedelijk Museum Zutphen.

Cover i dialog med victoriansk arkitektur

NY TILBYGNING FØJER SIG RESPEKTFULDT TIL EN HISTORISK RAMME I SOUTH CAMBRIDGESHIRE.

Af Ida Præstegaard, cand.arch. | Fotos: David Valinsky

The Beeches er navnet på en victoriansk ejendom fra 1880’erne med en tilhørende grund på 3,6 hektar midt i South Cambridgeshire. Villaen er bygget af røde mursten med karakteristiske, victorianske detaljer, blandt andet skorstene med trappeformet profil og overetage i hvidmalet bindingsværk. Det stejle tag er dækket med røde terrakottategl og afsluttet med dekorative rygninger. Husets karakter var udgangspunktet, da der skulle tilføjes en ny bygning i forbindelse med etableringen af en swimmingpool. Det var afgørende, at tilbygningen arkitektonisk ville respektere og underordne sig hovedhuset.

Nybygningen på 30 m², tegnet af Snell David Cambridge, rummer omklædningsfaciliteter med bad, toilet og dampbad samt et opholdsrum med bar, direkte forbundet til villaens køkken. Arkitekterne vidste, at de lokale myndigheder ville foretrække en nutidig tilbygning, som ville afspejle husets udvikling over tid. Samtidigt var det vigtigt, at materialevalget

kunne forankre bygningen i den historiske kontekst og spille sammen med det eksisterende, røde murværk.

Snell David havde længe ønsket at anvende Cover. I South Cambridgeshire fandt de en bygherre, der også ser Cover som en spændende fortolkning af den traditionelle mursten, der muliggør et sammenhængende forløb fra tag til facade og dermed et nyskabende udtryk.

Tilbygningen er opført som en trækonstruktion, hvor Cover er monteret på et lægtesystem. Metalprofiler skaber præcise afslutninger for de rustikke, håndlavede tegl både i husets hjørner og tagets valm. Flere versioner af Cover blev vurderet på byggepladsen. Konklusionen blev, at C44 fangede de fleste nuancer i hovedhusets murværk, og den blev valgt som beklædning af det lille, kompakte hus, der i byggeprocessen fik kælenavnet the Armadillo – som det lille, pansrede pattedyr, man blandt andet kan møde i Sydamerika.

C44 har et varieret farvespil i mørkebrune nuancer med strejf af mørkegrå og lilla. De lysegrå partier kommer fra det lerslam, der bruges i træformen. Nuancerne harmonerer smukt med murværket i hovedhuset fra 1880’erne.

Tilbygning til privat bolig, South Cambridgeshire, UK

Bygherre: Privat

Arkitekt: Snell David Cambridge Ltd.

Entreprenør: Buildmark Construction

Ingeniør: Andrew Firebrace Partnership

Færdiggjort: 2024

Sten: C44, 528 x 170 x 37 mm

Hovedhuset, opført i victoriatiden, har en grund på 3,6 hektar og er omgivet af skov.

Store vinduespartier i den lille pavillon giver adgang og udsyn til både pool og have.

Beboerne i de to tvillingehuse blev i fællesskab enige om at lade husene vokse sammen, så der kunne skabes plads til familielivet med børn. Foto: Morten Aagaard.

Kolumba-stenenes horisontale linje lægger sig i forlængelse af de historiske bygningers gesimsbånd med murstensornamentik.

»Vi har valgt Kolumba-stenen på grund af de gamle huses horisontale træk i kraft af deres gesimsbånd. Kolumba taler samme sprog.«

Martin Krogh, arkitekt

Et mellemrum får liv

TO TVILLINGEHUSE PÅ FREDERIKSBERG HAR FÅET EN MELLEMBYGNING, DER GIVER BEBOERNE EKSTRA RUM OG FØJER ET NUTIDIGT ELEMENT TIL DE HISTORISKE BYGNINGER.

Af Martin Søberg, ph.d., arkitekturhistoriker | Fotos: Anders Sune Berg

Bevæger man sig rundt i gaderne på det centrale Frederiksberg, er man omgivet af huse i mange forskellige størrelser, højder og udformninger. De ældste af husene stammer fra midten af 1800-tallet, de nyeste fra i går. Mellem dem ligger mindre tilbygninger, som der lige akkurat er blevet plads til. Disse mellembygninger er opført til et væld af funktioner: som garager, værksteder, butikker, nye indgangspartier og som tilføjelser af rum til de tilstødende huse. Ofte fraviger deres arkitektoniske formsprog naboernes, ligesom materialevalget kan være anderledes. Mellembygningerne fortæller om transformation af det eksisterende, i takt med at kvarterets liv har forandret sig, og nye behov er opstået. På en rolig sidevej på Frederiksberg ligger ét af de yngste eksempler på denne form for arkitektonisk knopskydning, tegnet af ADEPT. Med sine tre etager udfylder bygningen hullet mellem to tvillingehuse opført i 1870, der i alt omfatter syv lejligheder beboet af familier. Efterhånden som der kom flere børn til, savnede familierne plads. I stedet for at forlade det kvarter, de satte stor pris på, for at finde noget andet og større at bo i, blev familierne i fællesskab enige om, at den optimale løsning ville være en tilbygning, der føjer et rum mere til hver af de seks lejligheder og en tagterrasse til den syvende lejlighed på kvisten.

Kernen i tilbygningen er en stålrammekonstruktion, der er spændt ud mellem de eksisterende huse. Dette skelet er tilvirket af genbrugsstål, der er boltet sammen, så konstruktionen kan skilles ad igen, hvis det en gang i fremtiden skulle blive nødvendigt. Udadtil fremstår tilbygningen med facader af Kolumba, der er muret op og danner en skalmur omkring det relativt lette, bagvedliggende bygværk.

De eksisterende huse har symmetrisk opbyggede facader, der er groft pudsede og hvidmalede. De prydes af gesimsbånd udført i mursten, dels en hovedgesims med tandsnit, dels en kordongesims ornamenteret med savskifter. Tilbygningens facade bryder symmetriprincippet og tilføjer rytme, idet vinduerne for hver etage trækkes enten til højre

eller til venstre. Forskydningen er ikke tilfældig, men lader vinduerne pege mod den lejlighed, hvortil det bagvedliggende rum knytter sig.

Martin Krogh, arkitekt, stiftende partner i ADEPT og beboer, fortæller: »Vi spurgte os selv, hvordan vi kunne bygge husene sammen på en måde, der var respektfuld over for dem. Så tilbygningen ikke kun opfyldte behovet for ekstra rum, men samtidig gav noget tilbage til byen.« Facaden er derfor muret af en lysegrå Kolumba, der fremstår i et spektrum af forskellige grå toner. Der er anvendt tilbageliggende liggefuger og skrabede studsfuger, så muren danner et fint, horisontalt relief.

Jævnt over facaden er der monteret lodrette stænger, som klatreplanter med tiden vil gribe fat om og gøre facaden grøn og levende. Planterne er løvfældende, så i sommerhalvåret vil facaden fremstå som en plantevæg, mens murstenene i vinterhalvåret vil træde tydeligere frem bag planternes stængler. »Bagerst har vi den smukke lysegrå mursten, der spiller op imod de lyse, gamle bygninger,« fortæller Martin Krogh. »Oven på den lægger vi et lag af grønt, men vi har fundet en plante, der ikke tager fuldstændig over. Vi har valgt Kolumba-stenen på grund af de gamle huses horisontale træk i kraft af deres gesimsbånd. Kolumba taler samme sprog. Murstenene danner en flade, som fungerer godt med klatrestativerne og det grønne foran. Tilsammen skaber de et flot spil.« De gamle huse har fået en knopskydning, der ikke blot er til glæde for deres beboere, men som også gør gaderummet frodigere.

Tilbygning, Svend Trøsts Vej, Frederiksberg, København

Bygherre: Privat

Arkitekt: ADEPT

Entreprenør: HPH

Færdiggjort: 2023

Sten: K91

Facadernes lysegrå sten danner en stofligt virkende baggrund for løvfældende klatreplanter.

En stålrammekonstruktion lavet af genbrugsstål udgør den konstruktive kerne i tilbygningen. Foto: Morten

Seks lejligheder er udvidet med et ekstra rum, mens en syvende lejlighed har fået en tagterrasse på toppen af tilbygningen.
Foto: Cornelia Gramkow.
Aagaard.
Vinduerne forskyder sig fra side til side og er trukket en anelse frem fra facaden, så de indenfor bliver til dybe, karnaplignende nicher.
Seks nye rum kobler sig til hver deres lejlighed
Haveplan
Stueplan

Nøgtern overdådighed

KOLUMBA UDFORMET I EN RÆKKE SPECIALFORMATER FOLDER SIG SMIDIGT OG PRÆCIST OMKRING VOLUMENER, ÅBNINGER, TRAPPER OG UDENDØRS AREALER I ET PRIVAT HJEM I WILRIJK.

Af Morten Birk Jørgensen, arkitekt MAA, lektor | Fotos: Luuk Kramer

Moderne villaer fra mellemkrigstiden var bygherrens referencer, da Hans Verstuyft Architecten fik til opgave at tegne en ny villa i bydelen Wilrijk i udkanten af Antwerpen. Specifikt Mies van der Rohes villaer til Hermann Lange og Josef Esters i den tyske by Krefeld, som er karakteriseret ved horisontale bygningskroppe, sammenstillet af rektangulære volumener og med facader af mørke, røde mursten, samt kompletterende baldakiner. Endvidere Villa Kaplansky, det lokale forbillede i Antwerpen, tegnet af den polskfødte Nachman Kaplansky, hvis flydende, spatiøse interiører med utallige integrerede, ornamentale objekter sætter scenen for et kultiveret og eksklusivt moderne hjem. Kompositorisk har villaen i Wilrijk sit tydelige slægtskab med især Mies’ villaer, dog i form af en mere kompakt bygningskrop. Særligt den sydvendte facade mod gaden rejser sig, for til gengæld at trappe ned og lukke lys ind mod haven og det udendørs pool-område. Konceptuelt synes den arkitektoniske strategi at have været ét volumen til ét rum eller én funktion, hvilket har givet den samlede figur endnu flere forskydninger både i plan og snit. Én af hensigterne med dette greb har været at nedbryde skalaen på boligens omtrent 1000 kvadratmeter fordelt over og under jorden. Det må siges at være lykkedes.

Bygningens fremtræden karakteriseres ved den lange, lave Kolumba i nuancen K21, der falder flot ind i grundens omfattende beplantning. Ligesom bygningen overordnet er kendetegnet ved sammenstillingen af volumener, står de enkelte sten i murværket uvant tydeligt frem, hvilket gør murfladerne til en komposition i sig selv. Den effekt er opnået ved at undlade at fylde fugerne på facaderne ud efter opmuringen, så de får karakter af skyggenoter, der tegner omridset af hver enkelt mursten.

I tråd med Mies’ villaer i Krefeld er Hans Verstuyft Architectens villa i Wilrijk i det hele taget karakteriseret ved en yderst disciplineret murværksprojektering. Præcisionen i murværket er villaernes overvejende deltaljeornament. Det har krævet specialfremstillede formsten at få den lange, smalle tegl til at smyge sig så elegant omkring husets mange hjørner i de forskudte volumener og vinduesåbninger samt i trapper og i øvrigt de mange flader både inde og ude.

Villaens skulpturelle, klumpagtige virkning skyldes ikke mindst en begrænset og konsekvent fenestrering, der synes at følge dogmet om maksimalt én vinduesåbning til én murflade. Det er facadernes mange forskydninger, der muliggør dette princip uden at bygningen virker indelukket. Rammer og karme er generelt smalle og mørke og ligger tilbagetrukket i murværket, hvilket giver figuren yderligere tyngde.

På den anden side af den kobberbeklædte hoveddør, fortsætter tegluniverset i entréens gulvflade. Herfra leder en stor, pinolhængslet dobbeltdør ind i en rummelig hall, der fungerer som villaens organiserende princip med adgang til øvrige funktioner i stueplan og til første sal via en skulpturelt svungen trappe. Herfra er der udgang til tagterrasser med udkig over vej og have.

I haven foldes teglfacaden videre ned som belægning på en baldakin-overdækket terrasse og videre ud i græsfladen, hvor den rejser sig til bænke, og hvor formsten etablerer en solid kant til en åbning ned i poolen.

Mod himlen afsluttes murværket af en murkrone in situ-støbt beton. Visse steder på disse betonelementer ses en begyndende patinering i form af lidt løberust fra forskallingens skruer og grønne gevækster. Det er en stolt afslutning af det karaktergivende murværk, og den tegner til, i takt med at patineringen tager til, at få bygningen til at falde rigtig godt på plads blandt de grønne plæner og træernes løv.

Privat bolig,Wilrijk, Belgien

Bygherre: Privat

Arkitekt: Hans Verstuyft Architecten

Entreprenør: 3D Bouwwerken

Færdiggjort: 2024

Sten: K21 samt fem forskellige specialsten i samme ler

Fra poolen trappes der op til en overdækket terrasse, hvorfra villaen trapper videre opad, trin for trin. Hver murflade brydes maksimalt af én nøje placeret åbning.

Sammenstillingen af volumener etablerer en niche til hoveddøren, overdækket af en baldakin, der ligesom murkronerne er udført i beton. Det er i kraft af formstenene, at volumenernes massevirkning er opretholdt omkring de udadgående hjørner.

De teglbeklædte vægge omkring kældertrappen trækker et blødt dagslys med ned i villaens underetage.

Stueplan
Snit

Der er ikke fuget ud imellem stenene, efter de er lagt. Det giver dybe, mørke fuger, der fremhæver tegningen i det vilde forbandt.

Potentialet i specialsten demonstreres blandt andet ved poolen, hvor teglen folder sig over kanten og ned mod vandoverfladen.

Også kældertrappens trin er udført i specialsten.

Den lyse tegl indpasser sig farvemæssigt i løvet fra træer, buske og hække. Villaens størrelse brydes op af de mange horisontale og vertikale forskydninger.

Petersen Tegl producerede i alt fem forskellige formsten i træforme for at håndtere husets mange hjørner og kanter. Den øverste sten er Kolumba i normalformat på 528 x 108 x 37 mm.

Rammer, man mærker

INCUBA NEXT LØFTER SIG SOM ET TÅRN AF FORSKUDTE VOLUMENER PÅ ET AF DE HØJESTE

PUNKTER I AARHUS. KOLUMBA FØJER KOLORISTISK VARIATION TIL FACADERNES ENKLE RAMMEVÆRK.

Af Martin Søberg, ph.d., arkitekturhistoriker

Fotos: Anders Sune Berg

Vi er i kvarteret Katrinebjerg i det nordlige Aarhus. Området voksede frem i begyndelsen af det 20. århundrede som en forstad med bebyggelse af villaer og produktion i form af industri og håndværk, men er nu vokset sammen med resten af byen. INCUBA Next, der er tegnet af ADEPT og Aart, indgår i forskerparken INCUBA, der samler forskning, studerende og erhvervsliv som en del af Aarhus Universitets Campus Katrinebjerg, hvor der især er fokus på IT og ingeniørvidenskab.

INCUBA Next-bygningen er egentlig en tilbygning til et eksisterende byggeri, der er blevet renoveret og transformeret. Det mest markante nye element er det 18 etager høje tårn, der rejser sig 76 meter over terrænet og giver vid udsigt over byen og Aarhus-bugten. INCUBA Next er et kontorbyggeri, der især huser såkaldt skalerbare teknologivirksomheder. Bygningen rummer ikke blot de enkelte firmaer, men også et stort antal fællesskabsorienterede, sociale og faglige arrangementer.

Syd for den eksisterende bygning er der anlagt et torv, som midt i er trinvist forsænket i en cirkulær form. Forsænkningen kan fungere som regnvandsbassin, men danner også en form for amfiteater, hvor forskellige arrangementer kan foregå. Vest herfor ligger det nye byggeri. Mod torvet er bygningen fire etager høj og afsluttes af en tagterrasse, bag hvilken tårnet rejser sig. Etagerne bliver gradvist mindre i plan, jo højere op man kommer, idet der med mellemrum er placeret tagterrasser på forskellige sider af tårnet. På den måde danner det samlede volumen en trinvis overgang til det store himmelrum. I stueetagen er der arkader rundt om bygningen, der skaber en glidende overgang mellem ude og inde og tilføjer en urban atmosfære som i gamle italienske byer. Facaden er bygget op som et enkelt pille-bjælke-system med dybtliggende vinduer, der giver facaden reliefvirkning. Pillerne er beklædt med vandretliggende Kolumba. I bjælkeværket står stenene derimod lodret, så de minder om det standerskifte, man i traditionelt murværk finder over åbninger, men som her også er ført hen over pillerne i sammenhængende bånd. Martin Krogh, arkitekt og partner i ADEPT forklarer: »De nederste to etager er håndmurede, mens etagerne ovenover består af toetagers, L-formede elementer, hvor stenen er flækket. Elementerne samles fag for fag, og samlingen skjules af de lodrette sten i dækkene. Det gode ved at bruge den 528 mm lange Kolumba er desuden, at når man laver elementerne på fabrikken og stiller stenen op i formen, så kan den alene danne den dybe fals, som vinduerne sidder i – og som giver huset dets reliefvirkning.«

Etagerne er bundet sammen to og to, så de fremstår som dobbelthøje åbninger i murværket. Det forlener bygningen med en vis monumentalitet, men bryder den samtidig ned i skala. Visuelt fremstår den på afstand mindre, da øjet aflæser den som bestående af halvt så mange etager, som der egentlig er. Og samtidig betyder sammenkoblingen, at de enkelte åbninger bliver højere og slankere, som en understregning af bygningens højde.

Kolumba-stenen tilføjer facaden stoflighed og rummer et væld af farvetoner. »Stenen er grå, og den har fine variationer i sig og nogle brunlige nuancer, der giver den en grad af varme,« forklarer Anders Tyrrestrup, arkitekt og stiftende partner i Aart: »Kolumba giver huset dets robuste, monolitiske karakter. Når man bevæger sig rundt om det og op på etagerne, er det næsten som at gå rundt langs klippevæggene på et bjerg.«

»Kolumba giver huset dets robuste, monolitiske karakter. Når man bevæger sig rundt om det og op på etagerne, er det næsten som at gå rundt langs klippevæggene på et bjerg.«

Anders Tyrrestrup, arkitekt

I stueetagen skaber arkader en gradvis overgang mellem ude og inde og giver plads til ophold.

Teglklædte arkader omkring tagterrassen indrammer udsigten over hele Aarhus. Væggene giver læ og skaber en intim atmosfære, til trods for at rummet er åbent mod himlen.

Torvet med den runde fordybning danner ramme om arrangementer for bygningens brugere. Bagerst ligger den eksisterende bygning, der er blevet iklædt et rammeværk af tegl.

INCUBA Next, Katrinebjerg, Aarhus

Bygherre: INCUBA

Arkitekt: Aart og ADEPT

Entreprenør: A. Enggaard

Ingeniør: Cowi

Opført: 2024

Sten: K92

Facaden er opbygget af toetagers, L-formede elementer. Kolumba-stenene er placeret lodret i bjælkeværket og danner kontinuerlige, vandrette bånd.

Som et 76 meter højt tårn rejser INCUBA
Next-bygningen sig på et af byens højeste punkter som del af Aarhus Universitets Campus Katrinebjerg.
Det rolige rammeværk af stablede rektangler tilføres tekstur og farvespil af Kolumba-stenene.
Tværsnit
Plan, 4. etage
Stueplan

Boligfortætning i Canadas største

by

I STEDET FOR HØJE BOLIGBLOKKE ELLER SPREDT BEBYGGELSE PEGER ULSTER HOUSE PÅ EN TREDJE RETNING, HVOR FLERE BOLIGER INDPASSES NÆNSOMT MED UDGANGSPUNKT I DEN HISTORISKE MURSTENSARKITEKTUR I TORONTO.

Af Ida Præstegaard, cand.arch. Fotos: doublespace photography

I Harbord Village, et attraktivt boligkvarter downtown Toronto, finder man en ny, eksperimenterende boligbebyggelse udviklet af arkitektparret Janna Levitt og Dean Goodman, grundlæggere af LGA Architectural Partners. Som både bygherrer og kommende beboere ønskede de at undersøge, hvordan en grund beregnet til et enfamilehus i en klassisk murstensby kan rumme flere boliger uden at miste sin skala, materialitet eller forankring i kvarteret. Til husets facader valgte de Cover. Mursten er et definerende træk ved Torontos boligbyggeri og går igen på tværs af perioder og kvarterer. Historisk var mursten et holdbart og brandsikkert materiale, som var let at skaffe lokalt og derfor blev standardvalget, da byen voksede i slutningen af 1800-tallet og begyndelsen af 1900-tallet. I bybilledet ses alt fra dybrøde og lyse mursten i victorianske og edwardianske huse til mere afdæmpet og ensartet murværk i efterkrigstidens byggeri. Ud over de praktiske egenskaber giver mursten Toronto en stærk, visuel sammenhæng. Gaderne opleves som robuste, taktile og helstøbte, også selvom arkitektoniske stilarter har ændret sig over tid.

Den nye bebyggelse indskriver sig i Toronto som murstensby og bygger videre på dens karakter frem for at erstatte den. Projektet repræsenterer et alternativ til byens dominerende boligstrategi, hvor vækst primært sker gennem enten høje boligbyggerier eller spredt bebyggelse. Ulster House arbejder i stedet med nænsom fortætning, hvor nye typer boliger indpasses i eksisterende kvarterer uden at bryde med gadeforløb, naboskala eller områdets arkitektoniske karakter.

I rollen som både arkitekter og udviklere omdannede Janna Levitt og Dean Goodman en typisk enfamiliegrund til Torontos første multiplex med fem ejerlejligheder, fordelt på en treetagers bygning og et bagvedliggende laneway-hus.

Cover blev udviklet i samarbejde med hollandske Min2 bouw-kunst i 2009 og blev en del af standardsortimentet hos Petersen Tegl i 2011.

Ulster House rummer i alt fem boligenheder, hvoraf de fire er fordelt på en treetagers hovedbygning, hvis stueetage er indrettet som en 163 m2 etværelses lejlighed, forberedt til at kunne udgøre to lejligheder, med adgang til gårdrummet. På de øvre etager findes to toværelses boliger med kompakte planløsninger og store terrasser. I alle boliger er rumlige kvaliteter, dagslys og opbevaringsplads prioriteret højere end maksimal udnyttelse af kvadratmeter.

Den femte enhed er blevet til gennem udnyttelsen af et såkaldt laneway-hus, en mindre bygningstype karakteristisk for Torontos ældre kvarterer. Disse huse er typisk opført i baghaven til forskellige ejendomme og har oprindeligt været anvendt til blandt andet affaldsindsamling og parkering. I Ulster House indgår det eksisterende laneway-hus som en del af stueetagens bolig og er forbundet via en gård, men det kan relativt enkelt omdannes til en selvstændig bolig. Levitt og Goodman har længe været fortalere for at aktivere byens laneways som en måde at øge boligudbuddet på, samtidig med at der udvises respekt for gadebilledet og byens fysiske aftryk.

Facadebeklædningen spiller en afgørende rolle for husets relation til omgivelserne, og fra begyndelsen stod det klart for arkitekterne, at bygningen skulle beklædes med tegl, der kunne spille sammen med de omkringliggende victorianske murstenshuse. For at give projektet et nutidigt udtryk valgte arkitekterne Cover, og de besluttede sig for C48, som spænder over et bredt spektrum af røde, brune og orange nuancer. Teglet skaber en levende facade, hvor farverne i de omkringliggende huses murværk genfindes, og hvor Ulster House fremstår moderne og samtidig tydeligt forankret i kvarterets arkitektur.

Projektet er udført med fokus på bæredygtighed, økonomi og lang levetid. Bygningen er fuldt elektrificeret og kombinerer energieffektive systemer med solceller. Det indgik i beslutningen om at anvende Cover, at teglene kan nedtages og genanvendes. De er monteret på en enkel trækonstruktion, som eliminerer behovet for stålkonsoller og reducerer de materialerelaterede CO₂-udledninger. Samtidig understøtter løsningen et enkelt og ærligt, konstruktivt princip.

Levitt og Goodman har været blandt de tidlige fortalere for begrebet ’gentle density’, herunder laneway-huse og multiplex-byggeri. Med Ulster House ønskede de at demonstrere, hvordan denne tilgang kan realiseres konkret og med høj arkitektonisk kvalitet.

Ulster House, Beboelsesejendom med fem enheder, Toronto, Canada

Bygherre: Janna Levitt og Dean Goodman, LGA Architectural Partners

Arkitekt: LGA Architectural Partners

Entreprenør: Desar Construction Studio Inc.

Ingeniør: Blackwell Engineering

Færdiggjort: 2024

Sten: C48, 528 x 170 x 37 mm

Ulster Houses beklædning med keramiske tegl refererer til de victorianske huse i kvarteret opført i mursten.

Hovedhuset er karakteriseret ved rolige, teglbeklædte facader og store, ensarterede vinduer, der sikrer et generøst dagslys i husets fire boliger.

Tegninger: LGA Architectural Partners

Der er adgang til laneway-huset fra hovedhusets terrasse.

Tværsnit
Stueplan
I husets interiør anvendes i udstrakt grad egetræsfiner, hvis gyldne nuancer genfindes i C48.

som plantekasse, hvor hulrum integrerer vegetation direkte i facaden og forener funktion og ornament.

Teglkunst i Studio

PETERSEN TEGLS STUDIO I KØBENHAVN DANNER DENNE SOMMER RAMMEN OM EN UDSTILLING, DER VISER, HVORDAN KERAMISK KUNST KAN INSPIRERE ARKITEKTUREN.

Det var med glæde, at Petersen Tegl slog dørene op for en udstilling i Studio i København med værker af den italienske billedkunster Manuel Canu. Udstillingen, der åbnede medio februar, markerer afslutningen på et kunstnerophold på teglværket i Broager. I løbet af maj og juni 2025 undersøgte Canu, hvordan keramisk håndværk kan indgå i dialog med industrielle processer og nutidig materialeforskning.

Manuel Canu har i en årrække arbejdet skulpturelt med ler. Han beskæftiger sig med naturmotivers historiske og symbolske rolle i arkitekturen, særligt gennem ornamentik og udsmykning.

Med afsæt i den dekorative håndværkstradition gentænker Canu ler som både et bærende og fortællende materiale i en samtidskunstnerisk kontekst.

Udstillingen i Studio fungerer som en konkret bro mellem kunst og industri. Den giver indblik i et eksperimenterende samarbejde, hvor kunstneriske metoder flettes sammen med teglproduktionens teknikker. Resultatet er værker, der trækker på historiske referencer og samtidig peger mod nye måder at arbejde med arkitektonisk keramik på.

Udstillingen kan ses indtil 1. september 2026.

I værker udført i K92- og K58-ler kombinerer Canu håndmodellering med ekstrudering for at skabe strukturelle elementer med skulpturel ornamentik.

KONSULENTER–PETERSEN TEGL

DANMARK ØST ARNE GOTFREDSEN T: +45 2967 7030 E: AGO@PETERSEN-TEGL.DK

DANMARK VEST OG FYN TORBEN SCHMIDT T: +45 2028 4355 E: TSC@PETERSEN-TEGL.DK

EXPORT MANAGER STIG H. SØRENSEN T: +45 4014 1236 E: SHS@PETERSEN-TEGL.DK

NORGE MUR DIREKTE AS SIMEN BØE T: +47 2339 2010 E: POST@MURDIREKTE.NO

SVERIGE TEGELMÄSTER AB CATHARINA HOLMSTRÖM T: +46 40 542 200 E: INFO@TEGELMASTER.SE

TYSKLAND SLESVIG-HOLSTEN, HAMBORG JUTTA ENGLER T: +49 171 756 19 43 E: ENGLER@PETERSEN-TEGL.DK

TYSKLAND ØST, BERLIN, NIEDERSACHSEN, BREMEN ERIC SCHMIDT-BANDUR T: +49 174 3800 667 E: ESB@PETERSEN-TEGL.DK

TYSKLAND SYD/NRW SCHWEIZ TYSKTALENDE DEL ØSTRIG BACKSTEIN-KONTOR GMBH T: +49 221 888785-0

E: INFO@BACKSTEIN-KONTOR.DE

BENELUX PETERSEN BENELUX BELGIEN, LUXEMBOURG BJÖRN LUCASSEN T: +31 (0) 652362168 E: BLU@PETERSEN-TEGL.DK

HOLLAND LINEKE LUCASSEN T: +31 (0) 622529266 E: LLU@PETERSEN-TEGL.DK

TOM LUCASSEN T: +31 (0) 646236445 E: TLU@PETERSEN-TEGL.DK

LARS HOGEBOOM T: +31 (0) 625391583 E: LHO@PETERSEN-TEGL.DK

STORBRITANNIEN STIG H. SØRENSEN T: +45 4014 1236 E: SHS@PETERSEN-TEGL.DK

EUROPEAN BUILDING MATERIALS LTD

T: +44 (0) 203 805 0920 E: ENQUIRIES@EBMSUPPLIES.COM

POLEN CENTRUM KLINKIERU SCHÜTZ

T: +48 58 56 37 201 E: BIURO@CENTRUM-KLINKIERU.PL

ØSTEUROPA (EKSKL. POLEN), ITALIEN INGRID KATHRIN GROKE

T: +45 2047 9540 E: IKG@PETERSEN-TEGL.DK

UKRAINE INGRID KATHRIN GROKE

T: +45 2047 9540 E: IKG@PETERSEN-TEGL.DK

VISTARK KLINKER

T: +380 44 221 47 37 E: VISTARK.KLINKER@GMAIL.COM

AUSTRALIEN OG NEW ZEALAND ROBERTSON’S BUILDING PRODUCTS PTY LTD T: +61 3 8199-9599 E: PETER@ROBERTSONS.CO

INDIEN OG MELLEMØSTEN ATLAS DEVELOPMENTS INDIA T: +31642552517 E: ISHANVIR@ATLASDEVELOPMENTS.NL

SYDAMERIKA INGRID KATHRIN GROKE T: +45 2047 9540 E: IKG@PETERSEN-TEGL.DK

TEKNIK OG OVERLIGGERE STEEN SPANG HANSEN T: +45 2142 7962 E: SSH@PETERSEN-TEGL.DK

UDGIVER

PETERSEN TEGL A/S NYBØLNORVEJ 14 DK-6310 BROAGER T: +45 7444 1236 E: INFO@PETERSEN-TEGL.DK WWW.PETERSEN-TEGL.DK

REDAKTION IDA PRÆSTEGAARD, CAND.ARCH. E: IPR@PETERSEN-TEGL.DK

ANNETTE PETERSEN, CAND.ARCH. E: AP@PETERSEN-TEGL.DK

LAYOUT ZANGENBERG DESIGN

TRYK STRANDBYGAARD

REPRO EHRHORN HUMMERSTON OPLAG 85.000

Manuel Canu er født på Sardinien, men har siden 2008 været bosat og arbejdet i Danmark.
D71 omformes, så den opnår et kunstnerisk udtryk, der kan anvendes arkitektonisk i større flader.
Peter Zinck og Manuel Canu supplerede hinanden i taler til udstillingsåbningen den 19. februar i år.
Murstenen
Canu undersøger, hvordan skulpturelle relieffer kan integreres i klimaskærmen frem for at blive påført.

Turn static files into dynamic content formats.

Create a flipbook