Oakland Park, Masham

Page 1

MASHAM Oakland Park

Welcome to

Oakland Park

Oakland Park, presents a desirable collection of 3, 4 and 5-bedroom homes, set within the quintessential town of Masham (pronounced ‘Massam’). These sought-after properties suit a range of buyers and will contribute to this already established community, offering a real sense of pride in where people live.

The attractive, landscaped development boasts character homes where planned open spaces blend seamlessly with the area’s green surroundings. Contemporary interiors marry perfectly with the traditional feel of the stylish exteriors, finished in stone and warm brick, that strike the perfect balance of design, practicality

and comfort. And with Thirsk and Ripon so close by, you’ll have the convenience of many local facilities, (including two famous breweries), and excellent schools, on your doorstep. If you’re looking for a house to call home, and to start your journey making memories that last a lifetime then Oakland Park is the place for you.

We’ve been building homes and communities for over a decade and specialise in delivering quality, high specification properties. However, no amount of words can accurately express how a Stonebridge home looks and feels: you need to visit Oakland Park to discover this for yourself.

Our properties are designed to offer space, flexibility, and comfort, whilst nestling comfortably within the existing landscape.

Images shown are for illustrative purposes only
“ “

Stonebridge is well known for building desirable homes in desirable locations, using quality materials and employing skilled crafts people to build each and every home. Our properties are designed to offer space, flexibility, and comfort, whilst nestling comfortably within the existing landscape.

A Stonebridge home boasts light and welcoming spaces where you can relax after a hard day at work or entertain long into the evening. Private, rear gardens allow you to continue the enjoyment of your home and provides extra valuable space. Garages and car-parking spaces give added convenience. We truly believe that we have found the perfect blend of luxury, specification and style, a home with heart and soul.

Whether you are looking to take your first step onto the property ladder, move to a larger family home or you are looking to downsize, a Stonebridge home offers everything you may need, and without compromise.

A DESIRABLE LOCATION with a desirable specification to match

A BUSTLING TOWN dating back to ancient times

You can’t deny the magnificent location of Masham; a picturesque Wensleydale market town often described as one of the best places to live in North Yorkshire. Green open spaces, leisurely walks, horse riding and cycling, and all just a stone’s throw from Niddersdale AONB, the Yorkshire Dales National Park and the Yorkshire Moors.

This lovely market town enjoys an interesting history, and whilst the Romans had a presence here, the first permanent settlers were the Angles.

The town has a thriving traditional market, plus a monthly farmers market and its first market charter hails back to in 1251. The present St Mary’s Church is mainly Norman with fifteenth century additions yet dates back to the seventh century.

At Oakland Park everything you need is on your doorstep, as the town enjoys an abundance of charming independent

shops and eateries that line its bustling streets - and you will be sure of a warm welcome and a friendly smile wherever you go. The town is a creative hub and boasts a number of galleries with a thriving artists community. Continuing with the art theme, every year hundreds of swifts arrive here from Africa and herald the arrival of summer and to celebrate this influx, Masham has its own swift sculpture trail.

And when you want an evening off from the cooking, or just want a ‘spur of the moment’ evening out, there is a plentiful choice of pubs, cafes, and restaurants.

Close by you’ll find the historic Masham Golf Club with its beautiful 9-hole parkland course, dissected by the River Burn. The course was a well-known favourite of singer, Bing Crosby, and has been visited by the likes of legendary golfer, Peter Alliss.

TRADITIONAL MARKETS
GALLERIES & CREATIVE CENTRES 9-HOLE PARKLAND COURSE

FAMED FOR.... Beer

FAMED FOR.... Sheep!

Thetown is perhaps most well known for its two, very popular breweries. Theakstons Brewery is the original company, founded in 1827 and producing its legendary, iconic Old Peculier beer that is sold around the world. Theakstons Brewery was sold to a national brewers in 1992 and fifth generation brewer, Paul Theakston chose to set up a new company, Black Sheep Brewery.

Masham is also famed for it’s sheep farming, and hosts an annual event to shout far and wide to keep it’s history alive. The town originally developed due to mining, milling, cloth making and leather tanning. However it’s importance as a major sheep market helped the town to thrive and its large market place is now host to Masham’s local markets.

BLACK SHEEP BREWERY MASHAM SHEEP FAIR
If you can pull yourself away from the Baa…r! “
Photo courtesy of Black Sheep Brewery Photo courtesy of Black Sheep Brewery

A RICH AND VIBRANT AREA: North Yorkshire

Around 40% of North Yorkshire is home to national parks. The area boasts miles and miles of unspoilt countryside, with Niddersdale AONB, the Yorkshire Dales National Park and Yorkshire Moors. All offer the very best of outdoor scenery with plenty of opportunities for walking, cycling, climbing and horse riding, and discovering this beautiful area.

Masham is perfectly located, allowing easy access to several villages and towns including Ripon, Yorkshire’s smallest city by virtue of its cathedral. Harrogate and York are under an hour away by car. Charming market towns include Malton, Kirkbymoorside and Pickering.

Heritage and culture - Yorkshire has it all, and in abundance. Swinton Park is a luxury castle set in 200 acres of parkland, whilst nearby Jervaulx Abbey is a ruined monastery set in tranquil grounds and with a welcoming tearoom.

The area is noted for its follies with Regencyera Druids Temple loosely modelled on

Stonehenge, and Hackfall Wood, both close to Masham.

Dalby Forest offers everything including ‘Go Ape’, walking, running, and cycling - all set within 8,000 acres of breath-taking scenery.

Lightwater Valley is 13 miles away from Masham, and Leeds and York are both easily accessed as well.

Good rail and road links in all directions allow for easy commuting and great days out. Thirsk and Northallerton train stations are around 11 miles away, and the A1(M), giving access both north and south, is less than 20 miles away.

The county has a long history of horse racing with several top-class courses including Middleham, Malton and Richmond and flat racing courses at York, Beverley, Pontefract, Redcar, Ripon, Wetherby and Thirsk.

The area is is well served for travelling further afield with flights from Leeds Bradford airport, just 31 miles away from Masham.

This beautiful area is rich in wildlife, windswept moorlands, rolling hills, shimmering expanses of water, historic abbeys and castles, welcoming pubs and cafes and thriving local shops and galleries

10 MILES RIPON THIRSK/NORTHALLERTON TRAIN STATIONS 11/11.5 MILES SCOTCH CORNER 19 MILES NIDDERSDALE AONB 10.5 MILES LEEDS BRADFORD AIRPORT 31.5 MILES YORK 39 MILES LEEDS 45 MILES YORKSHIRE DALES NATIONAL PARK 27.5 MILES

AN EDUCATED CHOICE

For a town of its size, Masham offers a good choice of two pre-schools/ nurseries and a primary schoolMasham CE (VC) Primary School - all are rated as good by Ofsted.

For secondary education Bedale Secondary School is rated as good by Ofsted. and is just over seven miles from the town. Ripon Grammar School is a co-educational boarding and day school and is highlighted as the top state school in the North by the Sunday Times for the ninth year running, as well as being rated outstanding by Ofsted. Likewise, Outwood Academy in Ripon is classed as outstanding.

There are several other secondary establishments that are in catchment for Masham, including ones at Richmond, Thirsk and Boroughbridge, and they are rated good by Ofsted.

Queen Mary’s school in Thirsk and Aysgarth School in Bedale are both independent schools.

Masham is well placed for university education with esteemed local establishments in Leeds, Manchester, Durham, and Newcastle.

OUR SPECIFICATION... is second to none

Kitchen shown is ashbourne paint to order in anthracite with white arabesque silestone, featured in our Pinehurst show home
STUNNING KITCHENS THAT ARE the heart of the home

DESIGN YOUR KITCHEN around you & your family

Thekitchen is arguably the most important room in every home and where we spend most of our time - cooking, chatting, entertaining, socialising and generally having fun!

We work with kitchen designers to maximise the available space and create well-designed kitchens that are stylish, yet hard-working.

Integrated appliances, glass splashbacks, LED lighting and worktop up-stands complete that all important look and ensure your kitchen is as individual as you are.

Most of our homes feature the coveted kitchen with dining space - often with a family area too - allowing the conversation to flow with family and friends around you.

STANDARD SPECIFICATION INCLUDES:

• Individually designed layouts

• Laminate worktop and 100mm up-stand

• Toughened safety backed glass splash-back

• Bosch integrated appliances throughout including:

- Double oven

- Choice of gas or ceramic hob

- Fridge / freezer (70/30)

- Cooker hood

- Dishwasher

• Inset 1.5 Blanco bowl sink with drainer and Hansgrohe chrome mixer tap

• Feature LED lighting to underside of wall units

• Recessed LED down-lights to kitchen area

• Chrome socket outlets and USB point above work surface

• Plinth lighting

RELAX & UNWIND in your sanctuaryown

or end the day in style. Our bathrooms, shower rooms and en-suites exude elegance with sanitaryware from the luxurious Villeroy and Boch company. And the luxury does not stop there. Porcelanosa tiles create a timeless look, with hues of neutrals and greys to choose from. And for those who want to add a splash of drama to their wet rooms, there are darker colours too (as shown adjacent).

Start,

At Stonebridge, we appreciate that you want to retreat to your own sanctuary that has been carefully designed to create your own oasis of calm.

STANDARD SPECIFICATION INCLUDES:

• Wall mounted basin and vanity unit with contemporary Hansgrohe single lever basin mixer

• Villeroy and Boch back-to-wall WC, soft-closing seat and cover, concealed cistern and chrome dual flush plate

• Villeroy and Boch bath with tiled bath panel

• Shower enclosure with glass sliding door (plot specific), Hansgrohe chrome thermostatic mixer, wall mounted shower riser rail and ceiling mounted drencher head

• Bath mixer tap with hair rinse hose pull out

• Shaver socket in en-suite(s)

• Chrome heated towel rail

• Recessed LED down-lights

• Porcelanosa wall tiling to selected areas

Bathroom featured is from our Pinehurst show home
A DEDICATED HOME OFFICE gives you the space to separate home from work

PRIDE IN EVERYTHING WE DO that

s the Stonebridge promise

From choosing the right location, to the design of our homes, through to the actual build, we are focused on excellence throughout. We only use quality materials and employ skilled tradespeople, with a real attention to detail - that’s part of the Stonebridge promise.

Inside each and every home we carefully consider every detail; right down to the small details that quite often make a big difference. For extra peace of mind, we offer a 2-year guarantee on all our homes, in addition to a 10-year warranty from Premier Guarantee.

Your kitchen is the heart of the home and our fully fitted kitchens include integrated Bosch appliances as standard, with a fabulous choice of designer kitchen styles. Our bathrooms feature beautiful sanitaryware from luxury brand Villeroy and Boch and showers from Hansgrohe that perfectly complement the Porcelanosa tiling.

Whilst we offer a high specification as standard, we do offer additional, bespoke finishing touches for those who wish to inject a little more of their own personality into their new home. Please ask a Sales Advisor for further information.

A SUPERB SPECIFICATION included as standard

Once you step into a Stonebridge home, it’s immediately apparent that our houses are light and airy, reducing the need for artificial light.

Our hallways are welcoming with solid oak newel posts and handrails, with complementary white spindles. Sitting rooms are comfortable and offer the perfect place to relax and unwind after a busy day.

Designer kitchens will not fail to impress, with both traditional and contemporary choices from the renowned Symphony Gallery range. The majority of house types have a useful utility room.

Bedrooms are sophisticated and designed to maximise space with room for fitted Hammonds wardrobes that are available as an upgrade.

All house types have either one or two ensuite shower rooms.

And the outside will not leave you disappointed either. French / bi-fold doors open out onto the rear, turfed, garden to take the inside, out. Our gardens offer privacy with boarded fencing, paved patio and pathways, and all have an outdoor tap included as standard. We have thought of everything.

SUSTAINABILITY we take ourseriouslyresponsibilities

There are so many reasons to consider investing in a new build property, not least for its reduced impact on the environment and its green credentials.

Due to the advanced build materials used, new build homes are much more thermally efficient and airtight. We fit modern, double glazed windows that are highly efficient in terms of insulation that reduces heat loss and saves on energy usage.

And it is not just a positive effect on the environment that a new home affords. According to new-homes.co.uk, new build can have a positive impact on your finances too with an estimated yearly saving of £890 on a 3-bedroom new build home, when compared with the energy costs of £1,670 for a Victorian 3-bedroom semi-detached home with some modern improvements.

Stonebridge take climate change seriously. At Oakland Park all properties come with an electric vehicle charging point, at no extra cost. The charging point future proofs your home and allows you to charge your car when it is not in use, in the same way you would a mobile phone.

All our homes are fitted with a security alarm, however, to provide an even greater sense of security, and further enhance your energy efficiency, Stonebridge offer Hive as standard with the option to add on other elements including, CCTV, dimmable lights, and radiator controls.

In addition, all our homes have 100% energy efficient lighting and dual flush toilets.

OUR HOUSE STYLES & DESIGNS... are second to none

Images shown are for illustrative purposes only
Oakland Park offers the best of both worlds - located in a popular village, yet within easy reach of local towns and cities
“ “
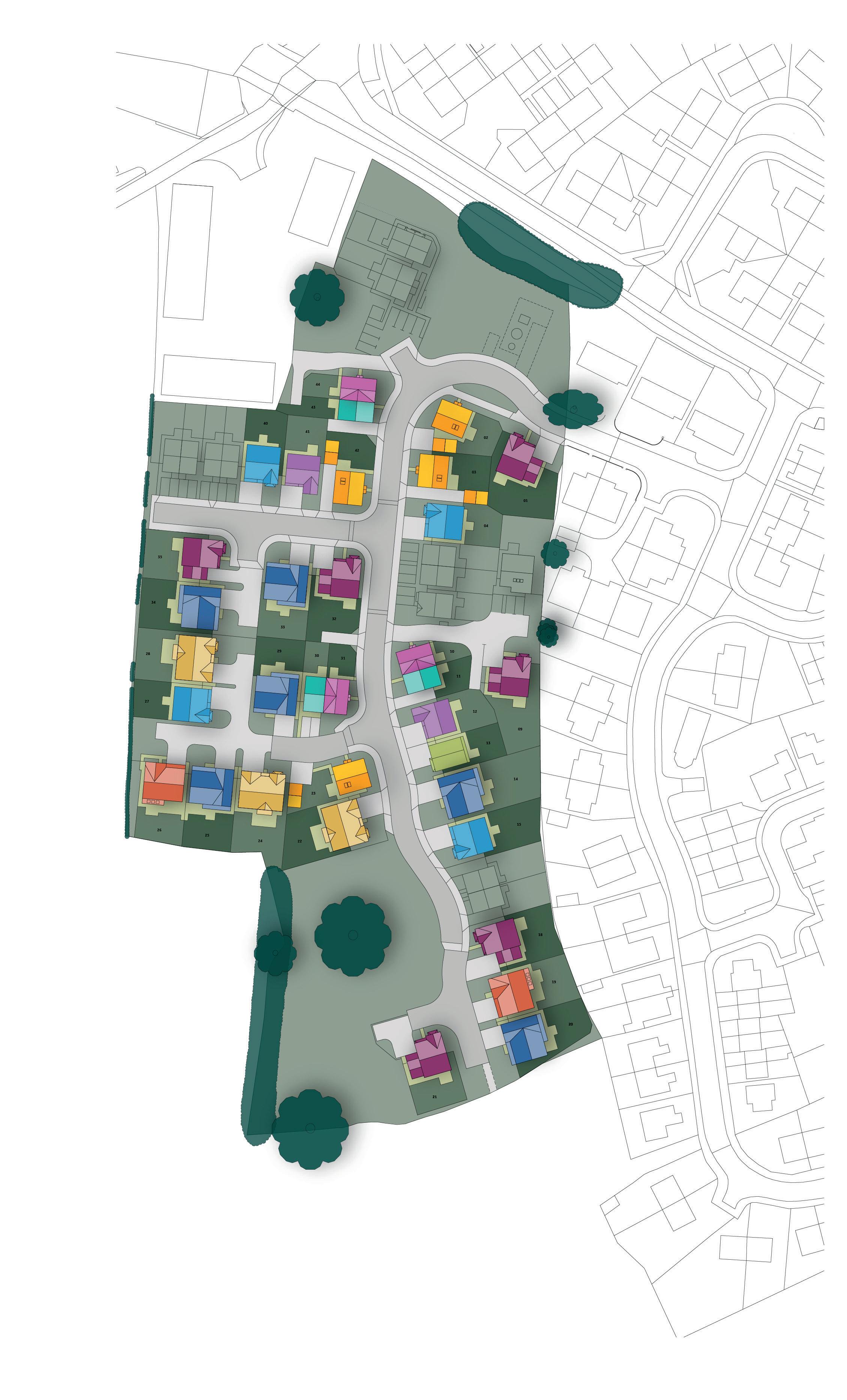
THE ASTON 5 BEDROOM DETACHED THE SANDRINGHAM 5 BEDROOM DETACHED THE BELFRY II 4 BEDROOM DETACHED THE RIDGEWOOD 4 BEDROOM DETACHED THE GOODWOOD 3 BEDROOM SEMI-DETACHED THE GANTON 5 BEDROOM DETACHED THE TROON 3 BEDROOM SEMI-DETACHED THE TURNBERRY 5 BEDROOM DETACHED THE HADLEY 3 BEDROOM DETACHED Oakland Park DEVELOPMENT LAYOUT THE MERION 4 BEDROOM DETACHED SHOW HOME
Our homes

The Aston

5 BEDROOM DETACHED | 2,146 SQ FT

Ground Floor

KITCHEN 3.34m x 4.20m 10’11” x 13’9”

DINING 3.61m x 4.91m 11’10” x 16’1”

FAMILY 2.70m x 3.56m 8’10” x 11’8”

LOUNGE 3.84m x 6.65m 12’7” x 21’10”

UTILITY 1.86m x 4.20m 6’1” x 13’9”

ASTON

WC 0.91m x 1.76m 3’0” x 5’9”

First Floor

MASTER BEDROOM 4.83m x 3.33m 15’10” x 10’11”

DRESSING ROOM 2.17m x 1.74m 7’1” x 5’8”

EN-SUITE 1 2.53m x 1.54m 8’4” x 5’0”

BEDROOM 2 3.93m x 4.09m 12’11” x 13’5”

EN-SUITE 2 2.40m x 1.85m 7’10” x 6’1”

BEDROOM 3 3.54m x 4.01m 11’7” x 13’2”

BEDROOM 4 3.03m x 4.74m 9’11” x 15’6”

BEDROOM 5 3.14m x 3.36m 10’4” x 11’0”

BATHROOM 3.04m x 2.07m 10’0” x 6’9”

Ground Floor

GROUND FLOOR PLAN

First Floor

GROUND FLOOR PLAN FIRST FLOOR PLAN

These particulars are believed to be correct but do not constitute an offer, warranty or contract. Pictures and photographs are used for illustrative purposes only. The company reserves the right to alter plans, specifications and elevations and to substitute materials during the course of construction. The artist’s impressions of these Stonebridge homes are typical of their type and are placed in generic scenery. Images may include upgrades available at an additional cost.
UTILITY GARAGE KITCHEN DINING FAMILY WC HALL LOUNGE
ROOM NAME METRIC WIDTH LOUNGE KITCHEN DINING FAMILY W.C UTILITY 3.84m DEPTH 6.68m 3.34m 4.20m 1.86m 4.20m 3.60m 4.91m 0.91m 1.76m 2.71m 3.56m FIRST FLOOR ROOM SIZE SCHEDULE ROOM NAME MASTER BEDROOM EN-SUITE EN-SUITE BEDROOM 3 BEDROOM 2 DRESSING ROOM BEDROOM 4 BEDROOM 5 BATHROOM 4.83m 3.33m 2.53m 1.54m 2.18m 1.74m 3.93m 4.09m 3.54m 4.01m 2.40m 1.85m 4.74m 3.03m 3.14m 3.36m 3.04m 2.07m METRIC WIDTH DEPTH UTILITY GARAGE KITCHEN DINING FAMILY WC HALL LOUNGE DRESSING MASTER BEDROOM CYL. BEDROOM LANDING EN-SUITE 1 BATHROOM BEDROOM 3 BEDROOM 4 EN-SUITE 2 BEDROOM 5

The Turnberry

5 BEDROOM DETACHED | 1,911 SQ FT

Ground Floor

KITCHEN 3.55m x 3.55m 11’8” x 11’8”

DINING/FAMILY 3.54m x 5.35m 11’7” x 17’7”

LOUNGE 3.68m x 5.53m 12’1” x 18’2”

STUDY 2.60m x 2.43m 8’6” x 8’0”

UTILITY 3.30m x 1.65m 10’10” x 5’5”

WC 2.60m x 1.26m 8’6” x 4’2”

First Floor

MASTER BEDROOM 4.40m x 5.09m 14’5” x 16’8”

EN-SUITE 1 2.31m x 1.59m 7’7” x 5’3”

BEDROOM 2 3.41m x 3.71m 11’2” x 12’2”

EN-SUITE 2 1.20m x 3.11m 3’11” x 10’2”

BEDROOM 3 3.62m x 3.11m 11’11” x 10’2”

BEDROOM 4 2.60m x 3.85m 8’6” x 12’8”

BEDROOM 5 2.49m x 3.85m 8’2” x 12’8”

BATHROOM 2.10m x 3.11m 6’11” x 10’2”

Ground Floor

First Floor

These particulars are believed to be correct but do not constitute an offer, warranty or contract. Pictures and photographs are used for illustrative purposes only. The company reserves the right to alter plans, specifications and elevations and to substitute materials during the course of construction. The artist’s impressions of these Stonebridge homes are typical of their type and are placed in generic scenery. Images may include upgrades available at an additional cost.
GROUND FLOOR PLAN TURNBERRY UTILITY HALL WC STUDY LOUNGE DINING KITCHEN GARAGE FAMILY ROOM STORE GROUND ROOM LOUNGE KITCHEN/DINING/FAMILY W.C UTILITY FIRST ROOM MASTER EN-SUITE EN-SUITE BEDROOM BEDROOM BEDROOM BEDROOM BATHROOM STUDY GROUND FLOOR PLAN FIRST FLOOR PLAN TURNBERRY UTILITY HALL WC STUDY LOUNGE DINING KITCHEN GARAGE FAMILY ROOM STORE LANDING BATHROOM EN-SUITE 1 EN-SUITE 2 MASTER BEDROOM BEDROOM 5 BEDROOM 4 BEDROOM 2 CYL. BEDROOM 3

The Sandringham

5 BEDROOM DETACHED | 1,813 SQ FT

Ground Floor

KITCHEN/BREAKFAST 5.30m x 4.19m 17’5” x 13’9”

LOUNGE 4.91m x 3.89m 16’1” x 12’9”

DINING 2.91m x 3.40m 9’7” x 11’2”

UTILITY 2.14m x 1.88m 7’0” x 6’2”

WC 2.14m x 1.00m 7’0” x 3’3”

First Floor

MASTER BEDROOM 3.56m x 4.17m 11’8” x 13’8”

EN-SUITE 1 1.35m x 2.87m 4’5” x 9’5”

BEDROOM 2 3.11m x 4.07m 10’2” x 13’4”

EN-SUITE 2 1.20m x 2.91m 3’11” x 9’7”

BEDROOM 3 5.07m x 2.85m 16’8” x 9’4”

BEDROOM 4 2.83m x 3.97m 9’3” x 13’0”

BEDROOM 5 2.75m x 2.91m 9’0” x 9’7”

BATHROOM 2.83m x 2.14m 9’3” x 7’0”

Ground Floor

GROUND FLOOR PLAN

First Floor

FIRST FLOOR PLAN

These
particulars are believed to be correct but do not constitute an offer, warranty or contract. Pictures and photographs are used for illustrative purposes only. The company reserves the right to alter plans, specifications and elevations and to substitute materials during the course of construction. The artist’s impressions of these Stonebridge homes are typical of their type and are placed in generic scenery. Images may include upgrades available at an additional cost.
GARAGE DINING HALL W/C UTILITY LOUNGE KITCHEN/DINING MASTER BEDROOM EN-SUITE 1 BEDROOM 2 EN-SUITE 2 BEDROOM 5 BEDROOM 4 BATHROOM LANDING BEDROOM 3 CYL. GROUND ROOM NAME LOUNGE KITCHEN DINING W.C UTILITY FIRST FLOOR ROOM NAME MASTER BEDROOM EN-SUITE EN-SUITE BEDROOM 3 BEDROOM 2 BEDROOM 4 BEDROOM 5 BATHROOM
DINING
DINING GARAGE DINING HALL W/C UTILITY LOUNGE KITCHEN/DINING
GROUND FLOOR PLAN
KITCHEN/BREAKFAST

The Ganton

5 BEDROOM DETACHED | 1,711 SQ FT

Ground Floor

First Floor

Second Floor

These particulars are believed to be correct but do not constitute an offer, warranty or contract. Pictures and photographs are used for illustrative purposes only. The company reserves the right to alter plans, specifications and elevations and to substitute materials during the course of construction. The artist’s impressions of these Stonebridge homes are typical of their type and are placed in generic scenery. Images may include upgrades available at an additional cost.
GROUND FLOOR PLAN FIRST FLOOR PLAN SECOND HALL W/C UTILITY LOUNGE KITCHEN DINING ST. BEDROOM 2 BEDROOM 3 BEDROOM 4 STUDY EN-SUITE 2 BATHROOM LANDING STORE EN-SUITE * * * A and B options GROUND FLOOR PLAN FIRST HALL W/C UTILITY LOUNGE KITCHEN DINING ST. BEDROOM BEDROOM * * A and B options KITCHEN 3.34m x 4.39m 10’11” x 14’5” DINING 4.66m x 3.05m 15’4” x 10’0” LOUNGE 3.91m x 4.98m 12’10” x 16’4” UTILITY 2.53m x 2.31m 8’4” x 7’7” WC 1.01m x 1.93m 3’4” x 6’4”
2 3.38m x 3.65m 11’1” x 12’0” EN-SUITE 2 2.22m x 1.57m 7’3” x 5’2” BEDROOM 3 2.89m x 3.70m 9’6” x 12’1” BEDROOM 4 2.89m x 3.61m 9’6” x 11’10” BED 5/STUDY 2.22m x 2.79m 7’3” x 9’2” BATHROOM 2.99m x 2.00m 9’10” x 6’7” DRAWING NO: PROJECT: DRAWING: SCALE (A3 SHEET): 'GANTON' STANDARD PLANNING GANTON-801 1:100 GROUND FLOOR ROOM SIZE ROOM NAME METRIC WIDTH LOUNGE KITCHEN DINING W.C UTILITY 3.91m 3.34m 2.53m 4.66m 1.01m FIRST FLOOR ROOM SIZE SCHEDULE ROOM NAME EN-SUITE BEDROOM 3 BEDROOM 2 BEDROOM 4 STUDY BATHROOM 3.34m 2.89m 2.22m 2.89m 2.22m 2.99m METRIC WIDTH SECOND FLOOR ROOM SIZE SCHEDULE ROOM NAME EN-SUITE DRESSING MASTER BEDROOM 4.39m 1.97m 1.90m METRIC WIDTH GROUND FLOOR PLAN FIRST FLOOR PLAN SECOND FLOOR PLAN HALL W/C UTILITY LOUNGE KITCHEN DINING ST. BEDROOM 2 BEDROOM 3 BEDROOM 4 STUDY EN-SUITE 2 BATHROOM LANDING STORE MASTER BEDROOM DRESSING WARDROBE WARDROBE EN-SUITE 1 * * * A and B options MASTER BEDROOM 4.39m x 4.08m 14’5” x 13’5” EN-SUITE 1 1.90m x 2.77m 6’3” x 9’1”
ROOM 1.97m x 4.08m 6’6” x 13’5” BED 5/ STUDY Yellow shading shows position of windows/bi-fold doors in Ganton B
BEDROOM
DRESSING
THE GANTON B

The Belfry II

4 BEDROOM DETACHED | 1,731 SQ FT

Ground Floor

Ground Floor

First Floor

x 11’2”

DRESSING ROOM 2.89m x 3.40m 9’6” x 11’2”

EN-SUITE 1 2.80m x 1.92m 9’2” x 6’4”

BEDROOM 2 3.39m x 4.76m 11’1” x 15’7”

EN-SUITE 2 1.24m x 2.49m 4’1” x 8’2”

BEDROOM 3 3.61m x 3.40m 11’10” x 11’2”

BEDROOM 4 2.69m x 3.98m 8’10” x 13’1”

BATHROOM 2.26m x 1.70m 7’5” x 5’7”

First Floor

These particulars are believed to be correct but do not constitute an offer, warranty or contract. Pictures and photographs are used for illustrative purposes only. The company reserves the right to alter plans, specifications and elevations and to substitute materials during the course of construction. The artist’s impressions of these Stonebridge homes are typical of their type and are placed in generic scenery. Images may include upgrades available at an additional cost.
HALL STUDY WC UTILITY GARAGE ST. KITCHEN/DINING LOUNGE
GROUND FLOOR PLAN
GROUND FLOOR ROOM NAME LOUNGE KITCHEN/ DINING STUDY W.C UTILITY FIRST FLOOR ROOM NAME MASTER BEDROOM EN-SUITE EN-SUITE BEDROOM 3 BEDROOM 2 DRESSING ROOM BEDROOM 4 BATHROOM W HALL STUDY WC UTILITY GARAGE ST. KITCHEN/DINING LOUNGE LANDING BEDROOM EN-SUITE MASTER BEDROOM BATHROOM DRESSING CYL EN-SUITE BEDROOM 4 BEDROOM 2 The Belfry II is compliant to Part M4(2).
GROUND FLOOR PLAN FIRST FLOOR PLAN
x 14’3” LOUNGE 3.59m x 5.38m 11’9” x 17’8” STUDY 2.10m x 2.89m 6’11” x 9’6” UTILITY 2.10m x 1.87m 6’11” x 6’1” WC 1.87m x 1.48m 6’2” x 4’10”
BEDROOM 3.88m x 3.40m 12’9”
KITCHEN/DINING 7.10m x 4.35m 23’3”
MASTER

The Merion

4 BEDROOM DETACHED | 1,524 SQ FT

Ground Floor

LOUNGE 3.39m x 5.80m 11’1” x 19’0”

UTILITY 1.97m x 3.35m

WC

Ground Floor

First Floor

MASTER

EN-SUITE

DRESSING

BEDROOM

BEDROOM

BEDROOM

BATHROOM

First Floor

GROUND FLOOR PLAN FIRST FLOOR PLAN

These particulars are believed to be correct but do not constitute an offer, warranty or contract. Pictures and photographs are used for illustrative purposes only. The company reserves the right to alter plans, specifications and elevations and to substitute materials during the course of construction. The artist’s impressions of these Stonebridge homes are typical of their type and are placed in generic scenery. Images may include upgrades available at an additional cost.
KITCHEN/DINING HALL WC GARAGE UTILITY ST. LOUNGE GROUND FLOOR PLAN KITCHEN/DINING HALL WC GARAGE UTILITY ST. LOUNGE MASTER BEDROOM DRESSING ROOM BEDROOM 2 BEDROOM 3 BEDROOM 4 EN-SUITE BATHROOM LANDING ST. GROUND FLOOR ROOM NAME LOUNGE KITCHEN/DINING W.C UTILITY FIRST FLOOR ROOM NAME MASTER BEDROOM EN-SUITE BEDROOM 3 BEDROOM 2 BEDROOM 4 BATHROOM
DRESSING ROOM
KITCHEN/DINING 6.61m x 4.30m 21’8” x 14’1”
6’5”
x 11’0”
0.86m
1.84m 2’10”
x
x 6’0”
BEDROOM 3.44m x 4.98m 11’4” x 16’4”
1.55m x 2.26m 5’1” x 7’5”
ROOM 1.96m x 1.94m 6’5” x 6’4”
4.71m 13’0”
2 3.98m x
x 15’5”
3.08m
3.87m 10’1”
12’8”
3
x
x
3.51m
3.24m 11’6”
10’8”
4
x
x
1.90m
2.94m 6’3”
x
x 9’8”

The Ridgewood

4 BEDROOM DETACHED | 1,346 SQ FT

Ground Floor

KITCHEN/DINING 4.10m x 4.60m 13’5” x 15’1”

LOUNGE 3.39m x 5.17m 11’1” x 16’11”

UTILITY 3.15m x 1.90m 10’4” x 6’3”

WC 0.96m x 1.71m 3’2” x 5’7”

Ground Floor

First Floor

These particulars are believed to be correct but do not constitute an offer, warranty or contract. Pictures and photographs are used for illustrative purposes only. The company reserves the right to alter plans, specifications and elevations and to substitute materials during the course of construction. The artist’s impressions of these Stonebridge homes are typical of their type and are placed in generic scenery. Images may include upgrades available at an additional cost.
First Floor MASTER BEDROOM 3.39m x 4.93m 11’1” x 16’2” EN-SUITE 1.54m x 2.56m 5’0” x 8’5” BEDROOM 2 3.15m x 4.35m 10’4” x 14’3”
BEDROOM 3 3.20m x 3.41m 10’6” x 11’2”
GROUND ROOM LOUNGE KITCHEN/DINING W.C UTILITY FIRST ROOM MASTER EN-SUITE BEDROOM BEDROOM BEDROOM BATHROOM
FLOOR PLAN FIRST FLOOR PLAN KITCHEN/DINING HALL WC UTILITY ST. LOUNGE GARAGE MASTER BEDROOM BEDROOM 2 BEDROOM 3 BEDROOM 4 EN-SUITE ST. BATHROOM LANDING
BEDROOM 4 3.15m x 2.99m 10’4” x 9’10” BATHROOM 2.24m x 2.00m 7’4” x 6’7”
GROUND
PLAN KITCHEN/DINING HALL WC UTILITY ST. LOUNGE GARAGE
GROUND FLOOR

3 BEDROOM SEMI-DETACHED | 1,164 SQ FT GROUND

Ground Floor
These particulars are believed to be correct but do not constitute an offer, warranty or contract. Pictures and photographs are used for illustrative purposes only. The company reserves the right to alter plans, specifications and elevations and to substitute materials during the course of construction. The artist’s impressions of these Stonebridge homes are typical of their type and are placed in generic scenery. Images may include upgrades available at an additional cost.
First Floor
Floor
Goodwood
Ground Floor First
The
FLOOR PLAN FIRST FLOOR PLAN
FLOOR PLAN KITCHEN/DINING 5.96m x 3.11m 19’7” x 10’3” LOUNGE 5.96m x 3.15m 19’7” x 10’4” UTILITY 1.85m x 2.45m 6’1” x 8’0” WC 1.97m x 1.46m 6’6” x 4’9” MASTER BEDROOM 4.01m x 3.17m 13’2” x 10’5” EN-SUITE 1.86m x 2.45m 6’1” x 8’1” BEDROOM 2 3.22m x 3.58m 10’7” x 11’9” BEDROOM 3 2.65m x 3.58m 8’8” x 11’9” BATHROOM 1.82m x 2.64m 6’8” x 8’8” The Goodwood is compliant to Part M4(2).
GROUND

3 BEDROOM DETACHED | 1094 SQ FT

Ground Floor

Ground Floor

First Floor

First Floor GROUND

FLOOR PLAN FIRST FLOOR PLAN LOUNGE KITCHEN GARAGE HALL WC ST. MASTER BEDROOM BEDROOM 2 BEDROOM 3 BATHROOM EN-SUITE LANDING ST. GROUND FLOOR PLAN LOUNGE KITCHEN GARAGE HALL WC ST. These particulars are believed to be correct but do not constitute an offer, warranty or contract. Pictures and photographs are used for illustrative purposes only. The company reserves the right to alter plans, specifications and elevations and to substitute materials during the course of construction. The artist’s impressions of these Stonebridge homes are typical of their type and are placed in generic scenery. Images may include upgrades available at an additional cost.
KITCHEN/DINING 3.08m x 4.14m 10’1” x 13’4” LOUNGE 3.57m x 5.67m 11’9” x 18’7” WC 1.14m x 1.70m 3’9” x 5’7” MASTER BEDROOM 3.60m x 3.96m 11’10” x 13’0” EN-SUITE 1.87m x 1.98m 6’2” x 6’6” BEDROOM 2 2.96m x 3.96m 9’8” x 13’0” BEDROOM 3 3.96m x 2.91m 13’0” x 9’7” BATHROOM 2.56m x 2.91m 8’5” x 9’7”
Hadley
The
KITCHEN/DINING

Ground Floor

Ground Floor

First Floor

First Floor

GROUND FLOOR PLAN

KITCHEN/DINING WC ST. LOUNGE HALL These particulars are believed to be correct but do not constitute an offer, warranty or contract. Pictures and photographs are used for illustrative purposes only. The company reserves the right to alter plans, specifications and elevations and to substitute materials during the course of construction. The artist’s impressions of these Stonebridge homes are typical of their type and are placed in generic scenery. Images may include upgrades available at an additional cost.
KITCHEN/DINING 5.06m x 2.90m 16’7” x 9’6” LOUNGE 3.35m x 4.42m 11’0” x 14’6” WC 1.83m x 1.45m 6’0” x 4’9” MASTER BEDROOM 3.35m x 3.97m 11’0” x 13’0” EN-SUITE 1.40m x 2.51m 4’7” x 8’3” BEDROOM 2 2.71m x 3.32m 8’ 11” x 10’11” BED 3/STUDY 2.26m x 3.32m 7’5” x 10’11” BATHROOM 1.70m x 2.44m 5’7” x 8’0” The Troon
BEDROOM SEMI-DETACHED
988
The Troon is compliant to Part M4(2). GROUND FLOOR PLAN FIRST FLOOR PLAN KITCHEN/DINING WC ST. LOUNGE HALL BEDROOM 2 BEDROOM 3 MASTER BEDROOM EN-SUITE BATHROOM LANDING BED 3/STUDY
3
|
SQ FT
OAKLAND PARK, THE OAKS, MASHAM, NORTH YORKSHIRE, HG4 4DT WEST YORKSHIRE
HOW TO FIND US NORTH YORKSHIRE SKIPTON HARROGATE YORK LEEDS HG4 4DT 0.4 MILES 0.4 MILES 0.3 MILES 0.6 MILES 6.4 MILES MASHAM EAST YORKSHIRE
Oakland Park

Contemporary interiors marry perfectly with the traditional feel of the stylish exteriors, finished in stone and warm brick, that strike the perfect balance of design, practicality and comfort.

Images shown are for illustrative purposes only
“ “

The Consumer Code for Home Builders was introduced in April 2010 by the house-building industry. It is there to make the home buying process fairer and more transparent for purchasers and covers every stage of the home-buying process.

Find out more at: www.consumercodeforhomebuilders.com

OAKLAND PARK, THE OAKS, MASHAM, NORTH YORKSHIRE, HG4 4DT 0113 357 1131 STONEBRIDGEHOMES.CO.UK

Turn static files into dynamic content formats.

Create a flipbook
Issuu converts static files into: digital portfolios, online yearbooks, online catalogs, digital photo albums and more. Sign up and create your flipbook.
Oakland Park, Masham by stonebridgehomes - Issuu