Steven Widyatmadja - Portfolio April 2024

Page 1

SKYLINE AN ARCHITECTURE PORTFOLIO STEVEN WIDYATMADJA
COMPETITION SKILLS 2023 2020 2018 2017 Advanced Intermediate EDUCATION May ‘23 (on-going) Aug ‘11 - April ‘16 EXPERIENCE

Columbia University, MS in Advanced Architectural Design

Studio: Tropical High-Rise Co-Housing with Anupama Kundoo, RESET with David Benjamin, Layered Urbanism with Galia Solomonoff (on-going)

Coursework: BIM, Low Carbon Design, Real Estate, Modernism & Vernacularity

Institut Teknologi Bandung, BSc in Architecture

Awarded the most favorite project at the graduation exhibition for the thesis, Bandung Music and Entertainment Center

Airmas Asri, Architect

Pertamina Research and Technology Center, Jakarta, Indonesia

Oct ‘22 - April ‘23

Guided a team of two architects and three draftsmen in the 25,000 m2 laboratory project

Conceived the selected facade concept among three options

Facilitated interdisciplinary coordination meetings with engineering consultants, contractors, and fabricators

Delivered design through city permit, design development, tender, and construction documents in four months

Wisma Sudirman, Jakarta, Indonesia

Nov ‘19 - Mar ‘22

Led a team of three architects and three draftsmen in the 230,000 m2 mixed-use project

Compiled FAR calculations for city submission, granted approval in March 2021

Generated residential unit layouts ranging from 66 m2 to 215 m2

Coordinated with an international design architect firm during the redevelopment

Airmas Asri, Junior Architect

Thamrin Nine, Jakarta, Indonesia

Dec ‘16 - Mar ‘20

Assisted the project manager and a team of six in the 250,000 m2 mixed-use project

Delivered design through design development and construction documents

Generated unit layouts and facade redesign for the residential buildings

Formulated technical and detail solutions to respond to RFIs from general contractors

Created and organized BIM model for owner’s record

Collaborated with an international design architect firm to formulate core configuration

Jakarta Transit Hub Competition, Jakarta, Indonesia

Jun ‘18 - Nov ‘18

Oversaw a team of four junior architects for the the 12,500 m2 transit and office building

Performed building code analysis, compiled area calculation, and designed floor plans

Won the 1st prize in 2018, completed in September 2023

2nd Winner of Kuningan Eco Mall Design Competition by IAI Jawa Barat

Top 10 Finalist of Pitch to Policy: Net Zero Energy Housing by IAI Jawa Barat

1st Winner of Dukuh Atas Transport Hub Competition by IAI Jakarta

1st Winner of Sinar Mas Land Young Architect Competition by Sinar Mas Land

Revit, Sketchup, AutoCAD

Rhino, Grasshopper, Enscape, Photoshop, InDesign, Illustrator

(929)670-4972
linkedin.com/in/stevenwidyatmadja
stvn.wdytmdj@gmail.com

After 13 years of academic and professional I find myself eager to engage deeper with

Modern Interpretation of Vernacular Architecture Tall Building Vertical Urbanism

professional journey in architecture, with issues that captivate my interest:

Building and Urbanism

Sustainability: Low Carbon and Energy

Buildings That

01 Transformation of Transparency Municipal Building Academic Work GSAPP, Fall 2023
02 Regreeneration Jakarta Dukuh Atas Transit Hub Transit Hub & Office Design Competition Professional, 2018 03 Bandung Music and Entertainment Center Concert Hall Academic Work ITB, Fall 2015

That Line the Sky

04 Wisma Sudirman Mixed-Use Professional Work 2019-2022 05 Thamrin Nine Mixed-Use Professional Work 2016-2023
06 North Madison Mixed-Use Academic Work GSAPP, Fall 2023

01 Transformation of Transparency

The studio utilize AI, with platforms such as Midjourney and DALL-E, to generate feedback and inspiration during design iterations. Renderings and sections are generated using PromeAI, with prompt “Large public building, vernacular-modernism” and additional manual collages.

Type & Date Location Instructor Softwares Graduate Advanced Studio, RESET - Fall 2023 Nusantara, East Borneo, Indonesia David Benjamin Rhino, Photoshop, Illustrator, Midjourney, PromeAI, ChatGPT
View from Legislative Building Complex entrance with giant screens broadcasting parliamentary activities from inside,

to provide transparency for the people to see

Constructing a new city amid the global environmental crisis, could be seen as a reckless decision. Indonesia is now in the process of relocating its capital city, built from scratch on top of an industrial forest. Yet, there are opportunities to make amend of the development and transforming the way we build buildings by designing carbon-negative buildings.

Using locally sourced timber from the former forest and developing transparent wood to complement glass will significantly reduce the carbon footprint of the construction.

Symbolized by the use of transparent woods that highlights potential of profound change within any entity, the transformation toward transparency is ideally extended to government practices, starting with the construction of legislative buildings in the new capital city.

FROM FOREST TO FOREST

As the development is located on top of industrial forest, utilizing the wood harvested from the forest could reduce a significant amount of carbon footprint for the construction.

SITE 1: FOREST PROJECT SITE

Harvesting trees from the existing industrial forest located on the project site or in a nearby area

SITE 2: TIMBER PROCESSING Sawmill, refinery, and fabrication plant in the industrial area of the

SITE 5: THE AFTERMATH

After decades, as buildings reach the end of life cycles, all mass timber will undergo recycling stage and repurposed for new constructions, preventing it from decomposing and releasing carbon back into the atmosphere

PLANT fabrication in timber manufacturing the capital city

SITE 3: ON-SITE ASSEMBLY

Assembly and installation of mass-timber products on the project site

Radius to city: 50 km

SITE 4: NEW INDUSTRIAL FOREST

Grow a new industrial forest on the eastern part of the city as planned in the masterplana

Distance to SITE 2: 75 km

TRANSFORMATION

To keep the global temperature rise at 1.5ᵒC during the creation of a new city from scratch on top of

Cross-Laminated Timber

Zero Operational and Embodied Carbon Building Material Substitution

TIMBER CATALOGUE

Solid Translucent

Column, Beam & Diagrid Flooring Cassettes Spandrels

TRANSFORMATION FOR DECARBONIZATION

Embodied carbon comparison between a module of conventional design (concrete, aluminum &

Glass Glass Concrete

Glass

Alumminum Frame

41,8k

58.85% kgCO2e

Transformed design structures and transparent in 58.85% less embodied

CO2 CO2

of industrial forest amid climate crisis, we have to transform the way we design and build buildings:

Transparent Wood

Substitution Transparency in Government Building

Translucent

Transparent

58.85% & glass) and transformed design (timber structures + transparent wood)

Cross-Laminated Timber

Transparent Wood

Transparent Wood

Glass

design with timber transparent wood resulted embodied carbon

Wood Frame

-41,6k 17,3k kgCO2e from until

Shading Screens Louvers Vision Panels

DESIGN CONCEPT & FEATURE

Passive Strategies

LED Screen
The legislative complex plaza, where people can gather and monitor legislative parliementary activities
Batik Screen Shadings Stilt Building Screen Mass-Timber Exoskeleton

PLAN & INTERIORS

Solid

Translucent Wood

Transparent Wood

Working Room

Meeting Room

Open Working Area LED Screen

Service Ground Floor

Ground level atrium with biophilic environment and adequate natural ventilation
area with
sun light and
fans and jalousies
Upper Floor
Working
abundant
cross-ventilation boosted by ceiling
Overall section of the Legislative Building Complex, showing atriums inside and gaps between buildings, and the stilt concept
Gable Inner Open Shading and Solar Exhaust Passive
SECTION & PASSIVE STRATEGIES

Exhaust cavities

Passive strategies to provide wellness to the occupants while reducing the needs for energy consumption

concept as a response to the hilly land site

Gable vent courtyard Open atrium
Shading screen and jalousie Solar chimney
Rendering
by other
Transit Hub entrance, pedestrian plaza, and connecting bridge to the station across

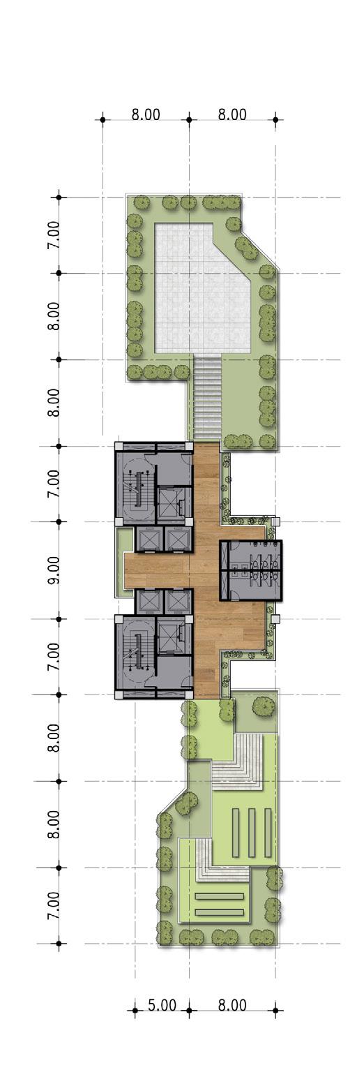
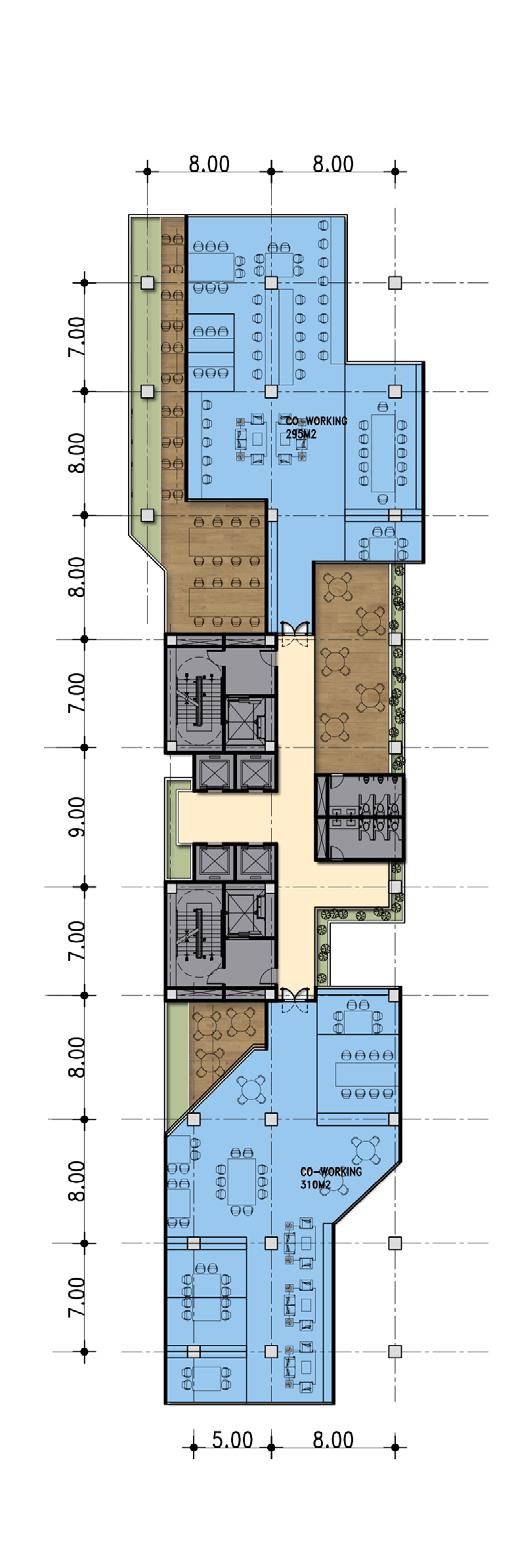
02 Regreeneration Jakarta

Dukuh Atas Transit Hub

Dukuh Atas is an intersection area of by five different transportation modes in the heart of the city. The competition aimed to have a transit building for all passengers in the district. Several crucial issues in this project are connectivity between the building and all transportation nodes, sustainability, and redefine a new identity of a tropical high-rise building. Dukuh Atas Transit Hub is a small first step to regreenerate Jakarta. Type & Date

2,500 m2 (site); 12,500 m2 (building)

Competition Winner, Built Design Architect, Team Leader

Jusuf Setiadi & Ardi Jahya (Principal), Risa Prominda (Director), Cahya Kurniawan (Manager), Janitra Satriani, Adityantari Satriani, Ericko Limatra, Sharima Ahmad, Ihvan Pahrevy

Building code review, urban design guidelines analysis, building mass & programming, plan design, area calculation, sustainabilty concept, building concept diagram, in charge of team schedule and schematic drawings document

Sketchup, AutoCAD, Photoshop, Illustrator

Location Area Status Involvement Contributor Contribution Softwares Professional Design Competition - 2018 Jakarta, Indonesia

BUILDING MASS TRANSFORMATION

Transfer the site boundary to maximize potential of the surrounding context

Base mass extrusion after satisfying site parameters: setback, coverage, area ratio

Raised the ground floor for permeability and dividing the building into 3 zones

Hub Office
Airport Train
Business District
Tower &
Bundaran HI BloraRetailStrip
Retail Strip SudirmanRoad TransitPlaza Site MRTPlaza Commuter BRT BRT BRT BRT MRT
Transit
Retail
Menteng Dukuh Atas
UOB
Thamrin Nine
Purworejo

KendalRetailStrip

Purworejo Retail Strip

Menteng Urban Village

KendalRetailStrip

ConnectingBridge

TOBRT

As a transit building for five public transportation modes in the area - MRT, BRT, LRT, Commuter, and Airport Train - the development is also extended to shape the public realm in the vicinity, connecting all the urban village, commercial strip, and business district, and become the benchmark of transit-oriented development to regreenerate Jakarta

West Sun

Green Strip

Menteng Village

Sudirman Street

East Sun

Ciliwung River

Split mass to establish open void corridor, and solid facade to prevent excessive lighting

Carve mass toward city axis, resulted in balconies that give unique features

Providing green and open area at balconies and facade to supply oxygen to surroundings

Menteng
Urban Village
Site LRT Commuter BRT BRT BRT

BUILDING FEATURES

Dedicated area for traditional market as the building replaces a formerly traditional market building

Void and atrium along the corridor to bring more fresh natural air into the building

Connecting transit hub with train station across and toward LRT station

Green balconies on every floor to provide oxygen boost and biophilic environment Dedicated waiting area for online motorcycle taxi Permeable ground floor to connect surrounding Pedestrian Bridge Multilayer Green Space Motor Taxi Point Void Corridor Sunken Traditional Market Integrated Transit
Level 11 Level 15 Level 4 Level 5 Basement 2 Level 2 Ground
Type & Date Location Area Instructor Softwares Undergraduate Thesis - Fall 2015 Bandung, West Java, Indonesia 23,200 m2 (site); 19,800 m2 (building) Baskoro Tedjo Sketchup, AutoCAD, Photoshop, Illustrator
Bandung Music and Entertainment
as a new regional landmark, with the building shape showcasing translation
03 Bandung Music and Entertainment Center
Center

and creative Bandung music scene

During the 90s, Bandung was famous for its independent and underground music scene. The movement of the community happened in an organic way, on the outskirt area of the city, quite far from the center of the city. As the city grows and change in society throughout the digital era, the music community became spread and scattered.

Taking a site that is adjacent to the central train station, bus terminal, and proposed light rail transit system, the project is intended as a hub where people can see, hear, play, record and discuss anything about music. As the arena aimed to be an international-level venue that could showcase the local identitiy to the world, the building shape takes a modern translation of vernacular architecture of the region as the defining concept.

translation of explorative, expressive,

URBAN CONTEXT

The site is located at the intersection of different transportation modes: intercity train, commuter train, light rail transit and microbuses, 5km away from Bandung Airport.

Visitors and audiences from the city, out of town or even abroad could reach the venue easily. The more visitors from various background come, the more significant and diverse the music could be incubated.

DECONSTRUCT THE SHAPE

Traditional Sundanese roof shape, known as ‘julang ngapak’

Traditional Sundanese roof shape applied on top of the

BUILDING MASS TRANSFORMATION

Dividing the site inside the setback into 3 main zone: main building, parking area, and public plaza.

Mass extrusion of the main building and parking area based on the overall area requirement.

Main building mass based on programs expression of a rectangular

site train station train line light rail station light rail line

the building mass

The deconstruction of traditional Sundanese roof as a translation of explorative, expressive, and creative Bandung music scene

mass adjustment programs to give dynamic rectangular box.

Traditional Sundanese roof shape, known as ‘julang ngapak’ on top of the main building mass.

Deconstruction of the roof shape to give a distinct presence modern vernacularity in the vicinity.

STORY: PROGRAM AND SEQUENCE

With the vision to be a national music incubator space, the programs in the building aim to tempt visitors to be involved in the music world. “Space-event-movement” is the main concept of the sequence, to connect events called music cycle to fill the space. Spaces resulted by movements towards every events are intended to turn visitors into music lovers and then musicians.

ROOF PLAZA OFFICE STUDIO STORES Level STORES PLAY LISTEN Level 2 CINEMA BOOKSTORE PERFORM - BAR PERFORM - HALL PARKING BUS & MANAGEMENT PARKING PLAY - MUSIC STORES RECORD OFFICE BACKSTAGE PERFORM - OUTDOOR

The listen zone is where visitors will listen to music played by music communities and record stores. Curiosity will lead them to try to play musical instrument in the stores and rehearsal studios in the play zone. The recording studio in the record zone provide chances to record the music composition, before performing in the perform zone: restaurants, cafes and bars and, ultimately, the main concert hall.

RECORD

PERFORM

& CAFE BACKSTAGE MAIN HALL PRE-FUNCTION Level 3 Level 6
BAR
& CAFE
-
PARKING PUBLIC PLAZA RESTAURANT PRE-FUNCTION
BAR
LISTEN
RECORD STORES

04 Wisma Sudirman

Type & Date

Professional, 2019 - approved by city council Mar ‘21

Concept - Design Development

Jakarta, Indonesia

20,000 m2 (site); 181,000 m2 (building)

Project Architect

KPF (Initial concept design), Lead 8 (Retail Architect), Ardi Jahya (Principal), Felix Rahardjo (Project Manager), Gilang, Laurents, Stephanie Redevelopment of initial concept due to new building codes and requirements (building mass, facade, plan, configuration), area calculation, interdisciplinary coordination, building permit document

SketchUp, AutoCAD, Revit, Enscape, Photoshop

Softwares
Scope Location Area Involvement Contributor Contribution
Wisma Sudirman in the middle of Sudirman Street, the busiest district in Jakarta

Yes, another mixed-use development in Jakarta. Yes, 250 meter high rental office tower and super expensive apartment building again. Yes, one more shopping mall and exclusivelyupgraded hawker center. Another compact, high traffic and high occupancy development at the already busy business district in the capital city.

Yet, a development in the city with a welcoming entrance plaza at the front of the development is still an oasis in the concrete jungle of Jakarta. No other retail complex directly connected to the Mass Rapit Trasportation station at the basement. No other office and apartment tower with open terraces of this quantity. Wisma Sudirman is a kind of its own. A unique mixed-use development with an engaging public plaza and underground subway interconnection at the heart of the busiest district in Jakarta.

Rendering by other Ground Floor Plan
design to comply
and to response MRT stations and pedestrian movement B9 3 6 B6 B5 13 6
New ground floor introuduces open plaza entrance Initial development that could not proceed as planned due to local building code changes Adjusted
new requirements
New design for podium, office, and residential towers to incorporate new requirements
Low Zone High Zone
Duplex Upper Plan Duplex Lower Plan

Typical Residential Floor Plan (Low-Zone & Mid-Zone)

New residential design offers more typical and symmetrical unit layouts, an evaluation from the client as the previous design was hard to sell due to too many unit type variations, too much inefficient space, and full-length perimeter balconies.

Duplex Residential Floor Plan

The new building design needs to provide parking at the podium levels. This offers a chance to introduce a unique residential concept: duplex units with private parking accessible from the back door. There are three types of duplex units available.

High Zone Low Zone Duplex 1 Bedroom 2 Bedroom 3 Bedroom 4 Bedroom
Photo by Dwiky

05

Thamrin Nine Development - Phase 2

One stop living development in the heart of the main corridor in Jakarta. The phase 2 development consists of a multi-function tower, podium retail, two mid-rise apartments, and 6 stories of basement for parking and retail. The multi-function tower provides space for office, serviced apartment, hotel, roof top restaurant and observation deck. Restaurants, retails, hotel, and sports arena occupy the space in the podium retail. Type & Date Scope

Professional Work - 2016-2023 (Built) Design Development - Working Drawing

Jakarta, Indonesia

18,000 m2 (site phase 2); 160,000 m2 (building)

Design Architect

KPF & WATG (Initial concept design), Setia Bakty (Principal), Irwan Rangkuti (Project Manager), Faris Kota, Agus Supriatna, Indra Nugraha Building code review, facade redesign, interdisciplinary coordination, construction documents, construction supervision, response to RFI, BIM modeling

Softwares

Sketchup, AutoCAD, Revit, Photoshop

Location Area Involvement Contributor Contribution

TOWER-2 & PODIUM RETAIL

Collaborated with the design architect accommodate fire life safety needs based structural, mechanical and electrical engineers, all risers accordingly to obtain sufficient

Low-Zone Office Floor Plan Isometric view of Tower-2 and retail podium Revit model

architect to formulate core configuration of the 160,000

tower. Layout adjustment to based on local building code and building utilities. During interdisciplinary coordination with engineers, the proposed layout prioritized fire stairs location and dimensions, then adjusting sufficient mechanical & electrical calculation and corridor dimension.

Level 4 Retail Floor Plan
m2 office

THE TERRACE

Facade redesign and unit layout development of the 14-story, 16,000 m2 apartment building. Maintained the initial facade design intent while changing the material from stone to GFRC and added the canopy to cover the rooftop garden. Generated unit layouts ranging from 150 m2 3-bedroom to 200 m2 4-bedroom.

Photo by Owner
Typical Residential Floor Plan 3 Bedroom 4 Bedroom
Mixed-Use
the public
NoMad
with
plaza connection and prominent observation deck

06 North Madison Mixed-Use Development

Proposing a new mixed-use development in the hustle and bustle of Midtown, Manhattan, is definitely a challenging situation for both designers and developers. How to survive? How to stand out? How to thrive? This NoMad Mixed-Use development offer a new dimension of retail integration with public realm: multi-level public balconies and alfresco dinings connection with ground level public plaza, roof top restaurant, and an observation deck on top of the hotel building.

Type & Date

Graduate Elective - Re-Thinking BIM, Fall 2023

Joseph Brennan, AIA

North Madison, New York, USA

29,900 ft2 / 2,780 m2 (site); 358,800 ft2 / 33,500 m2 (building)

Eskinder Law, Mingjia Hu, Alison Lam, Sonam Sherpa

Assign schedule & task to team member, site & zoning analysis, building code review, programmatic & building mass concept, plan, tower facade development

Softwares

Revit, Rhino, Grasshopper, Photoshop, Enscape, Illustrator

Instructor Location Area Contributor Contribution

Conventional retail development only at ground level

Multi-layered retail with open space to attract more crowd and provide circulation to upper floors

Active frontage as a response to the plaza

Seamless public realm connection from the ground level to the dining balconies at level 2

BUILDING MASS TRANSFORMATION

Setbacks of 10’, 15’ and 20’, with 2,000 ft2 of public plaza to gain FAR bonus

Podium height limit and sky exposure on both narrow and wide street as development boundaries

Mass extrusion to achieve max floor area, with tower located on the wide street

85’

Seamlessconnection

Various

in

Carved the podium to provide public plaza connection and balconies on the tower Tweak mass on the top toward the south-west for restaurant and viewing deck programs building that includes retail, hotel, office, restaurant, and open public space Retail Restaurant Hotel Office Interactive dining balconies at upper floors
Public Plaza
Retail Retail Retail Retail Office Lobby Hotel Lobby Service Inner Court Food court
Restaurant Alfresco Public Plaza 29th st 30th st Kitchen Restaurant Food court stall
Level Public Plaza and L2 Alfresco Connection Ground
Broadway 29th st 30th st
Broadway
Ground

Contemporary interpretation of building facades around the site as a response for sun exposure at both the east and west side

Overall Facade of the Building
A Level 32 410' - 0" Level 33 423' - 0" Level 34 436' - 0" 1' - 4" 10' 8" 0' 8" 10' 8" 2' 4" 2' 4" 10' 8" 2' 4" 1' 2" 1' 2" 1' 2" 1'2" 1' 2" 1' 2" 3' - 4" 1' - 8"

Turn static files into dynamic content formats.

Create a flipbook
Issuu converts static files into: digital portfolios, online yearbooks, online catalogs, digital photo albums and more. Sign up and create your flipbook.