CELLULE BAGNO D’OCCASIONE





![]()









• H = 72+2250+77mm
• HTOT = 2399mm
• Superficie:3,8mq
STRUTTURAE RIVESTIMENTI
• Base:in calcestruzzo
• Paretiesoffitto:in profili di acciaio epannelli in cartongesso
• Pavimento:piastrellein gresporcellanato a finitura opaca
30x30cm colore Botticino Reale–CAESAR/ Ambienti
• Rivestimentiverticali:piastrellein monocottura colore bianco
25x 30cm -Marazzi/ Smile;
• Rivestimentomensola:in granito neroassoluto
SANITARIE DOTAZIONI
• Vetrovasca:Novellini/Aurora 1
• Sanitari:lavabo in vitreous-china Roca /Mohave750; wcin vitreous-china Roca/ Laura; vasca in acciaio verniciato KALDEWEI
/ SaniformPlus
• Rubinetteria:miscelatorelavabo Grohe /Eurosmart;miscelatore vasca Grohe/ Eurosmart;soffione Grohe / TempestaDuo
• Accessori:armadietto a dueante a specchio
• Maniglionidisicurezzavasca:INDA
• Impiantoidraulico:in parallelo con collettori etubazioni in polietilenereticolareinguainato esfilabile Pex/AL/PE
• Impiantoelettrico:presarasoio Volex240w; termoarredo elettricoin tubi in acciaio cromati - Agis / Dibad 400 w
• Illuminazione: faretti ad incasso
• Impiantomeccanico: valvola di aspirazione Halton /URH







SPECIFICHE TECNICHE
SPECIFICHETECNICHE
• H = 72+2250+77mm
• HTOT = 2399mm
• Superficie:3,8mq
STRUTTURAE RIVESTIMENTI
• Base:in calcestruzzo
• Paretiesoffitto:in profili di acciaio epannelli in cartongesso
• Pavimento:piastrellein gresporcellanato a finitura opaca 30x30cm colore Botticino Reale–CAESAR/ Ambienti
• Rivestimenti verticali:piastrellein monocottura colorebianco 25x 30cm -Marazzi/ Smile;
• Rivestimentomensola:in granito neroassoluto
SANITARIE DOTAZIONI
• Vetrovasca:Novellini/Aurora 1
• Sanitari:lavabo in vitreous-china Roca /Mohave750; wcin vitreous-china Roca/ Laura; vasca in acciaio verniciato KALDEWEI
/ SaniformPlus
• Rubinetteria:miscelatorelavabo Grohe /Eurosmart;miscelatore vasca Grohe/ Eurosmart;soffione Grohe / TempestaDuo
• Accessori:armadietto a dueante a specchio
• Maniglioni di sicurezzavasca:INDA
IMPIANTI
• Impiantoidraulico:in parallelo con collettori etubazioni in polietilenereticolareinguainato esfilabile Pex/AL/PE
• Impiantoelettrico:presarasoio Volex240w; termoarredo elettricoin tubi in acciaio cromati - Agis / Dibad 400 w
• Illuminazione: faretti ad incasso
• Impiantomeccanico:valvola di aspirazione Halton /URH





SPECIFICHE TECNICHE
SPECIFICHETECNICHE
• H =72 + 2250+77 mm
• HTOT =2399mm
• Superficie:3,4mq
STRUTTURAE RIVESTIMENTI
• Base:incalcestruzzo
• Paretiesoffitto: inprofili diacciaioe pannelliincartongesso
• Pavimento:piastrelle ingres porcellanatoafinituraopaca 30x30cmcoloreBalmoral– CAESAR/ Ambienti
• Rivestimentiverticali:piastrelle inmonocotturacolorebeige 25x 33 cm -Marazzi/ Glamour;
• Rivestimentomensola:ingranitoneroassoluto
SANITARIE DOTAZIONI
• Boxdoccia:Novellini/ StarG84
• Sanitari: lavaboin vitreous-chinaLaufen/ Pro; wcinvitreouschinaRoca/ Laura;piattodocciaAxa
• Rubinetteria:miscelatorelavaboGrohe/ Eurosmart; miscelatoredocciaGrohe/ Grohetermconvalvola termostatica;soffioneGrohe/ Tempesta Duo
• Accessori:armadiettoadueante aspecchio
• Impiantoidraulico: inparalleloconcollettorie tubazioniin polietilenereticolareinguainatoe sfilabilePex/AL/PE
• Impiantoelettrico:presarasoioVolex240w; termoarredo elettrico intubiinacciaiocromati-Agis/ Dibad400w
• Illuminazione:faretti adincasso
• Impiantomeccanico:valvoladi aspirazioneHalton/URH



SPECIFICHETECNICHE
• H =110 +2400+50mm
• HTOT =2560mm
• Pesocellula:2420kg
• Superficie:3,5mq
STRUTTURAE RIVESTIMENTI
• Struttura: base,pareti e soffittoin calcestruzzo
• Pavimento:piastrelle ingres porcellanato20x20cm– Marazzi
/ Sistem T Le Cromie;zonadocciainpiastrelle inmonocottura
10x10cm – MarazziCCittà grip R11
• Rivestimentiverticali:piastrelle inmonocottura20x20cm
MarazziSistem C Città coninserti colorati
SANITARIE DOTAZIONI
• Sanitari: PozziGinori/ Colibrì
• Rubinetteria:Rubinetterie Giampieri
IMPIANTI
• Impiantoidraulico: inparalleloconcollettorie tubazioniin polietilenereticolaremultistrato – TECE
• Impiantoelettrico:frutti Vimar/ Plana
• Illuminazione:plafonieraspecchioDisano/ Rigo
• Impiantomeccanico:valvoladi aspirazioneD.100mm -Lindab






SPECIFICHE TECNICHE
SPECIFICHETECNICHE
• H = 100 + 2270+77 mm
• HTOT = 2447mm
• Peso analitico cellulain acciaio epannelli: kg 2950
• Superficie:4,4 mq
STRUTTURAE RIVESTIMENTI
• Base:in calcestruzzo
STRUTTURA E RIVESTIMENTI
• Paretiesoffitto:in profili di acciaio epannelli termoisolantie fonoisolanti in gessofibra – Fermacell;controsoffitto removibilein acciaio verniciato.
• Pavimento:piastrellein gresporcellanato 61,5x61,5 cm – Energie Ker
• Rivestimentiverticali:piastrellein gres61,5x61,5 cm – EnergieKer; fascia decorativa in piastrellein gres15x61,5 cm – EnergieKer
SANITARIE DOTAZIONI

• Toplavabo:in Starkryl– ClassicWhite
• Sanitari: WCin vitreous-china Vitra /Metropolecolore bianco; vasca ReinassanceBaths /Cultura
• Rubinetteria: miscelatorelavabo ad incasso Mariani/ Polar; miscelatorevasca ad incasso OMBG/ Kubik;
IMPIANTI
• Impiantoidraulico:in parallelo con collettori;tubazioni in polietilenereticolareisolato - Valsir /Pexal
• Apparecchidiilluminazione: faretti Ledad incasso – Aurora; strisceLEDdecorativecontrosoffitto DELCO
• Impiantotermico:tappeto elettricoscaldante a pavimento ed a parete – EBECO/ EBTherm
• Impiantomeccanico: valvola di estrazionearia – Lindab /Airy






SPECIFICHE TECNICHE
SPECIFICHETECNICHE
• H = 100 + 2300+77 mm
• HTOT = 2477mm
• Peso analitico cellulain acciaio epannelli: kg 3250
• Superficie:5,5 mq
STRUTTURAE RIVESTIMENTI
• Base:in calcestruzzo
• Paretiesoffitto:in profili di acciaio epannelli termoisolantie fonoisolanti in gessofibra – Fermacell;controsoffitto removibilein acciaio verniciato.
• Pavimento:piastrellein gresporcellanato 61,5x61,5 cm – Energie Ker
• Rivestimenti verticali:piastrellein gres61,5x61,5 cm – EnergieKer; fascia decorativa in piastrellein gres15x61,5 cm – EnergieKer
SANITARIE DOTAZIONI

• Toplavabo:in Starkryl– ClassicWhite
• Sanitari: WCin vitreous-china Vitra /Metropolecolore bianco; vasca ReinassanceBaths /Cultura
• Rubinetteria: miscelatorelavabo ad incasso Mariani/ Polar; miscelatorevasca ad incasso OMBG/ Kubik;
IMPIANTI
• Impiantoidraulico:in parallelo con collettori;tubazioni in polietilenereticolareisolato - Valsir /Pexal
• Apparecchidiilluminazione: faretti Ledad incasso – Aurora; strisceLEDdecorativecontrosoffitto DELCO
• Impiantotermico:tappeto elettricoscaldante a pavimento ed a parete – EBECO/ EBTherm
• Impiantomeccanico: valvola di estrazionearia – Lindab /Airy







SPECIFICHE TECNICHE
SPECIFICHETECNICHE
• H = 100+2155+50mm
• HTOT = 2305mm
• Peso analitico cellulain calcestruzzo:kg 2300
• Superficie:2,13mq
STRUTTURAE RIVESTIMENTI
• Struttura:base, paretiesoffitto in calcestruzzo
• Pavimento:piastrellein monocottura antiscivolo 10x10 cmMarazzi/ QuartieriGripLipsia
• Rivestimenti verticali:piastrellecucina in monocottura i20x20 cm Marazzi/Panda colorebianco;
DOTAZIONI
• Cucina integrata: su misura;in laminato Duropal 18mmcolore U1559VV Off Yellow;piano lavoro in laminato Duropal 18 mm colore SlateGrey
• Elettrodomestici:piano cottura Whirlpool /AKT310 3500W; frigoriferoventilato Whirlpool /ARG;cappa con filtro carboni attivi Whirlpool /AKR;forno a microonde800 W - IGNIS/ AMT
• Lavello:Franke / AMX610
• Rubinetteria: miscelatorelavabo Franke /Turchese;
IMPIANTI
• Impiantoidraulico:in parallelo con collettori;tubazioni in polietilenereticolareisolato
• Impiantoelettrico:completo
• Illuminazione: plafoniera a soffitto Design-Lighting
• Impiantomeccanico: valvola di estrazionearia Halton / FRHD.100





SPECIFICHE TECNICHE
SPECIFICHETECNICHE
• H = 70+2590+50mm
• HTOT = 2710mm
• Peso analitico cellulain calcestruzzo:kg 4900
• Superficie:5,4 mq
STRUTTURAE RIVESTIMENTI
• Struttura:base, paretiesoffitto in calcestruzzo
• Pavimento:piastrellein gresporcellanato 20x20cm - MARAZZI
• Rivestimenti verticali:piastrellein gresporcellanato 20x 20cm
- Marazzi






SPECIFICHE TECNICHE
SPECIFICHETECNICHE
H = 60+2400+40mm
HTOT = 2500mm
Peso analitico cellulain calcestruzzo:kg 3700
Superficie:3,4mq
Struttura:base, paretiesoffitto in calcestruzzo
Pavimento:piastrellein gresporcellanato 10x10 cmMARAZZI/ QuartieriGripcolore Lipsia MD3U
Rivestimenti verticali:piastrelle20x 20cm -Marazzi/Panda
Colourscolore light greysambuco MEDJ;
Rivestimentomensola:in marmodi carrarabianco
Boxdoccia:Novellini/Star2P
Sanitari:lavabo ARMITAGESHANKS/ PORTMAN500; wc ARMITAGE
SHANKS/ TIFFANY; piatto doccia HATRIA/ DROP
Rubinetteria:miscelatorelavabo NOBILI/MistralJunior;miscelatore
doccia NOBILIcon valvola termostatica;soffione NOBILIref.136
Impiantoidraulico:in parallelo con collettori etubazioni in polietilenereticolareinguainato esfilabile
Impiantoelettrico:presarasoio Crabtreee;termoarredoelettrico CONSORT/TRJ4040 W
Illuminazione: neon specchio – GeneralElectric/Npack npw
Impiantomeccanico: valvola di aspirazione Halton /FHR






SPECIFICHE TECNICHE
SPECIFICHETECNICHE
• H = 65+ 2395+50 mm
• HTOT = 2510mm
• Peso analitico cellulain calcestruzzo:kg 3700
• Superficie:4,15 mq
• Struttura:base, paretiesoffitto in calcestruzzo
• Pavimento:piastrellein modulmarmo 30x30cm - Botticino levigato
• Rivestimenti verticali:piastrellein modulmarmo 30x30cmBotticino levigato eStucco Antico Sikkens
• TopLavabo:piano in marmo Botticino montato su mobiletto in legno noce einsertiinox

• TopLavabo:piano in marmo Botticino montato su mobiletto in legno noce einsertiinox
• Sanitari: Dolomite/Agordo eDolomite/ALA; vasca Roca / Continental
• Rubinetteria:Hansgrohe / Talis S
• Impiantoidraulico:in seriecon tubazioni in multistrato PEX/AL/PE TECE
• Impiantoelettrico:frutti BTicino/Living International
• Illuminazione: faretti ad incasso - Reggiani
• Impiantotermico:radiatore ad acqua in acciaio cromatoGiampiere




SPECIFICHE TECNICHE
SPECIFICHETECNICHE
• H = 65+ 2395+50 mm
• HTOT = 2510mm
• Peso analitico cellulain calcestruzzo:kg 3700
• Superficie:2,2mq
STRUTTURAE RIVESTIMENTI
• Struttura:base, paretiesoffitto in calcestruzzo
• Pavimento:piastrellein modulmarmo 30x30cm - Botticino levigato
• Rivestimentiverticali:piastrellein modulmarmo 30x30cmBotticino levigato eStucco Antico Sikkens
SANITARIE DOTAZIONI

• TopLavabo:piano in marmo Botticino montato su mobiletto in legno noce einsertiinox
• Sanitari: Dolomite/Agordo eDolomite/ALA; vasca Roca / Continental
• Rubinetteria:Hansgrohe / Talis S
IMPIANTI
• Impiantoidraulico:in seriecon tubazioni in multistrato PEX/AL/PETECE
• Impiantoelettrico:frutti BTicino/Living International
• Illuminazione: faretti ad incasso - Reggiani
• Impiantotermico:radiatore ad acqua in acciaio cromatoGiampiere




1 PZ DISPONIBILE

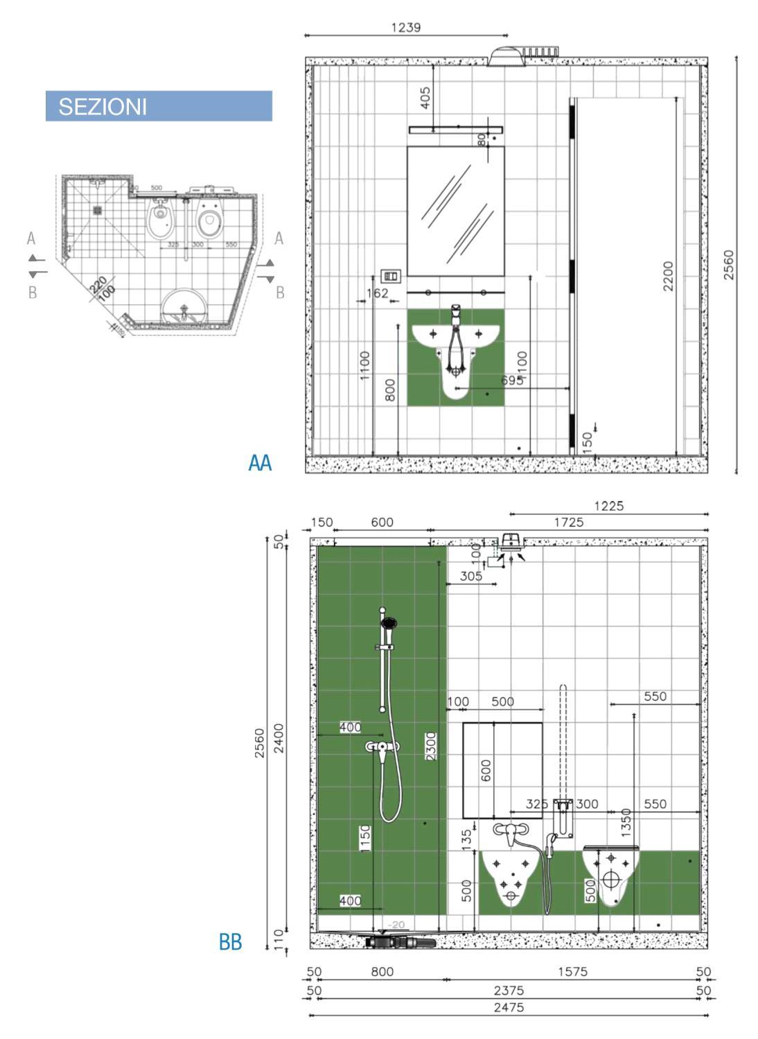
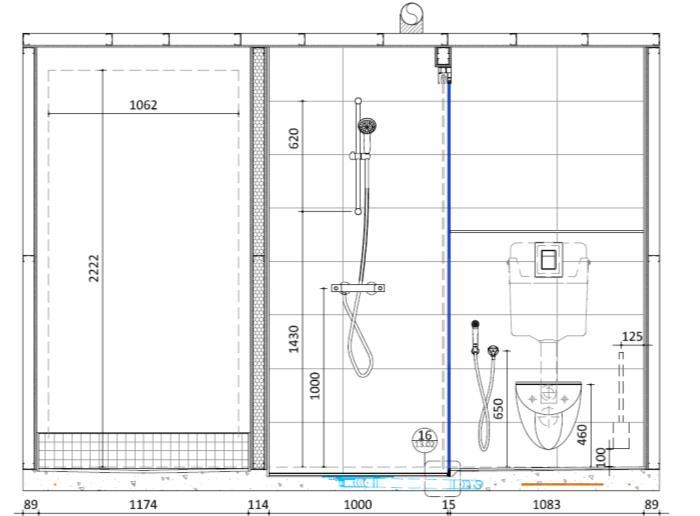
SEZIONI



SPECIFICHE TECNICHE
SPECIFICHETECNICHE
• H = 50+ 2260+40mm
• HTOT = 2350mm
• Peso analitico cellulain calcestruzzo:kg 2310
• Superficie:4,74 mq
STRUTTURAE RIVESTIMENTI
• Struttura:base, paretiesoffitto in calcestruzzo
• Pavimento:parquet flottante – Tarkett/Viva colore Noyer
• Rivestimentiverticali:paretedoccia in ceramica20x20cm –Marazzi/ Cittàcolore cordoba.
SANITARIE DOTAZIONI
• Porte:in alluminio – Mondial Infissi/ 2005colore bianco
• TopLavabo:in marmobianco Carrara
• Sanitari:lavabo Hatria / Caterine;wcHatria /Erika;piatto doccia Hatria /Drop
• Rubinetteria: miscelatorelavabo Nobili /Mania ; miscelatore doccia Nobili /MistralJunior;colonna doccia Bossini/Sincro
• Portadoccia:in vetro- Novellini/Star2P
IMPIANTI
• Impiantoidraulico:in parallelo con collettori;tubazioni in polietilenereticolareisolato
• Impiantoelettrico:frutti B-Ticino/ Matrix
• Illuminazione: faretti ad incasso – Fosnova /Deimos;applique IGuzzini/Simpla
• Impiantomeccanico: valvola di estrazionearia FranceAirBPF2 d.100



1

SEZIONI



SPECIFICHE TECNICHE
SPECIFICHETECNICHE
• H= 130+2250+50 mm
• HTOT = 2430mm
• Peso analitico cellulain calcestruzzo: kg 5200
• Superficie:5,6 mq
• Struttura:base, paretiesoffitto in calcestruzzo
• Pavimento:piastrellein modulmarmo
• Rivestimenti verticali:piastrellein modulmarmo 30x30cm Beige Chiaro – Silva
• TopLavabo: in marmo- Rojo Alicante con veletta arrotondata in radica Amber Burl
• Sanitari:lavabo sottopiano - Dolomite/Agordo; WcAXA / OneLufen/ PRO;vasca Kaldewey
• Rubinetteria:Nobili /Spring
IMPIANTI
• Impiantoidraulico:in seriecon tubazioni in multistrato PEX/AL/PE
TECE
• Impiantoelettrico:presarasoio – Crabtreee;altoparlanteMonacor/ MC6EF
• Illuminazione: luci led di cortesiasotto top lavabo epannello vasca; faretti incasso - Reggiani IP65
• Impiantotermico:riscaldamento elettricoa pavimentoElettrogamma/ EG
• Impiantomeccanico: valvola di aspirazioneD.125 mm - Halton / ULA





SPECIFICHE TECNICHE
SPECIFICHETECNICHE
• H = 105 + 2300+50 mm
• HTOT = 2455mm
• Peso analitico cellulain calcestruzzo: kg 3950
• Superficie:5,3 mq
• Struttura:base, paretiesoffitto in calcestruzzo
• Pavimento:piastrellein granito verde30x30cm; pavimento decorativo doccia in piastrelledi granito verdeebianco cachemire15x15 cm
• Rivestimentiverticali:piastrellein granito bianco cachemire 30x30cm
• Boxdoccia:Novellini/Star
• TopLavabo:in granito nero
• Sanitari:lavabo Flaminia / TwinSet52;wcRoca /Laura; vasca Kaldewei/Saniform Plus
• Rubinetteria:miscelatori Nobili/ Plus ; soffione doccia Nobili
• Impiantoidraulico:in parallelocon collettori etubazioni in polietilenereticolare - Uponor
• Impiantoelettrico:frutti Bticino; scaldasalviette elettricoa paretein acciao cromato
• Illuminazione: faretti incasso – Fosnova / Deimos;
• Impiantomeccanico: valvola di aspirazioneD.125 mm







SPECIFICHE TECNICHE
• H = 80 + 2227 + 77 mm
• HTOT = 2384 mm
• Peso analitico cellula in calcestruzzo: kg 2350
• Superficie: 5,7 mq
• Base: in calcestruzzo
• Paretiesoffitto: in profili di acciaio e pannelli termoisolanti e fonoisolanti ingessofibra – Fermacell
• Pavimento: piastrelle in monocottura antiscivolo 10x10 cm Marazzi / Sistem-C Grip color Grey;
• Rivestimenti verticali: piastrelle in monocottura 20x20 cm Marazzi/ Sistem-C Città colore White; parete doccia in piastrelle in monocottura Marazzi/ Easy Wengé 10x10 cm preinciso
• Paretidoccia: in vetro INR / Linc Angel
• Pilettadoccia: PURUS / Våke a doppio ingresso, doccia e lavatrice, con griglia removibile in acciaio inox;
• Sanitari: lavabo semincassato in vitreuschina bianca VEDUM / Basic 650; WC a parete Ifö / Sign;
• Rubinetteria: miscelatore lavabo GROHE / Eurosmart; miscelatore doccia Grohe / Groheterm; Shower column: Grohe / New Tempesta
• Impugnaturedisicurezza: maniglioni cromati in acciaio inox - INDA
• Mobili: armadietto a specchio e mobile lavabo VEDUM / Basic 650 colore bianco; credenza e mensole di copertura lavatrice e asciugatrice VEDUM / Frida colore bianco;
• Impiantoidraulico: in parallelo con collettori; tubazioni in polietilene reticolare inguainate e sfilabili – LK Systems
• Impiantoelettrico: interruttori e prese ELKO
• Apparecchidiilluminazione: faretti – ELKO / HIDE-A-LIGHT; striscia armadietto – Elektroskandia / Kitty
• Impiantotermico: cavi riscaldanti a pavimento – EBECO / Multiflex con termostato - EB/Therm 205; scaldasalviette Pax / Elliot
• Impiantomeccanico: valvola estrazione aria D 100 mm






SPECIFICHE TECNICHE
SPECIFICHETECNICHE
• H = 135 + 2360 + 77 mm
• HTOT= 2572 mm
• Superficie: 3,3 mq
• Base: in calcestruzzo
• Paretiesoffitto: in profili di acciaio e pannelli termoisolanti e fonoisolanti ingessofibra – Fermacell
• Pavimento: Piastrelle in gres porcellanato effetto pietra MIRAGE / Na.Me colore Bone Travertine 30x60 cm;
• Rivestimentiverticali: piastrelle in gres porcellanato effetto pietra MIRAGE / Na.Me colore Bone Travertine 30x60 cm
• Portadoccia: in vetro satinato 8 mm
• Pilettadoccia: PURUS con griglia removibile in acciaio inox;
• Sanitari: top lavabo e lavabo solid surface acrilico Tecnoril bianco; WC a parete Grohe / Bau ceramic;
• Topnicchiawc: solid surface acrilico Tecnoril bianco;
• Rubinetteria: miscelatore lavabo GROHE / Eurosmart; miscelatore termostatico doccia Grohe / Grohterm1000 Cosmopolitan M; set doccia: Grohe / Tempesta 100; doccino bidet Grohe / Tempesta F
• Mobili: mobile sottolavabo su misura laminato Legnopan / V100 Dark Oak- CERASA;
• Accessori: specchio make up fissato a muro retroilluminato a LEDSMEDBO
• Impiantoidraulico: in parallelo con collettori; tubazioni in polietilene reticolare inguainate e sfilabili – LK Systems
• Apparecchidiilluminazione: faretti a soffitto Philips / Coreline
• Impiantotermico: scaldasalviette elettrico Svedbergs / ERICA 300 W; riscaldamento elettrico a pavimento LK System
• Impiantomeccanico: valvola estrazione aria D 125 mm – Climecon / VIP






SPECIFICHE TECNICHE
SPECIFICHETECNICHE
• H = 135 + 2350 + 77
• HTOT= 2562 mm
• Superficie: 5,5 mq
STRUTTURAE RIVESTIMENTI
• Base: in calcestruzzo
• Paretiesoffitto: in profili di acciaioe pannellitermoisolanti e fonoisolanti ingessofibra – Fermacell
• Pavimento:Piastrelle in gres porcellanatoeffetto pietraMIRAGE/ Na.Me colore Bone Travertine 30x60 cm; zonasauna in piastrelle in gres porcellanatoeffetto pietraMIRAGE/ Na.mecolore Bon eTravertino mosaico 5x5 cm
• Rivestimentiverticali: piastrelle in gres porcellanatoeffetto pietra MIRAGE/ Na.Me colore Bone Travertine 30x60 cm
SANITARIE DOTAZIONI
• Portadoccia: in vetro satinato 8 mm
• Piletta: pilettadocciaPURUScon grigliaremovibile in acciaioinox; pilettasauna PURUS
• Sanitari: top lavaboe lavabo solid surface acrilicoTecnoril bianco;WC a parete Grohe / Bau ceramic;
• Topnicchiawc: solid surface acrilicoTecnoril bianco;
• Rubinetteria: miscelatore lavaboGROHE/ Eurosmart; miscelatore docciaGrohe/Grohterm1000 Cosmopolitan M; Shower column: Grohe / Tempesta 100
• Mobili: mobile sottolavabo su misura laminatoLegnopan/ V100 Dark Oak-CERASA;
• Sauna: Saunatalo
IMPIANTI
• Impiantoidraulico:in parallelocon collettori; tubazioniin polietilene reticolareinguainatee sfilabili – LK Systems
• Apparecchidiilluminazione:faretti a soffitto Philips / Coreline;led sauna Saas Instruments / HighlineSauna
• Impiantotermico: scaldasalvietteelettrico Svedbergs / ERICA300 W; riscaldamentoelettrico a pavimento LK System
• Impiantomeccanico:valvola estrazione aria D 125 mm – Climecon / VIP









SPECIFICHE TECNICHE
• H = 135 + 2350 + 77 mm
• HTOT= 2562 mm
• Peso analiticocellulain calcestruzzo: kg 4103
• Superficie: 5,5 mq
• Base: in calcestruzzo
• Paretiesoffitto: in profili di acciaioe pannellitermoisolanti e fonoisolanti ingessofibra – Fermacell
• Pavimento:Piastrelle in gres porcellanatoeffetto pietraMIRAGE/ Na.Me colore Bone Travertine 30x60 cm; zonasauna in piastrelle in gres porcellanatoeffetto pietraMIRAGE/ Na.mecolore BoneTravertino mosaico 5x5 cm
• Rivestimentiverticali: piastrelle in gres porcellanatoeffetto pietra MIRAGE/ Na.Me colore Bone Travertine 30x60 cm
• Portadoccia: in vetro satinato 8 mm
• Pilette: pilettadocciaPURUScon grigliaremovibile in acciaioinox; pilettasauna PURUS
• Sanitari: top lavaboe lavabo solid surface acrilicoTecnoril bianco;WC a parete Grohe / Bau ceramic;
• Topnicchiawc: solid surface acrilicoTecnoril bianco;
• Rubinetteria: miscelatore lavaboGROHE/ Eurosmart; miscelatore docciaGrohe/ Grohterm1000 Cosmopolitan M; Shower column: Grohe/Tempesta 100
• Mobili: mobile sottolavabo su misura laminatoLegnopan/ V100 Dark Oak-CERASA;
• Sauna: Saunatalo
• Impiantoidraulico:in parallelocon collettori; tubazioniin polietilene reticolareinguainatee sfilabili – LK Systems
• Apparecchidiilluminazione:faretti a soffitto Philips / Coreline;led sauna Saas Instruments / HighlineSauna
• Impiantotermico: scaldasalvietteelettrico Svedbergs / ERICA300 W; riscaldamentoelettrico a pavimento LK System
• Impiantomeccanico:valvola estrazione aria D 125 mm – Climecon / VIP
StercheleGroupdisponea magazzino diuncertonumerodiCellule Bagno d'occasione:CelluleCampione realizzatein occasionedifiere, rimanenzedi progettimodificatidopo l’iniziodellaproduzioneetc…
Per richiedereil prezzooavere maggioriinformazionisulle Cellule Bagnodisponibiliinmagazzino, scriverea comunicazione@sterchelegroup.com riportandoi codiciidentificatividei modellidesideratiriportatisul catalogo.

+39 0445 561083 www.sterchelegroup.com info@sterchelegroup.com
