
Within the heart of the popular Chisholm Park Estate


Built by Peter Bowen Homes in 2022, 7 Dunnart Court is an exceptional property suitable for establishing families or those looking to downscale from larger homes.
Positioned on a low maintenance 516m2(approx.) allotment, this immaculate home sits within the heart of the popular Chisholm Park Estate and offers fantastic entertainment and modern living opportunities, all within arm’s reach of local amenities.
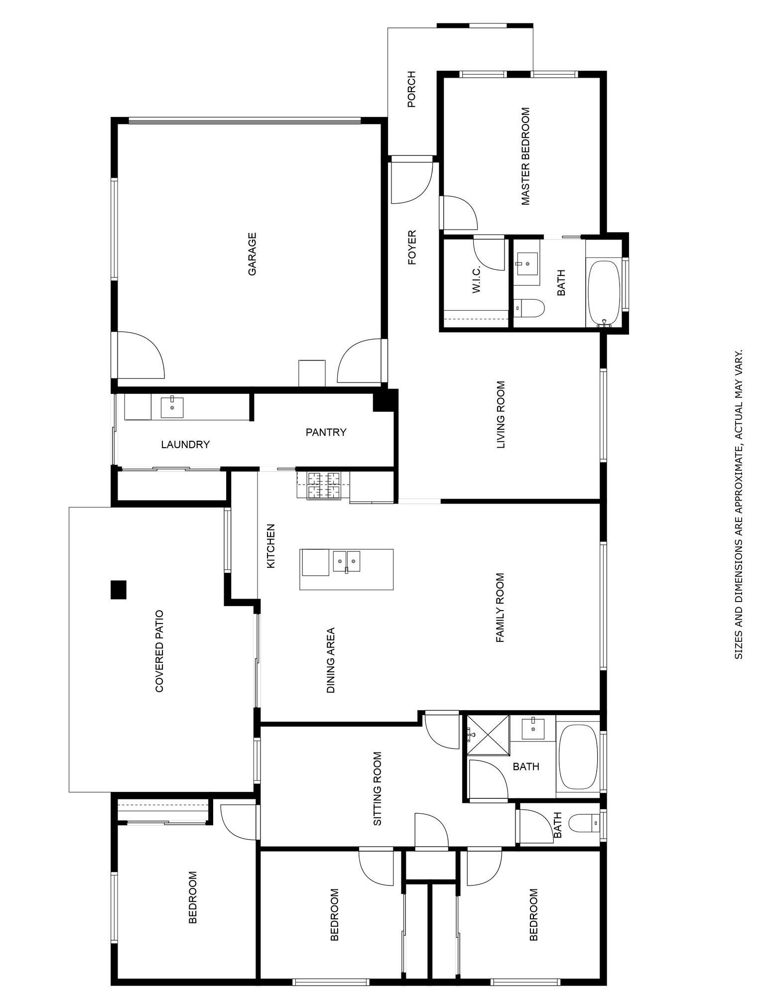
The home comprises four spacious bedrooms with the master bedroom located at the front of the home and featuring a walk-in robe and full ensuite. Bedrooms two, three and four include robes and are serviced by the family bathroom and separate toilet.
A sitting room flowing off the bedrooms is the perfect space for a children’s rumpus area or quiet retreat. An additional living room acts as a home theatre, or parents retreat if desired.
The kitchen is generously sized and features stone benches, quality appliances and a large island bench, as well as a walk-in pantry/laundry. The open plan design allows for easy dining and living with glass sliding doors off the space, providing easy access to the outdoor alfresco area, ideal for entertaining year-round.
Car accommodation is taken care of with a double lock up garage, with the added convenience of internal access for security and practicality.
Modern conveniences include, ducted gas heating and evaporative cooling ensuring year-round comfort.
This property presents an outstanding opportunity for a low maintenance home located within moments of numerous schools, shopping centre, restaurants and walking tracks.
Features:
• Built in 2022 by Peter Bowen Homes
• Four bedrooms
• Two bathrooms
• Three living spaces
• Tinted front bedroom windows
• Luxurious carpet throughout
• Undercover alfresco
• Convenient pathway around the home
• Double garage, with internal access
ADDRESS: 7 Dunnart Court, Thurgoona
Rates: $1,373 pa (approx.)
4 Bedrooms
3 Living Spaces
2 Bathrooms
Double Garage