

Meticulously restored Victorian residence

![]()


Meticulously restored Victorian residence






Positioned in one of Albury’s most historic precincts, 661 Young Street offers a rare opportunity to acquire a meticulously restored Victorian residence, originally built in 1894. This grand home seamlessly merges heritage charm with high-end modern updates, creating a lifestyle of beauty and ease across a generous 1,048sqm block.
Steeped in character, the home features soaring ceilings, timber floors, pressed metal accents and charming bay windows. Each bay window is double-glazed and fitted with comfort glass for superior insulation and acoustic quiet. These thoughtful inclusions enhance the tranquillity and energy efficiency of the home, making it as comfortable as it is striking.
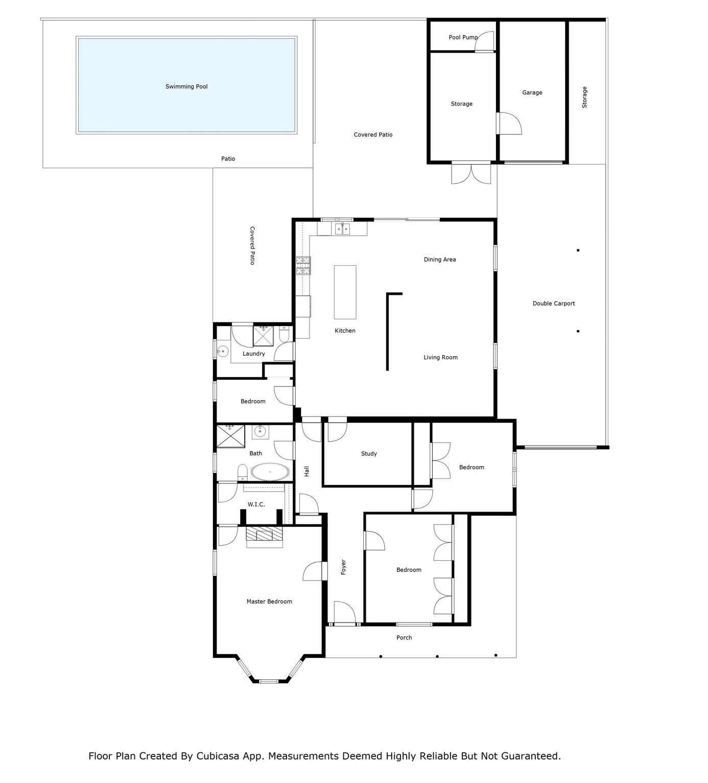
Accommodation includes four bedrooms, with the stately master boasting a walk-in robe and luxurious bathroom with claw foot bath, a nod to the heritage of the home. The second, third and fourth bedrooms offer built-in cupboards, and are serviced by a second bathroom. A versatile study presents further flexibility—ideal as a teen retreat, games room, or quiet work-from-home space.
The heart of the home is a beautifully renovated, high-spec kitchen with premium appliances and an elegant finish and skylight. Separate dining and living zones create flexibility to every day living.
Outside, enjoy an undercover alfresco area overlooking the stunning in-ground pool, surrounded by thoughtfully landscaped gardens designed for privacy and seasonal colour. Established plantings add texture and depth to the outdoor space, ideal for summer entertaining or relaxing in a peaceful setting.
Additional features include solar panels for energy efficiency, a self-cleaning pool with automatic chemical dosing and solar heating. Ample off-street parking and expansive grounds make this property suitable for growing families or those who love to entertain.
Located just moments from Albury’s vibrant Dean Street precinct, excellent schools, parklands and the Botanical Gardens, Tweed Villa offers all the benefits of central living wrapped in the timeless elegance of a bygone era.
ADDRESS: 661 Young Street, Albury
Additional Features:
- 1,048 sqm allotment
- Four bedrooms, plus study
- Gas ducted heating and split system (heating and cooling) units throughout.
- Outdoor alfresco
- Inground pool
- Car accommodation for up to three vehicles, plus separate workshop.
- Fully automated irrigation system.
Expressions Of Interest close Tuesday 26th August at 12noon
Land Size: 1,048m2 (approx.)
Rates: $3,696.15 p.a. (approx.)




