
Gracefully situated in an elevated location


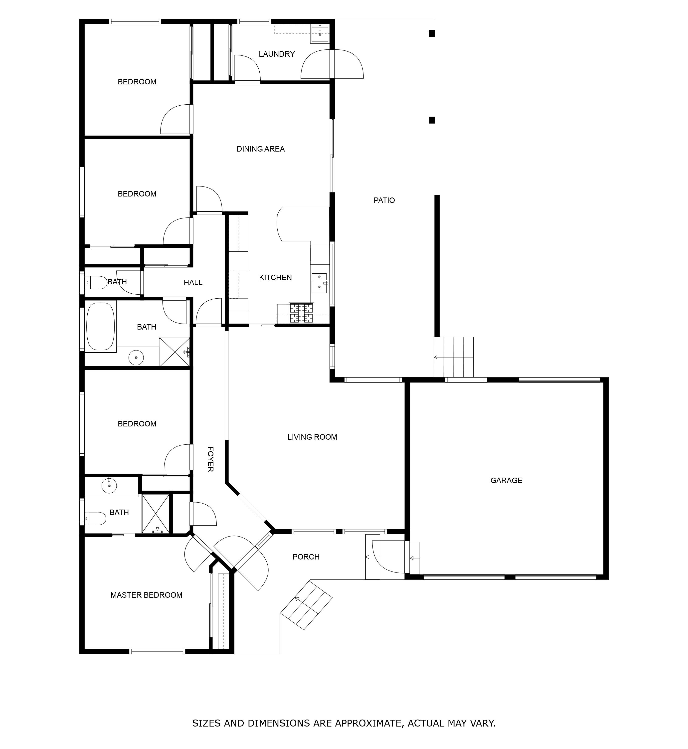
Experience a life of sophistication in this stunning 4-bedroom family home, gracefully situated in an elevated location in West Albury. Impeccably presented, this residence offers an array of heating and cooling options, including a gas wall heater and ducted heating and cooling. The sun-filled lounge/dining area provides a comfortable space for relaxation and entertainment. The master bedroom features an en-suite, while the bathroom offers a relaxing spa.
The outdoor space is simply superb, featuring a spacious tiled pergola, perfect for outdoor gatherings. The low maintenance gardens and double lock-up garage with yard access and two remote controls add convenience to your daily life. All four bedrooms are adorned with brand new carpet and equipped with robes and ceiling fans. Two of the bedrooms enjoy the added comfort of split system R/C air-conditioners.
The blackwood timber kitchen boasts modern appliances, including a dishwasher and gas hot plates, and is complemented by an adjacent tiled family area. The main formal lounge/dining room showcases modern flooring, further enhancing the elegant ambiance of the space. Additionally, three split system air-conditioners and ceiling fans ensure year-round comfort throughout the home.
Step into the tiled pergola area, where you can entertain family and friends while enjoying the outdoor beauty. The split-level rear yard offers ample space for activities or for your beloved family pet to roam.
Adding to the features of this exquisite home, automated sun protection and security shutters are installed on the three windows at the front of the house. These shutters provide convenience, privacy, and enhanced security for your peace of mind. Discover the essence of luxury living in this premier location. Welcome home to Pemberton Park.
ADDRESS: 64 Johnston Road, West Albury
AUCTION: Saturday 15th July at 2:00pm
Land: 740m2 (approx.)
Rates: $1,744 pa (approx.)
4 Bedrooms
2 Bathrooms
2 Car Garage
STEAN NICHOLLS REAL ESTATE
Suite 1, Unit 19, 669 Dean Street, ALBURY NSW 2640
P: (02) 6021 5233
E: realestate@steannicholls.com.au
W: www.steannicholls.com.au
Disclaimer: Information provided is believed to be accurate as at the date of printing, no responsibility is taken for any errors or omission. It is your responsibility to obtain independent, professional advice. Personal information collected from you is for security purposes to contact you should the property sell prior to auction. We may use this information to provide you with other real estate services including referrals to authorized financial services’ providers.
Stean Nicholls Pty Ltd ABN 72 003 370 018