611 DEAN STREET ALBURY



![]()



Stean Nicholls Commercial is pleased to present 611 Dean Street, Albury, a rare multi-tenanted commercial investment opportunity in the heart of Albury’s primary retail and business precinct.
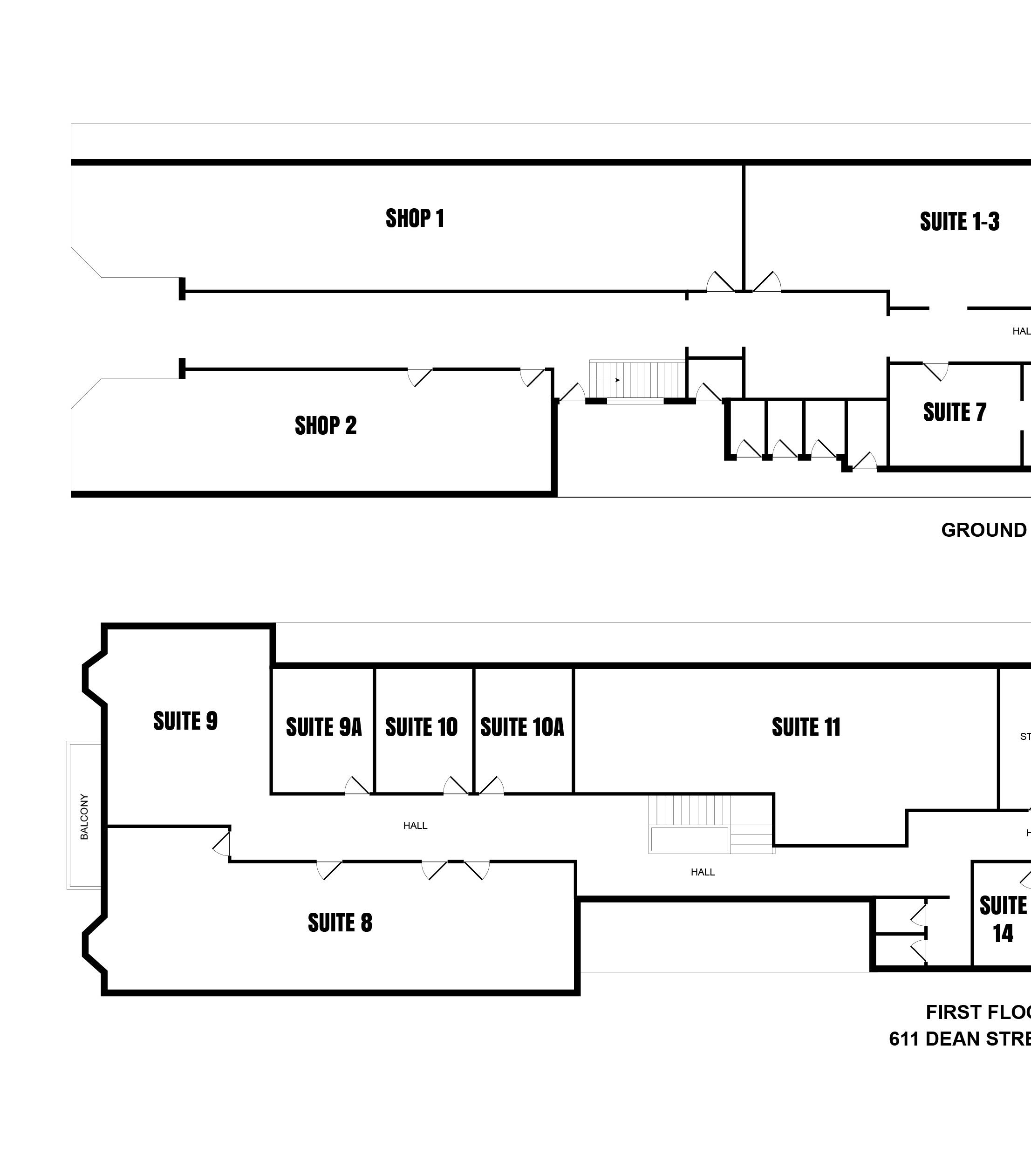
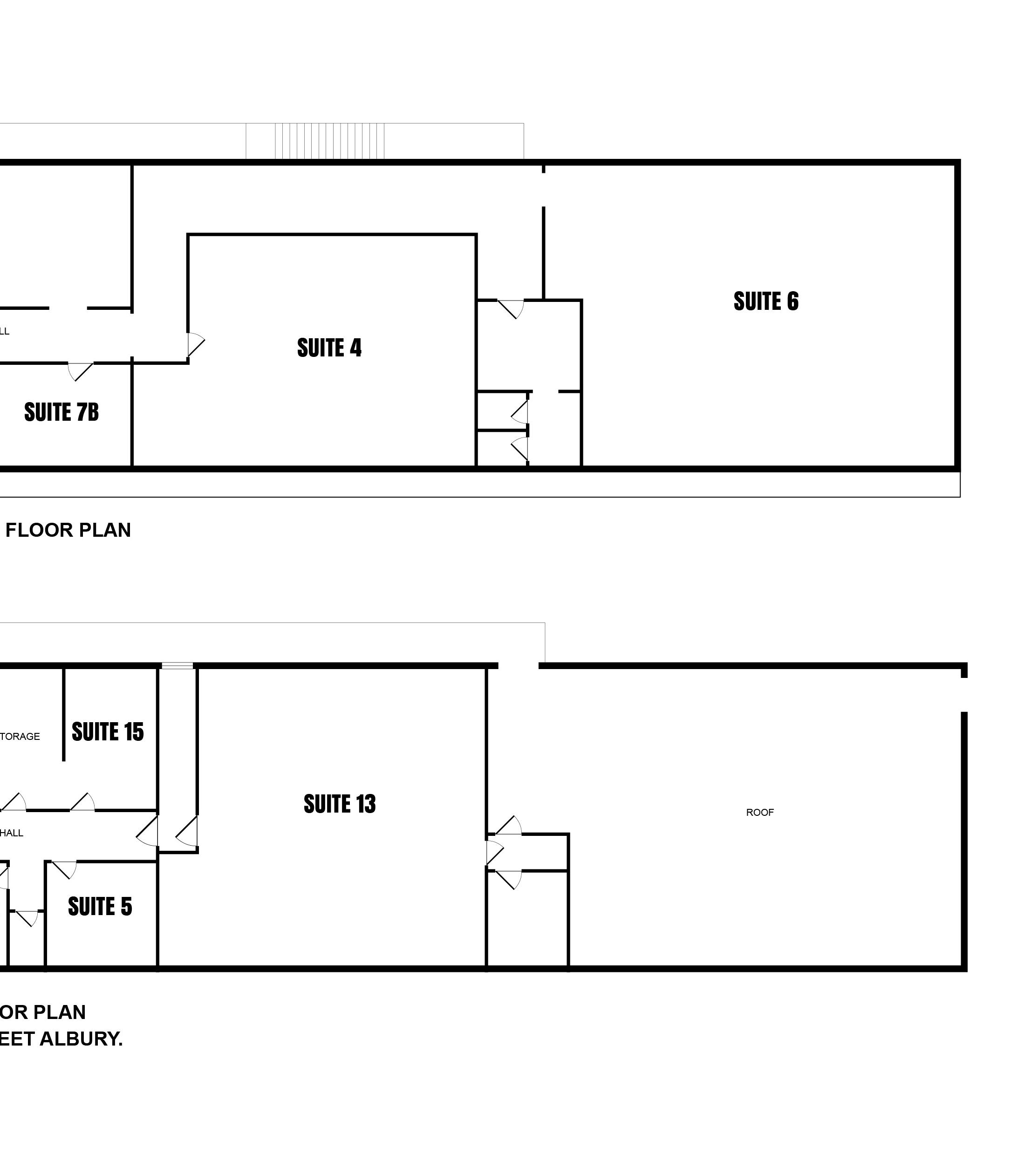
Comprising fifteen individual suites across a total lettable area of approximately 678 sqm, this tightly held CBD asset delivers diversified income streams underpinned by multiple occupiers and staggered lease expiries, providing both security and flexibility for astute investors.
611 Dean Street benefits from its premier Dean Street address, positioned within Albury’s most active commercial corridor and surrounded by national retailers, professional services, hospitality operators and civic amenities. The property’s multi-tenanted structure spreads tenant risk across a broad mix of suite sizes, from compact 10 sqm offices to larger 84 sqm commercial spaces which is appealing to a diverse range of small business operators, allied health providers, professional consultants and service-based enterprises.
The investment is characterised by strong occupancy fundamentals, with the majority of tenancies secured on leases incorporating regular rent reviews via CPI or fixed annual increases, ensuring income growth over time. Several tenancies include options or are in the process of renewal, reflecting tenant commitment and the desirability of the location.
Opportunities to acquire established, income-producing commercial assets in Albury’s CBD are increasingly scarce, supported by the city’s strong population growth, resilient regional economy and strategic position on the Melbourne to
Sydney corridor. 611 Dean Street is ideally suited to private investors, self-managed superannuation funds (SMSFs) and institutional buyers seeking secure, diversified regional income in one of Australia’s most dynamic inland markets.
Address: 611 Dean Street, Albury NSW 2640
Total Lettable Area: Approximately 678 sqm across 15 suites
Tenancy Mix: Multi-tenanted commercial with suite sizes ranging from 10.6 sqm to 84 sqm
Current Passing Income: $196,713.60 per annum (ex GST)
Lease Structure: All gross leases
Rent Reviews: Combination of CPI, fixed 3% annual increases and periodic market reviews
Zoning: Mixed Use (MU1)
Planning Authority: Albury City Council
Disposal
Disposal
Consumables
Fire & Emergency
Kristian Hopwood Director
Tenant Details
611 Dean Street, Albury is a multi tenanted commercial investment in a tightly held CBD location, offering diversified income across a mix of suites ranging from 10 sqm to 84 sqm.* The asset provides an attractive yield profile underpinned by multiple occupiers and staggered lease expiries, appealing to both private investors and SMSFs seeking secure regional income.

10% deposit, balance 60 days.



• Diversified tenant base across 15 individual suites, minimizing single-tenant risk
• Staggered lease expiries from 2026 to 2028, providing active management opportunities
• Combination of CPI-linked and fixed 3% annual rent reviews, ensuring consistent income growth
• Multiple tenancies with options or renewal intent, reflecting location desirability
• Premier Dean Street CBD location with strong foot traffic and business activity
• Flexible suite sizes from 10.6 sqm to 84 sqm, accommodating diverse commercial uses
• Scope for capital growth and income enhancement through proactive asset management

611 Dean Street occupies a high-profile position on Dean Street, Albury’s premier retail and commercial boulevard, benefiting from exceptional exposure, strong pedestrian activity and immediate proximity to major national retailers, cafés, financial institutions and professional services.
The property forms part of Albury’s tightly held CBD core, where established commercial assets rarely come to market. Its multi-tenanted structure provides secure, diversified income with minimal exposure to individual tenant performance or sector-specific volatility.
132 Fallon Street is geographically positioned 3km from the Hume Freeway on/off ramp, this strategic location is on Australia’s main transport corridor which allows for overnight delivery to 75% of the Australian population by either rail or road.

• 6kms from Wodonga CBD
• 3Kms from Hume Highway On/Off ramp
• 0.9kms from Hume Highway on/off ramp
• 3.8kms from Albury CBD
• 0.4km from Albury CBD
• 4kms from Albury Airport
• 4.9km from Albury Airport
• 10kms from Wodonga CBD
• 325kms from Melbourne CBD
• 555kms from Sydney CBD
• 325kms from Melbourne CBD
• 862kms from Adelaide CBD
• 553kms from Sydney CBD
• 1,457kms from Brisbane CBD
• 1,452kms from Brisbane CBD
• 859kms from Adelaide CBD
Site Stats

Site Stats
• Hard stand area for efficient truck, delivery and customer movements
• Total Site Area – 1,448 sqm
• Total Building Area – 939.3 sqm
• Modern fit out includes kitchenette, reception, waiting area and private consultation rooms
• Roof Height – 5.64m on the low side
• Total lettable area: 678 sqm (approx.) across 15 suites
• Current passing income: $196,713.60 per annum (ex GST)
• Car Parks – 12
• Multiple tenancies with CPI and fixed 3% annual reviews
• Established tenant mix including professional, allied health and servicebased occupiers
• Strong lease covenant profile with multiple renewals underway or flagged

• Albury/Wodonga $16.439B in gross area output
• Albury/Wodonga $16.439B in gross area output
• Albury/Wodonga population 101,793
• Albury/Wodonga population 101,793
• Health Care & Social Assistance industry sector that is the region’s largest employer
• Largest industry sector is manufacturing
• Workforce of over 46,000, supported by continued infrastructure and transport investment
• Strategic position on the Melbourne to Sydney growth corridor


Built in the 1920’s, this character-filled interwar building delivers a striking high-street presence, with twin bay windows, deep balcony detailing and a bold parapet line that anchors it within the historic main-street ensemble. The combination of heritage charm and modern shopfront activation makes it an attractive setting for destination retailers and professional services seeking profile and authenticity in a tightly held commercial strip.
611 Dean Street comprises a well-maintained commercial building configured to accommodate multiple smallto-medium commercial tenancies. The property benefits from its ground-level frontage to Dean Street, providing excellent visibility and pedestrian access within Albury’s busiest retail and business precinct.
The building is suited to a broad range of commercial uses including professional consulting, allied health, personal services, administrative offices and specialty retail, with flexible suite configurations accommodating tenants from 10 sqm to 84 sqm.
• Multi-suite commercial building with ground-level access
• Mix of suite sizes from 10.6 sqm to 84 sqm, providing flexible tenancy options
• Established fit outs including partitioned offices, consultation rooms and reception areas
• Shared amenities including toilets and common areas
• Connected to all essential services (electricity, water, sewer, telecommunications)
• On-street parking available on Dean Street and surrounding streets
• Central location within walking distance of cafés, retail, banking and civic services
• Compliant with building and fire safety standards
• Regular building maintenance and service agreements in place
• Prominent street frontage on Dean Street, Albury’s primary commercial boulevard
• High-exposure location with strong pedestrian foot traffic
• Easy access from Hume Highway via Dean Street interchange
• Surrounded by complementary retail, hospitality and professional services
• Close proximity to Albury railway station and regional bus services
• The premises is located on the highly accessible street of David Street, Albury
• Access to property from Hume Street and David Street intersection – on street parking available
• Easy access from the Hume Highway (Hume Street on/off ramp)


Albury is a major regional city in New South Wales, located on the Hume Highway on the Northern side of the Murray River, while its twin sister Wodonga lays on the southern side of the Murray River in Victoria. Albury has an urban population of over 50,000 and a combined population of over 101,793 residences with Wodonga.
Ideally positioned midway between Melbourne (325 km) and Sydney (555 km) along the Hume Freeway rail and road corridor, the Albury-Wodonga region is a critical logistics, manufacturing, and service gateway between southern and eastern Australia.
The City of Wodonga continues to experience sustained population and economic growth, driven by government investment, infrastructure upgrades, and a thriving local economy supported by education, health, and advanced manufacturing sectors.
On the northern side of the Murray River, Albury complements this growth with a diverse employment base, world-class healthcare facilities, tertiary education campuses, and a strong cultural and recreational offering. The region’s shared development vision is encapsulated in the Albury 2050 Strategic Plan, which focuses on building a sustainable and connected regional economy.
Surrounded by natural beauty, thriving businesses, and ongoing investment, 611 Dean Street is ideally located to benefit from the growing strength of the Albury–Wodonga economy.








steannicholls.com.au 02 6021 5233 Suite 1, Unit 19, 669 Dean Street, Albury
Disclaimer
The information contained in this information memorandum has been prepared in good faith and due care by the Vendor and Stean Nicholls. Any projections contained in the information memorandum therefore, represent best estimates only and may be based on assumptions.
The information contained herein is supplied without any representation as to its truth or accuracy. All interested parties should make their own enquiries to satisfy themselves in all aspects and obtain their own independent advice in order to verify any of the information. All stated dimensions and areas are approximate.
The vendor does not represent or warrant the accuracy of any information contained in this document. Subject to any statutory limitation on its ability to do so, the vendor disclaims all liability under any cause of action, including negligence, for any loss arising from reliance on this document. Specifically, we make the following disclosure:
All areas, measurements, boundaries, building outgoings and rents are approximate only and subject to final confirmation;
The information contained in this document is provided as a guide and an aid to further investigation by potential purchasers. Prospective purchasers should seek legal, financial and other appropriate expert advice in order the verify the accuracy of the information presented in this document.
GST Disclaimer
Stean Nicholls advises that the financial information in this report relating to income, outgoings and the like is provided without reference to the possible impact of GST, if any. Purchasers should make their own assessment of the impact of GST on the investments and the returns derived there from after obtaining expert professional advice.