

Positioned in the heart of Central Albury

![]()








Positioned in the heart of Central Albury, moments away from Dean Street. This fantastic double brick home will appeal to those looking to renovate or enter the market. Situated on a generous flat 683sqm (approx.) block, this solid construction will excite those looking for excellent foundations!
This well-maintained property, in original condition, offers a vast array of opportunity for the fortunate buyer. With its untouched state, this property provides a potential development opportunity to extend, renovate or develop the choice is yours (STCA).
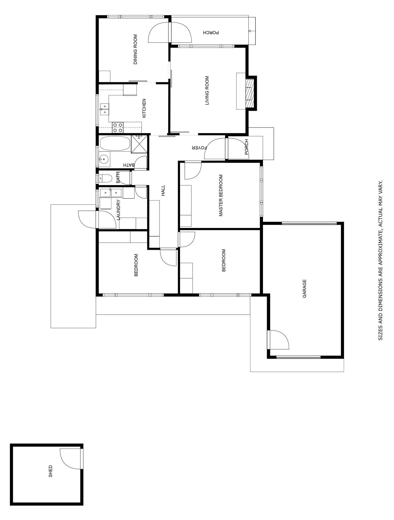
The practical floorplan offers a separate dining space, spacious living zone and kitchen which is equipped with electric cooking and ample storage space.
Bedroom accommodation includes three generously sized rooms with built-in wardrobes. Serviced by a central bathroom with a separate toilet for extra convenience and privacy. A laundry also features within this floorplan.
Car accommodation includes single lock up garage with drive through access to the backyard.
Furthermore, for added character this home features a ceramic tile roof, high ceilings, elegant decorative cornices, and untouched Murray pine floors hidden underneath the carpet.
Perched in a convenient location within minutes of popular cafes, shops, and Albury’s entertainment hub only enhances its appeal to residents seeking modern comforts and a sought-after address.
Add your personal touches to transform this house into a charming and high-quality home in the heart of inner Albury.
Additional Features:
• 683 sqm (approx.) allotment
• Three bedrooms with built in robes
• Separate dining and living area
• Separate toilet and family bathroom
• Single garage with drive through access
• Central location within moments to Dean Street
ADDRESS: 595 Wyse Street, Albury
AUCTION: Saturday 21st September at 12:00pm
Rates: $3,532 p/a (approx.)
Land: 683m2 (approx.)
3 Bedrooms
1 Bathroom
Single Garage




