

![]()








Beautifully presented and located in a growing neighbourhood, this home is ideal for first home buyers, downsizers, and investors alike.
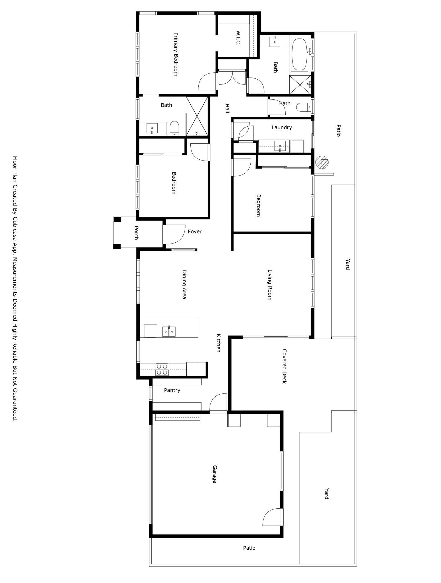
Step inside to a welcoming entryway that opens into a spacious kitchen, living, and dining area—perfect for relaxed family living. Plantation shutters throughout add warmth and character, while the open-plan design allows for seamless interaction and natural light. The well-appointed kitchen featuring SMEG appliances, a pyrolytic oven and a large walk-in pantry that connects effortlessly with the dining and living area.
The home offers three generously sized bedrooms, including two that are serviced by the central bathroom. At the rear of the home, the master suite provides a true retreat—complete with a large walk-in robe and a stylish ensuite that adds both comfort and a touch of luxury.
Outdoors, bifold doors open to a fully weatherproof entertaining area, complete with electric blinds—perfect for year-round enjoyment. This inviting space flows seamlessly into a low-maintenance backyard, ideal for easy living and minimal upkeep.
Located in a prime position in Killara, this home is perfectly positioned to embrace the best of riverside living. With the Kiewa River, Piccolo Pod Coffee, scenic walking tracks, and the rail trail just moments away, you’ll love the lifestyle this home has to offer.
Additional features:
• Ducted heating and cooling
• Well-designed, flowing floor plan
• Ideal for first-home buyers, downsizers, and investors
• Seamless indoor-outdoor flow
ADDRESS: 42 Devitt Way, Killara FOR SALE: Contact Agent 3




