

![]()








Designed by Naughtin Development Group in collaboration with Chambers + Chambers and built by multi award winning Modern Construction Group, Maryland Way presents an opportunity for exclusive modern and low maintenance living in the heart of bustling Central Albury. The town residence is a short stroll from the Albury CBD and main shopping areas and is within walking distance to public transport, schools, parklands and entertainment. Thoughtfully designed with functionality, privacy, comfort and energy efficiency at the forefront, the property is perfectly positioned to feature large amounts of natural light in the open living area and with a north facing private outdoor area.
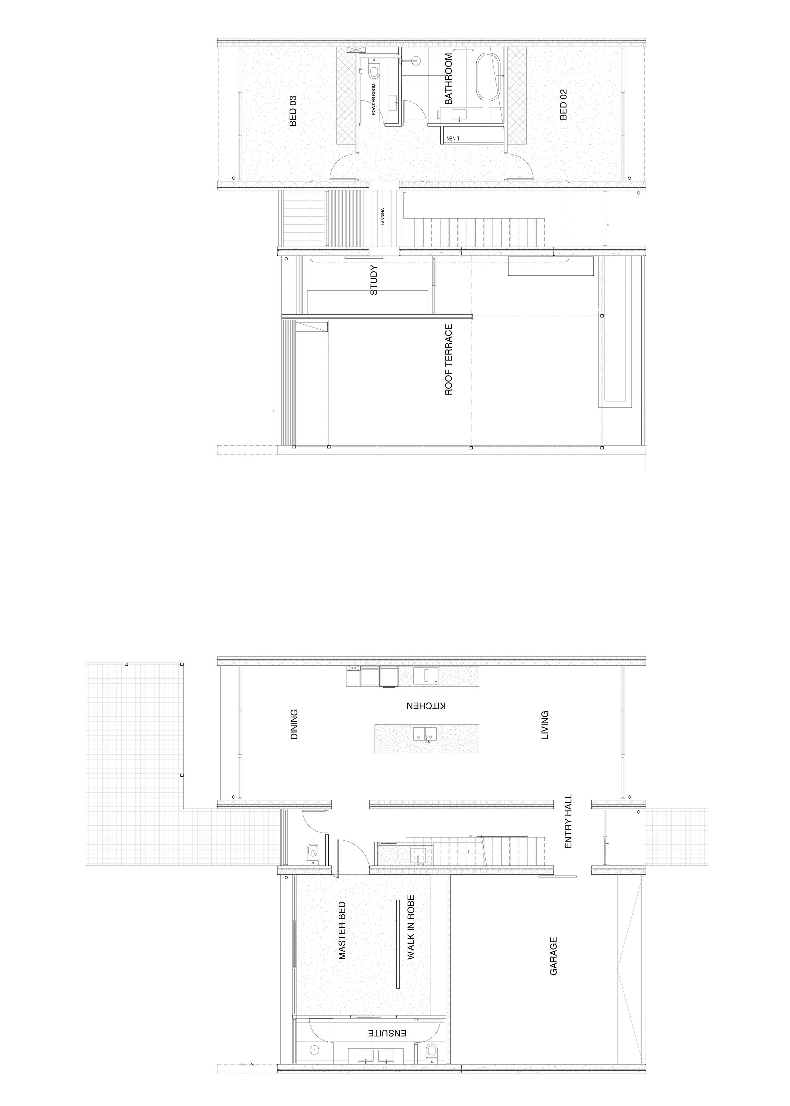
The entrance features polished and hydronic heated concrete floors which flow throughout the ground floor. The open plan kitchen includes Caesarstone benchtops, two pack cabinetry, integrated dishwasher, Thermoseal oven, induction ceramic cooktop, telescopic retractable rangehood and freestanding inverter microwave. The ground floor features a grand master suite with walk in robe and ensuite. A double lock up garage has been designed so that you can live completely downstairs if you desire to.
Upstairs consists of two further bedrooms with built in robes, a study nook, ample natural light and a family bathroom that includes a back to wall free standing bath and Italian made porcelain floor tiles. Upstairs also features a large balcony for entertaining guests and an outlook over the CBD of Albury.
Outdoors includes a fully landscaped garden with synthetic turf, a micro garden shed, steel pergolas and fencing, knotwood aluminium eaves and privacy screening, with all driveways and paths completed, as well as the planting of established feature trees and native shrubs and grasses. Featuring both privacy and security, the home is equipped with an automated gate and video intercom system at the entrance, as well as individual security and a fully fenced backyard. Carefully designed with sustainable design principles in mind, the townhouse achieves a seven-star energy rating, not only reducing the impact on the environment but also reducing energy bills. The townhouse includes 6.6kW Enphase solar system (with LG solar panels) and a Tesla wall charger.
With meticulous commitment to environmental sustainability, these are the only townhouses in Albury that are constructed of Thermomass panels.
Additional Features:
- Central Albury Townhouse
- 6.67kW Enphase solar system
- Three bedrooms, two bathrooms
- Double garage with Tesla wall charger
- Outdoor patio
ADDRESS: 3/57 Maryland Way, Albury
Expressions Of Interest Closing Tuesday 21st April at 1pm




