
Immaculately presented brand new home


A fantastic opportunity awaits to purchase this immaculately presented brand new home in a quiet pocket of Wirlinga and on the cusp of Thurgoona’s most prized amenities such as the golf course, Thurgoona Plaza and multiple schools.
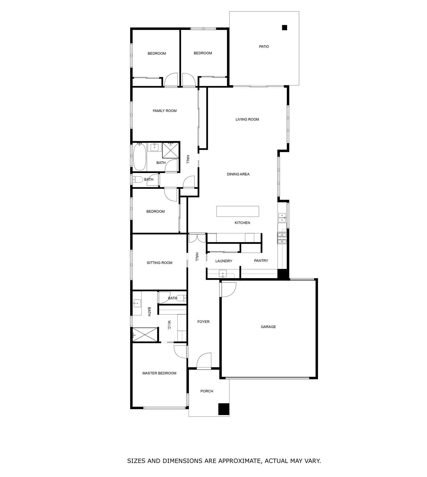
The floorplan plays host to four-bedrooms, perfectly positioned to enjoy the shady tress that surround the fence line and backyard. The home presents low maintenance living at its best, conveniently located within walking distance to Yarrabee Playground.
The quality kitchen features stone bench tops and a large island bench as well as a walk-in pantry. The western end of the home has been designed with family time in mind featuring a large open plan lounge room and dining space, boasting high ceilings and superb indoor/outdoor flow to the outdoor alfresco area.
Maximizing space, the outdoor alfresco area is perfect for entertaining and relaxing. Well-sized bedrooms complete the fantastic family aspect, as well as a stylish family bathroom and master bedroom with ensuite.
Car accommodation is taken care of with a double lock up garage and the convenience of internal access as well as an extra parking space for a trailer or caravan with drive through access from the garage to the back yard.
This property sits on a well manageable parcel of land 558sqm (approx.) within a friendly community estate. Located within a short drive of everything you need, you will be spoilt for choice. With a generous list of inclusions and ample living space, this is an ideal family home representing great value in a very popular location.
Features:
• Situated on 558sqm (approx.)
• Built in 2024 by Bridgewood Homes
• Four bedrooms + two bathrooms
• Two living zones
• Wool carpets and timber flooring throughout
• Zoned refrigerated heating and cooling
• Solar panels
• Undercover alfresco
• Double garage with access to the backyard
• Automated irrigation system
• Close to the Thurgoona golf course, plaza and the Kinross woolshed
ADDRESS: 35 Yurana Street, Wirlinga
Agent
Land: 558m2 (approx.)
4 Bedrooms 2 Bathrooms Double Garage