32FALLON STREET THURGOONA



On behalf of our valued private client, Stean Nicholls Commercial has the pleasure in exclusively offering to market the extremely rare opportunity to acquire a multi tenanted industrial site with holding income in one of Albury’s most sought after industrial precincts.
This asset offers a unique opportunity with two wellestablished businesses - one being a government entity and the other LS Performance and Tuning Centre - providing immediate and stable income for buyers.
Located in a prime Bluechip location with exceptional access to the Hume Highway, this high-quality institutional grade offering is a rarity in both the Albury industrial market and the broader Australian marketplace.
The strong underlying fundamentals of industrial property in Australia, coupled with the Government’s substantial infrastructure investments, make 5-8/32 Fallon Street, Thurgoona, a highly sought-after investment opportunity.
For further information or to organise an inspection, please contact Kristian Hopwood.
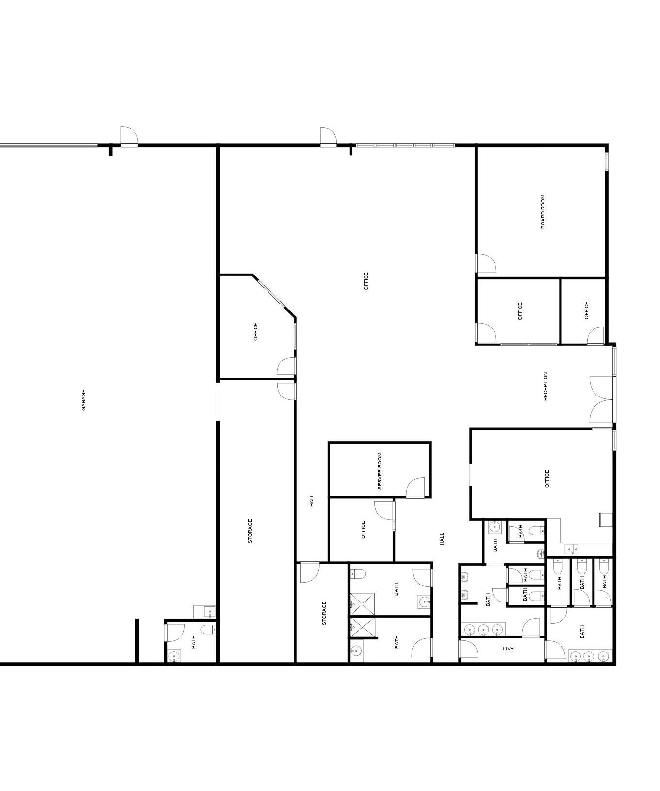
This multi tenanted industrial site includes a government tenancy and private enterprise.
The New South Wales Rural Fire Service is a volunteer-based firefighting agency and statutory body of the Government of New South Wales, their site has been purpose built for their business and operations and enjoys a modern officing with two large storage warehouses for essential fire fighting vehicles and equipment.
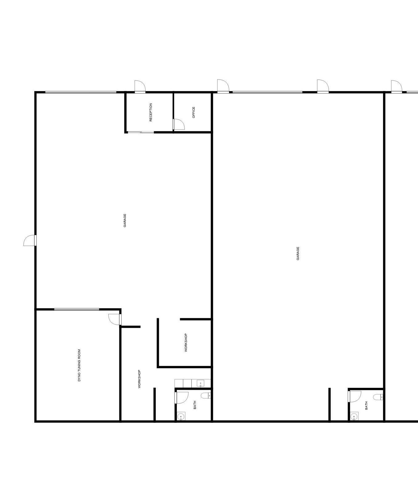
The other tenancy belongs to LS Tuning and Performance Centre who specialise in all performance related modifications and Dyno Tuning for moto enthusiasts. They service the entire Albury – Wodonga market and surrounding areas.
NSW Rural Fire Services (Warehouse 5 & 6)
• 01.07.2020 – 30.06.2025 + 3 (three) years
• $74,262.96 + GST
NSW Rural Fire Services (Warehouse 7)
• 01.06.2021 – 30.06.2025 + 3 (three) years
• $25,673.82
LS Tuning and Performance Centre (Warehouse 8)
• 01.09.2023 + 31.08.2028 + 5 (five) years
• $29,322.00
TOTAL INCOME - $129,258 + GST pa
Outgoings
The costs mentioned below pertain to the entire 32 Fallon Street site. The proposed plan of strata subdivision has been prepared, and the below costs will be shared among each owner according to their unit entitlement.
Council rates $7,056 per annum (approx.)
Water and sewerage rates $5,459.13 + consumption (approx.)
Sale Process
Contact Agent
Terms: 10% deposit, balance 90 days
CONTACT AGENT
Kristian Hopwood Commercial Manager
T: (02) 6021 5233
M: 0473 888 821
E: kristian@steannicholls.com.au
Airside North is geographically positioned 1.5km from the Hume Freeway on/off ramp, this strategic location is on Australia’s main transport corridor which allows for overnight delivery to 75% of the Australian population by either rail or road.
• 1.5kms from Hume Highway On/Off ramp
• 3kms from Albury Airport
• 7kms from Albury CBD
• 12kms from Wodonga CBD
• 320kms from Melbourne CBD
• 520kms from Sydney CBD
• 1,402kms from Brisbane CBD
• 870kms from Adelaide CBD
Site Stats
• Shared hard stand area for efficient truck movements
• Total Site Area - 1,676 sqm
• Total Building Area – 1,328
• Warehouse Area – 1,243 sqm
• Office – 85 sqm
• Warehouse Clearance – 6m at the low point
• Car Parks – 5
REGION STATS
• Albury/Wodonga $16.439B in gross area output
• Albury/Wodonga population 99,219 approx
• Largest industry sector is Manufacturing
The proposed strata plan of subdivision will be known as 5-8/32 Fallon Street, Thurgoona. This will encompass the second building which is made up of the four attached warehouse buildings at the rear northern boundary The land is presently improved with industrial buildings and associated internal offices. A large building is constructed at the Fallon Street and Merkel Street frontage and contains a main workshop and office building to the Fallon Street frontage and three smaller industrial warehouse buildings to the rear, accessed from the internal driveway area.
All access to the property is provided along Merkel Street, with a main two-way access/egress point located midway along the frontage, with a one way entry crossover at the north western corner and a one-way egress crossover at the south west corner. The access crossovers provide for movement through the site along concrete hardstand surfaces and to the internal parking areas.
Off street car parking is provided along the Merkel Street frontage forward of the existing buildings, and behind the existing landscaping. The Merkel Street and Fallon Street frontages of the property include landscaping works, with grass surfaces and establishing trees identified along each.
• The proposed strata title development is constructed of concrete tilt panels with steel support
• Boasts a modern façade
• Separate warehouse, office (with air-con) and storage areas
• High level security including CCTV and perimeter fencing around the entire complex
• Internal & External Lighting
CONVENIENCES & POWER SUPPLY
• 3 phase power available
• Warehouse storage and office area
• Full accessibility compliant bathrooms with toilet and shower
• Shared concrete driveway and on site parking
• Individual power & water metering
• The warehouse is accessed via multiple 5m heigh electric roller doors with all-weather loading awning coverage.
• Easy access from the Hume Highway (Racecourse Road on/off ramp)
Albury is a major regional city in New South Wales, located on the Hume Highway on the Northern side of the Murray River, while its twin sister Wodonga lays on the southern side of the Murray River in Victoria. Albury has an urban population of over 50,000 and a combined population of over 90,000 with Wodonga.
Located just 500 km to Sydney and 300 km to Melbourne, Albury is considered a major transport link between NSW and VIC, both road and railway. The region connects major freight corridors between Adelaide, Melbourne, Sydney and Brisbane. Businesses in the region can access freight air and/or sea ports at Canberra, Sydney, Wollongong and Melbourne. With 46 major projects underway, the Albury-Wodonga region is a growing, vibrant, and tranquil destination where locals and visitors can find time to stop, relax, unwind, and explore.
The Albury City Council is underpinned by their Community Strategic Plan called Towards Albury 2050. Towards Albury 2050 provides a long-term approach and plan for the future of the community. The plan is structured under four strategic directions or themes – A Growing Sustainable Economy, An Enhanced Natural Environment, A Caring Community and A Leading Community. For more information, you can visit https://www.alburycity.nsw.gov.au/council/future-planning/ albury-2050
The City of Albury, located in Wiradjuri country, has a bustling economy, world-class medical and health services, a vibrant cultural and artistic scene, sporting facilities to rival those of the capital cities. Albury has a cosmopolitan feel that reflects a unique multicultural heritage.
steannicholls.com.au
02 6021 5233
Suite 1, Unit 19, 669 Dean Street, Albury
Disclaimer
The information contained in this information memorandum has been prepared in good faith and due care by the Vendor and Stean Nicholls. Any projections contained in the information memorandum therefore, represent best estimates only and may be based on assumptions.
The information contained herein is supplied without any representation as to its truth or accuracy. All interested parties should make their own enquiries to satisfy themselves in all aspects and obtain their own independent advice in order to verify any of the information. All stated dimensions and areas are approximate.
The vendor does not represent or warrant the accuracy of any information contained in this document. Subject to any statutory limitation on its ability to do so, the vendor disclaims all liability under any cause of action, including negligence, for any loss arising from reliance on this document. Specifically, we make the following disclosure:
All areas, measurements, boundaries, building outgoings and rents
The information contained in this document is provided as a guide and an aid to further investigation by potential purchasers. Prospective purchasers should seek legal, financial and other appropriate expert advice in order the verify the accuracy of the information presented in this document.
Stean Nicholls advises that the financial information in this report relating to income, outgoings and the like is provided without reference to the possible impact of GST, if any. Purchasers should make their own assessment of the impact of GST on the investments and the returns derived there from after obtaining expert professional advice.