

![]()








Convenient modern living at 288 Cheyenne Drive. Ideal for young families, investors, or first home buyers, this property offers everything you need for a convenient and relaxed lifestyle.
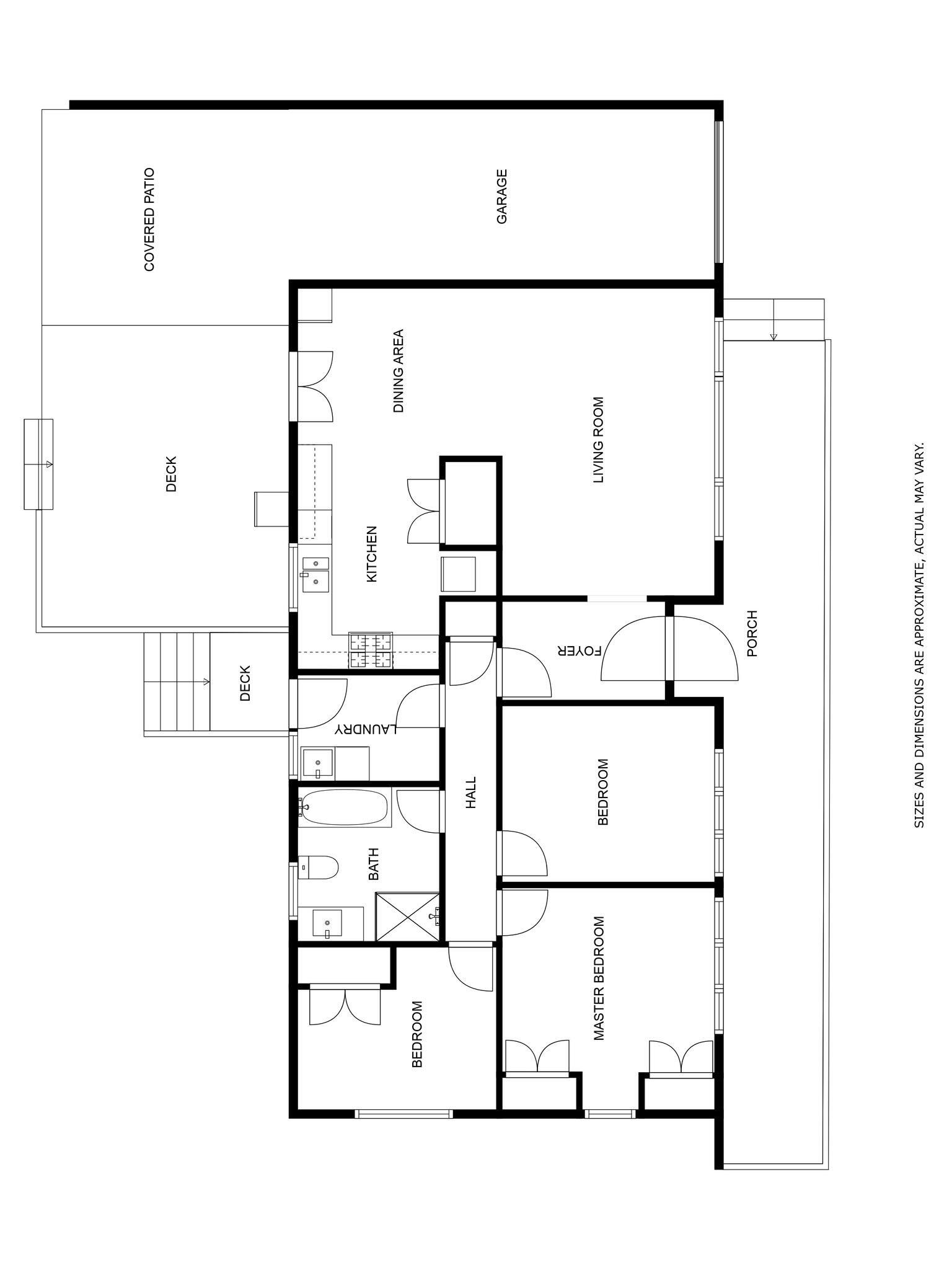
Step inside to find a restored interior featuring three well-appointed bedrooms, each with built-in robes. The home, updated and painted in 2018, boasts new carpets alongside polished floorboards, giving it a fresh, contemporary feel. The renovated bathroom offers a fresh space, and the separate laundry adds to the home’s practical appeal.
The heart of the home is the family - living area, perfect for gatherings and everyday living. The updated kitchen is perfectly suited for family life, featuring a gas cook-top, under-bench oven, dishwasher, pot drawers, utility cupboard, and a large pantry—everything you need to make family meals effortlessly enjoyable. The dining area opens onto an undercover entertainment area complemented by timber decking, making it an ideal space for outdoor entertaining.
Outside, you’ll find a double/tandem lock-up carport with rear yard access, along with a large shed well positioned for convenience, secure fencing, and a generous backyard for kids to play and pets to run. This home is designed with comfort and security in mind, offering peace of mind for families and retirees alike.
Located in the established Quicks Hill area, 288 Cheyenne Drive is close to schools, shops, bus stops, and all essential amenities. Whether you’re starting out, investing, or looking to settle into a modern and secure home, this property has it all. An inspection is sure to impress.
ADDRESS: 288 Cheyenne Drive, Lavington
FOR SALE: Contact Agent
Land: 778m2 (approx.)
Rates: $1,610 pa (approx.)
3 Bedrooms
1 Bathroom
Double Tandem Lock Up Carport
Large Shed




