
A
short stroll to the CBD


![]()

A







A short stroll to the CBD, this property boasts comfort and privacy, complete with versatile living spaces. Presented with superb attention to detail, this private oasis is the essence of low maintenance living in the heart of Central Albury.
Peacefully nestled at the rear of the block, this meticulously maintained solid brick residence stands as a rare and enticing invitation for first home buyers, investors or those looking to downscale, this home epitomizes versatility and comfort with only two on the block.
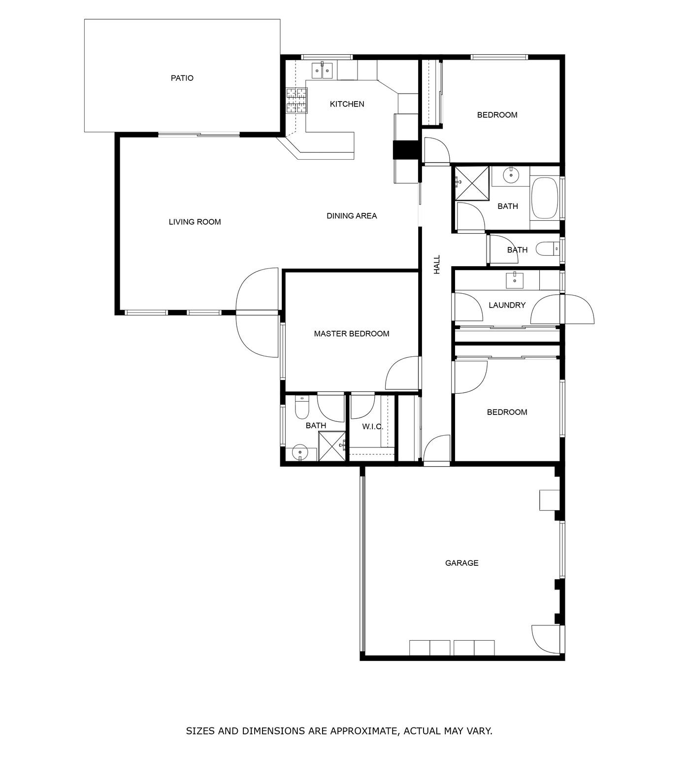
Upon entering, you are welcomed by a generously proportioned living area that seamlessly transitions into a comfortable kitchen which boasts an abundance of storage space, stainless steel oven, gas cooking and dishwasher. Accommodation comprises three well-appointed bedrooms, each equipped with built-in robes for added convenience. The spacious bathroom includes a large bath, shower, and is centrally located for practicality. The master suite is equipped with an ensuite and walk in robe.
Additionally, this home offers the convenience of a separate laundry and a secure lock-up garage with internal access ensuring both comfort and security. Furthermore, there is also a private backyard, providing an ideal petfriendly environment with the added bonus of raised garden beds, the perfect space for a vegetable garden.
Modern conveniences include ceiling fans, gas wall heater, split system heating and cooling for all year-round comfort.
The home is within walking distance to Albury TAFE, local cafes, pubs and other amenities. An inspection will surprise.
Property Highlights:
• Only two on the block
• Three bedrooms with built in robes
• Two bathrooms
• Double lockup garage
• Spacious courtyard, low maintenance gardens
• Close proximity to Nail Can Hill, Cafes and Dean Street Eateries
ADDRESS: 2/688 Sackville Street, Albury
AUCTION: Saturday 9th November at 10:00am
Rates: $1,735 pa (approx.)
3 Bedrooms
2 Bathrooms
Double Garage




