

![]()








Nestled on a generous 761m² (approx.) block, 22 Hereford Court offers an exceptional combination of space, comfort, and functionality, making it the perfect home for growing families or those who love to entertain.
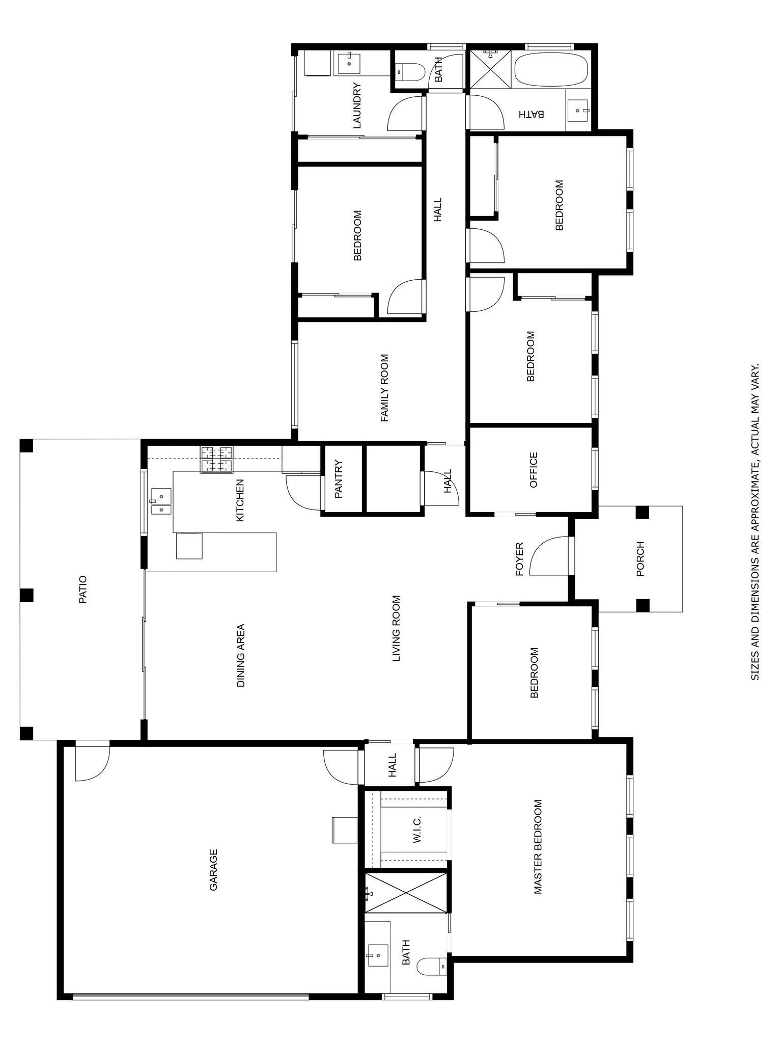
The enormous master suite is a true retreat, featuring a luxurious ensuite and a walk-in robe. Accommodating the rest of the family, the home offers three additional full-sized bedrooms, all with built-in robes. The media room, fully enclosed for privacy, doubles as a potential fifth bedroom, offering flexibility to adapt to your lifestyle.
At the heart of the home lies a tastefully designed kitchen, complete with stainless steel appliances and a walkin pantry, ideal for culinary enthusiasts. The kitchen seamlessly connects to the open plan living and dining area, creating a welcoming hub for family gatherings and entertainment. A separate study, perfectly positioned off the main living area, offers a quiet space for work or study.
Families will appreciate the versatility of the second and third living areas, perfect for a children’s playroom or a dedicated teenage retreat. The cleverly designed floor plan allows one end of the home to be entirely separated, making it ideal for multi-generational living or those seeking additional privacy and flexibility.
Enjoy year-round comfort with ducted heating and cooling throughout the home. Outside, the entertainment area offers the perfect spot to relax while overlooking the low-maintenance, fully enclosed yard. Rear access adds convenience, making it effortless to store a caravan or boat. The backyard provides plenty of space for children to play or the opportunity to design your ideal outdoor retreat.
The home also boasts a double oversized lock-up garage, providing secure parking and additional storage space.
Perfectly designed for growing families, 22 Hereford Court is a rare gem offering unmatched versatility, comfort, and convenience. This thoughtfully designed property is a must-see for anyone seeking a spacious and adaptable family home. Don’t miss your opportunity to make it yours!
ADDRESS: 22 Hereford Court, Thurgoona
FOR SALE: Contact Agent
Land: 761 m2 (approx.)
Rates: $1,751 pa (approx.)
4 Bedrooms
2 Bathrooms
Oversized Double Garage




