
Set on an impressive 827m² block


![]()

Set on an impressive 827m² block







Welcome to 203 Forest Drive — a home that effortlessly blends modern sophistication with everyday comfort. Set on an impressive 827m² block and positioned on the high side of the street, this stunning residence enjoys beautifully manicured gardens and sweeping views of the nearby hills.
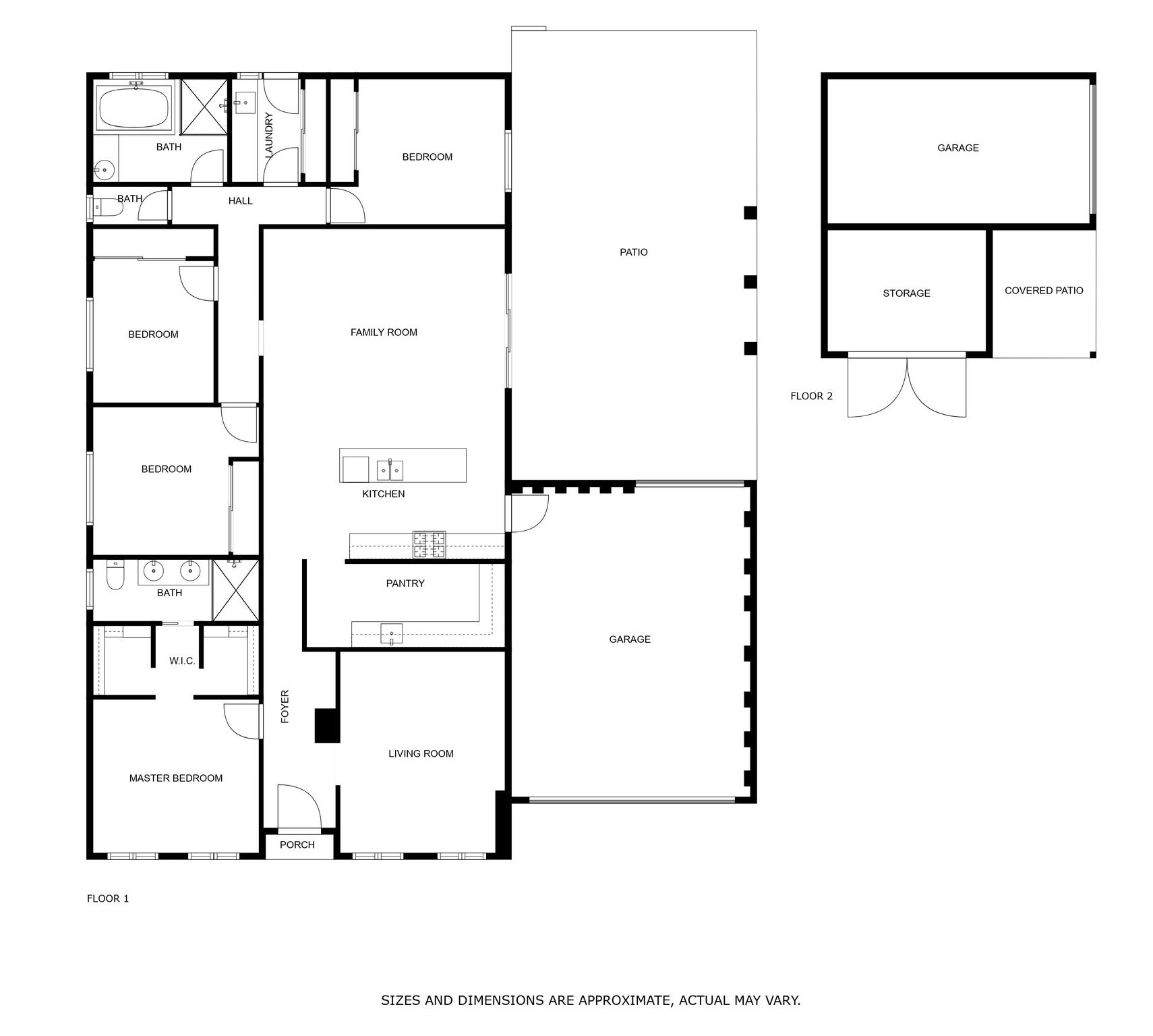
Step inside and discover a thoughtfully designed floorplan starting with a spacious formal lounge, perfect for quiet evenings or hosting guests. Just adjacent is the master suite, a true retreat featuring his and hers walk-in robes and a luxurious ensuite complete with double vanities and an oversized shower.
At the heart of the home, the gourmet kitchen is both stylish and practical, offering premium appliances, sleek benchtops, and ample cabinetry. Hidden behind, a generously sized butler’s pantry with an extra sink provides all the space you need for prep and storage — keeping your kitchen clutter-free.
Overlooking the open plan living and dining area, the kitchen creates a seamless flow for relaxed family living. The rear wing of the home is dedicated to three additional bedrooms, each with built-in robes and serviced by a beautifully appointed central bathroom.
Step outside to a spacious undercover alfresco area complete with a ceiling fan — ideal for entertaining or unwinding outdoors. The backyard is expansive yet low-maintenance, featuring a large shed for extra storage and plenty of space for kids or pets to enjoy.
Finished with high-quality touches throughout, this home offers contemporary living at its finest — all in a peaceful, elevated setting close to everything your family needs.
ADDRESS: 203 Forest Drive, Thurgoona
FOR SALE: Contact Agent
Rates: $2,022.24 p.a (approx.)
Land: 827m2 (approx)
4 Bedrooms
2 Bathrooms Double Garage




