

Low maintenance living


Features at a glance





This generously sized two bedroom unit presents an excellent opportunity for first home buyers, downsizers and investors alike, offering tidy, low maintenance living in a highly convenient location.
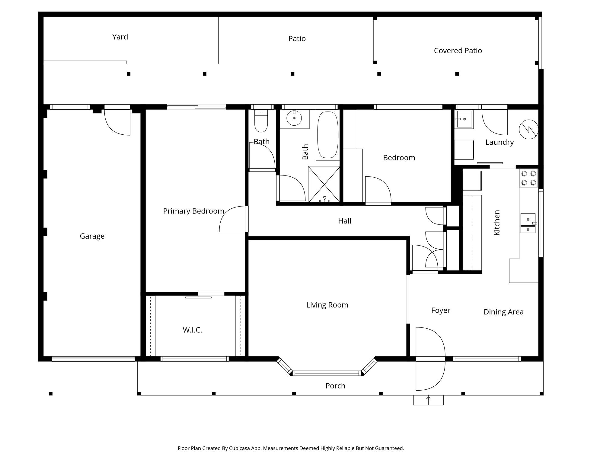
Step inside to a smart and functional floor plan where a large lounge room welcomes you and sets the tone for comfortable everyday living. The adjoining kitchen and dining area adds versatility, providing a practical space for meals and casual entertaining.
A well-designed hallway layout delivers a rare level of bedroom separation for a unit, with the first bedroom positioned toward the front of the home. At the rear, the oversized master bedroom is a standout feature, complete with a massive walk-in robe and a peaceful sense of privacy. Both bedrooms are serviced by a centrally located main bathroom for everyday convenience.
Outside, a fully fenced and enclosed courtyard provides a private space to relax or enjoy time outdoors, ideal for those seeking a secure, easy-care backyard without the upkeep. Completing the package is a fully enclosed one-car garage, offering secure parking and additional storage.
With its generous proportions, thoughtful layout and low-maintenance appeal, this property is a smart choice for owner-occupiers and a reliable addition to any investment portfolio.
Additional features:
- Ideal location, close to central Albury
- Enclosed low maintenance backyard
- 1 car garage offering secure parking and storage
- Large master bedroom with walk-in robe
ADDRESS: 1/416 Mclennan Street, West Albury
FOR SALE: Contact Agent
$3,200 p.a. (approx.)
Floor Plan

Features at a glance



