
A unique blend of lifestyle and creature comforts


Situated in a quiet court and backing onto a picturesque greenbelt that leads directly to Nail Can Hill, 16 Briwood Court offers a unique blend of lifestyle and creature comforts, all within the coveted West Albury location.
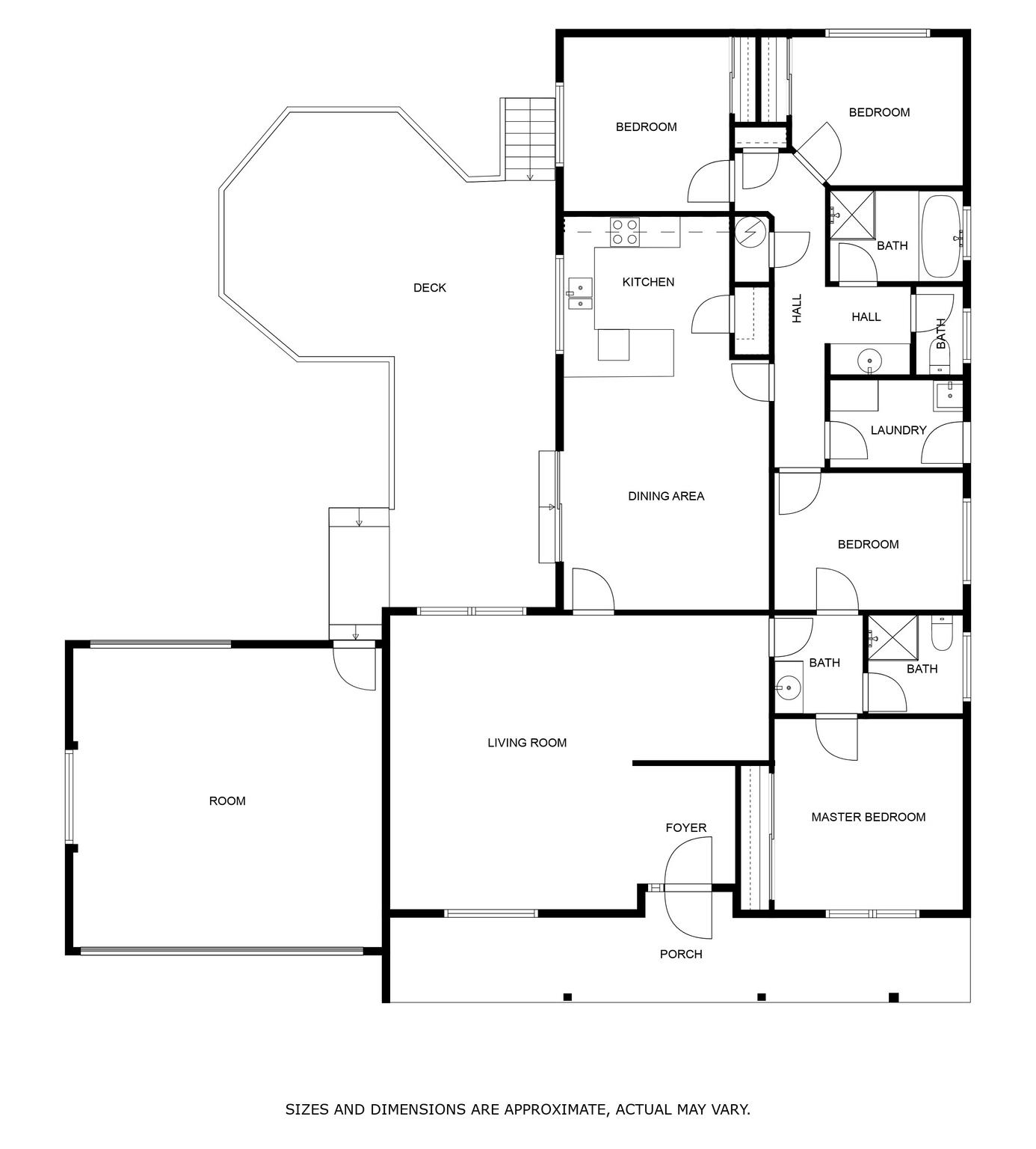
This generous home features a spacious floor plan with two distinct living spaces, including a large formal lounge at the front and a separate kitchen and dining area that opens onto a large deck and alfresco space at the rear.
The kitchen is designed with functionality in mind, boasting electric cooking, ample bench space, and plenty of storage. The bedroom accommodation is equally impressive, with a generous master bedroom serviced by an ensuite, and bedrooms two and three offering built in robes. The fourth bedroom is easily accessible from the master, perfect as a nursery for younger children or can be ideally utilised as a study or home office.
Entertaining is a delight with the massive undercover deck at the rear, overlooking the greenbelt and providing a serene backdrop for gatherings. Car storage is well-catered for with a double garage featuring drive-through access to the rear yard, and under-house storage is perfect for those seeking extra space.
Situated on a generous 943m2 (approx.) block, this home is perfect for those seeking ample space both inside and out. Additional modern comforts include ducted gas heating and cooling throughout. An inspection will leave you appreciating all that 16 Briwood Court has to offer.
ADDRESS: 16 Briwood Court, West Albury
AUCTION: Saturday 6th July at 10:00am
Land: 943m2 (approx.)
Rates: $1,699 pa (approx.)
4 Bedrooms
2 Bathrooms
Double Garage
Under House Storage