

![]()








Welcome to 16 Benzel Road, Thurgoona Park, a stunning embodiment of luxury and spacious living, set on over 1½ acres of perfectly maintained gardens. Nestled among other upscale residences, this contemporary home features striking Mt Gambier limestone construction, making it an ideal choice for families or anyone seeking an elegant address.
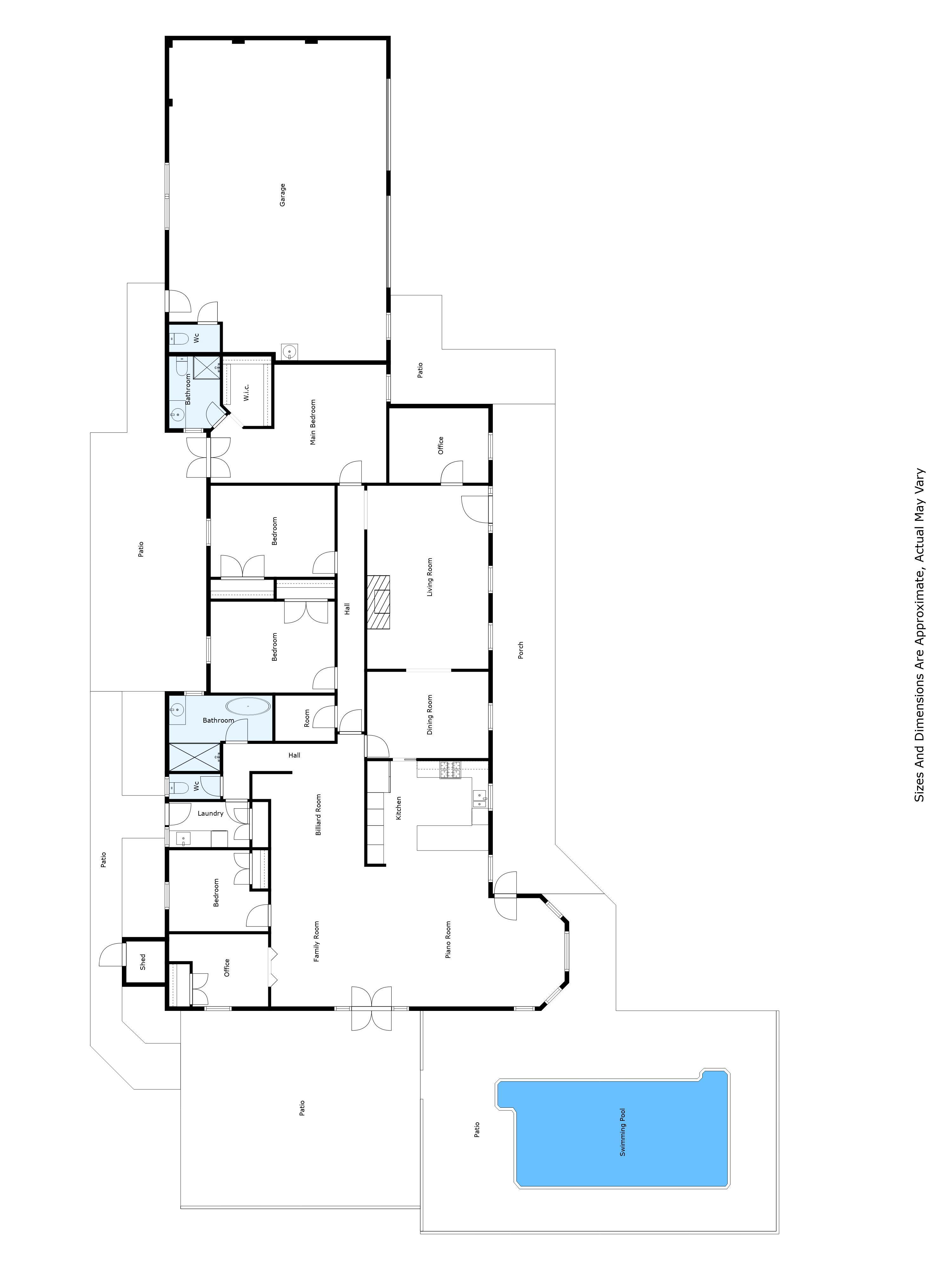
This single-level home is designed to maximize natural light and showcase picturesque rural views, featuring both formal and informal living areas. At its heart lies an open-plan family and dining space that effortlessly connects to bluestone-paved outdoor entertaining areas, including a north-facing front patio and a large covered alfresco area that overlooks meticulously maintained gardens and a stunning tiled in-ground mineral swimming pool.
The master suite boasts a spacious ensuite, walk-in robe, and serene views through French doors that lead to a covered patio. Additionally, there are three more bedrooms, each with built-in robes, serviced by a generous family bathroom. The layout also includes a versatile multipurpose room and a dedicated office/study.
Modern amenities enhance comfort and convenience, featuring evaporative ducted cooling, gas ducted heating, and ceiling fans throughout. Completing the home are a separate laundry, abundant storage solutions, a double remote garage with additional toilet and basin, and secure fencing around the property. At the rear of the property there is ample space for a north-south oriented tennis court.
This tranquil and private residence is conveniently situated just minutes from local amenities, including Thurgoona Plaza, Charles Sturt University, golf club, schools, and only a 12km drive to Albury City Centre.
Additional Features:
• Approx. 5,578 sqm allotment
• Four bedrooms plus a multipurpose room and dedicated office
• Open-plan family kitchen, dining, and living area
• Separate formal dining and lounge rooms
• Expansive alfresco and patio for entertaining
• Luxurious in-ground swimming pool
• Large double garage for secure parking (approx. 96 sqm)
• Evaporative cooling and ducted gas heating
• Beautifully established grounds
ADDRESS: 16 Benzel Road, Thurgoona
AUCTION: Saturday 2nd November at 2:00pm
Land: 5,578m2 (approx.)
Rates: $3,344 pa (approx.)




