
Flexible living to the modern family


Set in the heart of popular Corrys Wood Estate, 16 Belah Court delivers flexible living to the modern family, within easy connection to Trinity College, Border Christian College, freeway access and the Thurgoona shopping precinct.
Set on over 918m2 (approx.), this single level home has been designed to accommodate the modern family, investors or buyers seeking to downsize to a quieter locale.
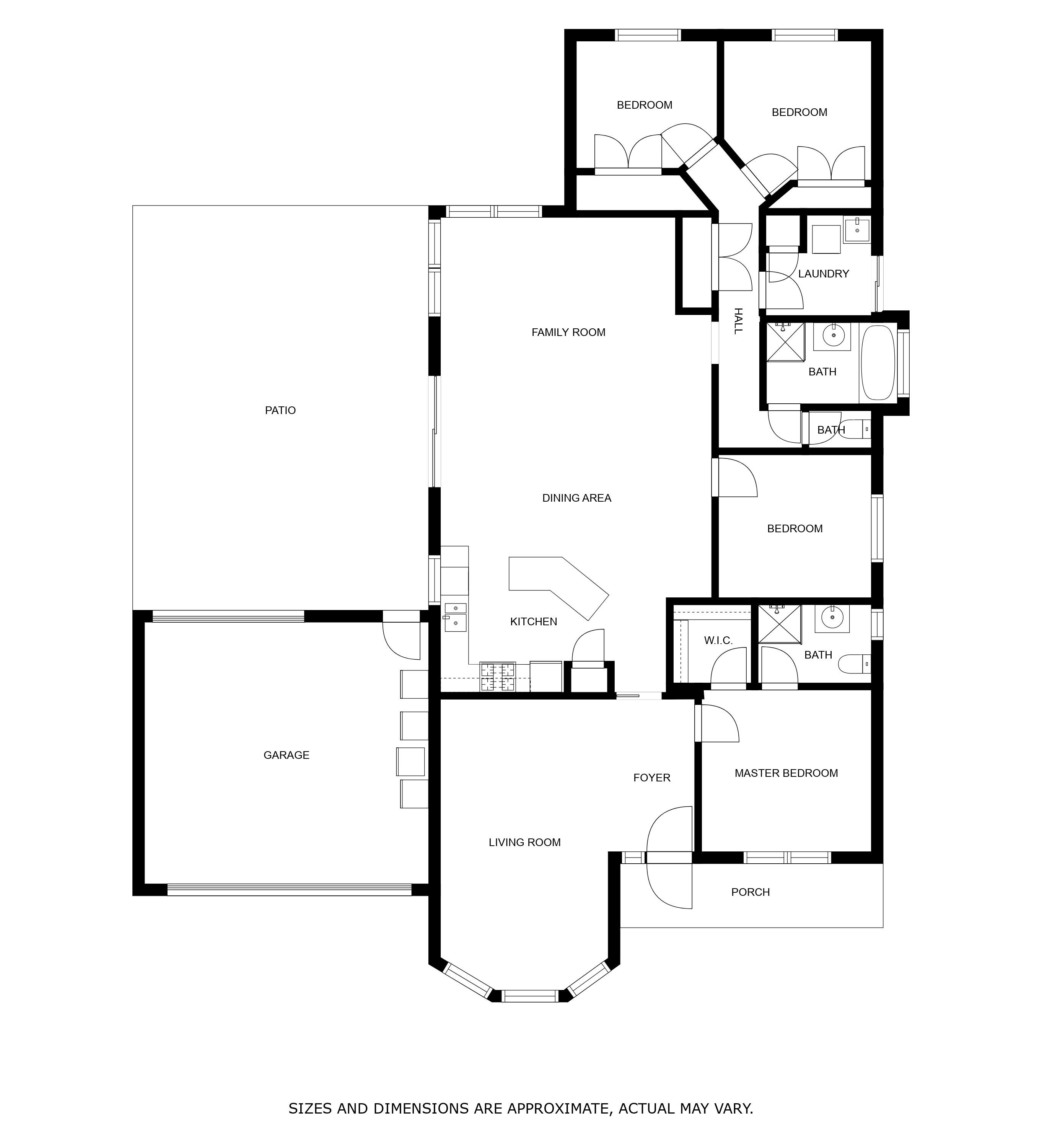
Inside, the formal lounge serves as a parent’s retreat, whilst the open plan kitchen acts as the communal gathering area. The kitchen is fitted with quality stainless steel appliances and offers plenty of storage space. The spacious kitchen and living flows beautifully to the undercover outdoor alfresco and enjoys superb low maintenance appeal with plenty of room for children to play or room to further add shedding or a pool with the fantastic side access available (STCA).
Accommodation consists of four bedrooms (or three bedrooms and a study). The master bedroom has a walk-in robe and ensuite. Bedrooms two and three include built in robes and bedroom four provides the flexibility to act as a bedroom or study. Bedrooms two, three and four are all serviced by the central family bathroom.
Car accommodation comprises of a double garage. Gate access to both sides of the property is handy for those with extra vehicles and toys. Modern conveniences are covered with ducted heating and cooling, ensuring year-round comfort. Enjoy living in a family friendly estate surrounded by immaculate homes and natural bushland.
ADDRESS: 16 Belah Court, Thurgoona
Features:
• Four bedrooms, two bathrooms
• Two living zones
• Double garage
• Corner access to both sides of the property
• Low maintenance gardens
• Ducted heating and evaporative cooling
• Close to parks, walking tracks and schools
FOR SALE: Contact Agent
Land: 918m2 (approx.)
Rates: $1,294 pa (approx.)
4 Bedrooms
2 Bathrooms
Double Garage
Suite 1, Unit 19, 669 Dean Street, ALBURY NSW 2640
P: (02) 6021 5233
E: realestate@steannicholls.com.au
W: www.steannicholls.com.au
Disclaimer: