

Modern, immaculate and sure to impress, 166 Fenchurch Drive will appeal to families seeking unique character and quality.
Set on a generous 4,018m2 (approx.) allotment, the home sits within the highly regarded Ettamogah Rise Estate, providing a semi-rural outlook only moments from schools, walking tracks and the highway for easy access to Albury and Wodonga.
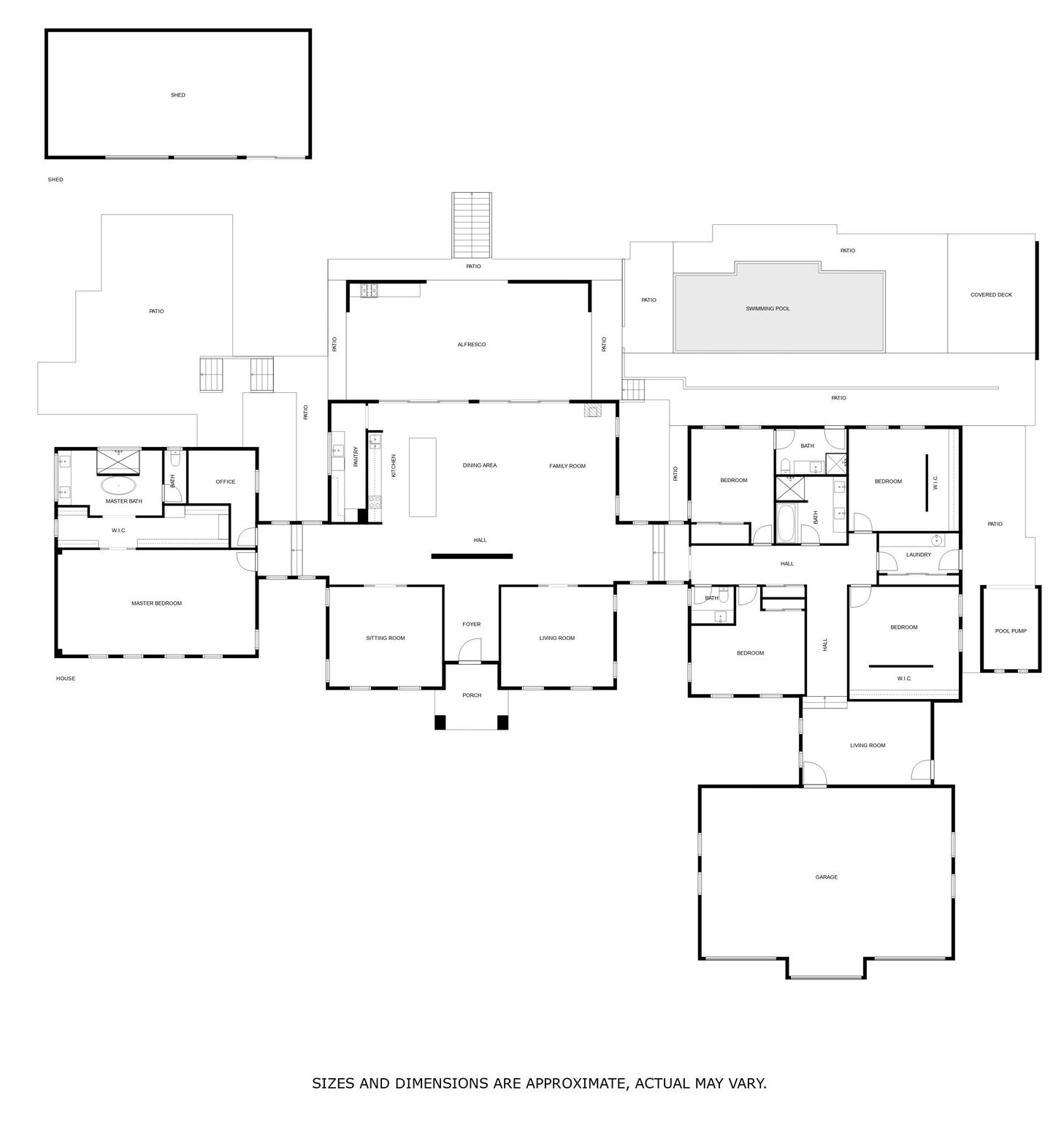
As you step into this modern masterpiece, you’re immediately struck by the seamless blend of luxury and functionality. The spacious layout, with five bedrooms and a dedicated home office, offers ample room for both relaxation and productivity.
The heart of the home lies in its stunning kitchen, where culinary dreams come to life. Adorned with stone benches and equipped with top-of-the-line appliances, this kitchen is a haven for both cooking enthusiasts and entertainers alike. Adjacent to the kitchen is a generous walk-in butler’s pantry, ensuring that the main living area remains clutter-free and organised.
The attention to detail extends to the ensuite bathroom, which is a true oasis of relaxation. With its oversized shower, double vanities and a free-standing bathtub which offers a spa-like experience within the comforts of home.
Designed with growing families in mind, the home is divided into two wings. The master bedroom and study form a private sanctuary in one wing, while the children’s wing offers a rumpus room and a family bathroom plus a second ensuite.
The three central living areas seamlessly connects these spaces and opens to the alfresco area—a serene oasis perfect for unwinding and entertaining guests.
The family pool is a highlight of the outdoor space, enclosed by glass panel fencing for safety and allowing for easy supervision from the main living area. This area also includes an undercover deck. Powered by solar panels with a 6.6kW storage battery, it’s both environmentally friendly and cost-effective—a perfect embodiment of sustainable living.
Car enthusiasts will appreciate the triple garage with internal access, providing both convenience and security for vehicles.
For those in need of additional storage, the property boasts ample shedding, including a double bay shed with separate driveway access.
Surrounded by established gardens and nestled in the tranquil Ettamogah Rise Estate, this home offers a serene escape for families or those looking to downscale from larger acreage properties. It’s a place where luxury meets functionality, where every detail has been carefully considered to create the ultimate family haven.
Features:
• 4,018m2 (approx.) allotment
• Five bedrooms + study
• Three living areas
• Children’s rumpus room
• Three bathrooms
• Tripe car garage + large shed
• Undercover alfresco
• In-ground pool
• Large backyard with established gardens
ADDRESS: 166 Fenchurch Drive, Springdale Heights
Thursday 6th June at 1:00pm
Land: 4,018m2 (approx.)
Rates: $2,696 pa (approx.)
5 Bedrooms
1 Office
3 Bathrooms
Triple Garage + Double Bay Shed