Lot 34 Young's Peak

Page 1

23430 POSTRIDER TRAIL
AT YOUNG’S PEAK
NEW CONSTRUCTION
NEIGHBORHOODS
Oak Creek, Colorado
blacktail at nyp — lot 34

The Teton – Lot 34-D

Blacktail at NYP

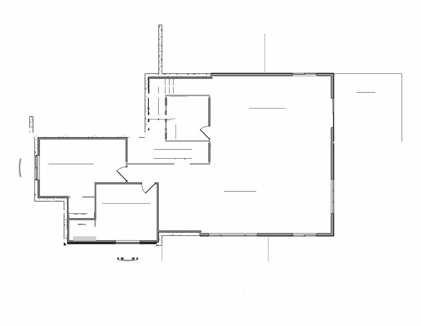
New construction in Stagecoach and in close proximity to Stagecoach Reservoir and State Park. Fantastic location in Young’s Peak in Neighborhoods at Young’s Peak on all paved roads. Enjoy panoramic views of surrounding mountains, including the old Stagecoach Ski Area. This 5 bedroom, 3 bath home features an open floorplan with vaulted ceilings and fi replace, a spacious kitchen with an island and pantry, 3 exterior living spaces including a large deck o of the dining area, main floor primary bedroom with ensuite bath and walkin closet. 2 additional main floor bedrooms perfect for an o ce with high-speed internet. Finished lower level walkout with large 2nd living space, game room, 2 bedrooms, and full bath. Fantastic trails are out your door for year-round hiking and cross-country skiing.

BLACKTAIL AT NYP LOT 34
5 BEDROOMS 3 BATHS 3,298 SQ FT 2 CAR GARAGE 0.33 ACRE LOT EST COMPLETION SPRING 2024

NEW CONSTRUCTION

blacktail at nyp – lot 34

PLANS

2-CAR GARAGE

23-1 x 21-1

DINING AREA

10-7 x 16-0

COVERED DECK

21-0 x 9-0

KITCHEN

9-6 x 16-0

BEDROOM 3

10-10 x 10-5

BATH DN

PRIMARY BATH 6-2 x 7-3

12-1 x 8-8

CLOSET

5-9 x 8-9

PRIMARY BEDROOM

13-0 x 14-0

LIVING ROOM

21-0 x 16-0

BEDROOM 2

10-10 x 10-5

FRONT DECK

22-0 x 6-0

34
FLOORPLAN – MAIN LEVEL • 1,728 SF
BLACKTAIL AT NYP LOT
FLOORPLAN
BLACKTAIL AT NYP . -------------------------------------------------------------� • .... ,4. ",d • .... ". ",4 •• ,----+--+-+-VP ·'.-"t-----J�;;;;;;;;;;;;;;�====;i ·:= = (· )I l�==� .� -□ ':=_-=.-=.-=: t----, 8-7x9-0 l p·,,...__����---��----';r---....,,---11Q �: •••,...... •• ,,...... •• ,,...... .� ..0 ����� ____________________________________ -------� �. IMECH/STOR.I �-:: .... • ···v=n . •. p"�---.=11 .. r <( � l:=:=====:::::11/ "-"c::==L----------------------------------... . • I',,_,._.,..,, .... •-------------------------------------------------------------• 17-7 x 11-8 BEDROOM 5 12-6 x 11-6 BEDROOM 4 24-8 x 14-3 GAME AREA 8-7 x 9-0 BATH 35-3 x 17-10 REC ROOM MECH/STOR 14-0 x 14-0 PATIO
ELEVATIONS
FRONT BACK RIGHT LEFT
SITE & GRADING PLAN

NEW CONSTRUCTION

blacktail at nyp – lot 34

DESIGN & FINISHES

NYP LOT 34 IMAGES/FINISHES ARE ILLUSTRATIVE IN NATURE AND NOT AN EXACT REPRESENTATION OF FINISHED PRODUCT. ITEMS ARE SUBJECT TO CHANGE WITHOUT NOTICE, BASED ON AVAILABILITY.
BLACKTAIL AT
EXTERIOR FINISHES
CORRUGATED METAL Charcoal
Bronze
HORIZONTAL SIDING SW 7048 Urban GARAGE DOORS,FASCIA POST/BEAM TRIM SW 6988 Bohemian Black FRONT DOOR SW 6207 Retreat VERTICAL BATTEN SIDING SW 7046 Anonymous

KITCHEN ISLAND PENDANTS

Vaxcel Lighting Dunning 20"

ALL CABINETS

Schrock Ingalis

Maple Painted Steam

KITCHEN BACKSPLASH

Daltile Restrospace Remix Hexagon Modern 6" x 6"

DINING CHANDELIER

Vaxcel Lighting Euclid 20"

LAUNDRY ROOM FLOORING

Dal Tile Brickwork Patio Herringbone 2" x 8"

KITCHEN COUNTERTOPS

Ceasarstone Statuario Nuvo

LIVING ROOM CHANDELIER

Vaxcel Lighting Surrey 22"

MAIN-LEVEL FLOORING

LVP – Mohawk Founders

Trace Dash of Pepper 7" x 48"

BLACKTAIL AT NYP LOT 34 IMAGES/FINISHES ARE ILLUSTRATIVE IN NATURE AND NOT AN EXACT REPRESENTATION OF FINISHED PRODUCT. ITEMS ARE SUBJECT TO CHANGE WITHOUT NOTICE, BASED ON AVAILABILITY.
KITCHEN & MAIN LEVEL

BATHROOMS

Vaxcel Lighting

Bridgeview 16"

BLACKTAIL AT NYP LOT 34 IMAGES/FINISHES ARE ILLUSTRATIVE IN NATURE AND NOT AN EXACT REPRESENTATION OF FINISHED PRODUCT. ITEMS ARE SUBJECT TO CHANGE WITHOUT NOTICE, BASED ON AVAILABILITY.
LOWER BATHROOM LIGHTING Elk Lighting Holdfast 3 Light GUEST BATH LIGHTS Elk Lighting Holdfast 2 Light x2 GUEST & LOWER BATH FLOOR Sleigh Creek Landau 8" x 9" Hexagon PRIMARY BATH FLOOR Daltile Sleigh Creek Landau 6" x 36" Herringbone PRIMARY BATH PENDANTS PRIMARY BATH SHOWER FLOOR Daltile Creamy Sand Pebbles PRIMARY BATH SHOWER WALLS Daltile Rekindle White 28" x 48"

NEW CONSTRUCTION

blacktail at nyp – lot 34

LOCATION

NORTHWEST COLORADO

This South Routt County home in Young’s Peak in Neighborhoods at Young’s Peak is located in the northwestern part of Colorado near Stagecoach, only a 25 minute drive to beautiful Steamboat Springs—a charming community with approximately 13,000 residents. Steamboat is unique, famous for its world-class skiing, but still bursting with ranching tradition. The town still maintains its western heritage, small-town character, and strong sense of community. The town boasts great schools and wonderful restaurants as well as the excellent regional health care center. People of all ages are attracted to Steamboat not just because of the vibrant, active community, but also because of the thriving businesses that are based here. You won’t fi nd any malls, but you can shop at an eclectic array of quality stores, many of which are housed in 100+ year-old buildings along the main street.

DENVER COLORADO SPRINGS BOULDER GRAND JUNCTION SILVERTHORNE VAIL GLENWOOD SPRINGS FORT COLLINS STEAMBOAT SPRINGS WYOMING COLORADO
70 70 25 25 80 40 40 40 129 131 287 287 9
UTAH COLORADO STAGECOACH PROXIMITY TO STEAMBOAT SPRINGS 131 131 STEAMBOAT SKI AREA 29 MINUTES DOWNTOWN STEAMBOAT SPRINGS 34 MINUTES BOB ADAMS AIRPORT EMERALD MOUNTAIN STAGECOACH RESERVOIR LAKE CATAMOUNT TO HAYDEN
40 40 40 40
TO DENVER
40
LOT 34 OAK CREEK
IN STAGECOACH – BACKTAIL MEADOWS AT NEIGHBORHOODS AT YOUNG’S PEAK 14 14 16 14 STAGECOACH RESERVOIR STAGECOACH STATE PARK
LOT 34

STAGECOACH STATE PARK

Stagecoach State Park sets the stage for great recreation in the lush Yampa Valley. Panoramic vistas and views are stunning backdrops to the 820-acre reservoir providing renown lake and river fi shing.

A year-round destination, the Park also makes a great base to explore the variety of sports and attractions of the area. An array of activities awaits including boating, fi shing, hiking, picnicking and camping.

Stagecoach State Park is a great place to hold base camp when exploring the many outdoor opportunities nearby such as the Flat Tops and Sarvis Creek Wilderness Area.

If you’re looking to try a new hobby, fat tire bikes as well as fi shing rods are available for rent at no cost — just stop in the Park o ce and the sta will hook you up.

AT NYP LOT 34
BLACKTAIL

STEAMBOAT SPRINGS, CO

Steamboat Springs, also known as Ski Town USA®, is part of the Yampa Valley and is a 3-hour drive from Denver. From skiing and fly fi shing, to camping, hiking, rodeos and golf, Steamboat Springs is a destination for year round activities. Steamboat is best known for its epic skiing, with an average of over 330" of Champagne Powder® each winter. Besides skiing, Steamboat is also known for its other vibrant seasons, its gourmet restaurants, fashionable shopping, arts and culture, and its western heritage. With a population of about 13,000, the American West is alive and well in Steamboat Springs with its strong economic base grounded in agriculture and tourism. The town o ers 4 golf courses, endless hiking, biking and riding terrain, and the beautiful Yampa River flowing through town. Steamboat is a unique mountain town with a true sense of community, a family friendly place enriched by a diverse economy and rooted in its western heritage.

BLACKTAIL AT NYP LOT 34

NEW CONSTRUCTION

blacktail at nyp – lot 34

PHOTOS

NYP LOT 34
BLACKTAIL AT
NYP LOT 34
BLACKTAIL AT
LOT 34
BLACKTAIL AT
NYP
NYP LOT 34
BLACKTAIL AT
NYP LOT 34
BLACKTAIL AT
NYP LOT 34
BLACKTAIL AT
NYP LOT 34
BLACKTAIL AT
NYP LOT 34
BLACKTAIL AT
NYP LOT 34
BLACKTAIL AT
NYP LOT 34
BLACKTAIL AT
NYP LOT 34
BLACKTAIL AT
NYP LOT 34
BLACKTAIL AT
NYP LOT 34
BLACKTAIL AT
NYP LOT 34
BLACKTAIL AT
LOT 34
BLACKTAIL AT
NYP
NYP LOT 34
BLACKTAIL AT
NYP LOT 34
BLACKTAIL AT
NYP LOT 34
BLACKTAIL AT
NYP LOT 34
BLACKTAIL AT
NYP LOT 34
BLACKTAIL AT
NYP LOT 34
BLACKTAIL AT
NYP LOT 34
BLACKTAIL AT
LOT 34
BLACKTAIL AT
NYP
NYP LOT 34
BLACKTAIL AT
LOT 34
BLACKTAIL
AT NYP
NEW CONSTRUCTION blacktail at nyp – lot 34
ABOUT THE BUILDER

WEST WINDSOR INVESTMENTS

Brian Boos has been a Colorado builder for over 40 years. Born and raised between Windsor and Greeley, Brian has been around the construction industry his entire life. As a native Coloradoan, he started in 1980 with smaller renovations before gaining certifications in Residential and Commercial building and focusing on building new homes in the northern front range of Colorado.

Brian established Executive Homes in 1985. As he developed his business, his dedication to quality propelled him toward the top of the industry building 150 homes annually on the front range for 27 years with over 1,600 homes built in that timeframe. Brian not only served his community by building homes but also led the Northern Colorado Home Builders Association, working with Colorado State University’s builders program.

Being an avid outdoor recreational enthusiast Brian and his wife Nickie relocated to the Yampa Valley in 2006. Brian has reengaged in

building at a slower pace; focusing on a pace that allowed for enjoyment of the quality of building rather than just the quantity. He custom designs and matches every home and lot, mindful of views and the neighborhood ambience. Brian’s team of like-minded, talented professionals focus on a streamlined building process to deliver a high quality home built e ciently and at the lowest price per square foot possible.

BLACKTAIL AT NYP LOT 34

Brian Boos is a true professional when it comes to home building. He and his team were an absolute pleasure to work with throughout the entire time we were building our home. He was always available for questions or to discuss potential changes we wanted to make. Brian and his team do not cut corners - his attention to detail is evident to everyone that comes into our home. He included thoughtful details that truly make our house a home. Brian also stands by his work—any issues we have, including punch list items, are addressed quickly, correctly and with a smile on his face (or his team’s face). We highly recommend Brian for anyone looking to build a home. Brian and his team will deliver a high-quality product and will do everything in their power to complete the home on time. We would not hesitate to use Brian again—a great builder and a great guy!

I wanted to let you know how much we enjoy our new home and quality workmanship that went into building such a nice home. The design, construction and materials are fantastic. One of things benefits was working with the builder, Brian Boos, throughout the construction process. Brian and his team are real craftsmen with attention to every little detail, professional, and friendly. We are very pleased with our new home. Everything was delivered as expected.

Nearly two years ago, we purchased a home built by Brian and his team. Brian is by far the best contractor we have ever worked with. Our home is extremely well built and Brian’s attention to every detail is amazing. We could not be happier with our new home. We have absolutely loved working with Brian and his team. Through the entire process, Brian and his team have been extraordinary friendly, approachable, available, responsive and professional. On all commitments, Brian and his team have delivered with constant communication, attention to detail, budget and met every deadline. Brian and his team continue to ask if everything is satisfactory and if there is anything further they can do to make our home perfect for us. Working with Brian has been an absolute joy. We would absolutely recommend Brian to all our friends and family.

BLACKTAIL AT NYP LOT 34
ABOUT WEST WINDSOR INVESTMENTS
— JAY & JONELLE

JOSIE TOLAN

C : 970.846.6781

JOSIE.TOLAN@STEAMBOATSIR.COM

JOSIETOLAN.STEAMBOATSIR.COM

OLSON | TOLAN TEAM

2130 RESORT DRIVE, SUITE 400

steamboat springs, colorado

Co-listed with Chris Wittemyer, The Group 970.846.1364

$1,490,000 #SS9738910

AT NYP LOT 34
BLACKTAIL
23430 postrider trail oak creek, co

Turn static files into dynamic content formats.

Create a flipbook
Issuu converts static files into: digital portfolios, online yearbooks, online catalogs, digital photo albums and more. Sign up and create your flipbook.
Lot 34 Young's Peak by Steamboat Sotheby's International Realty - Issuu