30625 Reinsman Ct

Page 1

CONSTRUCTION

30625 REINSMAN COURT NEIGHBORHOODS AT YOUNG’S PEAK Oak Creek, Colorado NEW
blacktail at nyp — lot 22- d Renderings are for marketing purposes only.
Landscaping is the responsibility of the
buyer.

The Edmonton – Lot 22-D Blacktail at NYP

New construction located in South Routt in close proximity to Stagecoach Reservoir and State Park – Blacktail Meadows in Neighborhoods at Young’s Peak. Large 0.29 acre lot and fantastic location within the Stagecoach community on all paved roads. This 5 bedroom, 3 bath home features vaulted ceilings, central A/C, and 3 main-floor bdrms, including a primary with an en-suite bath and walk-in closet. Enjoy a covered front entrance into the main living area with gas log fireplace and large window to take in the views. The kitchen and dining area have access to a covered patio with additional access to the attached 2-car garage. The lower level has a spacious living space, 2 bedrooms, and a full bath. Enjoy sweeping views of Young’s Peak and the old Stagecoach Ski Area.

BLACKTAIL AT NYP LOT 22-D
5 BEDROOMS 3 BATHS 2,508 SQ FT 2 CAR GARAGE 0.29 ACRE LOT EST COMPLETION DEC 2022
3D Rendering

CONSTRUCTION

PLANS

NEW
blacktail at nyp – lot 22 -d
BLACKTAIL AT NYP LOT 22-D FLOORPLAN FLOORPLAN – MAIN LEVEL • 1,255 SF
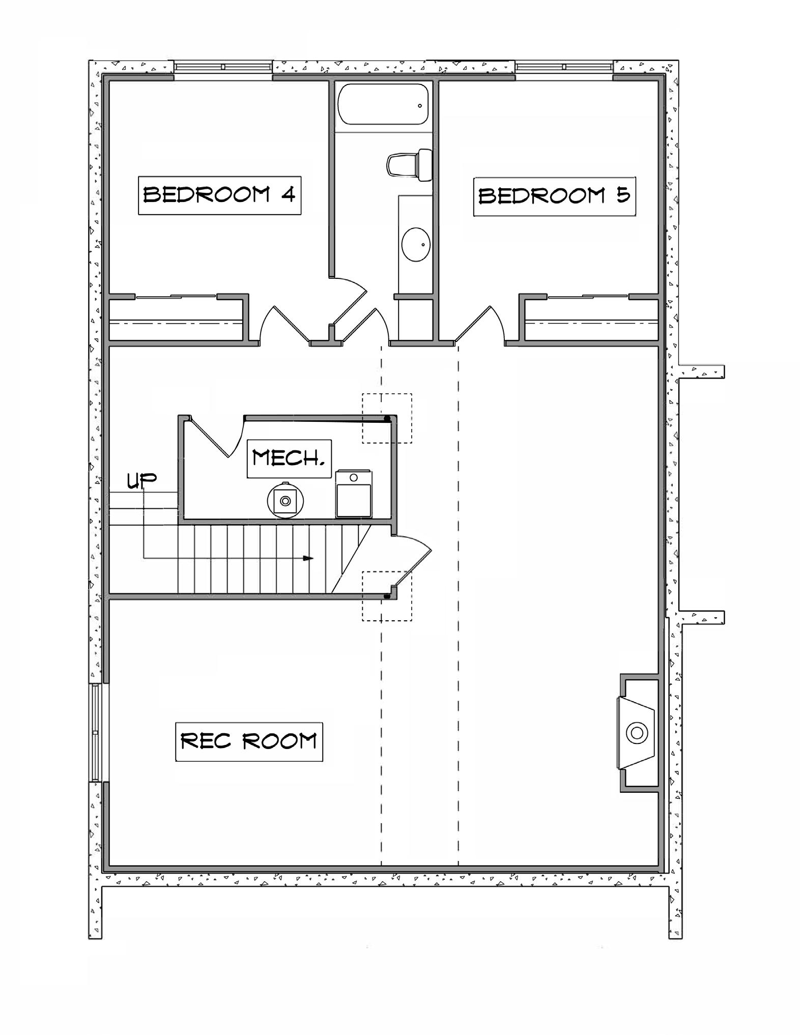
BLACKTAIL AT NYP LOT 22-D FLOORPLAN FLOORPLAN – LOWER LEVEL • 1,253 SF
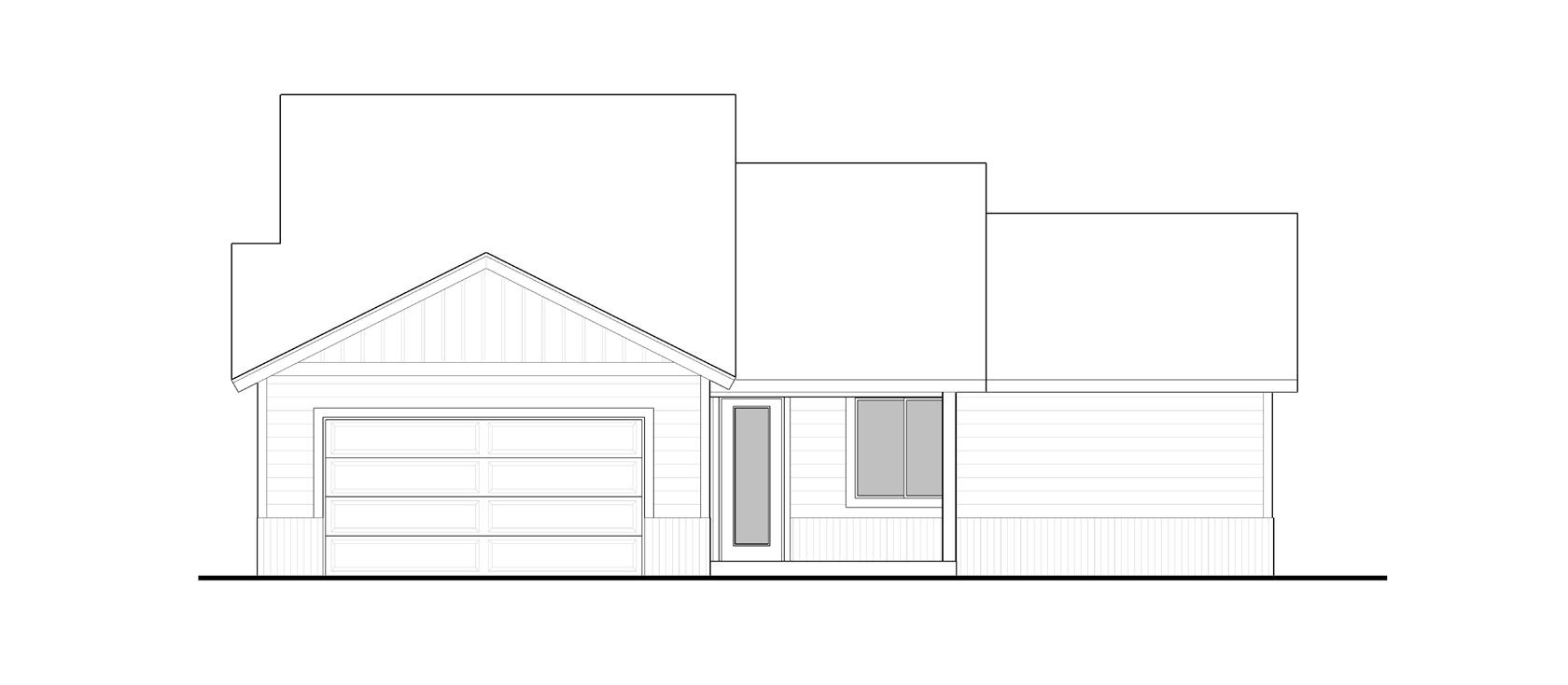
BLACKTAIL AT NYP LOT 22-D ELEVATIONS ELEVATIONS
FRONT LEFT
BACK
RIGHT
SITE & GRADING PLAN
NEW CONSTRUCTION blacktail at nyp – lot 22 -d DESIGN & FINISHES
BLACKTAIL AT NYP LOT 22-D

KITCHEN COUNTERTOPS

KITCHEN BACKSPLASH

KITCHEN & MAIN

ALL CABINETS

KITCHEN FAUCET

KITCHEN SINK

STAIR PENDANTS

DINING ROOM CHANDELIER

MUDROOM FLOORING

MAIN-LEVEL FLOORING

BLACKTAIL AT NYP LOT 22-D IMAGES/FINISHES ARE ILLUSTRATIVE IN NATURE AND NOT AN EXACT REPRESENTATION OF FINISHED PRODUCT. ITEMS ARE SUBJECT TO CHANGE WITHOUT NOTICE, BASED ON AVAILABILITY.
LEVEL
Pergo Laminate Chancing Seafoam Cedar 6" x 48"
Kraus Standart with drain attachments
Marazzi Tile Moroccan Concrete Blue Gray 24" x 24"
Koch Cabinetry Pecan on Rustic Birch
Ceasarstone Oxidian
Progress Kylo 4 Light
Minka Lavery Pullman Junction
Daltile Retrospace Hex 6" x 6"
Vigo Edison

GUEST BATH BACKSPLASH

BATH

BATH

PRIMARY

PRIMARY

BATHROOMS

SHOWER

WALL

BATHROOM LIGHTING

BATH SHOWER

PRIMARY BATH SHOWER SIDE WALLS

BLACKTAIL AT NYP LOT 22-D IMAGES/FINISHES ARE ILLUSTRATIVE IN NATURE AND NOT AN EXACT REPRESENTATION OF FINISHED PRODUCT. ITEMS ARE SUBJECT TO CHANGE WITHOUT NOTICE, BASED ON AVAILABILITY.
LOWER
BATH FLOOR Marazzi Tile Moroccan Concrete Terra Cotta 24" x 24"
Progress Goodwin
Tile bar Seaport Arctic White 2" x 10" ALL BATH COUNTERTOPS Caesarstone Excava BATH FAUCET Delta Nicoli GUEST
FIXTURE Shower & Tub Delta Nicoli GUEST
FLOORING Marazzi Tile Moroccan Concrete Terra Cotta 8" x 9" and Hex
BATH FLOOR Marazzi Tile Moroccan Concrete Terra Cotta 24" x 24"
PRIMARY
BATH FIXTURE Rain Shower Head Delta Universal PRIMARY
FLOOR Daltile Retro Rounds Cream Soda 1.5" x 1.5" Penny Round
Daltile Vitruvian Matte White 3" x 6"
BATH
BACK
American Olean Creekwood Birch Stream 6" x 36" BATH VANITY SINK Kohler Caxton
NEW CONSTRUCTION blacktail at nyp – lot 22 -d LOCATION

NORTHWEST

This South Routt County home in Blacktail Meadows in Neighborhoods at Young’s Peak is located in the northwestern part of Colorado near Stagecoach, only a 25 minute drive to beautiful Steamboat Springs—a charming community with approximately 13,000 residents. Steamboat is unique, famous for its world-class skiing, but still bursting with ranching tradition. The town still maintains its western heritage, small-town character, and strong sense of community.

town boasts great schools and wonderful restaurants as well as the excellent regional health care center. People of all ages are attracted to Steamboat not just because of the vibrant, active community, but also because

the thriving businesses that are based here.

won’t find any malls, but you can shop at an eclectic array of quality stores, many of which are housed in 100+ year-old buildings along the main street.

The
of
You
COLORADO DENVER COLORADO SPRINGS BOULDER GRAND JUNCTION SILVERTHORNEVAIL GLENWOOD SPRINGS FORT COLLINS STEAMBOAT SPRINGS WYOMING COLORADO UTAH COLORADO 70 70 25 25 80 40 40 40 129 131 287 287 9 STAGECOACH
PROXIMITY TO STEAMBOAT SPRINGS 14 14 131 131 131 14 16 16 STEAMBOAT SKI AREA 29 MINUTES DOWNTOWN STEAMBOAT SPRINGS 34 MINUTES BOB ADAMS AIRPORT EMERALD MOUNTAIN RABBIT EARS PASS STAGECOACH RESERVOIR LAKE CATAMOUNT TO HAYDEN TO DENVER 40 40 40 40 40 LOT 22-D OAK CREEK
IN STAGECOACH – BACKTAIL MEADOWS AT NEIGHBORHOODS AT YOUNG’S PEAK 14 14 16 16 16 16 16 14 LOT 22-D STAGECOACH RESERVOIR STAGECOACH STATE PARK

STAGECOACH STATE PARK

Stagecoach State Park sets the stage for great recreation in the lush Yampa Valley. Panoramic vistas and views are stunning backdrops to the 820-acre reservoir providing renown lake and river fishing.

A year-round destination, the Park also makes a great base to explore the variety of sports and attractions of the area. An array of activities awaits including boating, fishing, hiking, picnicking and camping.

Stagecoach State Park is a great place to hold base camp when exploring the many outdoor opportunities nearby such as the Flat Tops and Sarvis Creek Wilderness Area.

If you’re looking to try a new hobby, fat tire bikes as well as fishing rods are available for rent at no cost — just stop in the Park office and the staff will hook you up.

BLACKTAIL AT NYP LOT 22-D

STEAMBOAT SPRINGS, CO

Steamboat Springs, also known as Ski Town USA®, is part of the Yampa Valley and is a 3-hour drive from Denver. From skiing and fly fishing, to camping, hiking, rodeos and golf, Steamboat Springs is a destination for year round activities. Steamboat is best known for its epic skiing, with an average of over 330” of Champagne Powder® each winter. Besides skiing, Steamboat is also known for its other vibrant seasons, its gourmet restaurants, fashionable shopping, arts and culture, and its western heritage. With a population of about 13,000, the American West is alive and well in Steamboat Springs with its strong economic base grounded in agriculture and tourism. The town offers 4 golf courses, endless hiking, biking and riding terrain, and the beautiful Yampa River flowing through town. Steamboat is a unique mountain town with a true sense of community, a family friendly place enriched by a diverse economy and rooted in its western heritage.

BLACKTAIL AT NYP LOT 22-D
NEW CONSTRUCTION blacktail at nyp – lot 22 -d ABOUT THE BUILDER

WEST WINDSOR INVESTMENTS

Brian Boos has been a Colorado builder for over 40 years. Born and raised between Windsor and Greeley, Brian has been around the construction industry his entire life. As a native Coloradoan, he started in 1980 with smaller renovations before gaining certifications in Residential and Commercial building and focusing on building new homes in the northern front range of Colorado.

Brian established Executive Homes in 1985. As he developed his business, his dedication to quality propelled him toward the top of the industry building 150 homes annually on the front range for 27 years with over 1,600 homes built in that timeframe. Brian not only served his community by building homes but also led the Northern Colorado Home Builders Association, working with Colorado State University’s builders program.

Being an avid outdoor recreational enthusiast Brian and his wife Nickie relocated to the Yampa Valley in 2006. Brian has reengaged in

building at a slower pace; focusing on a pace that allowed for enjoyment of the quality of building rather than just the quantity. He custom designs and matches every home and lot, mindful of views and the neighborhood ambience. Brian’s team of like-minded, talented professionals focus on a streamlined building process to deliver a high quality home built efficiently and at the lowest price per square foot possible.

BLACKTAIL AT NYP LOT 22-D

Brian Boos is a true professional when it comes to home building. He and his team were an absolute pleasure to work with throughout the entire time we were building our home. He was always available for questions or to discuss potential changes we wanted to make. Brian and his team do not cut corners - his attention to detail is evident to everyone that comes into our home. He included thoughtful details that truly make our house a home. Brian also stands by his work—any issues we have, including punch list items, are addressed quickly, correctly and with a smile on his face (or his team’s face). We highly recommend Brian for anyone looking to build a home. Brian and his team will deliver a high-quality product and will do everything in their power to complete the home on time. We would not hesitate to use Brian again—a great builder and a great guy!

I wanted to let you know how much we enjoy our new home and quality workmanship that went into building such a nice home. The design, construction and materials are fantastic. One of things benefits was working with the builder, Brian Boos, throughout the construction process. Brian and his team are real craftsmen with attention to every little detail, professional, and friendly. We are very pleased with our new home. Everything was delivered as expected.

Nearly two years ago, we purchased a home built by Brian and his team. Brian is by far the best contractor we have ever worked with. Our home is extremely well built and Brian’s attention to every detail is amazing. We could not be happier with our new home. We have absolutely loved working with Brian and his team. Through the entire process, Brian and his team have been extraordinary friendly, approachable, available, responsive and professional. On all commitments, Brian and his team have delivered with constant communication, attention to detail, budget and met every deadline. Brian and his team continue to ask if everything is satisfactory and if there is anything further they can do to make our home perfect for us. Working with Brian has been an absolute joy. We would absolutely recommend Brian to all our friends and family.

BLACKTAIL AT NYP LOT 22-D
— EMILY CURTIS — ERIC & MARY NILSSON — JAY & JONELLE ABOUT WEST WINDSOR INVESTMENTS

JOSIE TOLAN

OLSON | TOLAN

BLACKTAIL AT NYP LOT 22-D 30625 reinsman court oak creek, co $1,009,990 #7785396
C : 970.846.6781 JOSIE.TOLAN@STEAMBOATSIR.COM JOSIETOLAN.STEAMBOATSIR.COM
TEAM 2130 RESORT DRIVE, SUITE 400 steamboat springs, colorado Co-listed with Chris Wittemyer, The Group 970.846.1364

Turn static files into dynamic content formats.

Create a flipbook
Issuu converts static files into: digital portfolios, online yearbooks, online catalogs, digital photo albums and more. Sign up and create your flipbook.