30615 Reinsman Court

Page 1

30615

REINSMAN COURT

NEIGHBORHOODS AT YOUNG’S PEAK

Oak Creek, Colorado

NEW CONSTRUCTION

blacktail at nyp — lot 21- d

Renderings

are for marketing purposes only. Landscaping is the responsibility of the buyer.

The Calgary – Lot 21-D Blacktail at NYP

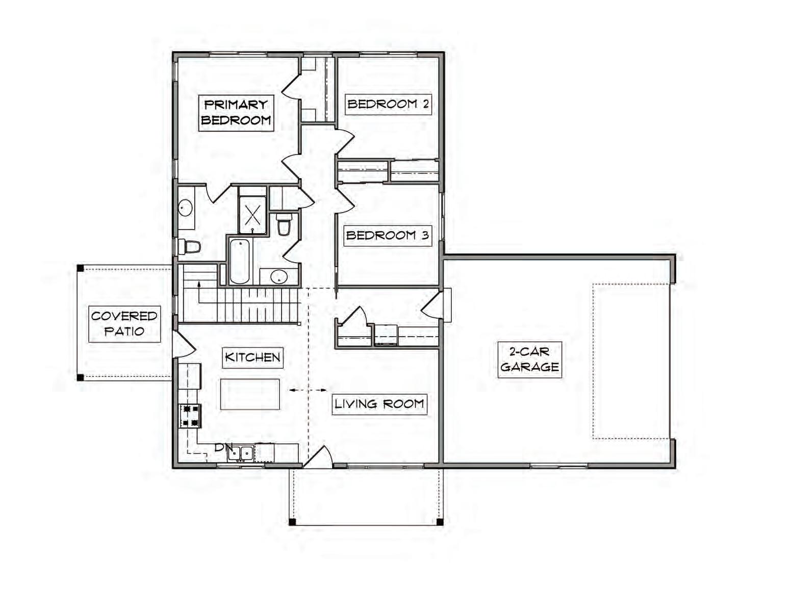
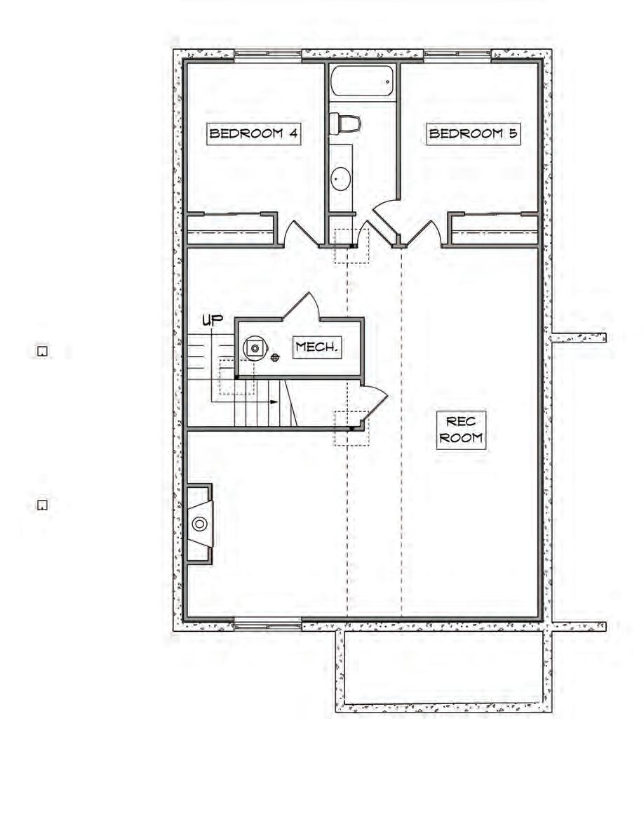
New construction located in South Routt in close proximity to Stagecoach Reservoir and State Park – Blacktail Meadows in Neighborhoods at Young’s Peak. Large 0.43 acre lot and fantastic location within Stagecoach on all paved roads. This 5 bedroom, 3 bath home features vaulted ceilings, central air conditioning, 3 main floor bedrooms including a primary with en-suite bath and walk-in closet, kitchen with access to a covered patio, mudroom and laundry combination, and attached 2 car garage. Finished lower level with a spacious second living space with a gas fireplace, 2 bedrooms, and full bathroom. Enjoy sweeping views of Young’s Peak and the old Stagecoach Ski Area.

5 BEDROOMS

3 BATHS

2,300 SQ FT

2 CAR GARAGE

0.43 ACRE LOT

EST COMPLETION EARLY 2023

BLACKTAIL AT NYP LOT 21-D
3D Rendering

NEW CONSTRUCTION

blacktail at nyp – lot 21 -d

PLANS

BLACKTAIL
BLACKTAIL AT NYP LOT 21-D FLOORPLAN
BLACKTAIL AT NYP LOT 21-D ELEVATIONS
ELEVATIONS
FRONT LEFT BACK RIGHT
SITE & GRADING PLAN

NEW CONSTRUCTION

blacktail at nyp – lot 21 -d

DESIGN & FINISHES

KITCHEN BACKSPLASH

TileBar Meadowmere Cement Gray 3" Hexagon Matte

KITCHEN & MAIN LEVEL

ALL COUNTERTOPS

Ceasarstone Layalite

ISLAND PENDANT Quorum International 16" Barn Style

MUDROOM BACKSPLASH

DaltileBar Vitruvian Matte White 6" x 6"

MUDROOM SINK Kraus 24" Undermount

MUDROOM FLOORING Daltile Brickwork Alcove 2" x 8" Herringbone Pattern

MUDROOM FAUCET Kraus Merlin

DINING ROOM CHANDELIER Livex Industro 4 Light

STAIR PENDANT Progess Lighting Archives Single 9" Light

ALL CABINETRY Pewter Stain on Maple

KITCHEN FAUCET Vigo

KITCHEN SINK Kraus Standart with drain attachments

LIVING ROOM CHANDELIER Elk Home Brigantine 5 Light

MAIN-LEVEL FLOORING Pergo Laminate Outlast Plus Grey Optimus Pine 6" x 48"

IMAGES/FINISHES ARE ILLUSTRATIVE IN NATURE AND NOT AN EXACT REPRESENTATION OF FINISHED PRODUCT. ITEMS ARE SUBJECT TO CHANGE WITHOUT NOTICE, BASED ON AVAILABILITY.

BLACKTAIL AT NYP LOT 21-D
Edison

ALL CABINETRY Pewter Stain on Maple

BATHROOM FAUCET Miseno Contemporary

BATHROOMS

BATHROOM LIGHTING Elk Home Brigantine

BATH VANITY SINK Kohler Caxton

GUEST BATH FIXTURE

Shower & Tub Miseno Mia

ALL BATHROOM FLOOR Daltile Wanderwise Roam 12" x 24"

ALL BATH COUNTERTOPS

Ceasarstone Layalite

PRIMARY BATH SHOWER WALL American Olean Conrad Tile – Brick Sage

BLACKTAIL AT NYP LOT 21-D IMAGES/FINISHES ARE ILLUSTRATIVE IN NATURE AND NOT AN EXACT REPRESENTATION OF FINISHED PRODUCT. ITEMS ARE SUBJECT TO CHANGE WITHOUT NOTICE, BASED ON AVAILABILITY.

NEW CONSTRUCTION

blacktail at nyp – lot 21 -d

PHOTOS

BLACKTAIL AT NYP LOT 21-D
BLACKTAIL AT NYP LOT 21-D
BLACKTAIL AT NYP LOT 21-D
BLACKTAIL AT NYP LOT 21-D
BLACKTAIL AT NYP LOT 21-D
BLACKTAIL AT NYP LOT 21-D
BLACKTAIL AT NYP LOT 21-D
BLACKTAIL AT NYP LOT 21-D
BLACKTAIL AT NYP LOT 21-D

NEW CONSTRUCTION

blacktail at nyp – lot 21 -d

LOCATION

This South Routt County home in Blacktail Meadows in Neighborhoods at Young’s Peak is located in the northwestern part of Colorado near Stagecoach, only a 25 minute drive to beautiful Steamboat Springs—a charming community with approximately 13,000 residents. Steamboat is unique, famous for its world-class skiing, but still bursting with ranching tradition. The town still maintains its western heritage, small-town character, and strong sense of community.

The town boasts great schools and wonderful restaurants as well as the excellent regional health care center. People of all ages are attracted to Steamboat not just because of the vibrant, active community, but also because of the thriving businesses that are based here. You won’t find any malls, but you can shop at an eclectic array of quality stores, many of which are housed in 100+ year-old buildings along the main street.

NORTHWEST COLORADO DENVER COLORADO SPRINGS
GRAND JUNCTION SILVERTHORNE VAIL GLENWOOD SPRINGS
STEAMBOAT
WYOMING COLORADO UTAH COLORADO 70 70 25 25 80 40 40 40 129 131 287 287 9 STAGECOACH
BOULDER
FORT COLLINS
SPRINGS
PROXIMITY TO STEAMBOAT SPRINGS 14 14 131 131 131 14 16 16 STEAMBOAT SKI AREA 29 MINUTES DOWNTOWN STEAMBOAT SPRINGS 34 MINUTES BOB ADAMS AIRPORT EMERALD MOUNTAIN RABBIT EARS PASS STAGECOACH RESERVOIR LAKE CATAMOUNT TO HAYDEN TO DENVER 40 40 40 40 40 LOT
OAK CREEK
21-D
IN STAGECOACH – BACKTAIL MEADOWS AT NEIGHBORHOODS AT YOUNG’S PEAK 14 14 16 16 16 16 16 14 STAGECOACH
STAGECOACH STATE PARK LOT 21-D
RESERVOIR

STAGECOACH STATE PARK

Stagecoach State Park sets the stage for great recreation in the lush Yampa Valley. Panoramic vistas and views are stunning backdrops to the 820-acre reservoir providing renown lake and river fishing.

A year-round destination, the Park also makes a great base to explore the variety of sports and attractions of the area. An array of activities awaits including boating, fishing, hiking, picnicking and camping.

Stagecoach State Park is a great place to hold base camp when exploring the many outdoor opportunities nearby such as the Flat Tops and Sarvis Creek Wilderness Area.

If you’re looking to try a new hobby, fat tire bikes as well as fishing rods are available for rent at no cost — just stop in the Park office and the staff will hook you up.

BLACKTAIL AT NYP LOT 21-D

STEAMBOAT SPRINGS, CO

Steamboat Springs, also known as Ski Town USA®, is part of the Yampa Valley and is a 3-hour drive from Denver. From skiing and fly fishing, to camping, hiking, rodeos and golf, Steamboat Springs is a destination for year round activities. Steamboat is best known for its epic skiing, with an average of over 330” of Champagne Powder® each winter. Besides skiing, Steamboat is also known for its other vibrant seasons, its gourmet restaurants, fashionable shopping, arts and culture, and its western heritage. With a population of about 12,000, the American West is alive and well in Steamboat Springs with its strong economic base grounded in agriculture and tourism. The town offers 4 golf courses, endless hiking, biking and riding terrain, and the beautiful Yampa River flowing through town. Steamboat is a unique mountain town with a true sense of community, a family friendly place enriched by a diverse economy and rooted in its western heritage.

BLACKTAIL AT NYP LOT 21-D

blacktail at nyp – lot 21 -d

ABOUT THE BUILDER

NEW CONSTRUCTION

WEST WINDSOR INVESTMENTS

Brian Boos has been a Colorado builder for over 40 years. Born and raised between Windsor and Greeley, Brian has been around the construction industry his entire life. As a native Coloradoan, he started in 1980 with smaller renovations before gaining certifications in Residential and Commercial building and focusing on building new homes in the northern front range of Colorado.

Brian established Executive Homes in 1985. As he developed his business, his dedication to quality propelled him toward the top of the industry building 150 homes annually on the front range for 27 years with over 1,600 homes built in that timeframe. Brian not only served his community by building homes but also led the Northern Colorado Home Builders Association, working with Colorado State University’s builders program. Being an avid outdoor recreational enthusiast Brian and his wife Nickie relocated to the Yampa Valley in 2006. Brian has reengaged in

building at a slower pace; focusing on a pace that allowed for enjoyment of the quality of building rather than just the quantity. He custom designs and matches every home and lot, mindful of views and the neighborhood ambience. Brian’s team of like-minded, talented professionals focus on a streamlined building process to deliver a high quality home built efficiently and at the lowest price per square foot possible.

BLACKTAIL AT NYP LOT 21-D

Brian Boos is a true professional when it comes to home building. He and his team were an absolute pleasure to work with throughout the entire time we were building our home. He was always available for questions or to discuss potential changes we wanted to make. Brian and his team do not cut corners - his attention to detail is evident to everyone that comes into our home. He included thoughtful details that truly make our house a home. Brian also stands by his work—any issues we have, including punch list items, are addressed quickly, correctly and with a smile on his face (or his team’s face). We highly recommend Brian for anyone looking to build a home. Brian and his team will deliver a high-quality product and will do everything in their power to complete the home on time. We would not hesitate to use Brian again—a great builder and a great guy!

I wanted to let you know how much we enjoy our new home and quality workmanship that went into building such a nice home. The design, construction and materials are fantastic. One of things benefits was working with the builder, Brian Boos, throughout the construction process. Brian and his team are real craftsmen with attention to every little detail, professional, and friendly. We are very pleased with our new home. Everything was delivered as expected.

Nearly two years ago, we purchased a home built by Brian and his team. Brian is by far the best contractor we have ever worked with. Our home is extremely well built and Brian’s attention to every detail is amazing. We could not be happier with our new home. We have absolutely loved working with Brian and his team. Through the entire process, Brian and his team have been extraordinary friendly, approachable, available, responsive and professional. On all commitments, Brian and his team have delivered with constant communication, attention to detail, budget and met every deadline. Brian and his team continue to ask if everything is satisfactory and if there is anything further they can do to make our home perfect for us. Working with Brian has been an absolute joy. We would absolutely recommend Brian to all our friends and family.

BLACKTAIL AT NYP LOT 21-D
— EMILY CURTIS — ERIC & MARY NILSSON ABOUT WEST WINDSOR INVESTMENTS
— JAY & JONELLE

JOSIE TOLAN

C : 970.846.6781

JOSIE.TOLAN@STEAMBOATSIR.COM

JOSIETOLAN.STEAMBOATSIR.COM

OLSON | TOLAN TEAM 2130 RESORT DRIVE, SUITE 400 steamboat springs, colorado

Co-listed with Chris Wittemyer, The Group 970.846.1364

30615 reinsman court oak creek, co

$995,000 #8692844

BLACKTAIL AT NYP LOT 21-D

Turn static files into dynamic content formats.

Create a flipbook
Issuu converts static files into: digital portfolios, online yearbooks, online catalogs, digital photo albums and more. Sign up and create your flipbook.