Skip to main content

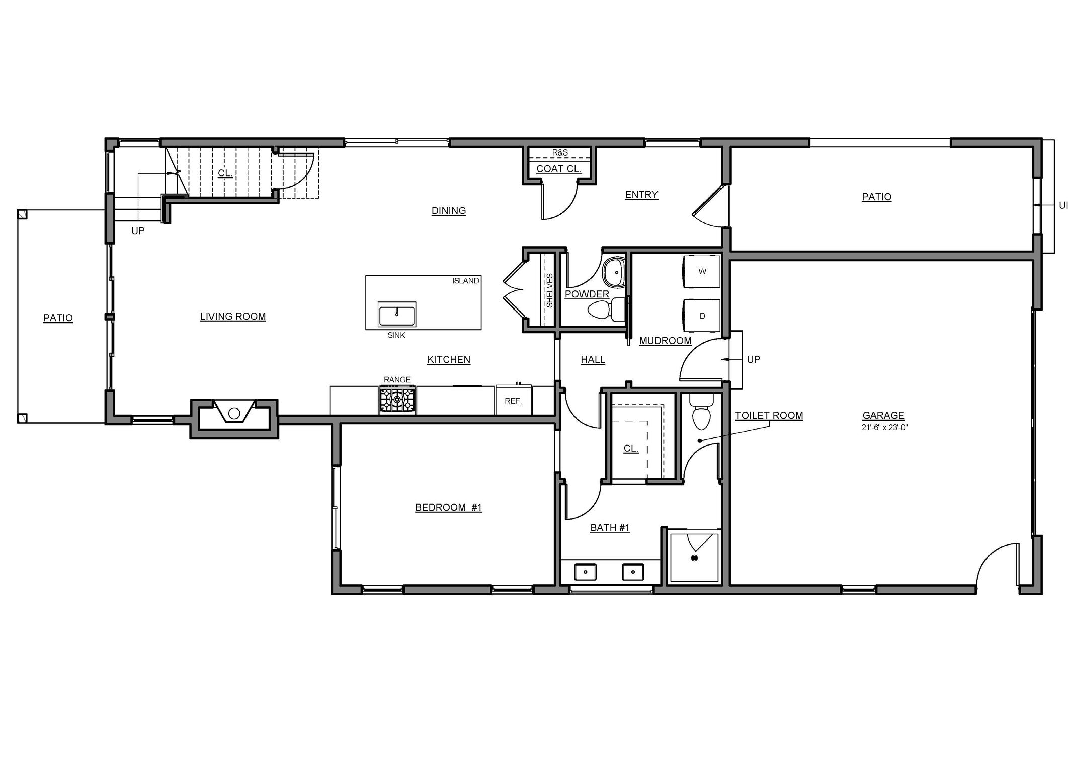
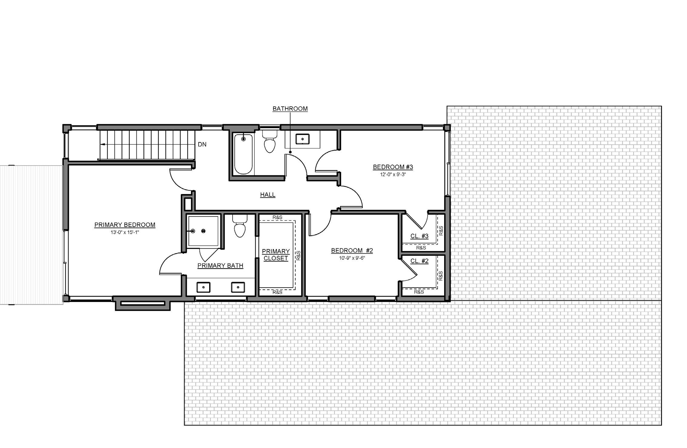
The Glen Marketing Packet LOT 59 FLOORPLANS

Page 1


LOT 59 FLOORPLAN

Turn static files into dynamic content formats.

Create a flipbook
The Glen Marketing Packet LOT 59 FLOORPLANS by SteamboatRP - Issuu