Skip to main content

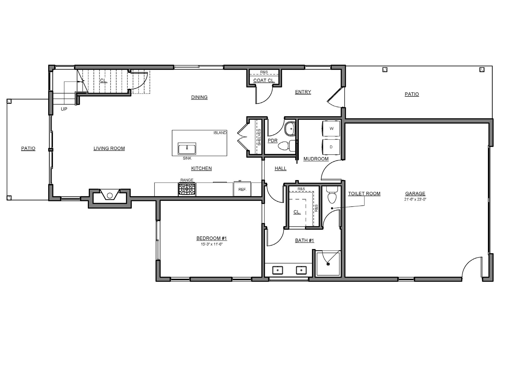
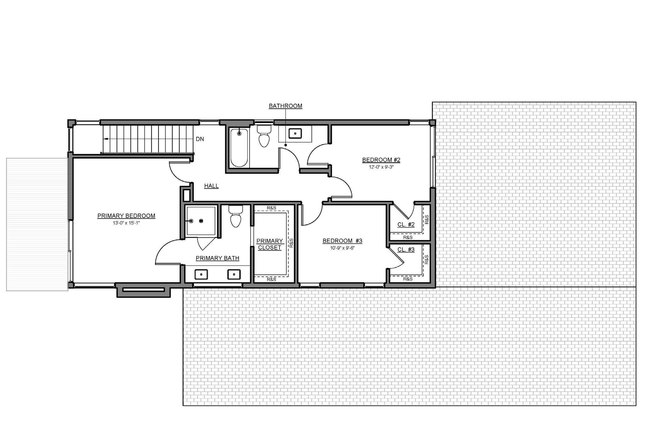
The Glen Marketing Packet LOT 58 FLOORPLANS

Page 1


LOT 58 FLOORPLAN

Turn static files into dynamic content formats.

Create a flipbook
The Glen Marketing Packet LOT 58 FLOORPLANS by SteamboatRP - Issuu