Moreton Border News - 30th January 2026

Page 1


Moreton BorderNews

MORETHAN26YEARSOFSERVINGTHECOMMUNITY

Australia Day flipping Marburg snags, PAGE 3 A Catholic Co-Educational Secondary College Year 7 to Year 11 (Year 12 in 2026)

Elated award winner

GRANDCHESTER Rural Fire

Brigade volunteer Donna Jackwitz was awarded Citizen of the Year at Lions Club of Rosewood’sAustraliaDayceremony.

Donna is Grandchester born and bred, and has volunteered in various capacities for four decades.

She is described as someone who does what needs to be done without asking for anything in return.

Read more about Donna’s work volunteering and the other nominees on page 6.

(Lyle Radford: 530724)

LIMITED PLACES in Years 8 to 11 in 2025

Friday,30January,2026

Our expert Elsie is ready to get you sorted this summer!

RAMBLINGS page 10

DINING page 11

REAL ESTATE page 14

SPORT pages 15-16

WEATHER

Fiery sky in Lyle’s eye

JANUARY 2026 is so hot, you could fry an egg on this photograph.

Our photographer Lyle Radford was enjoying the cool aircon in his car when he noticed the sky burning bright in deep orange, yellow and red.

At the end of a very hot day, as darkness fell, the cooler night air extinguished the fire above.

Temperatures this month in Rosewood and the surrounding districts, ranged between the

high 20s to the high 30s °C.

The highest observed maximum temperature was 35.7 °C on 17 January.

Across other days in the month, observed daily maximums varied roughly from about 29 °C up to mid-30s, reflecting typical summertime heat conditions for the region, with several days over 33–34 °C.

The Bureau of Meteorology warns people when the mercury rises to stay where it is cool - in your homes, a library, community centre or a shopping centre.

Edgerton Park opened

EDGERTON Park in Plainland is now open to the public after being partially accepted by Lockyer Valley Regional Council.

The confirmation, provided by property developer Maddison Ridge, means all temporary fencing has now been removed and the park is available for community use, while entering the next stage of its council handover. Maddison Ridge said in a statement it hoped the park would serve as a valued community space.

Located within the Edgerton development, the park includes an active play precinct for children, a large open kick-about space, and a bio-basin.

Lockyer Valley Regional Council Sport and Recreation Portfolio Councillor Anthony Wilson said

Edgerton Park in Plainland is open to the public after a lengthy delivery process. (Jesse Hamilton)

that despite the park now being on-maintenance, responsibility remained with the developer.

“The Edgerton Park developer is still responsible for maintaining and carrying out any inspections and safety checks on the site for the next 12 months,” he said.

“This includes ensuring the grass and trees are watered and established and the equipment remains safe.

THIS week we all celebrate Australia.

Cadet journalist Jess Leis was at Marburg’s Australia Day breakfast.

Her story and photographs are on pages 3 and 7.

The Lions Club of Rosewood announced the winner of the Rosewood Citizen of the Year on Monday - see page 6.

My Ramblings column (page 10) gives insight into the main driver behind my migration to Australia from South Africa.

I have a deep appreciation for this country and its people. I have been welcomed with open arms and my children are better for it.

A West Moreton ambulance leader is one of three paramedics announced who are Ambulance Service Medal recipients in the Australia Day 2026 Honours List.

That story is on page 13.

And in sport a young basketball player has aspirations to make it big in America.

He explains his ambitions while touching on why he felt compelled to change his life for the better a year ago.

Read all about it on page 16.

As the sun set, the sky was painted in hues of red, gold and orange. (Lyle Radford: 530254)

Oz Day movement of BBQ snags at Marburg

THERE was movement in Marburg, for word had passed around,

That there would be a gathering, for Australia Day brekkie on community ground..

Hosted by the Marburg and District Residents Association, the much-loved morning event unfolded at the public park on Queen Street, drawing locals together in a relaxed, familyfriendly celebration that ran through to late morning. From early on, the park filled with the sounds of conversation, laughter and music as residents arrived to share breakfast and mark the national day side by side.

Australian flags flew, while children squealed with delight as theyplayedontheswings.Damperwaspreparedandcookedfresh, and the smell of fresh barbecue filled the air. Live music drifted through the park, and bush poetry added a distinctly Australian

rhythm to the morning. Familiar verses were read with warmth and enthusiasm, including Mulga Bill’s Bicycle and The Man from Snowy River, stirring memories and a quiet sense of pride among those gathered.

The event captured the essence

of Marburg itself: welcoming and grounded in community spirit.

With breakfast enjoyed, stories shared and neighbours reconnecting, the Australia Day brekkie once again proved why it remains a cherished tradition, offering a reminder of how fortunate the

GET READY FOR DISASTERS

community is and the strength found in celebrating together.

More pics, page 7

Mum Hayley Cox, shows little Clancy Cox how to make damper, while Sandra Hanel pours the water (Jess Leis: 530784)
Bill Samways and Bundamba’s own Yvonne Laegel get ready to turn the snags (530784)
Georgia Toft, Sandra Hanel and Brenda Berry made damper.

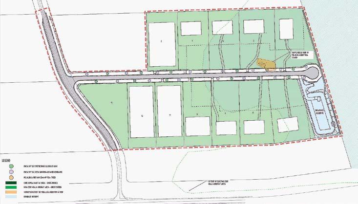
Large lots at Thagoona subdivision approved

A new large lot subdivision has been approved by the Ipswich council across two properties on Tarana Avenue at Thagoona.

The 14 lot subdivision is defined by distinct building envelopes on 11 of the new parcels of land to limit the clearing of core koala food and habitat trees, particularly on the north eastern portion of the properties.

The two existing properties on the land addressed as 11 Tarana Avenue (owned by Tarana Projects Pty Ltd) and 19 - 27 Tarana Avenue (owned by Michael Krause) currently contain homes and outbuildings.

Those homes will be retained on the lots with frontage to Tarana Avenue. Another allotment has been set as aside as a stormwater detention area.

The remaining 11 allotments, which are to be accessed off a new internal road, will be available for new housing. And it is

A diagram showing the layout of the new subdivision on Tarana Avenue. The white rectangles indicate the building envelopes on each of 11 of the 14 allotments.

those allotments which will be limited by building envelopes not only to cater to the presence of koala food and habitat trees, but due to a bushfire hazard overlay, the historic underground mining activities and a small stand of the endangered Melaleuca irbyana paperbark trees.

The application to subdivide the combined area of 7.13ha was submitted to council in July 2023

Community Catch Up

Tell us what matters to you in Division 4

Wednesday 4 February | 9.00 am – 11.00 am Walloon CWA Hall, 34 Karrabin Rosewood Road, Walloon Join us at the RADSc Walloon Community Pop Up Hub

Friday 6 February | 8.00 am – 10.00 am Karalee Chapters Bookshop, Café and Wine Bar, Karalee Shopping Centre, Junction Road, Karalee

Monday 9 February | 9.00 am – 11.00 am Rosewood Library, Event Space, Level 1, 15 Railway Street, Rosewood

Wednesday 11 February | 9.00 am – 11.00 am Marburg Community Centre, 110 Queen Street, Marburg Join us at the RADSc Marburg Community Pop Up Hub

Wednesday 18 February 9.00 am – 11.00 am Yamanto Coffee Club, Yamanto Central Shopping Centre, 488 Warwick Road, Yamanto

Wednesday 25 February 9.00 am – 11.00 am Funkibuds (near Aldi), Brassall Shopping Centre, 68 Hunter Street, Brassall

Councillor Jim Madden

Division 4

Phone: (07) 3810 7879

Email: jim.madden@ipswich.qld.gov.au

Councillor David Martin

Division 4

Phone: (07) 3810 6163

Email: david.martin@ipswich.qld.gov.au

and approved in December, last year.

According to the diagrams accompanying the council approval, the new allotments will range in size from 3,750sqm to 4,010sqm with the exception of Lot 1 which contains one of the existing residences (1.12ha).

The approval was granted based on the developers meeting an array of conditions.

Tarana Avenue is to be upgraded with kerb and channeling and drainage along the frontage of the subdivision and streetlighting is to be installed along the internal road.

Both sides of the new internal road reserve are to be landscaped with koala food trees.

All allotments are to be provided with adequate access to a water supply for firefighting purposes.

All new housing is to be designed and constructed according to the recommendations of the mining report which accompanied the application.

Any structures or improvements on each of the new housing allotments are to be built only within the defined building envelopes.

Dog proof fencing is to be installed around the boundary of each building envelope but any other fencing on the allotments is to be ‘koala permeable’.

Brand returns due

SCENIC Rim state MP Jon Krause has reminded registered brand or earmark owners that livestock brand returns are now due.

“If you own a registered brand or registered earmark, you must complete a brand return every year,” Mr Krause said.

“If returns are not submitted for three consecutive years, brands may be cancelled.

“It takes only a couple of minutes to complete the brand return – it’s simply not worth the risk of letting the brand registration lapse.

“If the brand or earmark is unchanged, you will need to complete a brands return every year.”

The regulations apply to registered cattle or horse brands and registered cattle earmark, with returns to be completed by the end of January.

Mr Krause said he was happy for his office, located at 91 Bris-

bane Street, Beaudesert, to assist with the compilation of brand returns.

“We will need a brand certificate or PIC number,” he said.

Mr Krause said residents would need to supply their PIC number for the online form to be completed.

Returns could also be completed online at ibrands.daf.qld. gov.au or by visiting the Government Agency at 1 Telemon Street, Beaudesert.

Brand details should also be updated including change of address, name, contact details, death or cancellation.

Brands and earmarks are not automatically transferred by a property sale or inheritance so the change of ownership must be lodged. A fee applies.

For more information, contact the Department of Agriculture and Fisheries on 13 25 23.

Magnificent lightshow

ON Tuesday evening south east Queenslandresidentsweretreated to a display of colour and contrast when the largest solar radiation stormin20yearssettheskyalight.

Broad brushstrokes of blue, purple, green and red turned the sky into an artist’s canvas that captivated earthlings everywhere.

The light show was caused by a severe solar storm hitting the Earth in a phenomenon called aurora australis. The storm was also predicted to create auroras at low latitudes in the northern hemisphere. Richard Thompson from the Bureau of Meteorology said aurora displays were some of the most impressive spectacles of nature.

“The phenomena arises from events on the sun millions of kilometres way,” he said.

“Massive solar flares have been known to blast streams of charged particles into the solar wind and outwards towards the earth. The magnetic field of the Earth draws

them in and they collide with atoms in the atmosphere.”

He explained that the colourful lights in the sky were generated by these collisions and their patterns and shapes were determined by the changing flow of charged particles and the varying magnetic fields. Auroras are also known as the northern lights or the southern lights, the aurora borealis (north) or aurora australis (south).

There are sounds associated with them as well and Colin Keay from the University of Newcastle saidthesewereproducedinasimilar way to the rare examples of instantaneous sounds from very large meteor fireballs.

“The turbulent plasma wake of the fireball excites electromagnetic waves in the Earth-Ionosphere cavity,” he said. This can lead to acoustic vibrations in suitable objects like loose hair or frozen pine needles. The resulting sounds are heard as hissing, swishing or cracklingbyanyoneincloseproximity.”

The solar radiation storm lit up the sky above St Paul’s Lutheran Church in Rosevale. (529851)
The aurora australis last Tuesday was the result of the largest solar radiation storm in 20 years. (529851)
Rosewood residents were treated to pinks, magenta and purples during the aurora australis event. (Lyle Radford: 529851)

Rosewood crowd cheers its 2026 Citizens

IT was a full house at Rosewood State School when the community gathered in the student hall to celebrate Australia Day presented by the Lions Club of Rosewood.

The winner was Donna Jackwitz who has volunteered as a first officer and secretary at Grandchester Rural Fire Brigade since 1970.

“Donna frequently attends call outs at all hours of the day and night for various emergencies and at times, has put her life on the line,” Bruce Richards the club’s treasurer said.

“When fighting fires she worries more about other people’s property and stock loss than she does about her own.

“She supports our youth and quietly supports others in their pursuit of employment through her contacts with local businesses.

“She has also helped prevent the closure of the Laidley Cattle Sale Yards.”

Donna is currently raising funds for Children’s Cancer by selling cakes and running raffles and encouraging people to participate in a 75 Km walk to raise money.

“Her volunteering has strengthened local community emergency response, supported countless families, uplifted young people, preserved local community assets and built a stronger more connected region,” he said.

“She asks for nothing in return, is truly inspirational and a much deserving winner.”

Other nominees were Roslyn Halter, Jenny Stubbs, Janet Spresser, Megan Hayne, Carmel Luetchford, Christine Turner, Delma Nicoll, Pam Lobwein and Terry Hobden.

“It was great to see the dignitaries, who also represent our community, attend this event and speak of their pride and acknowledge the achievements of all the nominees,” Bruce said.

“MP Wendy Bourne acknowledged and spoke about the 25

years this event has been held, and the value volunteers brought to the community.

“Jim Madden spoke of his

deep roots in the community and his love and support for community groups.

“And David Martin spoke of

his roots within the community, and acknowledged his mother’s history of being a resident of Rosewood.”

The Rosewood United Choir perform for the audience within Rosewood State School’s student hall. (Lyle Radford: 530724)
Ian Luetchford Rosewood Lions club president with nominee Roslyn Halter. (530724)
Ian Luetchford Rosewood Lions club President with nominee Jenny Stubbs. (530724)
Ian Luetchford. Rosewood Lions club president with Rosewood Citizen of the Year Donna Jackwitz. (530724)
Ian Luetchford Rosewood Lions club president with nominee Janet Spresser. (530724)

More great pics from Aussie Day in Marburg

From page 3

Lions open the door to our ‘Youth of the Year’

BEING able to communicate well can open doors when it comes to career or job options, and that’s why Lions Clubs have a public speaking competition open to secondary school students aged between 15 and 18-years-old.

Last year’s Rosewood Lions Youth of the Year winner, Chloe Butler,wentontowintheregional finals of the competition.

She won against strong competition from Fassifern Lions Youth of the Year, Robert Williams and the Boonah Lions Youth of the Year, Bridget Muller.

Last year’s regional finals event was hosted by the Lions Club of Rosewood.

Rosewood Lions treasurer Bruce Richards had some tips from 2025 for this year’s hopefuls.

“All the contestants engaged with the impromptu questions and answered them clearly and while the questions gave many opportunities to waiver, they all stuck to the one theme in their answers which reflected good logical

and clear thinking,” he said.

“As an audience member it was great to hear concise and logical thoughts expressed.”

The final component of the contest is a prepared speech.

“These speeches had a time frame and the contestants could choose the topic and it was obvious that each chose a subject that they were passionate about,” he said.

“Each speech was inspiring and a great reflection that if these students are the leaders of tomorrow, we are in good hands.

“Like all contests there must be a winner and runners up”

The Rosewood Lions are facilitating the event for all school

students in and around Rosewood on14 February.

The contestants will present a prepared speech to the judges and the public, and are given a set time to deliver it.

They are judged on their prepared speech and their reply to impromptu questions.

Each student receives a verbal critique from the judges and a certificate of participation.

Schools also receive monetary support for student entry.

“We encourage any budding future leaders of our community looking at striving for careers or vocations requiring public speaking or thinking on your feet to participate,” Bruce said.

MONDAY - PUB CLASSICS $20 – 200g Rump, Chicken Schnitty or Grilled Barra, all served with chips and salad (Dinner only)

TUESDAY - TWO FOR ONE – Purchase two mains off our selected menu and receive the lesser value meal for free (Dinner only)

WEDNESDAY - PARMY PARTY $20 – Your choice of 6 different Parmy’s served with chips and salad. (Dinner only)

THURSDAY – BLACK ANGUS $20 – 250g Black Angus rump served with chips, salad and sauce. (Dinner only)

FRIDAY/SATURDAY/SUNDAY – ALL DAY DINING LUNCHES FROM $15 MONDAY-FRIDAY

Lions Club of Rosewood members Lyall McEwin and Bruce Richards.
Linda Findlay from Hattonvale with one of three raffle prizes.
Donald and Anaya Truong brought an Aussie classic-fairy bread, to share in the park (530784) Marburg locals Carol Samways, Shirley Dance and Brian Kickbusch (Jess Leis: 530784)
Local Griffin Fitzsimmons, enjoys the festivities while sitting in a tree.
The Marburg community park was filled with locals who came to enjoy the music, poetry and each other’s company.

Free program brings locals healthy activity

AROUND 31,500 residents right across Ipswich are already enjoying the benefits of the Active and Healthy program. The increase from 27 per cent on last year proves the program is pumping with activities from Chair Yoga to Zumba available to residents.

Ipswich Mayor Teresa Harding said an active and healthy lifestyle should be available to everyone despite income, age or ability.

“At the heart of the program’s success are the passionate local instructors who bring energy and genuine care to every class, helping thousands of residents feel supportedontheirwellbeingjourney,” Mayor Harding said.

“It was great to celebrate and award some of our most deserving instructors at the Active and Healthy Instructions breakfast. The feedback from the community on the award winners is truly incredible, praising them for their support and ability to tailor to each individuals needs.

“Movement is crucial to fit into our everyday lives, whether you have limited movement or deciding to get back into exercise after a few years, these classes are adaptive and accessible for everyone.

“Last year, we saw the biggest

jump to the class list with an increaseof75percentto1,953classes ranging from boutique classes for Cancer Care and Chair Yoga through to Low Impact Strength and Fitness which had 796 people in the second half of 2025 alone.

“We are very lucky to have enthusiastic, skilled instructors; they are truly the reason our community continues to show up and enjoy everything the program

has to offer.

“From Most Inspiring Instructor, Nichola, who runs the Cancer Care Yoga, to Energy and Enthusiasm Award winner, Connie, who runs the Zumba, its evident thelovefortheprogramgoesboth ways.”

Active and Healthy Award Winners include Most Inspiring Instructor Nichola (Cancer Care Yoga), Wellbeing Champion Sue (Adaptive Yoga), Venue Hero Award Maddie (Yoga, Queens Park), Adaptability & Inclusivity Award Danielle (Low Impact Strength & Fitness, Seniors), Kid Favourite Teesh (Active Kids Fit Squad), Energy & Enthusiasm Award Connie (Zumba), Lifetime Impact Award Terri (Aqua Fitness, Leichhardt) and Participant’s choice - class Sylvia (Chair Yoga, Yoga).

Dana opens a new Lowood daycare service

A new Lowood-based family daycare has held its first open day this week, providing some relief to local parents as demand continues to grow for childcare.

Owner and educator Dana Healy, who is operating from her home, said the open day had attracted strong interest from local families, with around seven families already expected to enrol.

Pebble Lane Family Daycare is scheduled to officially open on 2 February, pending final enrolments and approvals.

Ms Healy said the service would offer a small, family-oriented alternative to traditional centre-based childcare, with a strong emphasis on outdoor play and connection to nature.

“My philosophy is really based

Dana Healy is ready to start supporting families with children. (Michael R Williams)

on nature connection,” she said.

“We’ll spend a lot of time outdoors, gardening, planting vegetables, tending the worm farm, and learning about the environment around us.”

The family daycare will cater for up to four children under the age of five, in line with regulatory

ratios, allowing for more one-onone attention and reduced illness compared to larger centres.

Ms Healy said the smaller groupsizeappealedtomanyfamilies in the area.

“There’s a lot more individual time with each child, and families often like that their children aren’t

exposed to as many illnesses,” she said. Demand for childcare in the Lowood area remains high, with Ms Healy noting there are limited options available locally.

“There are only a couple of centres out here, and one other family daycare, which is already fully booked,” she said.

“There’s definitely a need.”

Ms Healy, who previously worked in centre-based childcare before homeschooling her own children, said she was excited to return to early childhood education.

“I’ve always loved working with kids, and I’ve really missed it,” she said.

Families interested in enrolling are encouraged to attend the open day or enquire directly ahead of the February start date.

Sue Stewart, Connie Garcia, Mayor Teresa Harding, Danielle Mach, Nichola MacNeil and Sylvia CampbellMoreton with their awards.

Petition for all-year Rosewood pool access

POOL users are stepping up calls for year-round access to the Rosewood Anzac Aquatic Centre, with a petition of over 200 signatures now lodged with Ipswich City Council.

The petition, formally submitted by State Member for Ipswich West, Wendy Bourne, urges council to address the pool’s seasonal closure, which currently leaves families and swimmers without a local facility from April through September each year.

“Rosewood residents have made it clear that the Rosewood Pool is not a seasonal luxury - it’s a vital facility. Families, seniors, school children and local swim clubs rely on this facility yearround,” Ms Bourne said.

?“Ipswich is the fastest growing region in Queensland. It makes no sense that a growing community like Rosewood is left without access to its only public pool for nearly half the year. People should not have to travel out of town to stay active or ensure their kids can continue swimming lessons.”

The petition will be included on the agenda for the upcoming Council Ordinary Meeting scheduled for 29 January 2026.

Infrastructure Committee Chairperson Councillor Andrew Antoniolli said the council would respond.

The cantre has been serving the community since 1966. It is leased by Ipswich City Council to Australian Crawl (Goodna) Pty Ltd (ACG) until December 2035.

Division 4 Councillor Jim Madden said the facility was identified for replacement under the council’s aquatic facilities ac-

tion plan in 2022.

“It is estimated a new facility would cost upwards of $5m,” he said

“A trial was undertaken during 2022/2023 to extend the swim season at the Rosewood Aquatic Centre by one month, however patronage during the extended period was very low and would not justify opening the facility during winter.

“I want to see a Master Plan developed for the Rosewood Aquatic Centre, so at the last December council meeting I moved a motion that council undertake

a Shape Your Ipswich campaign to obtain feedback from the community to assist with the redevelopment of the Rosewood Aquatic Centre.

“This will allow all the Rosewood and surrounding community to not just have a say in the redevelopment of the pool but also as to how it is managed. It is also my hope that the state and federal governments can assist with the cost to redevelop the pool.”

Division 4 Councillor David Martin pointed to the technical and financial challenges of winter operation.

“As our community grows, council considers how facilities are made available however the current heating system at the Rosewood Aquatic Centre is too small to function effectively during winter, during which morning temperatures can reach sub zero, without enclosing the facility.”

He said to operate the pool in winter, council would need state or federal government grant to help fund the multi-million-dollar pool heating upgrade.

Ethan, Tara, Jordyn, Zach, and Zander at the Rosewood Pool for a family fun day on 15 January. (Jesse Hamilton)
The petition will be included on the agenda for the upcoming Council Ordinary Meeting scheduled for 29 January 2026. (Just Lifestyle Centres)

Reflections of pride in a whole new country

AUSTRALIA Day is when I remember how blessed I am to be a citizen of this amazing country.

I left South Africa because I had a five year old son who was gifted academically.

He had no future in South Africa because university education was unaffordable and the newly legislated black economic empowerment policy would have made getting a decent job hard.

The first inkling he was ‘different’ happened when he started talking in full sentences at nine months old.

My parents reminded me most mums think their first child is gifted, so I left it and observed.

When he was three, his teachers told me could recite words from books read to the class, word for word months later.

They suggested getting him tested by a university doctor who specialised in young children who had a high IQ.

The results confirmed it was not personal bias and yes, he was gifted.

I sat with this for a while, wondering how to help him make the most of what he’d been born with.

I researched Australia and the country’s education system.

It was robust and university fees were paid back through HECS fees.

I saw how much money went into medical research and trials that investigated ways to cure cancers and other diseases.

Everything I saw and read made me fall in love with the country from afar.

A friend who migrated a few years before us, told me people put perfectly good household goods on the side of the road and anyone could take them for free.

He’d recently picked up a television that’d been thrown out because its owner lost the remote.

Yes, Australia is the land of the free ... furniture.

We scored a visa for temporary residency with the option to apply for permanent residency

after a few years.

We arrived in Sydney in 2001 with five suitcases and began plucking found furniture from the side of the road.

At first it was really hard to just drive by a decent, wooden wall unit or table without stopping and trying to stuff it into our little car.

I’d never seen such a thing before, perfectly good furniture just ... there.

When I enrolled my son in the local state school, I didn’t tell them about the findings back in South Africa.

I wanted findings to evolve organically and learn how the Aus-

tralian education system dealt with this kind of thing.

When my son was 10, the principal asked for my approval to get him tested by someone from the NSW department of education.

The test was done and confirmed the diagnosis years earlier.

He was put into a program for clever kids and went to a high school as part of a handpicked cohort of 10-year-olds.

By now I had spent many years trying to build a life here in Australia and when that happened I was so happy because it was exactly why I’d migrated.

My son turns 30 this year and

he is in his sixth year of study to become a doctor.

After that, he wants to continue studying with the hopes of becoming a reconstructive surgeon.

He told me when a lecturer showed the class his work piecing back together the face of someone disfigured by cancer, he knew that was what he wanted to do.

“I want to give people back their self esteem, mum,” he said.

“They see their face every day in the mirror and if they don’t recognise themselves anymore, their mental health suffers.”

Australia has given me so much and I hope through my son, I can give some of that back.

DINING & ENTERTAINMENT GUIDE

West Moreton paramedic gets service medal

A West Moreton ambulance leader is one of three Queensland Ambulance Service paramedics announced as an Ambulance Service Medal recipient in the Australia Day 2026 Honours List.

The ASM recognises distinguished service as a member of an Australian ambulance service.

Senior Operations Supervisor Stephen Johns recognised his 40th year with the QAS last year and has served in a litany of communities and leadership roles over the decades, including his current role managing tactical level operations across the West Moreton District. Recently, Mr Johns was pivotal in establishing a new role, Director Clinical Operations, in the south-east QAS operations centres.

Spending the majority of his career in southern Queensland, Mr Johns quickly settled into leadership roles such as officer in charge of stations and senior operations supervisor, while also regularly undertaking higher duties in roles such as area director, executive manager operations, and operations centre director.

Throughout his time working as an operational paramedic, supervisor and in managerial leadership, Mr Johns displayed an innate ability to adapt to challenges and to selflessly undertake mentoring at every opportunity.

These roles have included high level leadership in a multitude of significant events in the emergency and disaster management environment, where Mr Johns says remaining calm is key.

“It’s really important to just take a second and it doesn’t matter whether it’s that first case you walk into or a large-scale incident,” Mr Johns said.

bies as a highlight of his career.

“We often talk about the largescale incidents and disasters, but bringing a new life into existence is really important,” he said.

“I’ve had the privilege of parents using my name for their child.”

Mr Johns encouraged the next generation of his ambulance colleagues to never underestimate what they provide to the community.

“Sometimes you might not realise that you’re providing a significant change or outcome, but all of our paramedics and emergency medical dispatchers across the organisation, every day, are making a massive change in the lives of the individuals we touch,” he said.

QAS Commissioner Craig Emery said Officer Johns provided excellent leadership and stewardship across the various roles he has undertaken.

“His methodical, considered application to all aspects of delivering ambulance services to the community of Queensland has been a trademark of his career,”

Commissioner Emery said.

“He demonstrates remarkable adaptability and leadership, approaching every challenge with calm precision, mentoring future leaders and consistently upholding the organisation’s values and ethos.

“Take the time to gather all the informationandjustremaincalm and let things settle in before you make a rash decision and make really justified decisions as you move forward.”

Looking back, Mr Johns recalls helping to deliver nine ba-

“The QAS is extremely grateful for Officer Johns’ decades of exceptional service, and I am pleased to see a stalwart of our organisation recognised for his dedication.”

Locals charge to adopt federal solar scheme

MORE local families will be able to save on their energy bills thanks to an almost $5 billion funding boost to the Cheaper Home Batteries program - extending the solar battery discount for another four years to 2030.

The program has already seen more than 1,680 batteries installed in homes, businesses and

community groups in the federal electorate of Blair since 1 July 2025, one of the highest rates of take-up in Queensland.

In nearby Wright, which takes in the Lockyer Valley and Scenic Rim, demand was even higher with more than 3,000 batteries installed, the highest uptake in Queensland and second highest in the country.

In just over six months, the Cheaper Home Batteries program has helped more than 200,000 households and small businesses across the country cut their power bills and energy use, with around three-quarters of installations in suburban and regional areas, like Ipswich, the Somerset Region and Karana Downs.

Federal Member for Blair

Shayne Neumann said that the high rate of take-up in his electorate and surrounds showed that locals were embracing solar home batteries and renewable energy because it was good for their hip pocket.

“We want more local households to have access to batteries that are good for bills and good for the grid,” Mr Neumann said.

Ambulance Paramedic Stephen Johns has consistently shown an innate ability to adapt to challenges and selflessly undertakes mentoring at every opportunity.

Grandchester spread - worth a cool $1.8M

A home built on fertile acreage with frontage to Franklyn Vale Creek at Grandchester, sold late last year for $1,887,500.

The 31.57ha property is within walking distance of Hidden Vale Resort.

It has several rainwater tanks for household and garden use.

Outdoor infrastructure includes a three bay Colorbond shed fitted out with an air conditioned room.

There’s also an industrial-size farm shed, three phase power, a 3kW solar system, cattle yards with a crush, two bores with underground hydrants, a water licence from Franklyn Vale Creek, a hayshed and a dam.

The home was built in 1988 and has two bedrooms and a study.

The well appointed kitchen is the hub of the open plan design.

The large bathroom has a separate shower and bath.

The home also has air conditioning, ceiling fans, a fireplace and solar hot water.

The wraparound bullnose verandahs offer panoramic views and there’s an in-ground, heated, saltwater pool.

The yard features immaculate lawns and landscaped gardens, and a bitumen driveway for allweather access.

There is no available previous sale history.

Summerholm draws cricketers for Invitational

A long-running community cricket tradition has returned to the field, with players and spectators gathering for a relaxed invitational tournament held around Australia Day.

Founder and part of the founding group, Luke Shepley said the Summerholm Invitational began 13 years ago as a casual backyard hit between friends before steadily growing into a much larger annual fixture.

“We just had a bit of an idea one year and thought we’d get a few bats together and have a game,” Mr Shepley said.

“It all started on a little field out at Summerholm, just playing backyard-style cricket.”

As numbers increased, the event outgrew its original setting and moved through several local grounds before settling at its current location, which Mr Shepley said offered an ideal backdrop for the day.

“For the first few years we were out there, then it got too big, and we had to start using two fields,” he said.

“We went to Laidley Cricket Ground and Boles Oval, and when this spot became available, we didn’t turn back.

“It’s perfect.”

This year’s event featured eight teams competing across the course of the day, with matches wrapping up around sunset before presentations were held.

Mr Shepley said the infor-

mal nature of the tournament was a key part of its appeal, with rules adjusted on the fly to keep matches balanced and inclusive.

“If one side’s too strong, we’ll tell them to reel it in a bit or have someone bat left-handed,” he said.

“We’re not here to win.

“We’re here for a good day and to support each other.”

While traditionally linked to Australia Day, the event is often scheduled on a nearby weekend

to accommodate players with other cricket commitments.

“A lot of the guys who play with us are cricketers, so we try to work it around when they’re not already playing,” Mr Shepley said.

Beyond the cricket, the day also serves a charitable purpose, with proceeds directed toward individuals or families in need rather than a single organisation.

“In some years we’ve helped local sporting clubs, but most of the time it goes to someone who’s

having a rough time,” he said.

“People come forward with suggestions, and it always comes together.”

Mr Shepley said the continued enthusiasm of participants was what had sustained the event for more than a decade.

“Once the day’s finished, people are already talking about next year,” he said.

“Everyone gets around it, and that’s what makes it such a special day.”

Dani Fitzgerald with baby Ally Osborne. (WMH: 519983)
A batsman swinging for a 6. (Michael R Williams)
Luke Shepley, Peter Shepley, Liam Shepley, and Adam Howie were the progenitors of the event.
The Martins enjoying their Sunday in Mulgowie.
Genevieve and Andrew Berlin having a quick lunch.
The Sheilas ready for a big game: Taylah Smallwood, Lily Shepley, Josey Dean, and Shayana Shepley.
Chantal Rebell, Preston Rebell, Fletcher Cook, Jo Cook, and Janey Neueundorf in the shade.

Austin’s motivation leads his basketball future

THERE are many things that motivate 17-year-old Austin Hornbuckle as he dreams of a future playing college basketball in the United States.

Austin was 14 when he began playing the game with his friends. When they lost interest, he continued because he really enjoyed it.

The enjoyment gave him insight into how he’d be a better player, if he could shift some weight.

“I was a pretty big kid and I still was up until the last year,” he said.

“When I made the representative team in 2024 for the Springfield Pioneers, I decided to take it more seriously.

“I also wanted to lose the excess weight because I am six foot tall and weighed about 110 kilograms.

“I am now six foot two and weigh about 78 kilograms.”

Austin also learned how excess weight can lead to shorter life expectancy and health complications.

“Being that size for most of my childhood, realistically, has already taken years off my life,” he said.

“I was never really comfortable speaking in front of people and was always the kid who had their shirt on in the swimming pool.

“I was never comfortable in my own skin and I think that reflected on the court because I was nervous and not overly confident.”

Austin said last year one of his coaches spoke to him about losing weight if he wanted to take the sport seriously.

“It was a bit of a reality check because no one had ever said to me that I wouldn’t take the sport very far if I didn’t drop weight,” he explained.

“As much as it hurt at the time, I really appreciated it because it motivated me and changed me for the better.”

He felt the benefit on the court because he was he no longer

overthinking things, and he was faster and better at the game.

“The dream is to become a professional basketball player, that’s the goal,” he said.

“If that doesn’t work out I’d like to be personal trainer or a coach of some sort. I’d like to stay within the sport industry.”

Austin has been campaigning to make his way to the United

takes his sport seriously and has ambitions to make it in the American basketball college league.

States to play college basketball.

He’s launched a GoFundMe page to raise money to support his recruitment journey and help him to connect with American college coaches.

He’s keen to set up a recruiting profile through the National Collegiate Scouting Association (NCSA), that is a platform used by student-athletes to showcase

their skills and attract coaches.

“IfIdonotgetenoughfundsto chase my goal, the money will be used to play in the Greater Brisbane League or the Queensland state youth league next year,” he said.

Help Austin reach his goal by visiting the GoFundMe website and typing his name into the search bar.

Austin Hornbuckle
Austin Hornbuckle is campaigning to make his way to the United States to play college basketball.

Turn static files into dynamic content formats.

Create a flipbook
Issuu converts static files into: digital portfolios, online yearbooks, online catalogs, digital photo albums and more. Sign up and create your flipbook.