

![]()


I’m Joshua Stante, a Bachelor of Design (Architecture) graduate from QUT. My journey into architecture began in my childhood, walking through my own home with a tape measure in hand, sketching floor plans and imagining how spaces could be reconfigured, improved, and brought to life in new ways. Those early moments sparked a curiosity that never left, and over time, I developed a deep appreciation for the role that discipline, organisation, and problem-solving play in creating meaningful, well-crafted spaces. I approach architecture with a keen eye for detail and a conscientious, hardworking mindset that brings clarity, initiative, and a strong sense of responsibility to every task I undertake. My work focuses on thoughtful, human-centred design that elevates everyday experiences and responds carefully to context. As a graduate, I bring enthusiasm, reliability, and natural leadership qualities, along with a genuine passion for shaping spaces that don’t just serve a purpose, but truly inspire the people who inhabit them.
Lindisfarne Anglican Grammar School
TWEED HEADS, NSW
Graduated: 2021
Woolworths Group - Team Member for 7 Years
MULLUMBIMBY, BRISBANE CBD, TWEED HEADS | 2019 - PRESENT
Reference: Josh Berwick - Former Department Manager | 0466 879 551
Aspect Architecture - Placement
KINGSCLIFF, NSW | JUNE - AUGUST 2024
Time Management
Able to supervise a small team and prioritise specific tasks while consistently meeting deadlines with a high level of reliability
Problem Solving
11 week placement under mentorship from the Associate Architect
Engaged in a hypothetical design project (Director was my client)
Able to handle customer issues or unexpected situations under pressure while developing a solution in a fast paced environment
Followed Aspect’s comprehensive design process
Attention to Detail
Designed a new house from conception to documentation
Lessons Learned
Able to consistently deliver high standards in stock fill procedures, pricing changes, and delicatessen layouts and organisation
Design Thinking
Site visits provided tangible connections to the architectural design process and gave me a stronger appreciation of how architecture principles apply to the real world
Observation of customer flow and store organisation has deepened my appreciation of how people interact and respond to their surroundings
Improved collaboration skills by actively participating in internal and external meetings, ranging from discussions with builders and clients, to internal meetings with architects
Revit
Developed a deeper understanding of how to problem solve during the design process while being curious and thinking outside the box
Enables me to explore, resolve and refine designs in 3D while evaluating how space, scale and form are experienced
Enhanced hand drawing skills in site analysis and evaluation, including environmental considerations and spatial relationships
Enscape
Enables me to not only create renders, but also to review my designs during project massing, and throughout the interior design phase
Refined communication skills by delivering a concise design presentation to the client (Director) and team, conveying concepts, rationale, and solutions
Morpholio Trace
Allows me to create my hand-drawn diagrams, including site analysis, concept development, and post production of diagrams from Revit
DJing
DJing is a creative release where I combine technical skill with software systems to explore and test musical ideas, keeping my creativity fresh and recharged for my architecture work
Photography
Photography is a creative outlet that has sharpened my eye for composition, lighting, and spatial awareness, enhancing my ability to design and present architectural spaces with clarity and intent
Living Communities
Vista Collective
Facade Redevelopment
Small Scale Construction

This Woolloongabba project delivers safe, affordable, and supportive housing for women and children escaping domestic violence. The multiresidential design prioritises privacy and security through secure entries, private counselling spaces, and soothing architectural forms, while communal courtyards, rooftop gardens, and verandahs encourage social connection and a sense of belonging. Sustainable features such as natural ventilation, daylighting, and local food production enhance resilience, while an elevated podium system addresses the flood risk. By combining safety, wellbeing, and environmental responsibility, the project creates a nurturing environment that empowers residents to heal, rebuild their lives, and achieve long-term stability.

SITE ANALYSIS - 3D PROGRAMMATIC

SITE ANALYSIS - 3D VIEWS






My vision for the Woolloongabba project began with initial design sketches exploring public and private relationships within a multi-residential apartment layout. Through prototype explorations, including Concepts A, B, and C, I tested subtractive massing strategies to balance communal spaces with private living areas. A central lightwell was introduced, while private voids enhanced daylight penetration, ventilation, and a sense of openness to each apartment. After evaluating the options, the preferred prototype emerged, demonstrating how careful spatial organisation can foster community, while preserving privacy and prioritising sustainability



The site plan establishes a clear response to Woolloongabba’s urban fabric, prioritising pedestrian movement and visual connection while carefully managing flood thresholds into the building. At Level 1, the plan introduces shared balconies and layered circulation that strengthen community interaction, while curved edges soften transitions to create a calmer, more cohesive spatial experience.
EXTERIOR PERSPECTIVE








Balancing privacy and community is critical in multi-residential design
Architecture can actively support well-being through form, light, and spatial sequencing
Iterative design testing strengthens spatial outcomes and decision-making
Subtractive massing, lightwells, and voids improve daylight and ventilation
Layered thresholds (public, semi-private, private) enhance both security and comfort
Integrating passive design strategies improves sustainability and long-term resilience
Responding to site conditions, such as flood risk, is essential to responsible design
Careful planning can foster social connection without compromising safety
Resolving the tension between privacy and open common areas
Balancing density with liveability, ensuring light and ventilation in every dwelling
Designing circulation that is both calming and socially engaging
Maintaining design clarity while integrating multiple programmatic requirements
Ensuring the building blends seamlessly with its surrounding urban environment
Developing practical solutions to the insights gained from extensive site analysis
This project envisions a resilient, interconnected multi-residential community in Woolloongabba that operates as an extension of the adjacent social housing building. Through strategic north-west orientation toward the Gabba and Brisbane City, elevated floodresponsive design, and a central courtyard, the design prioritises environmental performance, wellbeing, and visual connectivity. Public, semi-public, and private realms are carefully layered to encourage interaction, while resident-led initiatives, such as bicycle refurbishment, creative studio exhibitions, and gardening workshops, generate income and activate shared spaces. Together, the two buildings form a cohesive urban network that redefines housing as productive, sustainable, and socially integrated.

ANALYSIS - 3D CIRCULATION

SITE ANALYSIS - 3D FLOODING



Vista Collective is shaped by a diverse group of residents whose occupations, family structures, and personal interests directly inform the spatial organisation of the building. Rather than designing generic apartments, each dwelling is driven by specific personal and professional needs, while shared semipublic and public spaces emerge from the collective skills and ambitions of the community. This approach challenges conventional housing models by linking private life with productivity, collaboration, and income generation. The occupants therefore act as a conceptual framework for aggregation, ensuring the architecture supports both individual autonomy and a cohesive, self-sustaining community.

The unit analysis investigates how each dwelling responds to the specific needs, family structures, and working patterns of its resident. Rather than adopting a standardised apartment model, the units are differentiated in size, spatial hierarchy, and program to accommodate single occupants, single parents with children, and couples Considerations such as integrated workspaces, child-friendly layouts, and varying bedroom numbers challenge conventional domestic typologies. This analysis allows residents to live and work in ways that meaningfully support both individuality, and collective engagement.



EXTERIOR PERSPECTIVE








Housing can extend beyond shelter to support both productivity and income generation
Designing from real user profiles creates more responsive spatial outcomes
Studying the site in detail for a second time proved to be critical to the overall outcome
An aggregation diagram is an effective visual tool to organise floor area requirements
Layering public, semi-public, and private spaces encourages social interaction
Orientation and planning can enhance visual connection and environmental performance
Linking buildings can create a broader urban network rather than isolated communities
Design can empower residents through skill-sharing and community-led initiatives
Moving beyond generic apartment design to create highly specific, user-driven dwellings
Resolving complex spatial requirements between public, semi-public, and private zones
Ensuring residents needs and interests are mutually supported by the building program
Linking ‘Living Communities’ to ‘Vista Collective’ through visual connectivity
Refining the floor plan area calculations to meet the project brief requirements
Designing for live-work conditions without compromising residential comfort
The redevelopment of 140 Ann Street in Brisbane reimagines the building’s facade through a load-bearing system. An internal upstand beam is fixed directly to the structural facade, reinforcing both thermal performance and fire safety. A key design challenge was enhancing visual comfort by mitigating glare while maintaining daylight access. This was resolved through the integration of Low-E glass slats as external shading devices, reducing solar heat gain and glare penetration, while preserving transparency and urban connectivity This intervention balances structural clarity with environmental responsiveness, delivering a facade that performs technically while elevating the user experience within.


These construction details resolve the facade as a cohesive system where structure, fire safety and glazing work seamlessly together. Anchored back to the primary concrete beam, the assembly enhances visual comfort and environmental performance while maintaining clear constructability. Fire safety is integral to the design, with built-in separation measures that strengthen compliance and protect occupants without compromising the architectural intent.

EXTERIOR PERSPECTIVE



The daylight analysis evaluates the performance of the facade system with a focus on both visual comfort and solar control. Comparative renders illustrate how the Low-E glass slats modulate daylight penetration, reducing glare while maintaining consistent interior illumination. The infrared analysis further reinforces the impact of the slats on solar heat gain, demonstrating their effectiveness in controlling thermal load and enhancing occupant comfort. Together, these studies highlight how the structural design optimises daylight performance without compromising transparency, view, or environmental responsiveness.


Developed a strong understanding of facade systems from concept to detail
Strengthened skills in detailing and documentation to illustrate the facade design
Load-bearing facade systems can enhance both fire safety and thermal performance
External shading devices significantly improve visual and thermal comfort
Balancing daylight access and glare control is critical to occupant experience
Daylight analysis is a powerful tool for validating environmental performance
Facade systems must respond to both internal comfort and external urban conditions
Environmental performance can be achieved while maintaining transparency and visual connectivity
Navigating new revit modelling strategies to resolve a complex facade system
Resolving the facade as a fully integrated system (structure, glazing, fire safety)
Balancing glare reduction with adequate daylight penetration
Designing shading that improves performance without blocking internal views
Integrating fire safety requirements without disrupting architectural clarity
Communicating a technical design clearly through detailed documentation
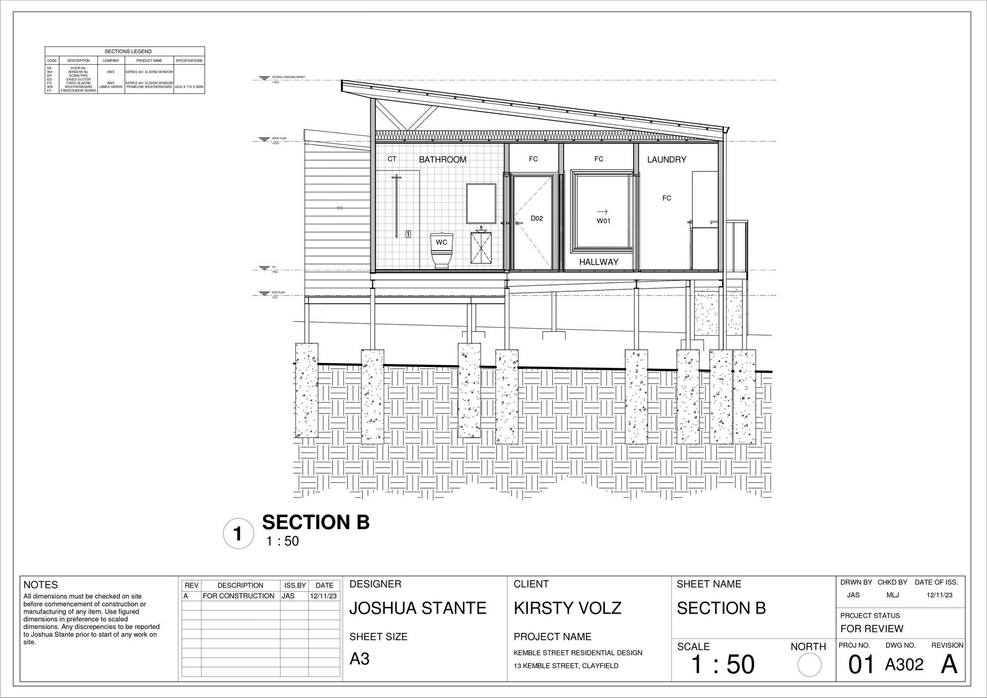
Completed: 2023
Location: 13 Kemble Street, Clayfield QLD
This project comprises a detailed set of construction documents developed in accordance with the Brisbane City Council legislation, the Queensland Development Code, the National Construction Code, and the Livable Housing Australia (LHA) Guidelines. The documentation responds specifically to the constraints of a smallscale residential lot within a designated flood-affected area, integrating regulatory compliance with considered architectural resolution. Particular attention was given to flood responsive design measures, fire separation controls, setbacks, accessibility provisions, and buildability, ensuring the proposal was both compliant and construction-ready.













Gained experience producing construction-ready documentation for the first time
Strengthened skills in room detailing and wall section documentation
Developed knowledge of specific structural wall systems and how they perform
Improved skills in dimensioning, annotation, and drawing coordination
Developed an understanding of regulatory compliance, legislation, and guidelines
Applied flood-responsive design strategies within tight site constraints
Strengthened understanding of fire separation, setbacks, and accessibility requirements
Coordinated multiple technical requirements into one coherent design
Coordinating the construction documentation to have consistent detail across drawings
Navigating complex legislative codes and applying them accurately
Resolving construction details to match real-world buildability and compliance
Creating legend tables to tag components and finishes accurately
Learning how to model a sheet template layout to a professional standard
Managing multiple drawings in Revit while maintaining an efficient workflow