

![]()


I’m Joshua Stante, a Bachelor of Design (Architecture) graduate from QUT. My journey into architecture began in my childhood, walking through my own home with a tape measure in hand, sketching floor plans and imagining how spaces could be reconfigured, improved, and brought to life in new ways. Those early moments sparked a curiosity that never left, and over time, I developed a deep appreciation for the role that discipline, organisation, and problem-solving play in creating meaningful, well-crafted spaces. I approach architecture with a keen eye for detail and a conscientious, hardworking mindset that brings clarity, initiative, and a strong sense of responsibility to every task I undertake. My work focuses on thoughtful, human-centred design that elevates everyday experiences and responds carefully to context. As a graduate, I bring enthusiasm, reliability, and natural leadership qualities, along with a genuine passion for shaping spaces that don’t just serve a purpose, but truly inspire the people who inhabit them.
Joshua Stante
92 Lakeview Terrace, Bilambil Heights, NSW 2486
0428 300 052
Joshstante@gmail com
Education
Bachelor of Design (Architecture)
QUEENSLAND UNIVERSITY OF TECHNOLOGY (QUT), BRISBANE
Graduated: 2024
Lindisfarne Anglican Grammar School
TWEED HEADS, NSW
Graduated: 2021
Aspect Architecture - Placement
KINGSCLIFF, NSW | JUNE - AUGUST 2024
11-week placement under the supervision of an Architect
Engaged in conceptual design, documentation, and visualisation tasks
Participated in internal and external client meetings and on-site visits
Strengthened skills in communication, teamwork, and design
Woolworths Group - Team Member
MULLUMBIMBY, BRISBANE CBD, TWEED HEADS | 2019 - PRESENT
Reference: Josh Berwick - Department Manager | 0466 879 551
Application to Work Award
Semester 1, 2020 - Lindisfarne
Architectural Communication
Strong ability to illustrate design intent through hand-drawn sketches, reinforced by clear written and verbal communication skills
Technical & Design Thinking
Capable of critically evaluating design decisions and developing thoughtful responses that balance creativity and functionality
Organisation & Time Management
Highly organised with strong time management skills, able to prioritise tasks and consistently meet deadlines with a high level of reliability
Collaborative & Adaptive Workflow
Experienced working in team environments, with the ability to adapt between projects while keeping the client and team informed






DJing
Photography
Fitness
Travel
Living Communities
Vista Collective
Facade Redevelopment
Small Scale Construction

This Woolloongabba project delivers safe, affordable, and supportive housing for women and children escaping domestic violence. The multiresidential design prioritises privacy and security through secure entries, private counselling spaces, and soothing architectural forms, while communal courtyards, rooftop gardens, and verandahs encourage social connection and a sense of belonging. Sustainable features such as natural ventilation, daylighting, and local food production enhance resilience, while an elevated podium system addresses the flood risk. By combining safety, wellbeing, and environmental responsibility, the project creates a nurturing environment that empowers residents to heal, rebuild their lives, and achieve long-term stability.

SITE ANALYSIS - 3D PROGRAMMATIC

SITE ANALYSIS - 3D VIEWS






My vision for the Woolloongabba project began with initial design sketches exploring public and private relationships within a multi-residential apartment layout. Through prototype explorations, including Concepts A, B, and C, I tested subtractive massing strategies to balance communal spaces with private living areas. A central lightwell was introduced, while private voids enhanced daylight penetration, ventilation, and a sense of openness to each apartment. After evaluating the options, the preferred prototype emerged, demonstrating how careful spatial organisation can foster community, while preserving privacy and prioritising sustainability



The site plan establishes a clear response to Woolloongabba’s urban fabric, prioritising pedestrian movement and visual connection while carefully managing flood thresholds into the building. At Level 1, the plan introduces shared balconies and layered circulation that strengthen community interaction, while curved edges soften transitions to create a calmer, more cohesive spatial experience.
EXTERIOR PERSPECTIVE








This project envisions a resilient, interconnected multi-residential community in Woolloongabba that operates as an extension of the adjacent social housing building. Through strategic north-west orientation toward the Gabba and Brisbane City, elevated floodresponsive design, and a central courtyard, the design prioritises environmental performance, wellbeing, and visual connectivity. Public, semi-public, and private realms are carefully layered to encourage interaction, while resident-led initiatives, such as bicycle refurbishment, creative studio exhibitions, and gardening workshops, generate income and activate shared spaces. Together, the two buildings form a cohesive urban network that redefines housing as productive, sustainable, and socially integrated.

ANALYSIS - 3D CIRCULATION

SITE ANALYSIS - 3D FLOODING



Vista Collective is shaped by a diverse group of residents whose occupations, family structures, and personal interests directly inform the spatial organisation of the building. Rather than designing generic apartments, each dwelling is driven by specific personal and professional needs, while shared semipublic and public spaces emerge from the collective skills and ambitions of the community. This approach challenges conventional housing models by linking private life with productivity, collaboration, and income generation. The occupants therefore act as a conceptual framework for aggregation, ensuring the architecture supports both individual autonomy and a cohesive, self-sustaining community.

The unit analysis investigates how each dwelling responds to the specific needs, family structures, and working patterns of its resident. Rather than adopting a standardised apartment model, the units are differentiated in size, spatial hierarchy, and program to accommodate single occupants, single parents with children, and couples Considerations such as integrated workspaces, child-friendly layouts, and varying bedroom numbers challenge conventional domestic typologies. This analysis allows residents to live and work in ways that meaningfully support both individual autonomy and collective engagement.



EXTERIOR PERSPECTIVE








The redevelopment of 140 Ann Street in Brisbane reimagines the building’s facade through a load-bearing system. An internal upstand beam is fixed directly to the structural facade, reinforcing both thermal performance and fire safety. A key design challenge was enhancing visual comfort by mitigating glare while maintaining daylight access. This was resolved through the integration of Low-E glass slats as external shading devices, reducing solar heat gain and glare penetration, while preserving transparency and urban connectivity The intervention balances structural clarity with environmental responsiveness, delivering a facade that performs technically while elevating the user experience within.


These construction details resolve the facade as a cohesive system where structure, fire safety and glazing work seamlessly together. Anchored back to the primary concrete frame, the assembly enhances visual comfort and environmental performance while maintaining clear constructability. Fire safety is integral to the design, with built-in separation measures that strengthen compliance and protect occupants without compromising the architectural intent.

EXTERIOR PERSPECTIVE



The daylight analysis evaluates the performance of the facade system with a focus on both visual comfort and solar control. Comparative renders illustrate how the Low-E glass slats modulate daylight penetration, reducing glare while maintaining consistent interior illumination. The infrared analysis further reinforces the impact of the slats on solar heat gain, demonstrating their effectiveness in controlling thermal load and enhancing occupant comfort. Together, these studies highlight how the structural design optimises daylight performance without compromising transparency, view, or environmental responsiveness.


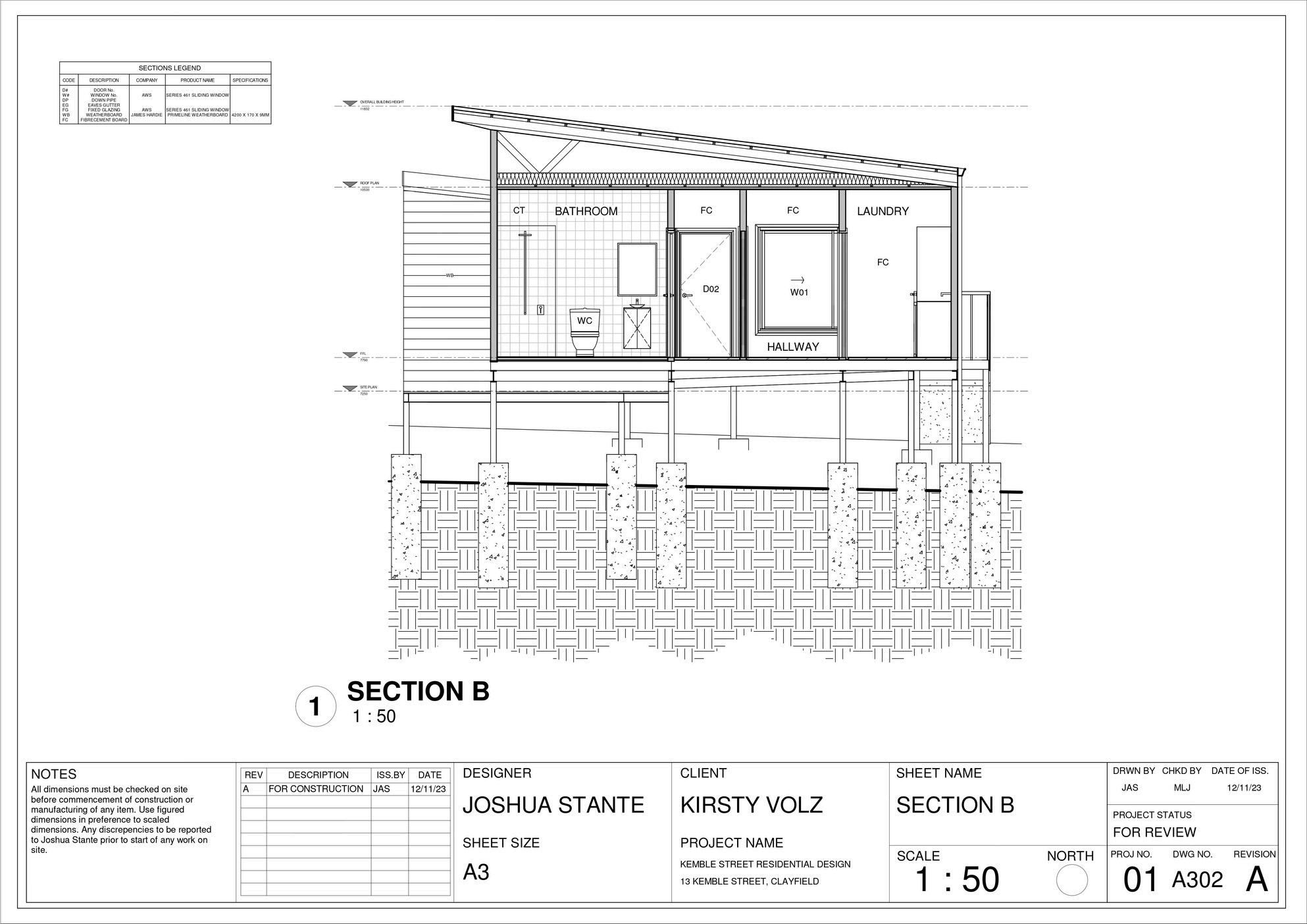
Completed: 2023
Location: 13 Kemble Street, Clayfield QLD
This project comprises a detailed set of construction documents developed in accordance with the Brisbane City Council legislation, the Queensland Development Code, the National Construction Code, and the Livable Housing Australia (LHA) Guidelines. The documentation responds specifically to the constraints of a smallscale residential lot within a designated flood-affected area, integrating regulatory compliance with considered architectural resolution. Particular attention was given to flood responsive design measures, fire separation controls, setbacks, accessibility provisions, and buildability, ensuring the proposal was both compliant and construction-ready.












