Making Room Detailed Plan and Costs

Page 1


THE BUILDING THAT NEVER SLEEPS:

From sunrise to sundown nearly every day of the week, the sounds of ministry fill the St. Luke’s North Indy building.

Neighbors recovering from addiction gather around a table. Early Childhood Program teachers prepare their classrooms. Family members tell life stories as they prepare to lay their loved ones to rest. Community leaders discuss ways to reduce hunger in Indianapolis. Washington Township Students train in leadership skills. Volunteers fill flood buckets, prepare Thanksgiving meals, and package diapers that will fill hands and homes in support. Strangers and neighbors grow in faith thatwillcarrythemthroughlifetransitions.

St. Luke’s has been creating space and a place for the hope of Christ to be found and shared for more than 70 years. In scriptures, we find that God changes hearts and lives THROUGH community.

Inside our doors people find they BELONG to a community. We strengthen community building through safety and connection. YOU can help us build stronger, hope filled communities for the next 70 years!

And let us consider how to stir up one another to love and good works, not neglecting to meet together, as is the habit of some, but encouraging one another, and all the more as you see the Day drawing near. – Hebrews 10:24-25

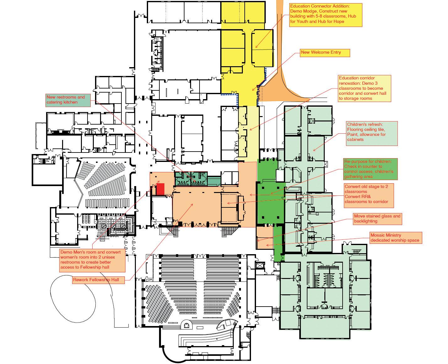
MAIN BUILDING EXISTING FLOORPLAN

KIDS & COMMUNITY SPACES

Education Connector with consideration of solar panels on new roof spaces

Demolish Modge, C124, C122, C120

Space for youth hub

Glass wall to view garden

Education Connector with 5-8 classrooms added

New space for Hub for Hope / Diaper Pantry

Total costs: $1,950,000 (30% of total)

STRENGTHENING COMMUNITY THROUGH CONNECTION

Renovate and secure entire Children’s area, create new corridors & refresh design

New check-in counter

Convert East Corridor to a Children’s Gathering Area

Move stained glass from east end of Narthex

Convert workroom to catering kitchen

Convert Fellowship Hall Kitchen to new restrooms

Existing FH restrooms: Convert women's room to a family restroom and demolish men's room to open up area outside Robertson

Renovate Fellowship Hall

Convert stage to two new classrooms Demo RM 110 and Volunteer Hub

Total costs: $2,740,000 (42.5% of total)

Community is strengthened through opportunities for connection. With regularity we run out of meeting rooms for events and ministry. On Wednesday nights and with different ministry events, every room is in use and some groups and classes are left without adequate meeting space. We also find people disconnected from each other in our building. The building is divided into passageways with rooms; there are no centralized gathering spaces within the flow of traffic.

In this time in history, where isolation and division is so readily known, St. Luke’s is committed to strengthening connection! In this booklet you will find plans to build needed classrooms for groups and classes. They will add spaces close to parking lots so we can meet a known need; those with mobility needs, moving community supplies, or shepherding young children have increased and easier access to ministry. You’ll find plans for a worship room close to the sanctuary for families with a neurodiverse member (s) such as those with autism. This room will allow for sensory modifications so families can easily worship together. You will also find plans to create open spaces that easily connect the flow of people from different wings and worship spaces to build community.

STRENGTHENING COMMUNITY THROUGH SAFETY

In 2018 St. Luke’s committed to increased safety for children, youth and vulnerable adults. We enacted a church-wide Safe Sanctuaries Policy that helps protect our young and vulnerable through regular background checks, increased and ongoing safety training along with targeted and tested ministry practices. Commitment to Safe Sanctuaries is lived throughout the year and especially when up to 400 students or more fill the building each summer for ministry programming like Vacation Bible School.

Now at St Luke’s, it’s time to deepen our commitment to safety for the youngest and most vulnerable members of our community. We seek to update our facilities to reach new standard levels of protection. In this booklet you’ll find plans for things like creating a one entrance check-in system for the KIDS area. This will create the kind of standardized safety found in today’s schools. You’ll also see additions like building a needed additional exit in Luke’s Lodge to align with emergency readiness protocols. We want to ensure our families know they BELONG in this community through our commitment to safeguarding their young and most vulnerable with upgraded facilities that match today’s best protection plans.

THE LODGE

First floor: Change wall to enlarge worship space Add stairs

Convert existing storage to small group classroom

2nd Floor: Unisex bathroom (already complete)

Construct 2nd floor for stairs and small group classroom

Construct wall at edge of balcony so balcony can be used as small group space

Total costs: $450,000 (7% of total)

NEW STORAGE BUILDING

Increase eco friendly solutions by including solar panels

Storage Building w several rooms (for Scouts, Outreach, Facilities)

Total costs: $500,000 (8% of total)

Luke's Lodge 1st Floor Plan
Luke's Lodge 2nd Floor Plan

TOTAL PLAN

Total cost: $6.440,000

YOU CAN MAKE A LASTING IMPACT!

Contingency costs & Potential Financing: $575,000 (9% of total)

Maintenance Reserve: $225,000 (3.5% of total)

Life has changed in these times since COVID. What has not changed is our mission to help people find and share hope in our community. YOU can make a difference as a community builder. Take a moment to read this handout. To ask any questions or make a financial commitment that will make an impact for decades to come please contact Nancy Lange at nancy.lange@stlukesumc.com or by calling her at 317.846.3404 x.446.

Yes, your gift will help us improve our building. But even more importantly, your generosity will change lives. Through your financial support and prayers, you will help us reach more community members, grow our impact on individuals, share the love of Jesus Christ and make ready a place for all.

Turn static files into dynamic content formats.

Create a flipbook
Issuu converts static files into: digital portfolios, online yearbooks, online catalogs, digital photo albums and more. Sign up and create your flipbook.