CITY CENTER FOR PANVEL CITY

Page 1

CITY CENTER PANVEL

-SHREYAS SATISH MAYEKAR 1943 , SEM - 10, SIR JJ COA

LAKES OF PANVEL

ADMINISTRATIVE RELIGIOUS COMMERCIAL CULTURAL

DEVELOPMENT OF CITY

• Town became an trading center for the surrounding village which lead to the flourishing of the town center spaces of panvel. th

• Later, navi-Mumbai was set-up in end of 20 century under which new-panvel was planned with respective to old-town as core.

• Rapid urbanization and the sprawl left the city center spaces to deteriorate and lakes became the urban voids for the city.

CURRENT SCENARIO

• No development is scene happening in the direction of reviving these old city centers and rejuvenating the water-bodies which once made the town flourished.

• there is no transformation happening with respective to city level public gathering spaces and that is why my goal is to transform one of this city center space into an iconic landmark which would become an identity place for panvel.

• • The design intent is to provide a nourishing urban complex to the people of the city, in a place of a brownfield on the site.

TRANSFORMS INTO TOWN CENTER SPACES .
LAKE SURROUNDING
WADALETALAV
KRUSHNALE
VISHRALE
LENDALETALAV
TALAV
TALAV
OLD BUNDER BAZAAR PETH
SITE CONTEXT GADHIRIVER AIRPORT OLD PANVEL NEW PANVEL CIDCO PLANNED AREA

CONNECTIVITY SITE INFO:

CLIMATIC DATA

• sub tropical humid climate.

• high rainfall days and very few days of high temperatures.

• This area on an average, receives 2500 to 3500 mm rainfall.

• Native vegetation of banyan peepal and coconut trees are present.

Sitelocation:bhajimarketcircle,oldPanvel, Maharashtra410206.

SiteAccessibility:18mwideuran–panvelroad,13.2m wideappasahebpanhaleroad.

CHAOS HAPPENING NEAR THE L

TRASNFORMATION OF THE SITE

Totalareainredevelopment:40250sqm(includingroads, lakeandopenspace)

TotalSiteArea: 25065SQMareaincludingcomplex+garden+market

ExistingBUA : 9556(shoppingcomplex)+4000(auditorium)

FSI:1.5Base(Zonal),2.5(maxpermissible)

Ht.restriction:54.85mASMLasperNOCASHt.restriction.

SiteElevation:9mASML.

LandUse:

• Commerciallanduseformarketandcomplex

• recreationalgroundlanduseforgarden

• areasperDPreservationspreparedbyPanvel

• Municipalcorporation(PMC)

absence of proper segregation of vehicular and pedestrian circulation. Lake encroached from all sides by hawkers, shops, parking Municipal complex with empty shops and central open courtyard being use for parking Pedestrian walkway beside the lake and the vegetable market
RAILWAY STATION 13.2 M WIDE ROAD TOILET BALAJI TEMPLE BHAJI MARKET CIRCLE CIRCLE LAKE
SITE CONTEXT OPEN GROUND SHOPPING COMPLEX KRUSHNALE LAKE KRUSHNALE LAKE
PANVEL MSRTC BUS STAND ORION MALL VADALE LAKE PANVEL MUNICIPAL CORPORATION SITE URAN-PANVEL STATE HIGHWAY MCCH SOCIETY MUMBAI-GOA NA TIONAL HIGHW A Y PANVELFISH MARKET

TACKLING ISSUES THAT EXIST ON SITE

Existing temples

Relocating the activity

Rejuvenating lake

SEGREGATION OF PEDESTRIAN AND VEHICULAR ACTIVITY

dedicated drop-off space for public and private vehicles

parking provisions for the people visiting the destination

GARDEN AS INTEGRATED PART OF DEVELOPMENT

ADDITIONS CATERING TO NEED IN CITY IMPROVING THE IMAGEABILITY

OF THE SPACE

MULTI-PURPOSE BLOCK

:

PUBLIC PLAZA :

Redeveloping the site establishing connection

REJUVENATION OF LAKE

green buffers around the lake

physical and visual access to the lake

Clearing the encroachment around the lake

URBAN RENEWAL

a space to exhibit art and knowledge

ENHANCING THE FIVE ELEMENTS OF URBAN SPACE

:

PATH

Creating a central spine which connects the site with each other. paths to be designed in a way they help navigate the people through space.

NODE

aspacetoexpressopinions a space to showcase the talent

EDGES

a space to gather during ceremonies and festivals a space to visit as a weekend destination

ADMINISTRATION BLOCK

:

Structure overseeing the functioning of the ake-front development.

Structure overseeing the security of the water-front area.

LANDMARK

Designing nodes where people will experience the interchange of pathways

Developing pathways connecting garden and the main site

Redeveloping the market and municipal shopping complex

relocating the vegetable market vendors and temple retail shops.

PUBLIC TOILETS :

the ovrall site planning will also involve facilitating general public toilets and drinking water stations.

DISTRICT

treating the edge conditions of pathways, site and lake

Creating a unique emphasizing structure which becomes the icon in the cityscape.

Incorporating an uniform architecture language in the built structures to be designed.

DESIGN APPROACH

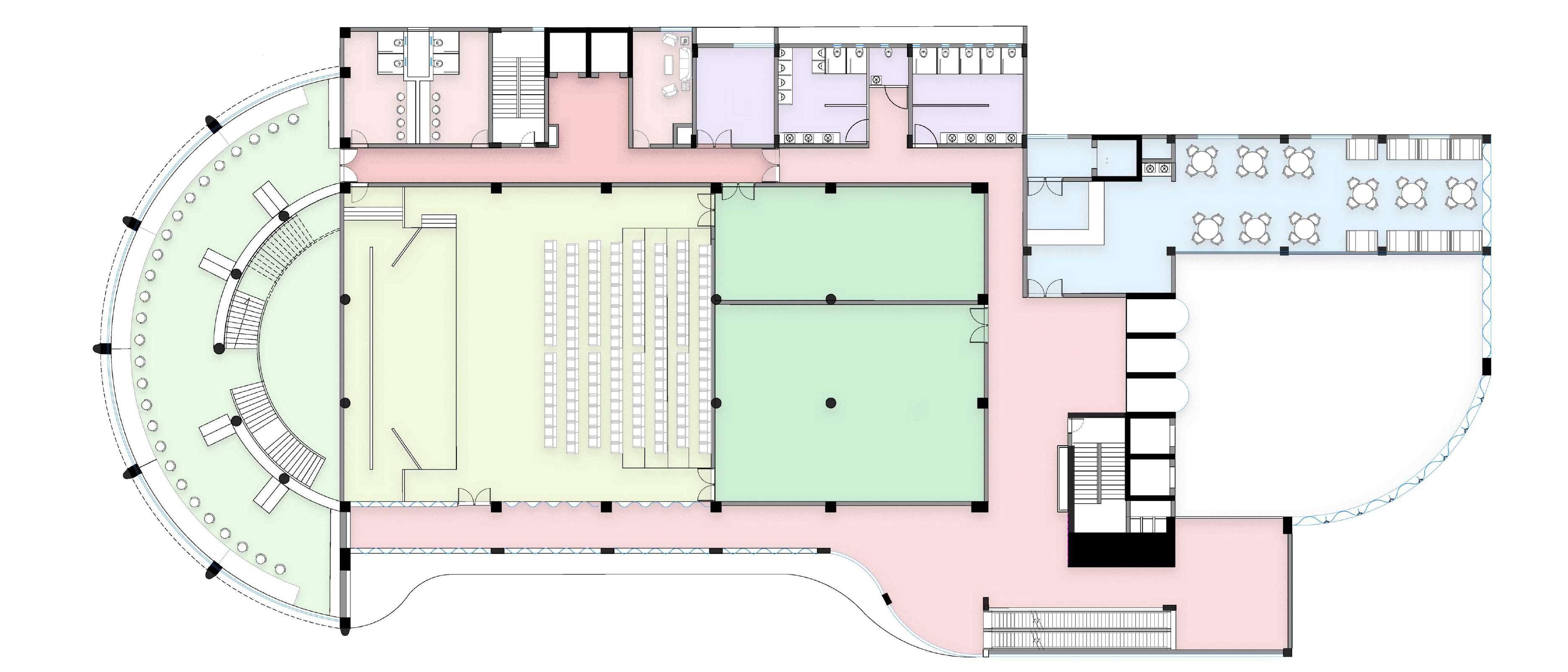
LAKE MARKET MUNICIPALSHOPPINGCOMPLEX GARDEN PARKING

FORM DEVELOPMENT:

ELEMENTS OF THE ZONING AND MASSING :

WATER-FRONT

1)ADMIN BLOCK

2)GENERALPUBLIC TOILET

3)TEMPLE RETAIL SHOPS

4)PAVILION

5)STEPPED GHAT

MULTI-PURPOSE BLOCK

1)EXHIBITION SPACE

2)LIBRARY

3)REHEARSALSTUDIOS

4)MULTI-PURPOSE HALL

5)SEMINAR HALL

RESTAURANT URBAN PARK PLAZA

RETAILBLOCK

1)MARKETHALL

2)RETAILSHOPS

3)ANCHOR SHOPS

4)FOOD COURT

1)INFORMATION KIOSKS

2)MONUMENT GROUND

3)KIDS PLAYAREA

4)OPEN GYM

ZONING AND MASSING
DESIGN PROGRAMME :
LAY-BY +1.5M PLAPERFORMING TFORM GAZEBO 6MWIDEWALKWAY PEDESTRAINWALKWAY GREEN AREA MAIN DROP OFF +0M BICYCLE PARKING RAMP DN RAMP UP +5.0M SERVICE ENTRY +0M +0M CORNERPLAZA CENTRALPLAZA RICKSHAWDROPOFF SERVICEYARD +2.5M ENTRYPLAZA KIDSPLAYAREA OPENGYM ELECTRICYARD RAMP6M WIDE SERVICE YARD +0.75M +0.75M PAVILION +0.0M +0.3M +2.1M +0.9M +0.45M +1.5M +0M UP +1.5M +3.8M +0.75M BUSSTAND +1.5M -1.35M 7.5 M WI D E R OAD 6M WIDE ROAD VEHICULARSITEENTRY STEPPED GHA T WATERFRONT DECK MAINENTRANCE TOMARKET SPACEFORSERVICEENTRY 6M WIDE ROAD 18 M WIDE ROAD BALAJI TEMPLE KRUSHNESHWAR MAHADEVTEMPLE NARALAXMI TEMPLEYAN POSTOFFICE SHIVAJICHOWK SHIVAJI CIRCLE 12 M WIDE ROAD KRUSHNALE LAKE RETAILSHOPS GARDEN ENTRY UP RAMP UP RAMP UP RAMP UP LOADING UNLOADING PLATFORM M LONG FRUITAND VEGETABLE MARKET CAFE CAFE SERVICE AREA X M CAPSULE LIFTS KITCHEN 350 SQM STORE SERVICE LOBBY +1.5m VL +1.65m VL +1.65m RETAILBLOCK ENTRANCE LOBBY ESCALA OR ENTR 2.3 WIDE LOBBY COMMON LOBBY EXHIBITIONAREA M W D E LO B Y 2 M W D E LOAD N G D E C K ENTRANCE LOBBY SERVICE ENTR 2.5 M WIDE SERVICE LOBBY GARBAGE COLL. ENTRANCELOBBY ELECTRICAL ROOM SEC.CABIN ENTRANCE PORCH+0.9MVL +1.65M ADMIN ENTRANCE+0.45MVL 2.1 M W E E V E LOB Y HUTATMAMONUMENT RAMP UP 5 M W I D E W A L K W A Y 1 0 M W I D E W A L K W A Y EXIT SECTION FROM CENTRAL SPINE +0.0M LVL -3.6M LVL -4.5M LVL +5.0M LVL +18.0M LVL +34.0M LVL +30.8M LVL +38.5M LVL WATERFRONTDECK WATERFRONTDECK MONUMENTGROUND ELEVATED DECK CENTRALPLAZA DROPOFF POINT RAMP AMPHITHEATRE SHRINE BASEMENT ARKING ESCALA OR LOBBY ENTRYGATE -1.2M LVL 0M LVL 1M LVL 4.5M LVL ELEVATED RESTAURANT SITE PLAN 5 10 20 All DM IN M
SECTION CC’ SECTION W T A N L O K R W F A R Y WATE
KEY PLAN RETAILSHOPS RETAILSHOPS RETAILSHOPS RETAILSHOPS FOOD COURT FOOD COURT VEGETABLE MARKET EXHBITION SPACE REHEARSALSPACE MULTI-PURPOSE HALL +1.5M LVL +0.75M LVL +6.0M LVL +10.0M LVL +14M LVL +0.0M LVL -2.7M LVL -3.6M LVL +17.3M LVL +20.3M LVL +22.73M LVL CAR PARKING CENTRALPLAZA RETAIL BLOCK MULTI-PURPOSE BLOCK SECTION AA’ BASEMENTPARKING EXHBITION SPACE REHEARSALSTUDIO REHEARSALSPACE MULTI-PURPOSE HALL ENTRANCE LOBBY CORRIDOR PRE-FUNCTION SPACE CORRIDOR CORRIDOR CORRIDOR +1.5M LVL +0.75M VL +6.0M LVL +10.0M LVL +14M LVL +0.0M LVL -2.7M LVL -3.6M LVL +17.3M LVL +21.3M LVL +24.3M LVL WATERFRONTWALKWAY WATERFRONTWALKWAY RAMP PEDESTRIAN WALKWA VEHICULAR ROAD 6M WIDE GARDEN PUBLIC OILET EXISTINGTEMPLE SEMINAR HALL LIBRARY -4.5M LVL 0M LVL 11M LVL A A’ C’ C D D’ A A C C C 2 4 6 ALLDMARE IN M 2 4 6 ALLDMAREINM
CENTRALPLAZA
GARDEN ENTRANCE

KIDSPLAYAREA

+5.0M ENTRYPLAZA
OPENGYM +0.75M +0.75M +0.0M +0.3M +2.1M +3.8M +0.75M BUSSTAND GARDEN ENTRY UP RAMP UP RAMP UP RAMP UP HUTATMAMONUMENT INFO. KIOSK STORE SECURITY CABIN RAMP UP GARDEN F’ F CENTRALMONUMENT GARDEN ENTRANCE GATE STEPSTO DECK ELEVATED DECK +5.0M LVL +3.8M LVL 0.0M LVL +3.1M LVL +6.0M LVL +9.0M LVL
O A D
E R O A D
1 8 M W I D E R
1 2 M W I D
HUTATMA SMARAK
ELEVATED DECK
VEHICULAR ENTRANCE

GROUND FLOOR PLAN

RETAIL BLOCK +1.5m Lvl. +6m Lvl. +10m Lvl. +14m Lvl. +18m Lvl. +33.4m Lvl. +30.8m Lvl. +38.9m Lvl. +41.95m Lvl. +19.9m Lvl. LED SCREEN ADVERTISEMENTHOARDING
SOUHT-EAST ELEVATION
FRUITAND VEGETABLE MARKET MAIN ENTRANCE TO MARKET LOADING UNLOADING PLATFORM 11 M LONG FRUITAND VEGETABLE MARKET CAFÉ CAFE RETAILSHOP GARBAGE COLL. SERVICE AREA 9 X 11 M CAPSULE LIFTS KITCHEN 350 SQM STAFF H.CHEF STORE STORE PREPARATION AND COOKING CLEANING OUTDOOR TAKE-AWAY COUNTER UP SERVICE LOBBY +1.5m LVL +1.65m LVL +1.65m LVL RETAILBLOCK ENTRANCE LOBBY ESCALATOR ENTRY DUMB WAITER 2.3 M WIDE LOBBY STORE ELE. ROOM ENTRANCE LOBBY CAFÉ & RETAILSHOP KITCHEN & STORES SERVICE LOBBY RETAIL BLOCK : PROGRAMME : LEVEL1 : A. MARKETHALL- 750 SQM 30 VEGETABLE STALLS 30 FLOWER STALLS B. CAFES - 50 SQM EACH C.RESTAURANTKITCHEN300 SQM 5 AllDMINM 2.5 15
RETAIL BLOCK

SECOND FLOOR PLAN

RETAIL OUTLETS 45 SQM EACH 4M W I D E LO B BY 4 M W I D E LO B BY ANCHOR SHOP 440 SQM ANCHOR SHOP 540 SQM 4M W I D E LO B BY 4M W I D E LO B BY AHU AHU CAPSULE LIFT CAPSULE LIFT MAINT STORE 2.5 M WIDE 2.5 M WIDE RETAIL OUTLETS 45 SQM EACH MAINT STORE 2.5 M WIDE 2.5 M WIDE ANCHOR SHOP RETAILOUTLETS LOBBY SERVICE RETAIL BLOCK ES M CA RO L F AT W O E R VI PLAZAFRONTWALKWAY
FIRST FLOOR PLAN
RETAIL BLOCK : PROGRAMME : LEVEL2AND 3 : A. RETAILSHOPS - 20 No.s 16 no. 45 sqm each 4 no.s 60 sqm each B.ANCHOR SHOPS - 2 No.s 440 sqm and 540 sqm each 5 AllDMINM 2.5 15

THIRD FLOOR PLAN

SECTION RETAIL BLOCK FOOD COUR T OUTLETS 5M W I D E LO B BY 5M W I D E LO B BY CAPSULE LIFTS FOOD COURT SEATING 2 M W D E S E R V C E L O B BY MAINT STORE 2.5 M WIDE UP ODCOURTSEATING FOOD COURT SEATING FOOD COURTOUTLETS SERVICE LOBBY +1.5M LVL +0.75M VL +0.0M LVL -2.7M LVL -3.6M LVL +33.4M LVL +30.8M LVL +41.95M LVL +6.0M LVL +10.0M LVL +14M LVL +17.3M LVL +19.9M LVL +38.9M LVL 1 2 4 FOOD COURT RETAILANDANCHOR SHOPS RETAILANDANCHOR SHOPS MARKETHALL RESTAURANTKITCHEN PROGRAMME : LEVEL4 : 16 no.s food stalls 15 sqm each 3 no.s. food stalls 24 sqm each 1 no. 34 sqm and 1 no. 74 sqm 112 SEATING CAP 5 AllDMINM 2.5 15

FROM CIRCLE

VIEW

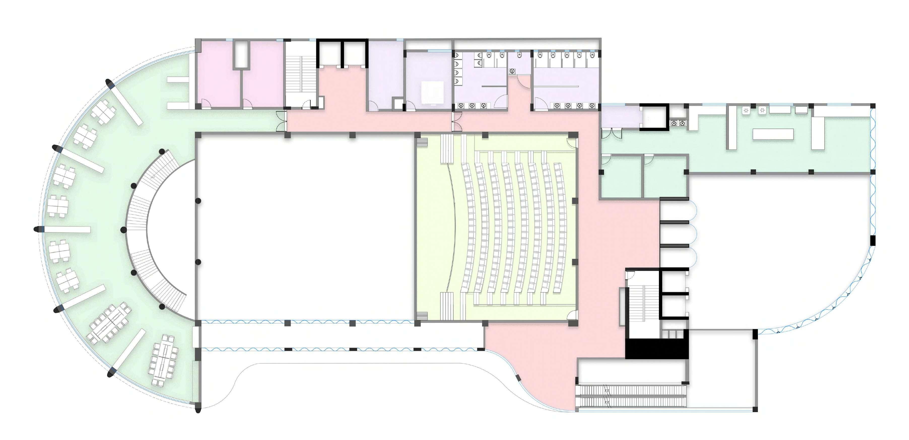
GROUND FLOOR PLAN

EXHIBITIONAREA CIRCULATION SERVICES COMMON LOBBY MULTI-PURPOSE BLOCK COMMON LOBBY F TOILET TICKET BOOTH BACKST AGE ENTR Y EXHIBITIONAREA 1000 SQM AHU STORE 2 M W D E LO B BY 2 M W D E LOAD N G D E C K LOUNGEAREA IBMS ROOM ENTRANCE LOBBY EXHIBITION INC. AND ST AFF UP UP SERVICE ENTRY M.TOILET 2.5 M WIDE LOBBY SERVICE LOBBY +1.65M WASTE COLL. +1.5M 3.3 M WIDE 1 2 4 SERVICESAND LOADING UNLOADING SPACE ALLDMARE IN M AHU ENTRANCE LOBBY 2 M W D E LO B BY 2 . 1 M W I D E LO B BY BLOCKADMIN REHEARSALSTUDIO 8.5X 9.5 M REHEARSALSPACE FOR MULTI-PURPOSE HALL 18.5 X 12.7 M STORE ROOM LIBRARIAN'S ROOM ACCOUNTS AND DOC. RECORD ROOM KIDS LIBRARY 200 SQM CHILDREN T OI UP LIBRARY RECEPTION BAGGAGE SECTION 2.5 M WIDE LOBBY REHEARSALSTUDIO 8.5X 9.0 M F TOILET M.TOILET UP WORK STATIONS HEAD'S CABIN MEETING ROOM UP FIRST
FLOOR PLAN
EXHIBITIONAREA REHEARSAL SPACE & STUDIO ADMIN SERVICES MULTI-PURPOSE BLOCK : PROGRAMME : LEVEL 1 : A. EXHIBITION SPACE - 1No.s 1000 SQ.M B. COMMON LOBBY - 1 No.s 400 SQ.M C.ADMINAREA- 100 SQM LEVEL 2 : A. LIBRARY - 650 SQM B. REHEARSALSPACES - 400 SQM C.ADMINAREA- 175 SQM 1 2 4 ALLDMARE IN M

SECOND FLOOR PLAN THIRD

AHU ENTRANCE LOBBY 2 M W D E LO B BY MULTI-PURPOSE HALL 20 X 18 M CAFETERIA KITCHEN 175 SQM COMMON LOBBY AV ROOM1 SERVER ROOM AV ROOM2 SEMINAR HALL 180 CAP AUDIO VISUAL SHELVES DN UP SERVICE LOBBY 2.2 M WIDE UP UP STAFF ROOM STORE CLEANING CUTTING AND PREP COOKING DN DN F TOILET M.TOILET 4 M WIDE UP CAFETERIASEATING 70 CAP AHU ENTRANCE LOBBY 2 M W I D E LO B BY MULTI-PURPOSE HALL 20 X 18 M LIBRARY 2 M W I D E LO B BY PRE-FUNCTIONAREA 15.5 X 11 M STORE 15.5 X 6 M VIP SUITE UP 2.5 M WIDE F TOILET M.TOILET UP CAFETERIA COUNTERS SERVICE LOBBY 2.2 M WIDE UP LIBRARY STORE SERVICES COMMON LOBBY CAFETERIASEATING BACKSTAGE SPACES SEMINAR HALL AV ROOM1 COMMON LOBBY CAFETERIA KITCHEN SERVICES
LIBRARY MULTI-PURPOSE BLOCK MULTI-PURPOSE BLOCK : PROGRAMME : LEVEL 3 : A. MULTIPURPOSE HALL 360 SQM B. LIBRARY C. PRE-FUNCTION SPACE D. CAFETERIA- 175 SQM LEVEL 4 : A. LIBRARY (AV) - 350 SQM B. SEMINAR HALL - 280 SQM C. CAFETERIAKITCHEN - 175 SQM GREEN ROOMS GREEN ROOMS 1 2 4 ALLDMARE IN M 1 2 4 ALLDMARE IN M
FLOOR PLAN

SPACE FUNCTIONINGAS LARGEAUDITORIUM OF 380 CAP.

SPACE FUNCTIONINGAS TWO DIFFERENT SPACES SEMINAR HALLAND MULTI-PURPOSE HALL.

-2.7m lvl +1.65m lvl +6m lvl +10m lvl +14m lvl +17.3m lvl +21.3m lvl LIBRARY MULTI-PURPOSE HALL LOBBY COMMON LOBBY ROOF-TOPSOLAR PANELS MULTI-PURPOSE BLOCK 1 2 4 ALLDMARE IN M 1 2 4 ALLDMARE IN M
2 M W D E LO B BY OHTABOVE 27 cu.m MACHINE ROOM ABOVE COOLING TOWERS BATTERYROOM RCC SLOPING ROOF UP UP MACHINE ROOM ABOVE SERVICE DUCT SPACE FOR VRF OUTDOOR UNITS PROJECT OR ROOM 1 2 4 VRF O.U. MACHINE ROOM OHT 40 cu.m VRF OUTDOOR UNIT (RESTAURANT) SOLAR PANELS ON ROOF BATTERY ROOM FIRE OHT 10000 LCAP 1 2 4 LIFT MACHINE ROOM WATERTANK 7000 L WATERTANK 7000 L RAINW A TER GUTTER RAINW A TER GUTTER DN RAINWATER GUTTER RAINWATER GUTTER UP LIFT MACHINE ROOM ROOF PLAN 1 2 4

STRUCTURAL SYSTEM

Restaurant with overall span of 33m supported on steel girder Beams supported on RCC ( 2M Thick ) pier.

RESTAURANTSERVICES RESTAURANTSPACE TOILETS HEAD’S CABIN REFUGEE SPACE ( 30 SQM ) Total
900 sqm Capacity
100 person elevation
34m lvl. From G lvl.
Area :
:
:
:
+41.95m Lvl. +39.5 m Lvl. +37.8 m Lvl. +34.00 m Lvl. +30.80 m Lvl. SA TTELITE KITCHEN 120 SQM PUBLIC LOBBY 4M WIDE SERVICE LOBBY 4 M WIDE REFUGEE AREA TOILET LOBBY UP RECEPTION MANAGER'S CABIN BAR COUNTER UP RESTAURANT ELEVATED RESTAURANT SATELLITE KITCHEN WASHBASIN FIRE STAIRCASE SPACE FOR LIFTMACHINERY L I F T S H A F T L I F T S H A F T D U M B W A I T E R 1 2 4

METALDECKING COMPOSITESLAB

ISMB200SUPPORTING MEMBERSFOR METALDECKINGSLAB

STEELCOLUMNS (ISMB600)

BUILT-UPSECTION STEELGIRDERS

BOTTOMCANTILEVERED PROJECTION CLADWITHACP

BOTTOMACPCLADDING

STEELGIRDERS ( 2M DEEP)

METALDECKING SLAB

PURLINMEMBERS

KALZIPROOFINGSHEET

ACPCLADDING
RESTAURANT

KEY

6 M W I D E R O A D 6 M W I D E R O A D 6 M W I D E R O A D 6 M W I D E R O A D 6 M W I D E R O A D FIRE CONTROL ROOM ELEC. ROOM 3.4 X 6.5 M AC PLANTROOM 15 X 6.5 M ELEVATOR LOBBY ESCALATOR LOBBY ELEV A T OR LOBBY SERVICE LOBBY STATIC ANK 1.5 LAC 6M WIDE RAMP UP SLOPE : (1:8) ST ORE ST ORE U.G.T (5X9X1.8 M) RAINW TER HARVESTING ANK BELOW PUMP ROOM UP UP BASEMENT 3 6 9 ALLDMARE IN M ELEVATOR
ESCALATOR
TOTALCAR
BIG
PARKING
LOBBY/
LOBBY BUILDING FOOTPRINT
PARKING : 196 CARS (
+ SMALL) 60 BIKE
-2.7 m LVL +0.75 m LVL +1.5 m LVL -3.6 m LVL +5.3 m LVL -2.7 m LVL +1.5 m LVL +2.5 m LVL ESCALATOR LOBBY DROP-OFF ELEVATED DECK TOTAL
PLAN BASEMENTFOOTPRINT GARDENAREA
BASEMENTBUA: 8180 SQM
PLAZA

CENTRALPLAZA

+1.5M MAIN DROP OFF +0M RAMP DN RAMP UP
+2.5M RAMP6M WIDE UP +0.75M +1.5M 7.5 M WI D E R OAD 6M WIDE ROAD WATERFRONT DECK 6M WIDE ROAD LAKE CAFE CAFE CAFE MAINT STORE UP SERVICE LOBBY ESCALATOR ENTRY UP 2.5 M WIDE +1.65M 5 M W I D E W A L K W A Y PLAZA -2.7 m LVL +1.5 m LVL +2.5 m LVL DROPOFF POINT RAMP BASEMENT PARKING ESCALATOR LOBBY 1 2 4
SOUTH ELEVATION +1.5m Lvl. +20m Lvl. +30.8m Lvl. +39.55m Lvl. +41.95m Lvl. 0.0m Lvl. 1 2 4
WATER-FRONT
VIEW ACROSS
LAY-BY PLAPERFORMING TFORM GAZEBO 6MWIDEWALKWAY PEDESTRAINWALKWAY GREEN AREA +0M +0M SERVICEYARD ELECTRICYARD PAVILION +0.9M +0.45M -1.35M 7.5 M WI D E R OAD STEPPED GHA T WATERFRONT DECK BALAJI TEMPLE KRUSHNESHWAR MAHADEVTEMPLE NARALAXMI TEMPLEYAN KRUSHNALE LAKE RETAILSHOPS MALE TOILET FEMALE TOILET ENTRANCELOBBY ELECTRICAL ROOM SEC.CABIN ENTRANCEPORCH+0.9M VL ADMIN ENTRANCE +0.45MLVL 2.1 M W DE SERV CE LOBB 6 M W I D E W A L K W A Y 1 0 M W I D E W A L K W A Y 6 M W I D E R O A D ADMINBLOCK KRUSHNALE LAKE-FRONT PANTRY MEETING ROOM LOBBYSPACE UP FIRST FLOOR PLAN STORE MEETING ROOM RECORD ROOM LOBBYSPACE UP SECOND FLOOR PLAN LOBBYSPACE OFFICE SPACE PUBLICTOILET RETAIL SHOPS GROUND FLOOR PLAN GARBAGE COLL. MALE TOILET FEMALE TOILET MAINT . ST AFF SECURITY ST AFF ENTRANCE LOBBY SEC. CABIN ROOMELECTRICAL BABY CARE ROOM +0.9MPORCHENTRANCE LVL UP KE R T MA CI L R E C V L N E A P WATER-FRONT DECK 2 4 8 1 2 4
+0.9M LVL 0M LVL +4.5M LVL +6.0M LVL +9.0M LVL
PAVILION SERVICEYARD -4.5M LVL PLATFORM WATER-FRONT B’ AN
SECTION BB' RETAILSHOPS

GAZEBO WEST SIDE CIRCLE

STEPPED
GHAT WATER-FRONT PAVILION WATER-FRONT

Turn static files into dynamic content formats.

Create a flipbook
Issuu converts static files into: digital portfolios, online yearbooks, online catalogs, digital photo albums and more. Sign up and create your flipbook.