twentyeight+yearsofarchitecture
Architecture is about ideas. It’s about intelligence and sensibility
nineyearsinspain
Our officesin Madrid and Mexico City are intimatelylinked.The growing economicand cultural interchange between Spain,Mexico and the rest of Latin America is the frame which supports the expansion of our practice.
Through our offices in MC and Madrid, we focuson multinational clients that invest fromand to each side of the Atlantic Ocean. Our double presence allows usto getto know and understand our clients, and to interactas locals. We are also aware of Spanish and European regulations, which we frequentlyapplyto our projects in Mexico.
Ourservices
Architecture. Our core of work isarchitecture design in all its range, from conceptual design, to construction drawings and construction supervision.
Deep BIM. We design on BIM platformsin full BIM modelling that servesas a base to be extended to construction (BAM) and facilitymanagement (BOOM).
Utopolis. Urban design addressed from human and sustainable viewpoints. The ideal of the city transferred to reality.
Urban Design and Planning Being able to zoom-out in space and time is a foremost capacity for architectural planning. Exploration, investigation, objective diagnosis and objective image are toolsthat we combine with creativity and intelligence. Planning isnot only essential for urban scale, but also for large projects that will be built in phases.
Project Coordination We know that collaborative design is a very strong base for successful projects. We frequently coordinate all the consultantsinvolved in our projects: structural, installations, traffic and cost engineers; landscape, interior, graphic and industrial designers; façade, safety & securityconsultants.We set the basisfor collaborative design, where each specialty isimportant and has to be included in the architecture neatly and naturally.
Special projects. From time to time, we support are clientswith Taylor-made services for veryspecificand special requirements. We enjoy these challenges.
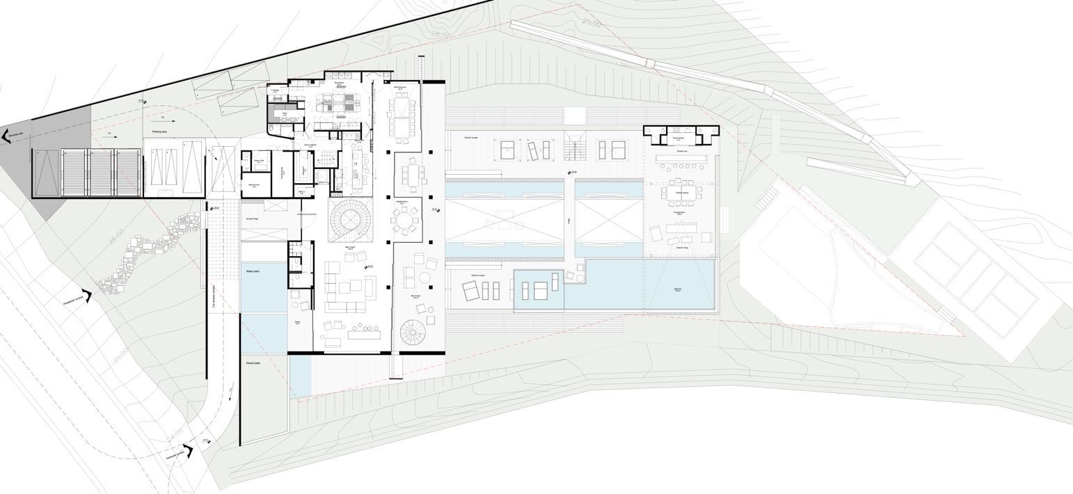
FACHADA GALERÍAS LIVERPOOL TOLUCA
Paseo Tollocan, Toluca, Edo. de México. 2012-2013
Concurso restringido
Diseño de la fachada exterior, interior y túnel de la escalera eléctrica que sube al ‘Food Court’ a ‘Experiencia Gourmet’ Por el contexto industrial del Paseo Tollocan, se ha planteado diseñar la fachada en un material que asemeje a la madera y que dicha fachada tuviese una geometría orgánica para darle calidez a la zona
FAÇADE for GALERÍAS LIVERPOOL TOLUCA
Paseo Tollocan, Toluca, Edo. de México. 2012-2013
Built
We designed the façade of a department store next to a main highway in an industrial complex near Toluca City The façade contrasts with the steel boxes by being soft, organic and warm The construction technique was developed entirely for the project, which complied to a very tight budget Our main goal was to make a recognizable and memorable building that could be understood in 20 seconds
- Innovation award for exterior façade (2015) by the Retail Design Institute.
- Finalist un Archdaily Building of the year award 2019 in the category of “Best product” (2019)
CONTACT CENTER MUNDIAL BANCO SANTANDER
Querétaro, México. 2005-08.
(con Estudio Lamela)
Primer Premio
Concurso restringido en dos etapas
Proyecto de 92,000 m2 , el call center más grande de América Latina
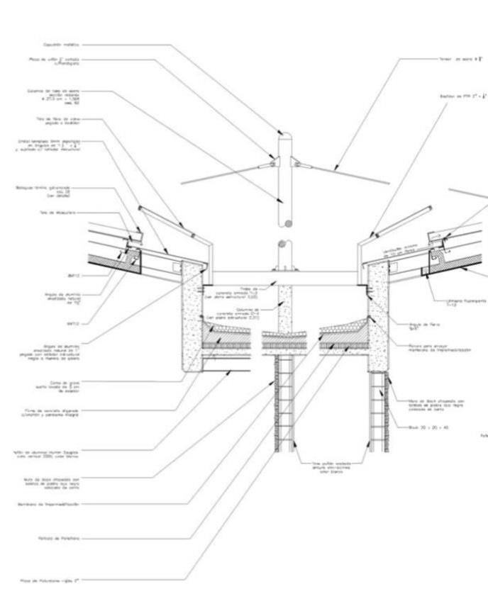
Un edificio que consta de una base aterrazada y con taludes a manera de plataformas prehispánicas donde se concentran los servicios del edificio como son los restaurantes, las cocinas y ayuda a disimular los volúmenes de los estacionamientos De esta base se desprende sobre pilotis, el cuerpo de oficinas, esta separación da como resultado los vestíbulos de acceso al edificio
El cuerpo flotado que es de planta libre con una forma continua que está recubierto de cristal y de paneles de aluminio dando una doble textura El cuerpo de oficinas tiene tres grandes patios redondos que iluminan los vestíbulos de acceso, contienen las circulaciones verticales y se concentran alrededor de ellos las zonas de descanso de los empleados así como las salas de juntas
En la cubierta del edificio se creó una azotea verde con área de estar
SANTANDER WORLD CONTACT CENTER
Querétaro, México. 2005-08. (with Estudio Lamela)
Built
This is perhaps the first building in the World designed specifically for a call centre. It is the world’s main call centre for Banco Santander. In its 90,000 m2 it holds 2,000+ operators and main facilities, plus a 50,000 m2 parking for 2,000 cars
The stainless aluminium façade, the 3 patio plan and the 12,000 roof garden, achieve confirmed energy cuts of 40% and plain natural light during daytime
► El cuerpo flotado es una planta libre con una forma continua recubierta de cristal y de paneles de aluminio, dando una doble textura. La cubierta del edificio cuenta con una gran área de estar y áreas verdes que proporcionan descanso y alivio a sus usuarios.
▲ La propuesta plantea una clara separación entre dos elementos: uno pegado al terreno y resuelto con materiales pesados, que tiene en cuenta la tradición de la arquitectura tradicional mexicana, y otro elevado resuelto con materiales ligeros que representa el presente y el futuro tecnológico.
CENTRO DE ATENCIÓN TELEFÓNICA DE LIVERPOOL
Morelia, Michoacán México. 2016
El proyecto alberga el Centro de Atención Telefónica (CAT) de Liverpool tiene un diseño que utiliza arquitectura bioclimática para resolver las necesidades de sus usuarios, con el menor gasto de recursos posibles Uno de los elementos mas importantes de este proyecto es su segunda piel, de acero corten perforado para controlar la temperatura del edificio, difuminar la luz y crear distintas vistas La otra parte del proyecto que se basa en la arquitectura bioclimática es la cubierta verde, la cual servirá como espacio de esparcimiento para los usuarios del CAT, asimismo ayudara a controlar la temperatura del edificio. Este inmueble será habitado por un estimado de 3,000 personas y contara con comedor y dos estacionamientos
CALL CENTER FOR LIVERPOOL
Morelia, Michoacán México. 2016
Built
Liverpool commanded us to design the envelope of a square 60x40 m building in 3 floors that they designed over the knees, with façades to east, south and west Also, a church scaled vestibule for which the structure was already bought This building is the first stage of the future corporate headquarters
The façade is made of an all glazing inner skin and a perforated cortex steel second skin to control sunlight, solar gains and intense glares in the morning and afternoon It is conceived as a rock with a garden on the top The inner temperature was dropped 10ºC with this action, so the cost will be recovered in only 4 ½ years
The vestibule is a cut triangle with the main façade oriented to the west and the secondary to the east The glassless façade is made of perforated cortex steel panels with deconstructed Liverpool’s logo that create a magical array of lights at dawn and sunset
IV Bienal Arquitectura CDMX 2019, medalla de plata Premio Interceramic de Arquitectura e Interiorismo
MAKINO TECH CENTER
Querétaro, Qro
Proyecto en proceso 2025
Este edificio industrial de alta tecnología en el que se manufacturarán máquinas con precisiones micrométricas, Requiere de un control térmico preciso, anular vibraciones y una alta calidad lumínica. Más allá de la certificación LEED Gold, con la cual se está diseñando, es un claro ejemplo de Sostenibilidad por Diseño
Como una marca líder a nivel mundial entre los fabricantes de máquinas CNC (Control Numérico por Computadora), Makino proporciona maquinaria de alta calidad Ofrece ingeniería personalizada para sus clientes e integra dispositivos de control y herramientas de máquina esenciales para industrias que requieren alta precisión, como la automotriz y la de dispositivos médicos Makino representa precisión, innovación y tecnología PRESENCIA Y PRESTIGIO
Makino es una empresa líder en tecnología de maquinaria con sede en Tokio y con filiales en todo el mundo Su presencia global en Japón, Europa, América y Asia la posiciona de manera destacada en su sector Al conectar al mundo con tecnología de maquinaria de vanguardia, Makino desempeña un papel crucial en la mejora de la eficiencia y la calidad en diversos sectores industriales Su compromiso con la innovación y la excelencia la ha consolidado como un referente en el mercado global de tecnología de maquinaria
MAKINO TECH CENTER
Querétaro, Qro
Project in Progress 2025
This high-tech industrial building, where machines with micrometric precision will be manufactured, requires precise thermal control, vibration cancellation, and high-quality lighting Beyond the LEED Gold certification for which it is being designed, it stands as a clear example of Sustainability by Design
As a leading brand worldwide among CNC (Computer Numerical Control) machine manufacturers, Makino provides high-quality machinery It offers custom engineering for its clients and integrates control devices and machine tools essential for industries requiring high precision, such as automotive and medical device manufacturing Makino embodies precision, innovation, and technology
PRESENCE AND PRESTIGE
Makino is a leading machinery technology company headquartered in Tokyo with subsidiaries worldwide Its global presence in Japan, Europe, America, and Asia places it prominently in its sector By connecting the world with cuttingedge machine technology, Makino plays a crucial role in enhancing efficiency and quality across various industrial sectors
Its commitment to innovation and excellence has established it as a benchmark in the global machinery technology market
Saneamiento y recuperación del río Sabinal
Tuxtla Gutiérrez Chiapas 2008 - 2010
Parcialmente construido
propuesta concibe la ciudad como una red interconectada que integra sistemas pasivos de tratamiento de aguas residuales, de bajo costo y fácil operación, ligados a centros de producción de alimentos orgánicos, generando corredores urbanos peatonales y ambientales El proyecto busca garantizar la seguridad de la población, el acceso a agua potable, la creación de empleo mediante economías locales y un equilibrio dinámico entre los habitantes y su entorno Su estrategia se centra en la participación comunitaria, fomentando sentido de pertenencia y arraigo, al tiempo que incorpora la actividad humana al aire libre como recurso energético para interactuar con sistemas naturales que capturan, filtran, almacenan y reutilizan el agua, reintegrándola a los ciclos naturales y reduciendo la huella ecológica, mientras se promueve un diálogo sostenible entre paisaje, infraestructura y vida urbana
Sanitation and recovery of the Sabinal River
Tuxtla Gutiérrez Chiapas 2008 -2010
Partially built
The proposal envisions the city as an interconnected network integrating low-cost, easy-to-operate passive wastewater treatment systems linked to organic food production centers, creating pedestrian and environmental urban corridors The project aims to ensure population safety, access to potable water, job creation through local economies, and a dynamic balance between residents and their environment Its strategy focuses on community participation, fostering a sense of belonging and attachment, while incorporating outdoor human activity as an energetic resource to interact with natural systems that capture, filter, store, and reuse water, reintegrating it into natural cycles and reducing the ecological footprint, while promoting a sustainable dialogue between landscape, infrastructure, and urban life
MAYAN CITY
Quintana Roo, 2024
Proyecto conceptual
Atabey: Desarrollo Turístico-Residencial del Siglo XXI
Atabey será un desarrollo turístico-residencial basado en la sustentabilidad y la inclusión social, con un enfoque de urbanismo humanista que sitúa al ser humano en el centro El proyecto aprovechará recursos locales de manera responsable, fomentará el reciclaje y el equilibrio ambiental, y buscará emanar del lugar reforzando su identidad natural y cultural Inspirado en la Ciudad de 15 minutos, Atabey se plantea como un modelo policéntrico que integra vivienda, trabajo, servicios y recreación en cercanía, promoviendo movilidad sostenible, cohesión social y calidad de vida
MAYAN CITY
Quintana Roo, 2024
Conceptual project
Atabey: 21st-Century Tourist-Residential Development
Atabey will be a tourist-residential project grounded in sustainability and social inclusion, with a human-centered urbanism approach that places people at the core The project will responsibly use local resources, promote recycling and environmental balance, and draw from the site’s natural and cultural identity. Inspired by the 15-minute city model, Atabey envisions a polycentric development where housing, work, services, and recreation coexist in close proximity, fostering sustainable mobility, social cohesion, and quality of life
MAYAN CITY
Quintana Roo, 2024
Proyecto conceptual
Una ciudad antropogénicamente positiva, donde la acción humana no solo conserva sino fortalece y protege al ecosistema, marcando un rumbo opuesto a la distopía ambiental Una ciudad humanista e incluyente, centrada en las personas, que reconoce la diversidad como riqueza y promueve economías locales circulares bajo el modelo policéntrico y de 15 minutos Una ciudad orgánica, viva y adaptable, en permanente planeación para responder a problemas y aprovechar oportunidades, frente a los modelos rígidos de fraccionamientos Una ciudad tecnológica, donde la innovación transforma espacios y actividades, integrando herramientas como la tokenización de activos, la eficiencia operativa y energética. Y, sobre todo, una ciudad sostenible por diseño, fundada en principios bioclimáticos y reforzada con tecnologías y normativas que garanticen resiliencia a largo plazo
MAYAN CITY
Quintana Roo, 2024
Conceptual project
A city that is anthropogenically positive, where human action not only conserves but strengthens and protects the ecosystem, charting a path away from environmental dystopia A humanist and inclusive city, centered on people, recognizing diversity as wealth and fostering local circular economies under a polycentric and 15-minute model An organic city, alive and adaptable, in constant planning to address challenges and seize opportunities, in contrast to the rigid models of subdivisions. A technological city, where innovation reshapes spaces and activities, integrating tools such as asset tokenization, operational and energy efficiency And above all, a city sustainable by design, rooted in bioclimatic principles and reinforced by technologies and regulations that ensure long-term resilience
COCODRILARIO
Ixtapa Zihuatanejo 2011
Asignación directa FONATUR con Bloque MX
El proyecto se desarrollará en la zona “Laguna del Negro”, un ecosistema de pantano y manglar de 30 hectáreas con alto valor ambiental Su selección responde al potencial para la preservación de especies, la instalación de laboratorios y criaderos de investigación y reproducción, y la creación de programas de educación ambiental dirigidos a la comunidad y visitantes La iniciativa busca consolidar un modelo de conservación y desarrollo sostenible, garantizando la protección de la biodiversidad y el uso responsable del territorio
CROCODRILE PAVILLION
Ixtapa Zihuatanejo 2011
FONATUR direct allocation With Bloque MX
The project will be developed in the “Laguna del Negro” area, a 30-hectare mangrove and wetland ecosystem of high environmental value Its selection is based on the potential for species preservation, the establishment of laboratories and hatcheries for research and reproduction, and the creation of environmental education programs for the community and visitors The initiative aims to establish a model of conservation and sustainable development, ensuring biodiversity protection and the responsible use of the territory
Regeneración de la cuenca alta y bajaen el sur de Oaxaca de Juárez
Oaxaca de Juárez 2011
La cuevita es un territorio suburbano de carácter marginal y uso habitacional de clase -c con una carente infraestructura y nulos en bienes y servicios. El proyecto regeneración de la cuenca alta y bajaen el sur del municipio de Oaxaca de Juárez, pretende reactivar el territorio mediante programas agrícolas de bajo impacto y saniamiento de la cuenca generando bosques comestibles e incorporando a sus habitantes en modelos de economia local ligados al tema de manejo de la tierra bajo una vision de autosustentabilidad.
Regeneration of the upper and lower basin in the south of Oaxaca de Juárez
Oaxaca de Juárez 2011.
La Cuevita is a suburban territory of marginal character and class -c housing use with a lack of infrastructure and no goods and services. The project for the regeneration of the upper and lower basin in the south of the municipality of Oaxaca de Juárez, aims to reactivate the territory through low-impact agricultural programs and sanitation of the basin, generating edible forests and incorporating its inhabitants in local economy models linked to the issue land management under a vision of self-sustainability..
PARQUE CHAHUÉ
Bahías de Huatulco, Costa de Oaxaca FONATUR
El proyecto original fue concebido como emplazamiento de un suelo pavimentada con concreto en su totalidad, lo que lo hacia de este sitio un espacio poco amigable y con una isla de calor muy alta El planteamiento de nuestra propuesta aborda este territorio aprovechando unas ranuras existentes en él pavimento para romper con este y poder generar una calzada peatonal con una secuencia de islas ajardinadas y arboladas y al final de la calzada una serie de espacios lúdicos
CHAHUE PARK
Huatulco Bays, Oaxaca Coast FONATUR
The original project was conceived as a site with a floor paved with concrete in its entirety, which made this site an unfriendly space and with a very high heat island The approach of our proposal addresses this territory by taking advantage of existing grooves in the pavement to break with it and be able to generate a pedestrian walkway with a sequence of landscaped and wooded islands and at the end of the road a series of playful spaces
DESARROLLO DE PROYECTO: ESTRATOS BAJOS DE VEGETACIÓN
CENTRO COMERCIAL EXPLANADA PACHUCA
Pachuca de Soto, Hidalgo, 2020 con Callison RTKL Construido
El proyecto conceptual fue realizado por CallisonRTKL y la empresa GICSA está a cargo de la construcción del mismo Nuestro despacho, springall+mk, se está encargando del desarrollo del proyecto ejecutivo de las fachadas
“Este proyecto forma parte del nuevo concepto Malltertainment, el cual tiene como pilares la oferta comercial mixta, entretenimiento y comunidad Además, su diseño de un solo nivel rodeado de estacionamiento en sus cuatro frentes asegura el flujo constante de automóviles
Explanada Pachuca tendrá aproximadamente 77,310 m² de ABR en los que incluirá centro de espectáculos, globo aerostático, feria, hotel, entre otros Su construcción comenzó durante el primer semestre de 2017 y se estima que la entrega de la propiedad sea durante el segundo semestre de 2019 ” (GICSA, 2019)
EXPLANADA PACHUCA MALLTERTAINMENT
Pachuca de Soto, Hidalgo, 2020 with Callison RTKL Built
The main idea was done by CallisonRTKL and the company GICSA is in charge of its construction. Our office, springall + mk, is in charge of the development of the executive project of the facades.
"This project is part of the new Malltertainment concept, which has as its pillars the mixed commercial offer, entertainment and community. In addition, its single-level design surrounded by parking on its four fronts ensures the constant flow of automobiles
Explanada Pachuca will have approximately 77,310 m² of ABR in which it will include a center for shows, hot air balloon, fair, hotel, among others Its construction began during the first semester of 2017 and it is estimated that the delivery of the property will be during the second semester of 2019 "(GICSA, 2019)
CENTRO COMERCIAL EXPLANADA CULIACÁN
Culiacán Rosales, Sinaloa, 2019-actualidad (con GICSA y Callison)
Construido
Se estima que el complejo cuente con un ABR promedio de 74,912 m²
La construcción comenzó durante el primer semestre de 2018 y se estima que la entrega de la propiedad sea durante el primer semestre de 2020 ” (GICSA, 2019)
EXPLANADA CULIACÁN MALLTERTAINMENT
Culiacán Rosales, Sinaloa, 2019-now (with GICSA and Callison) Built
It is estimated that the complex has an average ABR of 74,912 m²
Construction began during the first half of 2018 and it is estimated that the property will be delivered during the first half of 2020 "(GICSA, 2019)
COMPLEJO LOGÍSTICO. DISEÑO DE PAISAJE
Jilotepec, Edo. de México.
Proyecto
Diseño de paisaje para un complejo de logística de más de 300 ha Se compone de diversas áreas Las más importantes son un parque lineal de 1,040 m de largo con una acequia y reserva de agua pluvial, promenade de acceso y arborización de calles.
LOGISTICS COMPLEX. LANDSCAPING
Jilotepec, Edo. de México.
Built
Landscape design for a logistics complex of more tan 300 ha It consists of diverse áreas The most meaningful are a linear park of 1,040 m with a rainwater reserve basin, an Access walkway and Street vegetation
TORRE MITIKAH
Xoco, Benito Juárez, CDMX. 2016
Proyecto en proceso
El proyecto se encuentra ubicado en la Av. Río Churubusco y Av Universidad, al borde de la Delegación Benito Juárez y enfrente de la colonia Del Carmen en Coyoacán La torre pertenecerá a un conjunto que tendrá un centro comercial, una clínica, un hotel y una torre de oficinas El conjunto contara con 8 niveles de estacionamiento y un mezzanine
La torre contara con 65 pisos y una altura de 267 30 mts volviéndose la torre residencial más alta del país Tendrá un total de 607 departamentos distribuidos que a su vez se dividen en 4 secciones; los Town Houses, ubicados a la altura del centro comercial, Low Rise, Mid Rise, el cuerpo con mayor número de departamentos, y High Rise, que contendrá en los últimos pisos a los Penthouses La torre tendrá 4 pisos con amenidades distribuidos en diferentes pisos, están comprenden un salón de fiestas infantiles, dos de albercas, gimnasio, salones familiares y restaurantes El área residencial será mayor a los 83,000 m2
MITIKAH TOWER
Xoco, Benito Juárez, CDMX. 2016
In construction
With 83,000 m2 , 67 floors and 670 units, it will be the highest residential building in Mexico City The façade was designed by Cesar Pelli (NYC) and everything from the skin in by S+L It will be a very visible landmark in a mainly horizontal area.
The core and general layout was conceived to organize in an orthogonal grid the elliptic plan and provide high standardization of construction techniques and equipment
Planta Low Rise
Planta Mid Rise
Planta High Rise
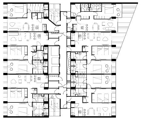
EDIFICIO ALTHAUS PEDREGAL
Álvaro Obregón, CDMX, 2022
Proyecto en trámites de licencia para construcción
El proyecto se encuentra localizado en el área de San Jerónimo Aculco, sobre el lindero este de Periférico Sur dentro de un terreno de 1,080 m2 , colindando al norte con la Presa Anzaldo
Se compone de cinco partes principales; basamento de 6 niveles, que contiene el acceso, los servicios y estacionamiento robótico, que eleva el área habitable por encima del segundo piso del periférico; un Sky lobby; una planta de amenidades y el cuerpo habitable, compuesto por 4 bloques de vivienda, Low Rise, Mid Rise, High Rise y Penthouse El cuerpo residencial se escalona en la cara este, lo que permite tener un Skypool y una terraza abierta en el nivel 39
Las plantas se resuelven mediante un vestíbulo central alrededor del cual se encuentran los departamentos, los cuales responden a diferentes tipos de usuarios, lo que genera una diversidad en tamaños y estilos dentro de la torre residencial, en algunos casos los departamentos serán de dos pisos El conjunto contara con un total de 42 pisos
ALTHAUS PEDREGAL
Álvaro Obregón, CDMX, 2022
Project in the process of obtaining a construction license
The second highest residential tower in the south of Mexico City, next to the Perferico, will include 300 residential units based on a modular system that we devised in its 42 floors
The modules, structure and façades interact to allow a Lego-type design strategy that will procure the highest levels of standardization while allowing a flexible mix of unit types A generous array of amenities are located on top of a parking floor that raises the lobby higher tan the second floor of the highway and in floor 39, with amazing views of the city
EDIFICIO ALTHAUS SAN ÁNGEL
Álvaro Obregón, CDMX, 2022
Proyecto en trámites de licencia para construcción
El proyecto se encuentra localizado en el área de Tizapán, sobre el lindero este de Periférico Sur dentro de un terreno de 946 m2
El edificio se compone de cinco partes principales; el basamento de 4 niveles, que contiene el acceso, los servicios y estacionamiento; un Skylobby, localizado por encima del segundo piso del periférico; una planta de amenidades y el cuerpo habitable, compuesto por 4 bloques de vivienda, Low Rise, Mid Rise, High Rise y Penthouse Las plantas se resuelven mediante un vestíbulo central alrededor del cual se encuentran los departamentos, los cuales responden a diferentes tipos de usuarios, lo que genera una diversidad en tamaños y estilos dentro de la torre residencial En los últimos pisos de la torre se encontrar el Skypool y el mezzanine de la alberca El conjunto contara con un total de 32 pisos de los cuales 23 niveles son de vivienda y una altura de 117 mts
ALTHAUS SAN ÁNGEL
Álvaro Obregón, CDMX, 2022
Project in the process of obtaining a construction license
The project is located in the Tizapán area, on the eastern edge of Periférico Sur, within a 946 m² site.
The building is composed of five main parts: a 4-level base containing access, services, and parking; a Skylobby located above the second level of Periférico; an amenities floor; and the residential body, consisting of 4 housing blocks Low Rise, Mid Rise, High Rise, and Penthouse The floor layouts are organized around a central lobby, with apartments designed for different types of users, generating a diversity of sizes and styles within the residential tower
On the upper floors, the tower features a Skypool and a pool mezzanine. The complex will comprise a total of 32 stories, of which 23 are residential levels, reaching a total height of 117 meters.
Planta Low Rise
Planta Mid Rise
Planta High Rise
RESIDENCIAL LOS TULES
Los Cabos Baja California Sur, 2023
Proyecto
Proyecto inmobiliario de 148 departamentos turísticos tipo Ocean View (100–150 m², 2 recámaras, con terrazas; penthouses con roof garden y algunos con patios privados), dirigido al mercado de segunda vivienda nacional e internacional Amenidades: áreas interiores y exteriores para coworking, wellness, salas de estar y reuniones, cafetería, bar, ludoteca, albercas, jardines, plazas, terrazas, canal de nado, canchas de pádel y pickleball
RESIDENTIAL LOS TULES
Los Cabos Baja California Sur, 2023 Project
Real estate project with 148 Ocean View tourist apartments (100–150 m², 2 bedrooms, with terraces; penthouses with roof gardens and some with private patios), aimed at the national and international second-home market Amenities: indoor and outdoor areas for co-working, wellness, lounges and meeting rooms, café, bar, kids’ playroom, swimming pools, gardens, plazas, terraces, lap pool, and paddle & pickleball courts
CONJUNTO HABITACIONAL GRANJAS
NAUCALPAN DE JUÁREZ, EDO. DE MÉXICO, 2022
Proyecto
Proyecto inmobiliario conformado por dos torres de 8 niveles sobre un sótano común de tres niveles (dos para estacionamiento y uno para cisternas y cuartos de máquinas) Ambas torres se conectan mediante un vestíbulo de acceso con caseta de control y vigilancia, y se integran a la topografía respetando la presencia de 8 árboles existentes El esquema arquitectónico es similar en ambas, con módulos estructurales de concreto armado de 8 x 10 22 m que alojan dos crujías y una circulación central; la Torre 1 (Granjas) cuenta con un módulo menos que la Torre 2 (Arroyo) Las circulaciones verticales elevador, escalera y ductos de instalaciones se concentran en un pliegue de 27° , optimizando funcionalidad y diseño
CONJUNTO HABITACIONAL GRANJAS
NAUCALPAN DE JUÁREZ, EDO. DE MÉXICO, 2022
Project
Real estate development consisting of two 8-story towers built over a shared three-level basement (two levels for parking and one for cisterns and mechanical rooms) The towers are connected through a main lobby with a control and security station, and are integrated into the site’s topography while preserving 8 existing trees Both towers share a similar architectural scheme, with reinforced concrete structural modules measuring 8 x 10 22 m, containing two bays and a central circulation core; Tower 1 (Granjas) has one fewer module than Tower 2 (Arroyo) Vertical circulation elevator, staircase, and main service shafts is concentrated within a 27° fold, optimizing both functionality and design
CIUDAD ISSSTE
Tlalpan, México, D.F.2013-6
Proyecto
La Ciudad ISSSTE es un complejo que reunirá las áreas de alta dirección, administrativas y operativas y una serie de servicios en un solo campus en un terreno de 100,000 m2 en el sur de la Ciudad de México, frente al antiguo barrio de Tlalpan En el terreno existen y se conservarán una serie de edificios industriales y de oficinas del siglo XIX, así como otros de manufactura contemporánea El programa general del proyecto se compone de:
•Oficinas administrativas y operativas: 70,000 m2
•Centro de Congresos: 3,000 m2
•Comedores para empleados y concesiones de alimentos y café: 2,000 m2
•Centro Cultural para afiliados y público en general: 3,000 m2
•Centro de Asistencia a la Mujer: 1,500 m2
•Centro de Asistencia a Jubilados: 1,500 m2
•Centro comercial de servicios: 800 m2
•Servicios para empleados: 500m2
•Escuela Nacional de Dietética y Nutrición: Existente
•Velatorios: Existente
•Centro Deportivo para afiliados: Existente
•Estacionamientos diversos: 70,000 m2
El campus será un ejemplo institucional de arquitectura medioambiental y contará con climatización pasiva asistida, ciclo de agua 100%, protecciones solares y sistemas de ahorro de energía
Se plantea una plaza pública que extenderá el casco antiguo de Tlalpan hacia los centros social, de la mujer, jubilados y de congresos
CIUDAD ISSSTE
Tlalpan, México City 2013-6
Design pending completion
ISSSTE City will be a +80,000 m2 facility that will hold the administrative, cultural and operations headquarters It will reunite 6,000 employees who are spread in 6 venues throughout the city
It is designed to comply with the highest ecological and energy efficient standards and certifications It is estimated that will save over 50% energy and 60% water resources, with a heat imprint of less than 20% of the total surface
ELITE CANCÚN
Cancún, Q. Roo. 2014.
Con Gaeta-Springall Proyecto
Esta es una isla privada Un complejo residencial vacacional de departamentos y town houses de más de 100,000 m2 construidos, rodeado de agua, donde las albercas y la laguna se funden. El esquema en zig-zag está diseñado para la construcción en fases y para generar vistas diferenciadas y movimiento al conjunto
ELITE CANCUN
Cancun, Q. Roo, 2014. With Gaeta-Springall Design
This is a private island A holiday complex of apartments and town houses with over 100,000 m2 built area, surrounded by water, where the pools fuse with the lake The zig-zag shape is designed for phased construction and integrate different views, as well as to render movement to the complex
FLAGSHIP HOUSE
FUNDADORES 91 PUERTO LOS CABOS, 2025
Proyecto en proceso
Este proyecto es el resultado de la colaboración entre el equipo y asesores de Alanza y Springall+mk Los procesos y reflexiones de diseño han estado íntimamente ligados a la definición del innovador concepto de negocio Se probaron dos conceptos iniciales de diseño frente a los objetivos y criterios empresariales, produciendo a veces cambios en el diseño y, en otras ocasiones, en el propio diseño del negocio La conclusión del Diseño Conceptual representa también la conclusión del esquema operativo y empresarial
FLAGSHIP HOUSE
FUNDADORES 91 PUERTO LOS CABOS, 2025
Project in process
This project is the result of the collaboration between Alanza team and advisors and Springall+mk The processes and reflections of design have been intimately linked to the definition of the innovative business concept Two initial design concepts were tested against the business objectives and criteria, sometimes producing changes in the design, and sometimes in the business design The completion of the Conceptual Design is the completion of the operational and business scheme
PUNTA CASCATTA
Angelópolis, Puebla. 2015. Con Gaeta-Springall Construido
Plan Maestro, paisaje y proyecto de arquitectura de un complejo de vivienda y usos mixtos de 53,000 m2 en una urbanización moderna de la periferia de Puebla El diseño de cajas bicolores le dan una identidad para ser reconocidas a distancia, incluso desde el Periférico y la carretera a Cholula Son torres para ver y ser vistas
PUNTA CASCATTA
Angelópolis, Puebla. 2015. With Gaeta-Springall Built
Master Plan, Landscape and architectural design of a residential and mixed-use complex in the modern quarters of Angelópolis on the outskirts of Puebla The design based on by-colored boxes give the buildings an identity visible from afar, even from the Periferico and the highway to Cholula They are towers to see and been seen
BOSQUE REAL LA CAÑADA / MASTERPLAN
Bosque Real, ZMVM. 2009. Con Gaeta-Springall Plan Maestro
Plan Maestro urbano para el desarrollo de un complejo de más de 1 km de largo frente a una cañada en el poniente de la CDMX Es un tramo de ciudad lineal con parques y reserva ecológica de terrenos para la edificación de torres de vivienda, oficinas, servicios y comercio El plan establece el espacio público y sienta las ordenanzas para el diseño de los edificios
BOSQUE REAL LA CAÑADA / MASTER PLAN
Bosque Real, ZMVM. 2009. With Gaeta-Springall Master plan
Urban Master Plan for the development of a complex of over 1 km in the western outskirts of Mexico City (Metro Area) It is a strip of linear city with parks and ecologic reserve of urban space and lots for the construction of residential, office, retail and servce towers The plan includes the public space and the rules for the design of the buildings
NUEVO SUR Monterrey, Nuevo León, 2012. Con Gaeta-Springall Construido
Complejo de usos mixtos en la regeneración de un área de la ciudad de Monterrey Con más de 169,000 m2, consta de 10 edificios de usos mixtos: vivienda, oficinas, comercio, hotel y amenidades Es un gran complejo para construirse en fases, donde el diseño fragmenta las inversiones sin perder la visión de conjunto
NUEVO SUR Monterrey, Nuevo Leon, 2012. With Gaeta-Springall Built
Mixed-use complex as part of the regeneration of an area in the south of Monterrey. Its 169,000 m2 include 10 buildings that conform a mix-use urban area, with housing, office space, retail, hotel and amenities It is a great complex to be built in phases, where the design fractions the investment areas without loosing its unity and functionality
TORRES SIROCO Y MISTRAL
Santa Fe, CDMX, 2010. Con Gaeta-Springall Construido
Dos torres hermanas de departamentos de lujo en el desarrollo urbano moderno de Santa Fe, de 80,000 m2 y 28,000 m2 y 43 pisos, de vivienda son un landmark en el perfil de Santa Fe Son reconocibles a gran distancia y marcan un hito y un lugar claramente identificados Su diseño disruptivo y escultórico son un gran gesto con impacto comercial Se componen de una variedad de tipologías y amenidades
SIROCO and MISTRAL TOWERS
Santa Fe, CDMX, 2010. With Gaeta-Springall Built
Two luxurious residential sister towers in the modern development of Santa Fe With their 80,000 m2 and 28,000 2 and 43 stories, they are a landmark in the skyline of this thriving area They are recognizable at great distance. Their disruptive and sculpted shapes give them a strong commercial identity and impact They contain diverse tipologies and an array of amenities
EDIFICIO ALTHAUS TOLUCA
Toluca, Estado de México, 2016
Concurso restringido
Se trata de un complejo de vivienda, centro de gastronómico y estacionamiento público Tiene una altura de 20 pisos y un total de 62,000 m2 Aloja 265 departamentos de diversas tipologías En planta baja, el centro gastronómico funciona como pasaje comercial entre dos calles y es la salida obligada de un estacionamiento público subterráneo El estacionamiento para residentes se desarrolla en los niveles superiores +1 a +3
ALTHAUSTOLUCA
Toluca, Estado de México, 2016
Competition
A high density 350-unit residential complex with commercial basement It The black, grey and White concrete buildings circle around a square patio
LOUISIANA 80
Nápoles, México, D.F. 2015
Proyecto en proceso
El proyecto consta de 135 departamentos, con las proporciones entre chicos, medianos y grandes solicitada con una dotación de más de 2 coches por departamento Se alcanza el 93% del potencial, que podría alcanzarse creciendo ligeramente el área de las tipologías
El proyecto se organiza como una grapa que forma y rodea al gran jardín o parque. Su espina dorsal es una circulación que va de calle a calle se convierte en un espacio integrador del condominio
LOUISIANA 80
Nápoles, México, D F 2015
Project in progress
This project consists in 135 apartments, in different sizes and shapes, though always caring for the proportion between them all It has more than 2 parking slots for each one of them It reaches 93% of the potential, though 100% could be reached by slightly increasing the housing area
The project it’s staple-shaped around a garden
EDIFICIO RESIDENCIAL NUBE 52 Y 56
Luis Cabrera, México, D.F.2016
Construido
El proyecto se encuentra en un predio cuya topografía es muy accidentada y arbolada Se concibió como una serie de cajas apiladas que se desfasan generando voladizos hacia el jardín principal, procurando generar vistas desde las zonas comunes y de las recámaras principales. Cada bloque de edificios divide la zona común de la privada en dos cuerpos, manteniendo así la privacidad de los espacios interiores de los departamentos
A pesar de que los departamentos varían en superficies (entre 120 y 250m2), te tuvo especial cuidado en mantener las dimensiones de los servicios y zonas privadas iguales, logrando así una eficiencia constructiva y económica.
NUBE APARTMENTS
Luis Cabrera, Mexico City 2016
Built
The 3,000 m2 land on slope had 89 trees, so positioning the two 6 and 7 floor buildings was the first challenge We managed to save 75 trees
The 250+ apartments are organized in two blocks holding the social and private areas In the centre, an aisle with the elevator landing looks always to the green A set of terraces, that remind of drawers in a counter, allow a permanent visual and physical connection between in and out and increase the liveable area
GEORGIA 191
Nápoles, México, D.F. 2015
Concurso
El proyecto consiste en dos cuerpos concéntricos generando un patio central que se entiende como un gran parque y se aprovecha para cumplir con los requisitos de área libre y asegurar la iluminación y ventilación natural de cada vivienda Cada cuerpo está compuesto por tres tipologías (65m2 , 67m2 y 86m2),logrando la máxima ocupación legal del predio Las fachadas se protegen por medio de vegetación que se suma a la ciudad como un jardín vertical. El acceso se propone en la esquina de Viaducto Río Becerra y la Calle de Georgia, a través de una gran apertura que se comprime con una escalinata logrando la transición entre la escala urbana y la humana
GEORGIA 191
Nápoles, Mexico City. 2015
Competition
Mexico City is in a housing boom due to the demographic bonus, which means that higher densities are proposed wherever possible This corner plot allows for 130 units in 6 floors Our approach was to design a building around a park, with some units looking in and some looking out on the streets.
STRATEGIC FACILITIES FOR PUBLIC SECURITY SECRETARIAT
Mexico City 2011In construction
Headquarters for the Secretary and SWAT team quarters in the fringe of Mexico City, in a slope, where the main building integrates with the landscape The 90,000 m2 (plus parking) is designed to be secure by design in a very friendly way The double skin hides views to the interior, while liberating views of the outside and providing the best temperature comfort regardless of the orientation
INSTALACIONES ESTRATÉGICAS PARA LA SECRETARÍA DE SEGURIDAD PÚBLICA
Conjunto CONAFRUT
Álvaro Obregón, México 2009-2010
Proyecto solicitado por la Secretaría de Seguridad Pública Se encuentra ubicado en uno de los puntos más altos de la Ciudad de México generando excelentes vistas hacia esta; está enclavado en la bifurcación de la Av Paseo de la Reforma donde se convierte en carretera libre a Toluca y prolongación de Paseo de la Reforma Consta principalmente de un edificio de oficinas y un edificio que alberga un cuartel
Para el edificio de oficinas se optó por un esquema de planta circular que se encaja en la topografía formando un patio interior circular, garantizando a todos los usuarios dos calidades visuales: una con vistas generosas hacia la ciudad y una interna ajardinada con elementos arquitectónicos de alta presencia pero que guarda una lectura tranquila y contemplativa Su fachada está formada por una piel de metal estirado que protege de las ganancias térmicas y que se interrumpe para dar cabida a algunas terrazas que forman oquedades en ella, logrando un juego volumétrico de gran interés
El edificio cuartel busca una planta arquitectónica sencilla pero con calidades espaciales de gran efecto El concepto crea volúmenes ortogonales techados por una gran “plataforma topográfica” irregular cubierta de vegetación, como si se tratara de levantar el suelo vegetal para que cubra los espacios habitables Cuenta con cuatro grandes franjas que rasgan la cubierta convirtiéndose en circulaciones horizontales que abastecen los dormitorios y bloques de servicios
El elemento arquitectónico articulador de los dos edificios logra garantizar los accesos a nivel peatonal así como actividades de incidencia común
CENTRO
UNIVERSITARIO DE DISEÑO,UNACH
Tuxtla Gutiérrez, Chiapas, 2016
Concurso Segundo lugar
El concurso pedía una torre de 10 pisos para albergar a cinco escuelas de diseño arquitectónico, artesanal y textil La petición era absurda, pues no sólo se contaba con mucha superficie de suelo disponible, sino que una escuela que se basa en talleres, y en la que las influencias son múltiples y constantes no puede funcionar mediante plantas aisladas Fuimos el único equipo que propuso un edificio bajo, integrado en un terreno terraceado arboladísimo El edificio consta de una gran membrana sombreada con celosías de madera que replica los textiles locales, y una serie de edificios bajos que se escalonan con el suelo, en cuyas cubiertas se organizan los talleres Estos guardan una relación visual que los integra
DESIGN CENTER CHIAPAS UNIVERSITY
Tuxtla Gutiérrez, Chiapas, 2016
Competition Second prize
The university of Chiapas conceived a 10-story building with classrooms and workshops for their architecture and design school Our proposal was the only horizontal one adapted to the slope, where all the workshops would share the same terraced space under an ecologically conceived canopy that would provide natural light and ventilation
The exuberant vegetation would also be brought to the inside to provide comfortable shadows and to clean the air inside A tower would destroy the possibilities of design interaction and of creating a community
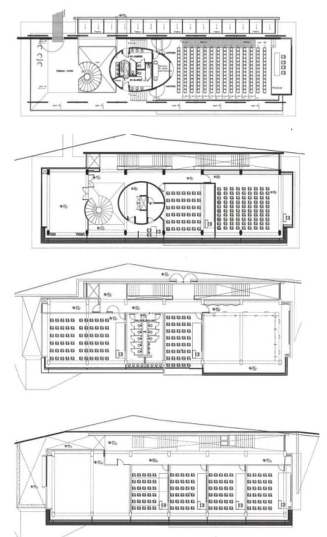
EDIFICIO DE AULAS Y AUDITORIOS CIDE
México D.F., 1998
Primer lugar, concurso por invitación.
Edificio de aulas y auditorio que se desplanta en una cañada sobre el moderno complejo de Santa Fe Un edificio para ver y ser visto Desde el campus del CIDE ofrece vistas insospechadas después de cruzar un puente y atravesar un muro Se accede en el nivel superior a una terraza mirador cubierta
Desde abajo, los parteluces de la fachada sur que protegen de las ganancias térmicas, operan como un radiador que junto con un pilotis de desplante y una cubierta elíptica de aluminio le dan personalidad. El interior se resuelve mediante una escalera lineal en un espacio de múltiple altura que forma parte del sistema bioclimático del edificio
CIDE AUDITORIUM AND CLASSROOM BUILDING
México D.F., 1998
Built
This was our first awarded building and the first building in the cliffs of Santa Fe quarter It is a small 38 x 12 m building overlooking the new business area in Mexico City A long staircase runs along the retaining wall and connects the 4 floors integrating them The atrium functions as a ventilation chimney as well
The main façade looks south and is protected by concrete horizontal brissesoleil that allow the building to be comfortable without the need or air conditioning
DANONE. Irapuato Guanajuato
NH
Prototipo de habitación para nuevos hoteles
Madrid, España. 2007
Proyecto ganador
Los hoteles NH, invitaron a un concurso de interiorismo a 25 firmas de arquitectura y/o interiores, en una primera fase, seleccionaron ocho para una segunda fase y finalmente seleccionaron a 3 firmas para desarrollar el nuevo concepto y prototipo de habitación y lobby para sus nuevos hoteles modelo 2008-2009
Nuestra propuesta se basa en desarrollar módulos constructivos ligeros, integrales y además tecnológicos que doten a la habitación de gadgets que el cliente vaya descubriendo en su estadía
Con materiales transparentes, traslúcidos y con luz dotamos a la habitación de ligereza, profundidad y sobre todo ambiente que el cliente dará según su estado de ánimo, día o porque simplemente le dio la gana
NH
Prototype to remodel 30,000 rooms
Madrid, Spain. 2007
Winner
NH hotels had the plan to remodel and unify 30,000 rooms in their worldwide chain Our strategy was to follow IKEA principles: a careful modular design that could adapt to different conditions, flat kits built in remote specialized facilities to be assembled in site and surprising use of lighting, materials and spatial solutions
The crisis of 2009 broke NH’s plan, but the prototypes we tested were quick enough to transform each existing room in only one week
CASA LECHUGA
Atlixco, Puebla
En construcción
Casa de descanso para una familia que vive en la Ciudad de México El proyecto se basa en dos “grapas” de acero-concreto desfasadas que organizan los exteriores Al frente, se entra recorriendo una serie de patios paralelos a la calle El fondo es un gran jardín en el que se conserva una alberca existente El planteamiento espacial general es el de generar una continuidad de uso y sensaciones entre interiores y exteriores El centro de la vida diaria será una gran terraza de 14 x 5 m sin apoyos
LECHUGA HOUSE
Atlixco, Puebla
In construction
This simple house made by two frames is built entirely with exposed natural materials: concrete, limestone plaster, sulfurized steel and glass.
CC LAS TORRES
San Miguel de Allende, Gto 2009
El proyecto tiene una superficie de 74 282 11 m2 , dividido en cuatro partes:
1. Centro comercial de Alto Standing
2. Condominio de lujo
3. Centro comercial de Servicios
4. Hotel
El CCAS, se articula por medio de tres patios centrales dando un tema a cada uno de estos: aire, agua y tierra Está conformado por tres tiendas anclas y 155 locales comerciales en dos niveles Dos plantas de sótanos para estacionamiento y cuatro de instalaciones
El Fractional, se desarrolla en cuatro niveles con departamentos simples de 400 m2 , dúplex de 300m2 y de 400m2 así como un sótano para estacionamiento.
CCS en PB esta considerada para una zona comercial y tres torres de consultorios
LAS TORRES SHOPPING CENTER
San Miguel de Allende, Gto 2009
Conceptual design
This 70,000 m2 shopping centre would be in the outskirts of San Miguel Allende, a beautiful, mild weathered colonial town in central Mexico The concept is to leave open spaces with natural ventilation, to re-create an urban shopping experience
CASA ORTIZ
Pozuelo de Alarcón, Madrid, España. 2007
Construida
El chalet se ubica centrado en un terreno de 2,542 m2 , respetando los retranqueos por normativa Por su posición, conforma diversos espacios exteriores: patio de acceso y aparcamiento al aire libre, patio inglés, jardines laterales y patio hundido de estacionamiento y servicios El proyecto se desarrolla en sótano más dos niveles que suman 1,503 58 m2
Todos los espacios habitables cuentan con ventilación e iluminación natural Los dormitorios, cuyas ventanas miran al norte para tener el mejor aprovechamiento de vistas, compensan su falta de asolamiento con lucernarios al sur, que permiten la penetración de rayos solares durante las estaciones de otoño a primavera Los espacios generales en la planta sótano se iluminan y ventilan a través del patio inglés
ORTIZ HOUSE
Pozuelo de Alarcón, Madrid, Spain. 2007 Built
This single family house on a posh suburb in Madrid was designed to respond to the harsh Madrid weather. The 750 m2 house is centred in a 3,500 m2 garden and organized around a central patio inhabited by a 200 year-old olive tree
The main views are to the west, so there was the need to reconcile them with a very hard orientation, especially in summer, son we designed sliding cortex Steel sunscreens that could block and filter the sun or leave the views completely unobstructed
CENTRO DE EXPOSICIONES Y CONGRESOS DE LOS CABOS
San José de los Cabos, B.C. 2011
Concurso restringido
El proyecto del CECCA fue concebido contemplando los siguientes objetivos:
VELOCIDAD DE CONSTRUCCIÓN
La inminencia de la reunión del G-20 obliga a un proceso de diseño en Fast-track y una construcción ingeniosa y muy rápida
USO POST G-20 > EL CECCA (Centro de Exhibiciones y Congresos de los Cabos)
Uso responsable de los recursos Contenedor y contenido, una visión dual y simultánea Un edificio que funcione ad-hoc para el G-20 y un recinto que funcione bien los próximos 30 años
IDENTIDAD/IMAGEN
Edificio símbolo Edificio singular que transmita valores universales, mexicanos y locales Modernidad sobria Materiales naturales Formas evocadoras de las montañas y las rocas de los Cabos Pirámides que recuerdan el origen prehispánico de México Imágenes simples y poderosas Materiales nobles como la piedra y la madera.
COMPROMISO CON EL MEDIO AMBIENTE
Uso eficiente de la energía: luz natural + ventilación natural cuando es eficiente + aislamiento térmico y cubierta ajardinada + chimeneas de ventilación y de captación de luz + reciclamiento del agua
SECURITY BY DESIGN
Conciencia de los aspectos de seguridad durante el G-20 Diseño no poroso
Segregación amable e invisible Separación de flujos Filtros de control y de seguridad
CENTRO DE RETIRO CASA TIBET
Valle de Bravo, Estado de México.
Este proyecto cuya locación fue escogida por su santidad el Dalai Lama quien visito el sitio y señalo el punto donde se construyo la stupa como elemento arquitectónico central, alrededor del cual se desarrolla nuestro proyecto con una serie de edificios con distintos programas, centro de meditación, dormitorios, auditorio, comedor con cocina, guardería, administración y cabañas para los monjes. En su conjunto se concibe como un centro de retiro budista para la meditación, la enseñanza y el encuentro con la naturaleza.
CASA TIBET RETIREMENT CENTRE
Valle de Bravo, Estado de Mexico.
This project whose location was chosen by his holiness the Dalai Lama who visited the site and pointed out the point where the stupa was built as a central architectural element, around which our project is developed with a series of buildings with different programs, meditation center, dormitories, auditorium, dining room with kitchen, nursery, administration and huts for the monks. As a whole it is conceived as a Buddhist retreat center for meditation, teaching and encounter with nature.
ÁRBOL ESCULTÓRICO
Cámara de diputados, CDMX 2009
Este proyecto representa un árbol en abstracto como elemento de sombrilla diseñado paramétricamente con grasshopper con una matemática que permite un complejo despiece de geometrías para corte laser y dobleces con ángulos precisos para obtener conexiones de alta precisión Las piezas se unes entre sí mediante una ingeniería de tornillos En su conjunto el efecto espacial que producen estas sombrillas de carácter escultórico y escala monumental es de confort y placer por su colorido y disposición en el espacio
SCULPTURAL TREE
Chamber of Deputies, CDMX 2009
This project represents an abstract tree as an umbrella element designed parametrically with grasshopper with a mathematics that allows a complex cutting of geometries for laser cutting and bends with precise angles to obtain high precision connections The parts are joined together by screw engineering As a whole, the spatial effect produced by these sculptural umbrellas on a monumental scale is one of comfort and pleasure due to their color and arrangement in space
TIENDAS NYX DE L’OREAL
Querétaro Antea y Plaza Satélite, 2016
El proyecto es una boutique de cosméticos NYX se construye como una marque de L´Oreal en el centro comercial de Antara Fue el primero de tres boutiques de lujo, en el que los objetivos de calidad, ambiente y detalle deben ser muy finos El mobiliario fue diseñado en colaboración con ARMO, una firma especialista en stands y exhibidores comerciales de lujo
This project is a cosmetic boutique in several retail centers for NYX, a marque by L'Oreal in the commercial center of Antara It was the first of three boutiques which had to comply to high standards of quality, ambiance with fine detailing The furniture was designed in collaboration with ARMO, a specialized manufacturer of deluxe comercial stands and exhibitions
CONJUNTO HABITACIONAL
Querétaro, Qro 2007
Concurso restringido
Proyecto de vivienda desarrollado en tres torres de 20 pisos basado en un plan de alta flexibilidad que permita múltiples variaciones en la mezcla de las diferentes tipologías de departamentos propuestos (ocho diferentes) además de un robusto y novedoso criterio estructural que permite oradar y crear en el conjunto unos agujeros que además de paisaje y landmark permiten permeabilidad al conjunto, unas fantásticas vistas de las áreas públicas del conjunto hacia la ciudad
El proyecto responde también a un estudio bioclimático muy detallado Las torres están giradas para aprovechar las vistas sin exponerse al poniente y protegiendo las terrazas al sur con unas mallorquinas que crearán según estén abiertas o cerradas una fachada cambiante
Las tres torres se apoyan sobre unos cuerpos bajos que sirven de rodapié a las torres
HOUSING
COMPLEX FOR HINES
Querétaro, Qro 2007
Competition
The land overlooks the city of Queretaro from more than 150 m above, so it is a project to see and to be seen The views are long and fantastic and the building here would be inevitably a landmark
The project is the superposition of two orders. Below, on one angle, six-story buildings in black stone support white and metal 15 store-buildings at a right angle Between the two, big holes result, that connect the ground with the views and serve as open vestibules for each building
INTERNACIONAL CRIMINAL COURT, LA HAYA
Concurso. 2008
La Haya, Holanda (con Bernardo Gómez Pimienta)
El círculo es la forma geométrica que mejor representa los valores de la ICC Como un símbolo, es equilibrado e indeformable, no tiene bordes o esquinas y es extremadamente estable, tiene el mismo aspecto desde cualquier punto de vista Internamente, crea la igualdad de condiciones y distancias iguales desde el centro, es una forma democrática
El edificio es autónomo en el sitio, expresa el distintiva de la autoridad, pero a través de su forma y las distorsiones intencionales de su piel, también es liso y suave
El edificio es introvertido y extrovertido, dando protección a una vista de 360° al mundo
INTERNACIONAL CRIMINAL COURT, THE HAGUE
La Haya, Hollande, 2008
Finalist on two stage international competition With Bernardo Gomez Pimienta
The ICC is a very important institution when we speak of international justice It descends from the Nuremberg Trials and is the highest defendant of human rights against tyranny and crimes to humanity The building had to reflect this The circle has no edges, as justice should, has a centre, which is humanity, is equal on all sides, evoking democracy and is equidistant, and therefore evokes equality
Conjunto CEFERESO
Chihuahua, México 2012
El proyecto esta ubicado al sur de Ciudad Juárez, intervinimos principalmente las áreas que rodean al penal y dentro de este se intervinieron dos cuadrantes, donde se localizan las áreas de servicios, talleres para la reinserción social Las áreas intervenidas consisten en el cuartel, el edificio de gobierno exterior al penal, el juzgado, el almacén y un edificio de video visitas
El complejo se reordena a partir de tres premisas
1. Seguridad: envolver área vulnerables de la muralla con el cuartel y los edificios de apoyo.
2. Respuesta bioclimática: los edificios se rodean con taludes vegetales que aíslan las temperaturas extremas y desvían los vientos que azotan la zona
3. Seguridad amable: el tratamiento de los volúmenes mediante los taludes vegetales generan una identidad y un ambiente amable para los servidores y los familiares que están afuera de la muralla
La zona del cuartel está organizada bajo el modelo de la ciudad romana, con una plaza cívica con intersección de cardo y decumanus
IMPRISONMENT CENTER IN CIUDAD JUAREZ
Chihuahua, México 2012
Conceptual design
Designing a jail is a very challenging exercise Designing it in the middle of a desert that reaches 50ºC in summer and -10ºC in winter is twice the challenge The main imprisonment facilities already exist, so the project consisted on two basic areas: out-wall facilities for security forces (4 different), visitors centre and judiciary building, and in-wall facilities for dining+kitchen, workshops and government
The out-wall buildings are camouflaged and weather protected by earth slopes that insulate them and protect them from aggressions, while deflecting the very hot and very cold winds At the same time, they create a friendly and discreet environment, where safety is achieved by design
The inner facilities are solved by sawtooth skylights to the north, that produce natural light and natural ventilation
The site layout is based on the Roman military citadels, with their cardus and decumanus.
MÓDULO DE BIENESTAR SOCIAL
Santa Cruz Meyehualco, CDMX. 1998
Primer lugar. Concurso por invitación
Este es un ejercicio de alta eficiencia constructiva y espacial Se trata de una estructura que debía construirse con un presupuesto tremendamente limitado. El concepto se lee claramente en la sección en la que el programa de espacios forma una línea que ofrece contrapeso a un cubierta colgada de postes de acero que cubre un espacio polivalente
Todos los elementos del proyecto cumplen una función, es una estructura desnuda El proyecto aporta dignidad a un área urbana muy deprimida y necesitada
Nos enorgullece que la población vecina lo cuida de manera especial y lo usa mas de 14 horas al día
CONCURSO ZÓCALO
Finalista
CDMX. 1999
Proyecto seleccionado entre los 15 finalistas, de un total de 300 participantes, en el Concurso Nacional de Rehabilitación del Zócalo.
Nuestra propuesta reconoce como un gran espacio continuo, tanto a la Plaza de la Constitución, como a los espacios laterales a la Catedral Metropolitana y el Sagrario Se resalta la monumentalidad cívica del Zócalo, que se delimita con jardines y plazas verdes, así como un edificio cultural público en sustitución de la fragmentada Casa de las Ajaracas en un diálogo entre los edificios históricos existentes y una nueva arquitectura contemporánea
La iluminación forma parte importante de la propuesta.
PROTOTIPO DE HOTEL LAT 19°
México D.F. 2006-07
(con OfA)
Primer Premio Concurso restringido
En el 2006 Grupo Posadas lanzó una marca dirigida al viajero individual de negocios, en la categoría cinco estrellas y estilo Business Style; muy al día con las ultimas tendencias de la hotelería mundial Lat 19° es producto de un proceso de alta ingeniería que privilegia el servicio y la comodidad que el huésped tiene en su habitación y en áreas públicas El concepto vincula privacidad y estilo con el éxito de los negocios
S+L ganó el concurso para desarrollar el prototipo a usarse en los 20 hoteles que la cadena pretende abrir, el hotel es un concepto hotelero que rompe paradigmas de la hotelería tradicional, desde el acceso, los servicios ubicados en planta baja, las áreas públicas como lounge, business center y restaurante, formados por una barra de comida contemporánea son también nuevos conceptos, ubicados todos ellos en un segundo nivel para comodidad del huésped y por último las habitaciones dotadas también de originalidad y de algunos gadgets tecnológicos La fachada del hotel se pretende que sea imagen del lugar y en donde en cada nuevo edificio colabore un artista originario del estado o ciudad en el que se va a desarrollar el hotel, esto promoverá el arte y además marcará al edificio y cadena con un sello muy particular En este primer ejercicio, Jan Hendrix, artista holandés radicado en México, fue encargado de diseñar la fachada y todo el arte interior del edificio

CENTRO COMERCIAL FORUM BUENAVISTA
México D.F. 2007
Con RTKL
Centro comercial ubicado en la estación de trenes de Buenavista Desarrollo de 300,000m2 en donde se incluye hotel, centro comercial de tres niveles, tiendas anclas para el centro comercial, restaurantes y todo como desarrollo de la nueva terminal de trenes de cercanías Un proyecto de gran complejidad debido al tamaño, la mezcla de programa y la solución de los mismos así como el impacto en la zona
EDIFICIOS DE VIVIENDA VPO
Málaga, España. 2006-07
(con Enrique Gómez-Tabanera)
Primer Premio Concurso abierto
Conjunto de 170 departamentos de vivienda de protección oficial en dos terrenos divididos por un parque donde se propone en cada uno de los terrenos dos crujías de departamentos divididos por una calle peatonal y donde se encuentran las circulaciones verticales mecánicas y los puentes que unen a las dos crujías Estos puentes tratados con celosías metálicas nos recordarían a los puentes árabes de Andalucía y la calle de igual manera, esta diseñada para recordad algún callejón andaluz La calle interior con un diseño de paisaje muy pensado va creando diferentes patios que dan acceso a las escaleras o a los departamentos de planta baja, la calle tiene dos niveles creando dos ambientes y rompe la perspectiva que dan dos cuerpos simétricos, este cambio de nivel se debe a que el conjunto incorpora en uno de sus extremos un local comercial con acceso independiente.
El blanco es el color predominante de la zona y del conjunto, solo en las fachadas que dan a la calle se usará color en las mallorquinas de las ventanas, creando un patrón
EDIFICIOS DE VIVIENDA
Cancún, México. 2006-07
(con Estudio Lamela)
Primer Premio
Concurso Restringido
Proyecto de 25,000 m2 dividido en 6 torres con 190 departamentos divididos en 8 tipos diferentes de departamentos y además por su sistema constructivo estos departamentos pueden crecer de 85 m2 a 240 m2 El terreno se aprovecha al 100% con jardines que rodean a una serie de edificios que van serpenteando.
El estacionamiento se resolvió de cada edificio aprovechando la excavación de la cimentación, el acceso para el mismo es una calle perimetral que da acceso a cada uno de los edificios que también está excavada medio nivel Esto nos permite liberar todo el terreno para el desplante de los edificios y rodearlos de jardines
EDIFICIO SEDE Y POLIVALENTE Madrid, España. 2006
En un entorno de periferia de Madrid, de bloques aislado se implanta este edificio polivalente con planta en forma de ‘L’ que pertenece a una fundación de desarrollo humano y apoyo a minusválidos Su complejo programa que incluye un Spa, oficinas de la fundación, guardería, talleres infantiles y de adultos, un centro de desarrollo humano, cafetería, residencia para minusválidos y algunos otros componentes se resuelve dentro de un edificio concebido con plantas flexibles y fachadas liberales y articuladas mediante un núcleo vertical de comunicaciones en esquina
Las fachadas varían como respuesta a la orientaciones, se ha cuidado de manera particular, la articulación de los diversos volúmenes que aunado al carácter contemporáneo de su imagen, le confieren una cualidad emblemática a este singular edificio
TERMINAL 2 AICDMX
México D.F. 2004 (con Enrique Azpilicueta)
Los 3 elementos principales del proyecto se agrupan para formar un gran bloque continuo Esta estrategia genera varios beneficios: aprovechamiento del suelo, recorridos menores de pasajeros y empleados, mayor presencia de la terminal La terminal se ubica muy cerca del centro geométrico del terreno y se liga al estacionamiento mediante las calles de llegadas y de salidas Un pasaje peatonal elevado y una cubierta protectora El hotel corona la terminal sobre una estructura de 12 pisos que aloja los espacios de transición tierra-aire y oficinas. El esquema arquitectónico del edificio consta de tres volúmenes interconectados, cuerpo A(vestíbulos), cuerpo B(Servicios y Hotel) y cuerpo C(lado aire)
El proyecto se organiza mediante un eje longitudinal y tres transversales El eje longitudinal permite establecer una secuencia espacial y de actividades que reflejan claramente los flujos de salida, llegada y equipaje Este eje enhebra los diversos edificios y actividades: estacionamiento, calles de embarque-desembarque, lado tierra y lado aire de la T2 La longitud total alejado 6
POLIDEPORTIVO ALCÁNTARA
Madrid, España. 2004
(con Javier Fuster Arquitectos)
Concurso abierto. Ganador Este proyecto constituye una respuesta crítica a un Plan de Actuación Urbana (PAU) que rompe una manzana rectangular en el ordenado barrio de Salamanca El PAU consta de tres terrenos con tres usos: habitacional 8 niveles, parque público y áreas deportivas El proyecto que abarca los dos últimos usos se compone de dos cuerpos, uno vertical, de planta curva que remata la manzana y oculta la colindancia de un edificio vecino, de fachada translúcida, que contiene gimnasios vestidores, vestíbulo y servicios del polideportivo y otro horizontal transparente, que aloja la piscina semiolímpica Los dos cuerpos se articulan por un cuerpo negro que liga vestidores con piscina Debajo de los dos terrenos se ubica un estacionamiento para residentes de 4 niveles bajo calle
Desde el punto de vista urbano, nuestra actuación se base en:
Generar una tapa que oculta la colindancia expuesta y que hace girar la fachada de la calle hacia el nuevo espacio abierto Abrir un espacio urbano paralelo a la calle con casi todo el frente disponible en los dos terrenos. Se unen la plaza pública , dura, que dota de carácter público al polideportivo con jardín, cuyo contenido principal es el de contener una gran masa de árboles que filtran las vistas entre la piscina y el edificio de vivienda
Dar continuidad al área verde con la calle y generar una masa verde de chopos y otras especies de 10-15 mts de altura que colonice el corazón de la manzana Formalmente el edificio vertical se trata como una cuña de lado curvo, forrada con policarbonato o cristal translúcido en doble piel, en la que la piel interior se alternan transparencia, semitransparencia o incluso opacidad, de acuerdo con el espacio servido La piel exterior se genera con una retícula paralelepipeda alineada al frente y la colindancia Un vestíbulo de múltiple altura, cruzado por puentes, estructura los espacios interiores La caja de la piscina se eleva del suelo con efecto de estar flotando, mientras que sus columnas en forma de ‘V’ enfatizan su ligereza
HOTEL FIESTA INN
Torreón Coahuila. 2003
Después de dos apretados cierres de concursos para hoteles Fiesta Inn en Tampico y en Guadalajara, ganamos el tercero, para un hotel ejecutivo de 150 cuartos en la periferia de Torreón, una ciudad industrial de 1 millón de habitantes en medio del desierto de Coahuila
El proyecto se conecta formal y funcionalmente con un centro comercial moderno, de corte internacional Por ello propusimos que las fachadas laterales utilizaran sus mismo materiales y altura En contraste, el cuerpo principal es una torre de 10 pisos, cuyas fachadas laterales tienen surcos en el centro para enfatizar su verticalidad
CENTRO NACIONAL DE INFORMACIÓN
SECRETARÍA DE SEGURIDAD PÚBLICA
Santa Fe, CDMX. 2002
Diseño de paisaje: Mario Schejtnan/GDU
Proyecto finalista en concurso por invitación en dos fases.
El proyecto se enclava en un área de protección ecológica, un farallón justo en la bifurcación de una importante avenida en Santa Fe, CDMX Se requerían: la conservación ecológica del predio, un altísimo nivel de seguridad y una presencia muy discreta del complejo en contraposición con la necesidad de generar un símbolo
Optamos por una solución horizontal, semienterrado en un extremo y emergente en el extremo contrario, por efecto de las pendientes naturales Propusimos el rescate ecológico de las especies autóctonas y su integración y superposición con la arquitectura construida El edificio prácticamente está oculto, tanto horizontal como verticalmente, a excepción de una fachada ciega y una torre de telecomunicaciones-símbolo-luminosa
LIBRERÍAS GANDHI MONTERREY Monterrey, México. 2002
El primer proyecto que hicimos para Librerías Gandhi fue en Guadalajara Una casa racionalista, catalogada, de Julio de la Peña, fue ampliada y remodelada para acondicionarse como librería El proyecto fue un cuidadoso ejercicio de renovación y reconocimiento del valor artístico de la finca Mereció un premio del Municipio de Guadalajara
El mas reciente es el de Monterrey A diferencia de los 2 intermedios, se trata de una obra nueva, formada por una caja de láminas de fibrocemento, elevada sobre un pilotis(estacionamiento). El acceso en esquina se señala mediante un cambio de piel que a la vez permite transparencia hacia el interior, protege de los rayos de sol del poniente La cubierta consta de un canal de concreto que aloja todo el sistema de aire acondicionado y dos alas sostenidas por ligerísimos puntales en forma de ‘V’ El basamento es un delicadísimo trabajo de rajuela negra
CONJUNTO HABITACIONAL PHU-540
Proyecto de vivienda urbana de alta densidad, en un terreno de 8,300 m2 con un solo frente, se alojaron 315 departamentos de 65-70 m2 en 5 niveles La planta baja y un sótano alojan estacionamientos y una pequeña plaza comercial Para lograr esta densidad, diseñamos un sistema en el que varios edificios con planta en forma de ‘T’ se acoplan para formar patios rectangulares de 10x20 mts Los accesos y las circulaciones de peatones y de automóviles son independientes, a pesar de la alta densidad
Para compensar la falta de espacios verdes, las fachadas nortes y sur se forran con enredaderas de diferentes especies y las azoteas se tratan como terrazas-jardín
COMPLEJO DE SERVICIOS RASSINI
San Martín Texmelúcan, Puebla. 2000-01
El proyecto contempla el reordenamiento vial de un complicado sitio industrial metalmecánico indiferente a la escala humana Se diseñaron 3 nuevos cuerpos: edificio de oficinas, megataller de precisión y comedor para empleados Estos cuerpos se organizan para formar espacios no industriales significativos e incorporar una nueva dinámica al sitio
El edificio de oficinas y el megataller comparten un sistema constructivo y modulaciones de alta flexibilidad. Se aplicaron novedosos conceptos de alta eficiencia energética El tratamiento de las envolventes discrimina las diferencia de orientación y vistas En los volúmenes simples se han practicado perforaciones y accidentes: patios, terrazas, dobleces e incrustaciones que los articulan y los enriquecen, además de controlar las condiciones bioclimáticas de los interiores
MANZANA OCHO
Los Cabos, B.C. 2000
En los Cabos, Baja California Sur, un destino turístico en la península del mismo nombre, una ciudad en plena expansión por la creciente actividad con un clima árido y seco, y con un déficit en vivienda muy importante Desarrollamos para un grupo inmobiliario el proyecto de una supermanzana con casas de 75 m2 mas otros 75 en jardín
Para el diseño urbano tomamos como base el clima y la vegetación árida de la ciudad, por lo que propusimos un pequeño oásis donde el verde predomina Todos los jardines están separados con varadas de setos y el conjunto de jardines forma áreas verdes importantes
En una de las cabeceras del terreno dejamos un área de donación para dotal al conjunto, a la zona y a la ciudad de un parque público que además sirviera de apoyo y límite verde a al manzana
En lo que se refiere a las casas desarrollamos un nuevo concepto de casas No resolvimos propiamente un modelo de casa sino que proyectamos módulos con las mismas características y dimesniones que agrupadas de distintas manera generan diversos tipos de vivienda El punto en común de estos módulos es que se agrupan entorno al módulo de la escalera y la cocina
Para esta propuesta desarrollamos 4 tipos diferentes de viviendas que agrupamos de forma variadas generando una riqueza formal al conjutnto
MOTOROLA
Centro de Desarrollo de Software
Puebla, Pue. 2000
(con Mario Schjetnan/GDU)
Motorola solicitó un complejo que permitiera la creación de una comunidad profesional de sofisticados arquitectos de sistemas Este complejo debía ser muy flexible, contemporáneo y dinámico Los empleados debían contar con espacios interiores y exteriores donde trabajar periodos largos con la menor fatiga
El proyecto integra los espacios interiores con los jardines mediante volúmenes simples de fachadas contrastantes El interior sigue una modulación en la que dialoga una serie de patios temáticos que iluminan, regulan la temperatura y evocan espacios tradicionales del altiplano
EDIFICIO DE OFICINAS TORRELAGUNA
Madrid, España. 2007
Oficinas Corporativas
Proyecto de ampliación de un nuevo edificio de oficinas El inmueble que se proyecto es un edificio que establece un contrapunto con el existente de ladrillo, mediante el uso de vidrio translucido y transparente, que da una sensación de ligereza, en contraste con la masividad del original El edificio nuevo está formado por un basamento masivo y un prisma rectangular de vidrio que vuela al frente para generar un espacio significativo de acceso
CONJUNTO DE VIVIENDAS
Hortaleza, España. 2008
(Con Fernando Caballero)
El proyecto es un complejo de vivienda de protección oficial al norte de Madrid Consta de un conjunto de cuatro torres, cada una sobre un basamento horizontal Las torres están dispuestas en diagonal, lo que maximiza las vistas que cada una de ellas obtiene y al mismo tiempo da limpieza y elegancia al conjunto
OFICINA DE ABOGADOS
Benito Juárez, México. 2005-07
Pequeño edificio de oficinas entre colindancias, ubicado en la colonia Del Valle La fachada prismática cuenta con una serie de parteluces bicolores frente a una fachada de colores, lo que produce un efecto prismático. Al ir de un lado al otro los parteluces cambian de color (negro y blanco) y al paso se contempla los colores El edificio se organizo en dos cuerpos lineales y dos patios
CETENMA
Murcia, España. 2008
(con Fernando Caballero)
Laboratorio de alta precisión ubicado en un polígono industrial en Murcia, España El área de intervención tiene forma de ‘L’ rodeando un laboratorio existente, que compartirá plaza de acceso y estacionamiento. El nuevo edificio lo abraza, creando un espacio-plaza que organiza los accesos y las rampas de estacionamiento
Las fachadas están forradas con aluminio para unificarlas y reducir las ganancias térmicas y conservar la mayor iluminación natural El interior del edificio está conformado por mezzanines y espacios a doble altura que vuelve mas eficiente el trabajo realizado en el inmueble
BANCO SANTANDER DE NEGOCIOS
Oficinas Corporativas
Sucursales VIP
México D.F. 1995-1996
Hicimos varios proyectos para Banco Santander de Negocios, en los que optamos por la exploración del contraste de planos de líneas rectas y ritmos regulares con objetos curvos que dan significado al espacio
En los pisos de Alta Dirección y Banca Corporativa, un signo repetitivo a base de paneles de cedro rojo y postes de madera conforman la imagen corporativa y el ritmo, el módulo y el orden.
A este orden se le agregan elementos curvos, generalmente vestíbulos y salas de espera, que dan la bienvenida disimulan la rigidez de la modulación constructiva
CENTRO DE DISTRIBUCIÓN ELEKTRA
Guadalajara, Jal. 1997-1998
Una gran nave de 250x200 metros por lado se asienta en un terreno con mas de 20 metros de desnivel El centro opera por medio de cross-flow en un espacio de 20,000m2 planos. El desnivel se tomo como una combinación de movimiento de tierras y un edificio frontal que soporta un andén de maniobra de trailers a 13 metros sobre el Periférico de Guadalajara
Lo mas significativo de este edificio es su sistema constructivo que consta de cimentación, estructura y fachadas de concreto precolado y cubierta de acero autoportante y policarbonato Esta es la primera vez en el mundo que una cubierta de este tipo se resuelve en diente de sierra La curvatura de la cubierta se ajustó para formar una elipse que pudiera resistir las cargas propias y la acción del viento
El espacio interior resulta de una gran luminosidad y muy diáfano, al tiempo que el mantenimiento y reposición se vuelve prácticamente nulo Aunque el edificio carece de aislamiento térmico, un cuidadoso estudio de ventilación llevó a que se encuentre permanentemente en un rango térmico de confort incluso en los meses calientes del verano tapatío El sistema permitió que la coraza de 30,000m2 se construyera en poco mas de 5 meses
El tema principal de este proyecto fue ampliar una casa neocolonial de los años 30 de manera armónica y sin copiarla La casa se amplió en el fondo en 2 secciones: un área de exhibición y venta para megadesarrollos inmobiliarios y una oficina de administración de obra El proyecto se integra por el uso del contrapunto
Un cuidadoso manejo de la cristalera y su inclinación le dan a la fachada transparencia y ligereza; las columnas también inclinadas y el plafón ofrecen amplitud a las oficinas La torre de concreto es a la vez contrapunto, articulación y liga formal entre la ampliación y la casa, que tiene un torreón rematando el centro de su fachada a la calle
INSTALACIONES ESTRATÉGICAS PARA LA SSP, UNIDAD CANINA
Conjunto CONAFRUT
Álvaro Obregón, México. 2009-10
Edificio de aulas y auditorio que se desplanta en una cañada sobre el moderno complejo de Santa Fe Un edificio para ver y ser visto Desde el campus del CIDE ofrece vistas insospechadas después de cruzar un puente y atravesar un muro Se accede en el nivel superior a un terraza mirador cubierta
Desde abajo, los parteluces de la fachada sur que protegen de las ganancias térmicas, operan como un radiador que junto con un pilotis de desplante y una cubierta elíptica de aluminio le dan personalidad El interior se resuelve mediante una escalera lineal en un espacio de múltiple altura que forma parte del sistema bioclimático del edificio
2019 IV Bienal Arquitectura CDMX Medalla
2019
Archdaily Building of the Year Award Nominación Liverpool Toluca
2008
Holcinm Awards
Acknowledgment Prize
Regeneración del Río Sabinal
Tuxtla Gutiérrez Chiapas
2019
de plata
Premio Interceramic de Arquitectura e Interiorismo Medalla de plata CAT Liverpool
2019 German design award 2020 Winner best architecture Liverpool Toluca