Skip to main content

Powers_Steven - 2026 Portfolio_Issuu

Page 1


This portfolio is a reflection of my work during my undergraduate and graduate studies and through independent study. Each project allowed me to expand my knowledge of architecture through the various physical, public, social, and technical dimensions of building.

With each of the projects displayed, I have developed my ability to think creatively when designing spaces for public use, such as education and everyday use. From the initial stages of creating a conceptual idea for each project to the final stages of creating a detailed material assembly, each of the projects demonstrates my growth and knowledge of architecture.

As I continue to grow within the field, I strive to connect strong conceptual thinking with technical precision and constructibility. This portfolio reflects both the progress I have made and my goal to continually learn, refine, and contribute to the built environment.

LIVING WITHIN THE INTERVAL

MULTIGENERATIONAL HOUSING

Project Type

Studio Date Location Individual

Academic Professors : Jacob Comerci Fall 2025

Ann Arbor, Michigan

Steven Powers

This project looked into the backgrounds of multigenerational living understanding the different backgrounds, ages, and daily rhythms people share througout the day. Each element of the site is shaped to acknowledge that though we all keep time differently, we continuously move through overlapping cycles of routine, transition, and encounter. Through these varied temporalities by designing spaces that slow movement, invite gathering, reveal seasonal and daylight changes, and frame routes through which people cross paths.

Right Central Plaza tranformed throughout the seasons

Bottom

Overall Site Section showing the connections of living in a multigenerational environment

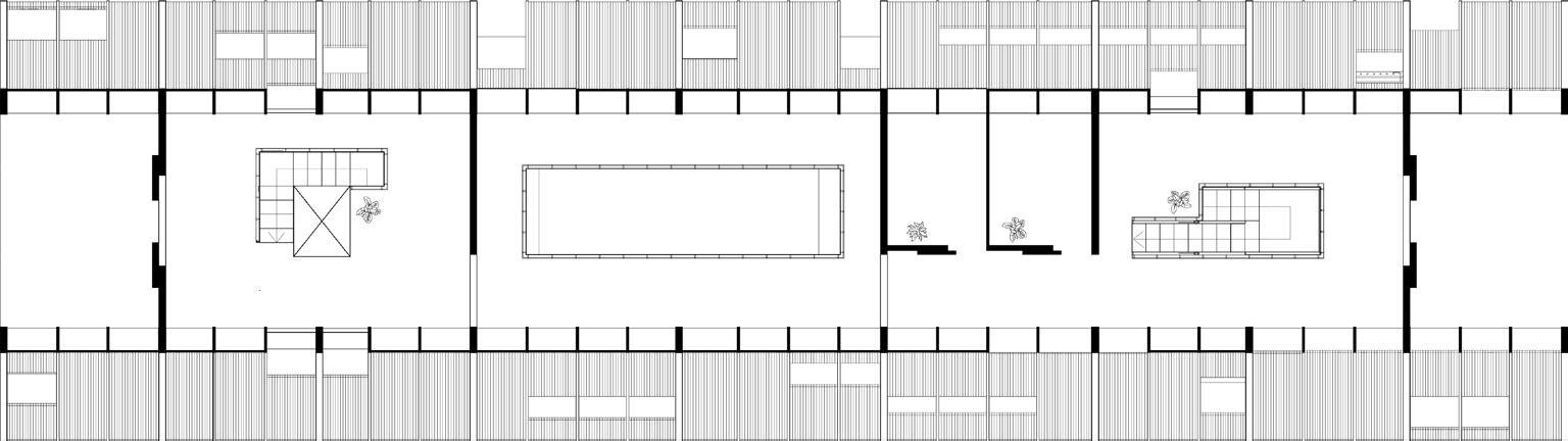
Ground Floor Plan

Typical Floor Plan

Living Seasonal Plaza

“The Research District holds a very different kind of time — one that accelerates and compresses through cycles of experimentation and discovery.

“In the Residential District, the pace of time changes — it stretches and softens. Here, the day isn’t measured by deadlines but by repetition: shared meals, passing conversations.

“The Academic District is where time feels most dynamic — it’s structured yet constantly in motion. Each day is measured by the rhythm of classes.

Upper Interior Plaza

Temporality of Moments

Living with the Interval framed architecture as a living system where daily life and collective experiences intersect. Through clustered layout of buildings, shared plazas, and living conditions, it creates spaces where daily routines and generational rhythms overlap. Time is not simply measured within the site, but is shared, revealed, and continuously shaped by those who inhabit it.

COALESCENCE

MAKING SPACE, LIVING SPACE, LEAVING SPACE

Project Type Studio Date Location Group

Academic Professors : Christina Hansen, Lars Gräbner

Winter 2025

Detroit, Michigan

Steven Powers, Pablo De la Garza, Frank Michel

This project aims to understand how people live together and how architectural design can facilitate living within a multi-unit dwelling. This project specifically looked into the relationship between individual spaces and shared social spaces, examining how living routines and interactions influence one another.

Situated in Midtown Detroit, near Wayne State University, Coalescence merges different modes of living within a single architectural system. Through the relationship between individual units and shared spaces, the project examines how housing can support both domestic life and collective engagement within an urban context.

Right Street-facing residential entry

Bottom

External view showing the interactive facade

The site serves as a connection from the street front to a system of alleyways extending to other parts of Midtown and creating a connection between isolated parks and plazas. It creates and activates the space to host events by the community. This living space continues upwards into the building terraces, which are shared by apartment units and townhouses. Elevated from the street front, the private terraces serve as their own private shared space that begin to bring aspects of living together to all units.

Section Perspective: Unit Variation and Shared Terraces

Different unit typologies are brought together through a continuous spatial system. Terraces and exterior connections mediate between individual homes and collective spaces, shaping varied experiences of privacy and interaction.

STEVEN
Top Right Bottom Ground Floor and typical Floor Plan Typical Unit Types
Shared Courtyard Entrance

PROGRAM

SHARED COURTYARD

VERTICAL LIMIT

BUILDING TO THE MAXIMUM

URBAN CONTEXT LINKING

ADD VERTICAL TERRACE

RESIDENTIAL NOOK CARVING OUT SPACE

Studio Layout INTEGRATION

COMMUNITY SPACE Typical Apartment Layout

URBAN CONNECTED

ExTERIOR CORRIDOR CORRIDORS

CORRIDOR PARAPET CONNECTIONS

TYPICAL WALL CONNECTION

TERRACE FLOOR AND WALL
Rammed Earth

TOWNHOUSES

TOWNHOUSES

TERRACE TOWNHOUSE YARD

GREEN TERRACE
SELDEN STREET
TOWNHOUSES

Ultimately, the project examines housing as both a social and spatial system shaped by daily routines and shared activities. This investigation informed the development of layered spaces—ranging from private units to shared terraces—that support collective life and adaptable living.

Project Type Studio Date Location Group

OVERGROWN

COMMUNITY MARKETHALLE

Academic Professors : Ashley Byars & Ryan Hier Fall 2022

Omaha, Nebraska

Steven Powers, Caleb Mohnike

This project aims to create a covered market space that provides stalls for independent vendors. The program serves as a functioning space for small, local start-up businesses and provides a diverse voice for the surrounding community. While providing a space for local entrepreneurs and vendors, this market should address concerns within the community and enhance the value of downtown Benson.

The vendors were selected from the options of a maker, cultivator, performer, or collector. These vendors can best address the concerns of the community by providing a food source and expanding on the existing entertainment values of downtown Benson.

Right Market being a beacon for the community

Bottom Integration of all interactions towards the development of program

By interweaving community, market, cultivation, and performance, a new environment is formed where production and consumption, growth and education, nature and architecture, are integrated to enhance the experience for visitors. Through the market hall, the interaction of the community and family oriented the project around the development of a greenhouse. This system of providing a performative greenhouse helps to place the cultivation of produce on display for the community.

Integration of a Greenhouse

The integration of a greenhouse provided the opprtunity for individuals to be captivated by the process of cultivation. This was shown through the the integration of the market, garden, interaction, curation, and consumption that was displayed in the project.

The planning for this project occurred in both plan and section. The market interior shifted around multiple times from different design iterations to identify a successful concept. Intermixing of the markets was explored, but the creation of three greenhouses based on fruits, grains, and vegetables was settled on due to the increased wayfinding within this layout. The protein and dairy are located between the three where they best fit. Protein is most likely to be served with vegetables and grains whereas dairy is mostly served with fruits and grains.

Sectionally, functionality was the most important aspect of the design of the greenhouses. Utilizing multiple levels and terracing allows the growth areas to maximize natural light. The setbacks of the terraces also increase visual intrigue and enhance views of the site.

1. ELECTRICAL

2. WATER STORAGE

3. DATA/IT

4. ELEVATOR MECH

5. WOMEN’S RESTROOM

6. MEN’S RESTROOM

7. CUSTODIAL CLOSET

8. FAMILY RESTROOM

9. STORAGE/TRASH

10. GRAIN GREENHOUSE

11. GRAIN VENDOR

12. CAFE SEATING/FLEX

13. PRESENTATION COOKING

14. PROTEIN VENDOR

15. FRUIT VENDOR

16. FRUIT GREENHOUSE

17. VEGETABLE VENDOR

18. VEGETABLE GREENHOUSE

19. CONFERENCE

20. ADMIN OFFICE

21. BALCONY

22. DAIRY VENDOR

23. GREENHOUSE SUPPORT

24. MECHANICAL PENTHOUSE

Left Top Bottom Perspective inside the greenhouse

Interaction of Market with the connection to a greenhouse

1st floor plan that show the connection between market to greenhouse

1. ELECTRICAL

2. WATER STORAGE

3. DATA/IT

4. ELEVATOR MECH

5. WOMEN’S RESTROOM

6. MEN’S RESTROOM

7. CUSTODIAL CLOSET

8. FAMILY RESTROOM

9. STORAGE/TRASH

10. GRAIN GREENHOUSE

11. GRAIN VENDOR

12. CAFE SEATING/FLEX

13. PRESENTATION COOKING

14. PROTEIN VENDOR

15. FRUIT VENDOR

16. FRUIT GREENHOUSE

17. VEGETABLE VENDOR

18. VEGETABLE GREENHOUSE

19. CONFERENCE

20. ADMIN OFFICE

21. BALCONY

22. DAIRY VENDOR

23. GREENHOUSE SUPPORT

24. MECHANICAL PENTHOUSE

Second Level

Throughout the use of the project, there was an understanding of the site conditions and how they would impact the given task of developing a market hall. After identifying the problems of Benson being a food desert, the lack of family-centric facilities, and low community involvement the process of developing a market hall addresses these concerns. Through the market hall, the interaction of the community and family oriented the project around the development of a greenhouse. This system of providing a performative greenhouse helps to place the cultivation of produce on display for the community. This gives the chance and unique innovative solution to all of the concerns. This design directly brings the community together, creates a hub for family engagement, and brings the opportunity of local produce.

STEVEN

Overall, through the integration of a greenhouse into the program it provided the opportutnity to understand the impact that it would have upon the community. This helped to develop a program that connected with the community in not only a physical way, but also gave the opportunity for people to learn from the experience of the building.

UNMC WELLNESS CENTER

STUDENT HEALTH AND MENTAL WELLNESS CLINIC

Project Type

Studio Date Location Group

Academic Professor : Brian Spencer Fall 2022 Omaha, Nebraska

Steven Powers, Mattie Purcell, Luke Heidenreich

Throughout the world education, research and clinical health care with student health and mental wellness has become obsolete and minimized from the recent pandemic. Developing a student wellness center looks at the critical need to remove the stigma over mental health. Design a structure that would remove this stigma and create a facility that exposes the connection between design and mental health. Looking at how to facilitate a building that promotes wellness, while also blending the programs.

Throughout this project, the group focused on the development of a program that imitates the home feeling condition. Involving ways to distribute the condition of wellness throughout the entire building involving conditions of compression and release in each aspect.

Physical Model of Project

Details of the model show the compression as a point of embracing while using the release to blend the program and structure with one another and the site. These concepts of compression and release were used as a point of breaking the stigma of mental health.

Development of the Home

Using the condition of the home resulted in creating spaces that are more public and open. Making the spaces inviting to create the connection between the home and the wellness aspect of the building.

STEVEN

Railing Cap

12mm Glass

Steel Purlin 60cm OC

10cm Rigid Insulation

Duct Tie

Batt Insulation Ductwork

Steel Wire Support

Acoustic Ceiling Tile

Rigid Insulation

Trespa Metal Panel Panel Clip Attatchment

MetalSiliconFlashing Brace Railing Clamp

Terrace Tile

Adjustable Pedastool Steel Joint

10cm RigidConcreteInsulation Slab

Steel Tie

Metal Flashing Laminate Concrete Fill

Shallow Decking

Mineral Wool Packing

W8x35 Flange

Gypsum Board

Metal Furring

Steel Frame Joint

Light Steel Frame

Polystyrene Rigid Insulation

Throughout the project, I was able to develop a better understanding of the technical details that are done through a building. Ranging from the development of construction documents to material specification sheets, I began to understand more about the process of architecture.

Metal Chanels
First Floor
Second Floor

For the development of the site, the curvature aimed to make the building more inviting. This curvature continued the compression and release of the program from both the interior and the exterior. The building was placed at the end of a campus green space which resulted in the development of a gateway condition through the wellness center. The entire building became a formal facade for the campus.

Development of the interior and exterior used the concepts of compression and release to create the condition for the site and the program. Within the building using forms of curves and double height spaces the building promoted the idea of community. The choices of materials were chosen to follow the strict guidelines of a medical center, but also looking at the condition of the home. Breaking the stigma of mental health and psychological illness was furthered through the blending of program in the building, making a sense of community.

Architecture has the challenge of interacting not only with the built environment, but also with the social conditions of the world. Through the UNMC Health and Wellness Center it achieved the goal of creating a program that connects staff, faculty, and student to home through forms and materials, but also help to destigmatize the social stigma of mental health and psychological illness.

KCAI DEPARTMENT OF ARCHITECTURE

ARCHITECTURE SCHOOL

Project Type Studio Date Location Group

Academic Professor Peter Olshavsky

Spring 2022

Kansas City, Missouri

Steven Powers, Oz Eckhorn

Dell Stubbelfield, Nikos Theoharis

The design field is an ever-evolving system that promotes growth, but how will this education change in the next 50 years? Education itself is both visible and invisible through the built environment and culture. Placing emphasis on the way education is placed within society promotes learning about how it will change. Through design, we have the opportunity to look at the aspects of the future as an agency of future learning and teaching.

Right Eastern Section showing the interaction of vertical space

Bottom Gallery connection into the building

Within the development of the architecture school for the future, an emphasis was placed on the interaction with the community. By creating a research center that engages the community within the program the college, created the opportunity to look at how the research of architecture can be evolved.

Organization of the program resulted in the circulation around a central atrium. The program continued to create the interaction with the atrium and the various views it framed as interacting with it.

Interaction with the community was done in many different ways, but one method was access to framing views. The location of the college was to the west of the Nelson Atkins Museum and was able to create direct views of it.

The development of the facade used the interaction of the environment to create a facade of sails.

The College of Architecture in Kansas City allowed for the development of how programming a space can engage with the user. Looking at the program’s connections to the site promoted the opportunity to learn about the direct connections that the building can have with the site it is placed in.

SENSORY ACTIVITY GALLERY

COMMUNITY CENTER

Project Type

Studio Date Location Group

Academic Professor Ernesto Sanchez and Elis Mendoza

Fall 2021

Lincoln, Nebraska

Steven Powers, Paulina Garcia

The perception of architecture is heavily focused on the aspect of sight. The engagement of a multi-sensory architecture involves the collective involvement of all the senses.  Sensory integration promotes a cognitive, social, and emotional experience that is separate from the typical view of architecture.

The process of integrating the scenes into this community center changes the interactions that are made by the public. Developing a center to experience the various senses creates a more immersive, engaging, and memorable multi-sensory experience.

Right

Conceptual impact of sensory engagement

Bottom

External view showing the interactive facade

Creating an experience of senses requires a balance to be made within the program. Throughout the Sensory Activity Gallery, a promenade is made to push the user through the various senses. Starting first with the visual aspect of the building, moving towards taste on the second floor by a cafeteria, and advancing to touch on the third floor with interactive galleries. Contained on the fourth floor is the sense of smell through the use of perfume. Reaching the top introduces the sense of sound in a gallery.

Upper Left Lower Left Right

Form of building Double skin facade integrates the use of experience Locations of sensory engagement

STEVEN

First Floor

Engagement of the community is used through open public space

Third Floor

Physical interaction is promoted with the introduction of a playground

Second Floor

Introduces the cafeteria and the use of the double shell as an integration of the running track

Fourth Floor

Interaction with the double shell structure is enhanced through various voids

The community center created locations for the interaction of all senses. Through the integration of a cafeteria, basketball court, running track, playground, and galleries the program became connected to all the senses.

Sensory Bubble

Through the integration of the sense of smell, the use of bamboo soaked in perfume creates an atmosphere that enhances the user’s sense of smell.

West Section

The process of creating a community center creates the issue of solving how to engage the community with the building. Finding creative solutions to develop this interaction with the built environment becomes a unique experience for the user. Through the introduction of the sense, the community center is engaging with the user in multiple ways.

Project Type

Academic

PITCHED MEALS

CULINARY RESIDENCY

Spring 2021

San Francisco, California

When looking at the process of making a meal there is a whole ritual that is performed. The common meal becomes an art that can be displayed through the process. Finding ways to introduce the process of making food into a public space. The social interaction that is presented when one creates food in front of others brings attention to the position that people have in the environment of food. Creating food is a relatable and good example of how the kitchen can be evolved.

ARCHITECTURAL STYLE

The style of presentation was framed through the analysis of the Dogma Style. Looking at the theoretical comparison between architecture and the relationship to design provided a parallel for the design. Being extensively engaged in articles and research the project developed. Research was conducted from Tadao Ando’s Plan for Tokyo and through the book Dogma Familiar/Unfamiliar.

STEVEN

Making a programmed space that would promote this action of public food production leaves an open-ended interest in how the experience of the architecture changes the paradigm of the viewer. The central space uses a concept shown by Alison Knowles and her Make a Salad as a public way of engaging with the process of making a meal

Condition

Voids within the             shell of the structure allow light to enter the program, while also engaging with the surrounding environment.

Using the building as a way to show the hidden aspect of cooking results in the circulation of space being open. The presentation of food and “pitching” the food increases the user’s interaction with food.

The shape of the building used a shelf system that created an interaction with the structure as well as the program of the building

Form

Creating a program building that engages with the public creates a unique interaction through the culinary environment. Architecture and design engage with the community and the individual through more than just the built environment. It shapes the way that people act, think, and perceive the world that we are in.

Upper Left Lower Left Right

Development process for creating a threshold

Divisions of the site hill and the cave location created a physical and temporal barrier between the past Anthropocene and the present

Views taken from both sides of the hill and within the building

INTERIOR TOPOGRAPHIES

UCARE RESEARCH

Project Type

Research Date Academic Professor : Zac Porter Fall 2021 - Spring 2022

Drawing upon my skill-set as an architectural design student, I studied, modeled, and dissected a series of architectural precedents that each use the floor as a primary, spacedefining element. Architecture has a significance of focusing on the vertical systems, such as columns and walls, but the horizontal and spatial experience is something that can be further analyzed. The interior topographies look at the correlation between not only the space itself but the relationship of the cultural traditions.

Graham House | Arthur Erickson
Haus Moller | Adolf Loos

By researching floor topographies of various buildings, it became apparent the connection between the floor levels and the interaction of the rooms. Each building has a connection of rooms, but the intervention of the various levels in the program begins to create a conversation about how the rooms are laid out.

The floor is something that is always interacted with in architecture. Using the floor as its own way to experience architecture promotes further opportunities to develop a promenade. Topography of the interior develops the connection between the movement horizontally through the buildings, but also through the interaction in the vertical elements of the experience.

Left Raymond Lowey House | Albert Frey
Top Sri Lanka House | Tadao Ando
Right Prada Epicenter | OMA

JEROME’S STUDY PAINTINGS

In the process of researching the floor topographies, there was a realization of the impact of floor topographies that are present in paintings. This then promoted the concept of looking at Jerome’s Study Painting and looking at the interaction of the super-furniture in them as they correlate with the response of topography.

PAINTING ANALYSIS

The interaction between the ground plane and the super furniture that was used in the painting begins to show the thought of elevating the individual areas in a room. This evokes the connection between the user and the architecture.

ARCHITECTURAL STYLE

The careful placement of the figure creates a contemplative atmosphere between the architecture and the individual. Using the figure as a focal point of where the architectural topographies shift brings prominence to how the presence of a person can be impacted by the use of design and architecture.

Turn static files into dynamic content formats.

Create a flipbook