Training Report Portfolio 2023

Page 1

TRAINING REPORT PORTFOLIO

Submitted by SOUNDARYA SAHOO

193701082

In partial fulfilment of the award of the degree of BACHELORS OF ARCHITECTURE

Submitted to

MANIPAL SCHOOL OF ARCHITECTURE AND PLANNING

Manipal Academy of Higher Education

Manipal, Karnataka

May 2023

CERTIFICATE

This is to certify that this Internship Report, of the tenure carried out at ThirdspaceArchitecture Studio, Belgavi(Belgaum), submitted for the Degree of Bachelor of Architecture, ManipalSchool of Architecture and Planning, MAHE, Manipal, Karnataka, in a bonofidework carried out by SoundaryaSahoo, under the supervision of the ManipalSchool of Architecture and Planning.

ACKNOWLEDGEMENT

I would like to thank ThirdspaceArchitecture Studios who gave me an opportunity to work as an intern in their office. I would sincerely like express my gratitude to Principal Architect Praveen Bavadekarfor checking up on me time to time. I would also like to thank my mentors Senior Architect AshwaniC and Junior Architects JatanGala and SharathSenthilfor helping me in my work and supported me during these whole internship program. I would also like to thank my fellow employees and family members who gave me support all these times. Thank

You
SL NO.CONTENTPAGE 1WORKING EXPERIENCE4 2 YESHWANTPUR STUDENT HOUSING 5-6 3PUNYASRUSHTI INTERIORS7-27 4COLIVING28-29 5MISCELLANEOUS30

WORKING EXPERIENCE

Working as an Intern in TAS has given me a different experience, due to the Principal Architect and other architects, being more approachable and providing proper guidance throughout. It is understandable that a degree of nervousness and curiosity will be there in student before stepping into an office for the first time. That’s exactly what I felt. It took me a week's time to get adapted into the Office Environment, and then I felt at ease, and became the part of that firm. It has the nature of music, calmness, and a sense of timelessness and dynamic nature of the office that I wanted to and since many of the staffs members are most of the time busy with their works, or Site Visits, hence we don’t have any sort of fixed office timings. Work is given more importance rather than the Office Timings, that was the most important thing that I have learnt from this firm. However, there was a sense of loneliness at the beginning as sometimes there was no one in the firm to interact, but due to the works given to me by Senior Architect, I did not give much attention to it and with my fellow employs, I didn’t know how I reached to the end. Now, we have great bonding with each other. We also have interactive sessions every Saturday unless employees are less in strength. The Office, is small, but great environment to work on and as an Intern, I did not know what to expect at a firm with whatever I have learnt before joining. I got to work on Student Housing (Physical Model only) to small scale Apartment units (PunyaSrushtiInteriors). I worked on Conceptual designing, Construction and Demolition drawings, Plumbing Layout drawings, Electrical Layout drawings,3D models and Physical Model with the use of software that I was learning, detailed drawings, presentation drawings, and went on site as well. It was a great learning that will remain within me for longer period of time. I learnt numerous things in various ways and at all times. The office also taught me to be professional and precise at work. It taught me to be sincere while doing even the minimal work that might not be as important as it looks. The firm also taught me to work as a team (Student Housing Project), and how every contribution, regardless of its magnitude matters. Through the weeks, I got to know how to be patient and do my work with perfection while keeping my mind at peace. Hence, from these learnings I got to know how training plays an important role in teaching the real-life situations in these architectural field. It was and will be a great experience for me to work on training at ThirdspaceArchitecture Studios, Belgaum, Karnataka, throughout this internship time period.

Name of the Project: YeshwantpurStudent Housing

Location: Yeshwantpur, Karnataka

Client : RohitKatti

Architect : JatanGala

Total Site Area : 4000 sq. ft. (371.6 sq.m)

Total Built Up Area : 8805.95 sq.ft. (818.1 sq.m)

STUDENT HOUSING

INTERN’S SCOPE OF WORK & CONTRIBUTION:

ASSIGNED TO FINISH THE PHYSICAL MODEL OF YESHWANTPUR STUDENT HOUSING.

FINISHED THE MODEL WITH THE HELP OF ANOTHER INTERN WITHIN 2 WEEKS

INTERN’S LEARNING:

1.IMPORTANCE OF TEAMWORK

2.IMPORTANCE OF DETAILED PHYSICAL MODEL AS IT SHOWS HOW IT WILL BE PROJECTED ON THE SITE

3.FACADES OF THE BUILDING NOT ONLY CAN BE USED FOR PLANTERS BUT ALSO FOR SITOUTS

4.RAMPS CAN BE USED FOR CYCLING ALSO

FIRM’S DETAILS:

AUTHRIZED SIGNATORY: SEAL:

INTERN’S INFORMATION:

SOUNDARYA SAHOO

193701082 SEM-VIII SEC-D

INSTITUTIONAL SEAL: SHEET NO. 01

Model making progress during 1st week Building Model along with one unit model on the day of discussion with Client (2nd week) Model by the end of 1st week

STUDENT HOUSING

INTERN’S SCOPE OF WORK & CONTRIBUTION:

ASSIGNED TO FINISH THE PHYSICAL MODEL OF YESHWANTPUR STUDENT HOUSING.

FINISHED THE MODEL WITH THE HELP OF ANOTHER INTERN WITHIN 2 WEEKS

INTERN’S LEARNING:

1.IMPORTANCE OF TEAMWORK

2.IMPORTANCE OF DETAILED PHYSICAL MODEL AS IT SHOWS HOW IT WILL BE PROJECTED ON THE SITE

3.FACADES OF THE BUILDING NOT ONLY CAN BE USED FOR PLANTERS BUT ALSO FOR SITOUTS

4.RAMPS CAN BE USED FOR CYCLING ALSO

FIRM’S DETAILS:

AUTHRIZED SIGNATORY: SEAL:

INTERN’S INFORMATION:

SOUNDARYA SAHOO

193701082 SEM-VIII SEC-D

INSTITUTIONAL SEAL: SHEET NO. 02

Model during later half of 1st week before façade was added Current Stage of Model which is kept inside Glass for Showcase Model during first half of 1st week before façade was included Model during first half of 1st week before façade was included

PUNYA SHRUSHTI INTERIORS

INTERN’S SCOPE OF WORK & CONTRIBUTION:

ASSIGNED TO RECONSTRUCT THE INTERIORS FOR THE PROJECT OF A UNIT OF 4TH FLOOR OF THE PROJECT.

COMPLETED THE PROJECT WHICH INCLUDES CAD DRAWINGS AND SKETCHUP MODEL

INTERN’S LEARNING:

1.MULTIPLE OPTIONS FOR LAYOUT OF BATHROOM.

2.DIFFERENT LIGHTING OPTIONS FOR BEDROOM AND OTHER SPACES.

3.MULTIPLE OPTIONS FOR FURNITURE LIKE WARDROBE AND BED FOR BEDROOMS.

4.IMPORTANCE OF STRUCTURAL DETAILINGS.

5.HOW TO MAKE INTERIORS SIMPLE YET MORE INTERESTING.

FIRM’S DETAILS:

AUTHRIZED SIGNATORY: SEAL: INTERN’S INFORMATION:

INSTITUTIONAL SEAL: SHEET NO.

03
2
BATHROOM 1 AND BATHROOM

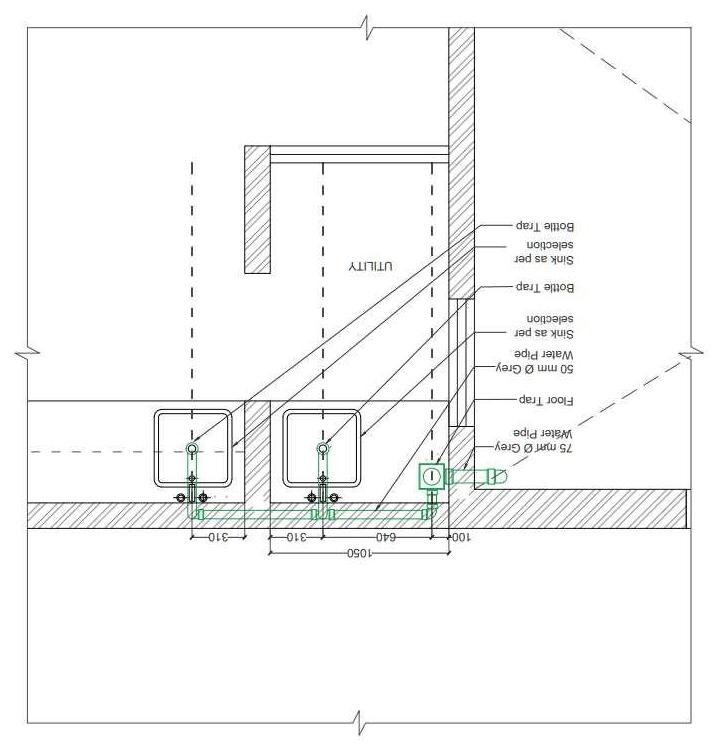
KITCHEN AND UTILITY

In Bathroom 3, as in is shifted to a new location, the challenge here was how to place the pipeline, after multiple options, we came up with this option which goes to the OTS via Living Room.

PUNYA SHRUSHTI INTERIORS

INTERN’S SCOPE OF WORK & CONTRIBUTION:

ASSIGNED TO RECONSTRUCT THE INTERIORS FOR THE PROJECT OF A UNIT OF 4TH FLOOR OF THE PROJECT.

COMPLETED THE PROJECT WHICH INCLUDES CAD DRAWINGS AND SKETCHUP MODEL

INTERN’S LEARNING:

1.MULTIPLE OPTIONS FOR LAYOUT OF BATHROOM.

2.DIFFERENT LIGHTING OPTIONS FOR BEDROOM AND OTHER SPACES.

3.MULTIPLE OPTIONS FOR FURNITURE LIKE WARDROBE AND BED FOR BEDROOMS.

4.IMPORTANCE OF STRUCTURAL DETAILINGS.

5.HOW TO MAKE INTERIORS SIMPLE YET MORE INTERESTING.

FIRM’S DETAILS:

BATHROOM 3

AUTHRIZED SIGNATORY: SEAL: INTERN’S INFORMATION:

INSTITUTIONAL SEAL: SHEET NO. 04

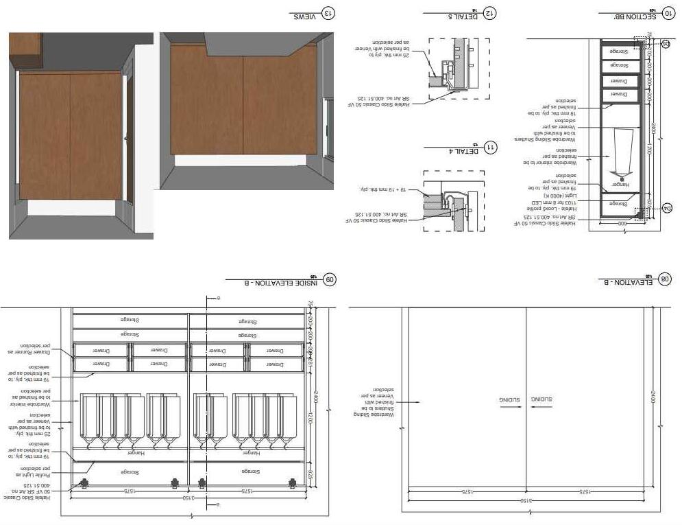
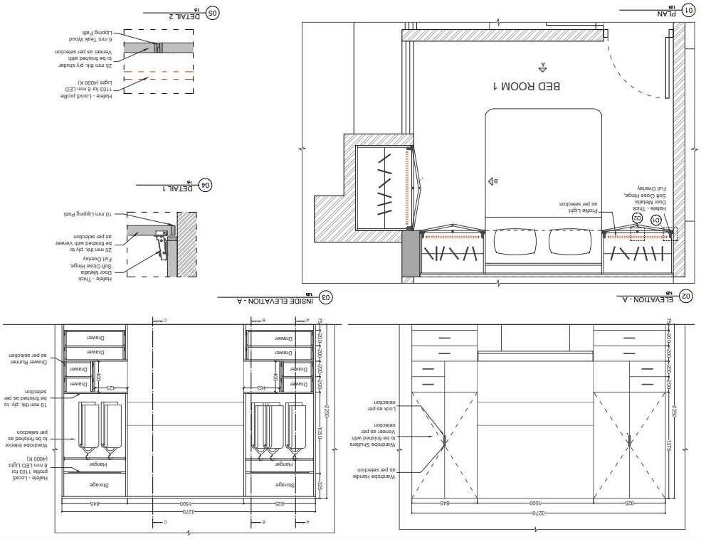
WARDROBE DETAILING OF BEDROOM 1

PUNYA SHRUSHTI INTERIORS

INTERN’S SCOPE OF WORK & CONTRIBUTION:

ASSIGNED TO RECONSTRUCT THE INTERIORS FOR THE PROJECT OF A UNIT OF 4TH FLOOR OF THE PROJECT.

COMPLETED THE PROJECT WHICH INCLUDES CAD DRAWINGS AND SKETCHUP MODEL

INTERN’S LEARNING:

1.MULTIPLE OPTIONS FOR LAYOUT OF BATHROOM.

2.DIFFERENT LIGHTING OPTIONS FOR BEDROOM AND OTHER SPACES.

3.MULTIPLE OPTIONS FOR FURNITURE LIKE WARDROBE AND BED FOR BEDROOMS.

4.IMPORTANCE OF STRUCTURAL DETAILINGS.

5.HOW TO MAKE INTERIORS SIMPLE YET MORE INTERESTING.

FIRM’S DETAILS:

AUTHRIZED SIGNATORY: SEAL: INTERN’S INFORMATION:

INSTITUTIONAL SEAL: SHEET NO.

05

WARDROBE DETAILING OF BEDROOM 1

For this wardrobe as we thought to remove the wall that was dividing two spaces i.e. Dining and Bedroom 1, and put a plywood and design it in such a way that the light will come both ways

PUNYA SHRUSHTI INTERIORS

INTERN’S SCOPE OF WORK & CONTRIBUTION:

ASSIGNED TO RECONSTRUCT THE INTERIORS FOR THE PROJECT OF A UNIT OF 4TH FLOOR OF THE PROJECT.

COMPLETED THE PROJECT WHICH INCLUDES CAD DRAWINGS AND SKETCHUP MODEL

INTERN’S LEARNING:

1.MULTIPLE OPTIONS FOR LAYOUT OF BATHROOM.

2.DIFFERENT LIGHTING OPTIONS FOR BEDROOM AND OTHER SPACES.

3.MULTIPLE OPTIONS FOR FURNITURE LIKE WARDROBE AND BED FOR BEDROOMS.

4.IMPORTANCE OF STRUCTURAL DETAILINGS.

5.HOW TO MAKE INTERIORS SIMPLE YET MORE INTERESTING.

FIRM’S DETAILS:

AUTHRIZED SIGNATORY: SEAL: INTERN’S INFORMATION:

INSTITUTIONAL SEAL: SHEET NO.

06

PUNYA SHRUSHTI INTERIORS

INTERN’S SCOPE OF WORK & CONTRIBUTION:

ASSIGNED TO RECONSTRUCT THE INTERIORS FOR THE PROJECT OF A UNIT OF 4TH FLOOR OF THE PROJECT.

COMPLETED THE PROJECT WHICH INCLUDES CAD DRAWINGS AND SKETCHUP MODEL

INTERN’S LEARNING:

1.MULTIPLE OPTIONS FOR LAYOUT OF BATHROOM.

2.DIFFERENT LIGHTING OPTIONS FOR BEDROOM AND OTHER SPACES.

3.MULTIPLE OPTIONS FOR FURNITURE LIKE WARDROBE AND BED FOR BEDROOMS.

4.IMPORTANCE OF STRUCTURAL DETAILINGS.

5.HOW TO MAKE INTERIORS SIMPLE YET MORE INTERESTING.

FIRM’S DETAILS:

WARDROBE DETAILING OF BEDROOM 1

AUTHRIZED SIGNATORY: SEAL:

INTERN’S INFORMATION:

INSTITUTIONAL SEAL: SHEET NO.

07

PUNYA SHRUSHTI INTERIORS

INTERN’S SCOPE OF WORK & CONTRIBUTION:

ASSIGNED TO RECONSTRUCT THE INTERIORS FOR THE PROJECT OF A UNIT OF 4TH FLOOR OF THE PROJECT.

COMPLETED THE PROJECT WHICH INCLUDES CAD DRAWINGS AND SKETCHUP MODEL

INTERN’S LEARNING:

1.MULTIPLE OPTIONS FOR LAYOUT OF BATHROOM.

2.DIFFERENT LIGHTING OPTIONS FOR BEDROOM AND OTHER SPACES.

3.MULTIPLE OPTIONS FOR FURNITURE LIKE WARDROBE AND BED FOR BEDROOMS.

4.IMPORTANCE OF STRUCTURAL DETAILINGS.

5.HOW TO MAKE INTERIORS SIMPLE YET MORE INTERESTING.

FIRM’S DETAILS:

WARDROBE DETAILING OF BEDROOM 3

AUTHRIZED SIGNATORY: SEAL: INTERN’S INFORMATION:

INSTITUTIONAL SEAL: SHEET NO.

08

PUNYA SHRUSHTI INTERIORS

INTERN’S SCOPE OF WORK & CONTRIBUTION:

ASSIGNED TO RECONSTRUCT THE INTERIORS FOR THE PROJECT OF A UNIT OF 4TH FLOOR OF THE PROJECT.

COMPLETED THE PROJECT WHICH INCLUDES CAD DRAWINGS AND SKETCHUP MODEL

INTERN’S LEARNING:

1.MULTIPLE OPTIONS FOR LAYOUT OF BATHROOM.

2.DIFFERENT LIGHTING OPTIONS FOR BEDROOM AND OTHER SPACES.

3.MULTIPLE OPTIONS FOR FURNITURE LIKE WARDROBE AND BED FOR BEDROOMS.

4.IMPORTANCE OF STRUCTURAL DETAILINGS.

5.HOW TO MAKE INTERIORS SIMPLE YET MORE INTERESTING.

FIRM’S DETAILS:

WARDROBE DETAILING OF BEDROOM 3

AUTHRIZED SIGNATORY: SEAL: INTERN’S INFORMATION:

INSTITUTIONAL SEAL: SHEET NO. 09

PUNYA SHRUSHTI INTERIORS

INTERN’S SCOPE OF WORK & CONTRIBUTION:

ASSIGNED TO RECONSTRUCT THE INTERIORS FOR THE PROJECT OF A UNIT OF 4TH FLOOR OF THE PROJECT.

COMPLETED THE PROJECT WHICH INCLUDES CAD DRAWINGS AND SKETCHUP MODEL

INTERN’S LEARNING:

1.MULTIPLE OPTIONS FOR LAYOUT OF BATHROOM.

2.DIFFERENT LIGHTING OPTIONS FOR BEDROOM AND OTHER SPACES.

3.MULTIPLE OPTIONS FOR FURNITURE LIKE WARDROBE AND BED FOR BEDROOMS.

4.IMPORTANCE OF STRUCTURAL DETAILINGS.

5.HOW TO MAKE INTERIORS SIMPLE YET MORE INTERESTING.

FIRM’S DETAILS:

AUTHRIZED SIGNATORY: SEAL: INTERN’S INFORMATION:

INSTITUTIONAL SEAL: SHEET NO. 10

BED DETAILING OF ALL BEDROOMS

MASTER BEDROOM ELECTRICAL LAYOUT

PUNYA SHRUSHTI INTERIORS

INTERN’S SCOPE OF WORK & CONTRIBUTION:

ASSIGNED TO RECONSTRUCT THE INTERIORS FOR THE PROJECT OF A UNIT OF 4TH FLOOR OF THE PROJECT.

COMPLETED THE PROJECT WHICH INCLUDES CAD DRAWINGS AND SKETCHUP MODEL

INTERN’S LEARNING:

1.MULTIPLE OPTIONS FOR LAYOUT OF BATHROOM.

2.DIFFERENT LIGHTING OPTIONS FOR BEDROOM AND OTHER SPACES.

3.MULTIPLE OPTIONS FOR FURNITURE LIKE WARDROBE AND BED FOR BEDROOMS.

4.IMPORTANCE OF STRUCTURAL DETAILINGS.

5.HOW TO MAKE INTERIORS SIMPLE YET MORE INTERESTING.

FIRM’S DETAILS:

For the electrical layout of Master Bedroom, different options for lighting layout was asked to do instead of having ceiling light. So, lighting fixtures like track light, cove lighting and wall light have been used in this layout.

AUTHRIZED SIGNATORY: SEAL: INTERN’S INFORMATION:

INSTITUTIONAL SEAL: SHEET NO.

11

PUNYA SHRUSHTI INTERIORS

INTERN’S SCOPE OF WORK & CONTRIBUTION:

ASSIGNED TO RECONSTRUCT THE INTERIORS FOR THE PROJECT OF A UNIT OF 4TH FLOOR OF THE PROJECT.

COMPLETED THE PROJECT WHICH INCLUDES CAD DRAWINGS AND SKETCHUP MODEL

INTERN’S LEARNING:

1.MULTIPLE OPTIONS FOR LAYOUT OF BATHROOM.

2.DIFFERENT LIGHTING OPTIONS FOR BEDROOM AND OTHER SPACES.

3.MULTIPLE OPTIONS FOR FURNITURE LIKE WARDROBE AND BED FOR BEDROOMS.

4.IMPORTANCE OF STRUCTURAL DETAILINGS.

5.HOW TO MAKE INTERIORS SIMPLE YET MORE INTERESTING.

FIRM’S DETAILS:

AUTHRIZED SIGNATORY: SEAL: INTERN’S INFORMATION:

INSTITUTIONAL SEAL: SHEET NO.

12 KITCHEN
CUM DINING ELECTRICAL LAYOUT

PUNYA SHRUSHTI INTERIORS

INTERN’S SCOPE OF WORK & CONTRIBUTION:

ASSIGNED TO RECONSTRUCT THE INTERIORS FOR THE PROJECT OF A UNIT OF 4TH FLOOR OF THE PROJECT.

COMPLETED THE PROJECT WHICH INCLUDES CAD DRAWINGS AND SKETCHUP MODEL

INTERN’S LEARNING:

1.MULTIPLE OPTIONS FOR LAYOUT OF BATHROOM.

2.DIFFERENT LIGHTING OPTIONS FOR BEDROOM AND OTHER SPACES.

3.MULTIPLE OPTIONS FOR FURNITURE LIKE WARDROBE AND BED FOR BEDROOMS.

4.IMPORTANCE OF STRUCTURAL DETAILINGS.

5.HOW TO MAKE INTERIORS SIMPLE YET MORE INTERESTING.

FIRM’S DETAILS:

AUTHRIZED SIGNATORY: SEAL: INTERN’S INFORMATION:

INSTITUTIONAL SEAL: SHEET NO.

13 LIVING SPACE AND LOBBY ELECTRICAL LAYOUT

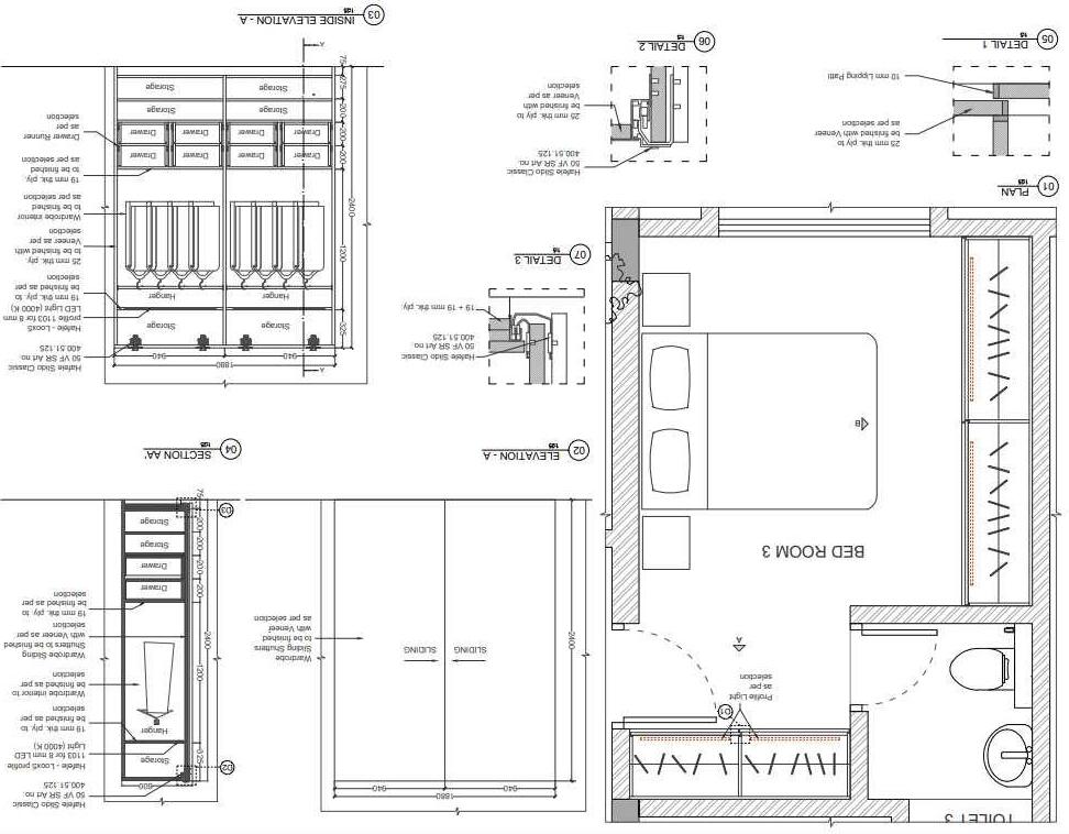
BEDROOM 3 AND TOILET 3 SECTIONS AND DETAILS

PUNYA SHRUSHTI INTERIORS

INTERN’S SCOPE OF WORK & CONTRIBUTION:

ASSIGNED TO RECONSTRUCT THE INTERIORS FOR THE PROJECT OF A UNIT OF 4TH FLOOR OF THE PROJECT.

COMPLETED THE PROJECT WHICH INCLUDES CAD DRAWINGS AND SKETCHUP MODEL

INTERN’S LEARNING:

1.MULTIPLE OPTIONS FOR LAYOUT OF BATHROOM.

2.DIFFERENT LIGHTING OPTIONS FOR BEDROOM AND OTHER SPACES.

3.MULTIPLE OPTIONS FOR FURNITURE LIKE WARDROBE AND BED FOR BEDROOMS.

4.IMPORTANCE OF STRUCTURAL DETAILINGS.

5.HOW TO MAKE INTERIORS SIMPLE YET MORE INTERESTING.

FIRM’S DETAILS:

AUTHRIZED SIGNATORY: SEAL: INTERN’S INFORMATION:

INSTITUTIONAL SEAL: SHEET NO.

14

BEDROOM 1 AND TOILET 1 SECTIONS AND DETAILS

PUNYA SHRUSHTI INTERIORS

INTERN’S SCOPE OF WORK & CONTRIBUTION:

ASSIGNED TO RECONSTRUCT THE INTERIORS FOR THE PROJECT OF A UNIT OF 4TH FLOOR OF THE PROJECT.

COMPLETED THE PROJECT WHICH INCLUDES CAD DRAWINGS AND SKETCHUP MODEL

INTERN’S LEARNING:

1.MULTIPLE OPTIONS FOR LAYOUT OF BATHROOM.

2.DIFFERENT LIGHTING OPTIONS FOR BEDROOM AND OTHER SPACES.

3.MULTIPLE OPTIONS FOR FURNITURE LIKE WARDROBE AND BED FOR BEDROOMS.

4.IMPORTANCE OF STRUCTURAL DETAILINGS.

5.HOW TO MAKE INTERIORS SIMPLE YET MORE INTERESTING.

FIRM’S DETAILS:

AUTHRIZED SIGNATORY: SEAL: INTERN’S INFORMATION:

INSTITUTIONAL SEAL: SHEET NO.

15

PUNYA SHRUSHTI INTERIORS

INTERN’S SCOPE OF WORK & CONTRIBUTION:

ASSIGNED TO RECONSTRUCT THE INTERIORS FOR THE PROJECT OF A UNIT OF 4TH FLOOR OF THE PROJECT.

COMPLETED THE PROJECT WHICH INCLUDES CAD DRAWINGS AND SKETCHUP MODEL

INTERN’S LEARNING:

1.MULTIPLE OPTIONS FOR LAYOUT OF BATHROOM.

2.DIFFERENT LIGHTING OPTIONS FOR BEDROOM AND OTHER SPACES.

3.MULTIPLE OPTIONS FOR FURNITURE LIKE WARDROBE AND BED FOR BEDROOMS.

4.IMPORTANCE OF STRUCTURAL DETAILINGS.

5.HOW TO MAKE INTERIORS SIMPLE YET MORE INTERESTING.

FIRM’S DETAILS:

AUTHRIZED SIGNATORY: SEAL:

INTERN’S INFORMATION:

INSTITUTIONAL SEAL: SHEET NO.

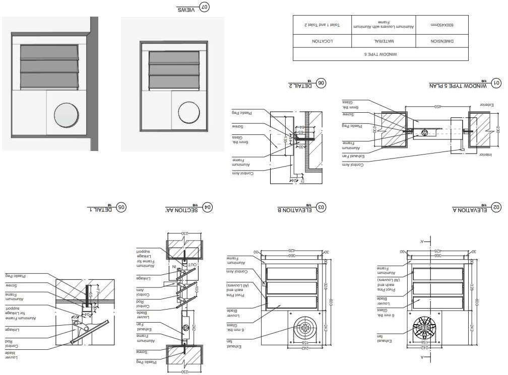
16 BATHROOM DOOR DETAILING

PUNYA SHRUSHTI INTERIORS

INTERN’S SCOPE OF WORK & CONTRIBUTION:

ASSIGNED TO RECONSTRUCT THE INTERIORS FOR THE PROJECT OF A UNIT OF 4TH FLOOR OF THE PROJECT.

COMPLETED THE PROJECT WHICH INCLUDES CAD DRAWINGS AND SKETCHUP MODEL

INTERN’S LEARNING:

1.MULTIPLE OPTIONS FOR LAYOUT OF BATHROOM.

2.DIFFERENT LIGHTING OPTIONS FOR BEDROOM AND OTHER SPACES.

3.MULTIPLE OPTIONS FOR FURNITURE LIKE WARDROBE AND BED FOR BEDROOMS.

4.IMPORTANCE OF STRUCTURAL DETAILINGS.

5.HOW TO MAKE INTERIORS SIMPLE YET MORE INTERESTING.

FIRM’S DETAILS:

AUTHRIZED SIGNATORY: SEAL: INTERN’S INFORMATION:

INSTITUTIONAL SEAL: SHEET

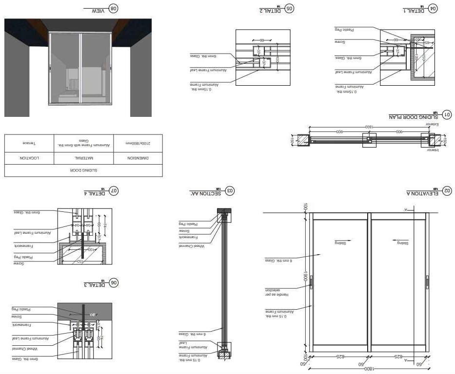
NO. 17 TERRACE DOOR DETAILING

PUNYA SHRUSHTI INTERIORS

INTERN’S SCOPE OF WORK & CONTRIBUTION:

ASSIGNED TO RECONSTRUCT THE INTERIORS FOR THE PROJECT OF A UNIT OF 4TH FLOOR OF THE PROJECT.

COMPLETED THE PROJECT WHICH INCLUDES CAD DRAWINGS AND SKETCHUP MODEL

INTERN’S LEARNING:

1.MULTIPLE OPTIONS FOR LAYOUT OF BATHROOM.

2.DIFFERENT LIGHTING OPTIONS FOR BEDROOM AND OTHER SPACES.

3.MULTIPLE OPTIONS FOR FURNITURE LIKE WARDROBE AND BED FOR BEDROOMS.

4.IMPORTANCE OF STRUCTURAL DETAILINGS.

5.HOW TO MAKE INTERIORS SIMPLE YET MORE INTERESTING.

FIRM’S DETAILS:

AUTHRIZED SIGNATORY: SEAL:

INTERN’S INFORMATION:

INSTITUTIONAL SEAL: SHEET

NO. 18 MAIN DOOR DETAILING

PUNYA SHRUSHTI INTERIORS

INTERN’S SCOPE OF WORK & CONTRIBUTION:

ASSIGNED TO RECONSTRUCT THE INTERIORS FOR THE PROJECT OF A UNIT OF 4TH FLOOR OF THE PROJECT.

COMPLETED THE PROJECT WHICH INCLUDES CAD DRAWINGS AND SKETCHUP MODEL

INTERN’S LEARNING:

1.MULTIPLE OPTIONS FOR LAYOUT OF BATHROOM.

2.DIFFERENT LIGHTING OPTIONS FOR BEDROOM AND OTHER SPACES.

3.MULTIPLE OPTIONS FOR FURNITURE LIKE WARDROBE AND BED FOR BEDROOMS.

4.IMPORTANCE OF STRUCTURAL DETAILINGS.

5.HOW TO MAKE INTERIORS SIMPLE YET MORE INTERESTING.

FIRM’S DETAILS:

AUTHRIZED SIGNATORY: SEAL: INTERN’S INFORMATION:

INSTITUTIONAL SEAL: SHEET

NO. 19 BEDROOM DOOR DETAILING

PUNYA SHRUSHTI INTERIORS

INTERN’S SCOPE OF WORK & CONTRIBUTION:

ASSIGNED TO RECONSTRUCT THE INTERIORS FOR THE PROJECT OF A UNIT OF 4TH FLOOR OF THE PROJECT.

COMPLETED THE PROJECT WHICH INCLUDES CAD DRAWINGS AND SKETCHUP MODEL

INTERN’S LEARNING:

1.MULTIPLE OPTIONS FOR LAYOUT OF BATHROOM.

2.DIFFERENT LIGHTING OPTIONS FOR BEDROOM AND OTHER SPACES.

3.MULTIPLE OPTIONS FOR FURNITURE LIKE WARDROBE AND BED FOR BEDROOMS.

4.IMPORTANCE OF STRUCTURAL DETAILINGS.

5.HOW TO MAKE INTERIORS SIMPLE YET MORE INTERESTING.

FIRM’S DETAILS:

AUTHRIZED SIGNATORY: SEAL: INTERN’S INFORMATION:

INSTITUTIONAL SEAL: SHEET NO.

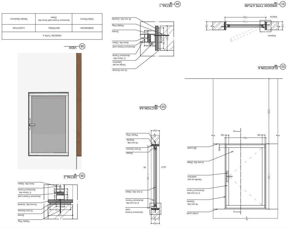
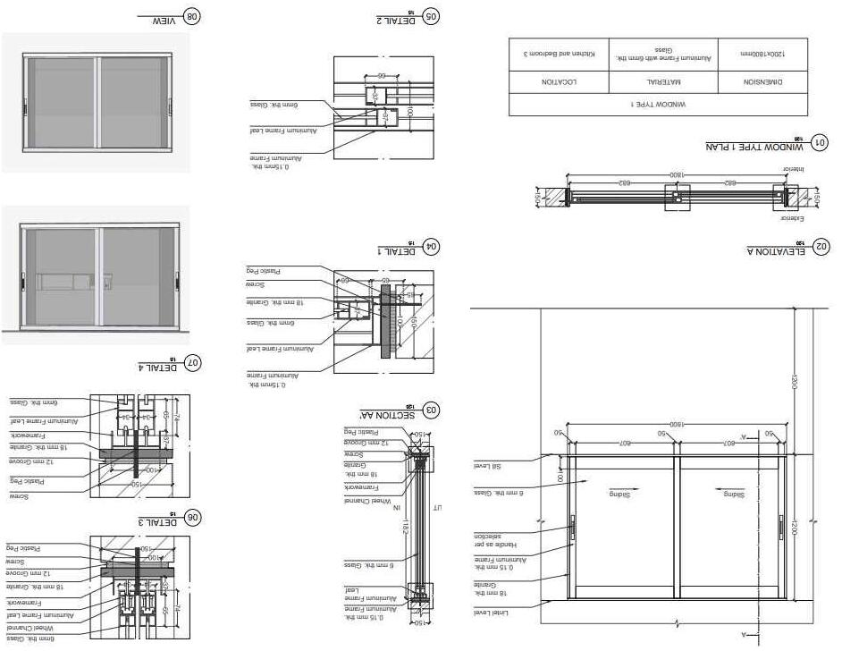
20 WINDOW DETAILING

PUNYA SHRUSHTI INTERIORS

INTERN’S SCOPE OF WORK & CONTRIBUTION:

ASSIGNED TO RECONSTRUCT THE INTERIORS FOR THE PROJECT OF A UNIT OF 4TH FLOOR OF THE PROJECT.

COMPLETED THE PROJECT WHICH INCLUDES CAD DRAWINGS AND SKETCHUP MODEL

INTERN’S LEARNING:

1.MULTIPLE OPTIONS FOR LAYOUT OF BATHROOM.

2.DIFFERENT LIGHTING OPTIONS FOR BEDROOM AND OTHER SPACES.

3.MULTIPLE OPTIONS FOR FURNITURE LIKE WARDROBE AND BED FOR BEDROOMS.

4.IMPORTANCE OF STRUCTURAL DETAILINGS.

5.HOW TO MAKE INTERIORS SIMPLE YET MORE INTERESTING.

FIRM’S DETAILS:

AUTHRIZED SIGNATORY: SEAL: INTERN’S INFORMATION:

INSTITUTIONAL SEAL: SHEET

NO. 21 WINDOW DETAILING

PUNYA SHRUSHTI INTERIORS

INTERN’S SCOPE OF WORK & CONTRIBUTION:

ASSIGNED TO RECONSTRUCT THE INTERIORS FOR THE PROJECT OF A UNIT OF 4TH FLOOR OF THE PROJECT.

COMPLETED THE PROJECT WHICH INCLUDES CAD DRAWINGS AND SKETCHUP MODEL

INTERN’S LEARNING:

1.MULTIPLE OPTIONS FOR LAYOUT OF BATHROOM.

2.DIFFERENT LIGHTING OPTIONS FOR BEDROOM AND OTHER SPACES.

3.MULTIPLE OPTIONS FOR FURNITURE LIKE WARDROBE AND BED FOR BEDROOMS.

4.IMPORTANCE OF STRUCTURAL DETAILINGS.

5.HOW TO MAKE INTERIORS SIMPLE YET MORE INTERESTING.

FIRM’S DETAILS:

AUTHRIZED SIGNATORY: SEAL: INTERN’S INFORMATION:

INSTITUTIONAL SEAL: SHEET NO.

22 WINDOW DETAILING

Name of the Project: PunyaShrusthiInteriors

Location: Kolhapur, Maharashtra

Client : HarithaRathod

Architect : AshwiniC.

Total Area : 148.80 sq.m.

Total Carpet Area : 107.90 sq.m.

PUNYA SHRUSHTI INTERIORS

INTERN’S SCOPE OF WORK & CONTRIBUTION:

ASSIGNED TO RECONSTRUCT THE INTERIORS FOR THE PROJECT OF A UNIT OF 4TH FLOOR OF THE PROJECT.

COMPLETED THE PROJECT WHICH INCLUDES CAD DRAWINGS AND SKETCHUP MODEL

INTERN’S LEARNING:

1.MULTIPLE OPTIONS FOR LAYOUT OF BATHROOM.

2.DIFFERENT LIGHTING OPTIONS FOR BEDROOM AND OTHER SPACES.

3.MULTIPLE OPTIONS FOR FURNITURE LIKE WARDROBE AND BED FOR BEDROOMS.

4.IMPORTANCE OF STRUCTURAL DETAILINGS.

5.HOW TO MAKE INTERIORS SIMPLE YET MORE INTERESTING.

FIRM’S DETAILS:

AUTHRIZED SIGNATORY: SEAL: INTERN’S INFORMATION:

INSTITUTIONAL SEAL: SHEET NO.

23
KITCHEN CUM DINING LIVING SPACE

Kitchen Cum Dining Space (When visit to site on Day 1)

Name of the Project: Coliving

Location: RanadeColony, Cross 1, Hindwadi, Belagavi

Client : Ar. Praveen Bavadekar

Architect : AshwiniC.

Total Site Area : 99.19 sq.m.

Total Carpet Area : 77.68 sq.m.

2nd Entrance to the site (South)

COLIVING

INTERN’S SCOPE OF WORK & CONTRIBUTION:

ASSIGNED TO DO DOCUMENTATION ON NEW PROJECT LOCATED NEAR TO THE FIRM WITH THE HELP OF ANOTHER INTERN

COVERED MOST OF THE SPACES FOR DOCUMENTATION

INTERN’S LEARNING:

1.IMPORTANCE OF TEAMWORK

2.HOW THE PROBLEMS HAVE BEEN TACKLED THE DIFFICULT ISSUES AND WHY THOSE DECISION HAVE BEEN MADE.

FIRM’S DETAILS:

AUTHRIZED SIGNATORY: SEAL:

INTERN’S INFORMATION:

SOUNDARYA SAHOO

193701082 SEM-VIII SEC-D

INSTITUTIONAL SEAL: SHEET NO. 24

Documentation of Living Space of project on Day 1 of Site Visit Documentation of Bedroom and other spaces on Day 2 of Site Visit

Living Space (When visit to site on Day 1)

Documentation of Bedroom and other spaces on Day 2 of Site Visit

COLIVING

INTERN’S SCOPE OF WORK & CONTRIBUTION:

ASSIGNED TO DO DOCUMENTATION ON NEW PROJECT LOCATED NEAR TO THE FIRM WITH THE HELP OF ANOTHER INTERN

COVERED MOST OF THE SPACES FOR DOCUMENTATION

INTERN’S LEARNING:

Documentation of Windows on Day 1 of Site Visit

1.IMPORTANCE OF TEAMWORK

2.HOW THE PROBLEMS HAVE BEEN TACKLED THE DIFFICULT ISSUES AND WHY THOSE DECISION HAVE BEEN MADE.

Bedroom 1 (When visit to site on Day 1)

FIRM’S DETAILS:

AUTHRIZED SIGNATORY: SEAL:

INTERN’S INFORMATION:

SOUNDARYA SAHOO

193701082 SEM-VIII SEC-D

INSTITUTIONAL SEAL: SHEET NO. 25

KOCHI-MUZIRIS BIENNALE 2022-23

1.TRIVANDRIUM WAREHOUSE

2.INVITATION PROGRAMS

3.KVN ARCADE

MISCELLANEOUS

INTERN’S SCOPE OF WORK & CONTRIBUTION:

VISIT THE ART FESTIVAL THAT WAS HAPPENING IN KOCHI. HAVE A PRESENTATION ABOUT IT WHILE RETURN BACK TO OFFICE.

PRESENTATED THE EXPERIENCES THAT WE HAD IN THAT ART FESTIVAL INTERN’S LEARNING:

1.USAGE OF WASTE MATERIALS TO MAKE SOMETHING INNOVATIVE.

2.LEARN HOW THROUGH PAINTINGS CAN EXPRESS EMOTIONS, FEELINGS, STORYTELLING ETC.

3.PEOPLE LIFESTYLE IN THE PAST.

FIRM’S DETAILS:

AUTHRIZED SIGNATORY: SEAL:

INTERN’S INFORMATION:

SOUNDARYA SAHOO 193701082 SEM-VIII SEC-D

INSTITUTIONAL SEAL: SHEET NO. 26

THANK YOU

Turn static files into dynamic content formats.

Create a flipbook
Issuu converts static files into: digital portfolios, online yearbooks, online catalogs, digital photo albums and more. Sign up and create your flipbook.